Скачать Серия 1.090.1-3пв Выпуск 3-1. Панели внутренних стен нулевого цикла для сборного варианта. Рабочие чертежиДата актуализации: 01.01.2021
|
| Обозначение: | Серия 1.090.1-3пв |
| Обозначение англ: | Series 1.090.1-3пв |
| Статус: | не определен законодательством |
| Название рус.: | Выпуск 3-1. Панели внутренних стен нулевого цикла для сборного варианта. Рабочие чертежи |
| Дата добавления в базу: | 01.09.2013 |
| Дата актуализации: | 01.01.2021 |
| Дата введения: | 01.01.1985 |
| Дата окончания срока действия: | 30.06.2003 |
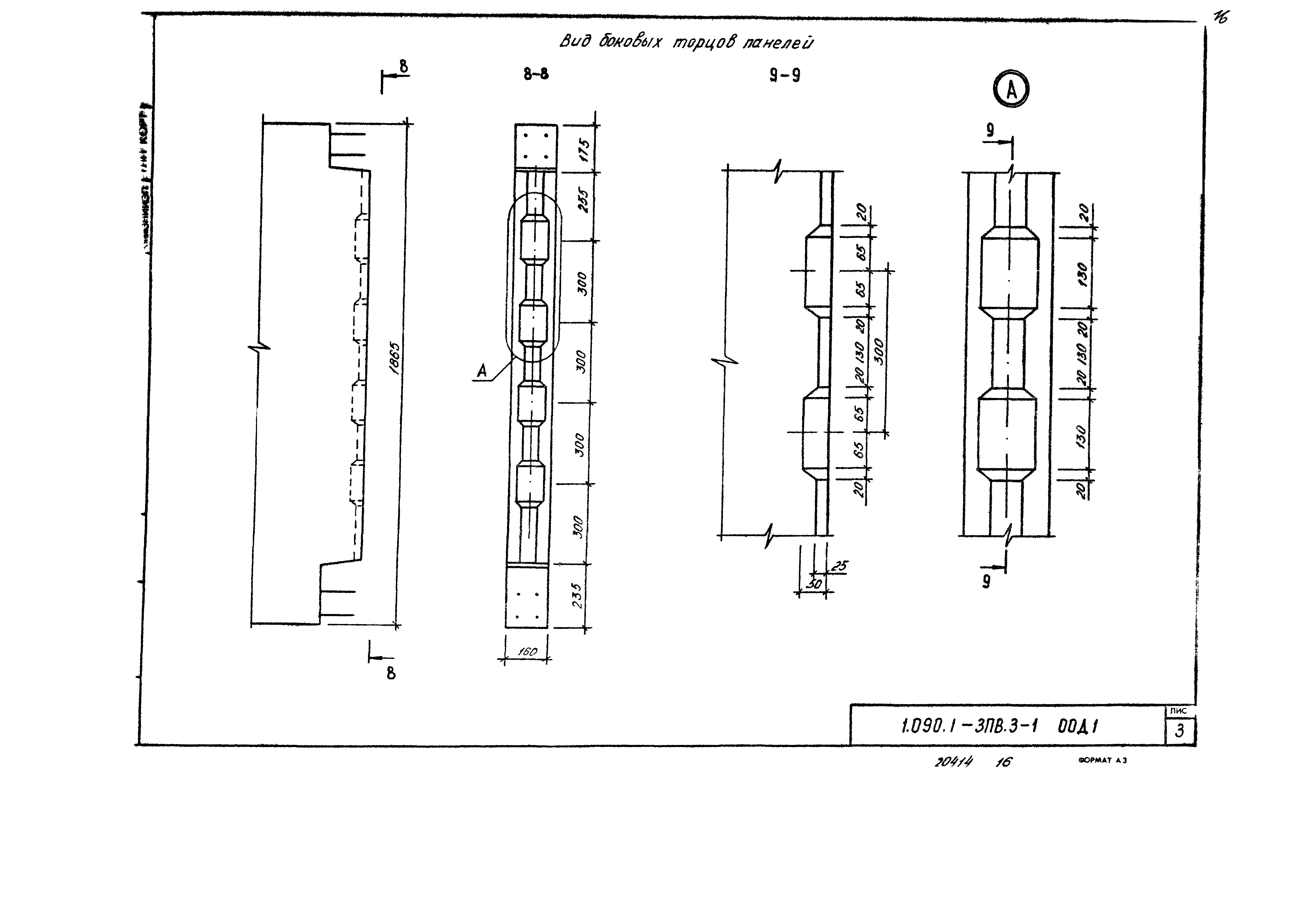
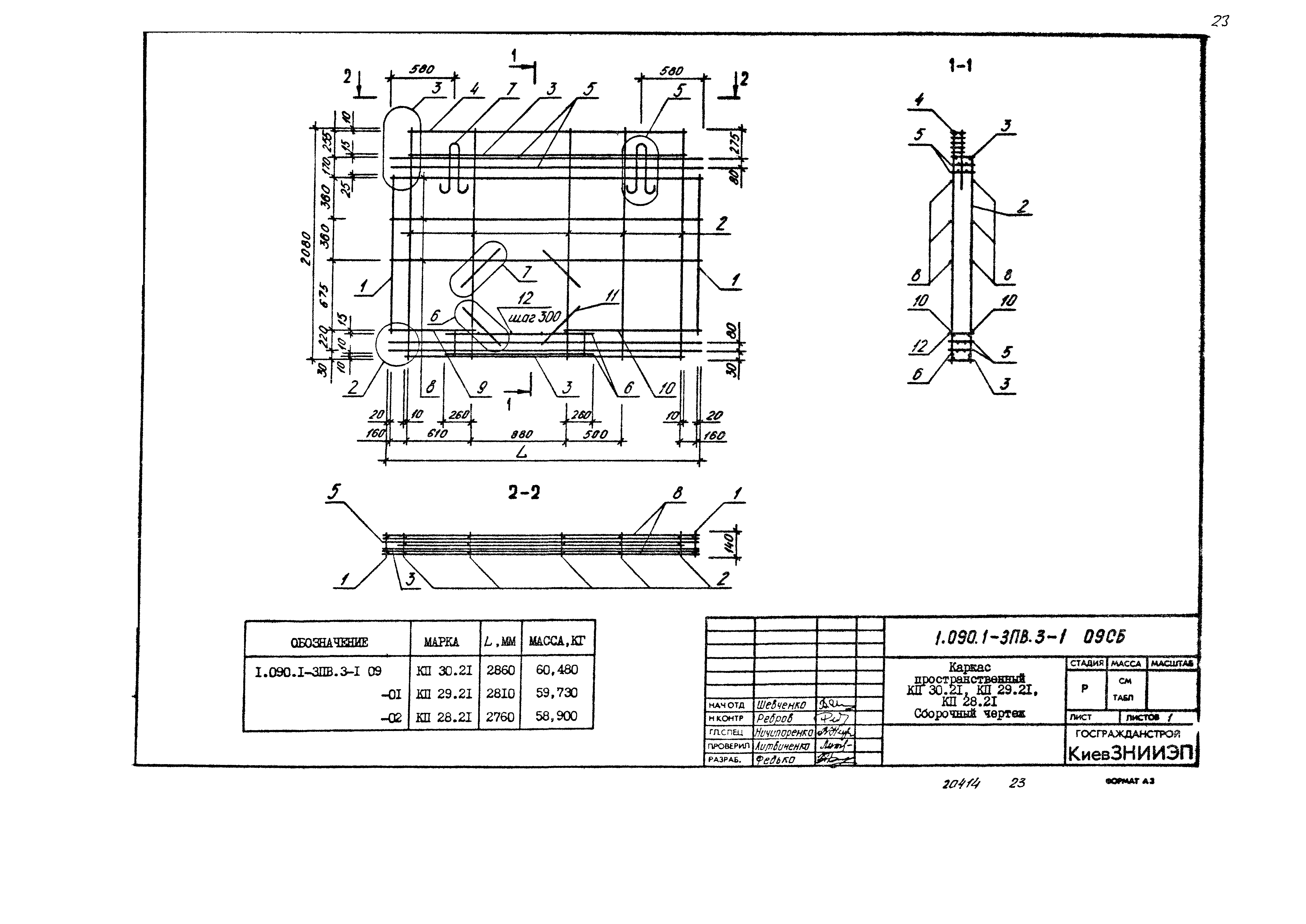
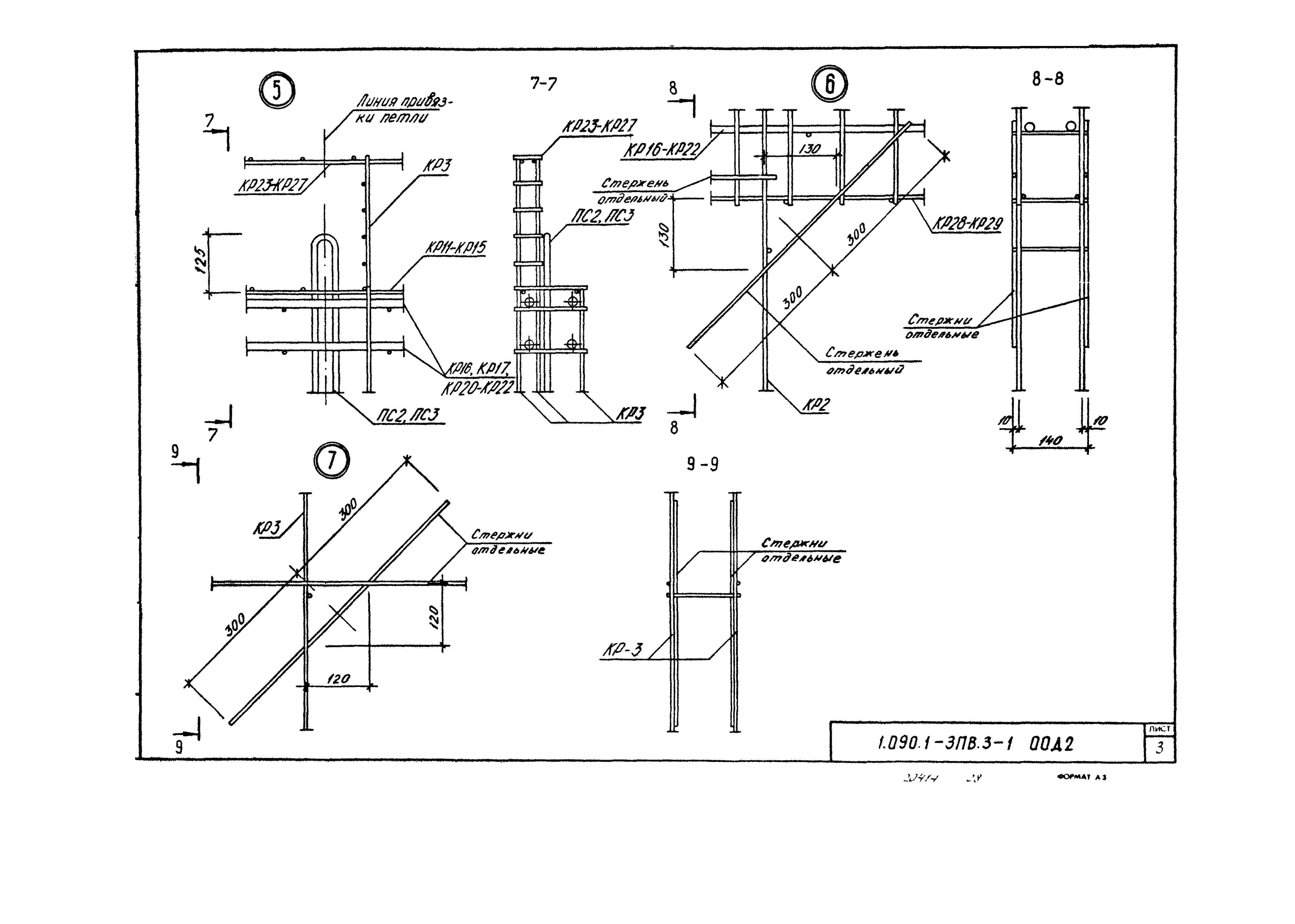
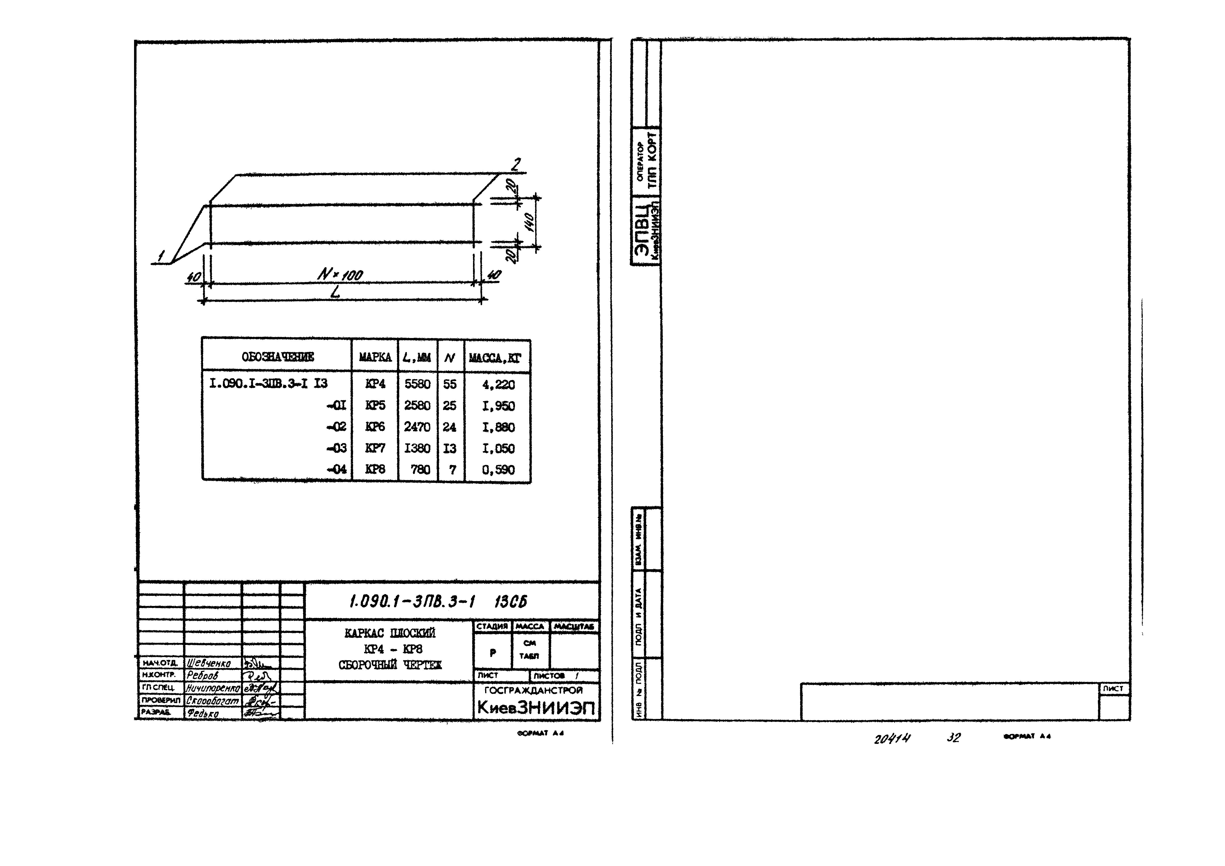
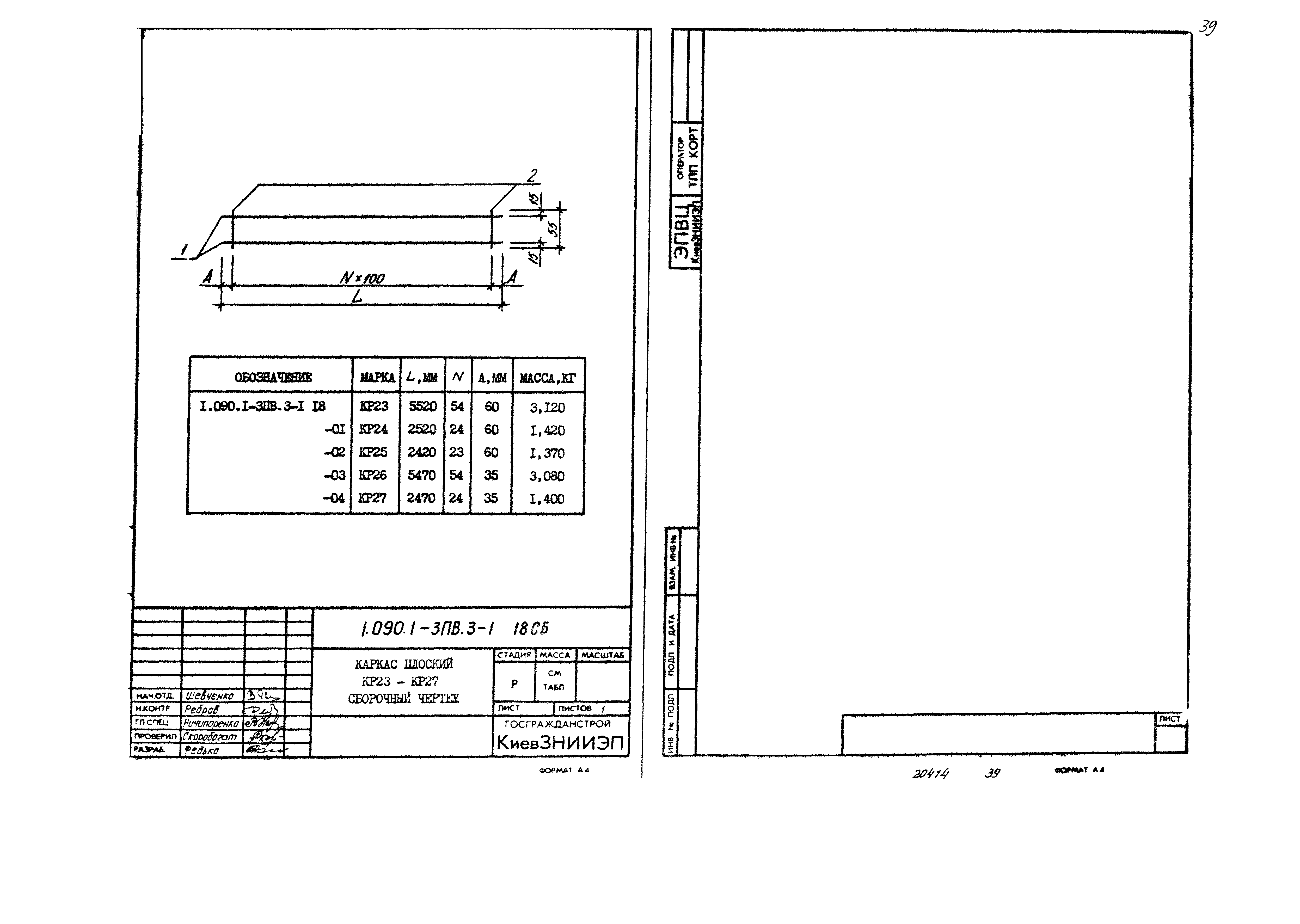
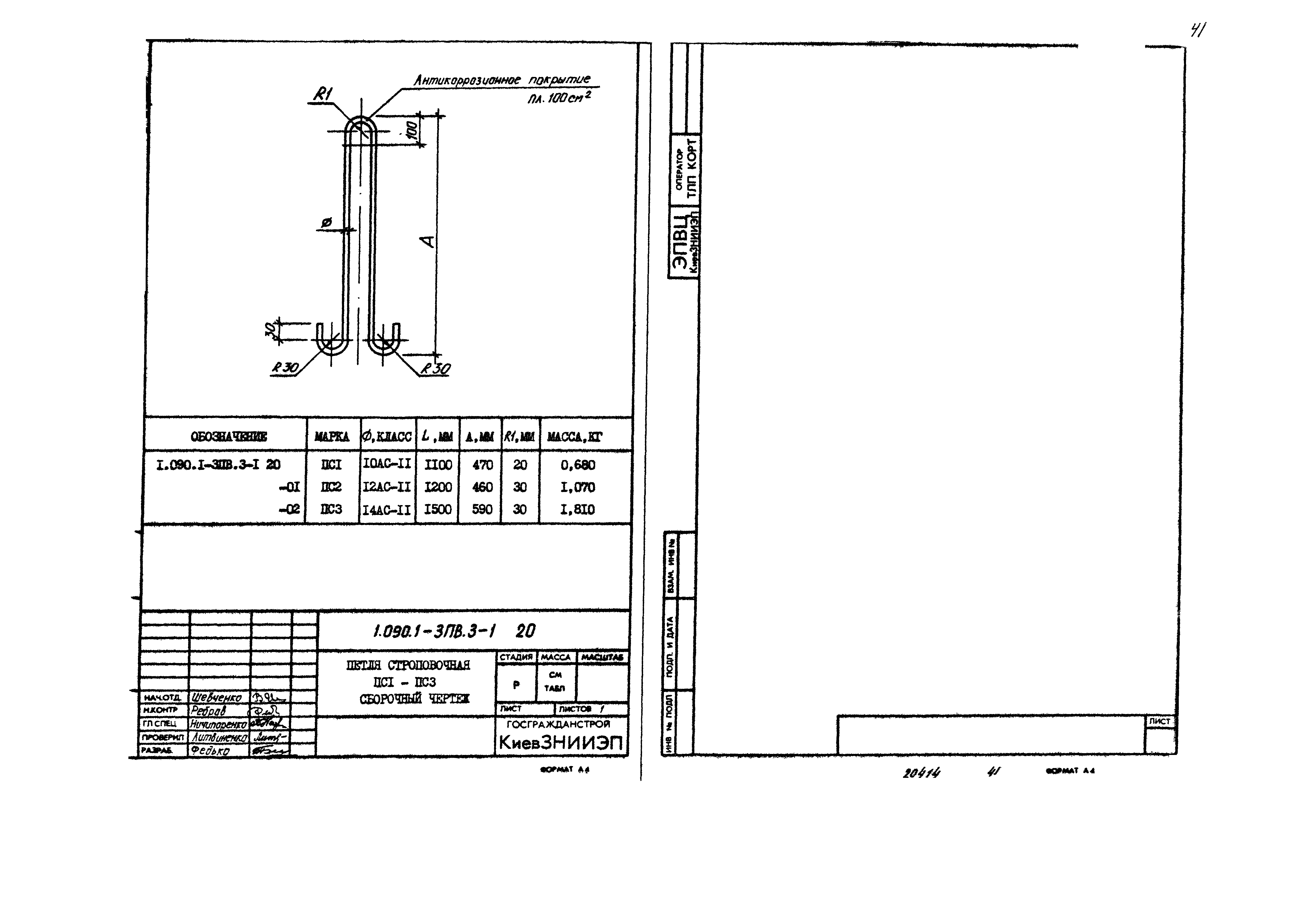
| Оглавление: | 1.090.1-3ПВ.3-1-00С Содержание 1.090.1-3ПВ.3-1-00ТО Техническое описание 1.090.1-3ПВ.3-1-01 Панель цокольная ПВЦ18.19,ПВЦ12.19 1.090.1-3ПВ.3-1-02 Панель цокольная ПВЦ30.19,ПВЦ29.19,ПВЦ28.19 1.090.1-3ПВ.3-1-03 Панель цокольная ПВЦ60.19,ПВЦ59.19 1.090.1-3ПВ.3-1-04 Панель цокольная ПВЦ30.21,ПВЦ29.21,ПВЦ28.21 1.090.1-3ПВ.3-1-05 Панель цокольная ПВЦ60.21,ПВЦ59.21 1.090.1-3ПВ.3-1-00Д1 Узлы опалубочные 1.090.1-3ПВ.3-1-06 Каркас пространственный КП18.19,КП12.19 1.090.1-3ПВ.3-1-07 Каркас пространственный КП30.19,КП28.19 1.090.1-3ПВ.3-1-08 Каркас пространственный КП60.19,КП59.19 1.090.1-3ПВ.3-1-09 Каркас пространственный КП30.21,КП29.21,КП28.21 1.090.1-3ПВ.3-1-10 Каркас пространственный КП60.21,КП59.21 1.090.1-3ПВ.3-1-00Д2 Узлы арматурные 1.090.1-3ПВ.3-1-11 Каркас плоский КР1,КР2 1.090.1-3ПВ.3-1-12 Каркас плоский КР3 1.090.1-3ПВ.3-1-13 Каркас плоский КР4-КР8 1.090.1-3ПВ.3-1-14 Каркас плоский КР9-КР12 1.090.1-3ПВ.3-1-15 Каркас плоский КР13-КР15 1.090.1-3ПВ.3-1-16 Каркас плоский КР16-КР19 1.090.1-3ПВ.3-1-17 Каркас плоский КР20-КР22 1.090.1-3ПВ.3-1-18 Каркас плоский КР23-КР27 1.090.1-3ПВ.3-1-19 Каркас плоский КР28,КР29 1.090.1-3ПВ.3-1-20 Петля строповочная ПС1-ПС3 1.090.1-3ПВ.3-1-00РС Ведомость расхода стали на элемент, кг |
| Разработан: | КиевЗНИИЭП ЦНИИЭП торгово-бытовых зданий и туристских комплексов |
| Утверждён: | 01.11.1984 Госстрой СССР (Государственный комитет Совета Министров СССР по делам строительства) (USSR Gosstroy ИИ-32) |
| Издан: | ЦИТП Госстроя СССР (CITP, Gosstroy (USSR) 1985 г. ) |










































