Скачать Серия 1.090.1-3пв Выпуск 4-1. Панели внутренних стен для зданий с высотой этажа 3,3 м. Рабочие чертежиДата актуализации: 01.01.2021
|
| Обозначение: | Серия 1.090.1-3пв |
| Обозначение англ: | Series 1.090.1-3пв |
| Статус: | не определен законодательством |
| Название рус.: | Выпуск 4-1. Панели внутренних стен для зданий с высотой этажа 3,3 м. Рабочие чертежи |
| Дата добавления в базу: | 01.09.2013 |
| Дата актуализации: | 01.01.2021 |
| Дата введения: | 01.01.1985 |
| Дата окончания срока действия: | 30.06.2003 |
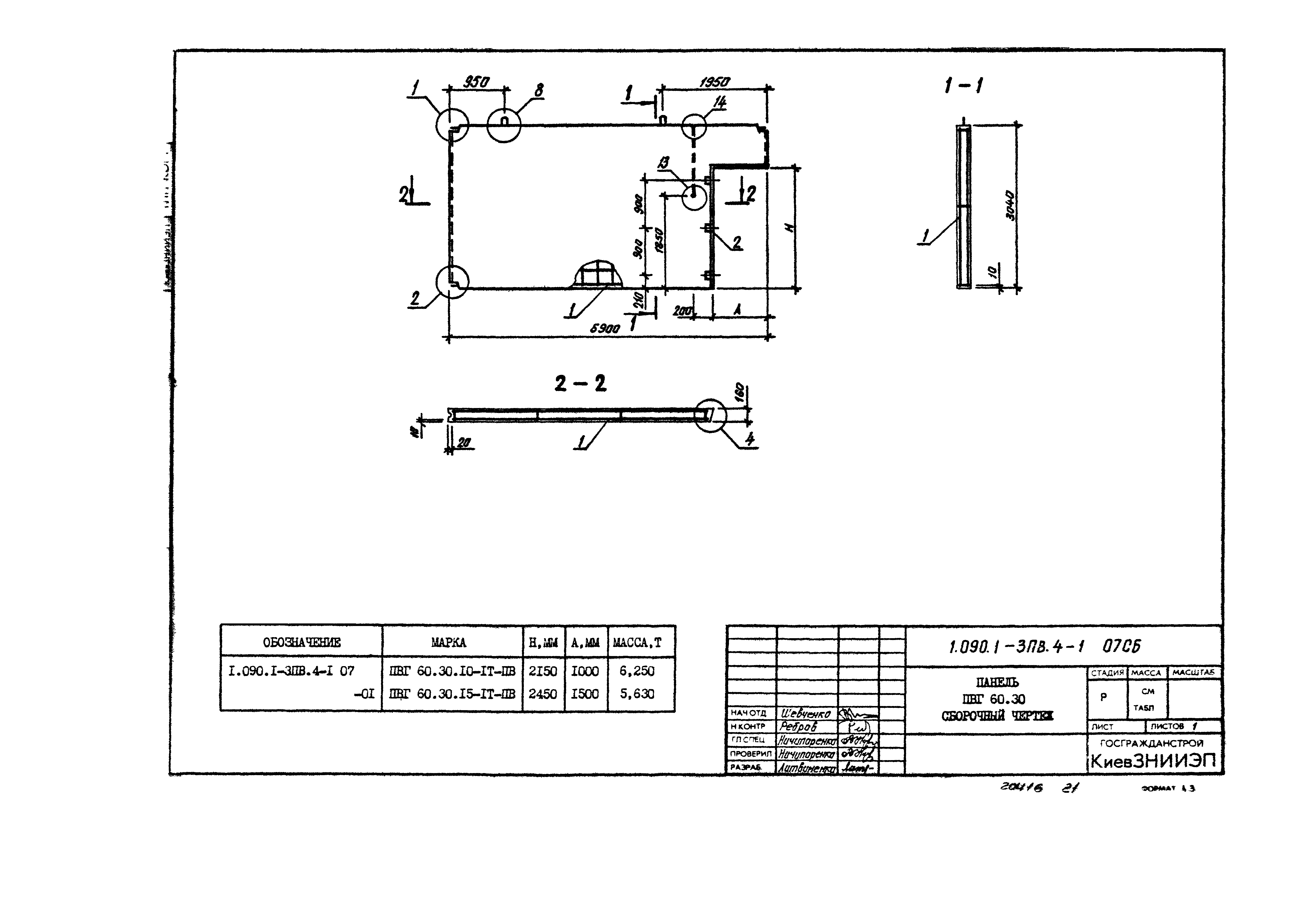
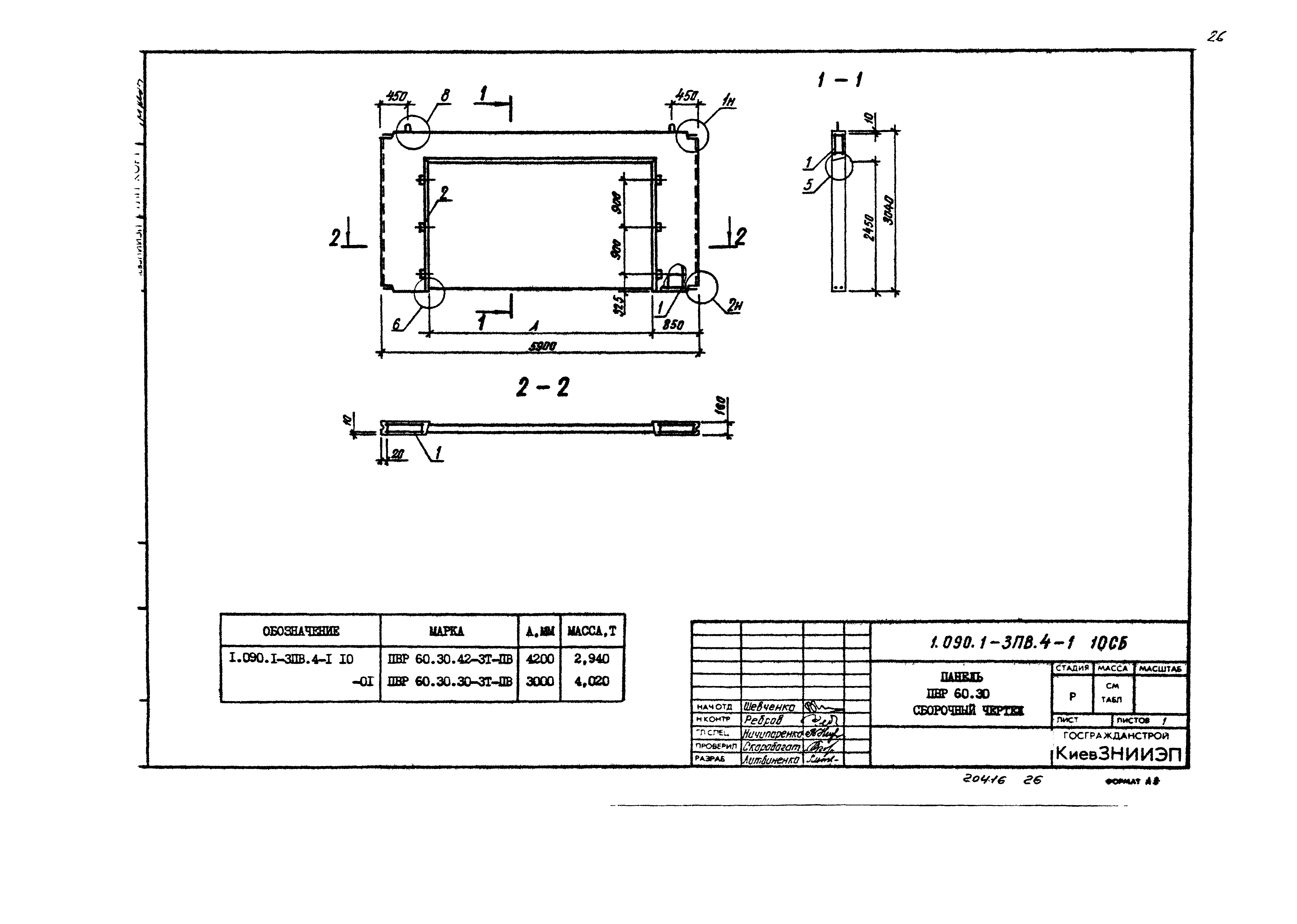
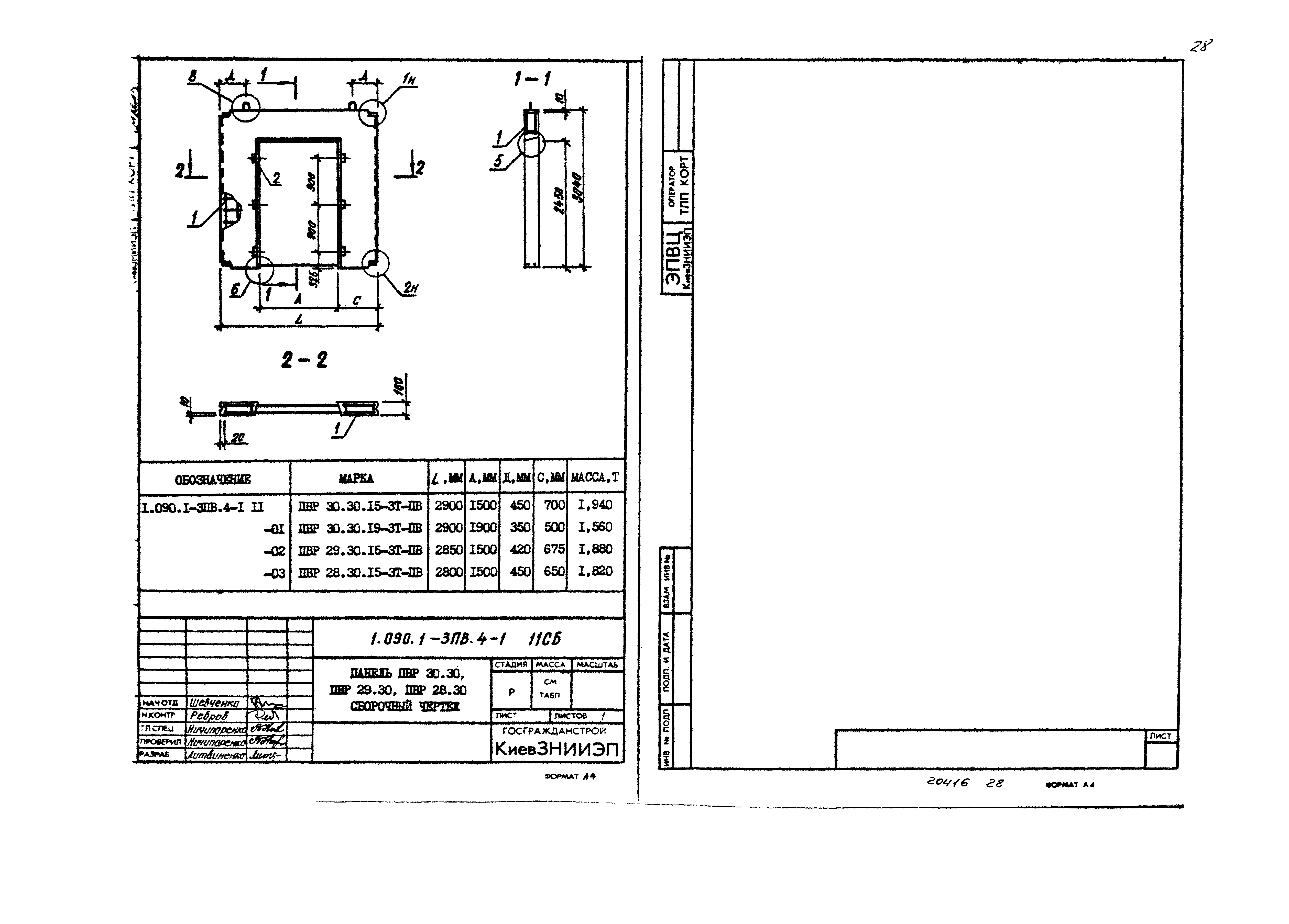
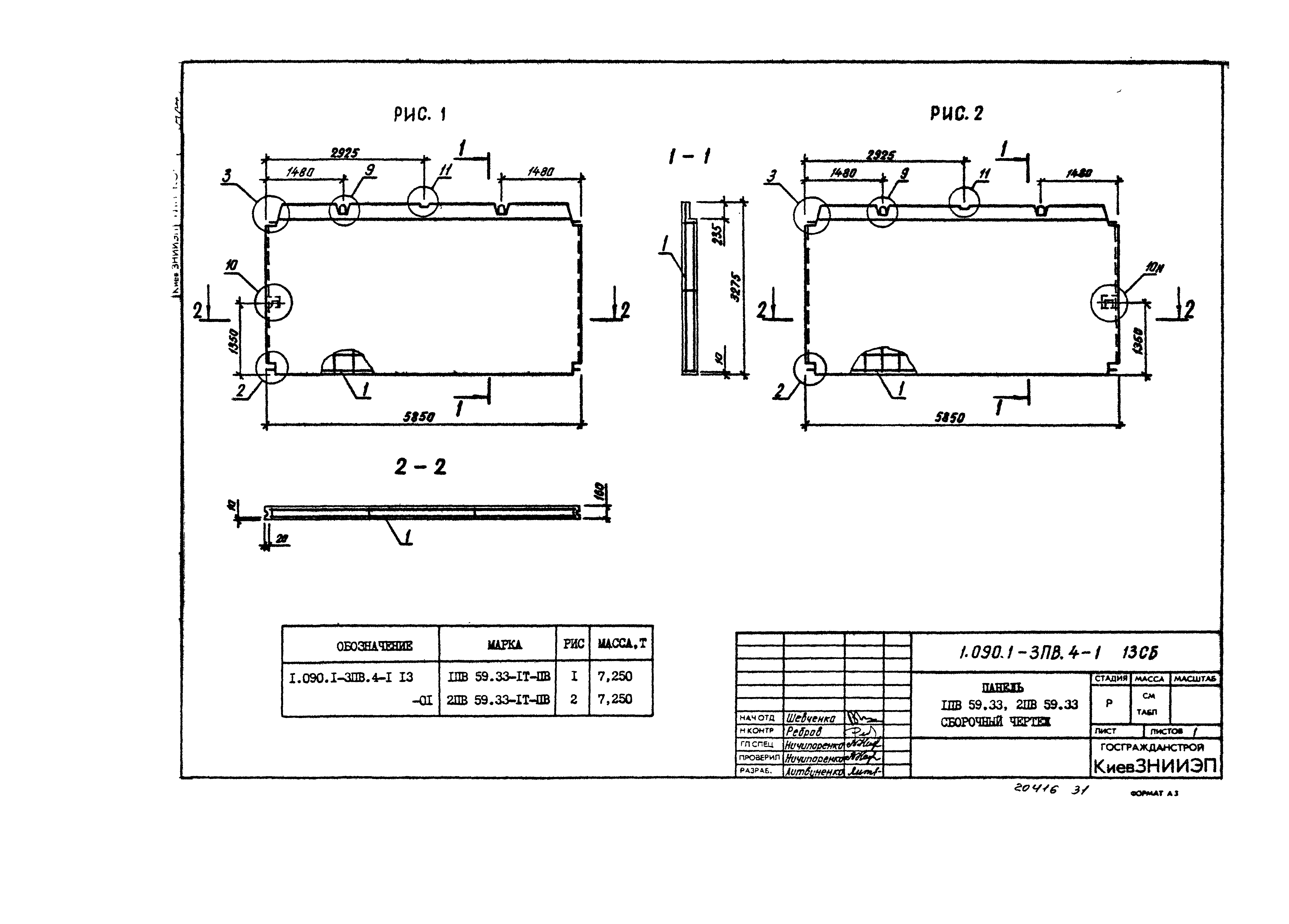
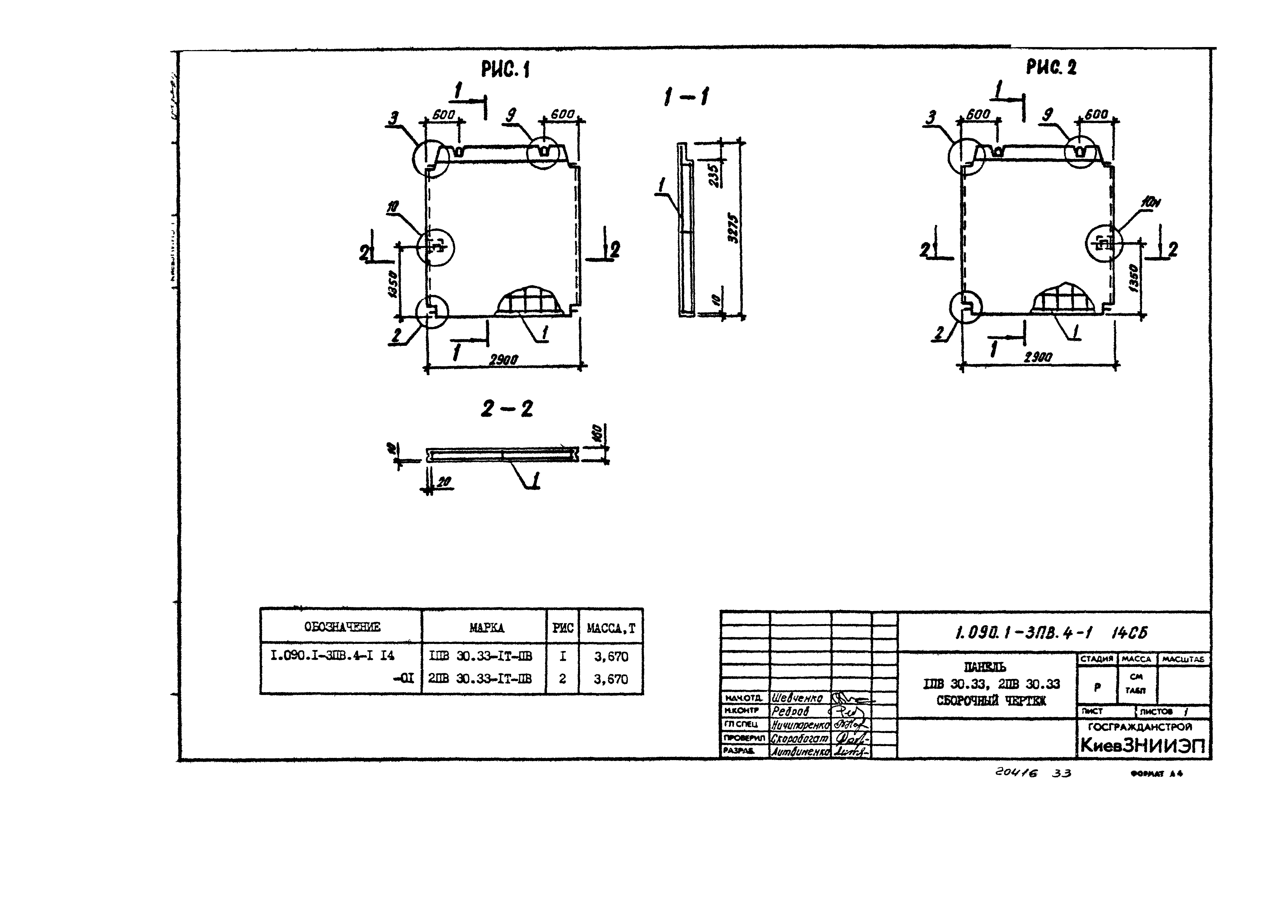
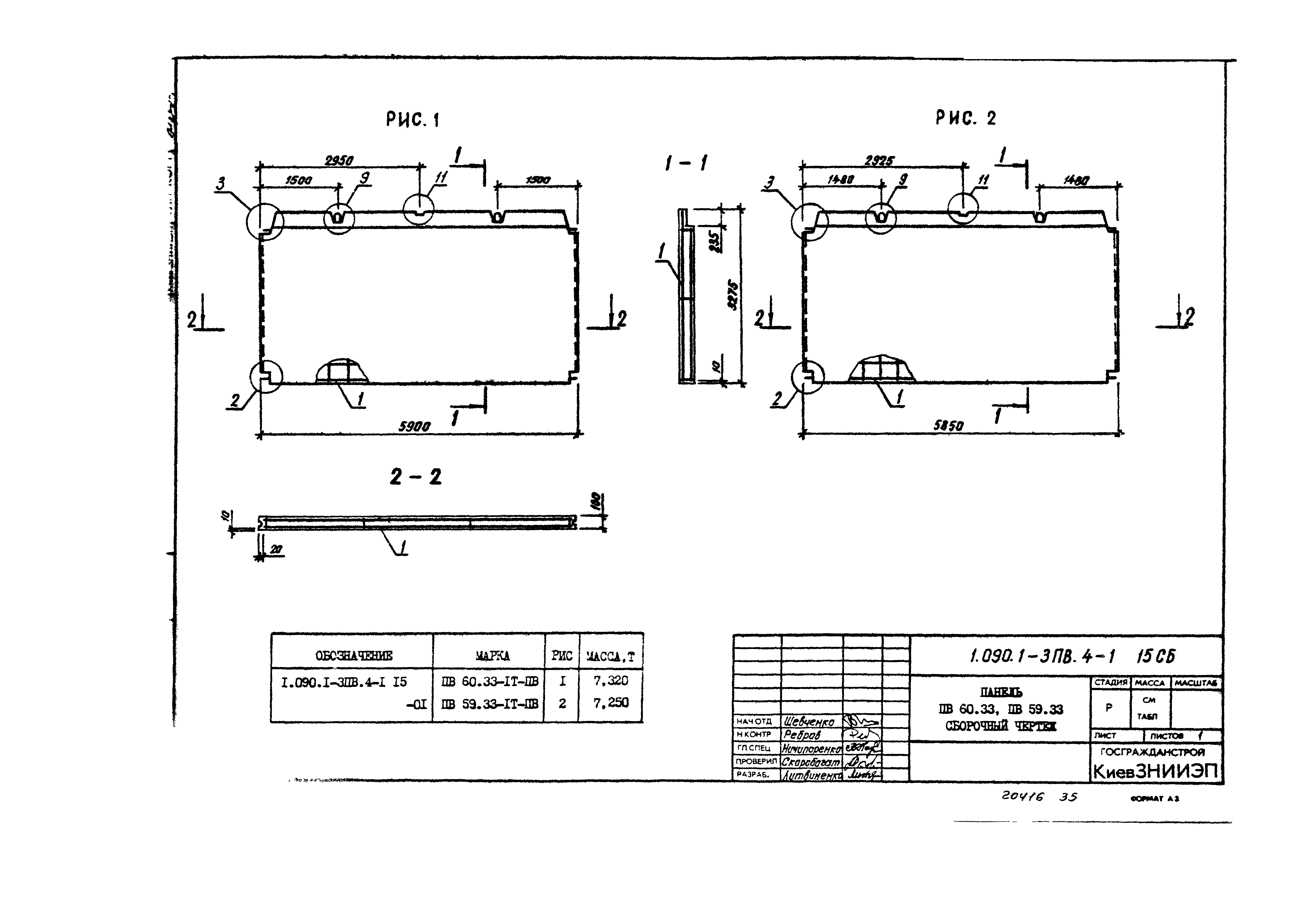
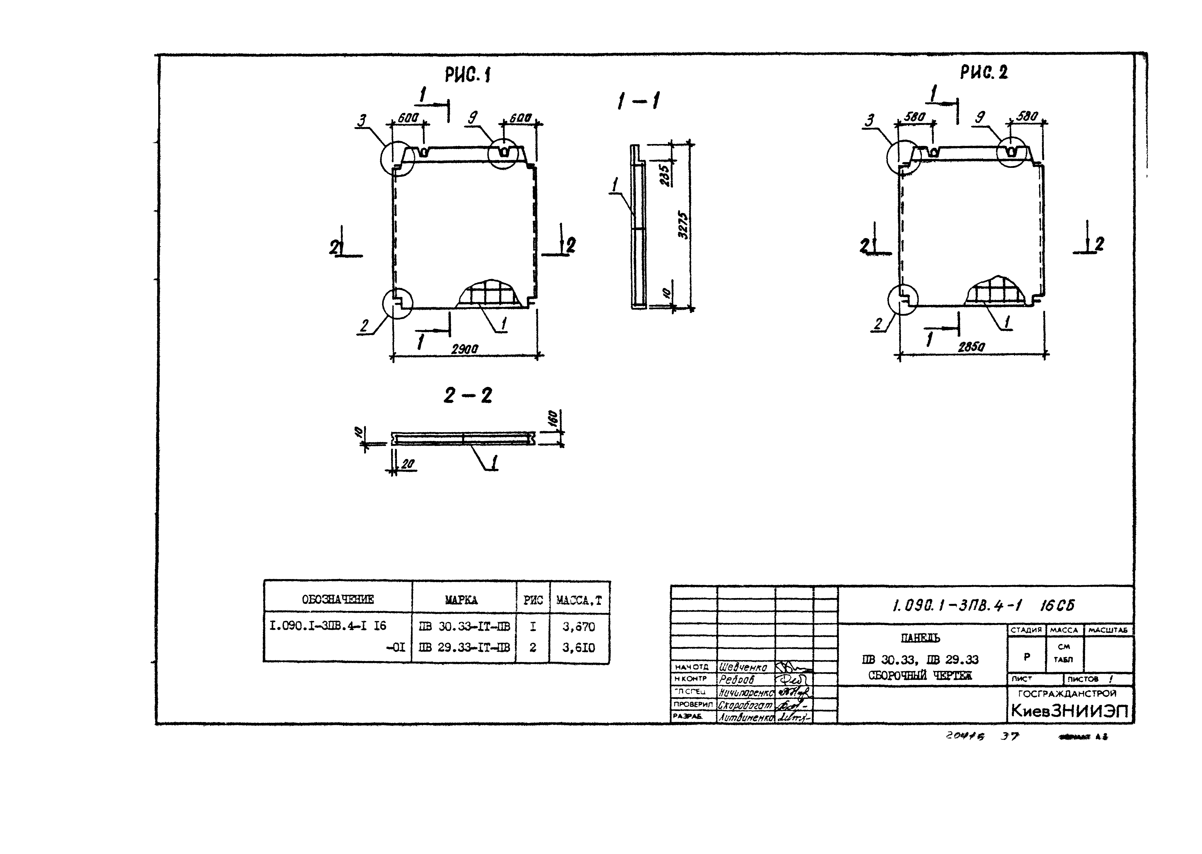
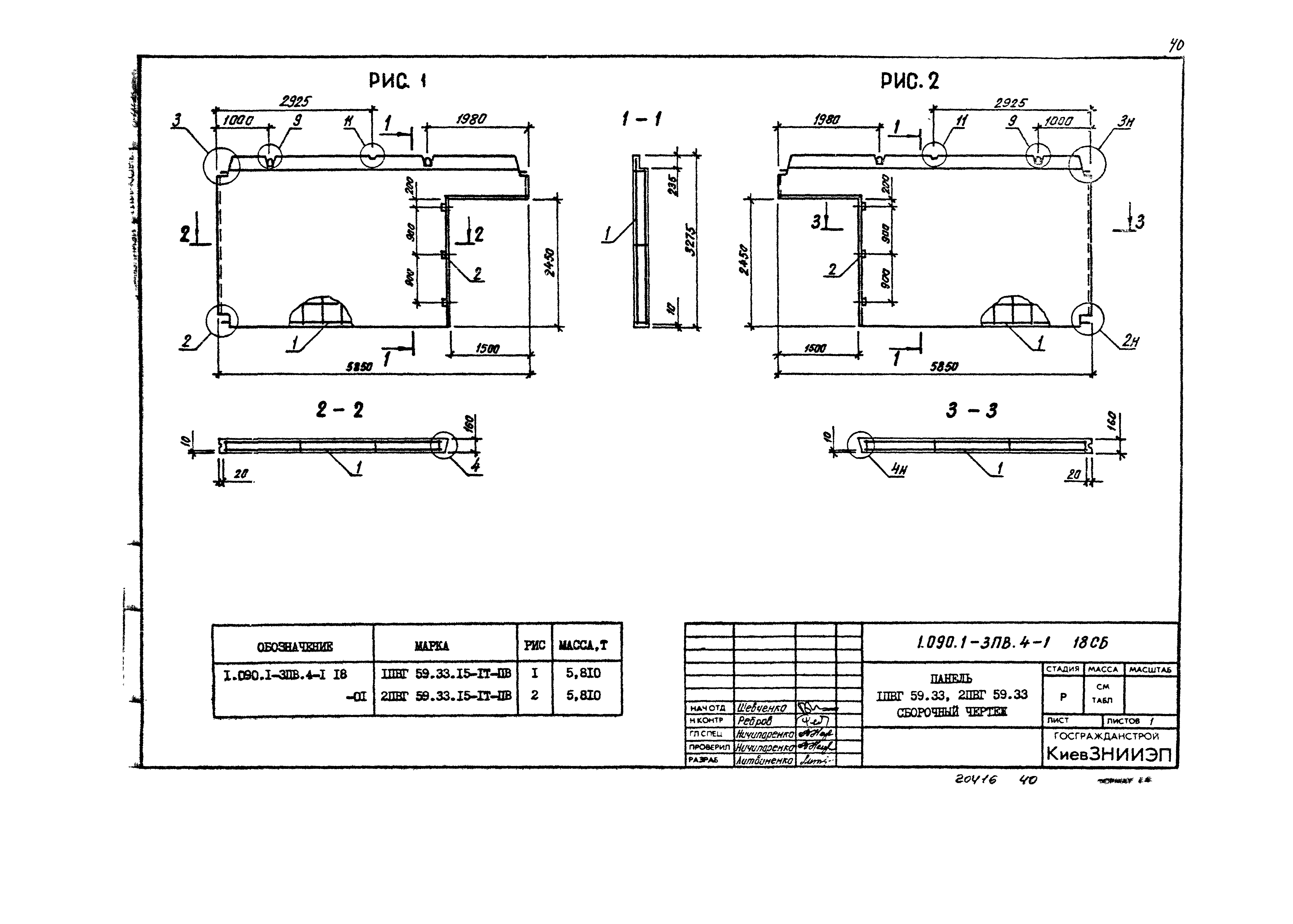
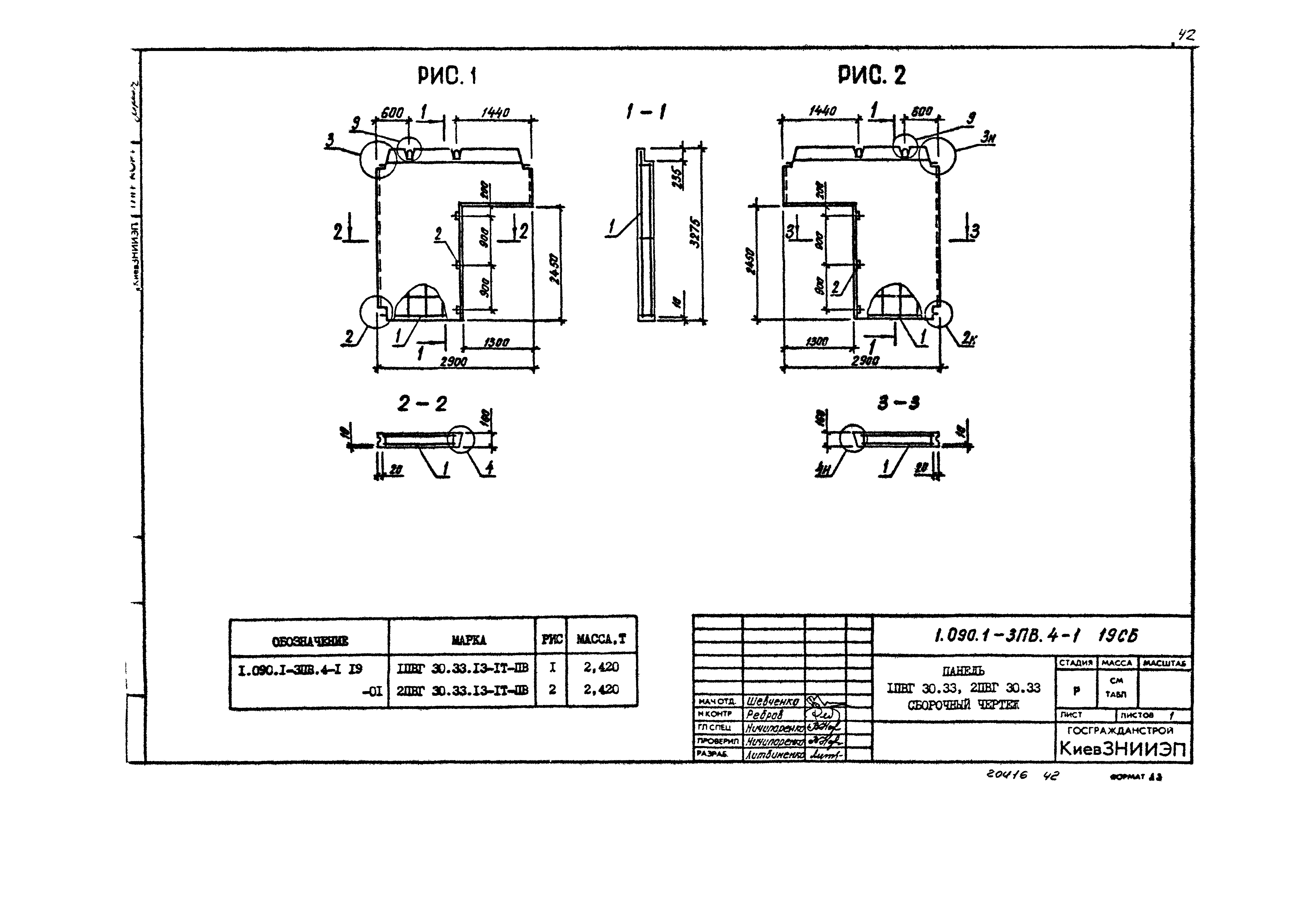
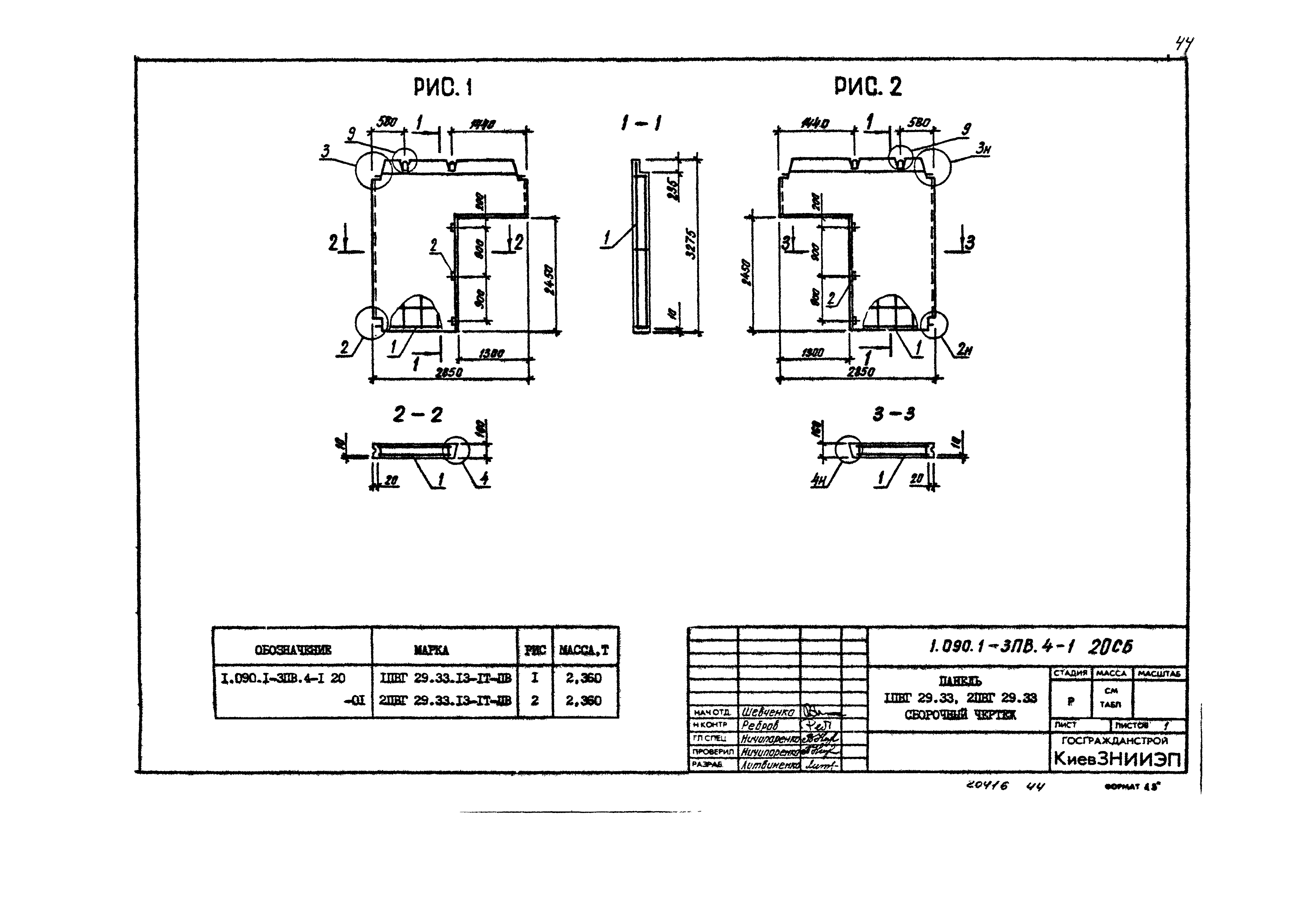
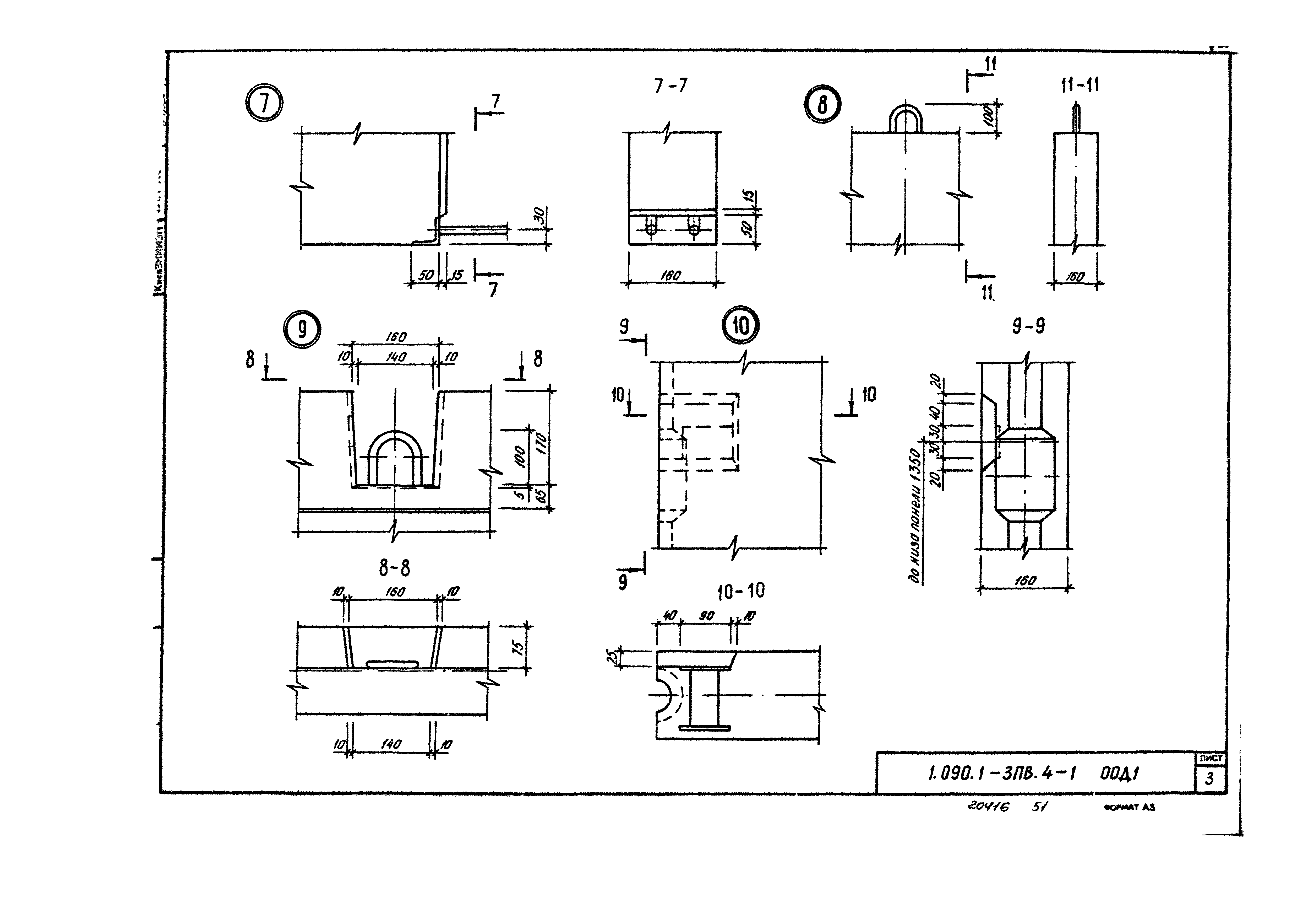
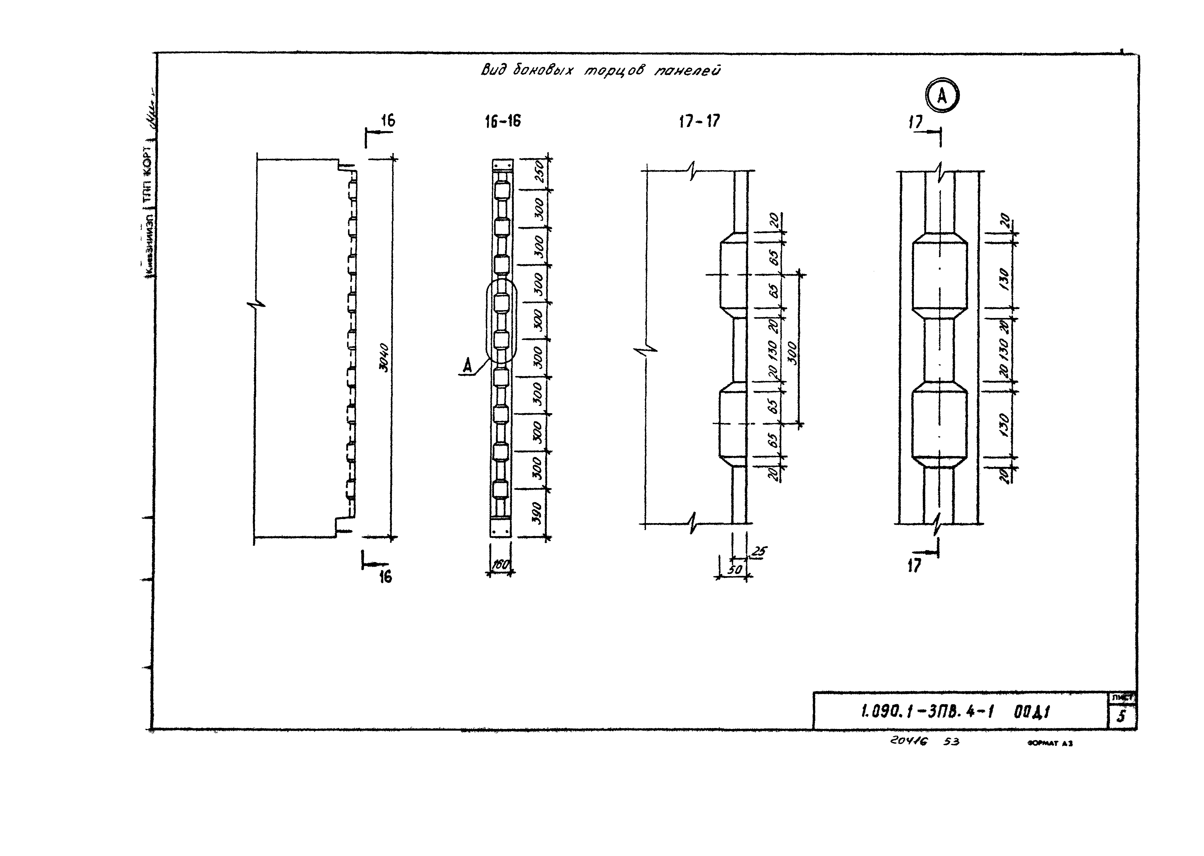
| Оглавление: | 1.090.1-3ПВ.3-2-00С Содержание 1.090.1-3ПВ.3-2-00ТО Техническое описание 1.090.1-3ПВ.3-2-01 Панель ПВ60.30,ПВ59.30 1.090.1-3ПВ.3-2-02 Панель ПВ30.30,ПВ29.30,ПВ28.30 1.090.1-3ПВ.3-2-03 Панель ПВ24.30,ПВ18.30,ПВ12.30 1.090.1-3ПВ.3-2-04 Панель ПВ30.30-1ТВ,ПВ29.30-1ТВ 1.090.1-3ПВ.3-2-05 Панель ПВП60.30,ПВП59.30 1.090.1-3ПВ.3-2-06 Панель ПВП30.30,ПВП29.30,ПВП28.30 1.090.1-3ПВ.3-2-07 Панель ПВГ60.30 1.090.1-3ПВ.3-2-08 Панель ПВГ30.30,ПВГ29.30 1.090.1-3ПВ.3-2-09 Панель ПВГ30.30.13-1ТВ-ПВ 1.090.1-3ПВ.3-2-10 Панель ПВР60.30 1.090.1-3ПВ.3-2-11 Панель ПВР30.30,ПВР29.30,ПВР28.30 1.090.1-3ПВ.3-2-12 Панель ПВТ30.30.9-1Т-ПВ 1.090.1-3ПВ.3-2-13 Панель 1ПВ59.33,2ПВ59.33 1.090.1-3ПВ.3-2-14 Панель 1ПВ30.33,2ПВ30.33 1.090.1-3ПВ.3-2-15 Панель ПВ60.33,ПВ59.33 1.090.1-3ПВ.3-2-16 Панель ПВ30.33,ПВ29.33 1.090.1-3ПВ.3-2-17 Панель ПВ30.16,ПВ29.16,ПВ28.16 1.090.1-3ПВ.3-2-18 Панель 1ПВГ59.33,2ПВГ59.33 1.090.1-3ПВ.3-2-19 Панель 1ПВГ30.33,2ПВГ30.33 1.090.1-3ПВ.3-2-20 Панель 1ПВГ29.33,2ПВГ29.33 1.090.1-3ПВ.3-2-21 Панель ПВР60.33.42-3Т-ПВ 1.090.1-3ПВ.3-2-22 Панель ПВР30.33.15-3Т-ПВ 1.090.1-3ПВ.3-2-23 Панель ПВА60.30.42-3Т-ПВ 1.090.1-3ПВ.3-2-24 Панель ПВА30.30,ПВА29.30,ПВА28.30 1.090.1-3ПВ.3-2-00Д1 Узлы опалубочные 1.090.1-3ПВ.3-2-00РС Ведомость расхода стали |
| Разработан: | КиевЗНИИЭП ЦНИИЭП торгово-бытовых зданий и туристских комплексов |
| Утверждён: | 01.11.1984 Госстрой СССР (Государственный комитет Совета Министров СССР по делам строительства) (USSR Gosstroy ИИ-32) |
| Издан: | ЦИТП Госстроя СССР (CITP, Gosstroy (USSR) 1985 г. ) |

























































