Скачать Серия 1.090.1-3пв Выпуск 4-2. Панели внутренних стен для зданий с высотой этажа 3,3 м. Пространственные каркасы. Рабочие чертежиДата актуализации: 01.01.2021
|
| Обозначение: | Серия 1.090.1-3пв |
| Обозначение англ: | Series 1.090.1-3пв |
| Статус: | не определен законодательством |
| Название рус.: | Выпуск 4-2. Панели внутренних стен для зданий с высотой этажа 3,3 м. Пространственные каркасы. Рабочие чертежи |
| Дата добавления в базу: | 01.09.2013 |
| Дата актуализации: | 01.01.2021 |
| Дата введения: | 01.01.1985 |
| Дата окончания срока действия: | 30.06.2003 |
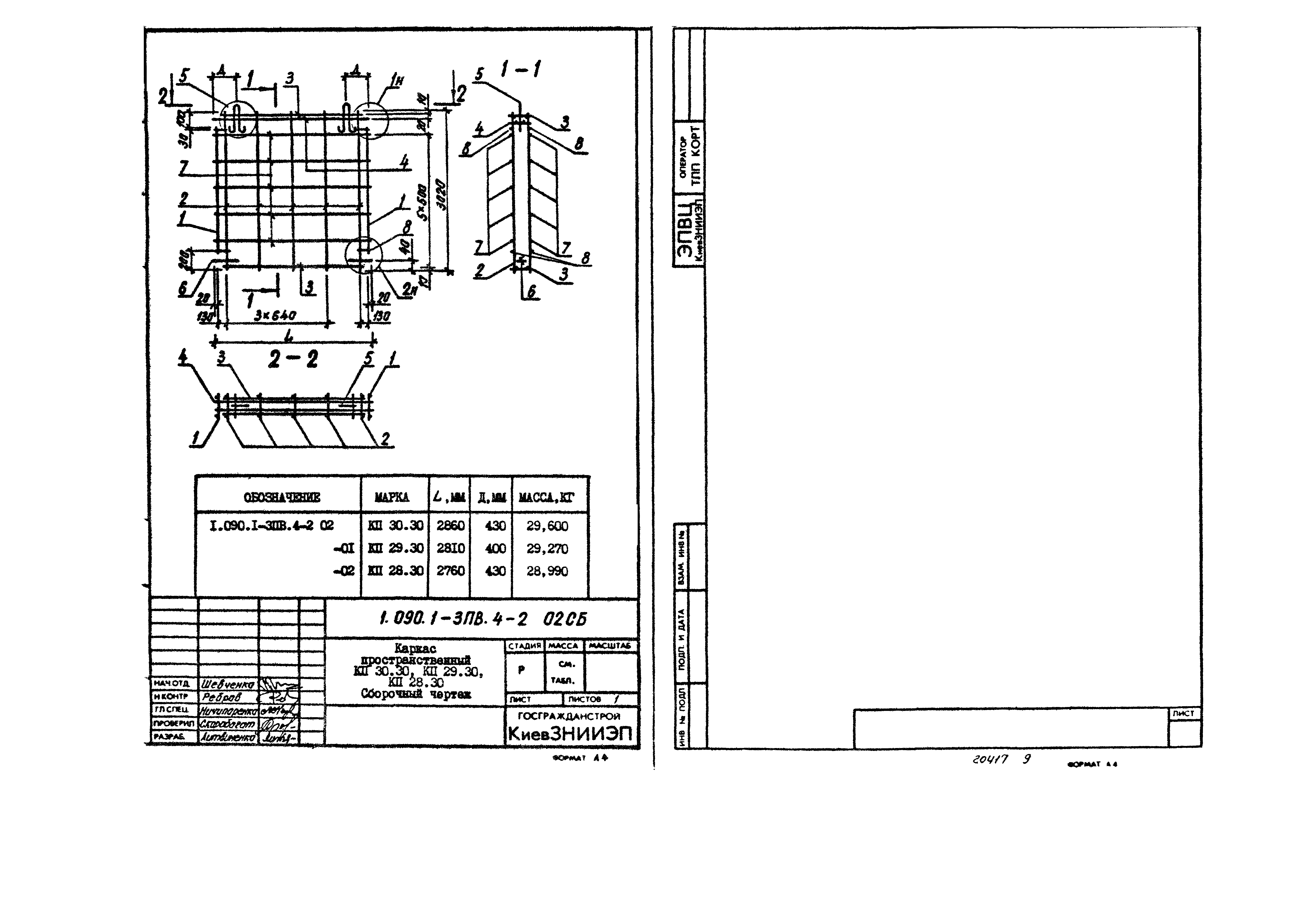
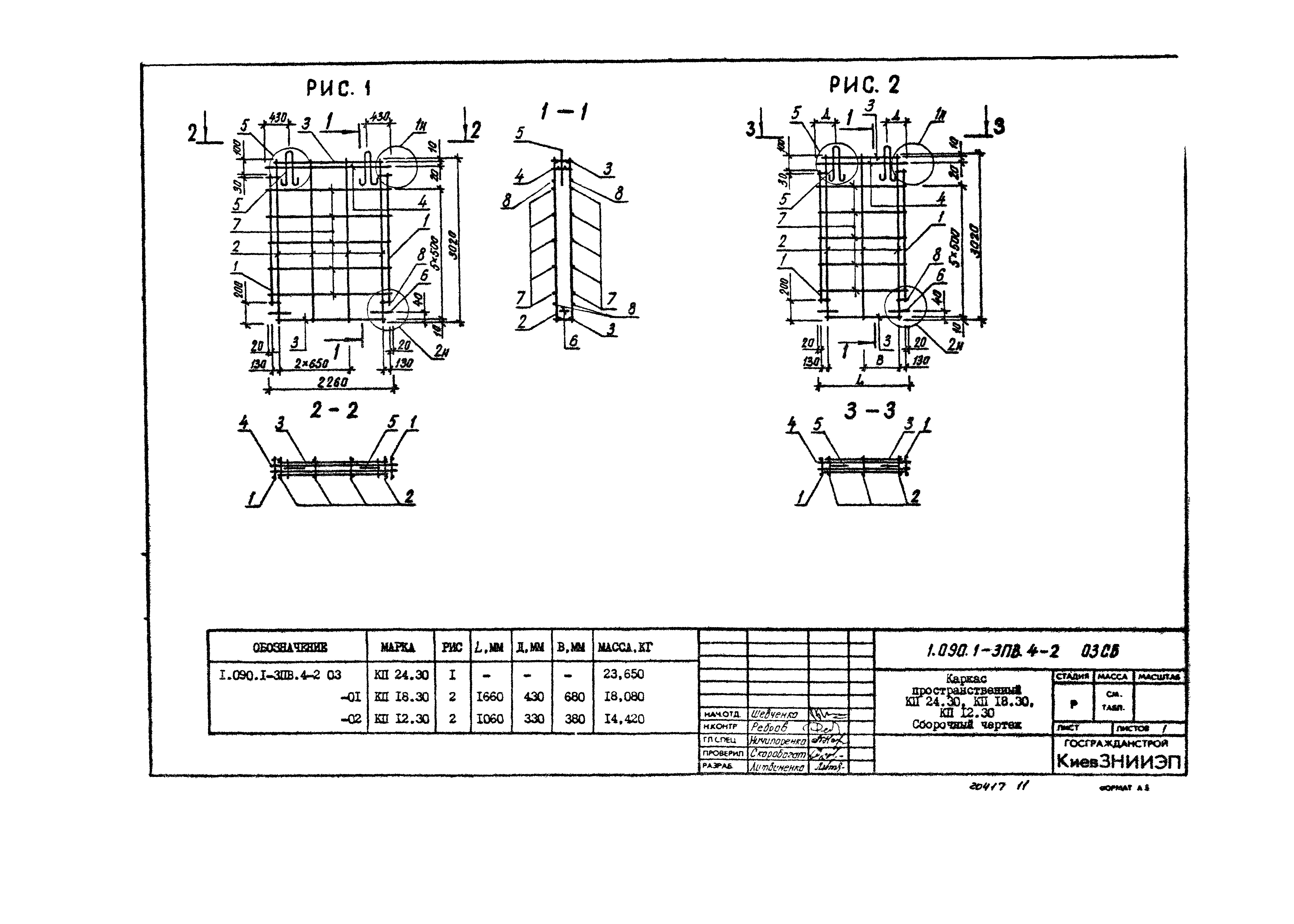
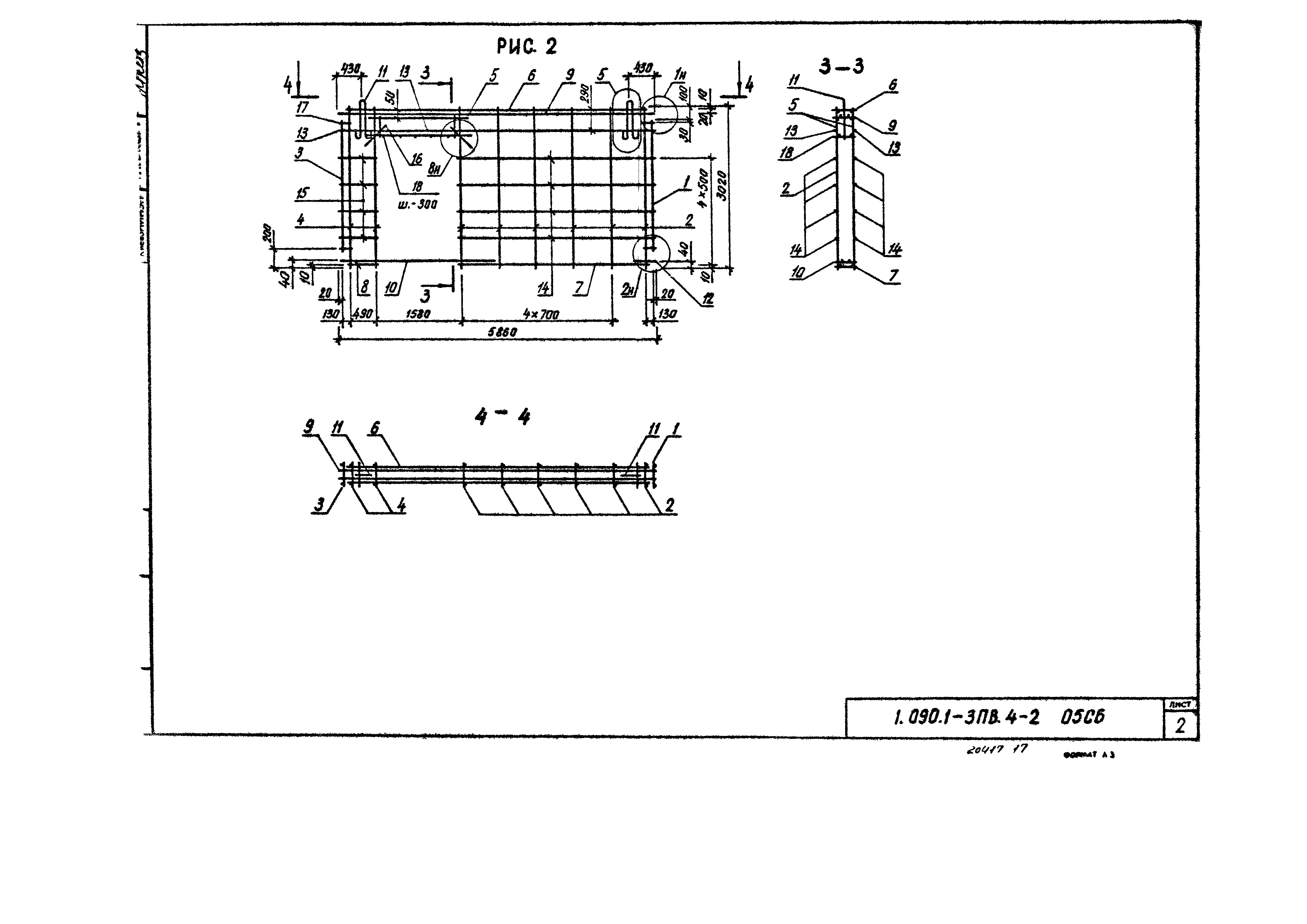
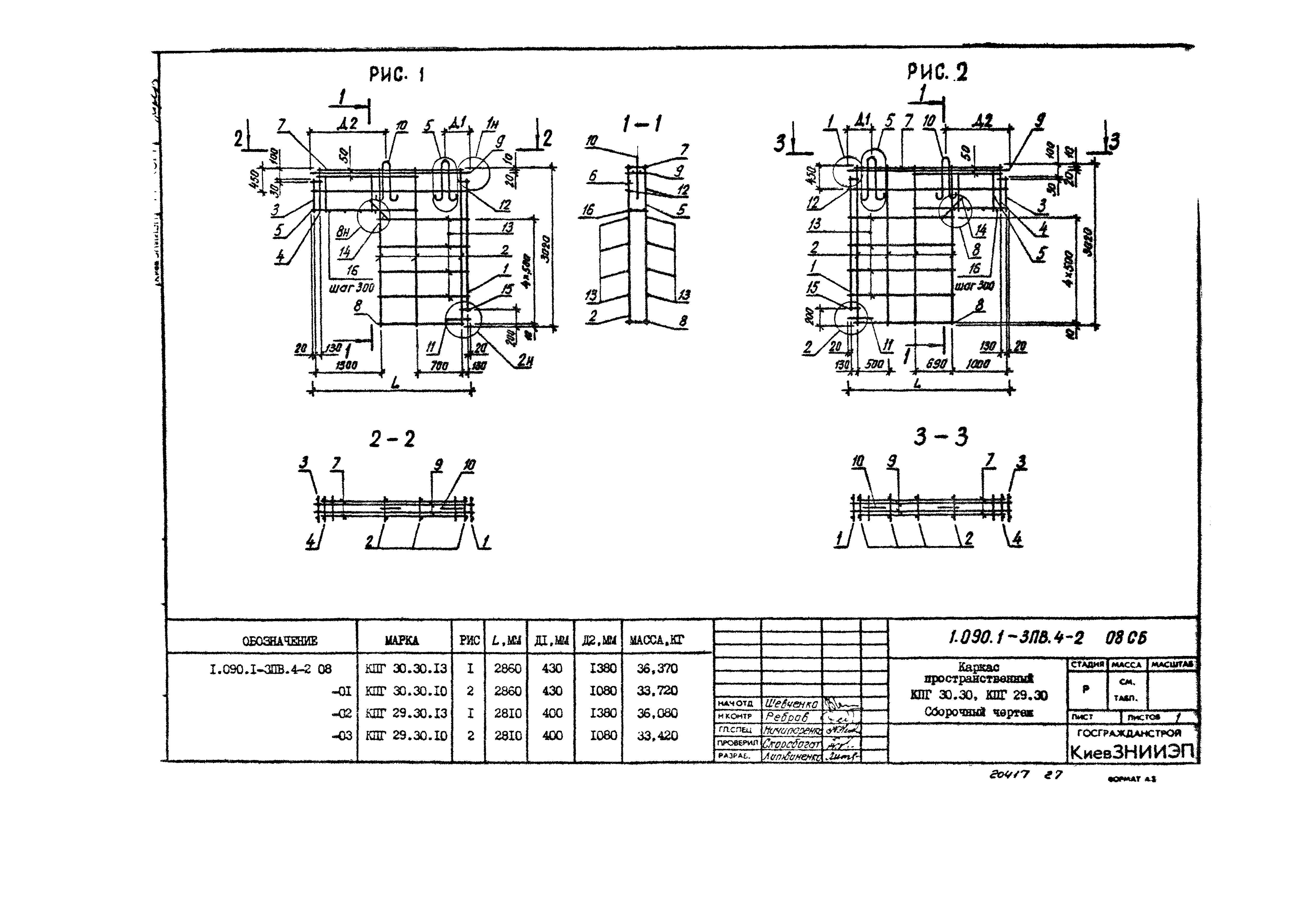
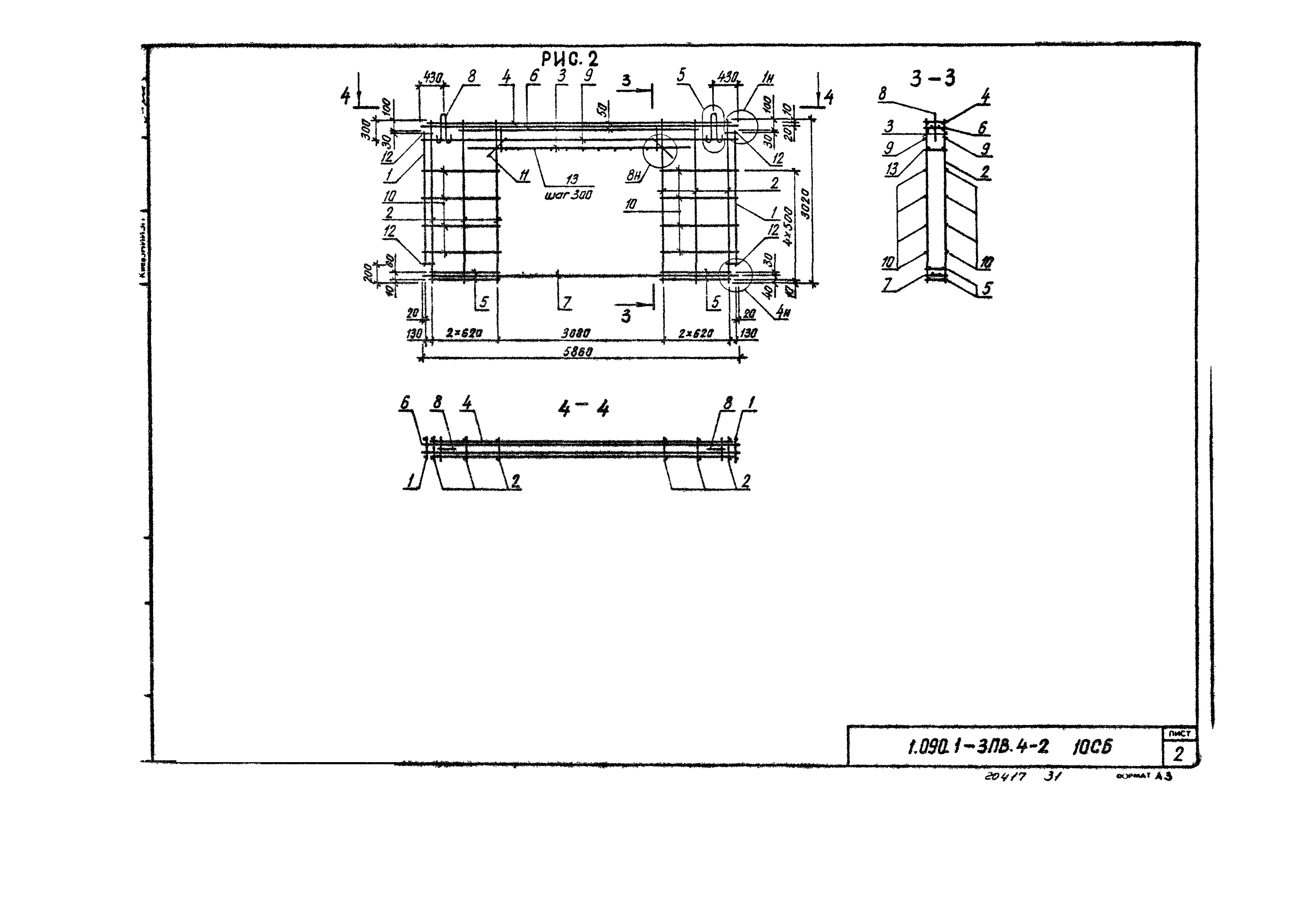
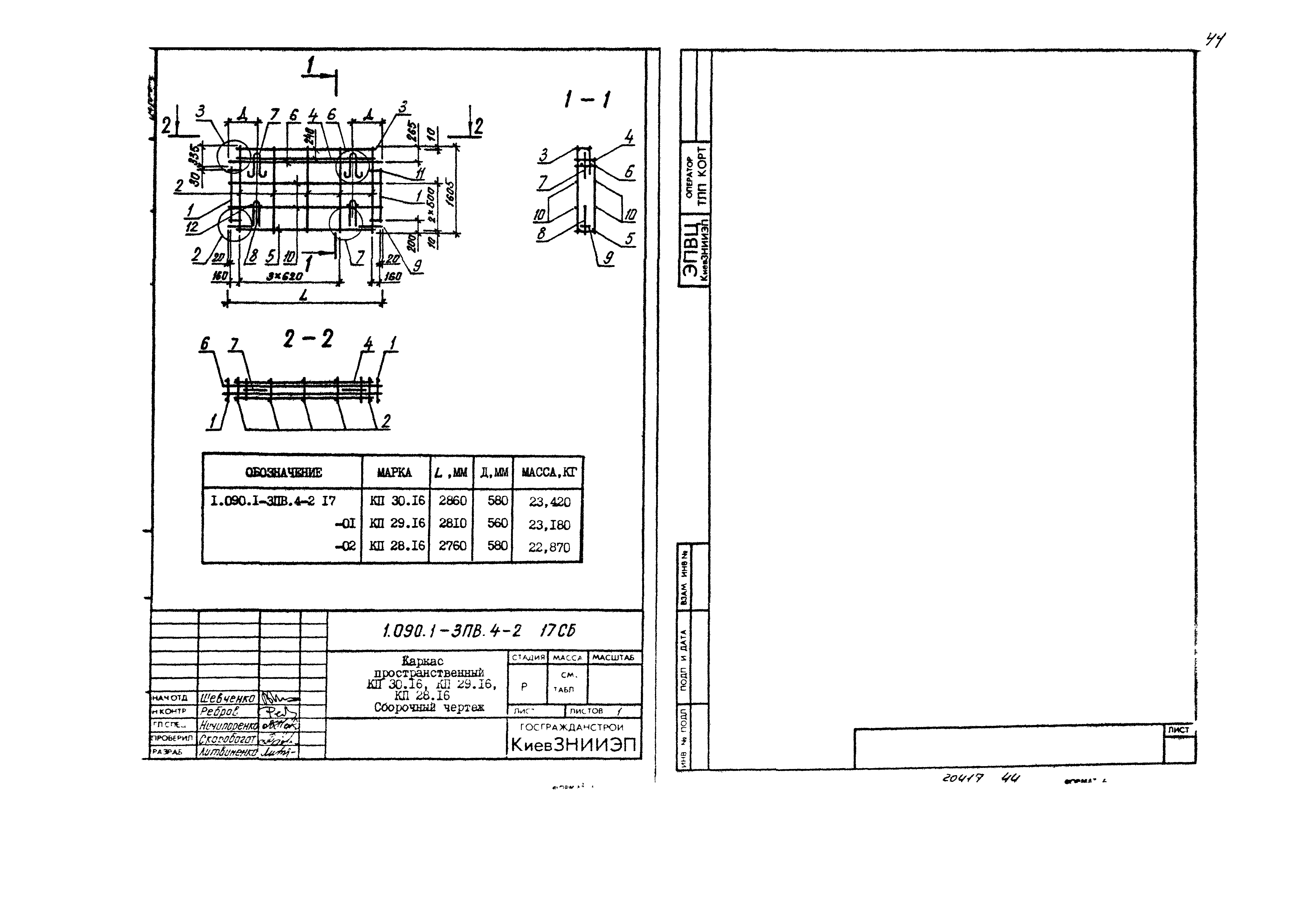
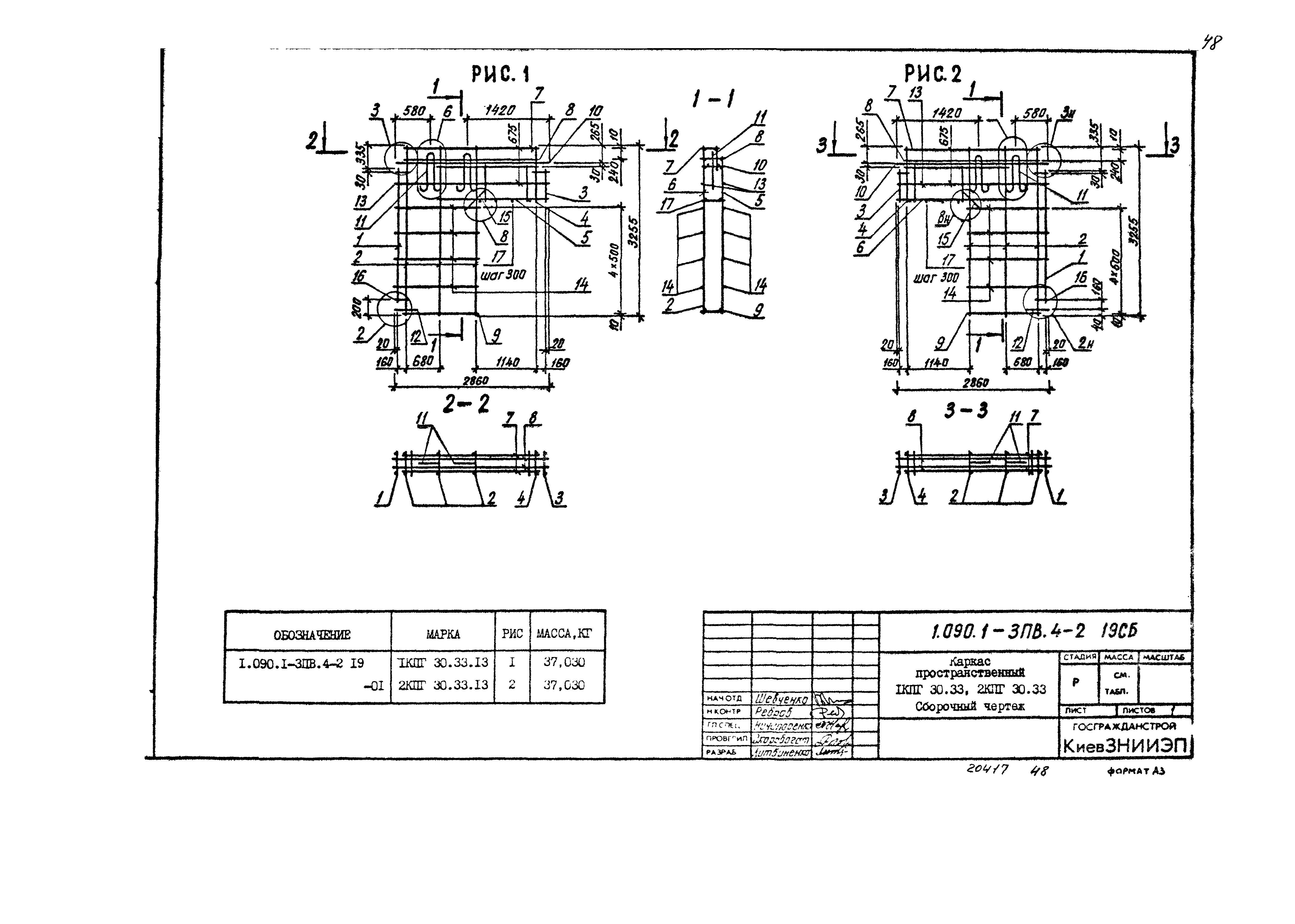
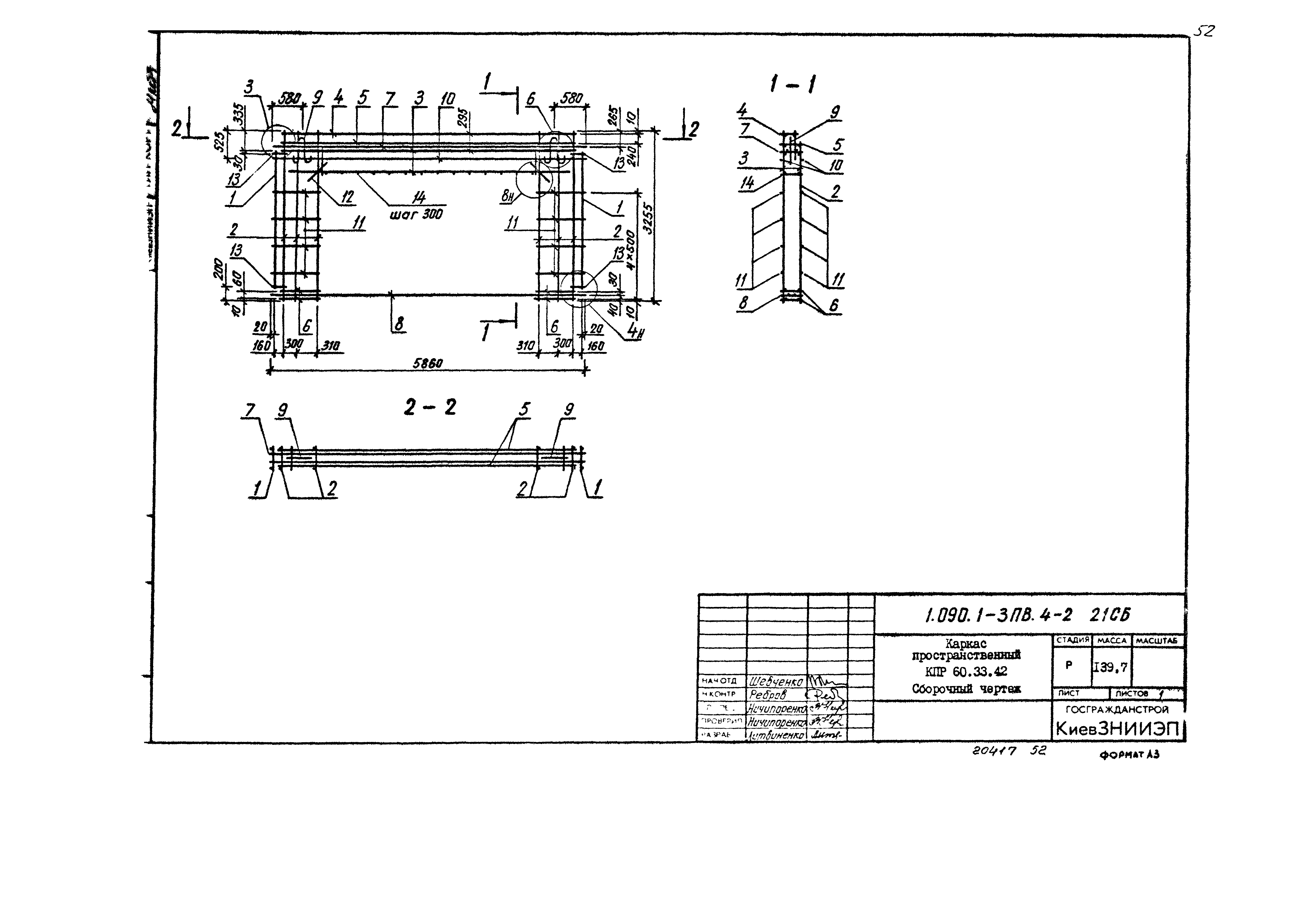
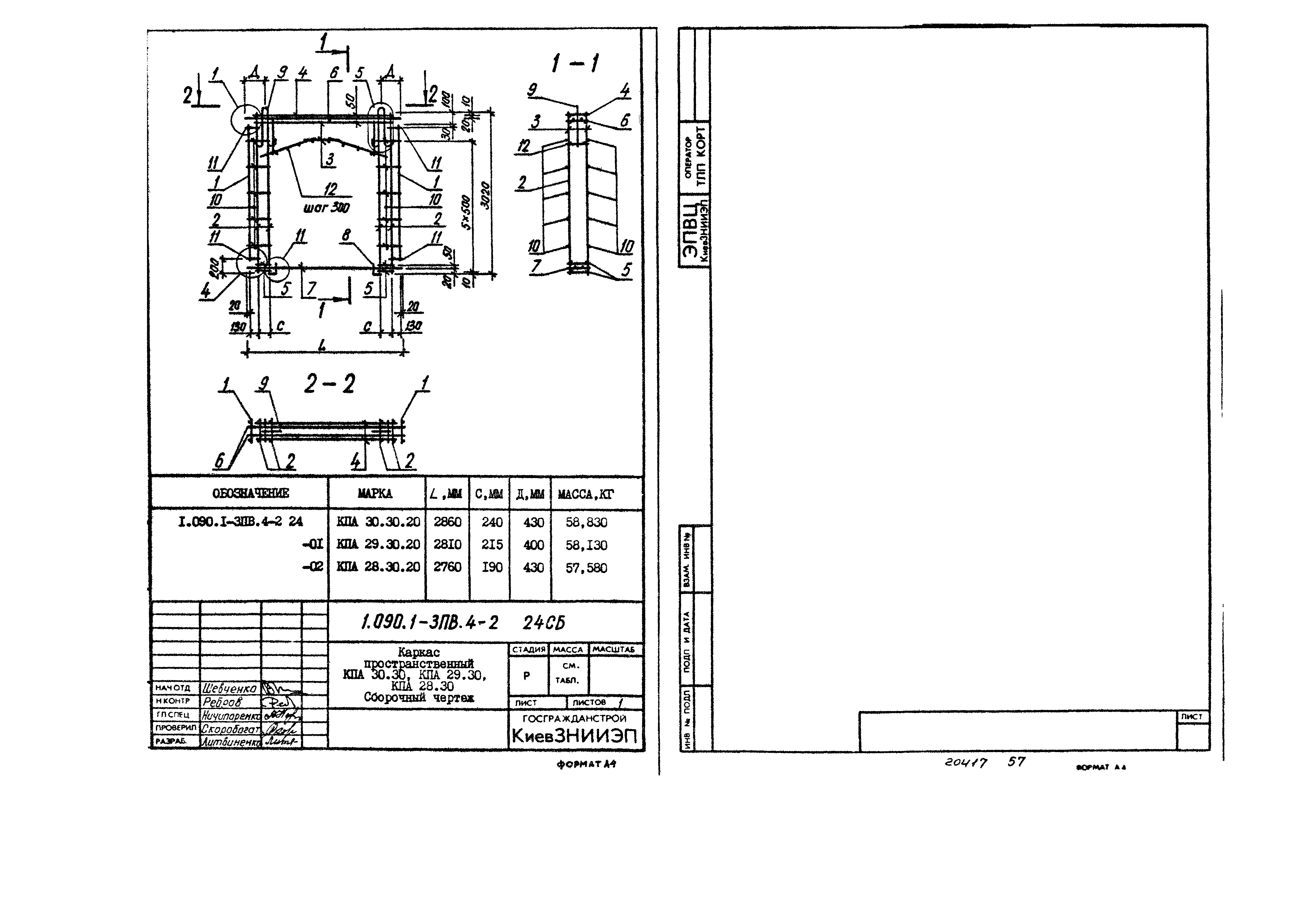
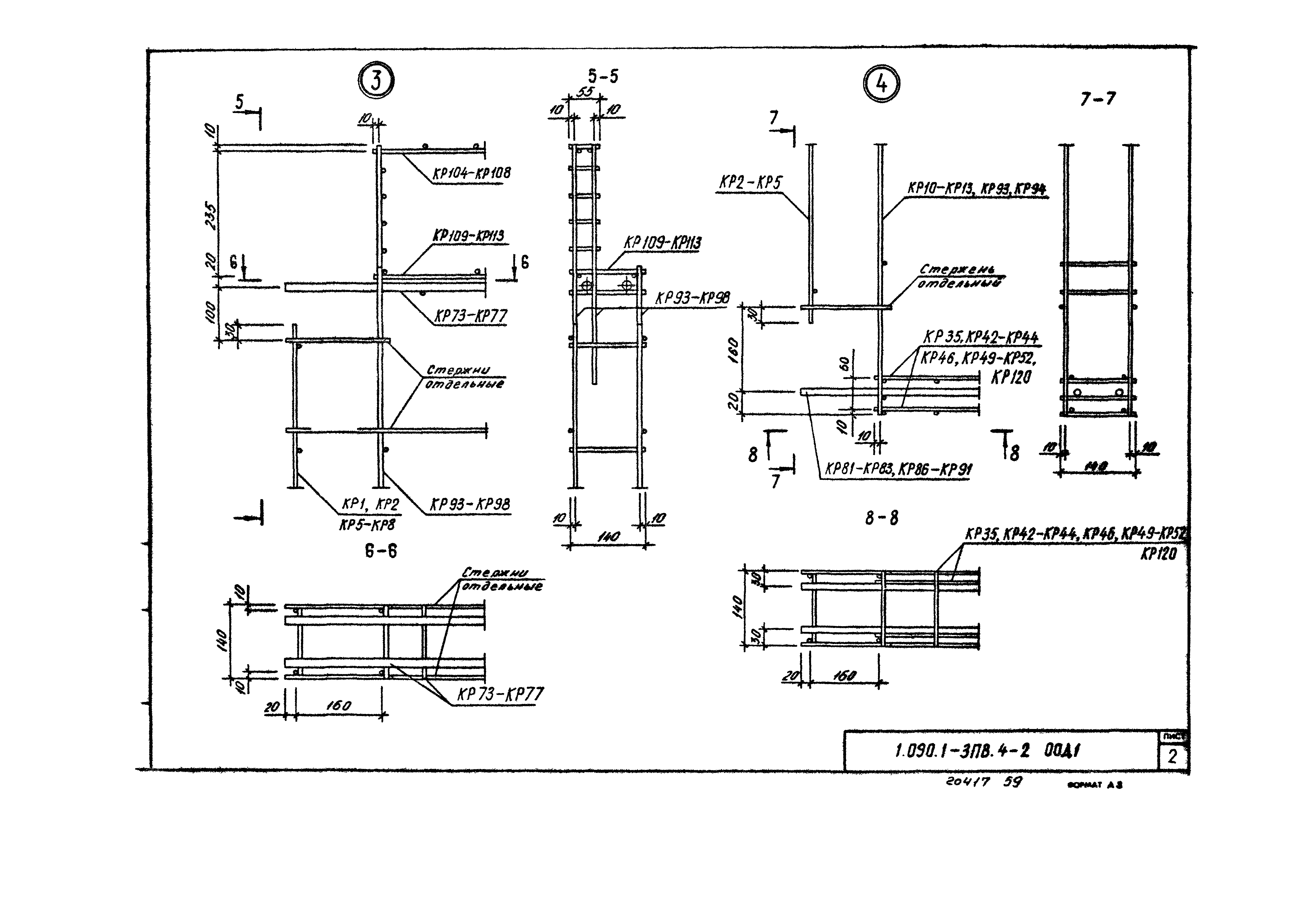
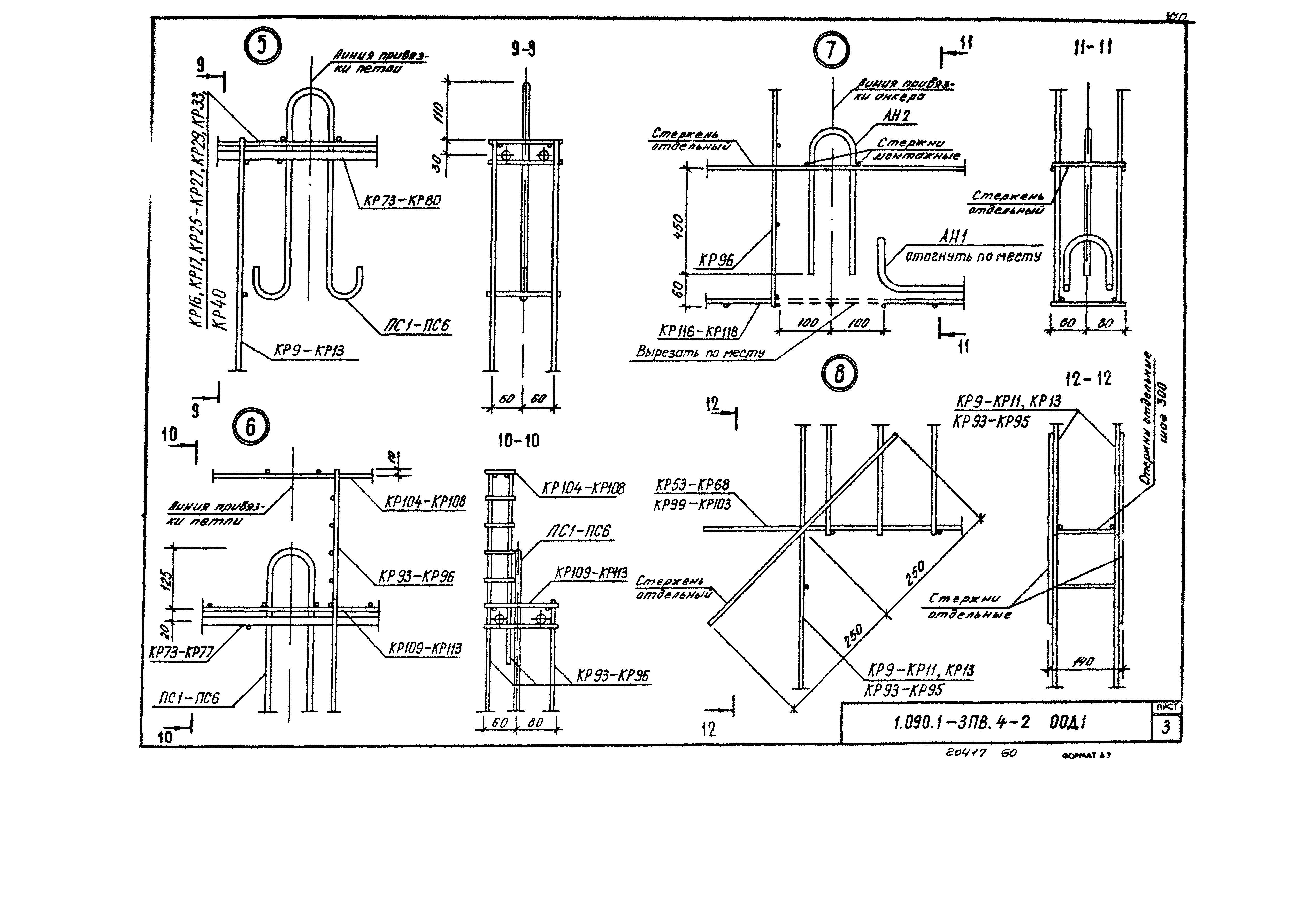
| Оглавление: | 1.090.1-3ПВ.4-2-00С Содержание 1.090.1-3ПВ.4-2-00ТО Техническое описание 1.090.1-3ПВ.4-2-01 Каркас пространственный КП60.30,КП59.30 1.090.1-3ПВ.4-2-02 Каркас пространственный КП30.30,КП29.30,КП28.30 1.090.1-3ПВ.4-2-03 Каркас пространственный КП24.30,КП18.30,КП12.30 1.090.1-3ПВ.4-2-04 Каркас пространственный КП30.30В,КП29.30В 1.090.1-3ПВ.4-2-05 Каркас пространственный КП60.30В,КП59.30 1.090.1-3ПВ.4-2-06 Каркас пространственный КПП30.30,КПП29.30,КПП28.30 1.090.1-3ПВ.4-2-07 Каркас пространственный КПГ60.30 1.090.1-3ПВ.4-2-08 Каркас пространственный КПГ30.30,КПГ29.30 1.090.1-3ПВ.4-2-09 Каркас пространственный КПГ30.30.13В 1.090.1-3ПВ.4-2-10 Каркас пространственный КПР60.30 1.090.1-3ПВ.4-2-11 Каркас пространственный КПР30.30,КПР29.30,КПР28.30 1.090.1-3ПВ.4-2-12 Каркас пространственный КПТ30.30.9 1.090.1-3ПВ.4-2-13 Каркас пространственный 1КП59.33,2КП59.33 1.090.1-3ПВ.4-2-14 Каркас пространственный 1КП30.33,2КП30.33 1.090.1-3ПВ.4-2-15 Каркас пространственный КП60.33,КП59.33 1.090.1-3ПВ.4-2-16 Каркас пространственный КП30.33,КП29.33 1.090.1-3ПВ.4-2-17 Каркас пространственный КП30.16,КП29.16,КП28.16 1.090.1-3ПВ.4-2-18 Каркас пространственный КПГ59.33,2КПГ59.33 1.090.1-3ПВ.4-2-19 Каркас пространственный КПГ30.33,2КПГ30.33 1.090.1-3ПВ.4-2-20 Каркас пространственный 1КПГ29.33,2КПГ29.33 1.090.1-3ПВ.4-2-21 Каркас пространственный КПР60.33.42 1.090.1-3ПВ.4-2-22 Каркас пространственный КПР30.33.15 1.090.1-3ПВ.4-2-23 Каркас пространственный КПА60.30.42 1.090.1-3ПВ.4-2-24 Каркас пространственный КПА30.30,КПА29.30,КПА28.30 1.090.1-3ПВ.4-2-00Д1 Узлы арматурные |
| Разработан: | КиевЗНИИЭП ЦНИИЭП торгово-бытовых зданий и туристских комплексов |
| Утверждён: | 01.11.1984 Госстрой СССР (Государственный комитет Совета Министров СССР по делам строительства) (USSR Gosstroy ИИ-32) |
| Издан: | ЦИТП Госстроя СССР (CITP, Gosstroy (USSR) 1985 г. ) |





























































