Скачать Серия 1.090.1-3пв Выпуск 4-3. Панели внутренних стен для зданий с высотой этажа 3,3 м. Арматурные и закладные изделия. Рабочие чертежиДата актуализации: 01.01.2021
|
| Обозначение: | Серия 1.090.1-3пв |
| Обозначение англ: | Series 1.090.1-3пв |
| Статус: | не определен законодательством |
| Название рус.: | Выпуск 4-3. Панели внутренних стен для зданий с высотой этажа 3,3 м. Арматурные и закладные изделия. Рабочие чертежи |
| Дата добавления в базу: | 01.09.2013 |
| Дата актуализации: | 01.01.2021 |
| Дата введения: | 01.01.1985 |
| Дата окончания срока действия: | 30.06.2003 |
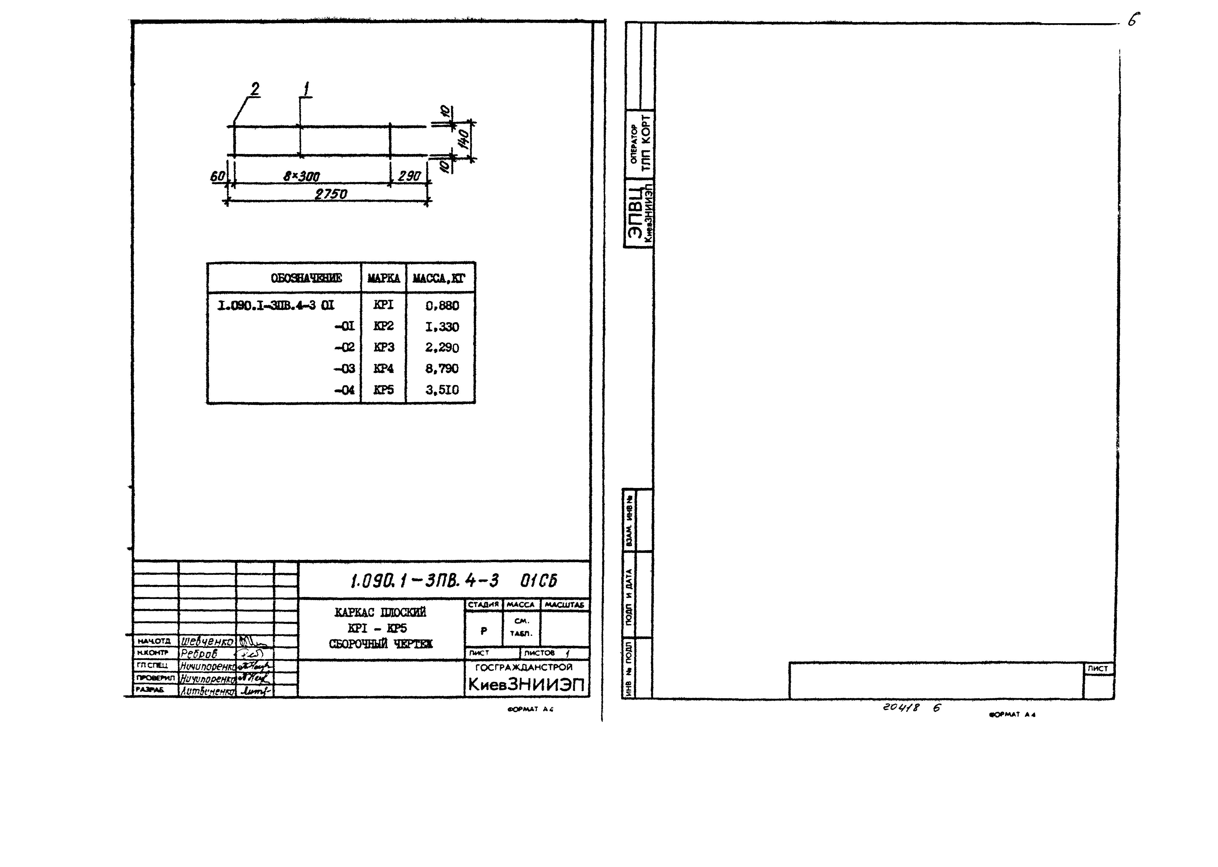
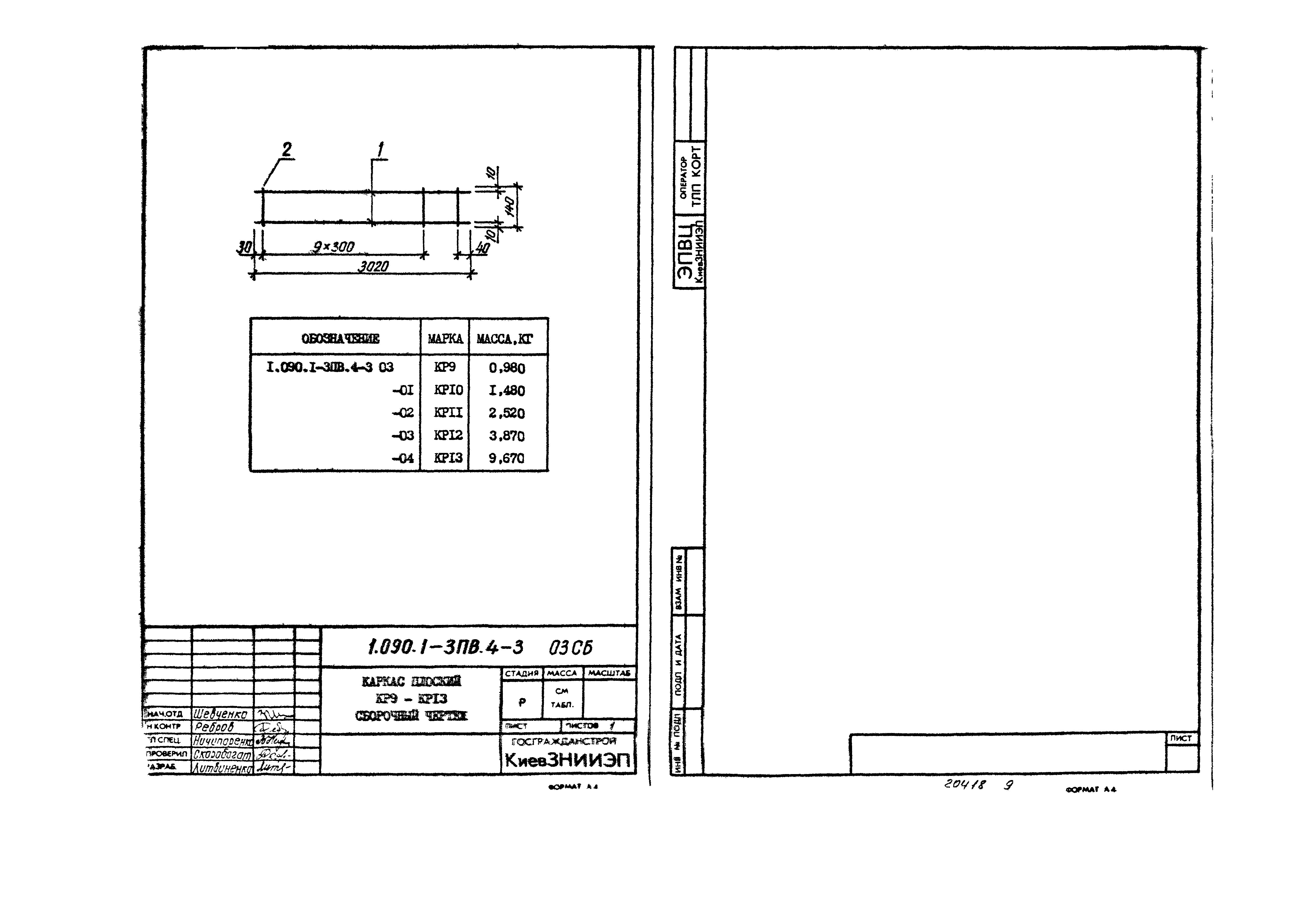
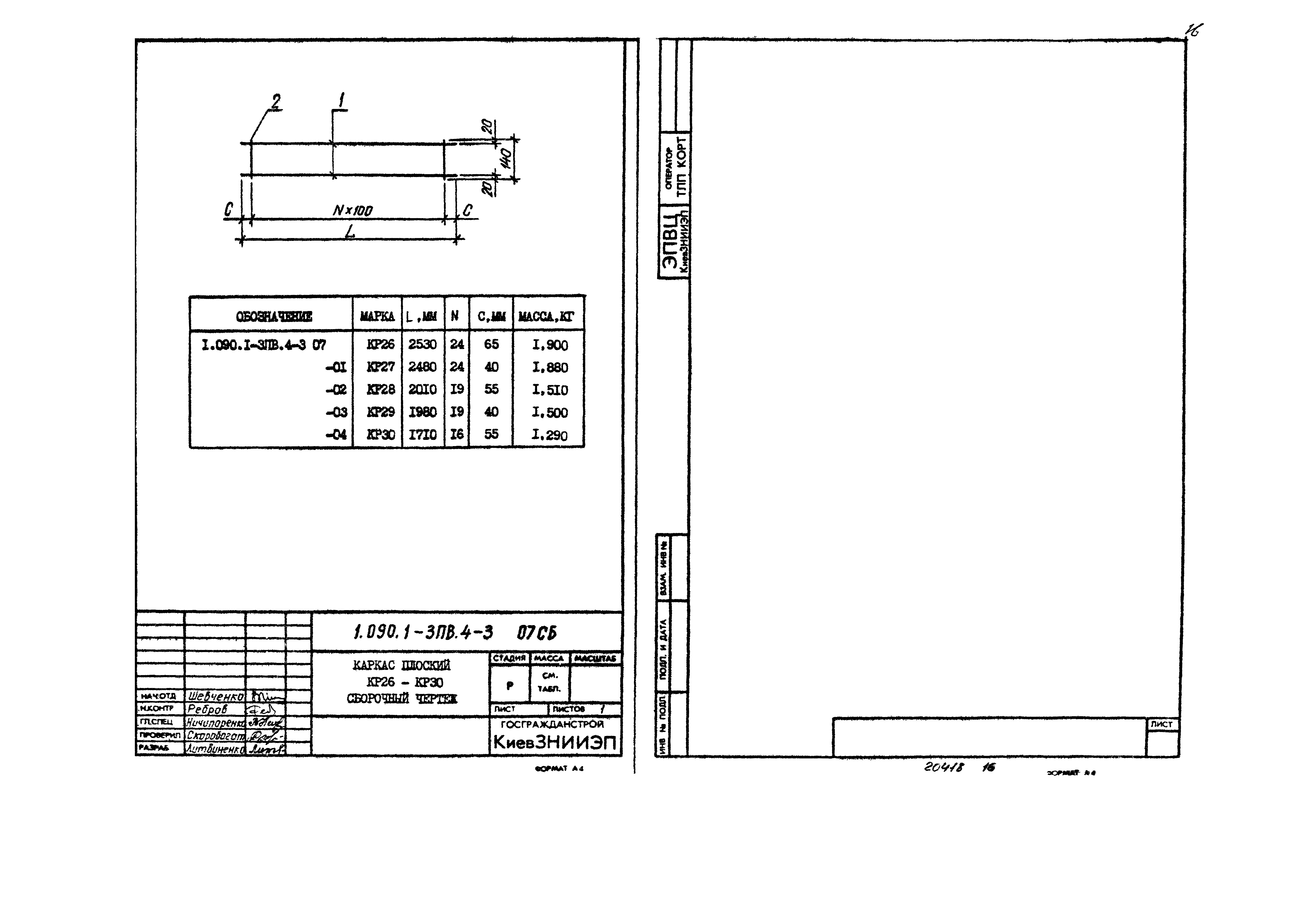
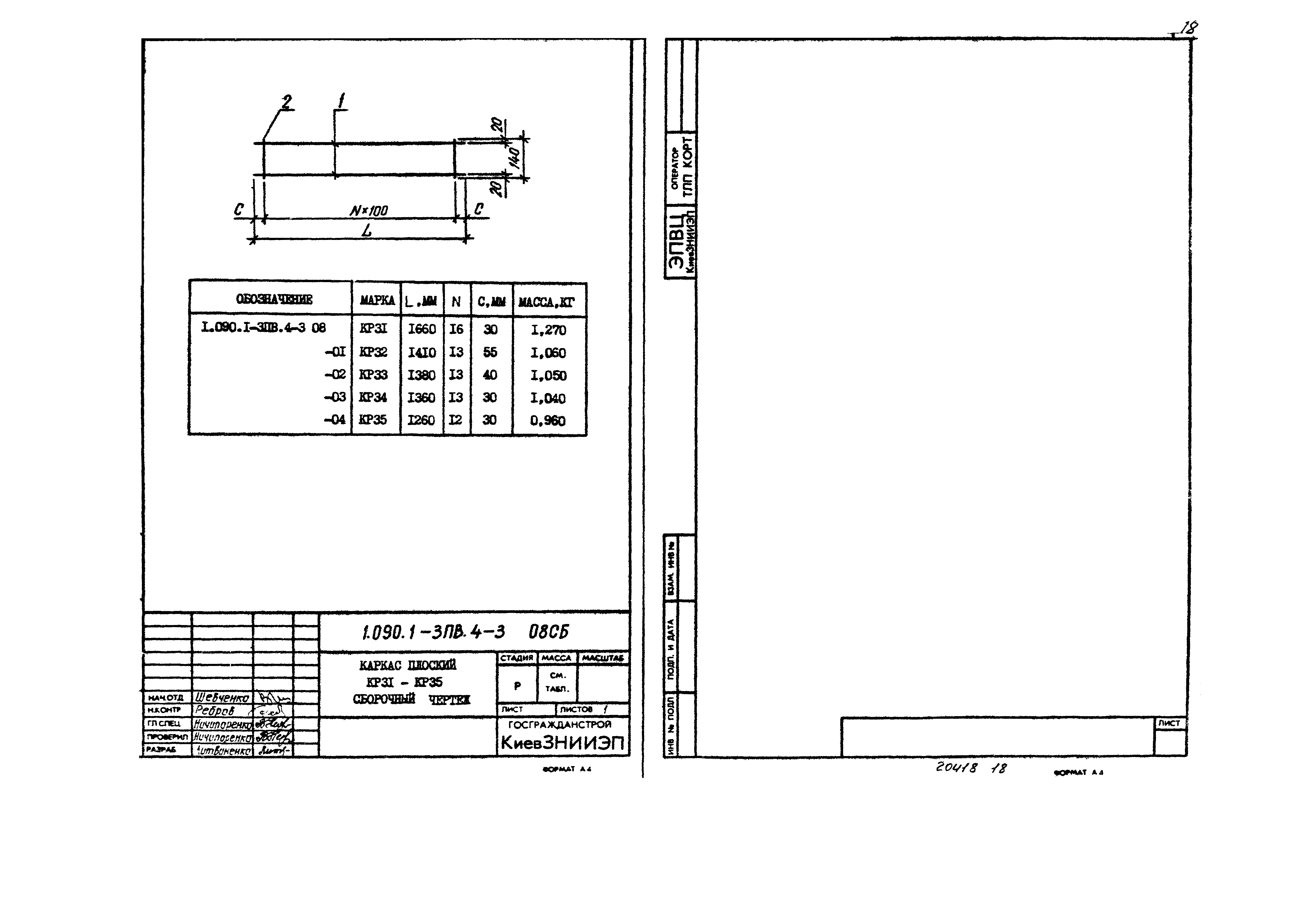
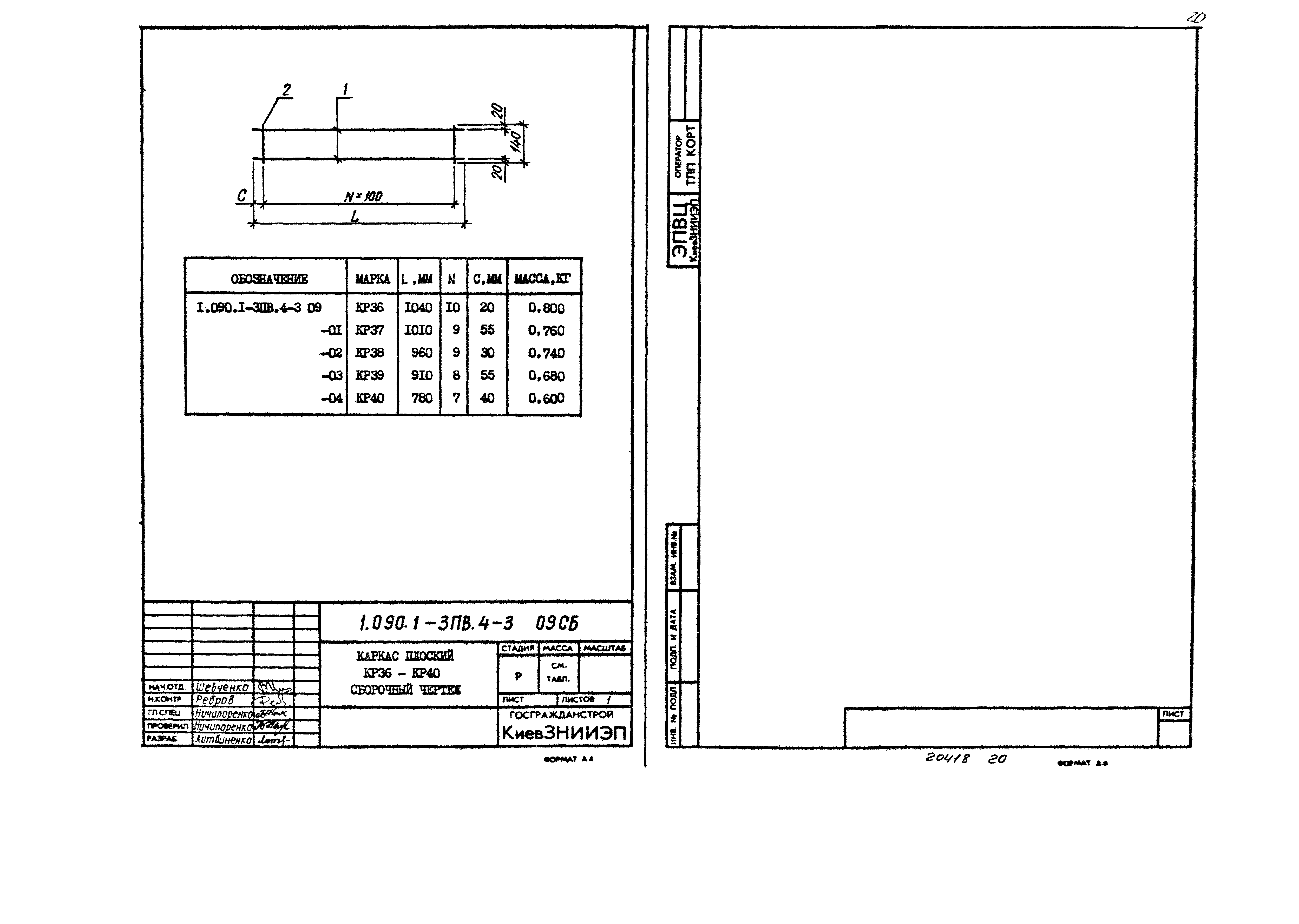
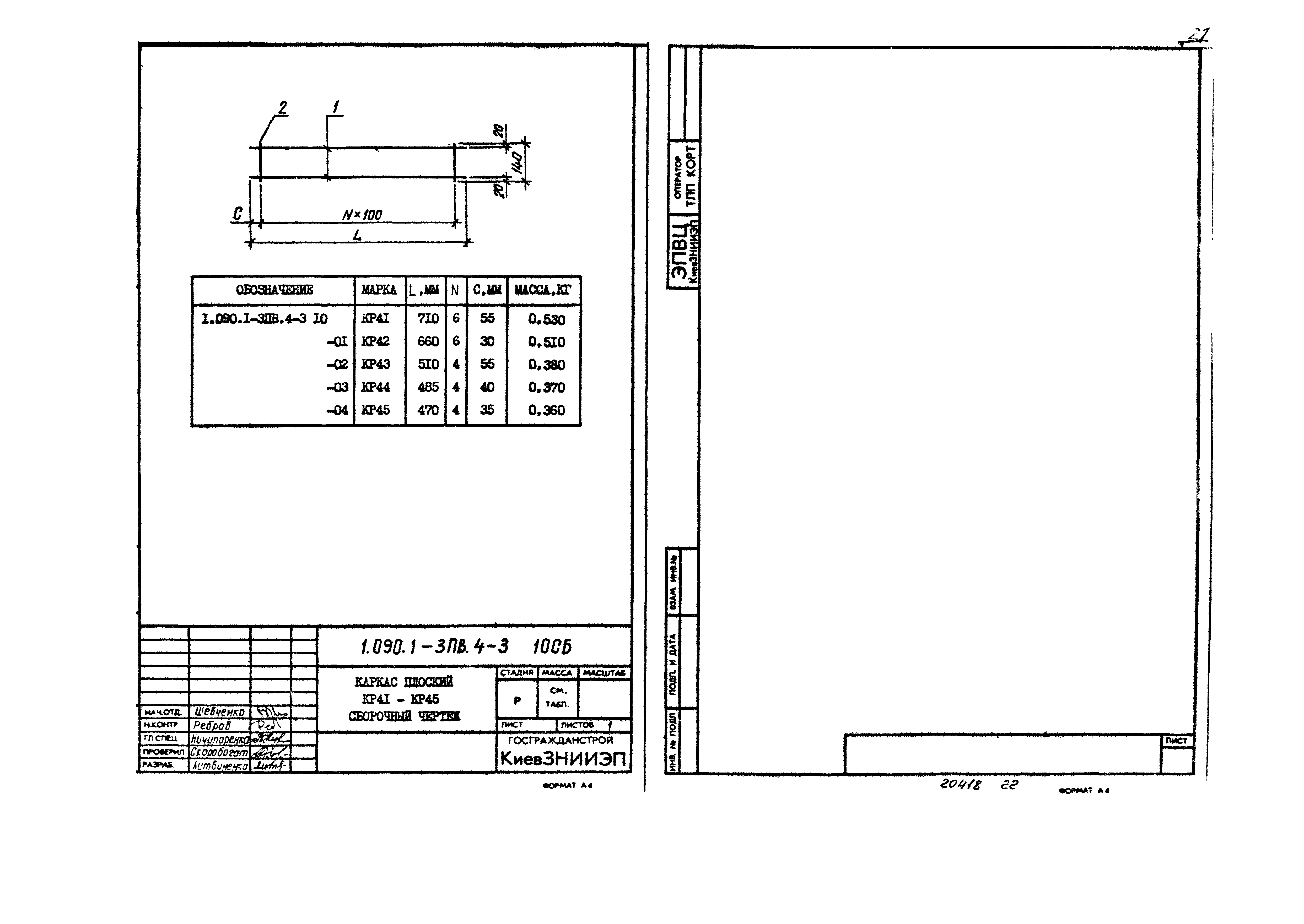
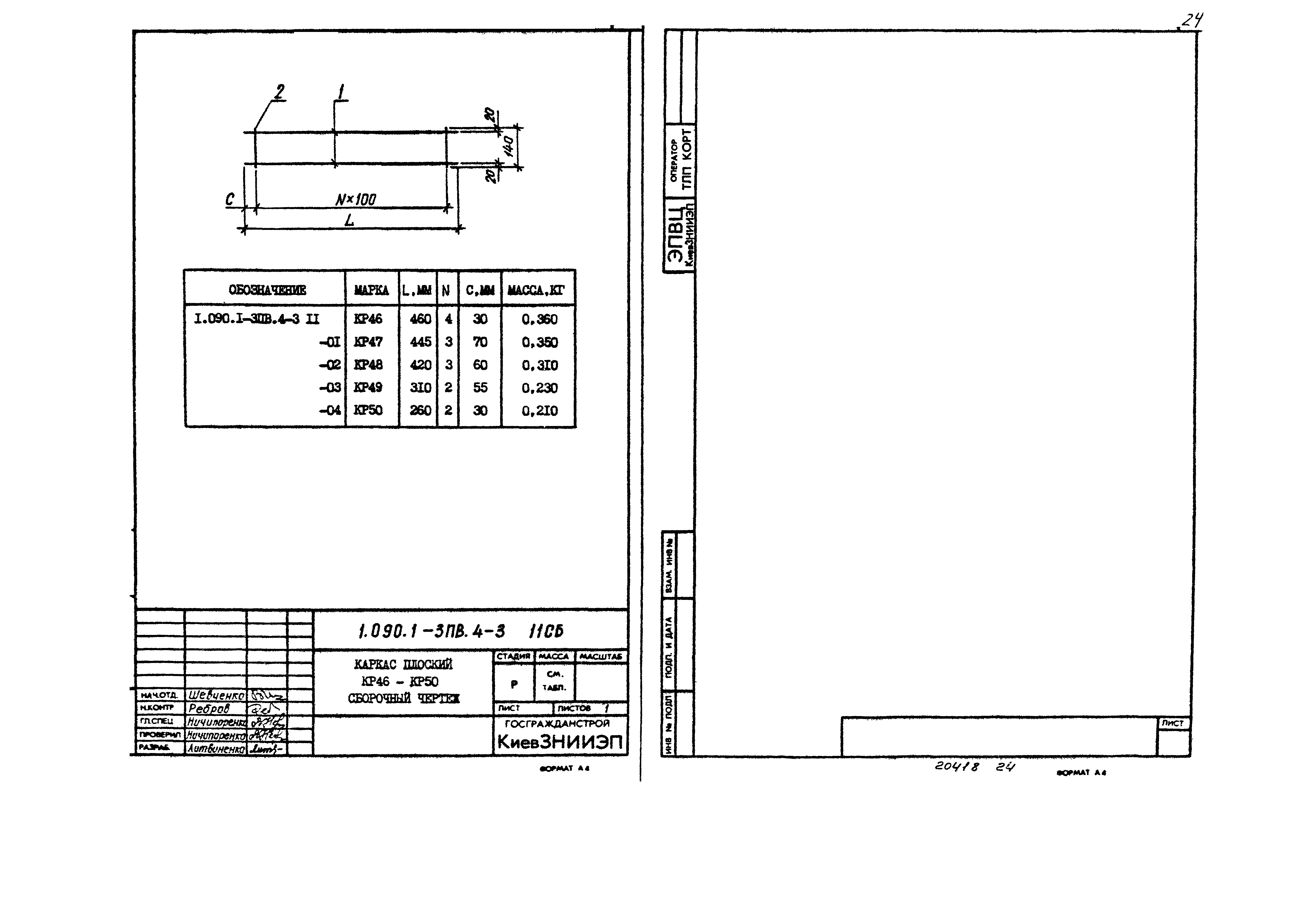
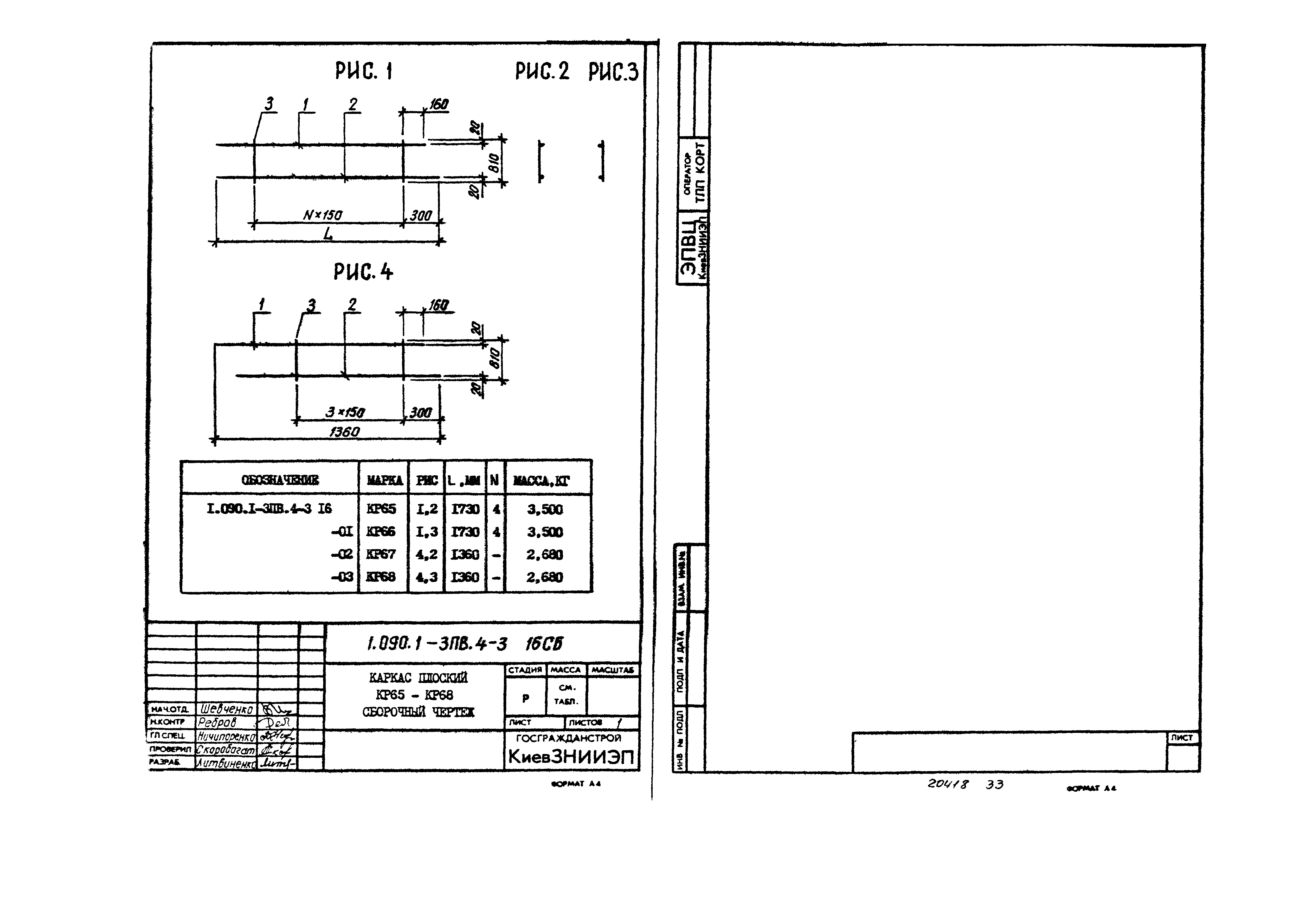
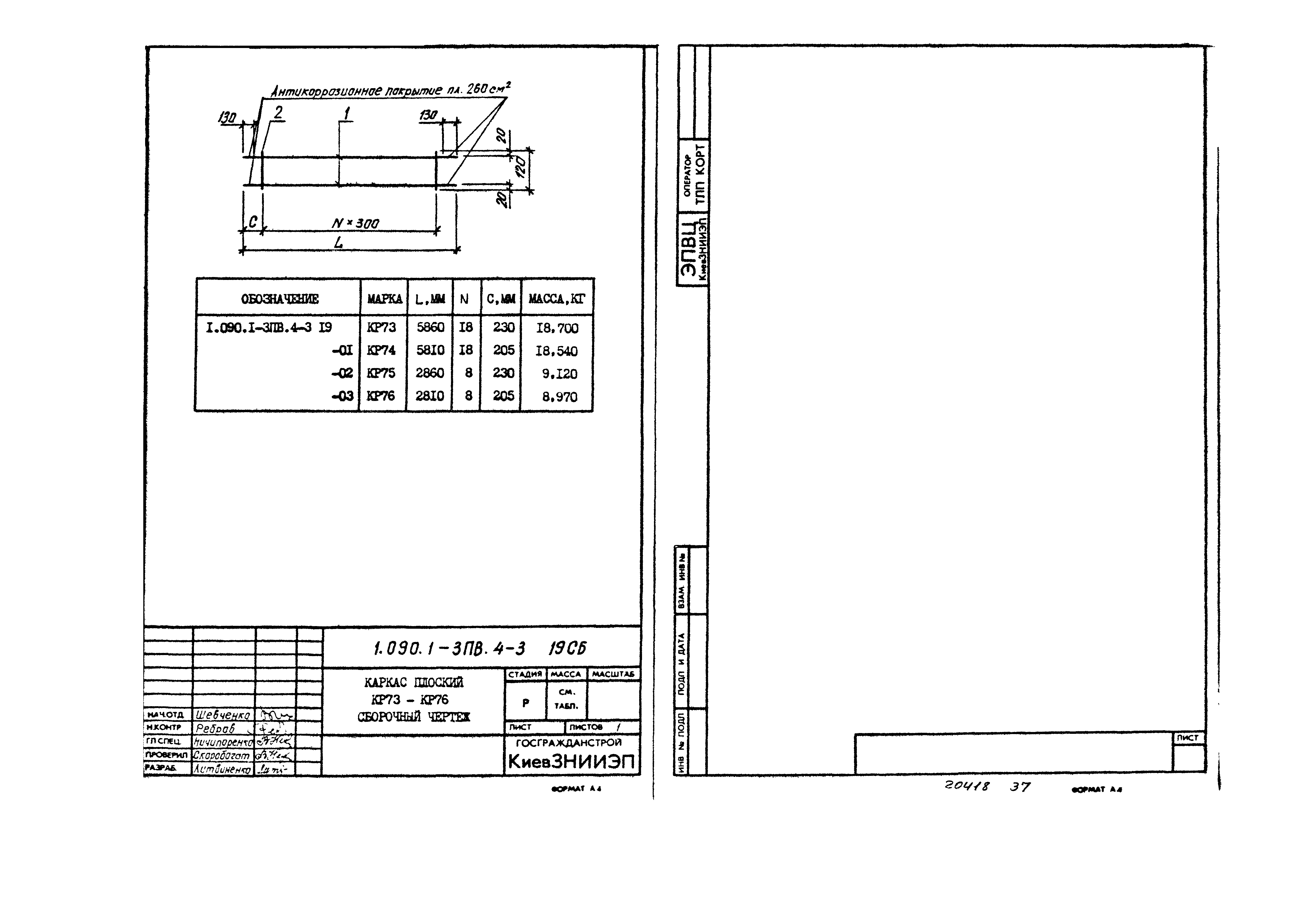
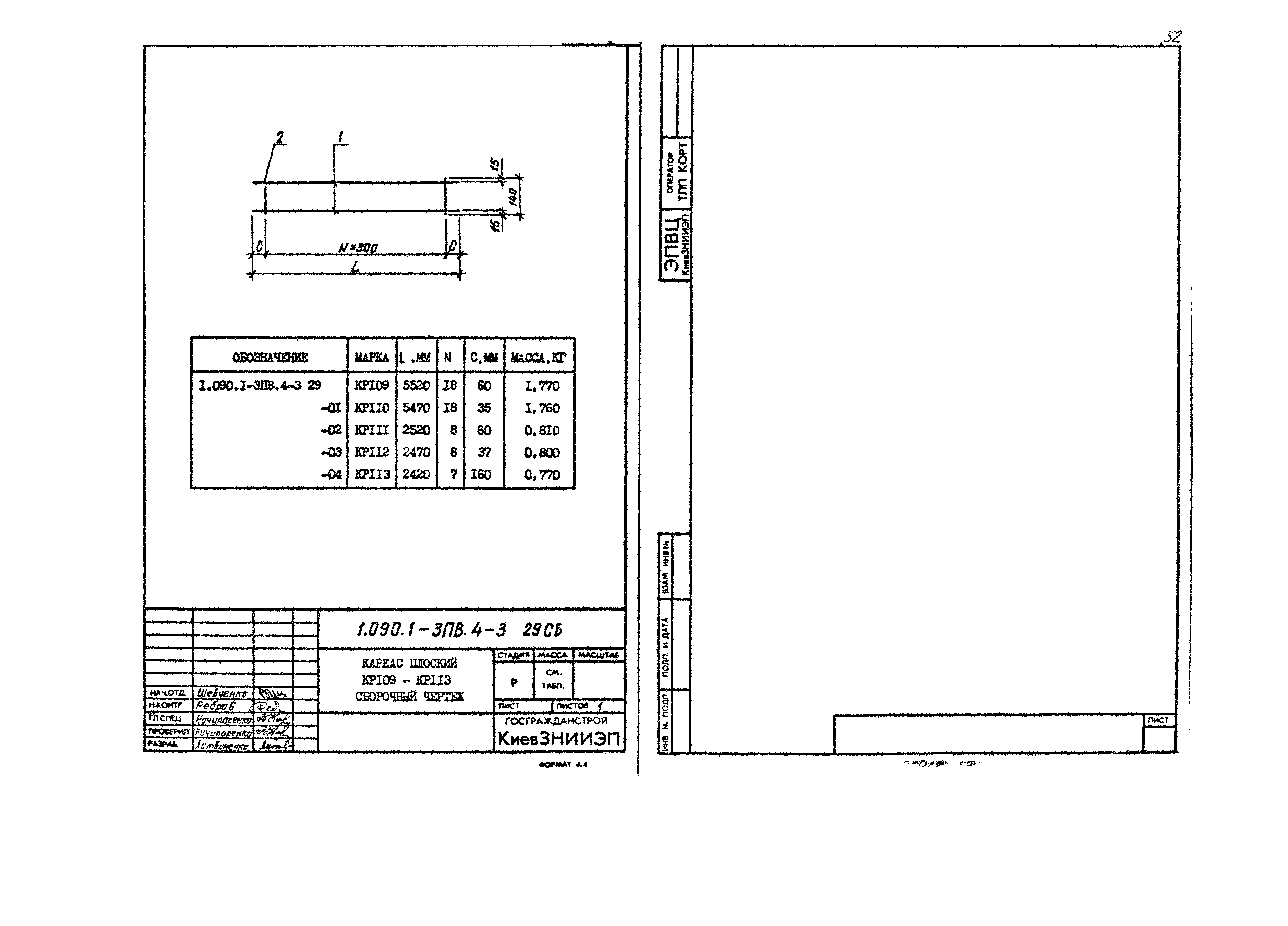
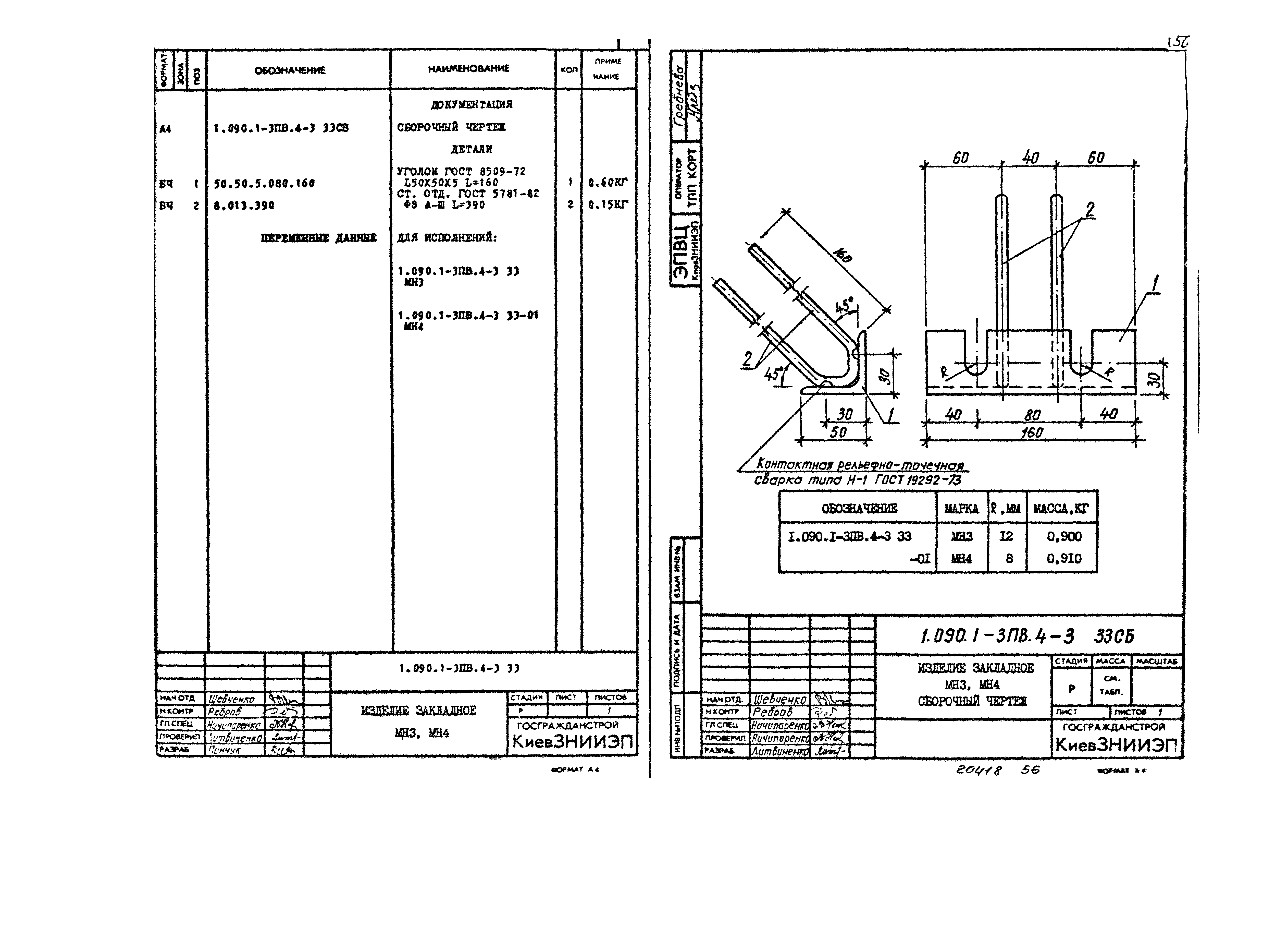
| Оглавление: | 1.090.1-3ПВ.4-3-00С Содержание 1.090.1-3ПВ.4-3-00ТО Техническое описание 1.090.1-3ПВ.4-3-01 Каркас плоский КР1-КР5 1.090.1-3ПВ.4-3-02 Каркас плоский КР6-КР8 1.090.1-3ПВ.4-3-03 Каркас плоский КР9-КР13 1.090.1-3ПВ.4-3-04 Каркас плоский КР14,КР15 1.090.1-3ПВ.4-3-05 Каркас плоский КР16-КР20 1.090.1-3ПВ.4-3-06 Каркас плоский КР21-КР25 1.090.1-3ПВ.4-3-07 Каркас плоский КР26-КР30 1.090.1-3ПВ.4-3-08 Каркас плоский КР31-КР35 1.090.1-3ПВ.4-3-09 Каркас плоский КР36-КР40 1.090.1-3ПВ.4-3-10 Каркас плоский КР41-КР45 1.090.1-3ПВ.4-3-11 Каркас плоский КР46-КР50 1.090.1-3ПВ.4-3-12 Каркас плоский КР51,КР52 1.090.1-3ПВ.4-3-13 Каркас плоский КР53-КР56 1.090.1-3ПВ.4-3-14 Каркас плоский КР57-КР60 1.090.1-3ПВ.4-3-15 Каркас плоский КР61-КР64 1.090.1-3ПВ.4-3-16 Каркас плоский КР65-КР68 1.090.1-3ПВ.4-3-17 Каркас плоский КР69 1.090.1-3ПВ.4-3-18 Каркас плоский КР70-КР72 1.090.1-3ПВ.4-3-19 Каркас плоский КР73-КР76 1.090.1-3ПВ.4-3-20 Каркас плоский КР77-КР80 1.090.1-3ПВ.4-3-21 Каркас плоский КР81-КР84 1.090.1-3ПВ.4-3-22 Каркас плоский КР85-КР88 1.090.1-3ПВ.4-3-23 Каркас плоский КР89-КР92 1.090.1-3ПВ.4-3-24 Каркас плоский КР93-КР95 1.090.1-3ПВ.4-3-25 Каркас плоский КР96-КР98 1.090.1-3ПВ.4-3-26 Каркас плоский КР99-КР102 1.090.1-3ПВ.4-3-27 Каркас плоский КР103 1.090.1-3ПВ.4-3-28 Каркас плоский КР104-КР108 1.090.1-3ПВ.4-3-29 Каркас плоский КР109-КР113 1.090.1-3ПВ.4-3-30 Каркас плоский КР114-КР117 1.090.1-3ПВ.4-3-31 Каркас плоский КР118-КР120 1.090.1-3ПВ.4-3-32 Изделие закладное МН1,МН2 1.090.1-3ПВ.4-3-33 Изделие закладное МН3,МН4 1.090.1-3ПВ.4-3-34 Петля строповочная ПС1-ПС6. Стержень гнутый АН1,АН2 |
| Разработан: | КиевЗНИИЭП ЦНИИЭП торгово-бытовых зданий и туристских комплексов |
| Утверждён: | 01.11.1984 Госстрой СССР (Государственный комитет Совета Министров СССР по делам строительства) (USSR Gosstroy ИИ-32) |
| Издан: | ЦИТП Госстроя СССР (CITP, Gosstroy (USSR) 1985 г. ) |

























































