Скачать Серия 1.100.1-7 Выпуск 0. Состав серии. Материалы для проектирования. Рабочие чертежиДата актуализации: 01.01.2021
|
| Обозначение: | Серия 1.100.1-7 |
| Обозначение англ: | Series 1.100.1-7 |
| Статус: | действует |
| Название рус.: | Выпуск 0. Состав серии. Материалы для проектирования. Рабочие чертежи |
| Дата добавления в базу: | 01.09.2013 |
| Дата актуализации: | 01.01.2021 |
| Дата введения: | 30.04.1990 |
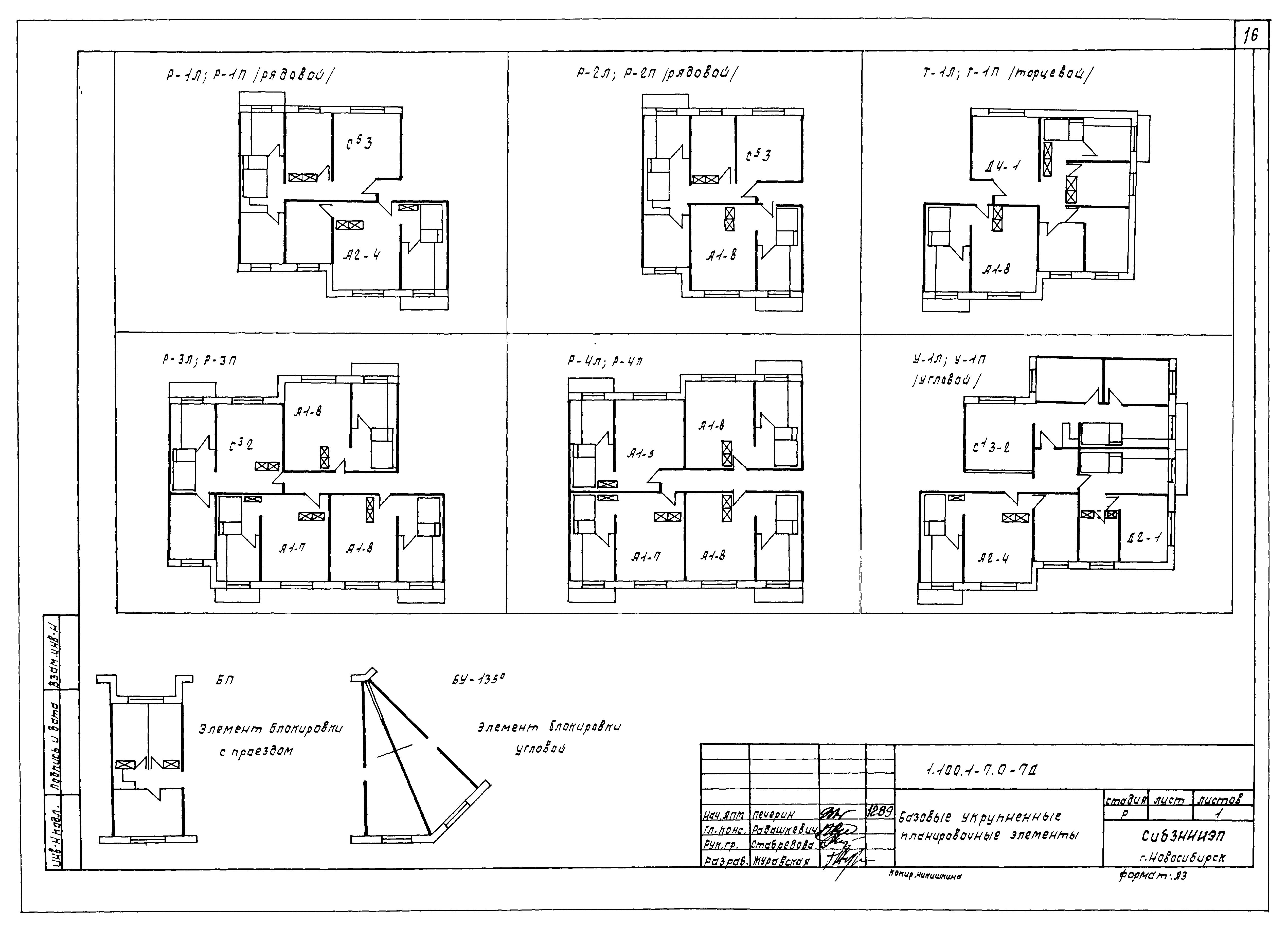
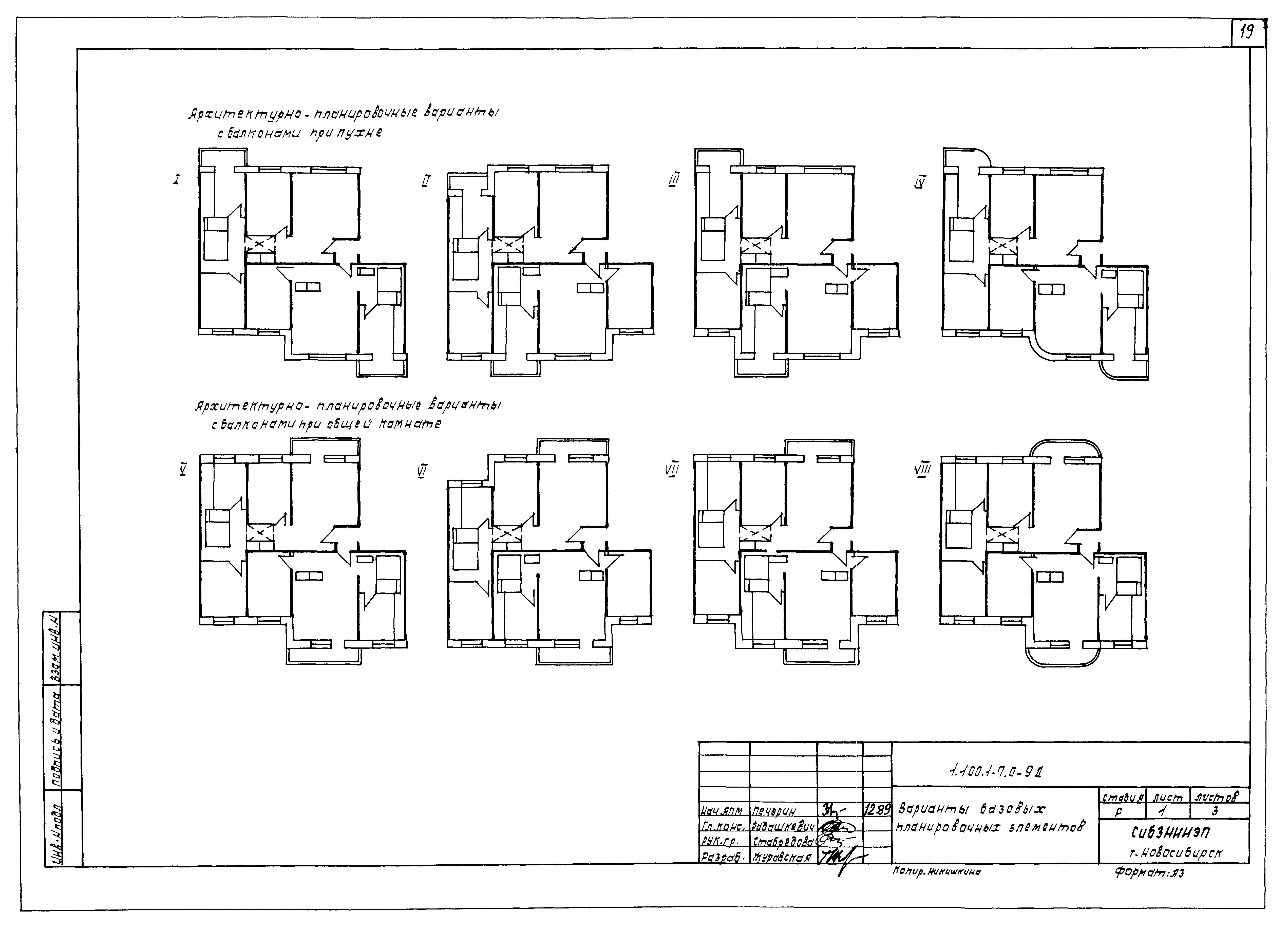
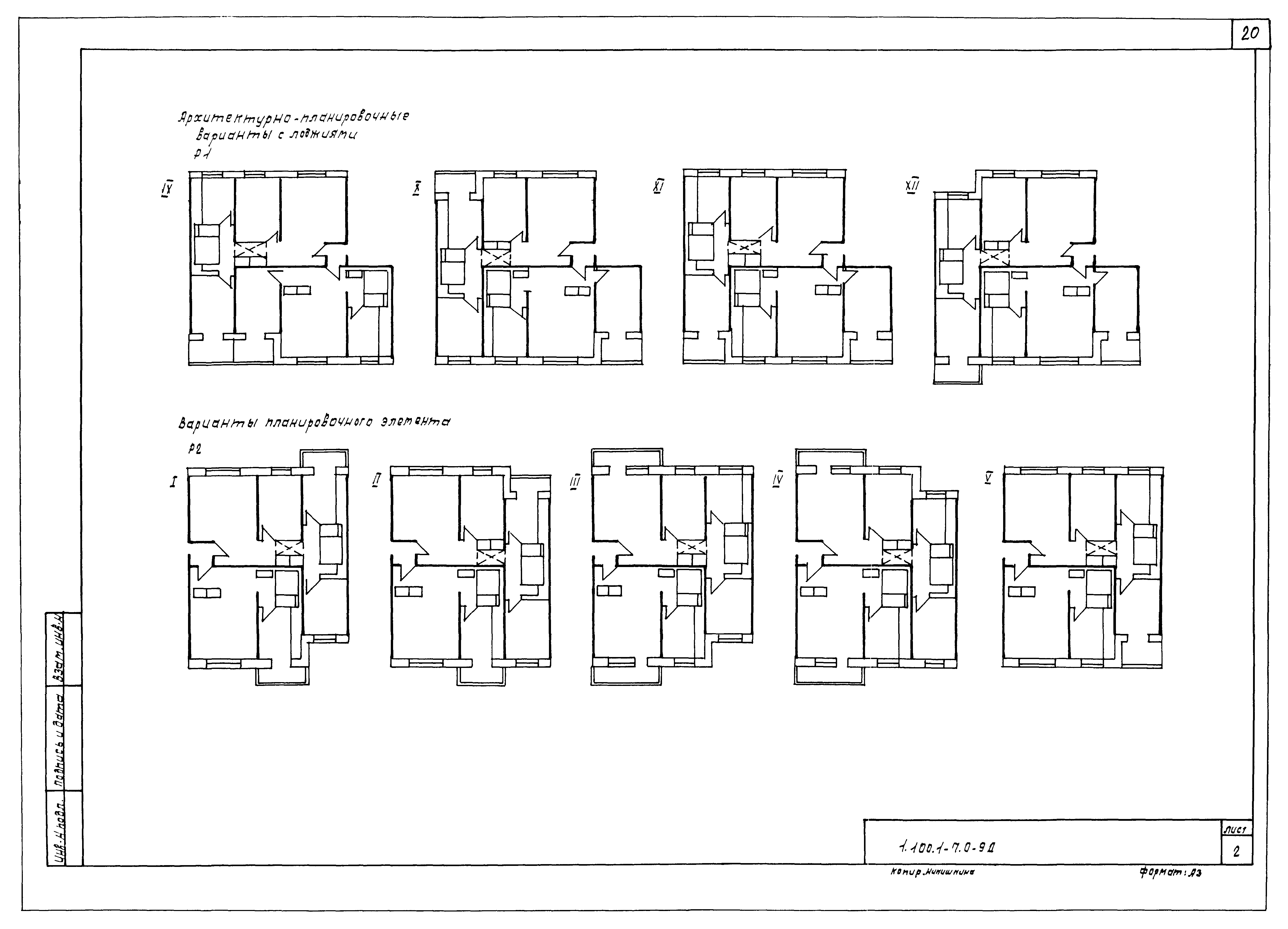
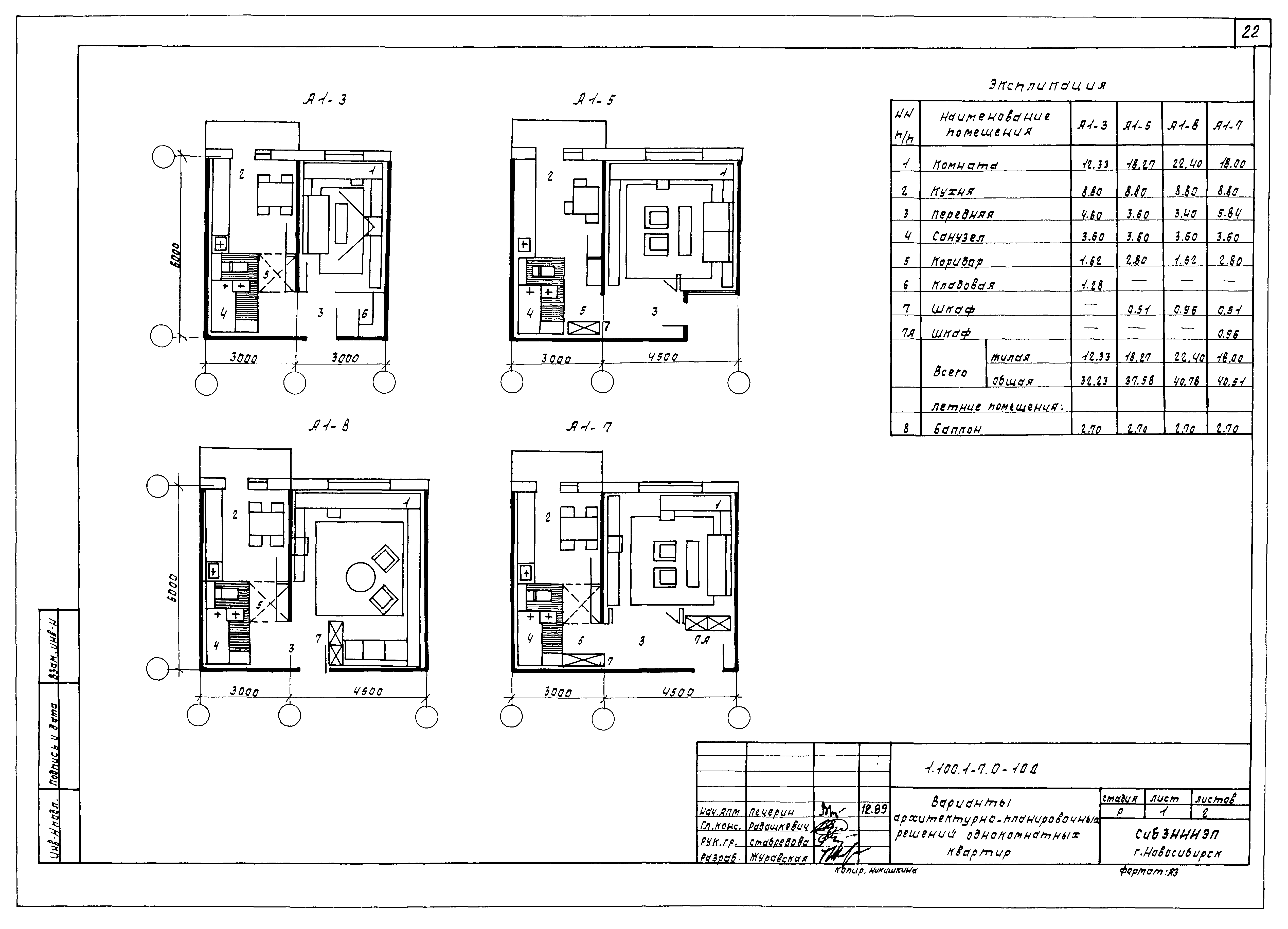
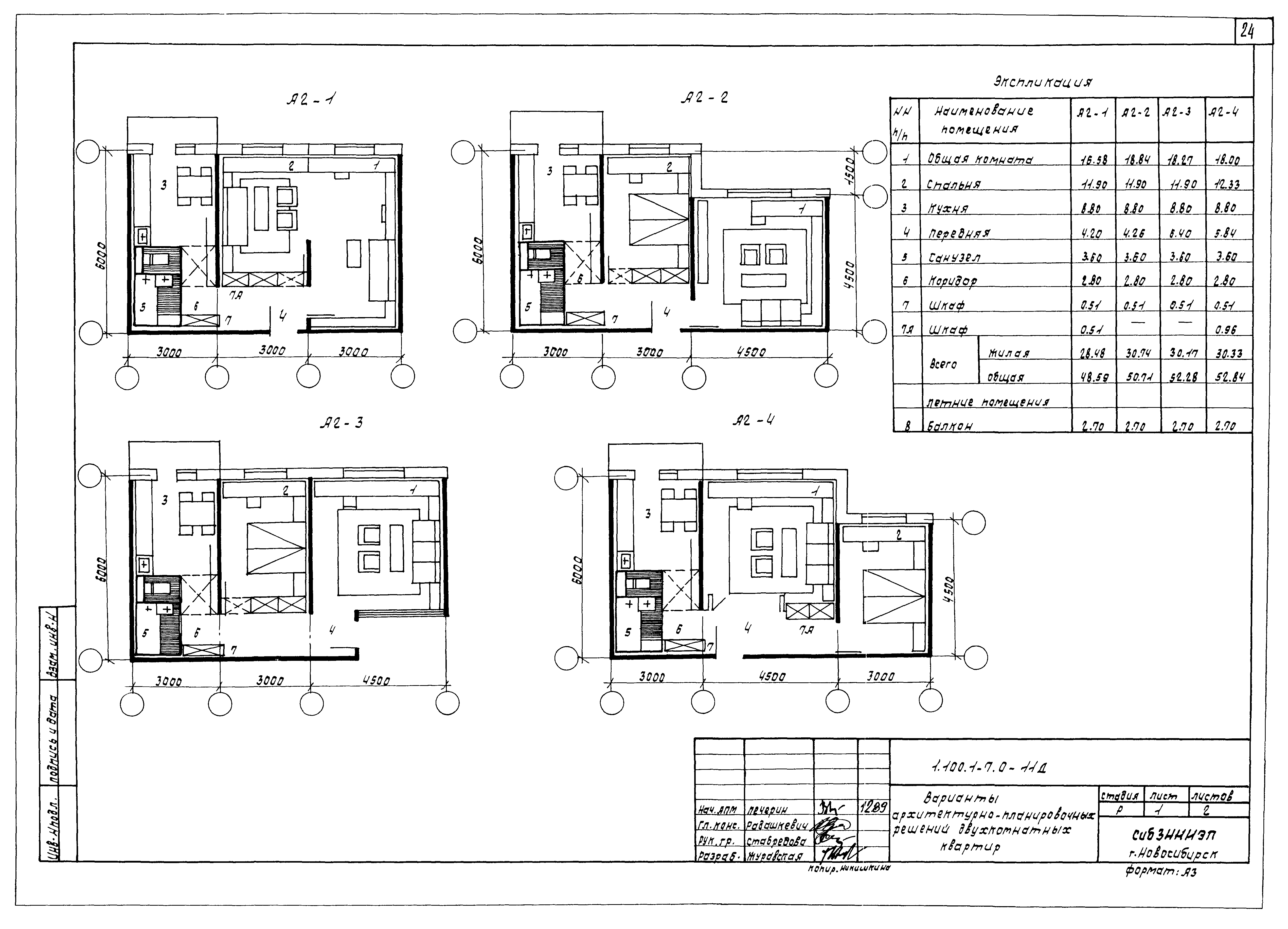
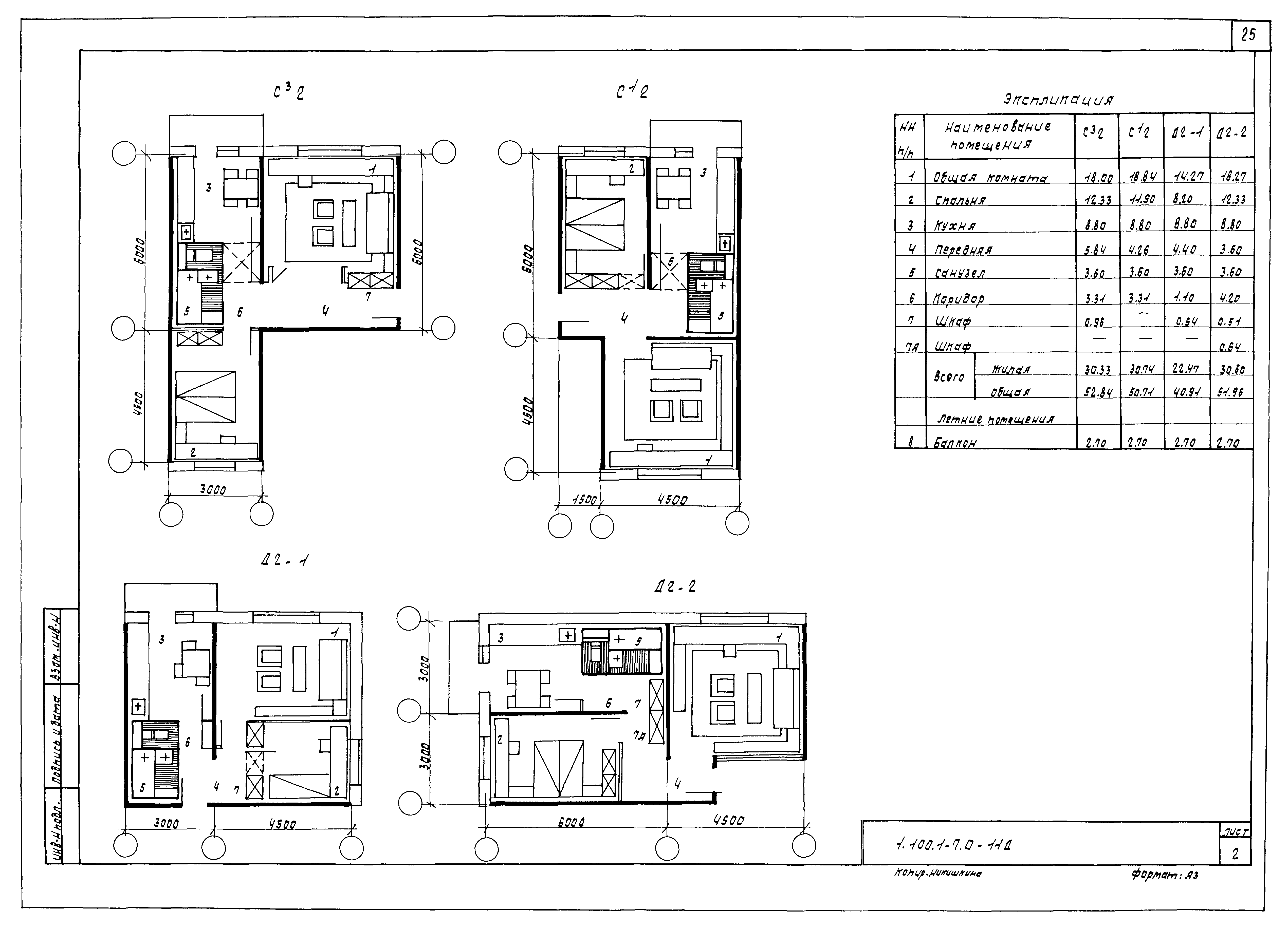
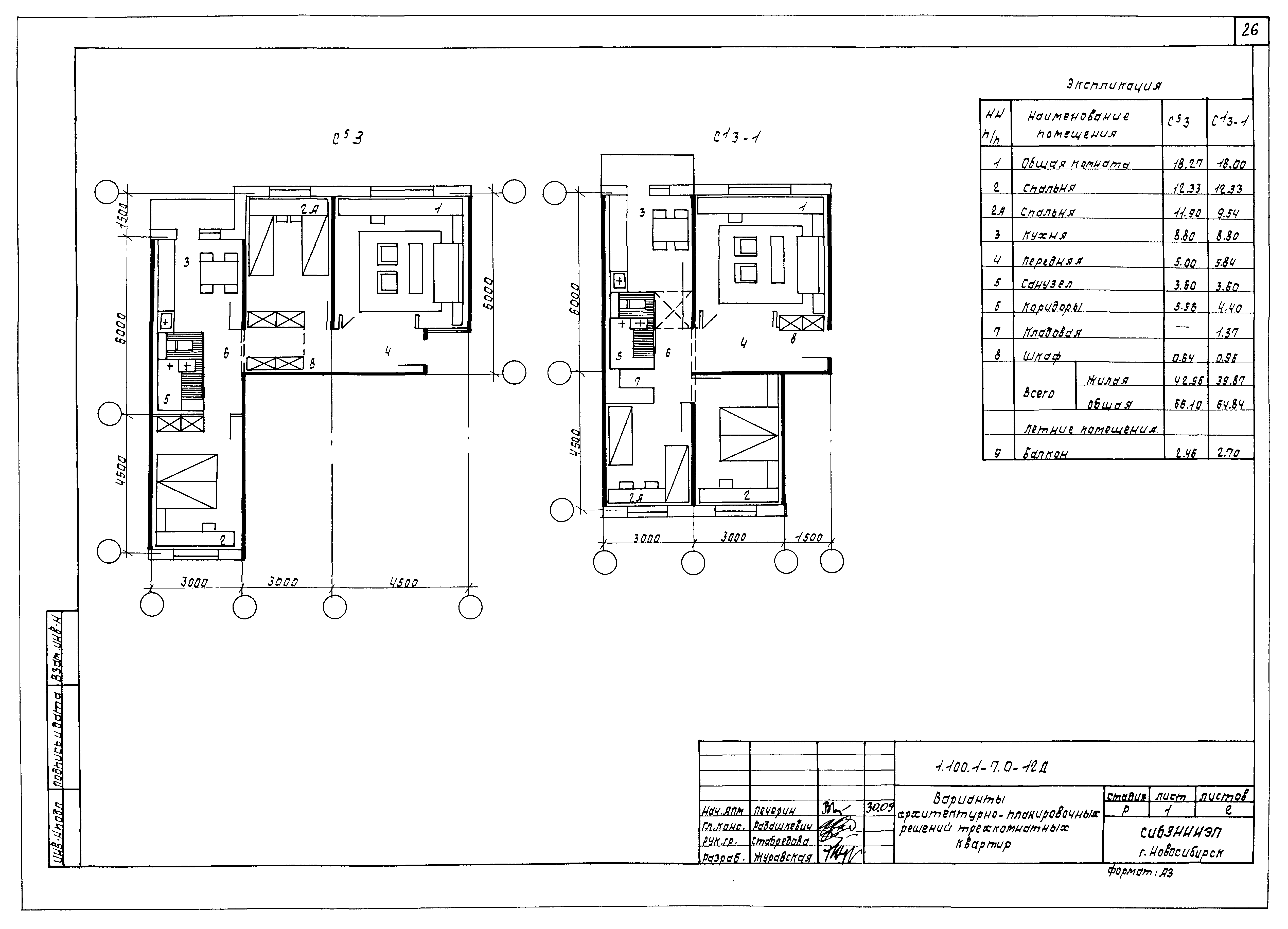
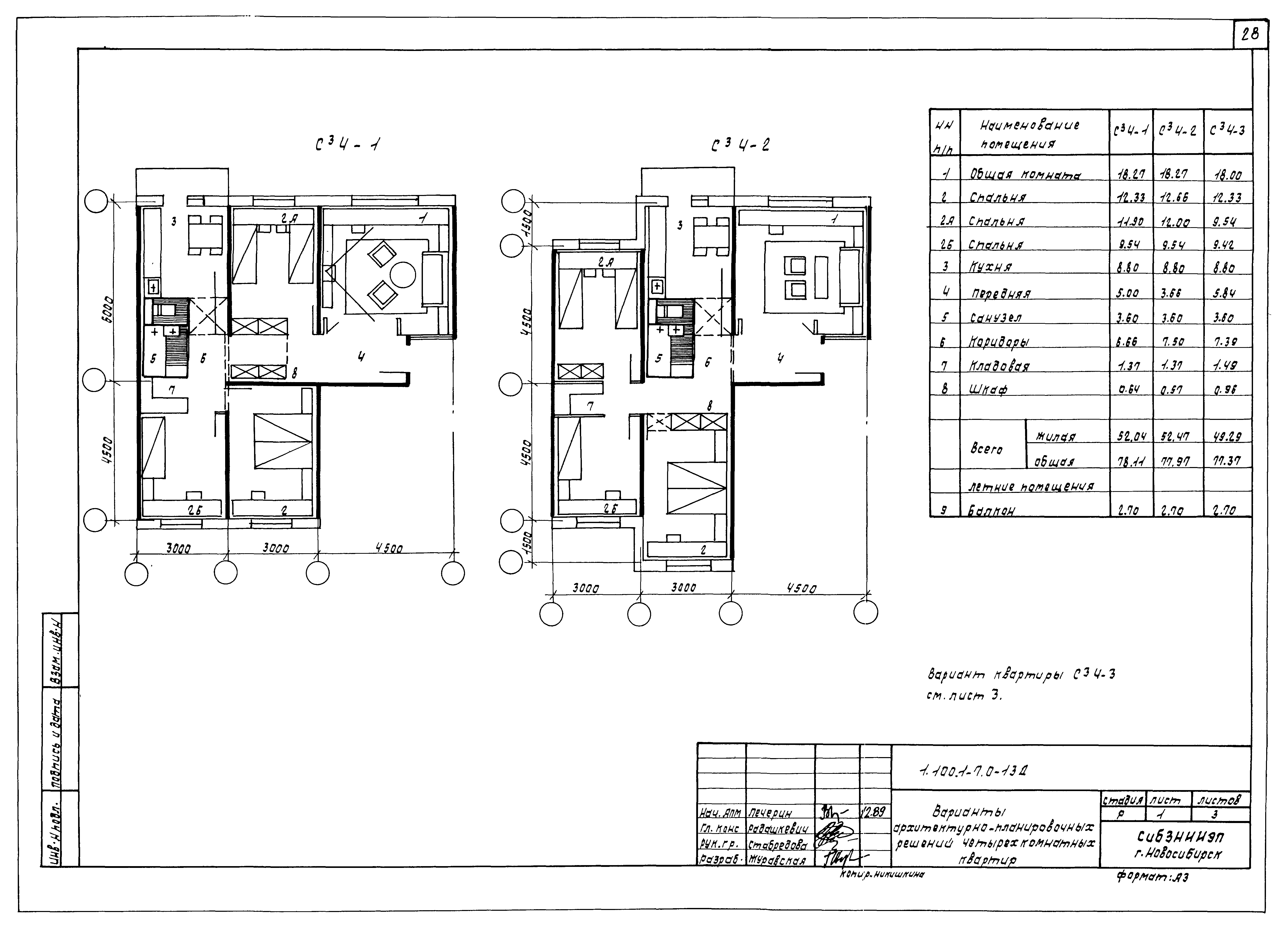
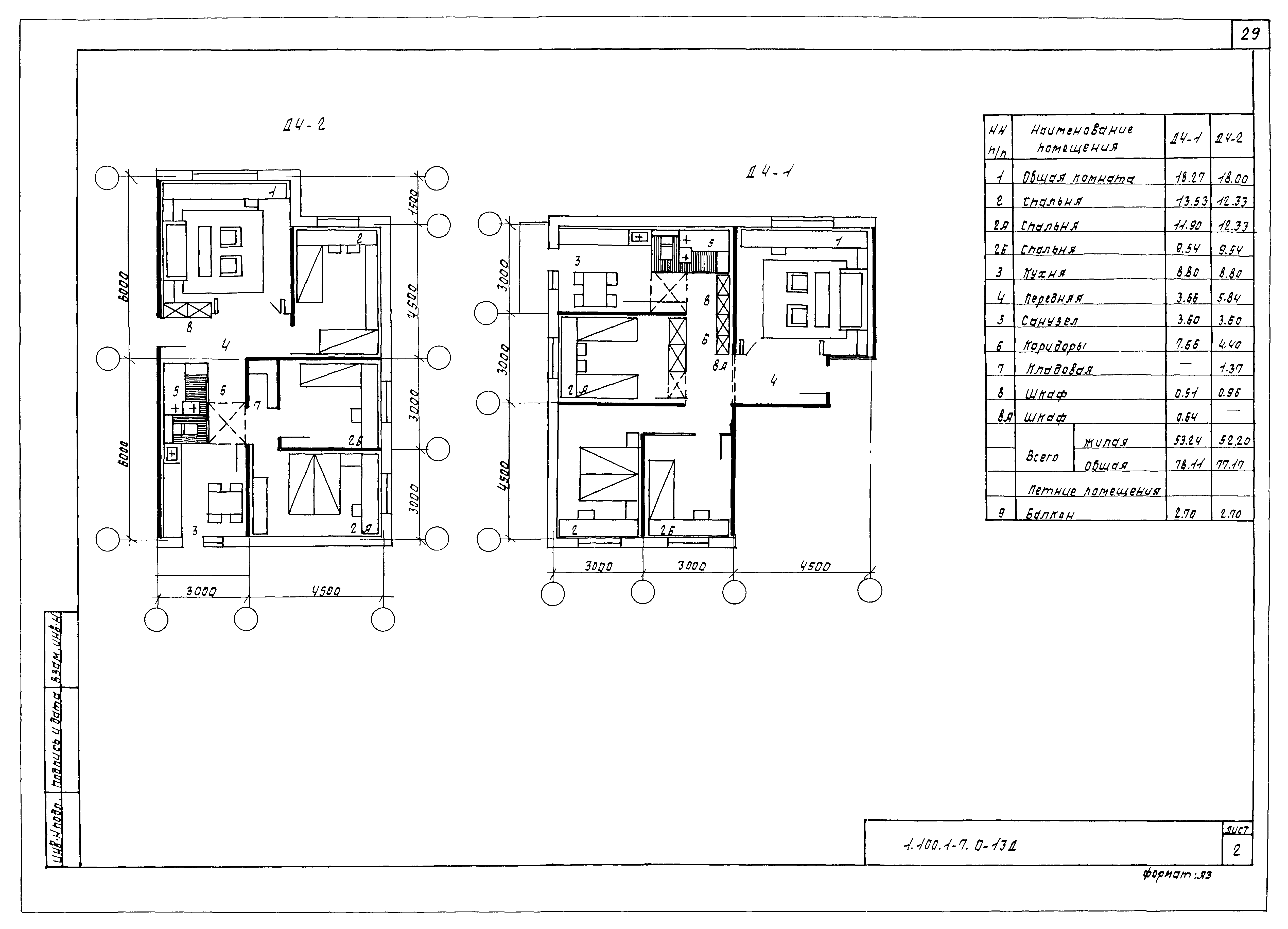
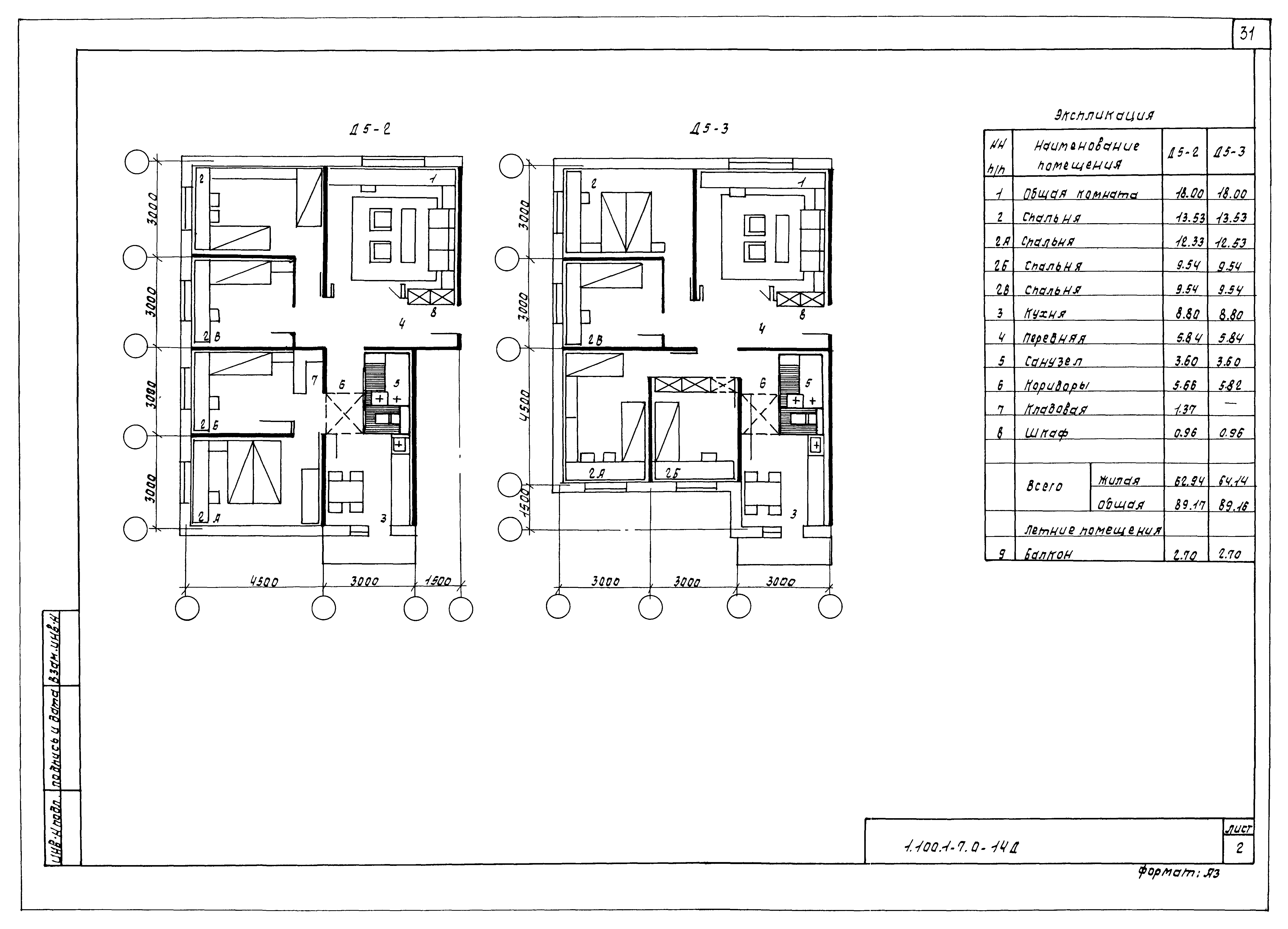
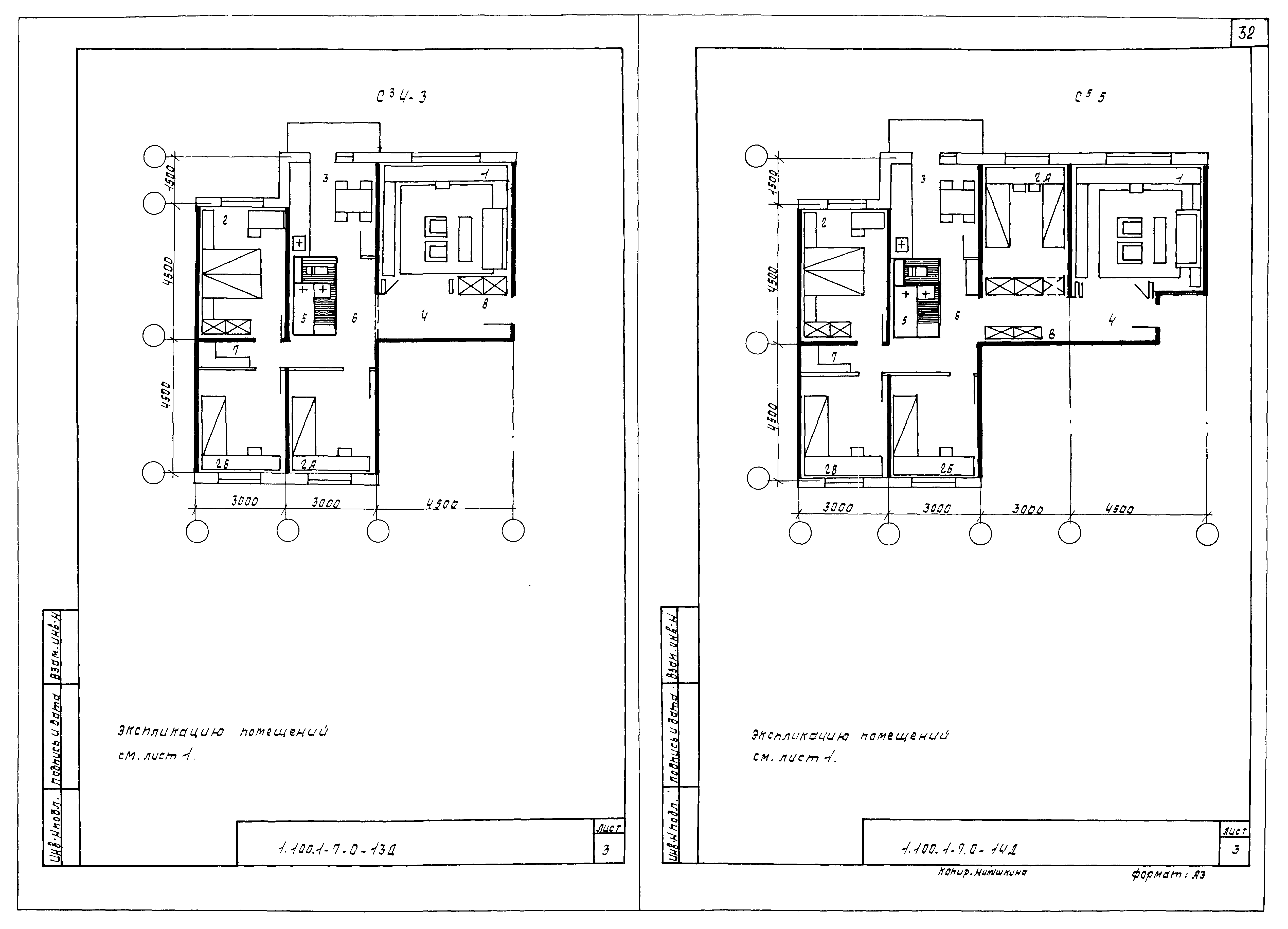
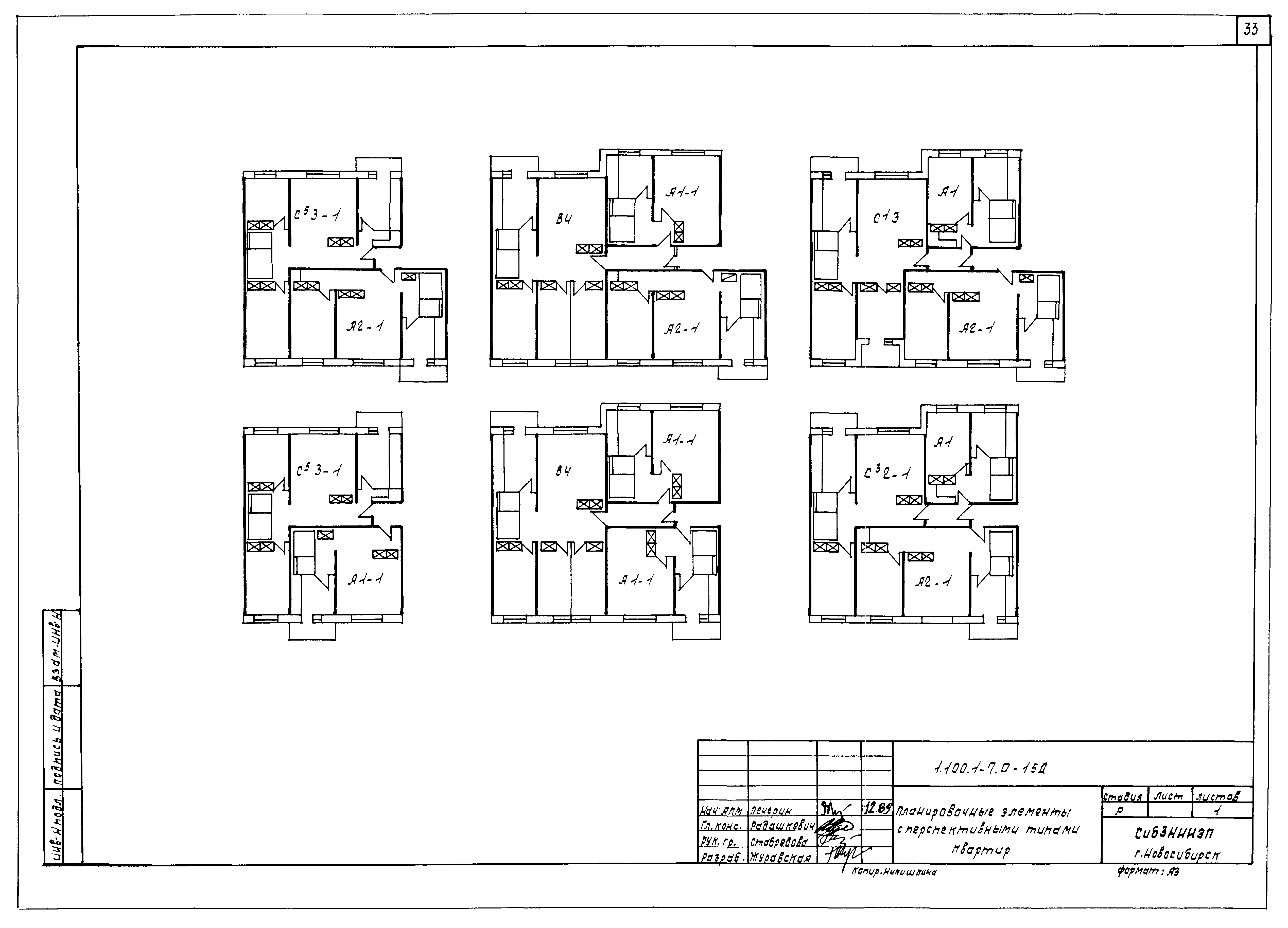
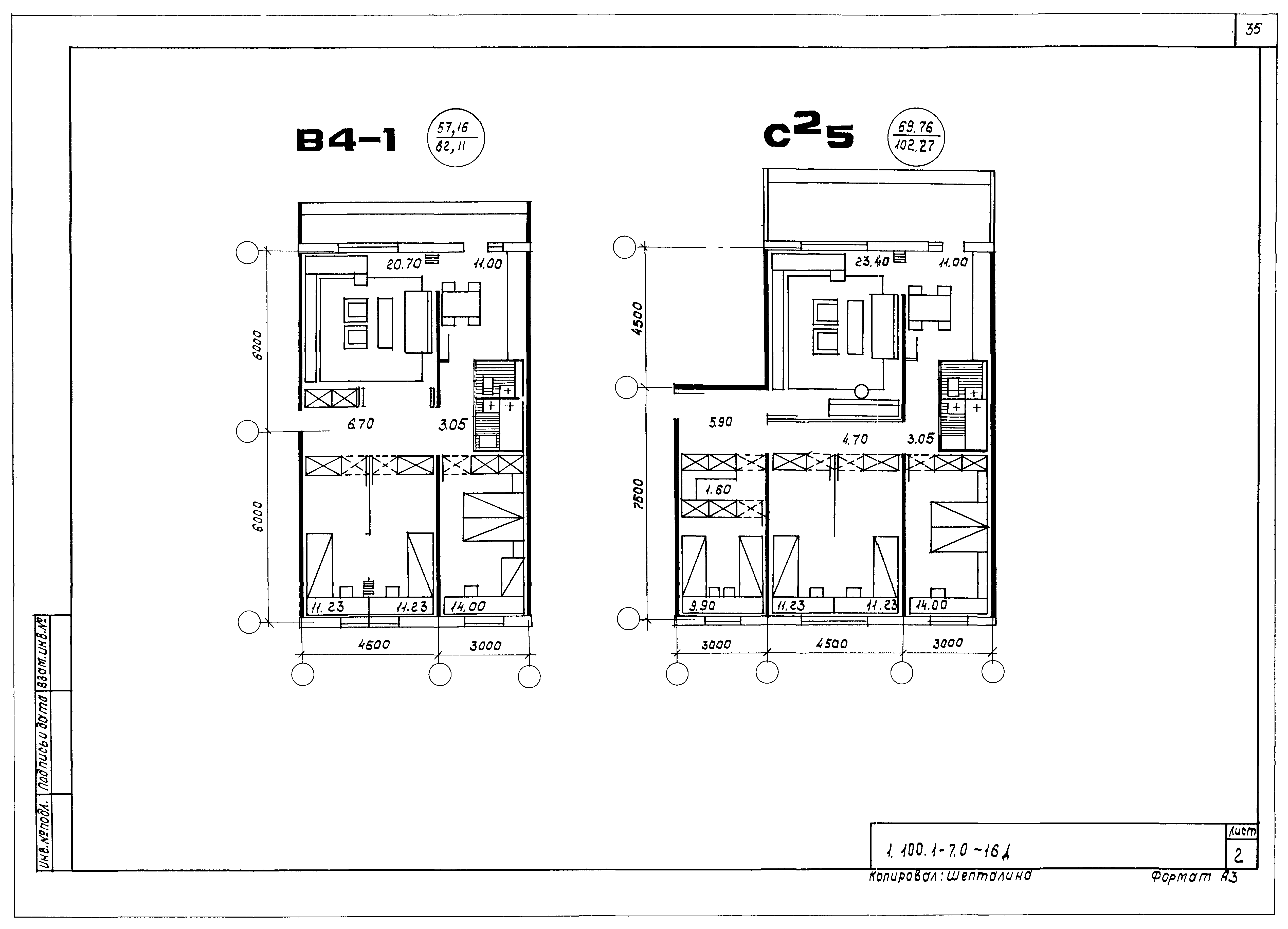
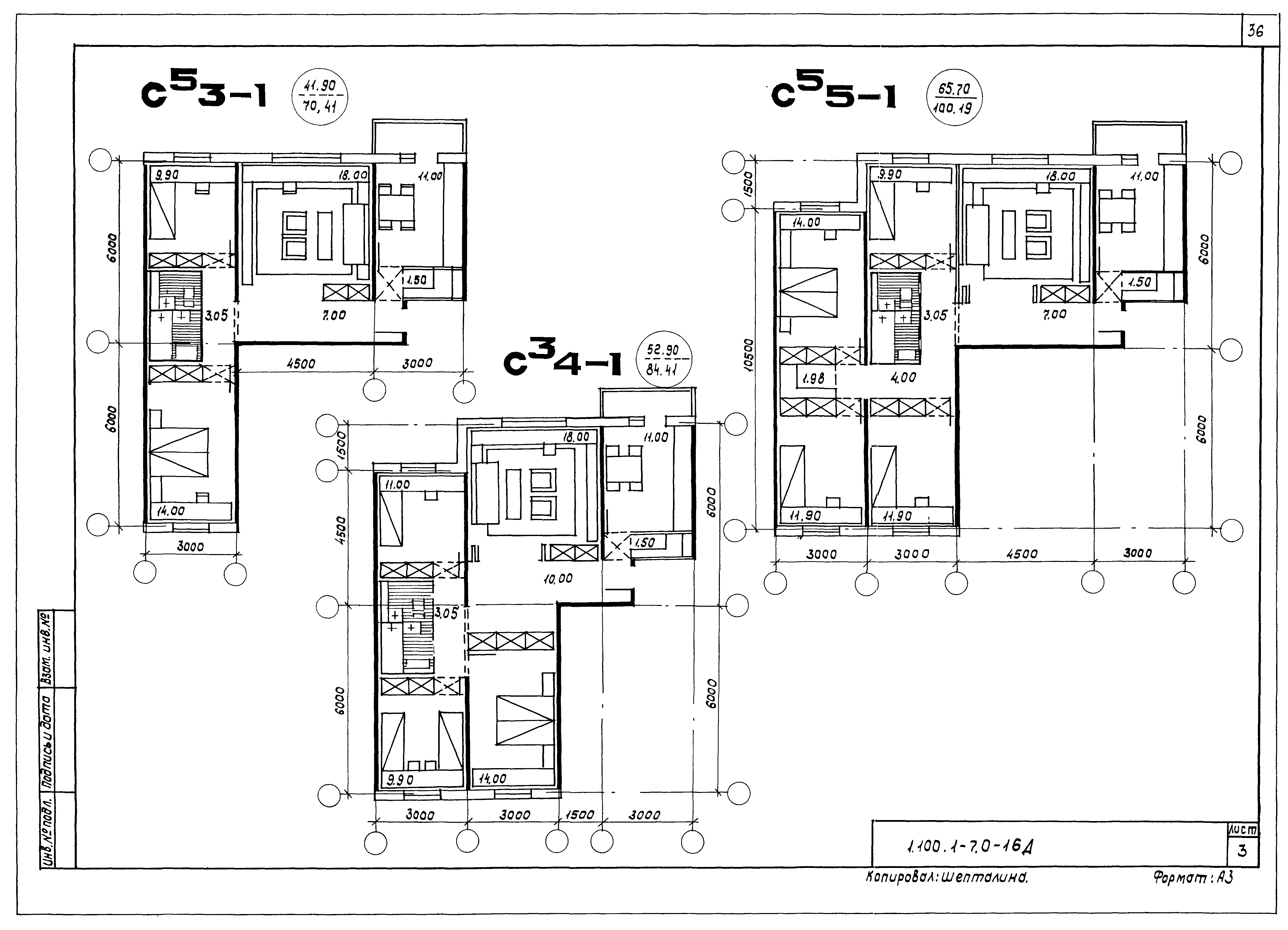
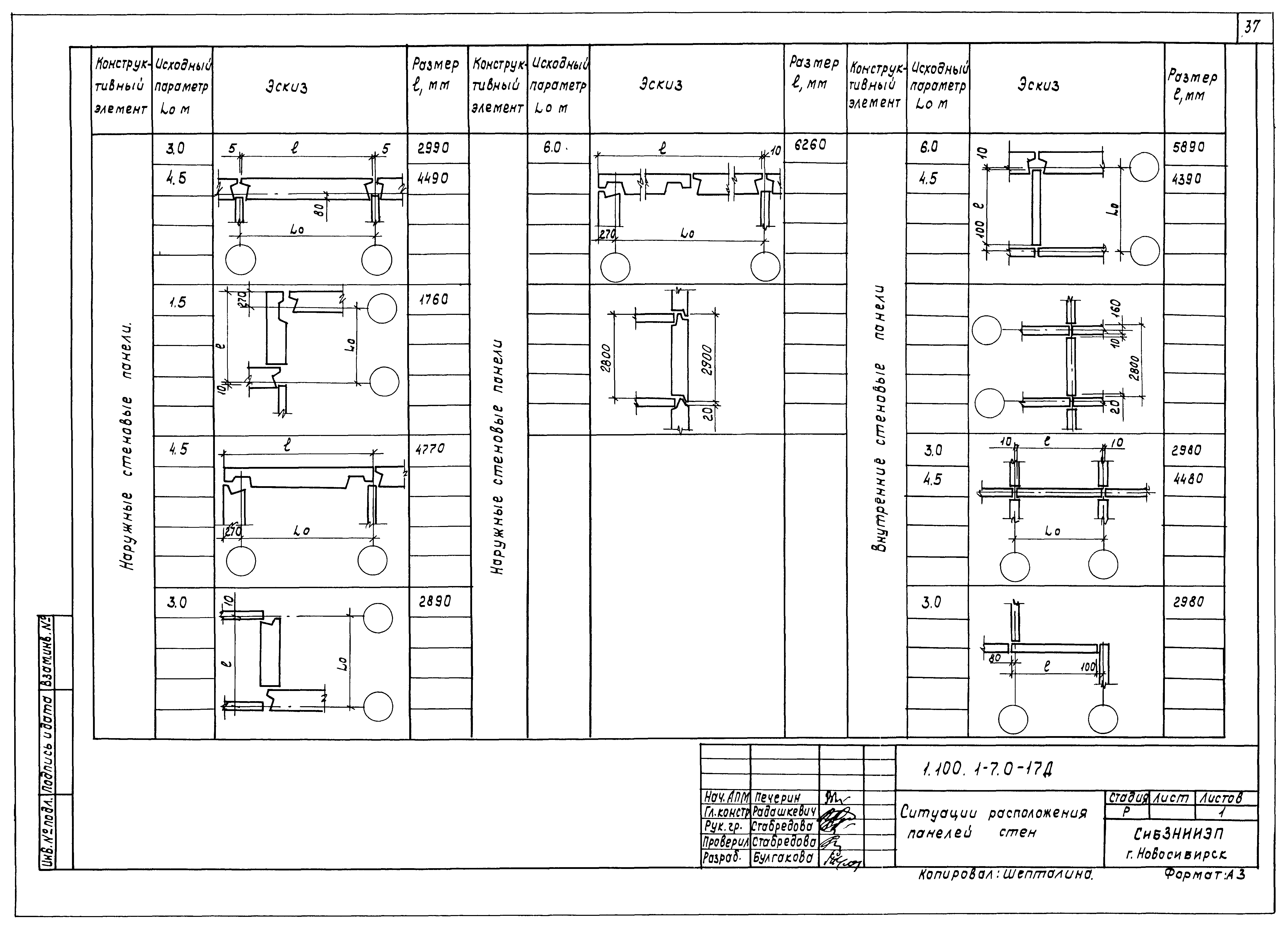
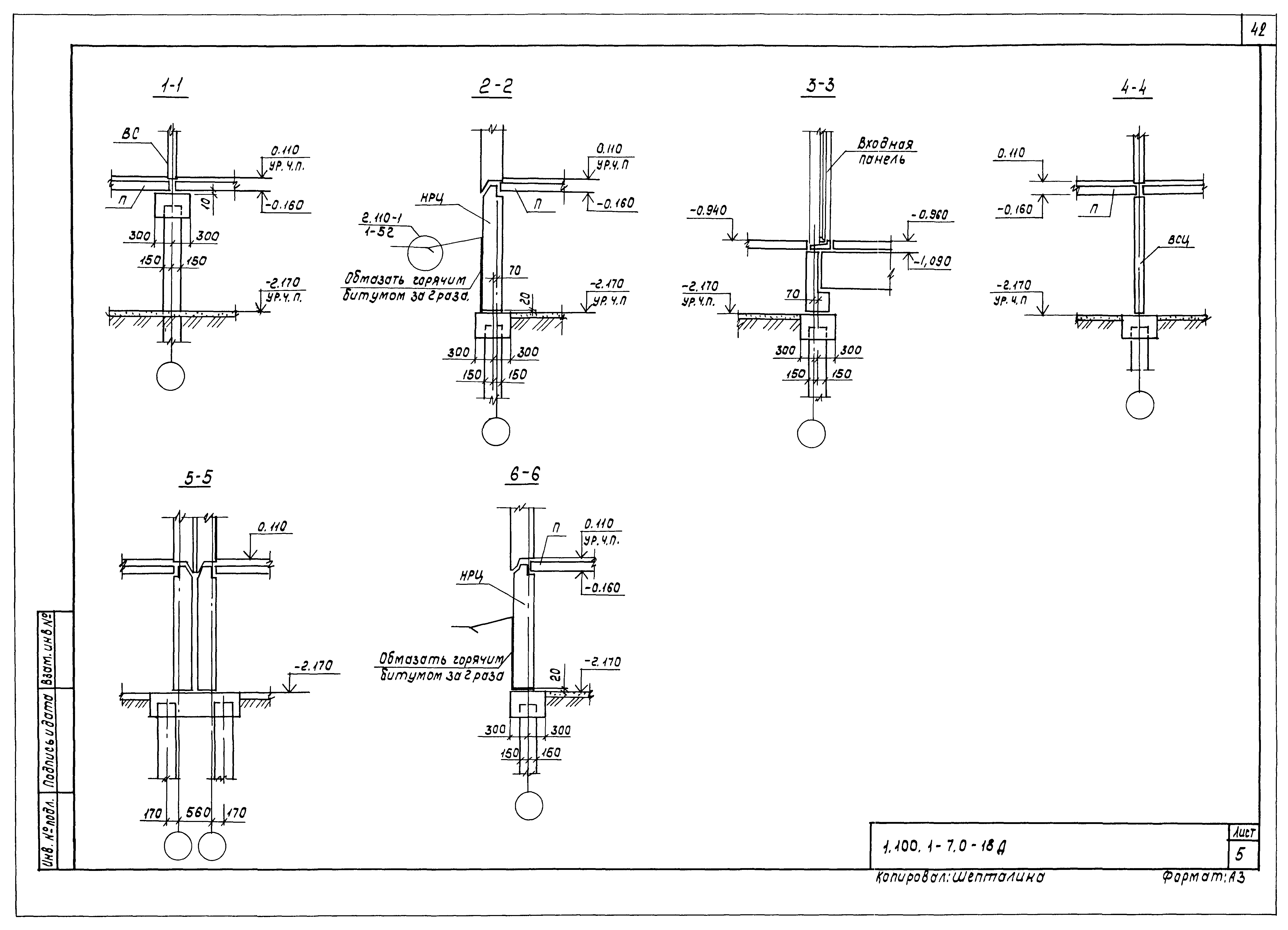
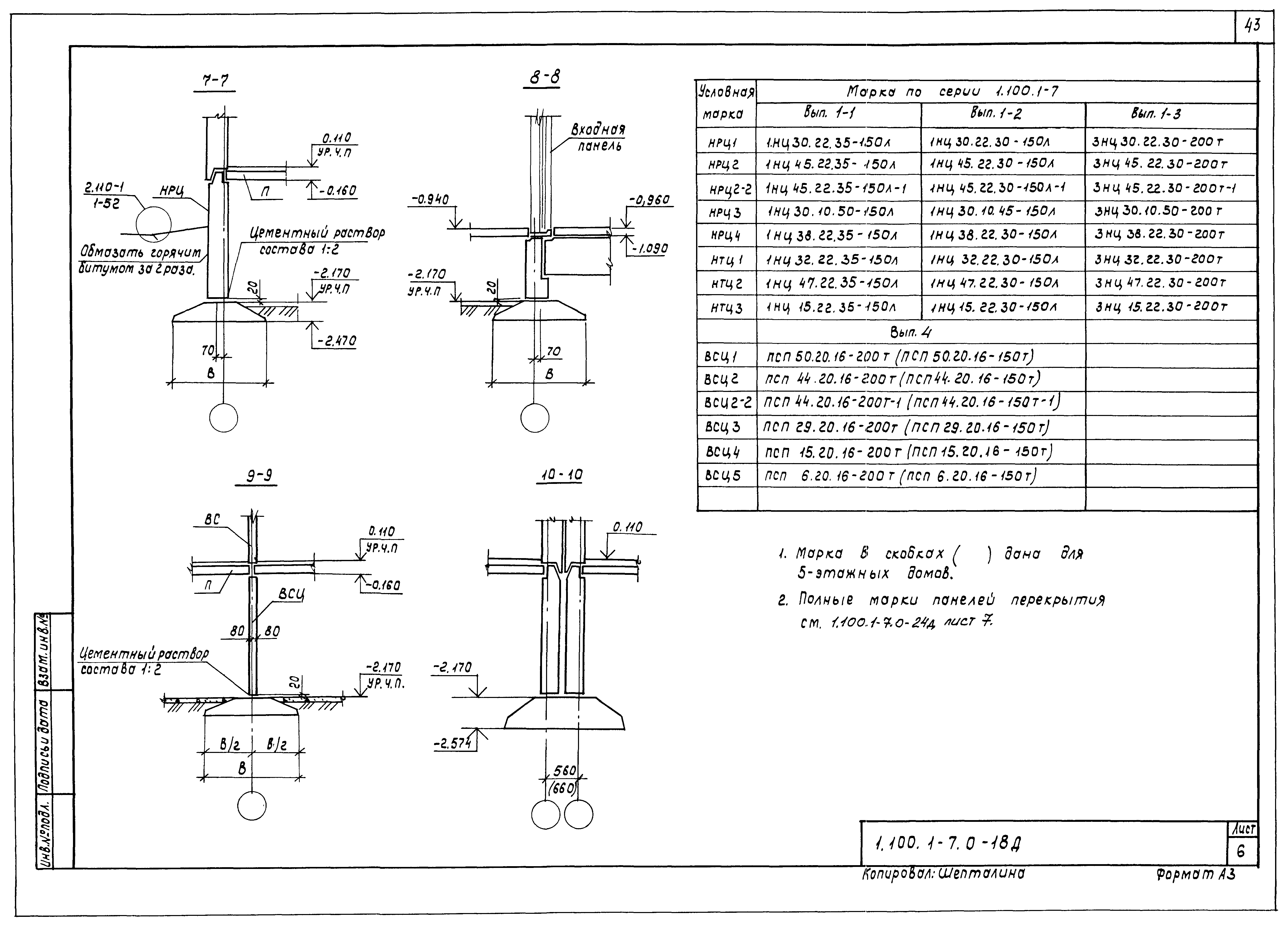
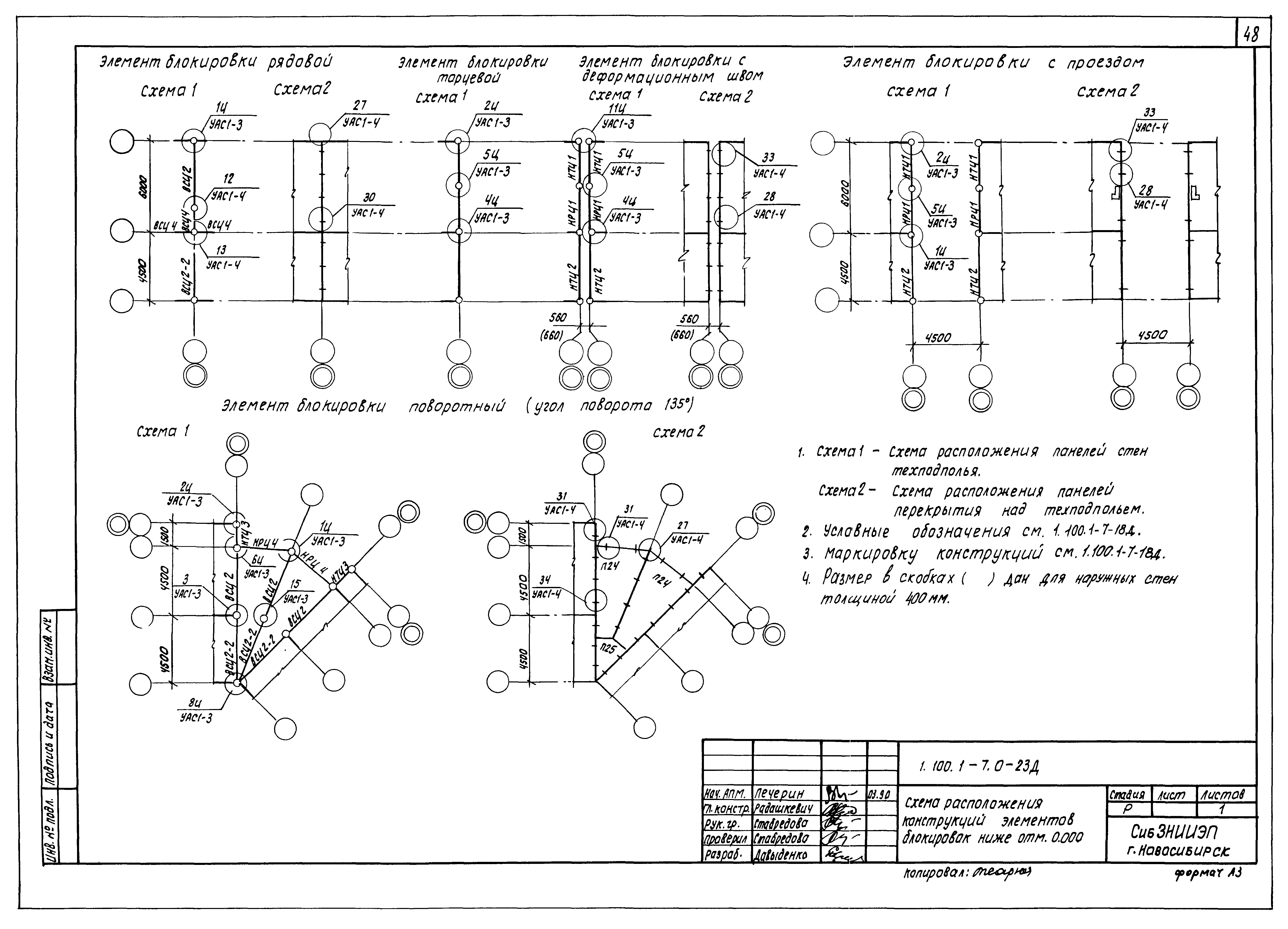
| Оглавление: | 1.100.1-7.0 Содержание 1.100.1-7.0-ПЗ Пояснительная записка 1.100.1-7.0-1Д Варианты градостроительных решений 1.100.1-7.0-2Д Номенклатура укрупненных планировочных элементов 1.100.1-7.0-3Д Принцип формирования блок-секций 1.100.1-7.0-4Д Принцип формирования вариантов архитектурных решений 1.100.1-7.0-5Д Системный каталог квартир 1.100.1-7.0-6Д Номенклатура конструктивно-планировочных ячеек 1.100.1-7.0-7Д Базовые укрупненные планировочные элементы 1.100.1-7.0-8Д Дополнительные укрупненные планировочные элементы 1.100.1-7.0-9Д Варианты базовых планировочных элементов 1.100.1-7.0-10Д Варианты архитектурно-планировочных решений однокомнатных квартир 1.100.1-7.0-11Д Варианты архитектурно-планировочных решений двухкомнатных квартир 1.100.1-7.0-12Д Варианты архитектурно-планировочных решений трехкомнатных квартир 1.100.1-7.0-13Д Варианты архитектурно-планировочных решений четырехкомнатных квартир 1.100.1-7.0-14Д Варианты архитектурно-планировочных решений пятикомнатных квартир 1.100.1-7.0-15Д Планировочные элементы с перспективными типами квартир 1.100.1-7.0-16Д Перспективные типы квартир 1.100.1-7.0-17Д Ситуации расположения панелей стен 1.100.1-7.0-18Д Схемы расположения элементов подземной части 1.100.1-7.0-19Д Схемы расположения элементов типового этажа и чердачного помещения (5-этажная блок-секция) 1.100.1-7.0-20Д Схемы расположения элементов кровли (5-этажная блок-секция) 1.100.1-7.0-21Д Схемы расположения наружных стен (9-этажная блок-секция) 1.100.1-7.0-22Д Схемы расположения конструкций типового этажа (9-этажная блок-секция) 1.100.1-7.0-23Д Схемы расположения конструкций элементов блокировок ниже отм. 0.000 1.100.1-7.0-24Д Схемы расположения конструкций элементов блокировок выше отм. 0.000 |
| Разработан: | СибЗНИИЭП Госгражданстроя |
| Утверждён: | 23.03.1990 Госкомархитектура (46) |























































