Скачать Серия 1.100.1-7 Выпуск 2-6. Панели наружных стен трехслойные легкобетонные толщиной 350 мм. Арматурные и закладные изделия. Рабочие чертежиДата актуализации: 01.01.2021
|
| Обозначение: | Серия 1.100.1-7 |
| Обозначение англ: | Series 1.100.1-7 |
| Статус: | действует |
| Название рус.: | Выпуск 2-6. Панели наружных стен трехслойные легкобетонные толщиной 350 мм. Арматурные и закладные изделия. Рабочие чертежи |
| Дата добавления в базу: | 01.09.2013 |
| Дата актуализации: | 01.01.2021 |
| Дата введения: | 30.04.1990 |
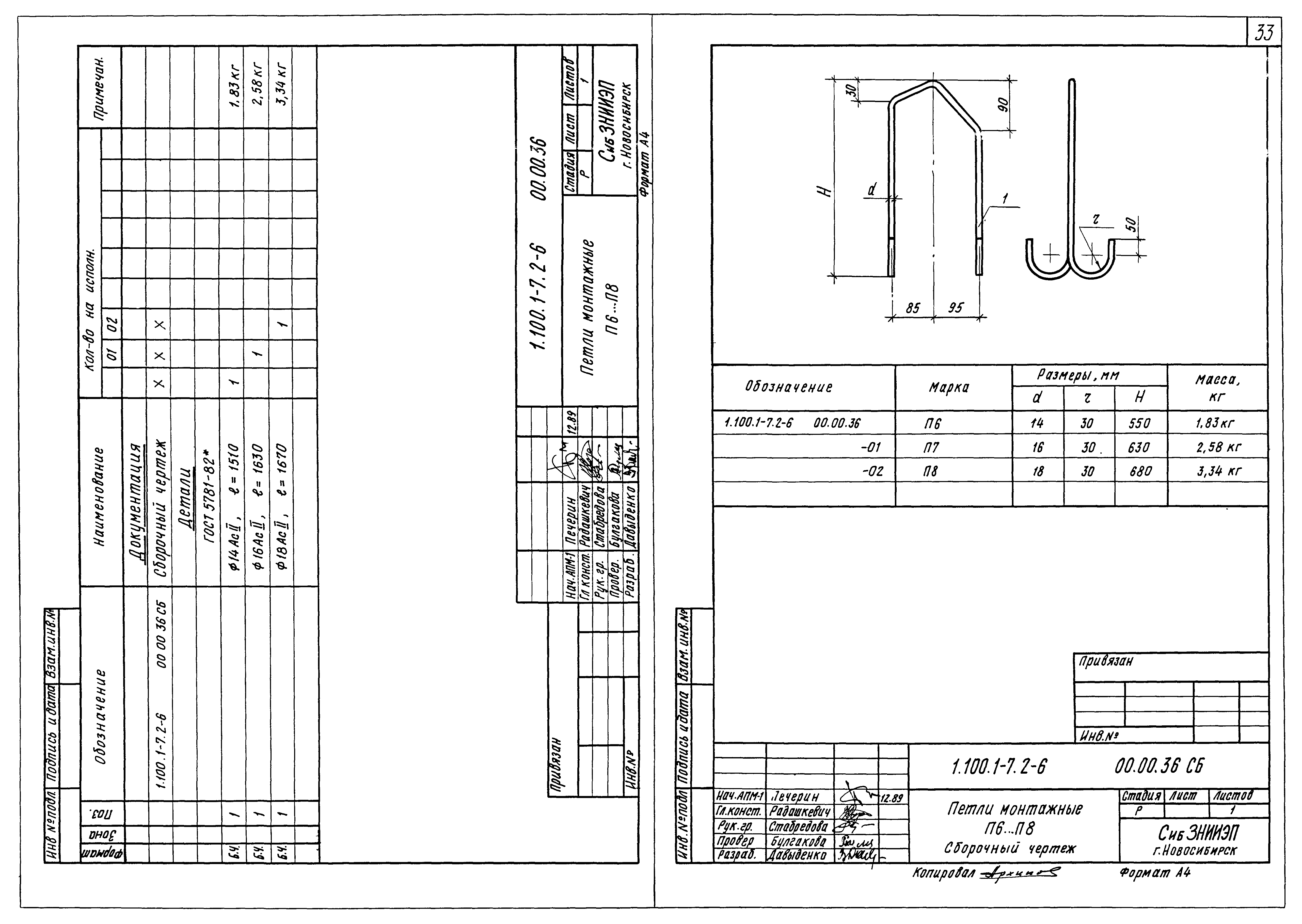
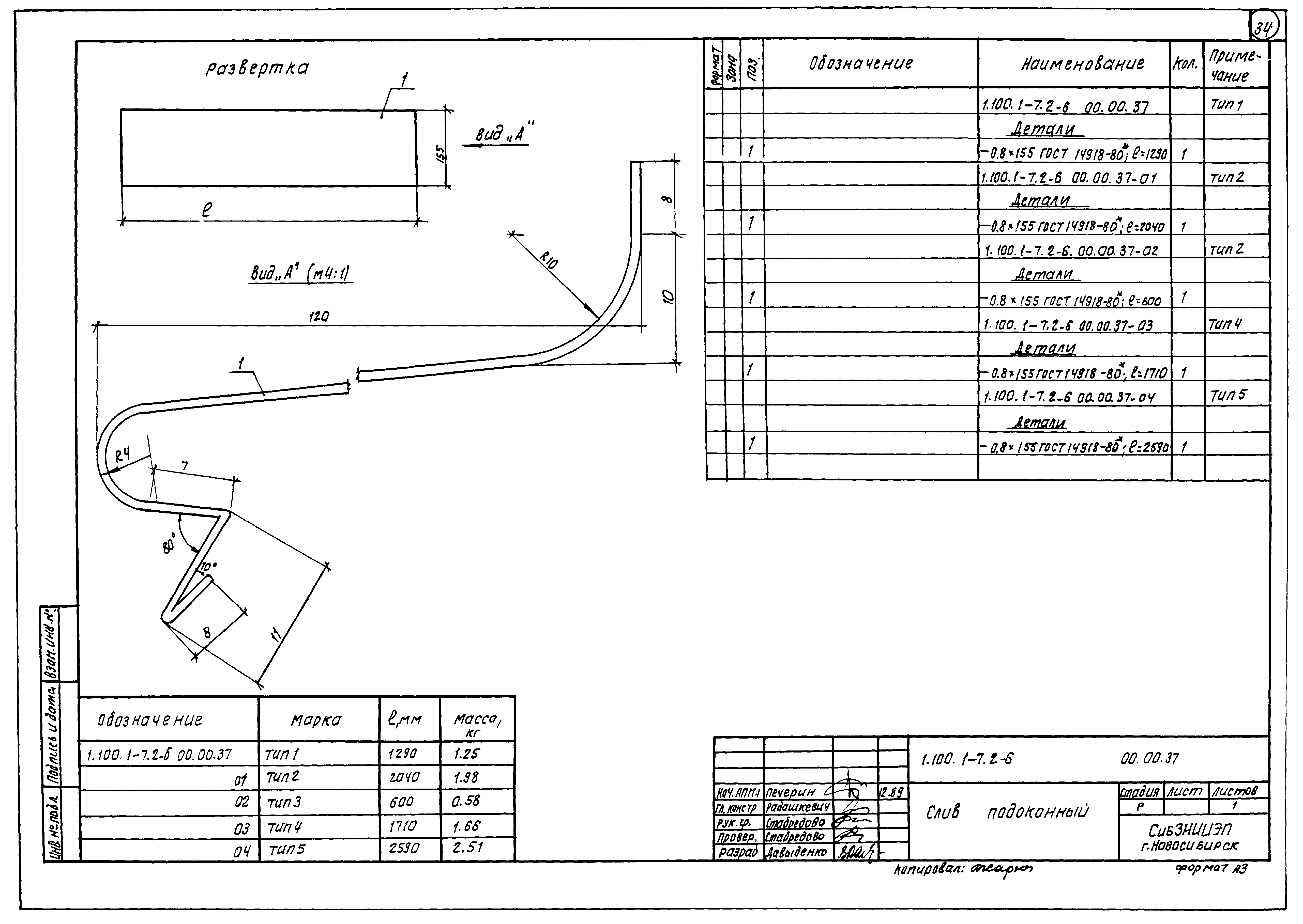
| Оглавление: | 1.100.1-7.2-6 00.00.00 Содержание 1.100.1-7.2-6 00.00.01 Каркас КР1-КР5 1.100.1-7.2-6 00.00.02 Каркас КР1,КР10,КР17,КР20. Отдельный стержень ОС1 1.100.1-7.2-6 00.00.03 Каркас КР8,КР35,КР39 1.100.1-7.2-6 00.00.04 Каркас КР9,КР13,КР15,КР16 1.100.1-7.2-6 00.00.05 Каркас КР11,КР12,КР14,КР19,КР21,КР30 1.100.1-7.2-6 00.00.06 Каркас КР18,КР31,КР32 1.100.1-7.2-6 00.00.07 Каркас КР22...КР24 1.100.1-7.2-6 00.00.08 Каркас КР25...КР27 1.100.1-7.2-6 00.00.09 Каркас КР28,КР29,КР49 1.100.1-7.2-6 00.00.10 Каркас КР34...КР36,КР46 1.100.1-7.2-6 00.00.11 Каркас КР37,КР38,КР50,КР52,КР53 1.100.1-7.2-6 00.00.12 Каркас КР40...КР42,КР51 1.100.1-7.2-6 00.00.13 Каркас КР43...КР45 1.100.1-7.2-6 00.00.14 Каркас КР47...КР49 1.100.1-7.2-6 00.00.15 Сетка С1...С5 1.100.1-7.2-6 00.00.16 Сетка С6,С7,С9-С12 1.100.1-7.2-6 00.00.17 Сетка С13...С18 1.100.1-7.2-6 00.00.18 Сетка С19...С24 1.100.1-7.2-6 00.00.19 Каркас ПК1...ПК6 1.100.1-7.2-6 00.00.20 Каркас ПК7...ПК9 1.100.1-7.2-6 00.00.21 Сетка ПС1...ПС6 1.100.1-7.2-6 00.00.22 Сетка ПС7...ПС9,С25,С26 1.100.1-7.2-6 00.00.23 Анкер А1 1.100.1-7.2-6 00.00.24 Анкер А2 1.100.1-7.2-6 00.00.25 Анкер А3 1.100.1-7.2-6 00.00.26 Анкер А4 1.100.1-7.2-6 00.00.27 Изделие закладное М1 1.100.1-7.2-6 00.00.28 Изделие закладное М2 1.100.1-7.2-6 00.00.29 Изделие закладное М3 1.100.1-7.2-6 00.00.30 Изделие закладное М4 1.100.1-7.2-6 00.00.31 Изделие закладное М5 1.100.1-7.2-6 00.00.32 Изделие закладное М6 1.100.1-7.2-6 00.00.33 Изделие закладное М7 1.100.1-7.2-6 00.00.34 Изделие закладное М8 1.100.1-7.2-6 00.00.35 Петли монтажные П1...П5 1.100.1-7.2-6 00.00.35 СБ Петли монтажные П1...П5. Сборочный чертеж 1.100.1-7.2-6 00.00.36 Петли монтажные П6...П8 1.100.1-7.2-6 00.00.36 СБ Петли монтажные П6...П8. Сборочный чертеж 1.100.1-7.2-6 00.00.37 Подоконный слив |
| Разработан: | СибЗНИИЭП Госгражданстроя |
| Утверждён: | 23.03.1990 Госкомархитектура (46) |

































