Скачать Серия 1.100.1-7 Выпуск 2-7. Панели наружных стен трехслойные из тяжелого бетона с эффективным утеплителем толщиной 400 мм. Детали. Рабочие чертежиДата актуализации: 01.01.2021
|
| Обозначение: | Серия 1.100.1-7 |
| Обозначение англ: | Series 1.100.1-7 |
| Статус: | действует |
| Название рус.: | Выпуск 2-7. Панели наружных стен трехслойные из тяжелого бетона с эффективным утеплителем толщиной 400 мм. Детали. Рабочие чертежи |
| Дата добавления в базу: | 01.09.2013 |
| Дата актуализации: | 01.01.2021 |
| Дата введения: | 30.04.1990 |
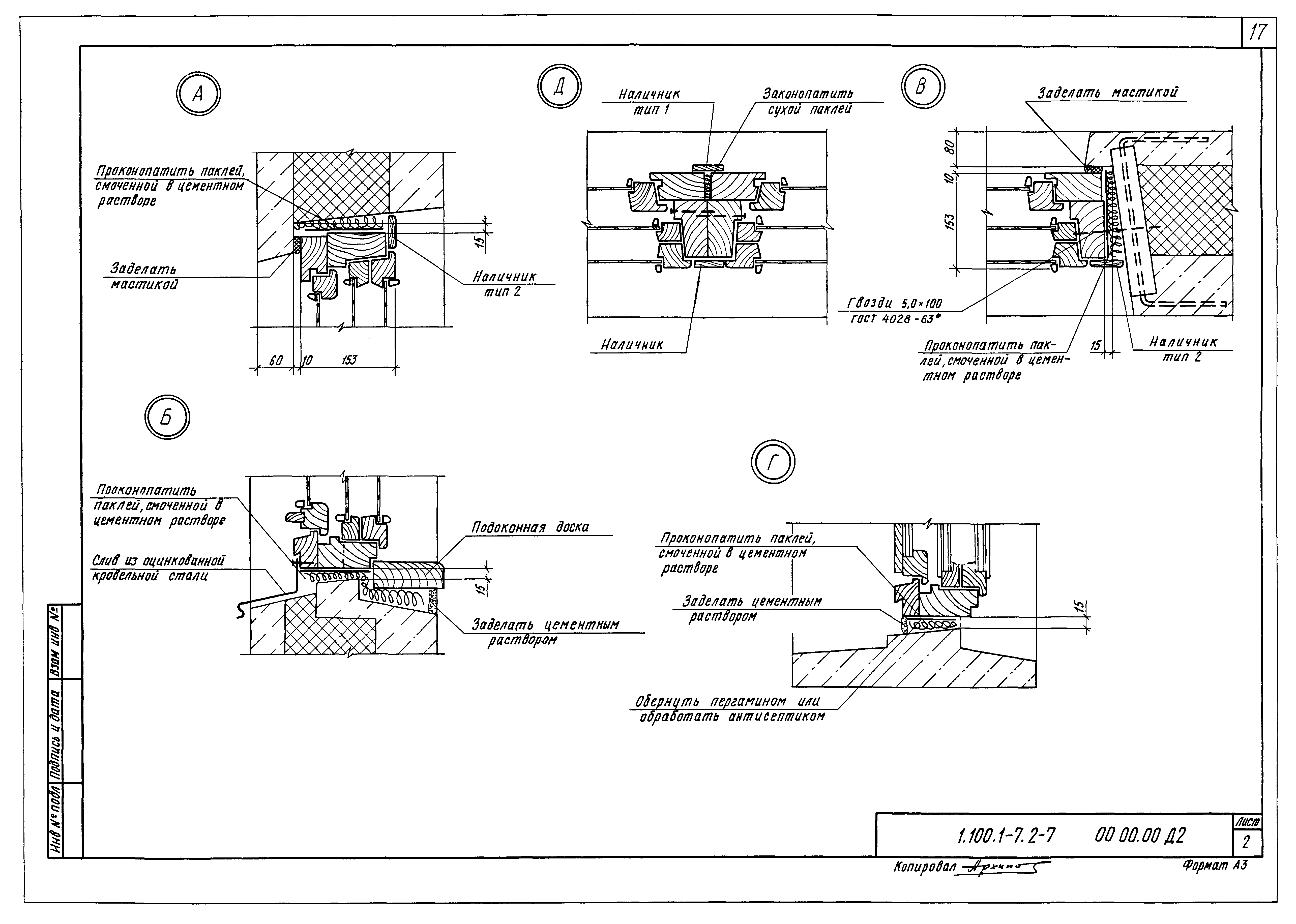
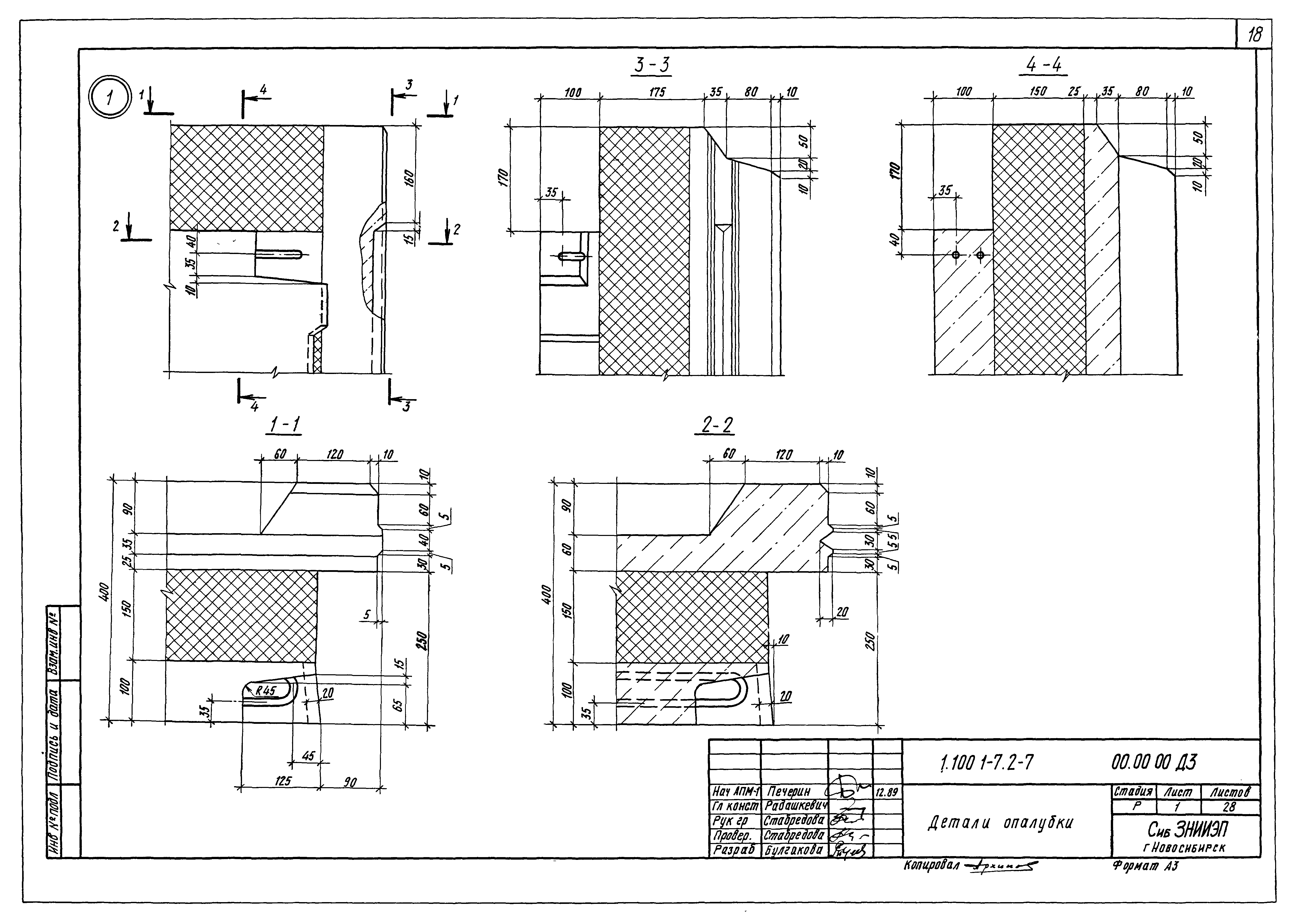
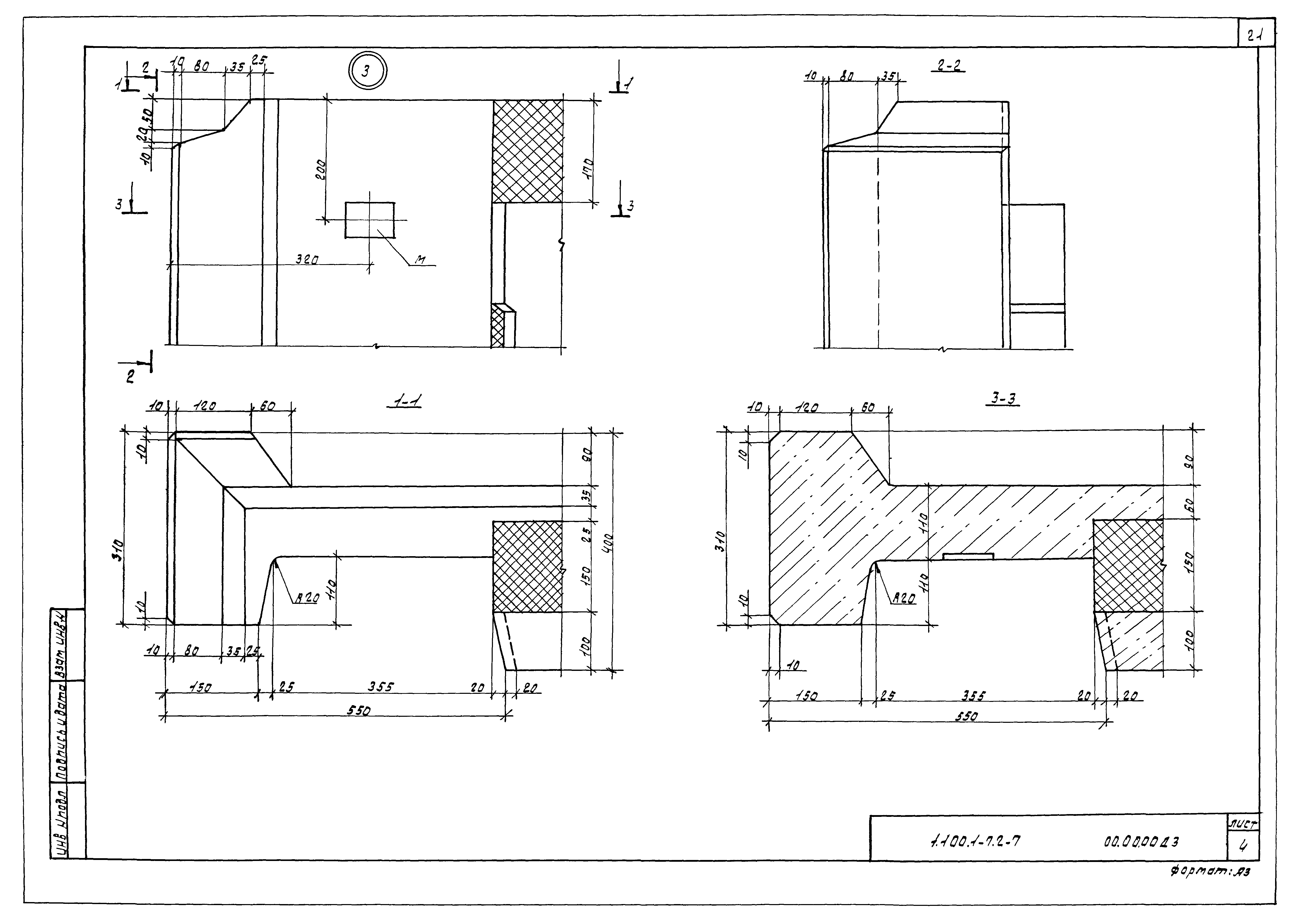
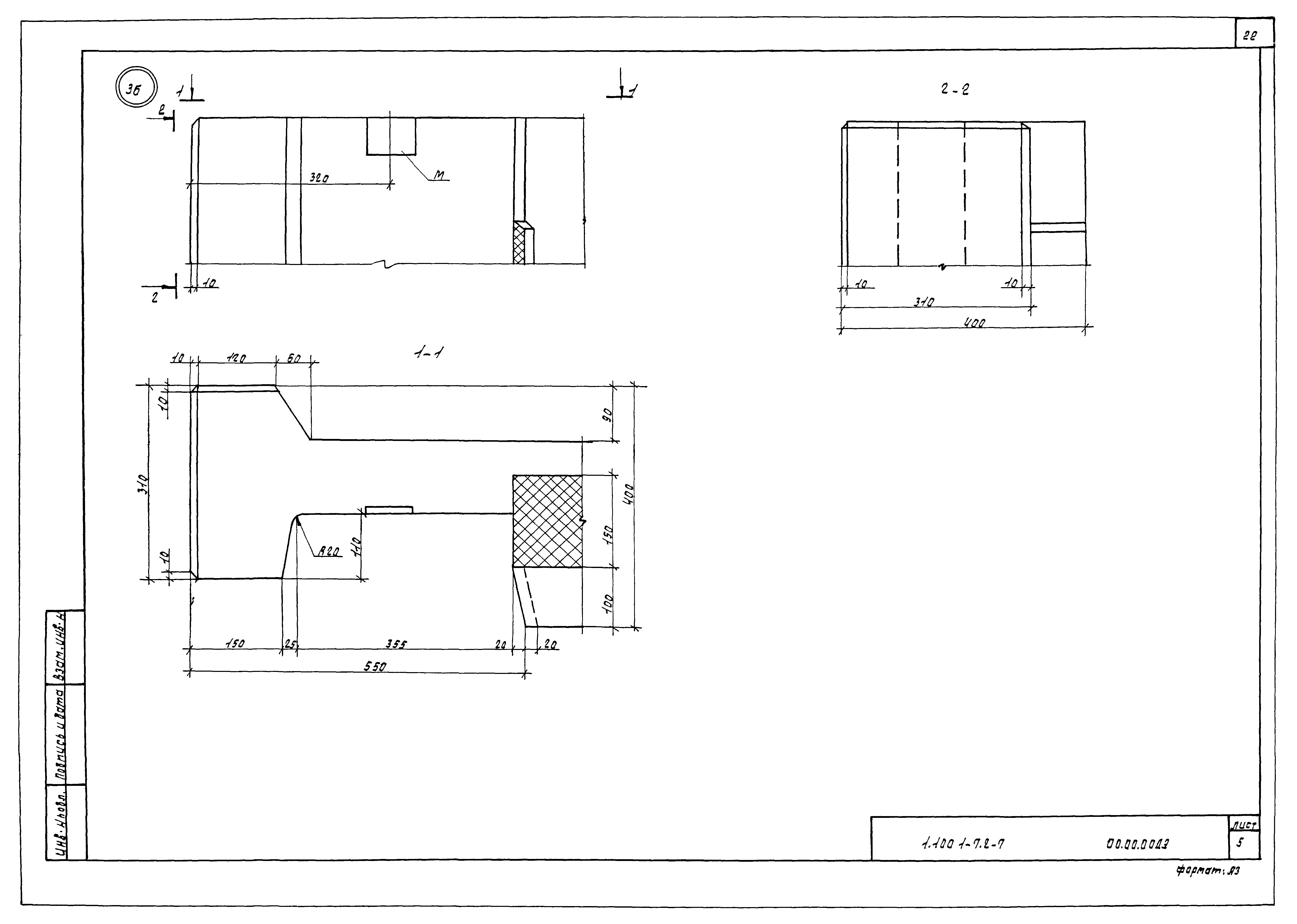
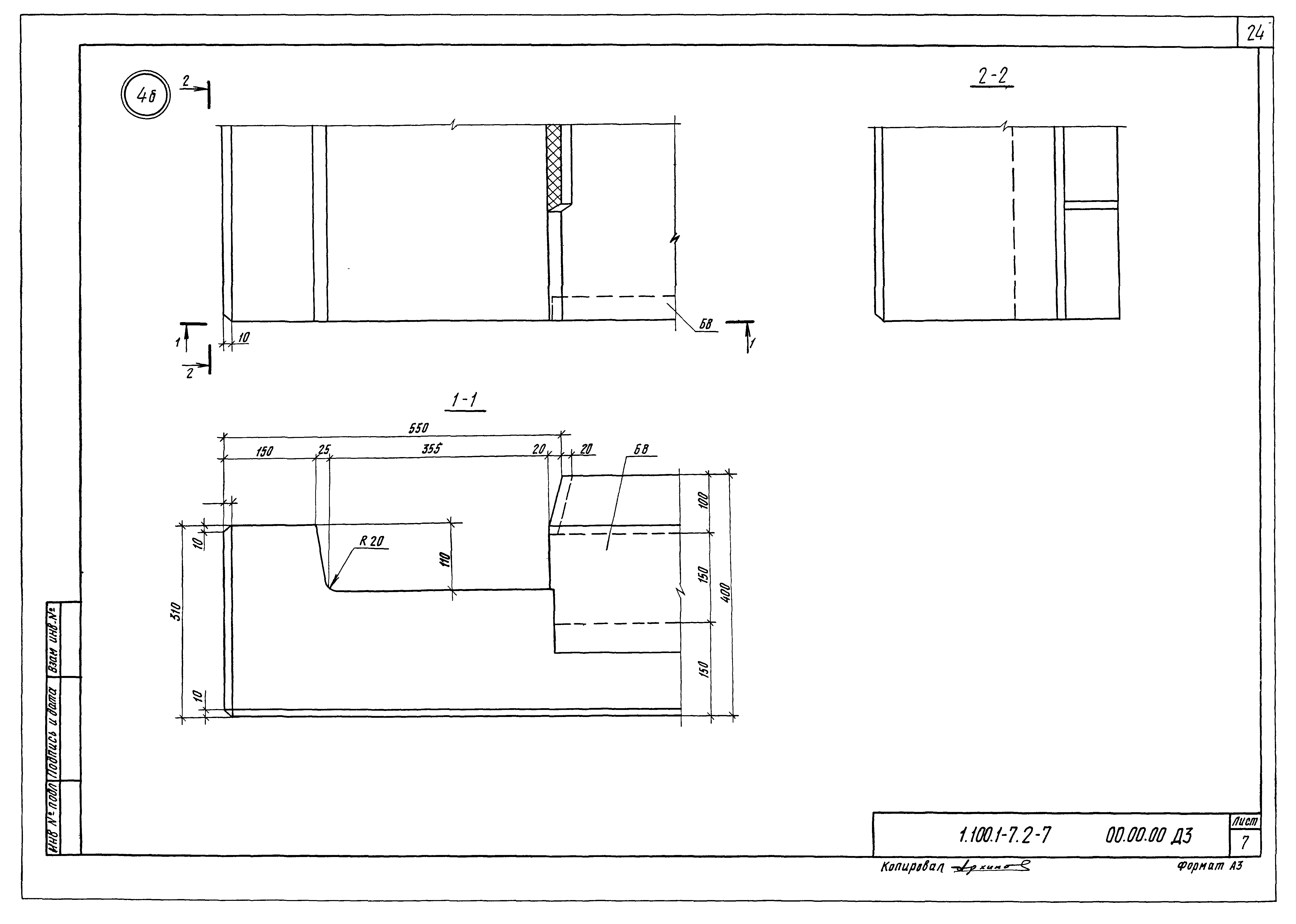
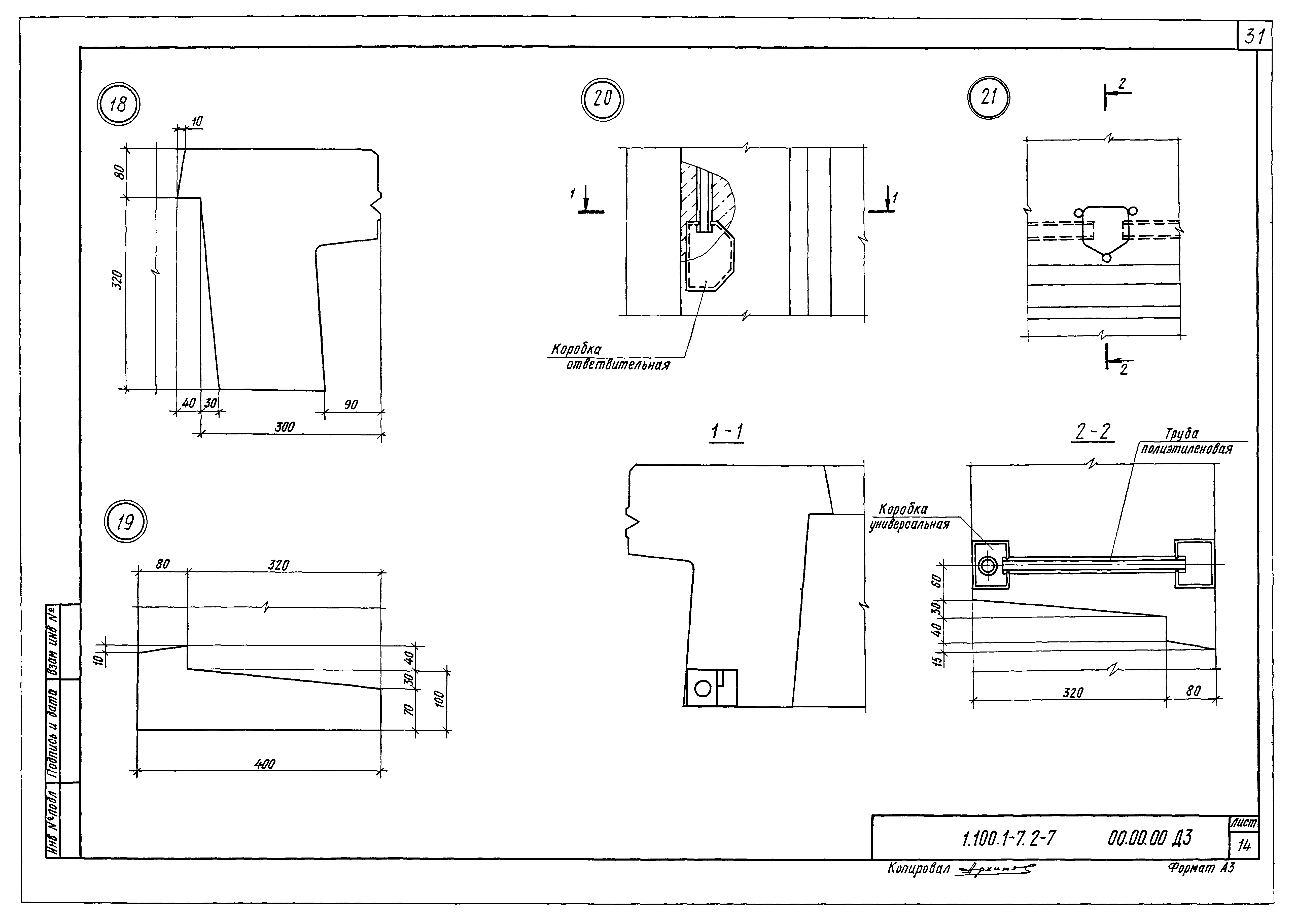
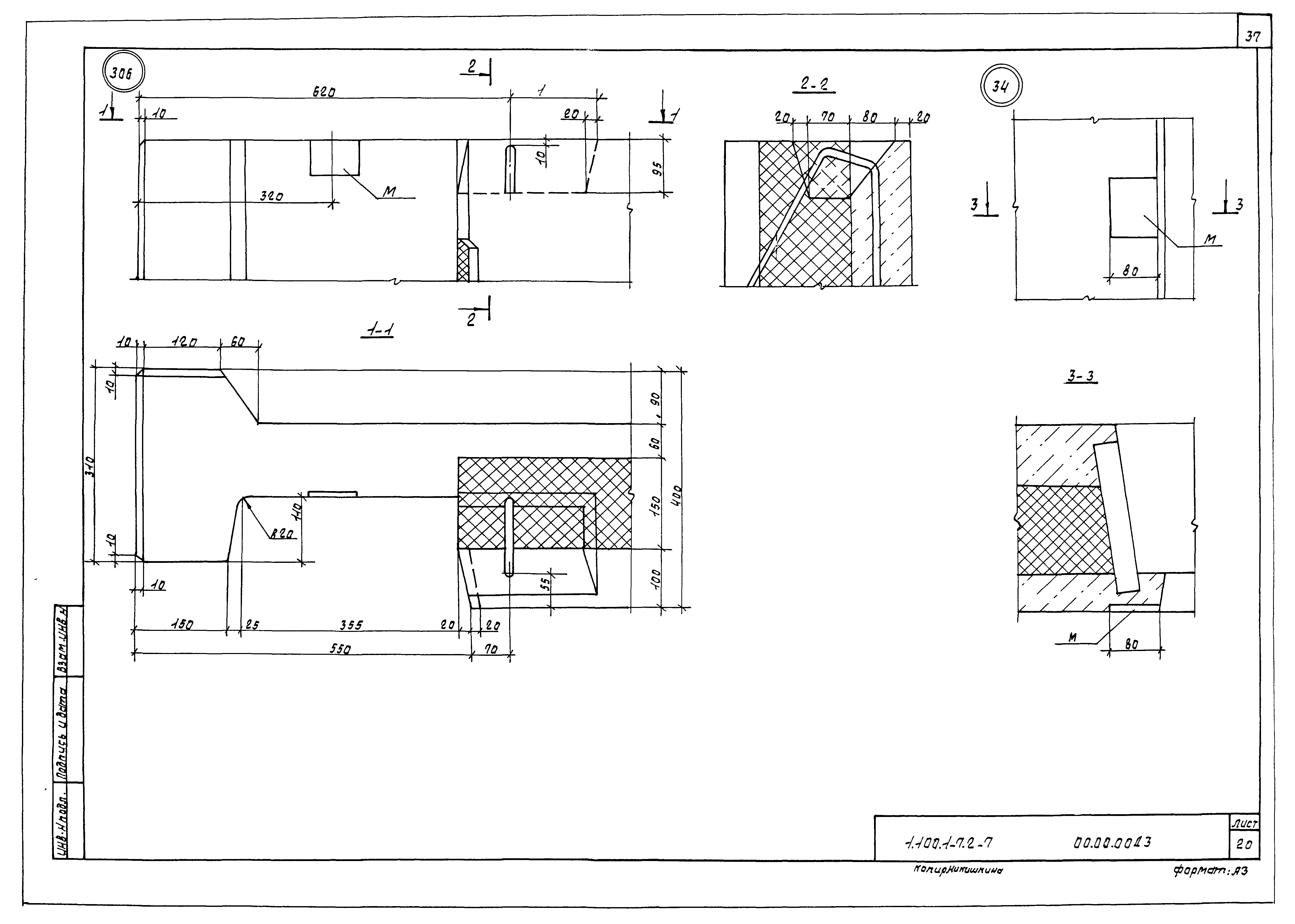
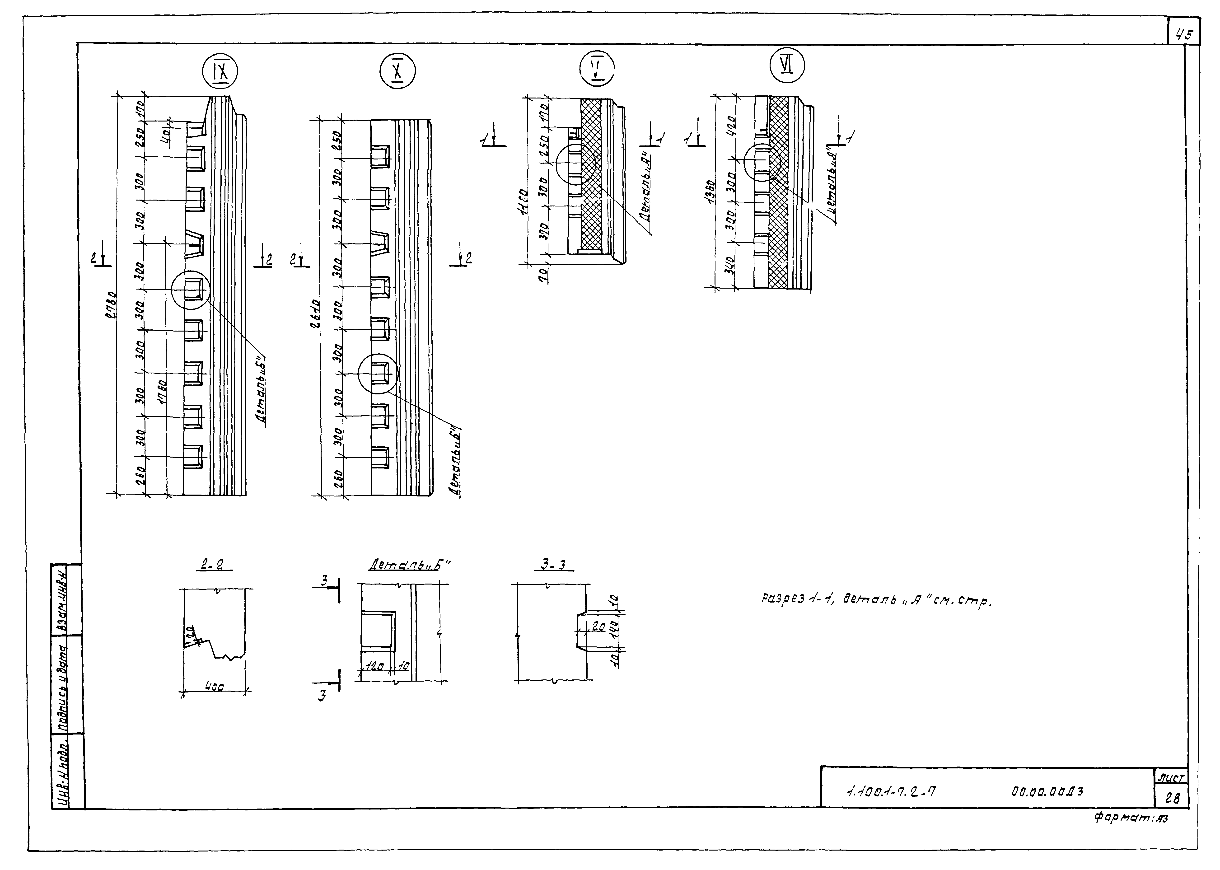
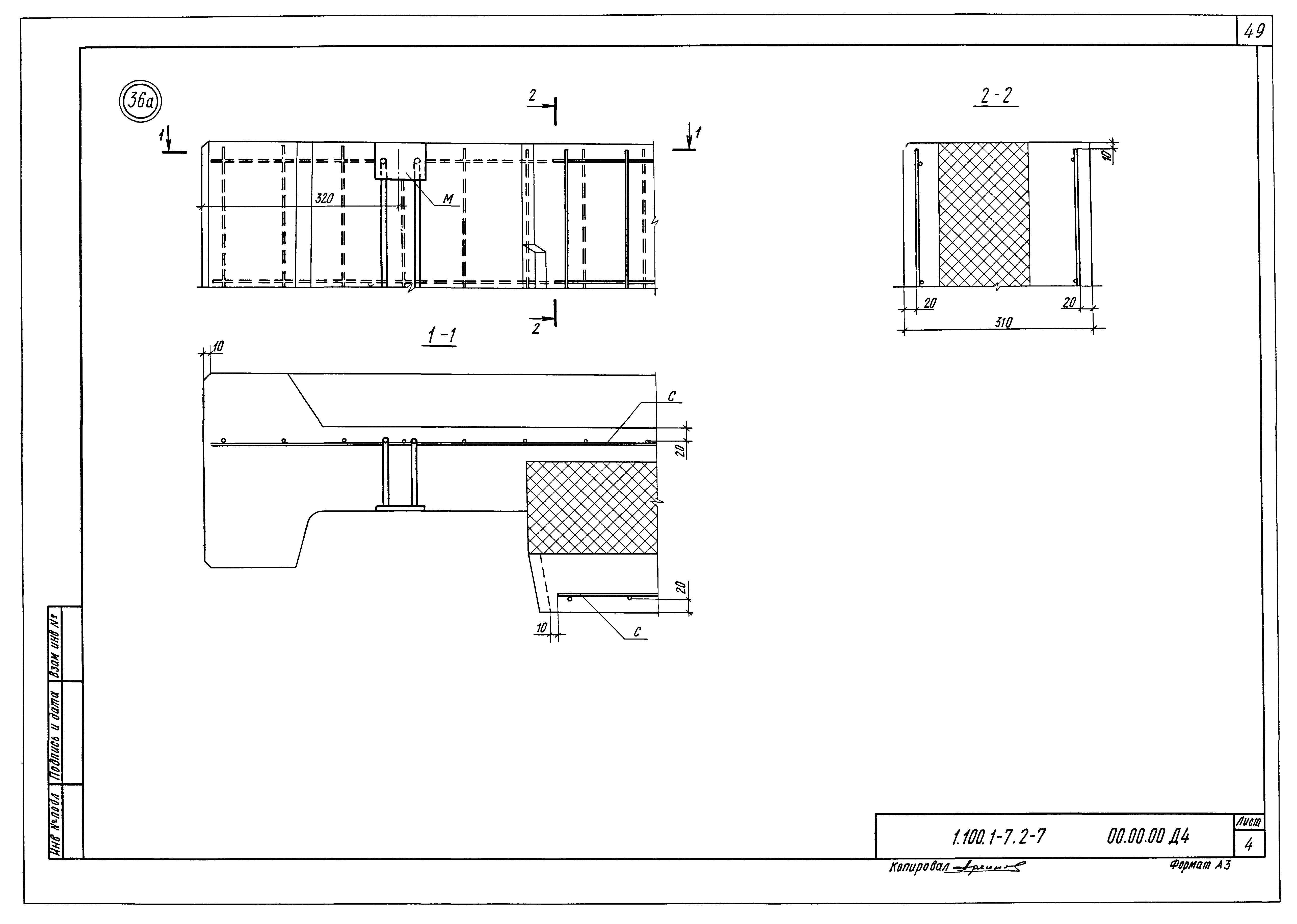
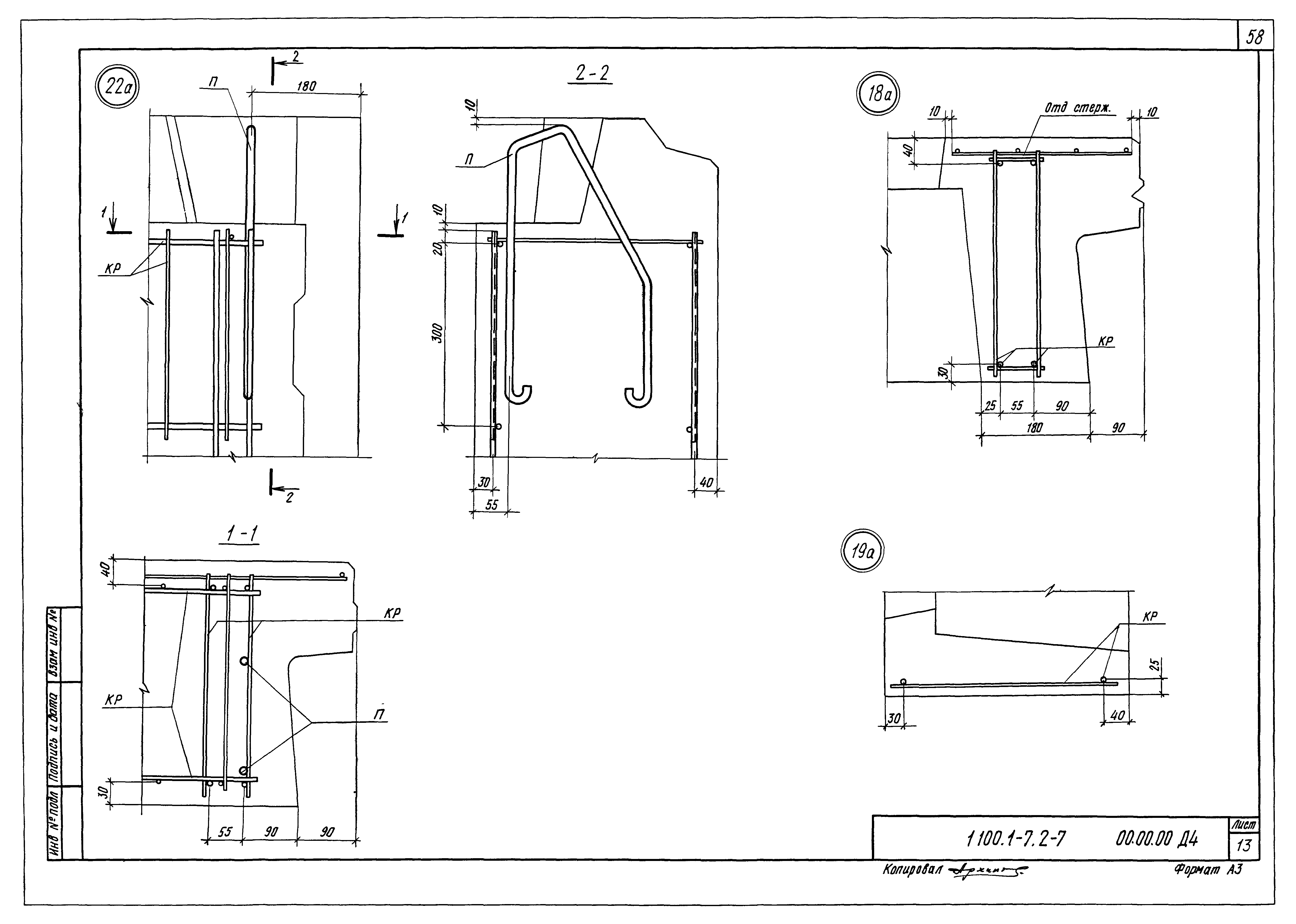
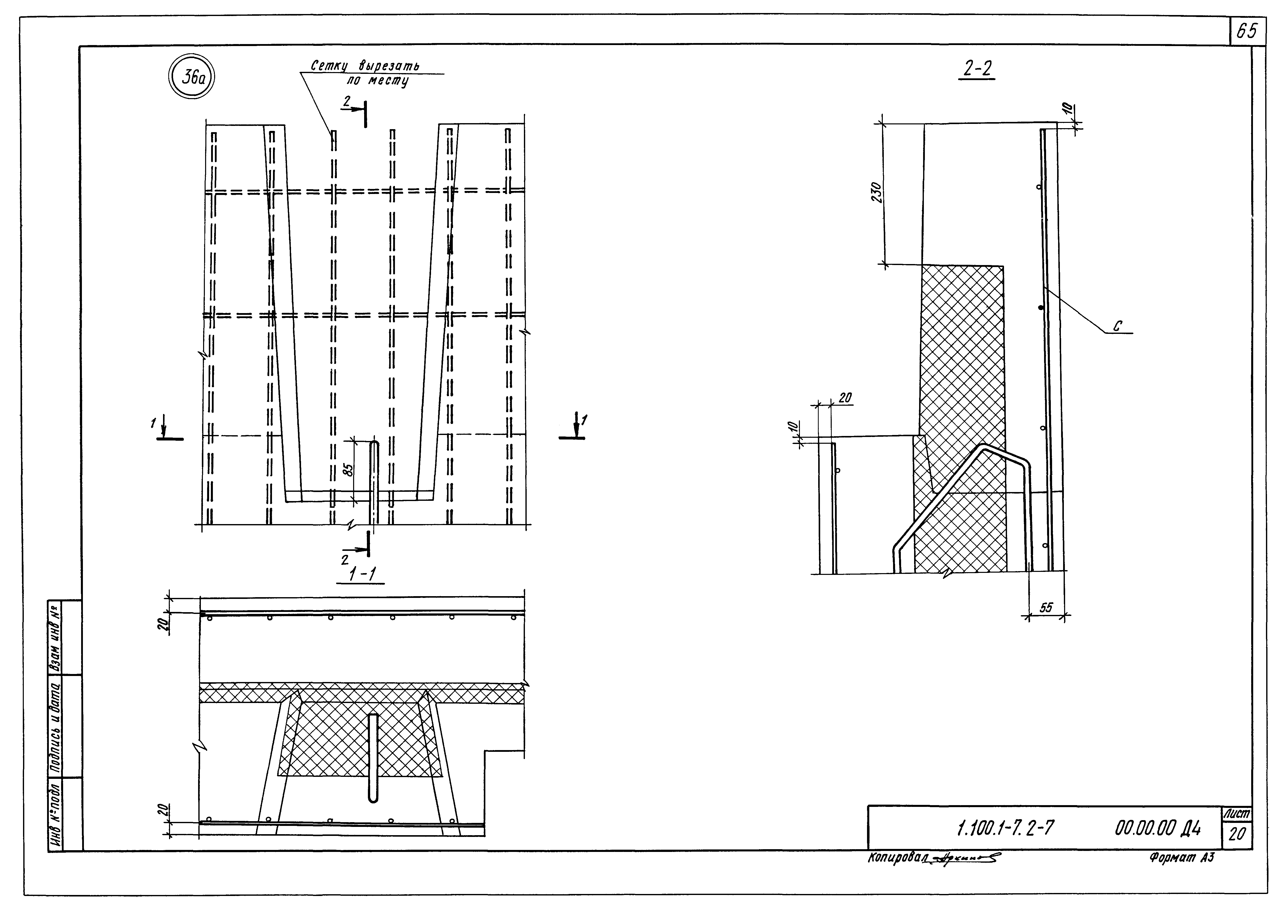
| Оглавление: | 1.100.1-7.2-7 00.00.00 Содержание 1.100.1-7.2-7 00.00.00ТО Техническое описание 1.100.1-7.2-7 00.00.00Д1 Схемы видов панелей 1.100.1-7.2-7 00.00.00Д2 Узлы заполнения проемов 1.100.1-7.2-7 00.00.00Д3 Детали опалубки 1.100.1-7.2-7 00.00.00Д4 Детали армирования |
| Разработан: | СибЗНИИЭП Госгражданстроя |
| Утверждён: | 23.03.1990 Госкомархитектура (46) |

































































