Скачать Серия 1.100.1-7 Выпуск 6-1. Изделия доборные бетонные и железобетонные. Рабочие чертежиДата актуализации: 01.01.2021
|
| Обозначение: | Серия 1.100.1-7 |
| Обозначение англ: | Series 1.100.1-7 |
| Статус: | действует |
| Название рус.: | Выпуск 6-1. Изделия доборные бетонные и железобетонные. Рабочие чертежи |
| Дата добавления в базу: | 01.09.2013 |
| Дата актуализации: | 01.01.2021 |
| Дата введения: | 30.04.1990 |
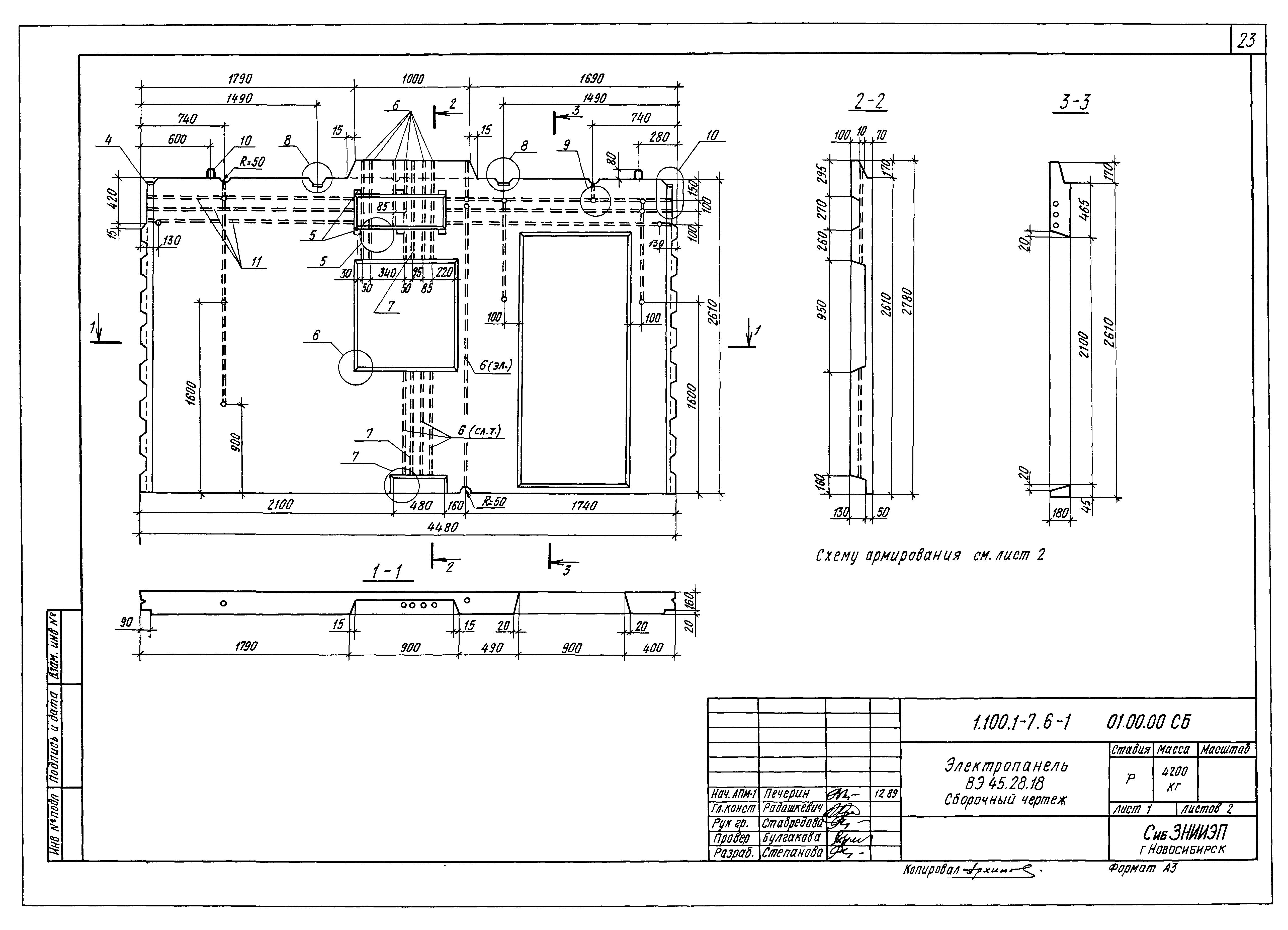
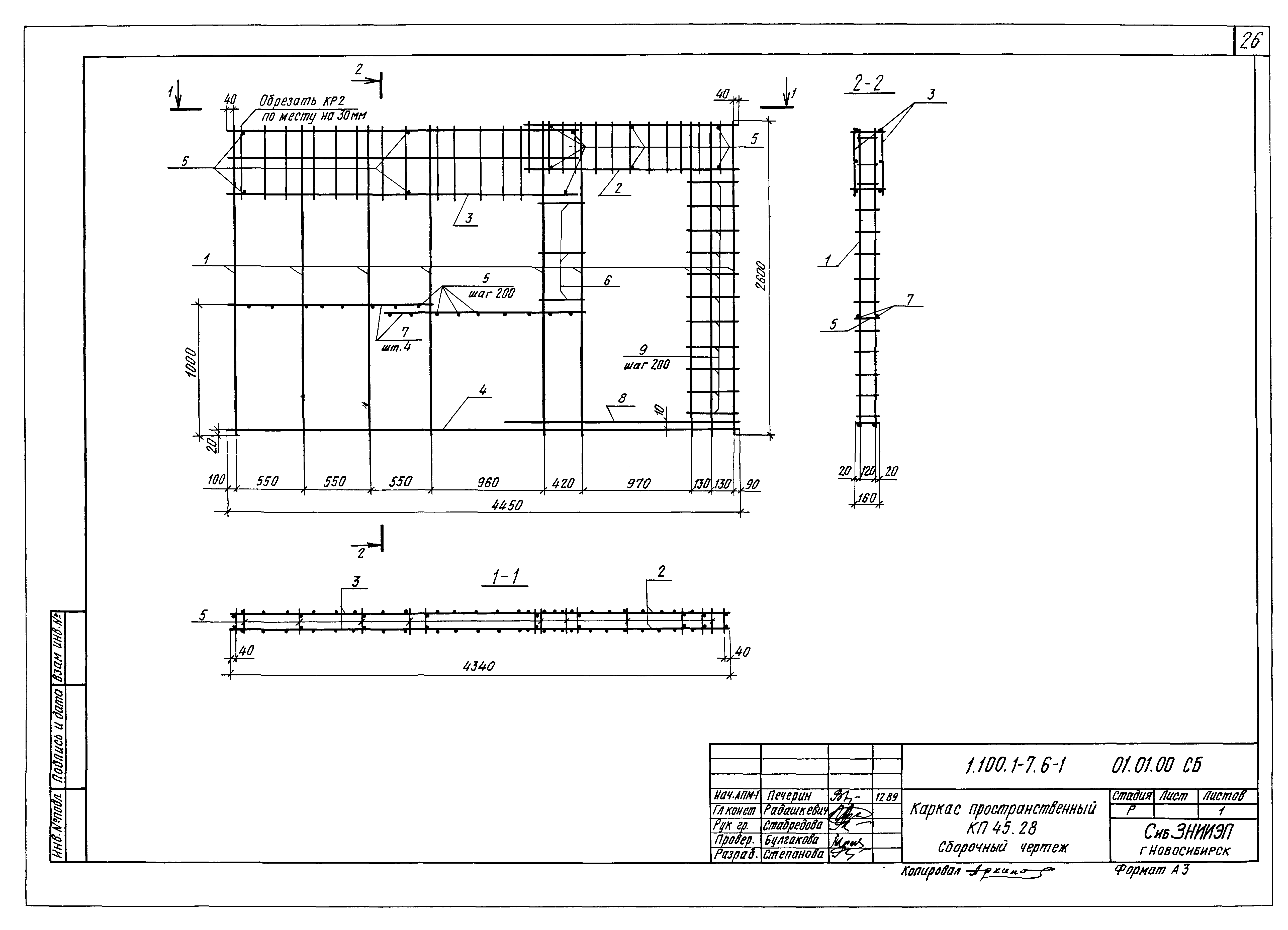
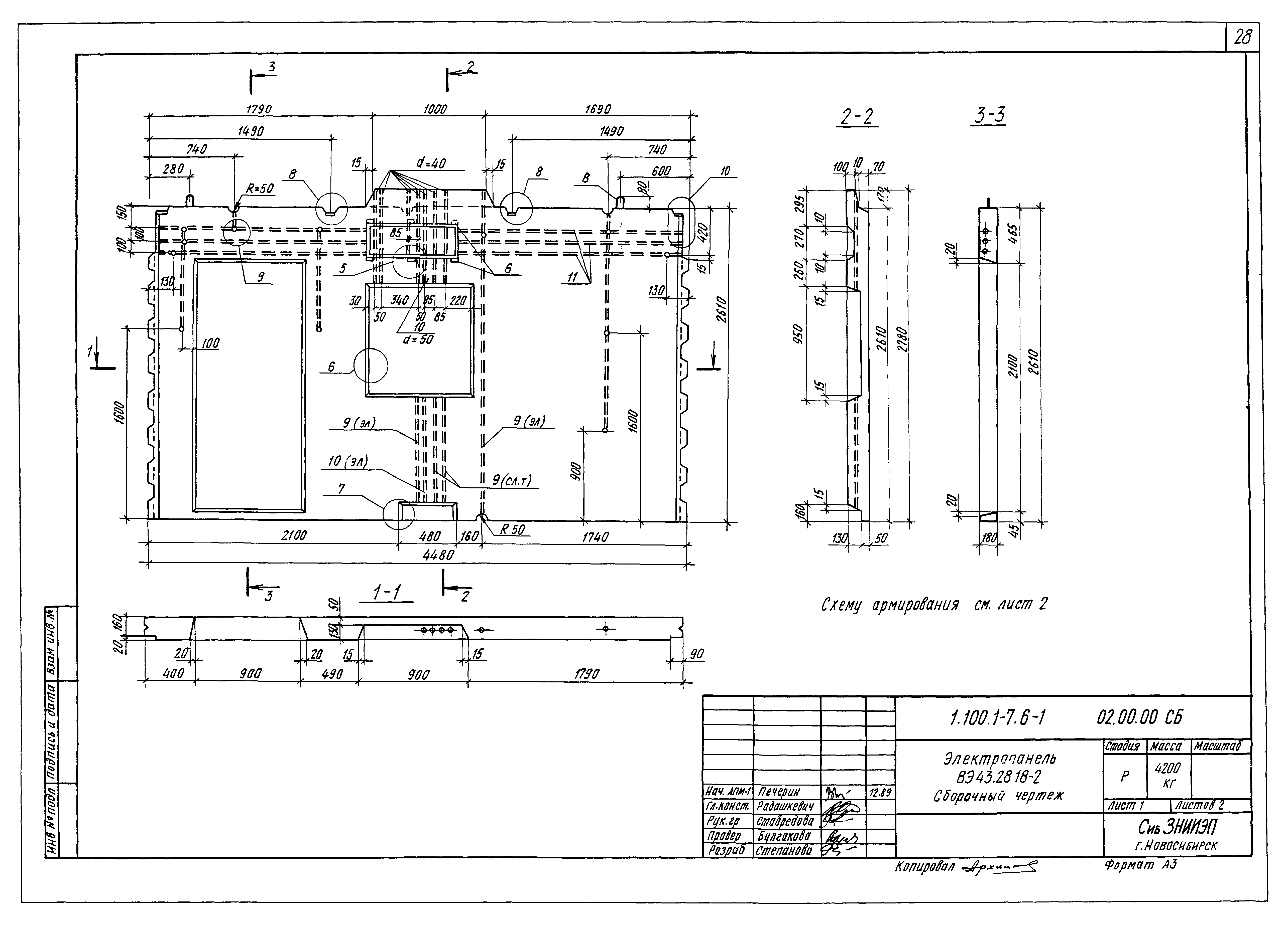
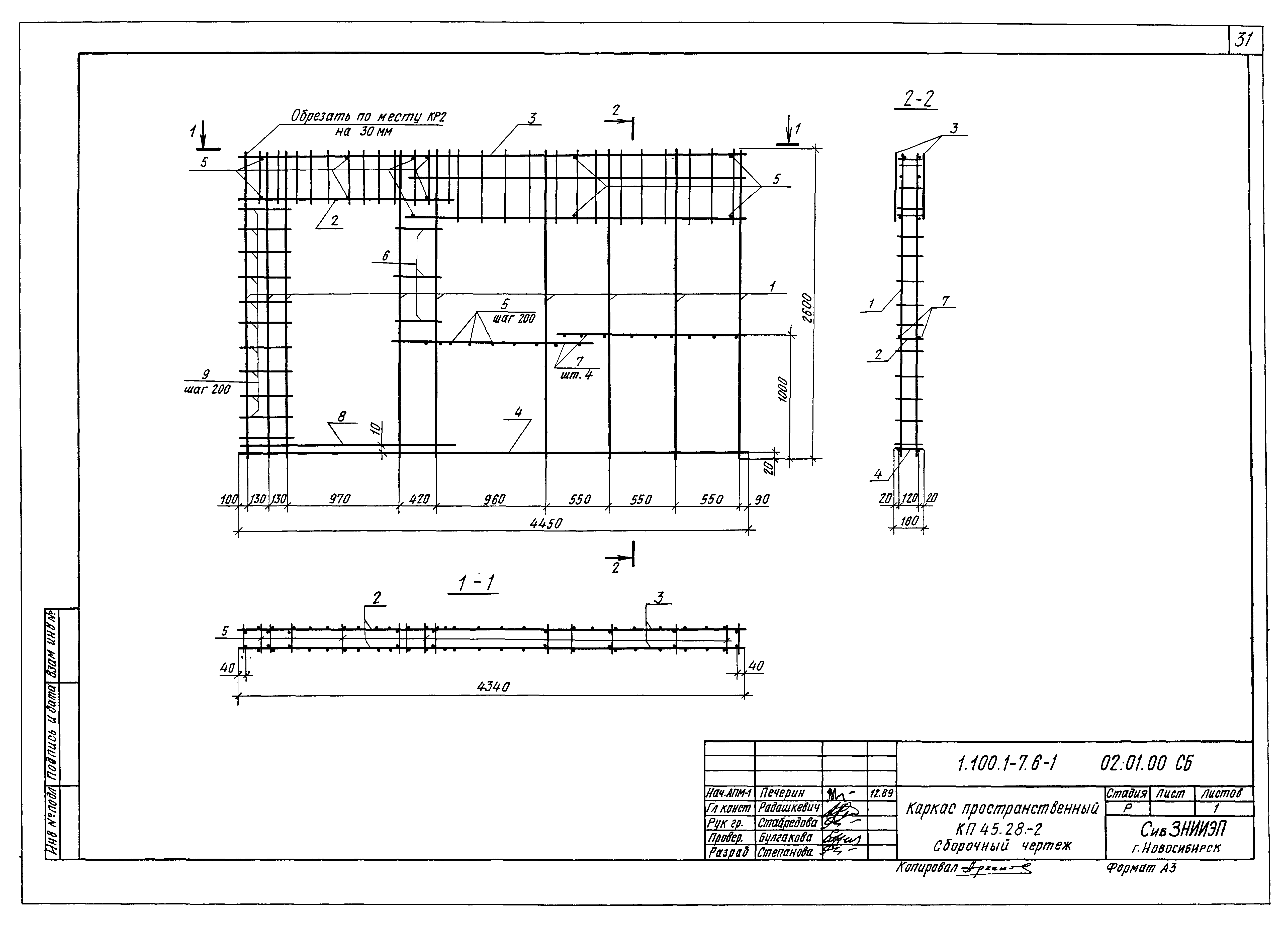
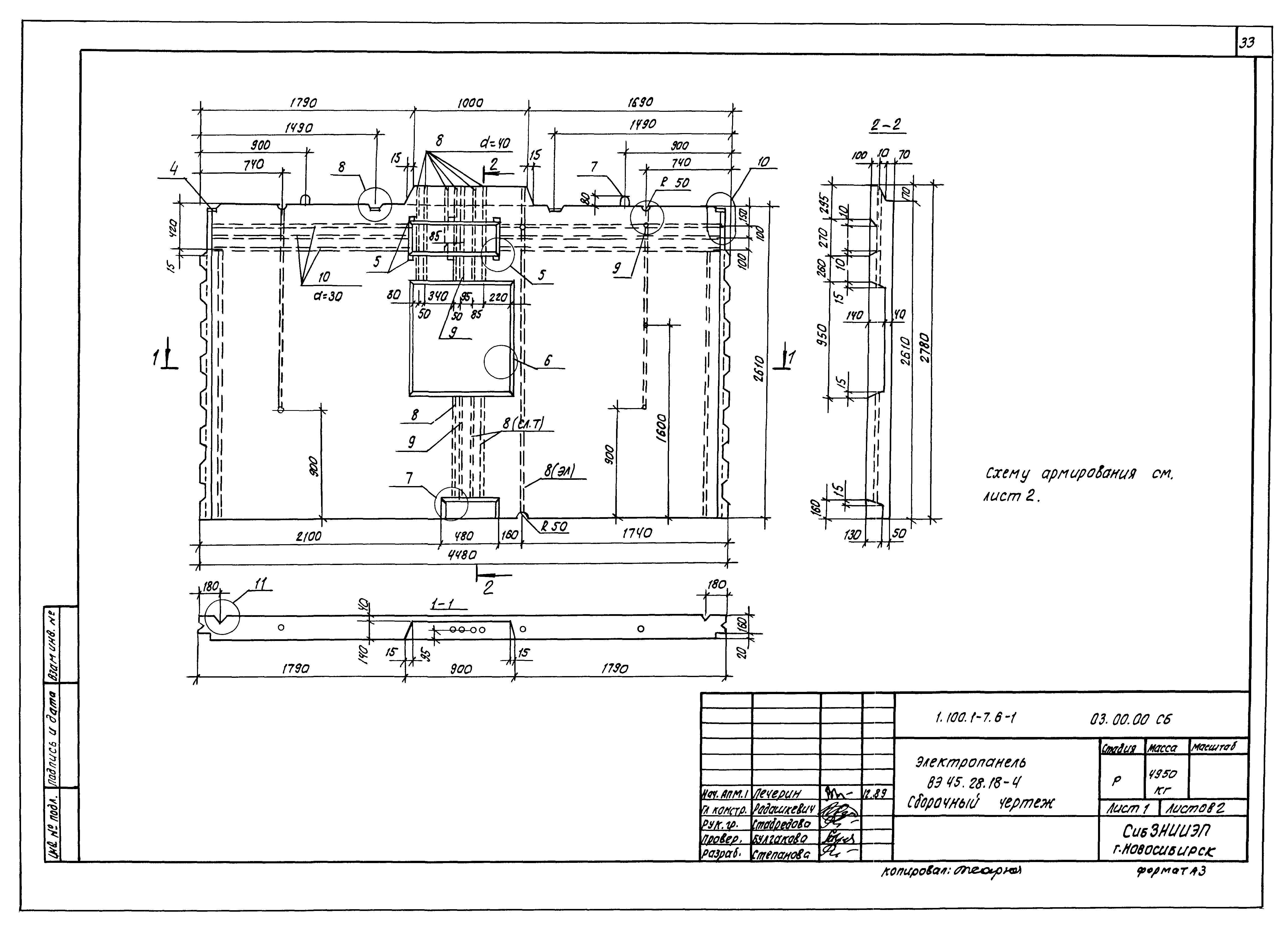
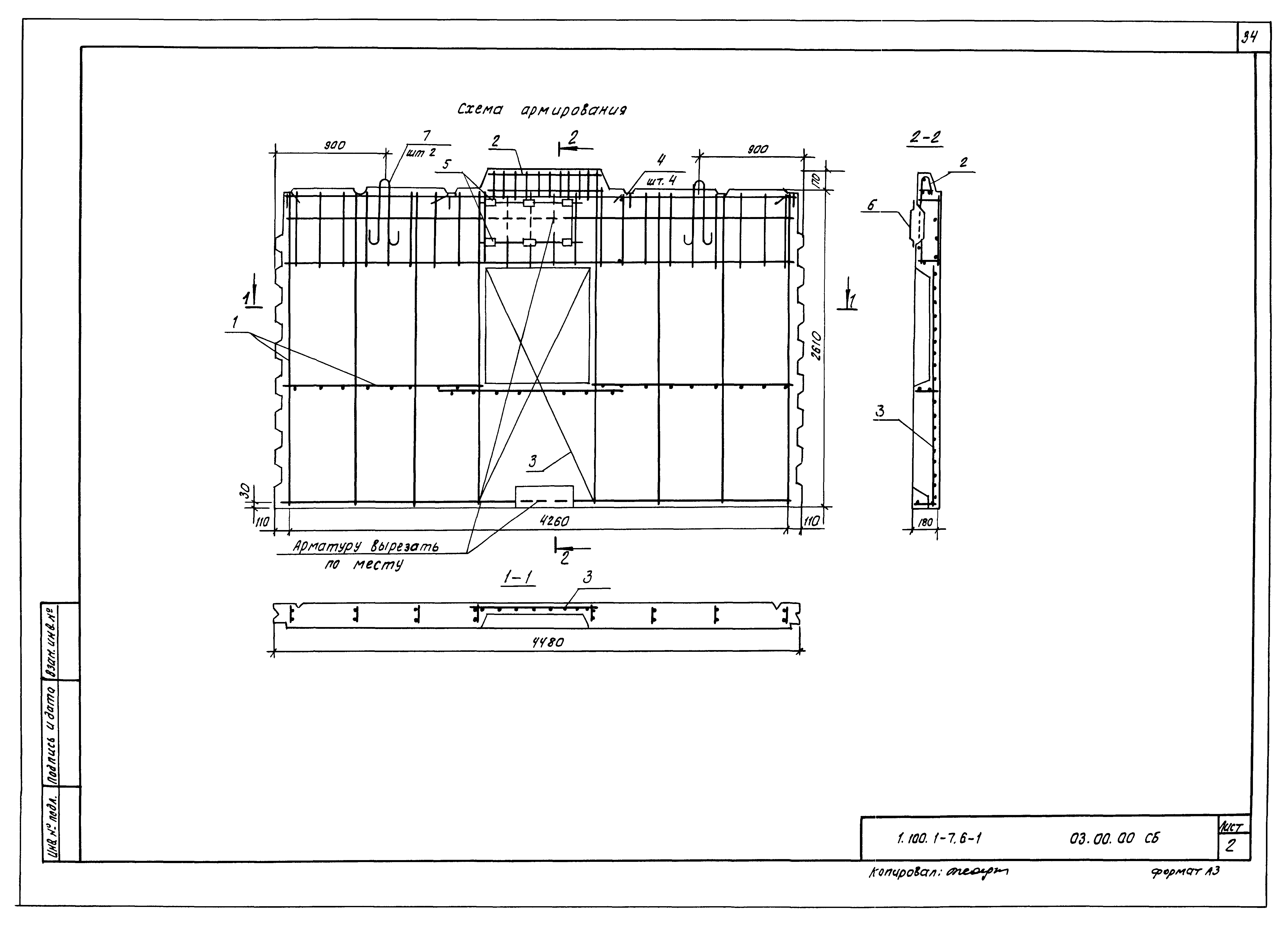
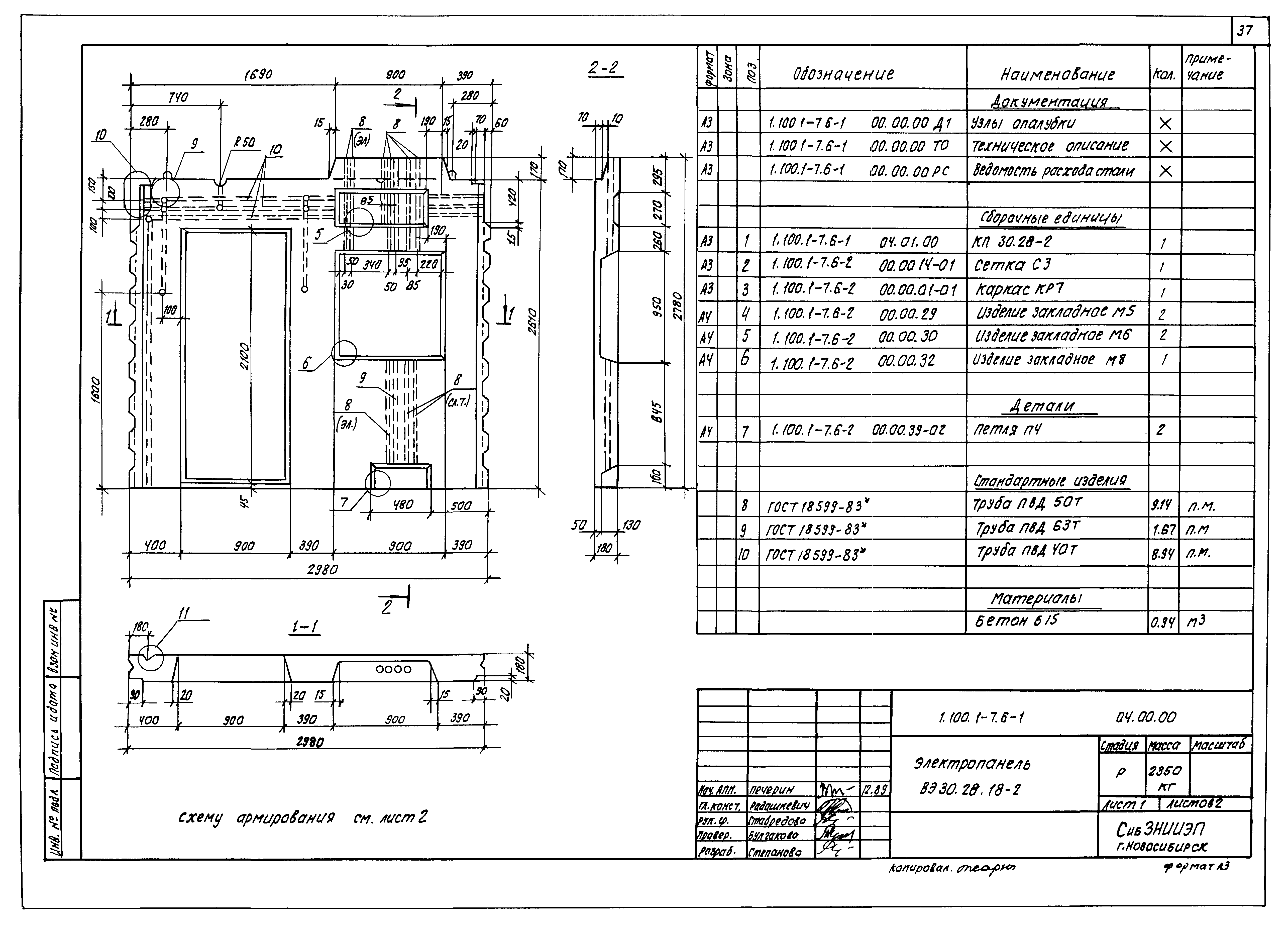
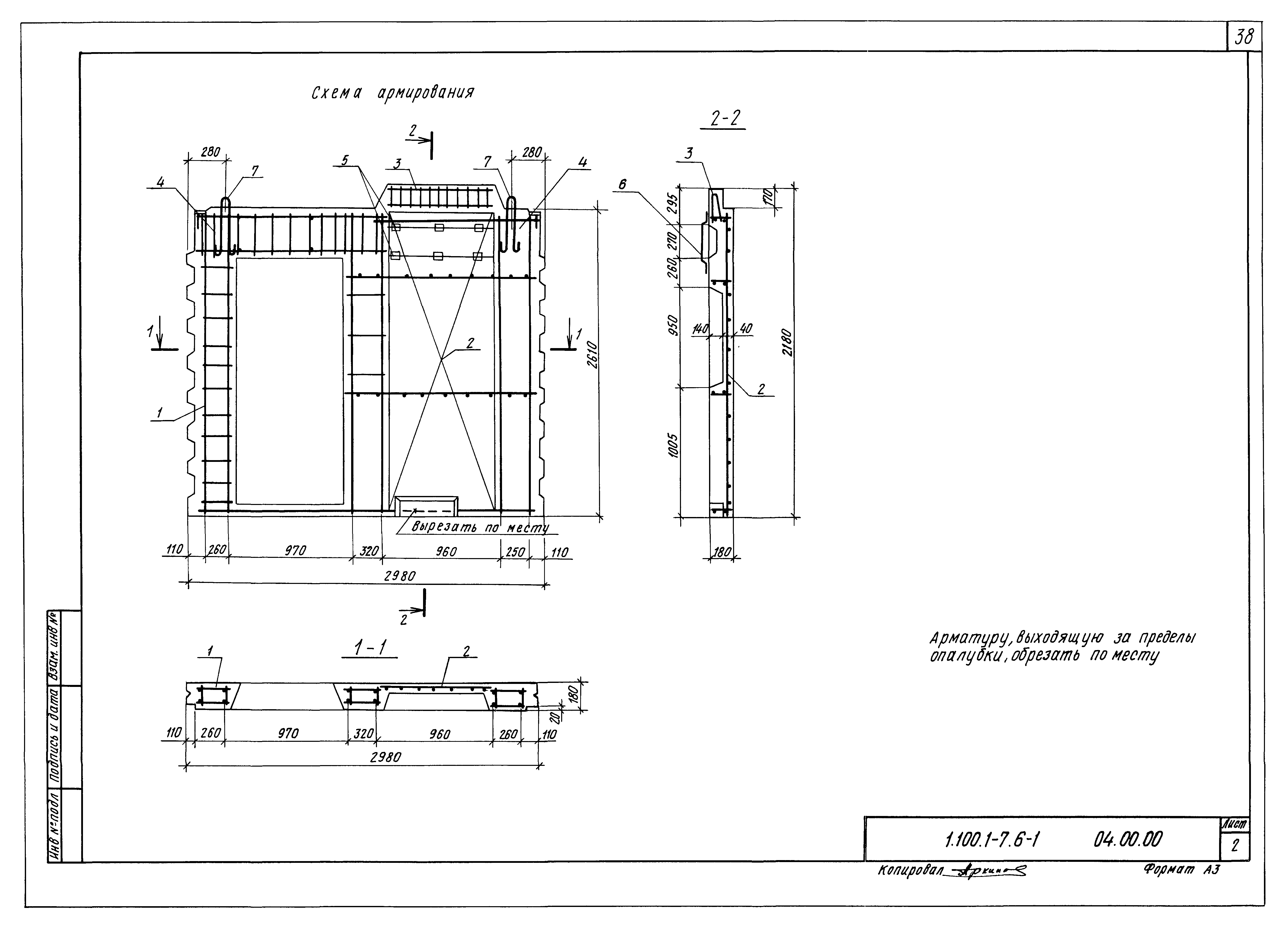
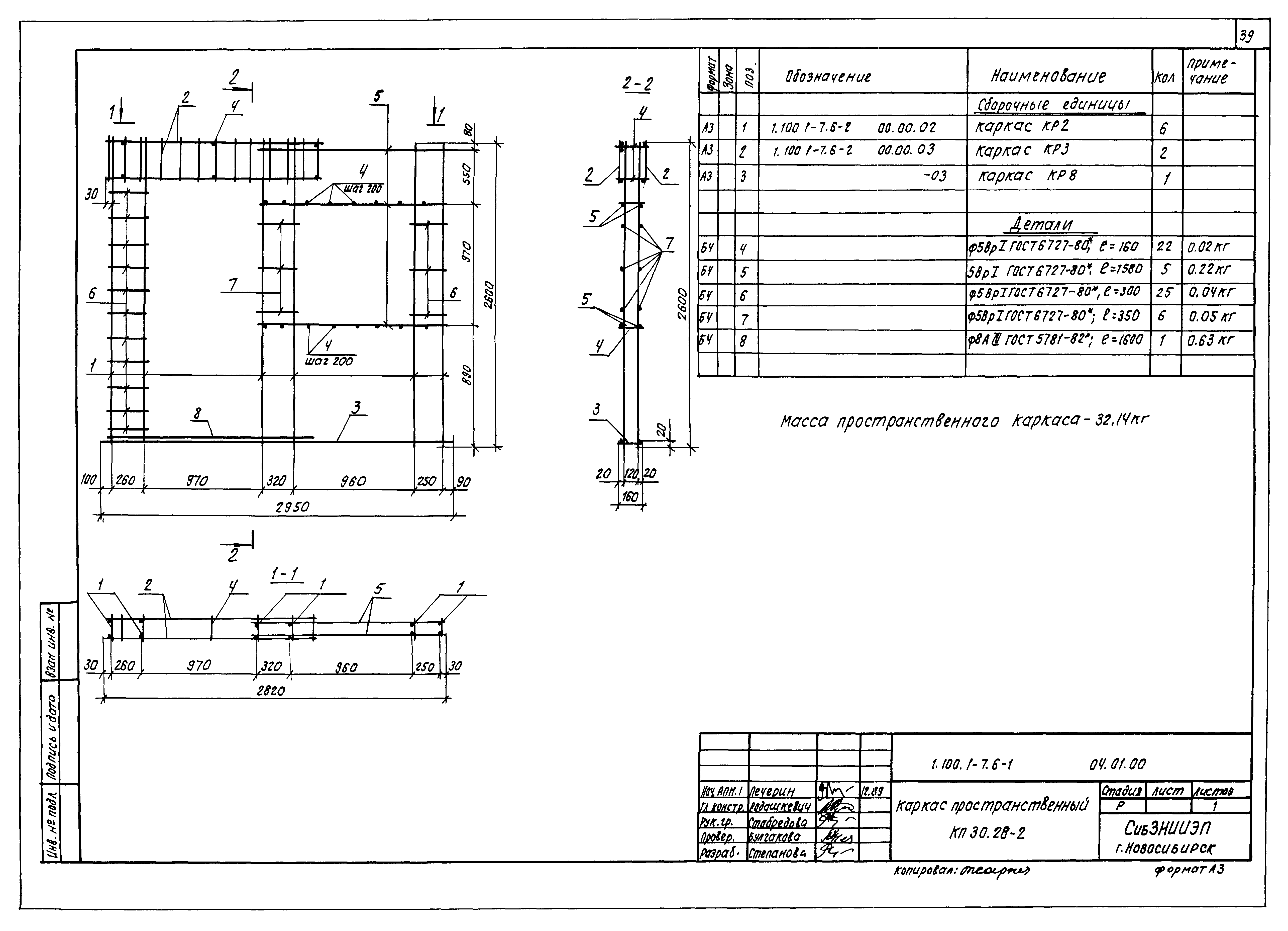
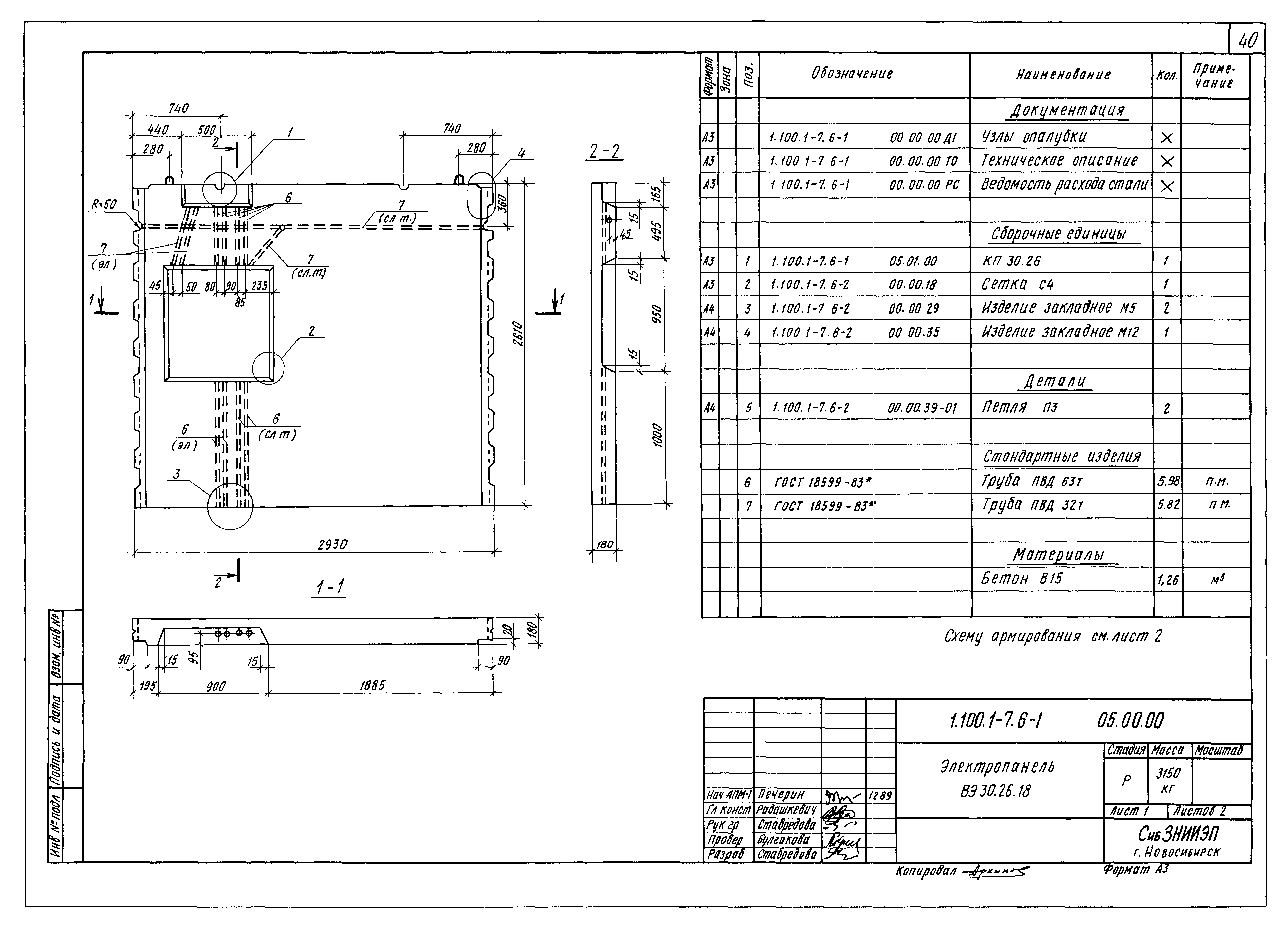
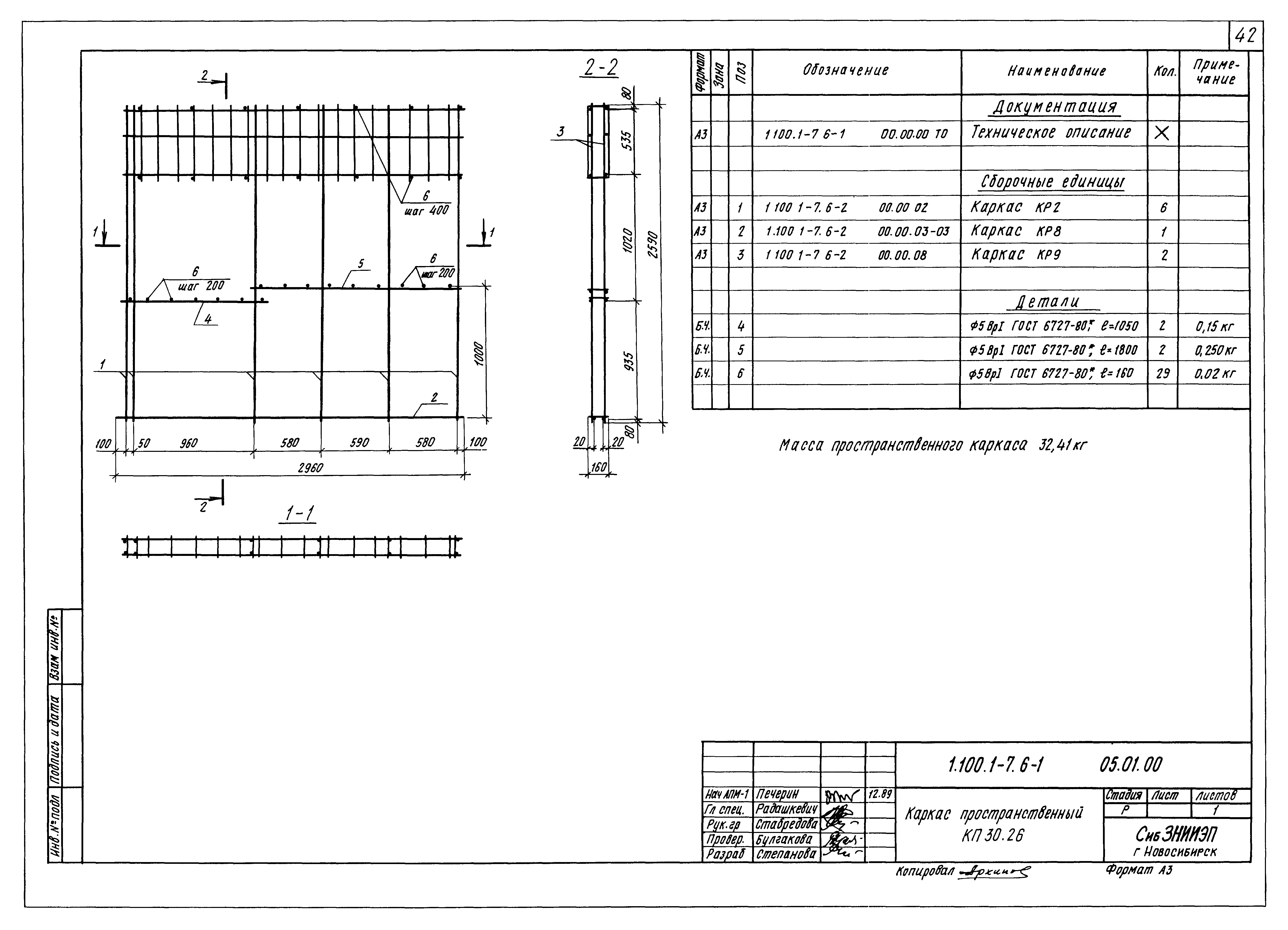
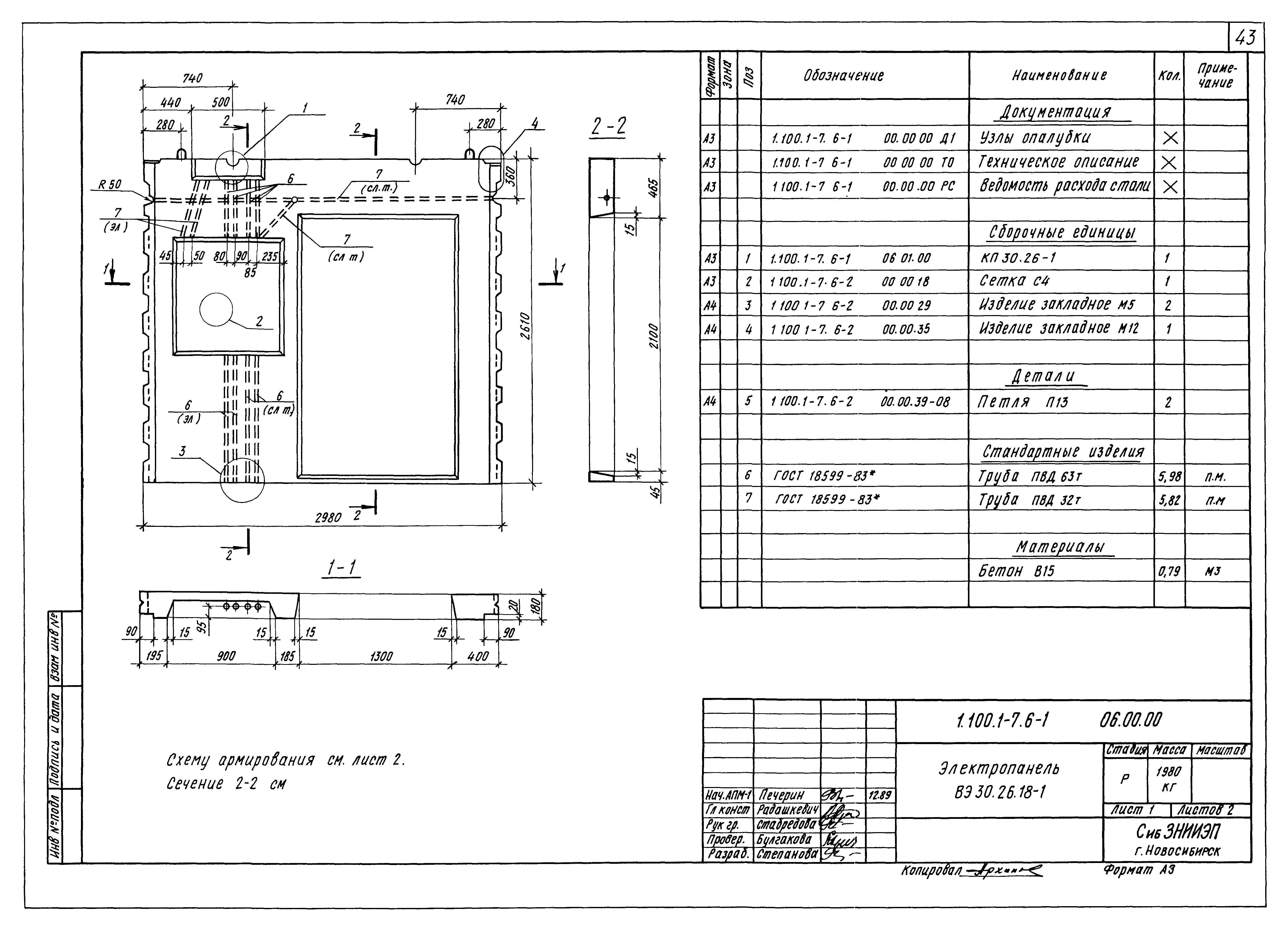
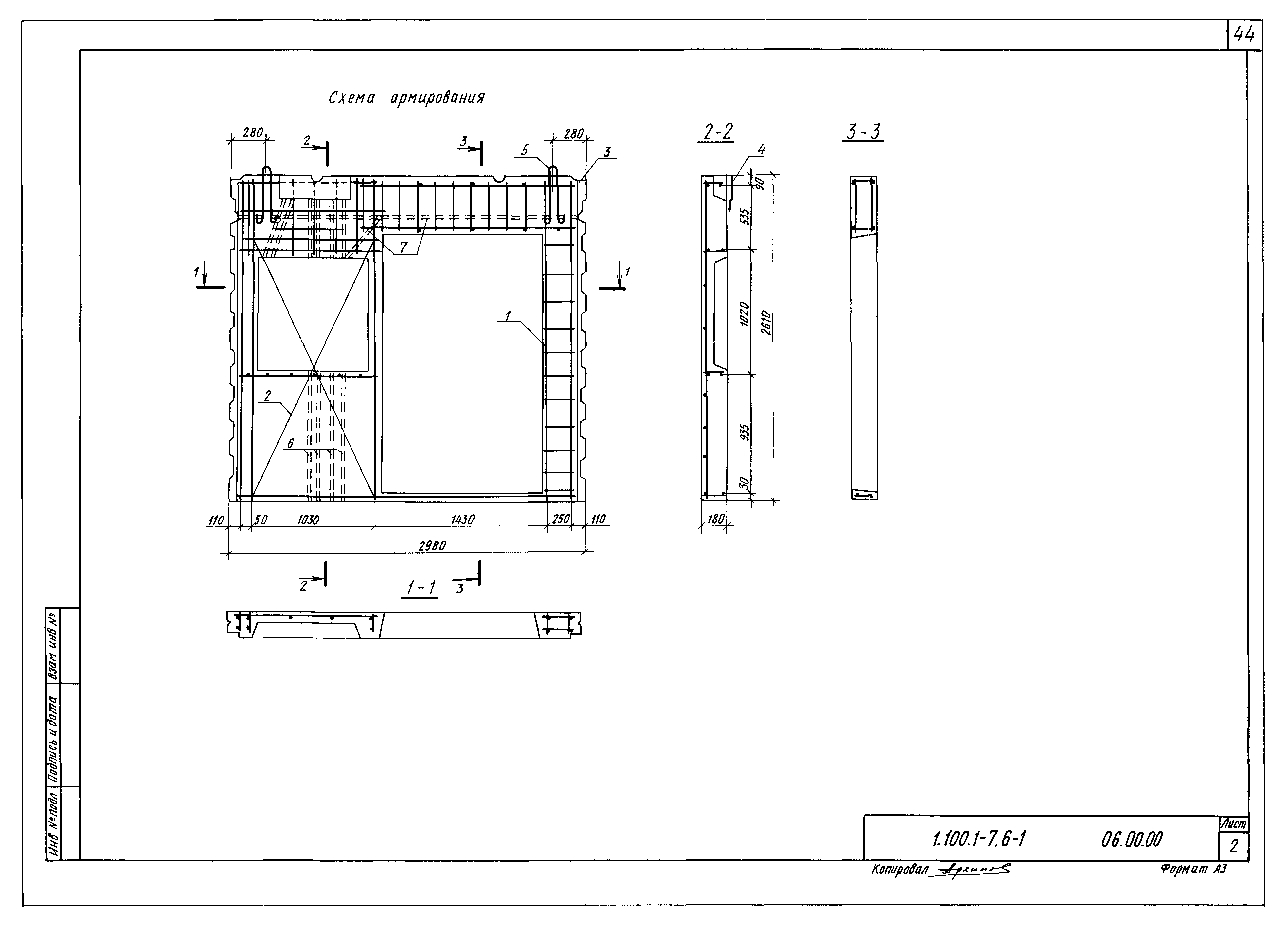
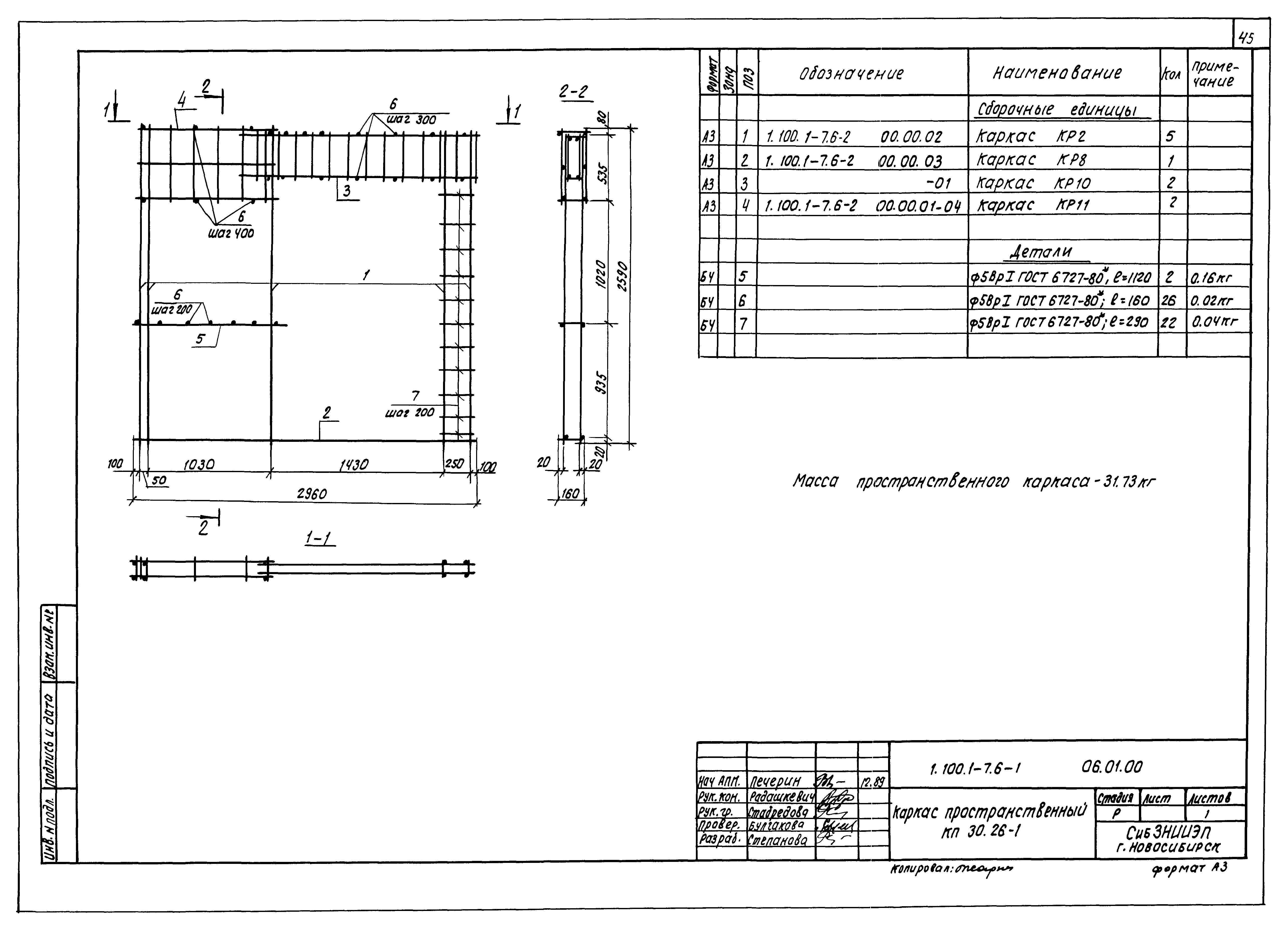
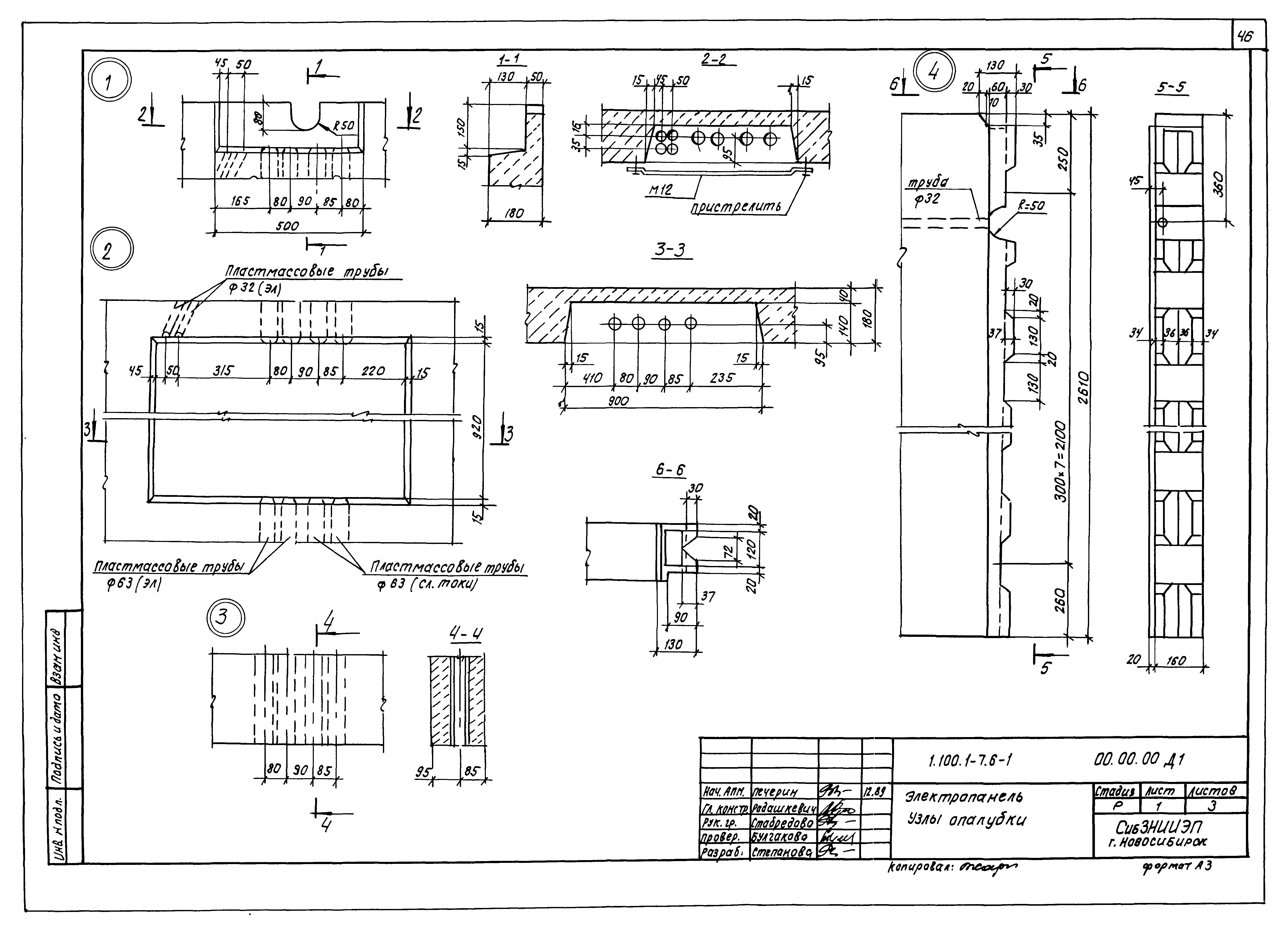
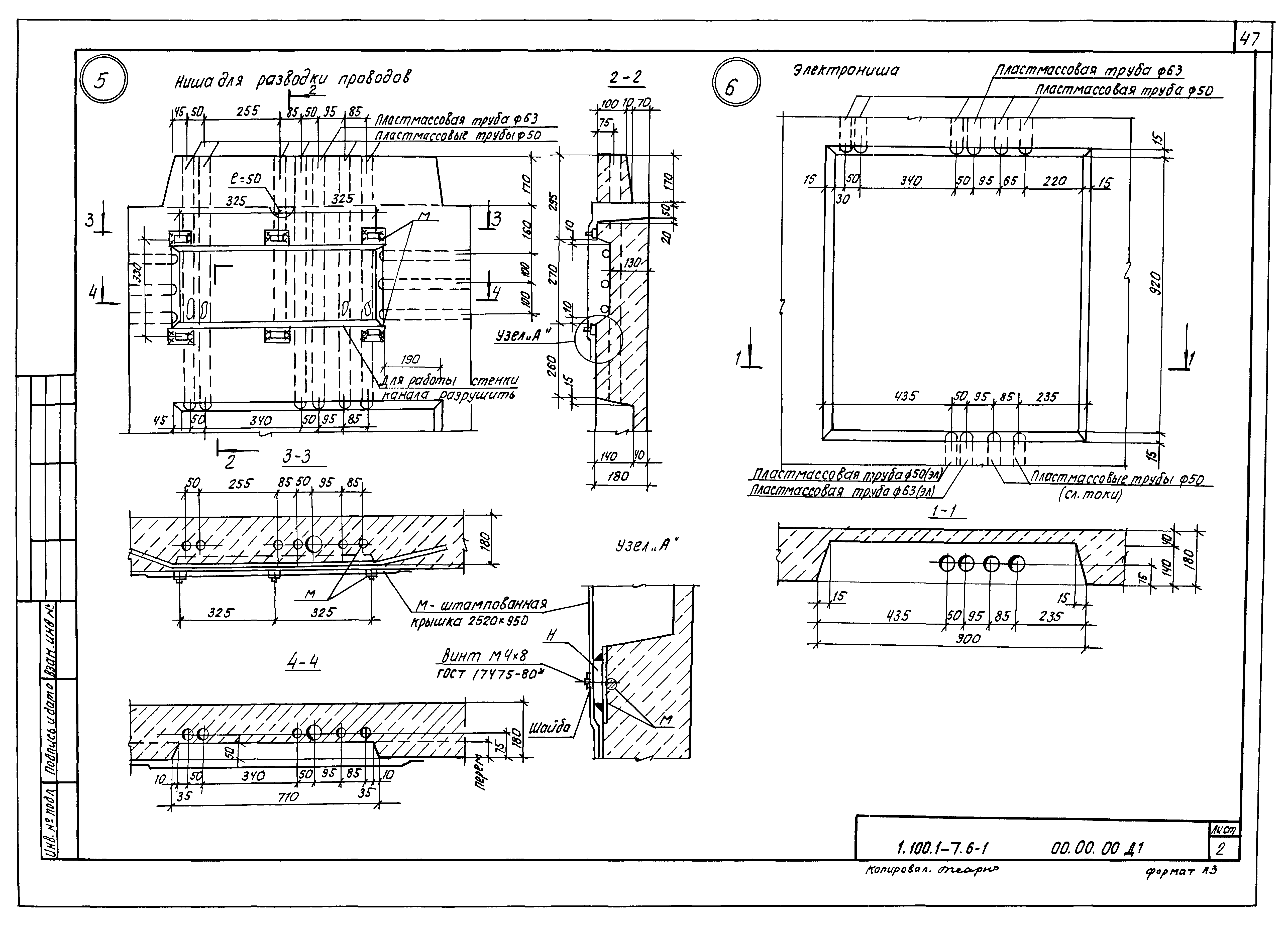
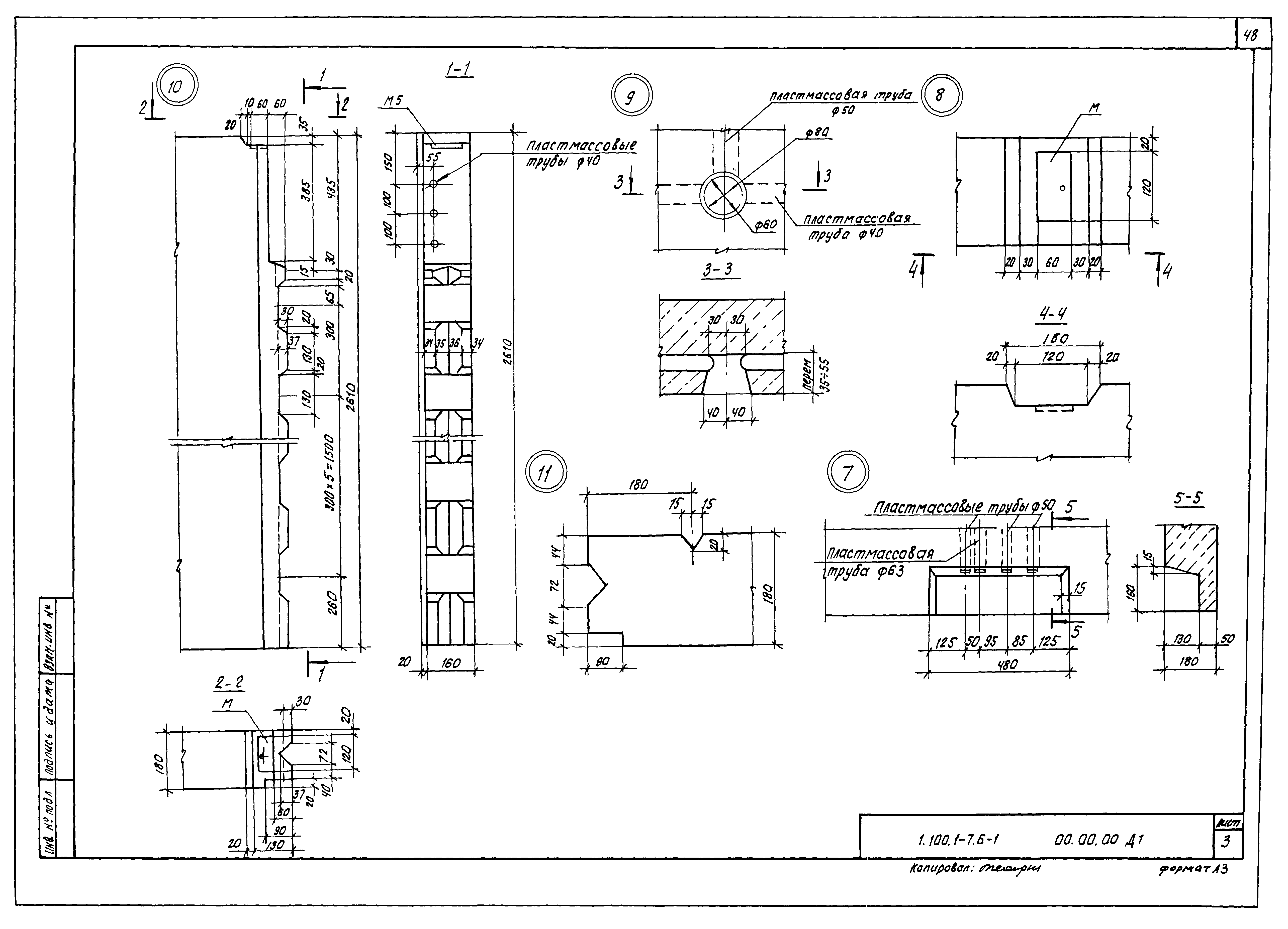
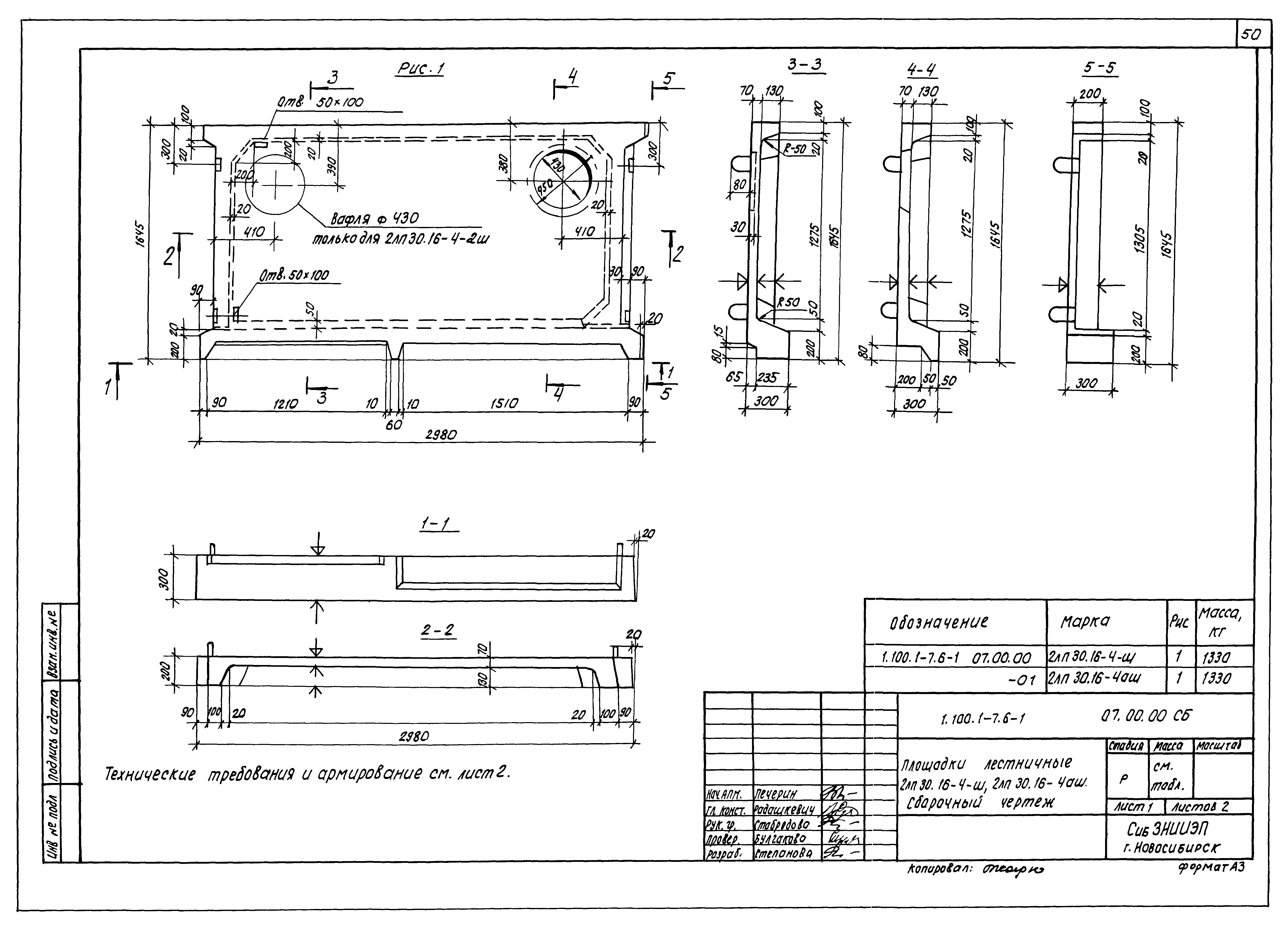
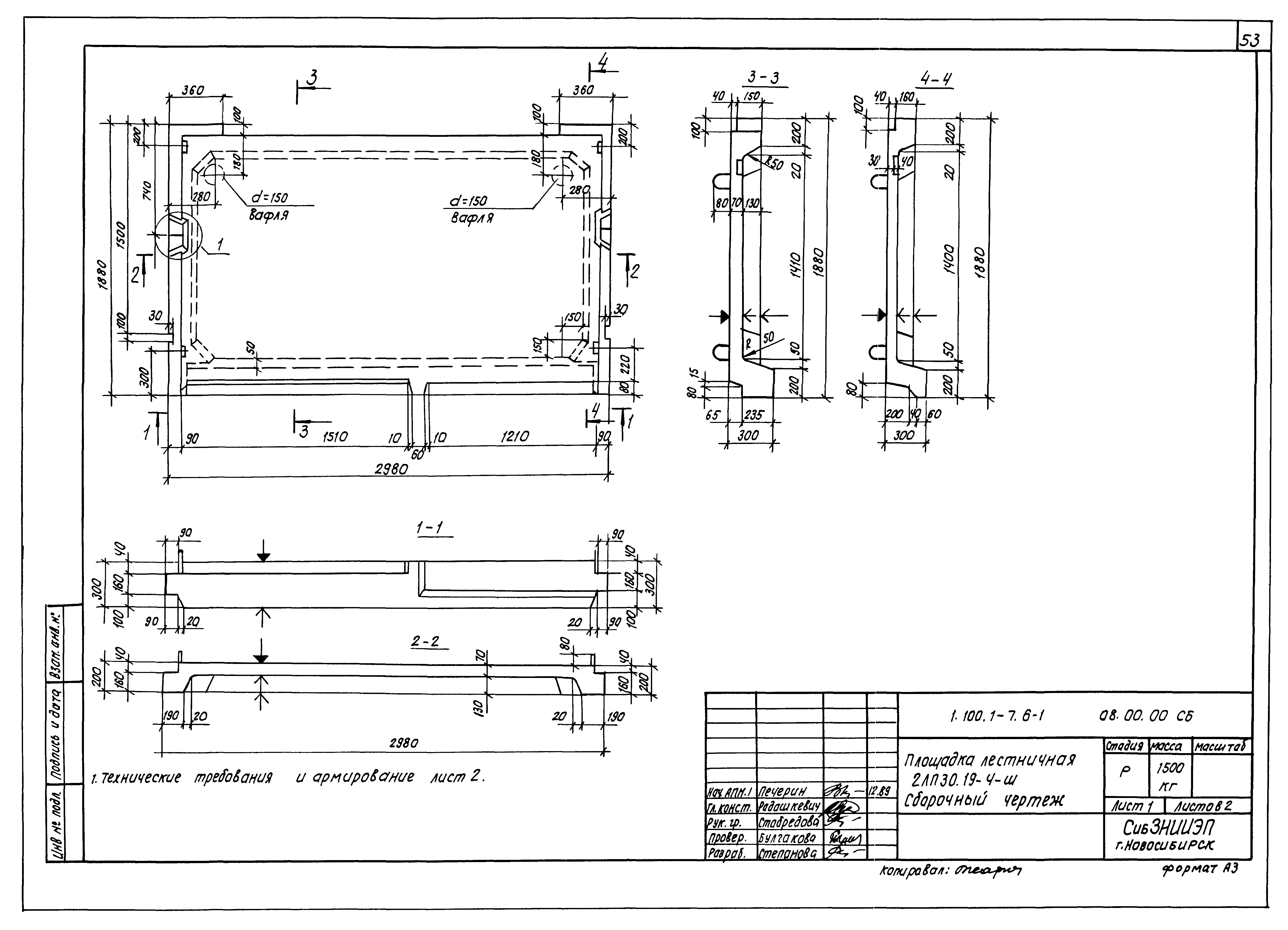
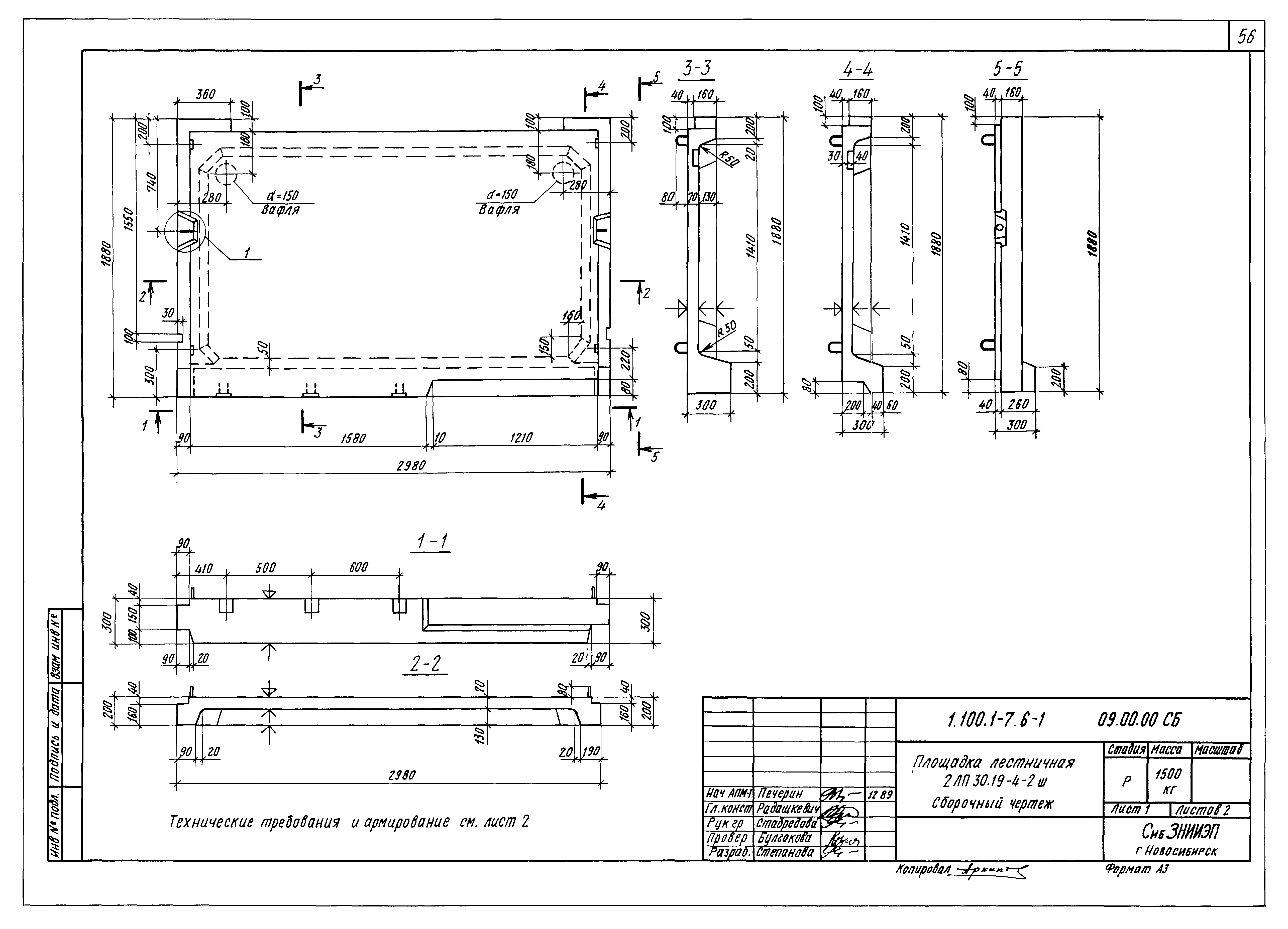
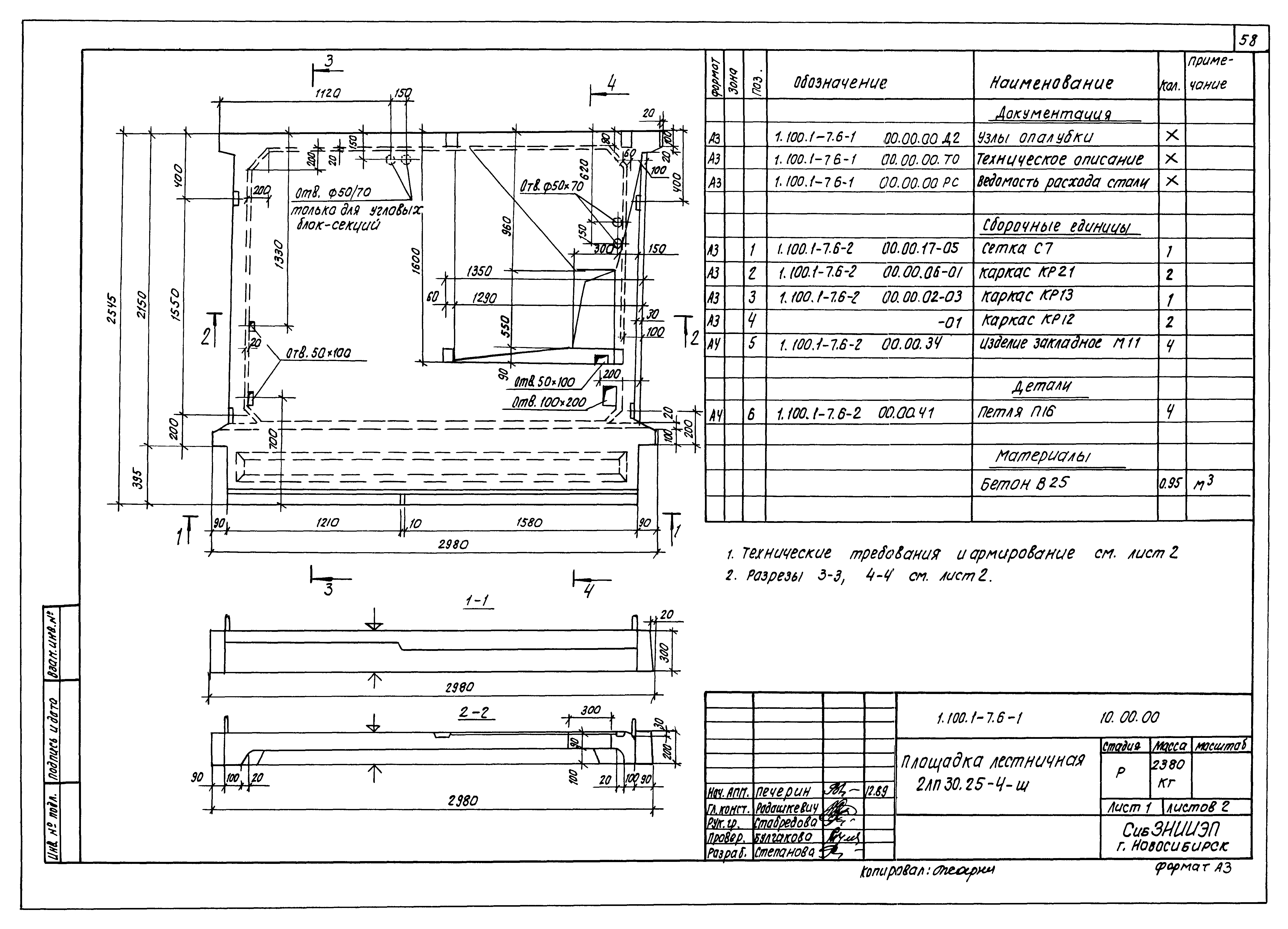
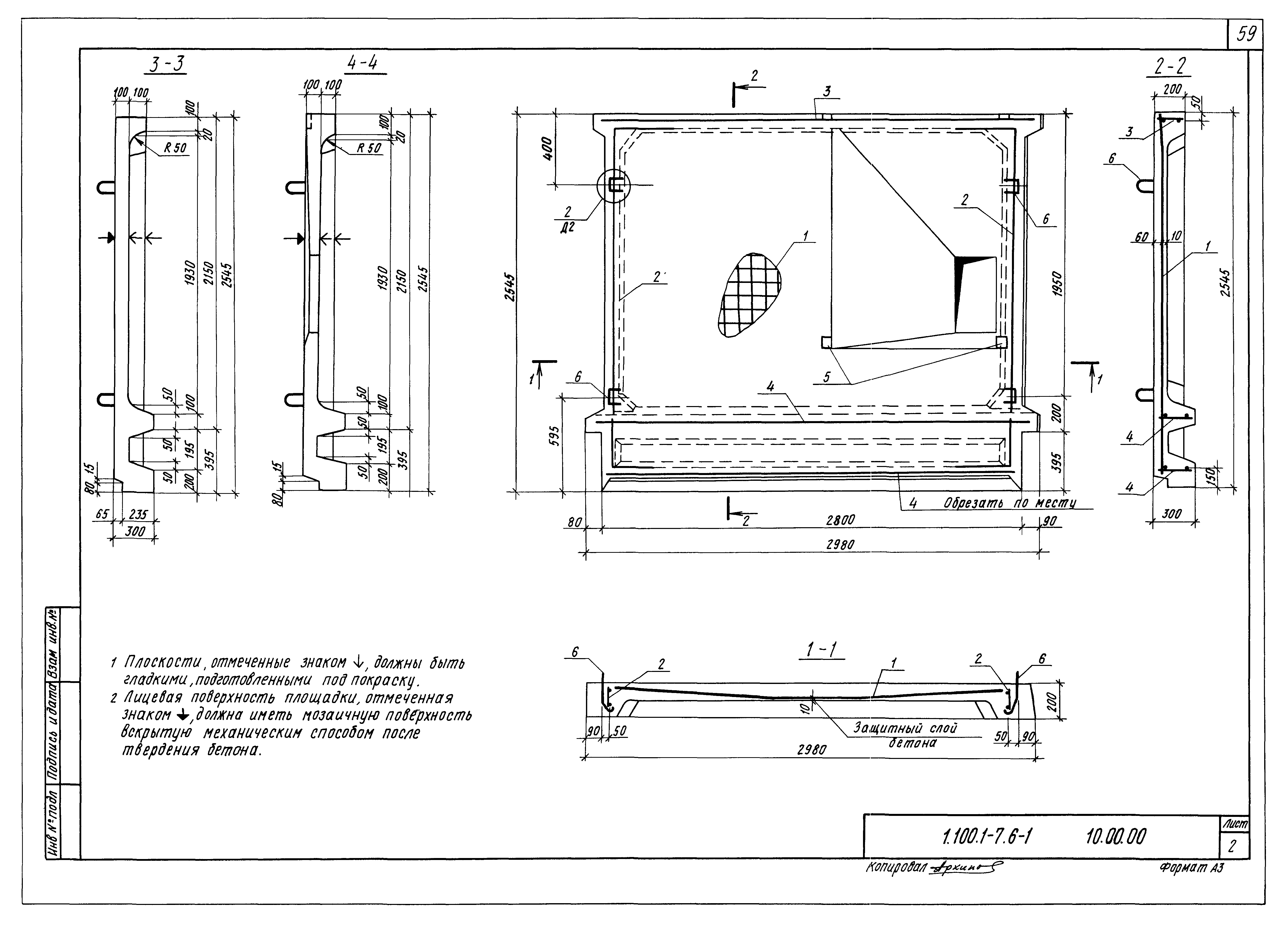
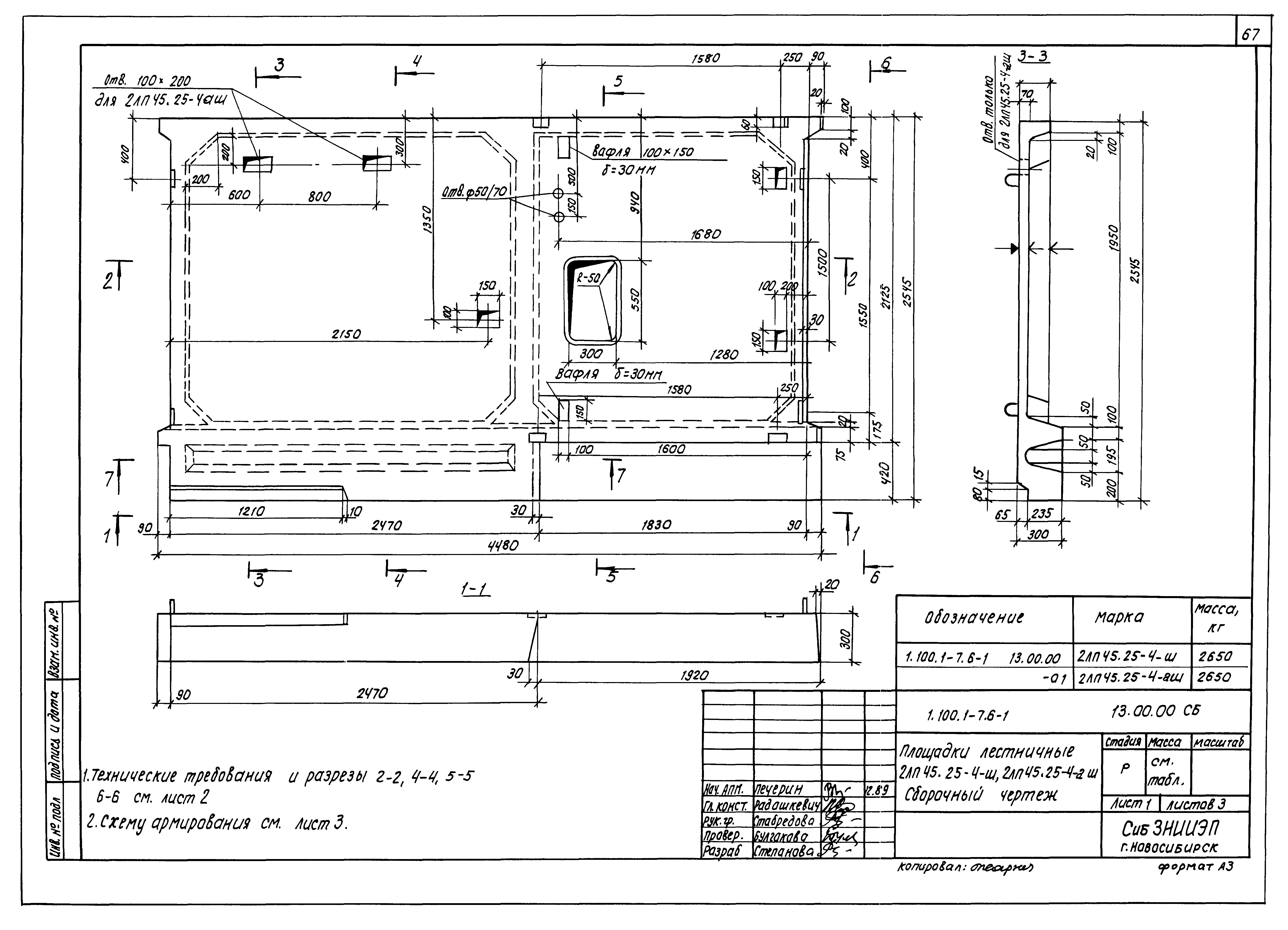
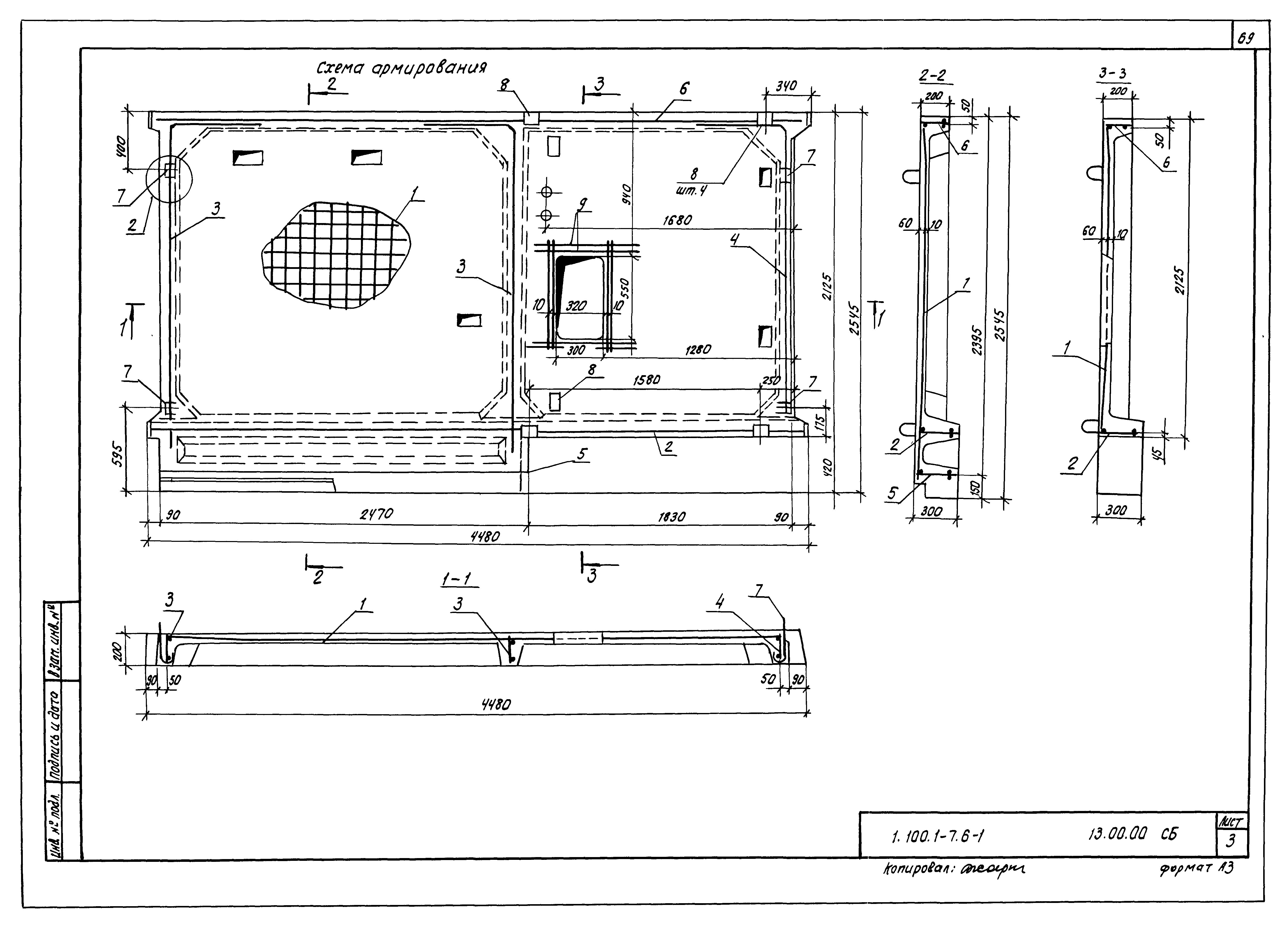
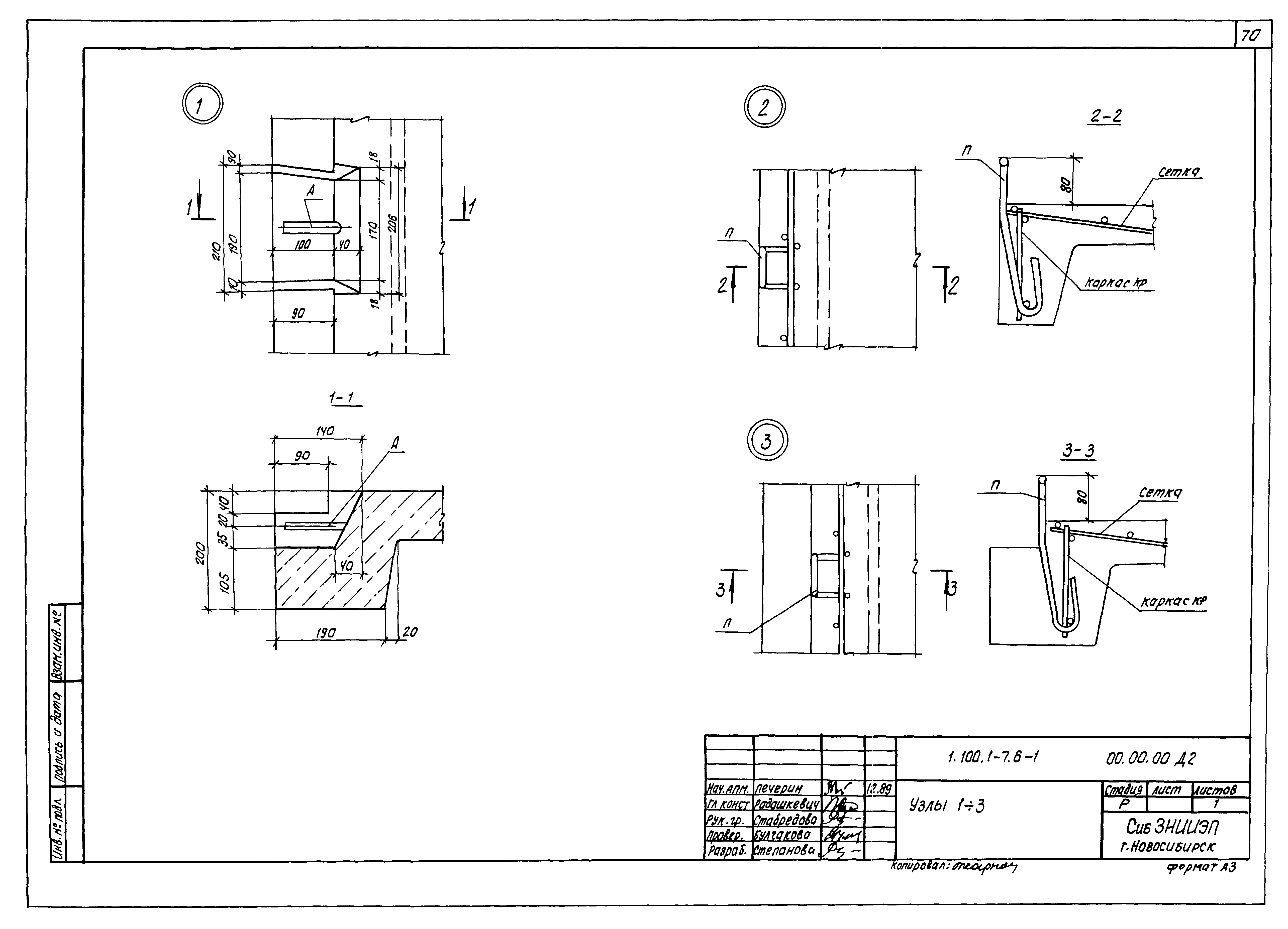
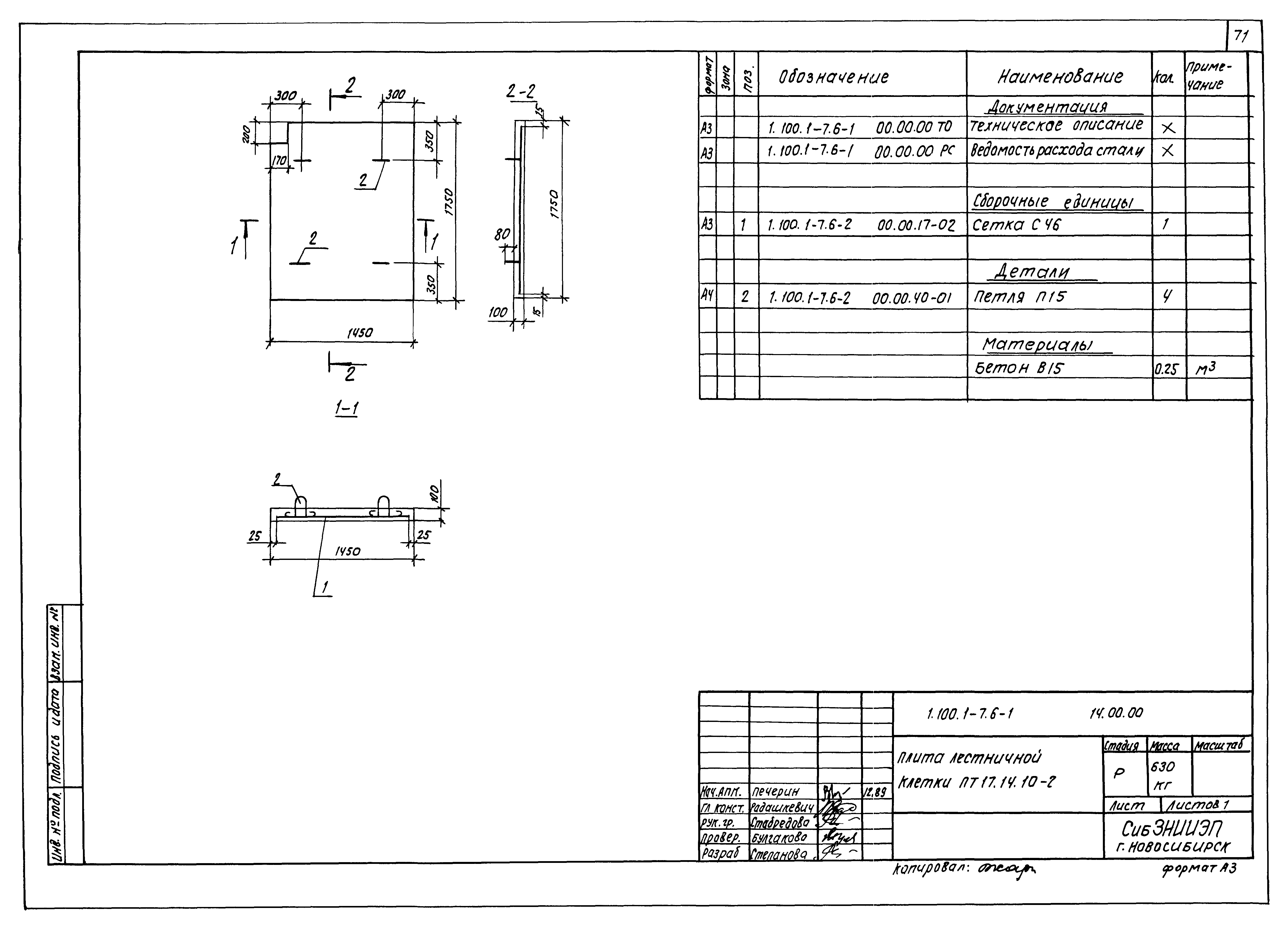
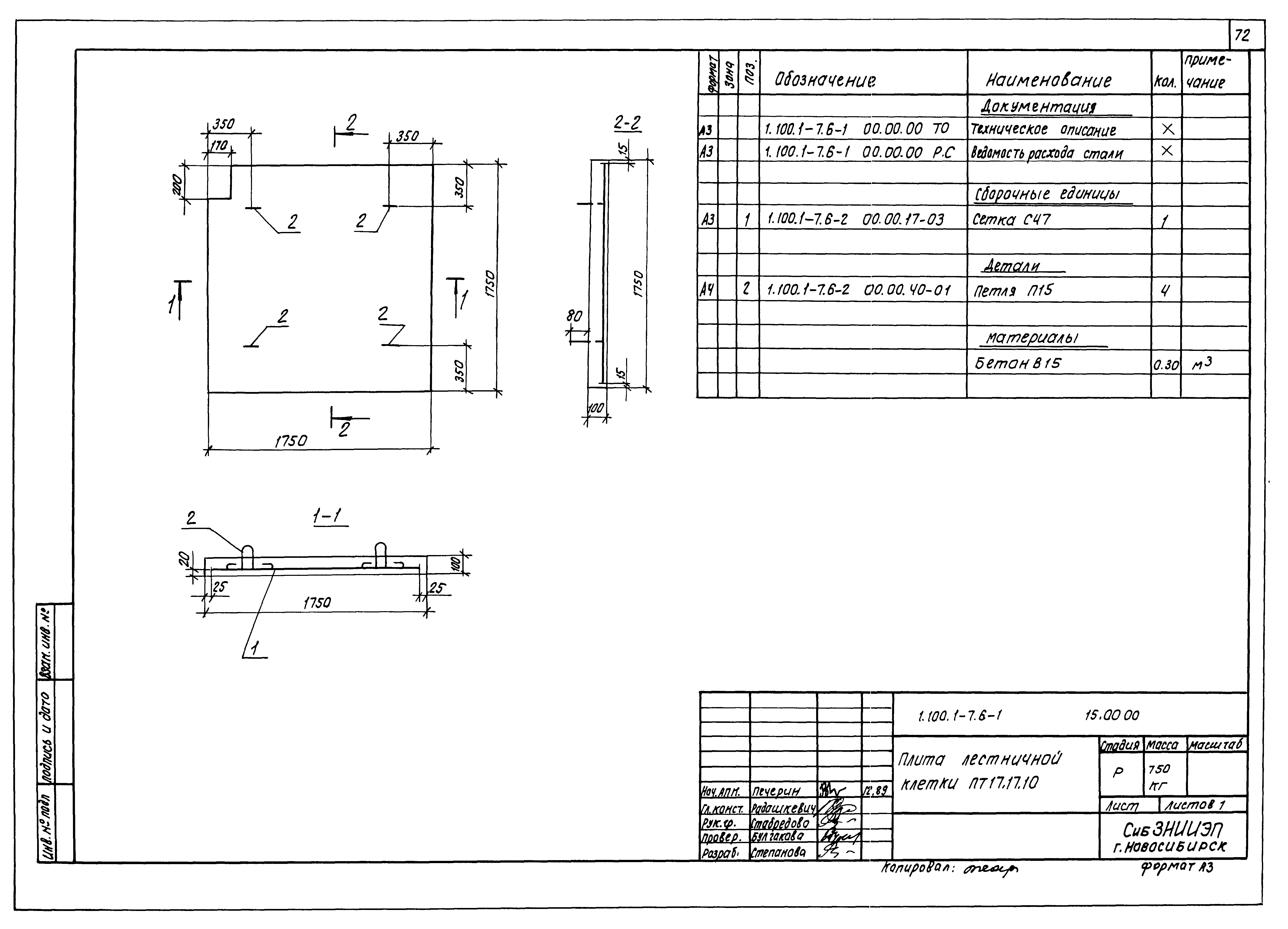
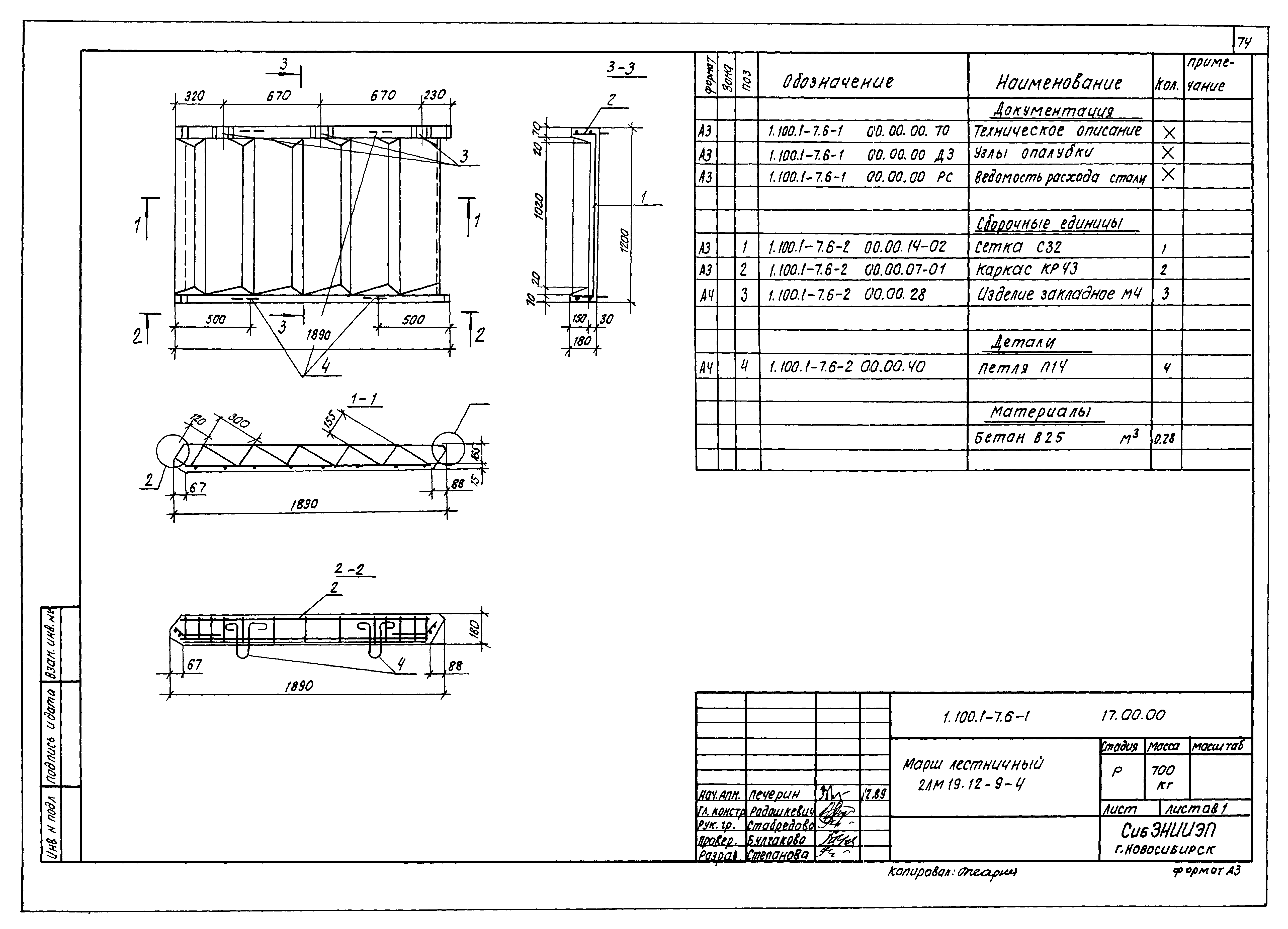
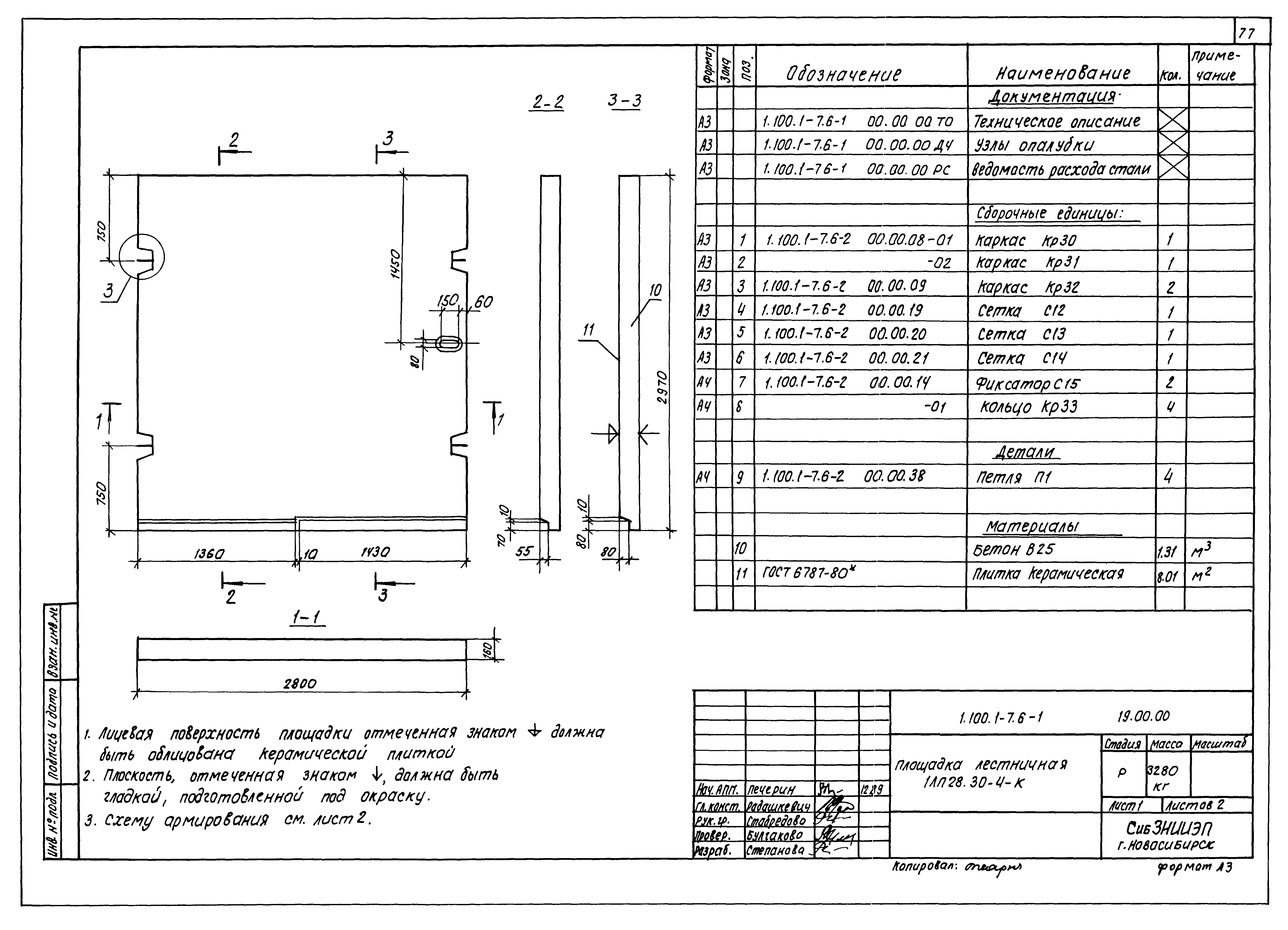
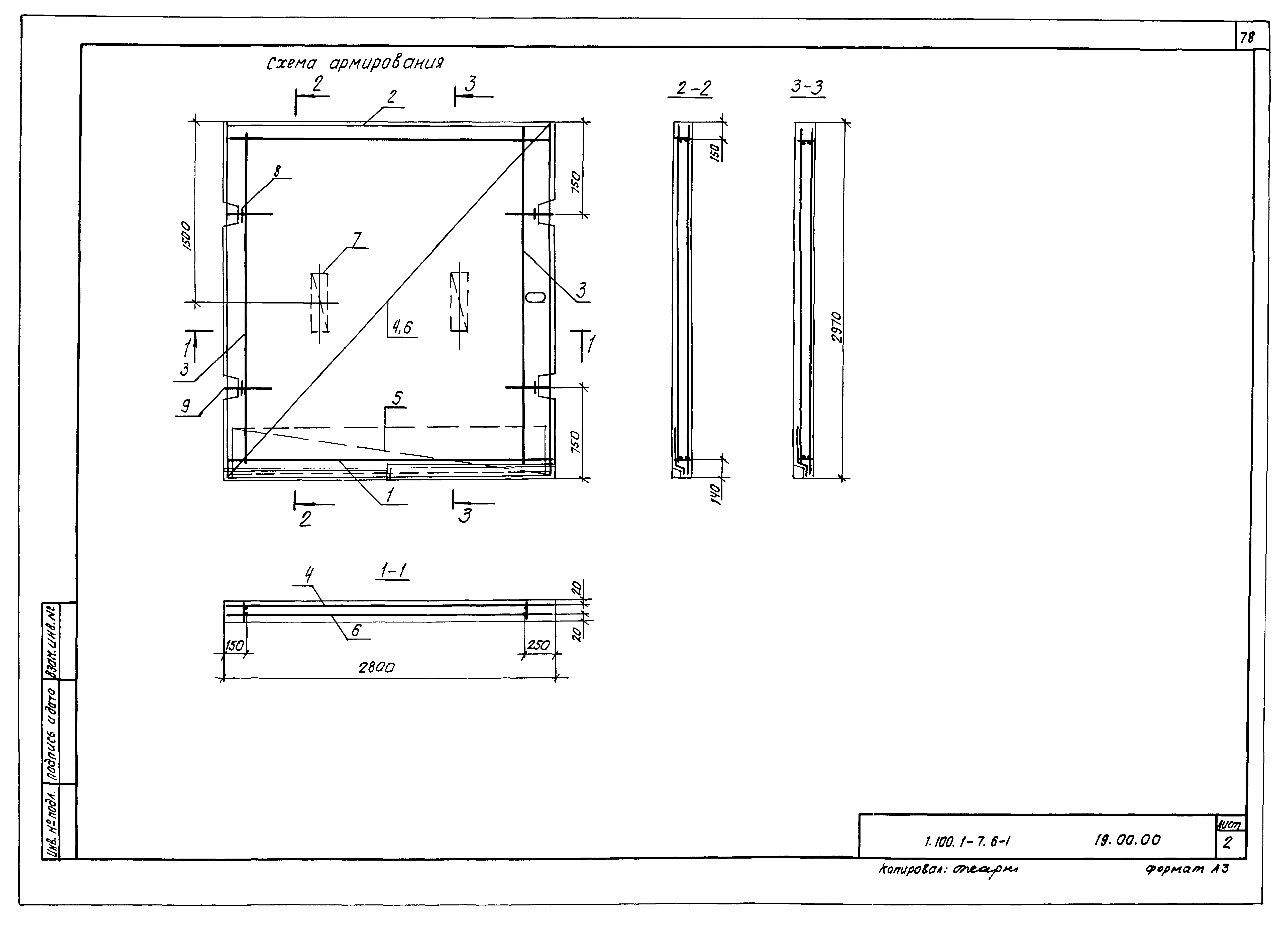
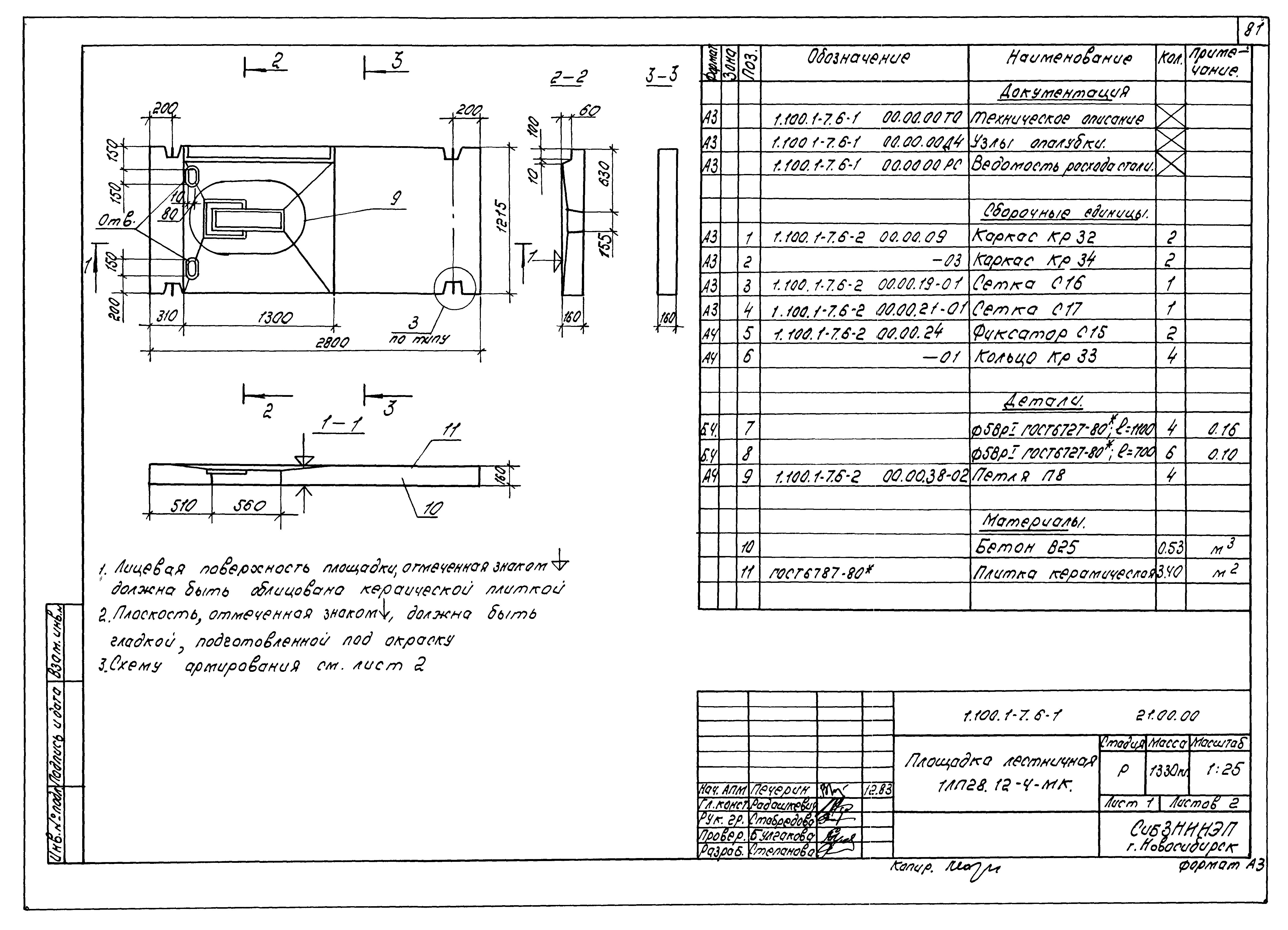
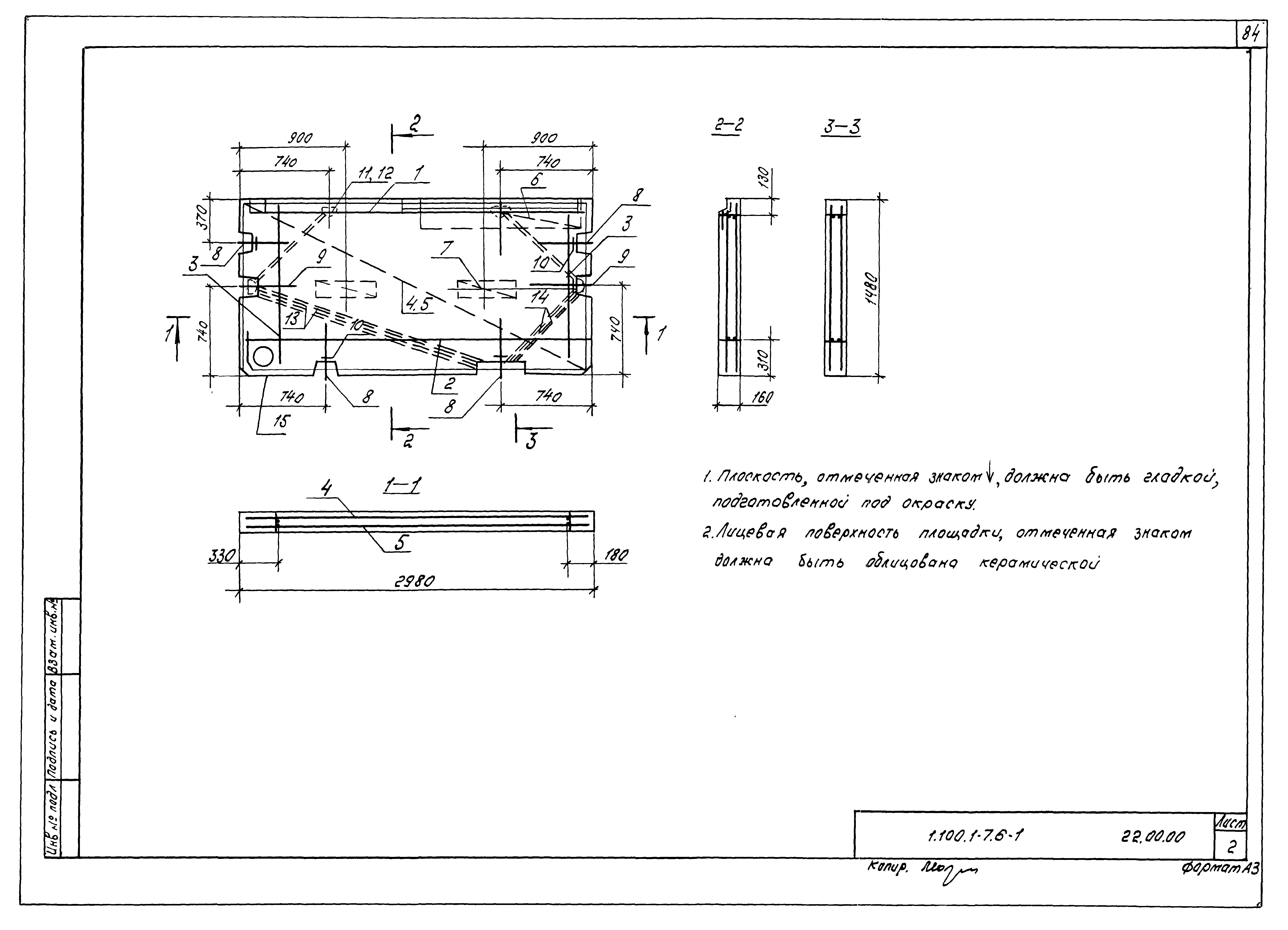
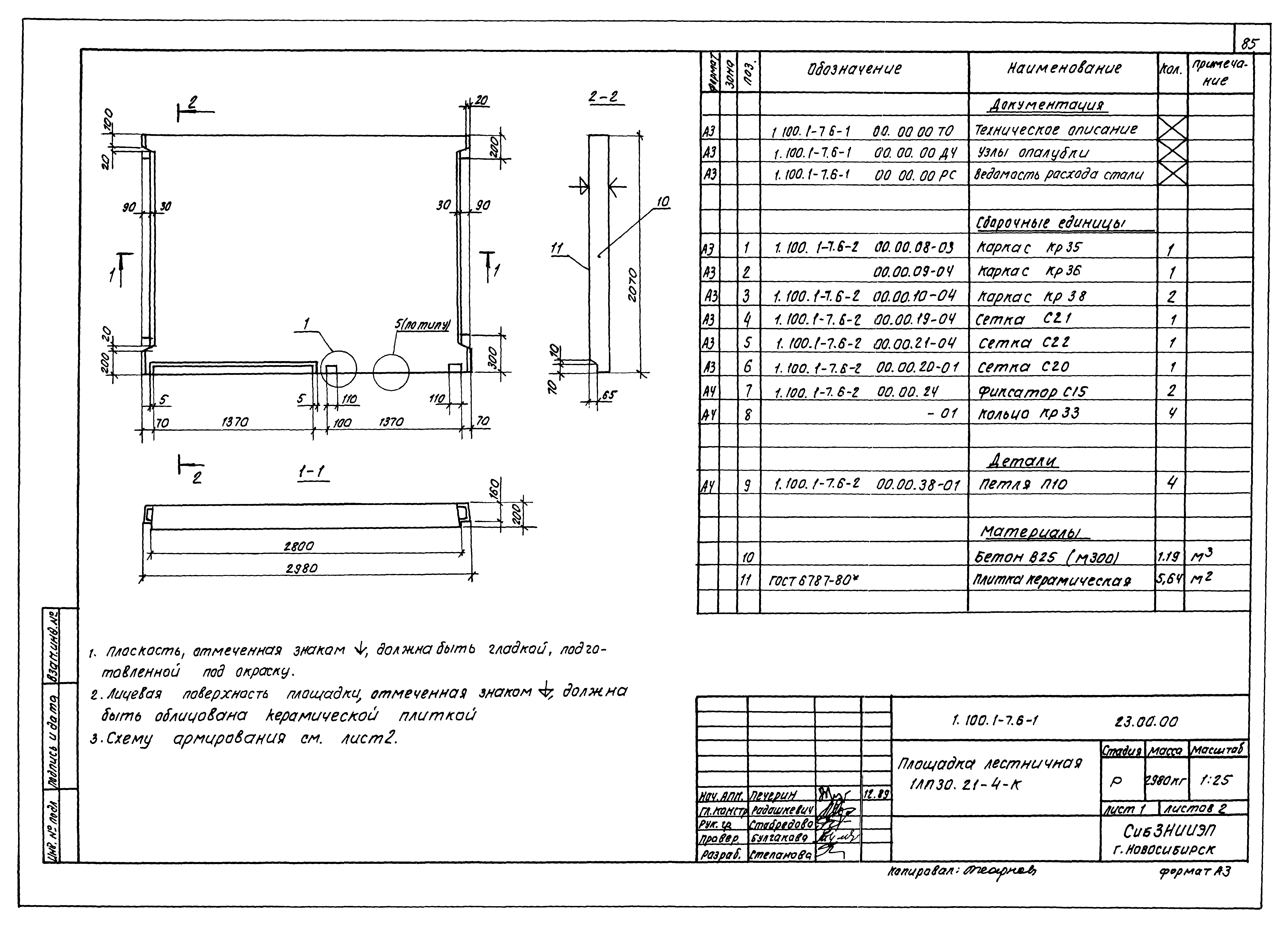
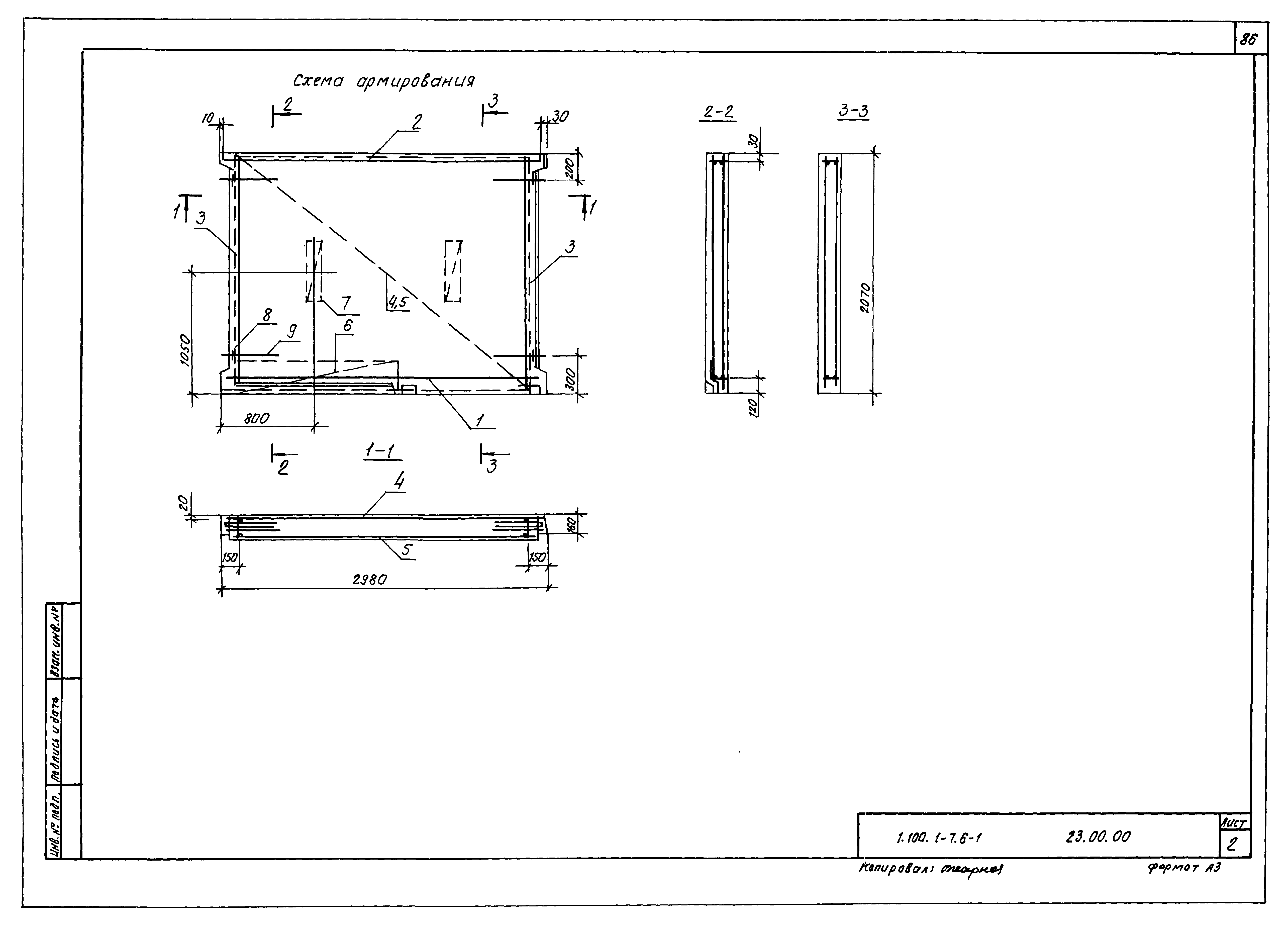
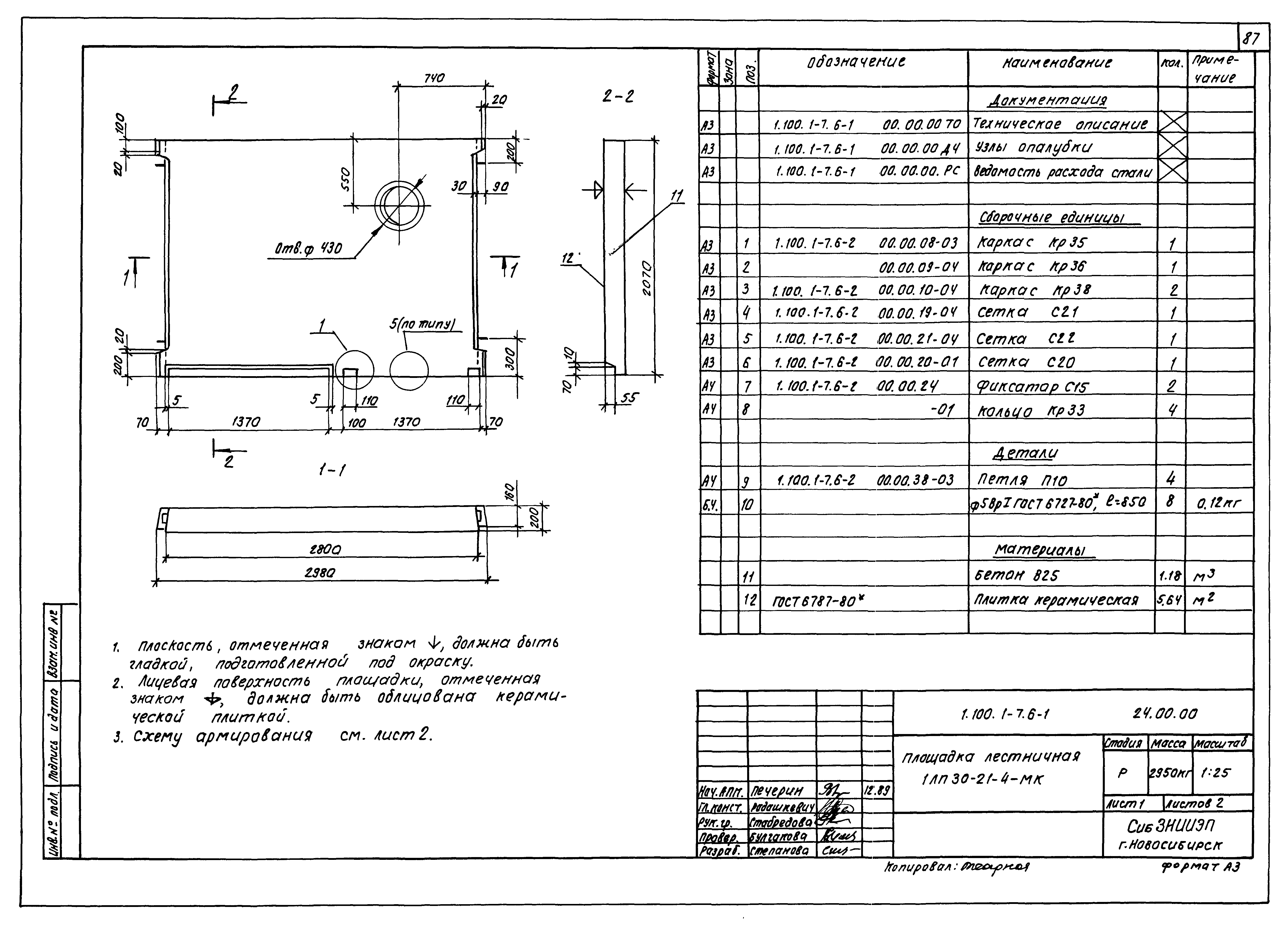
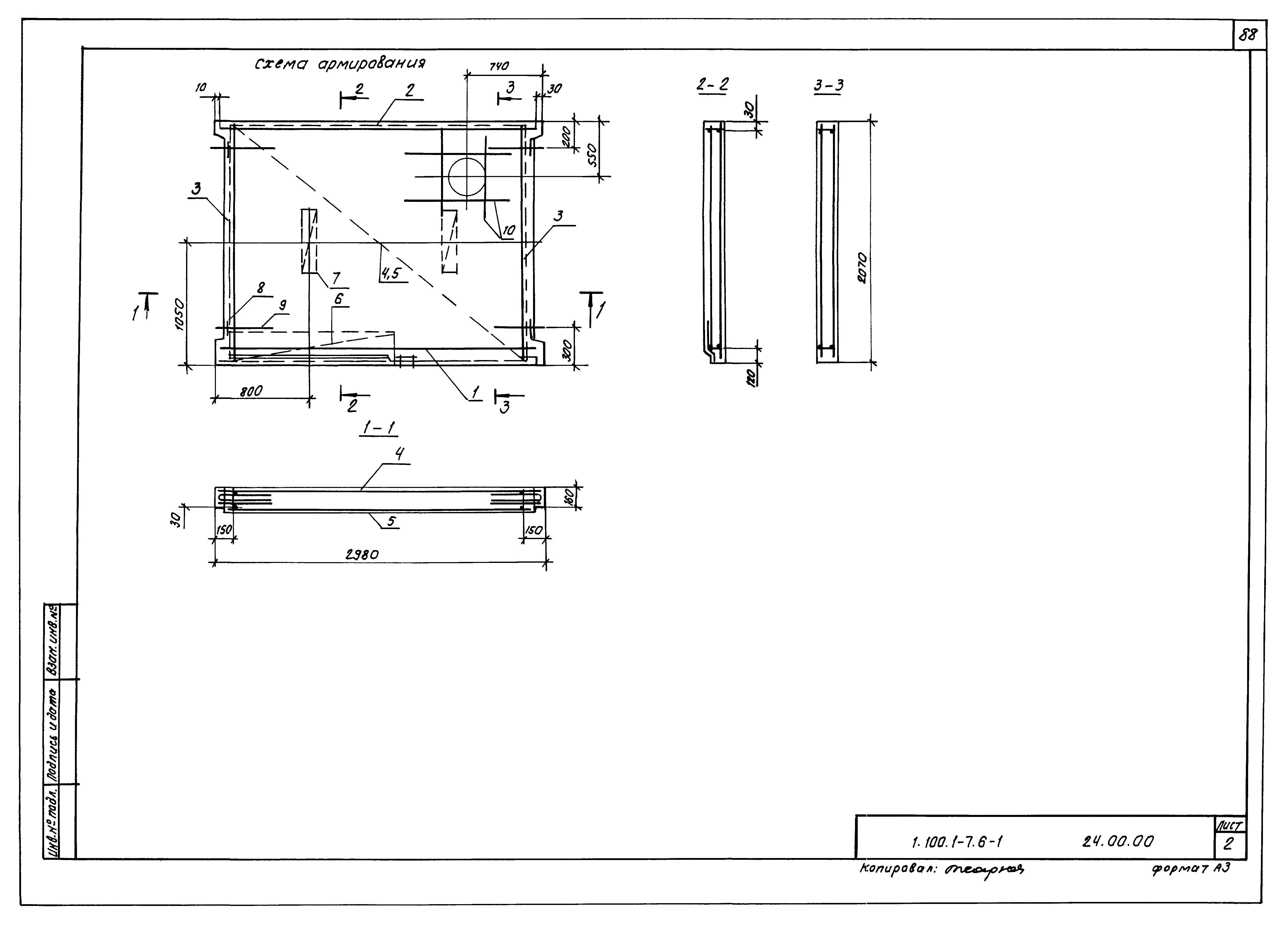
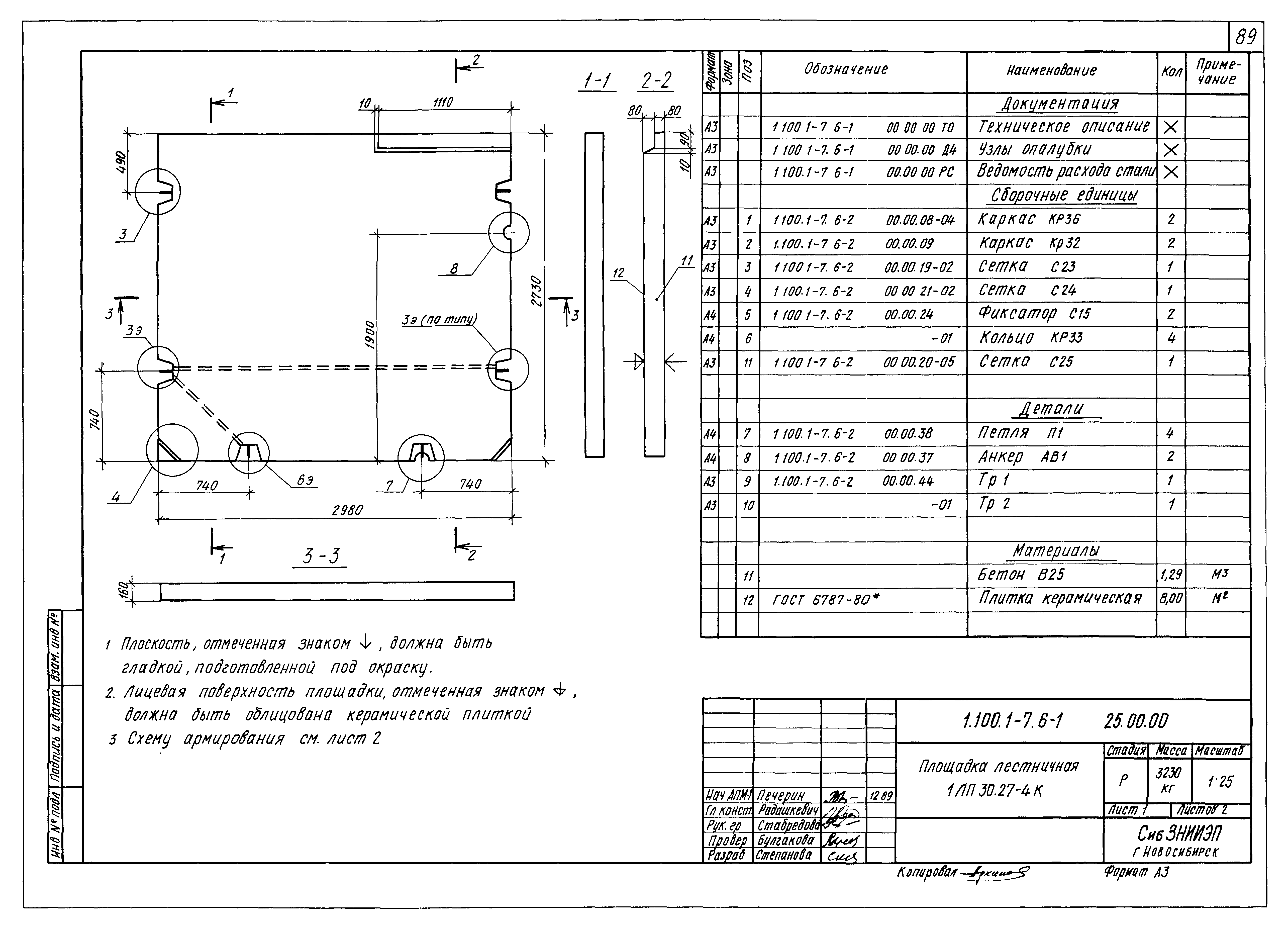
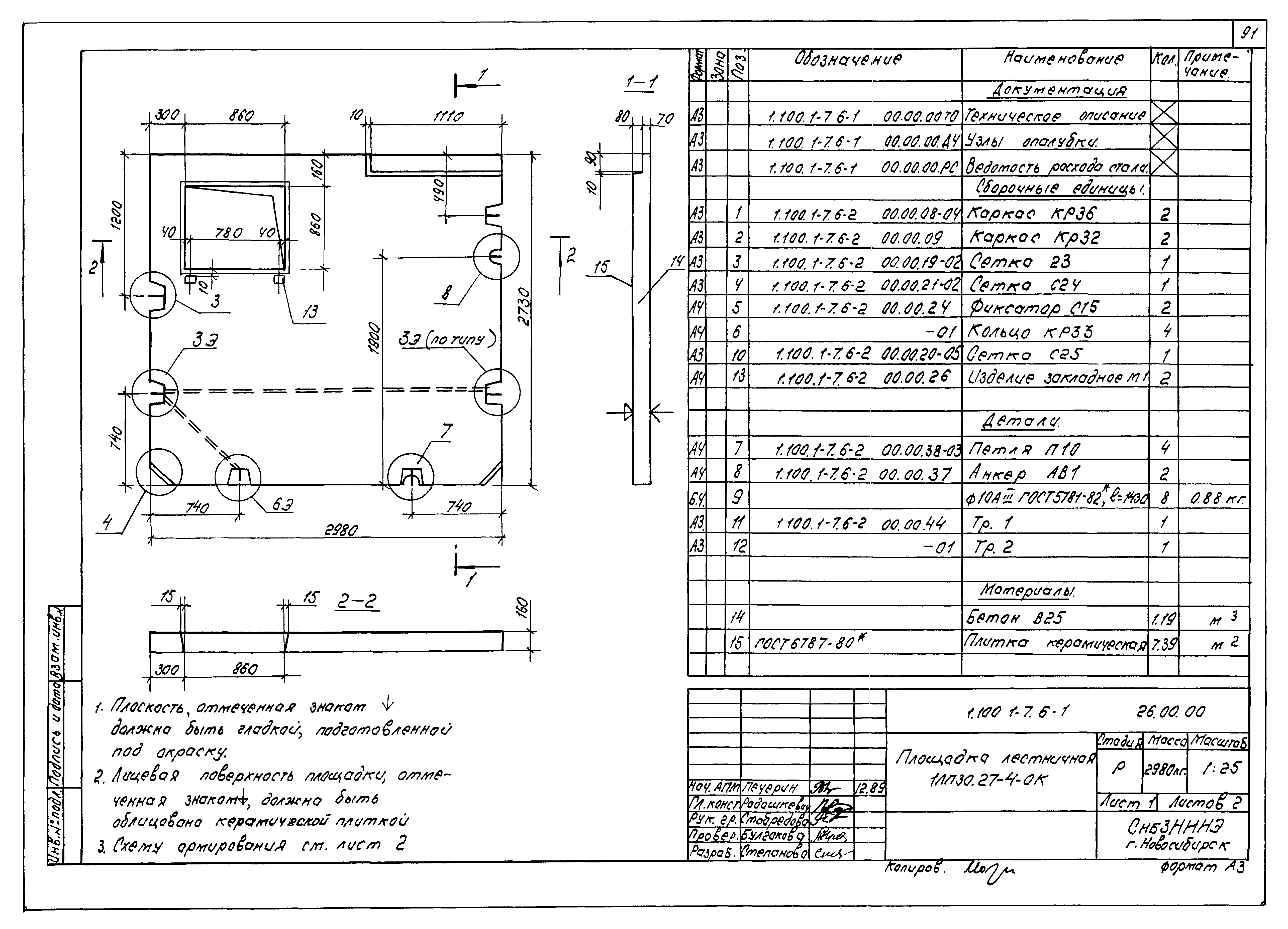
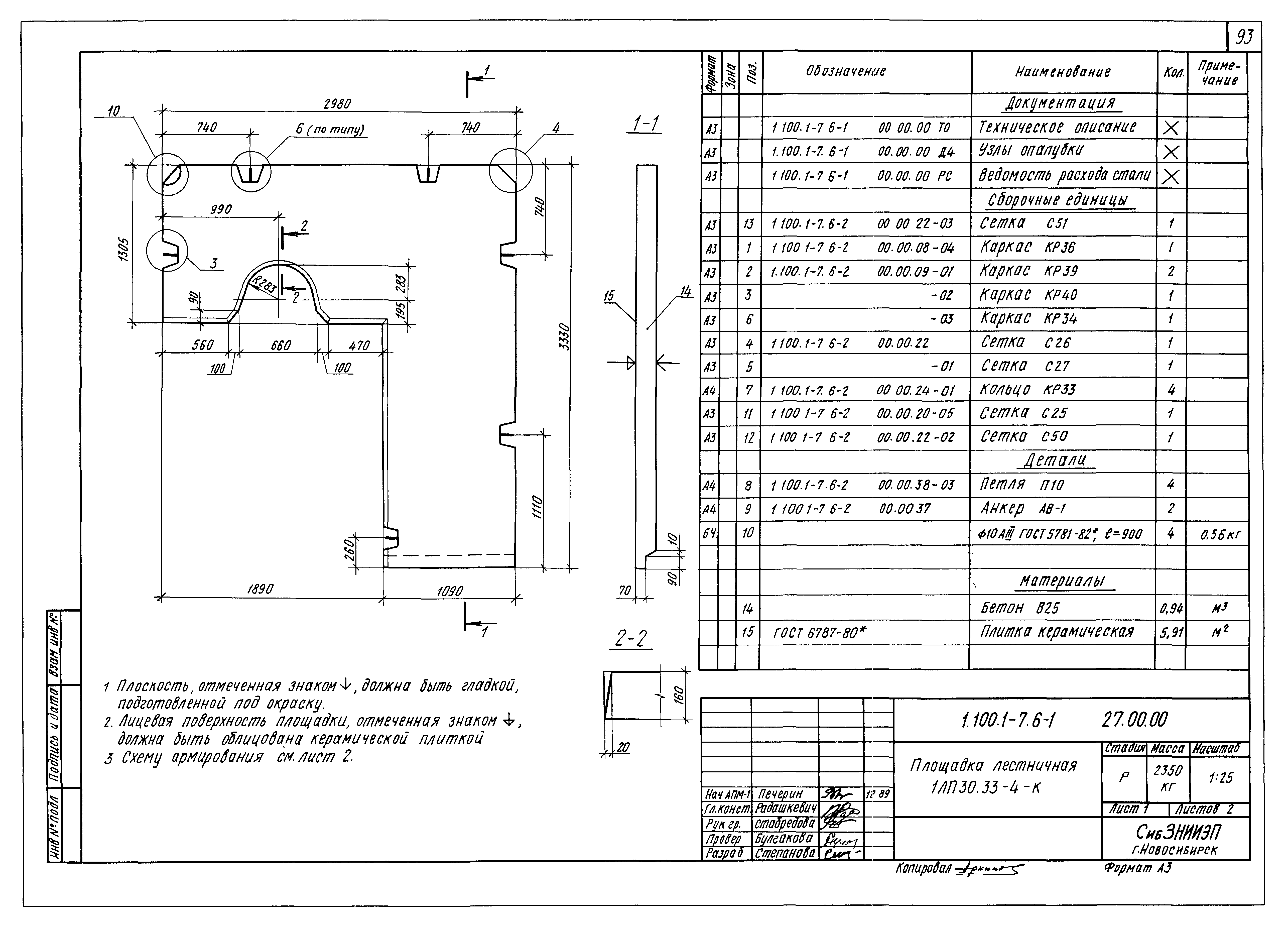
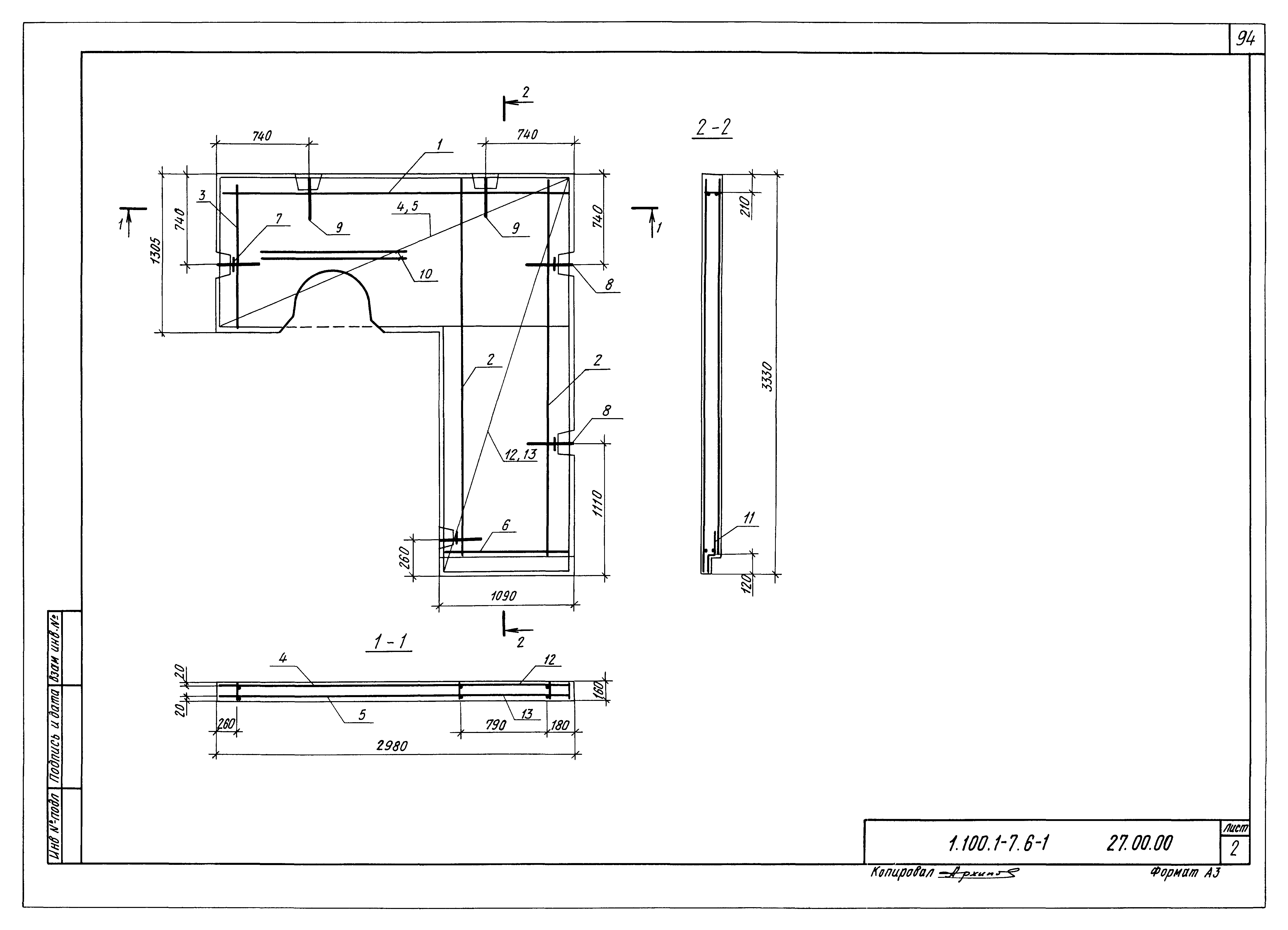
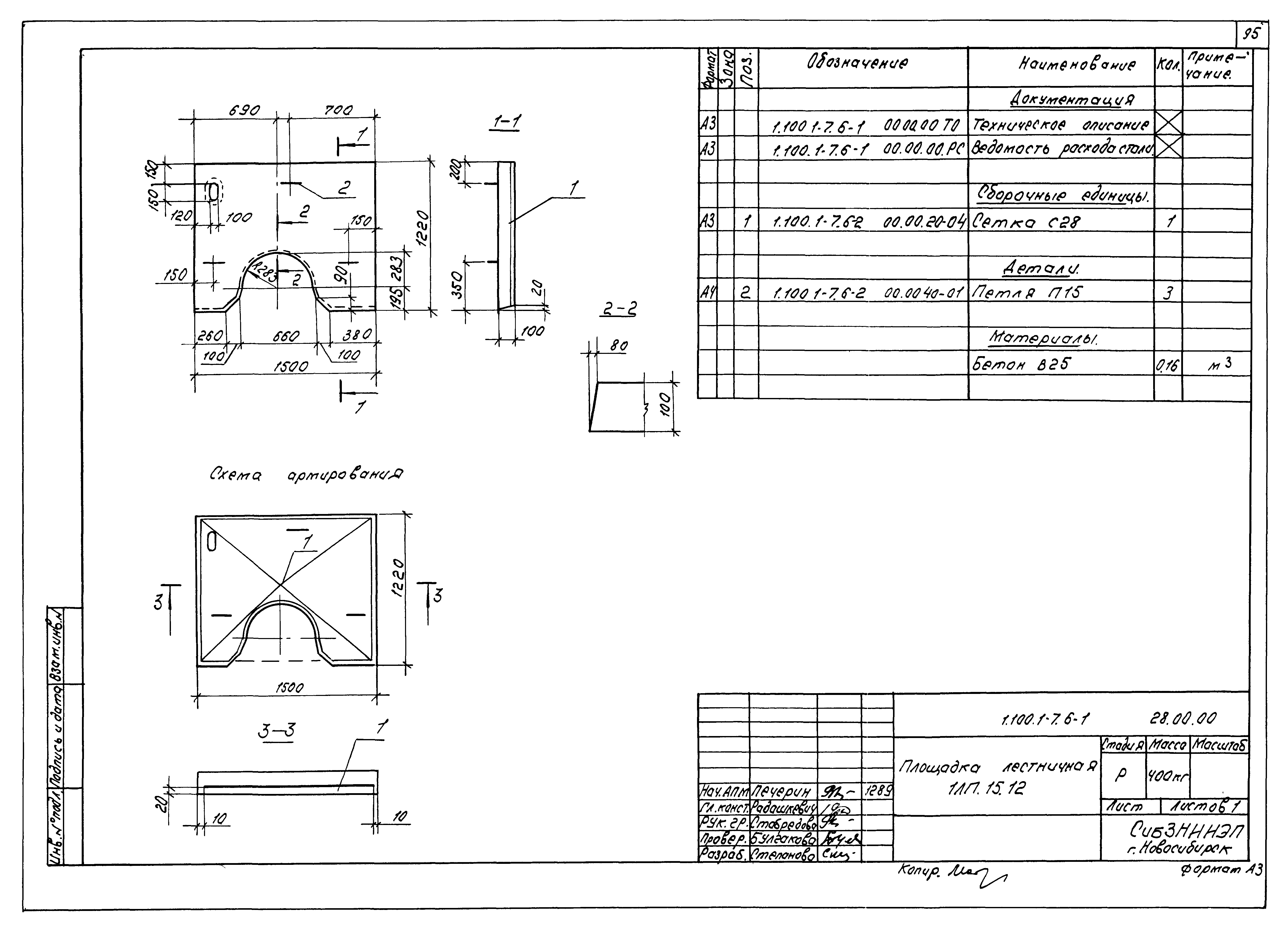
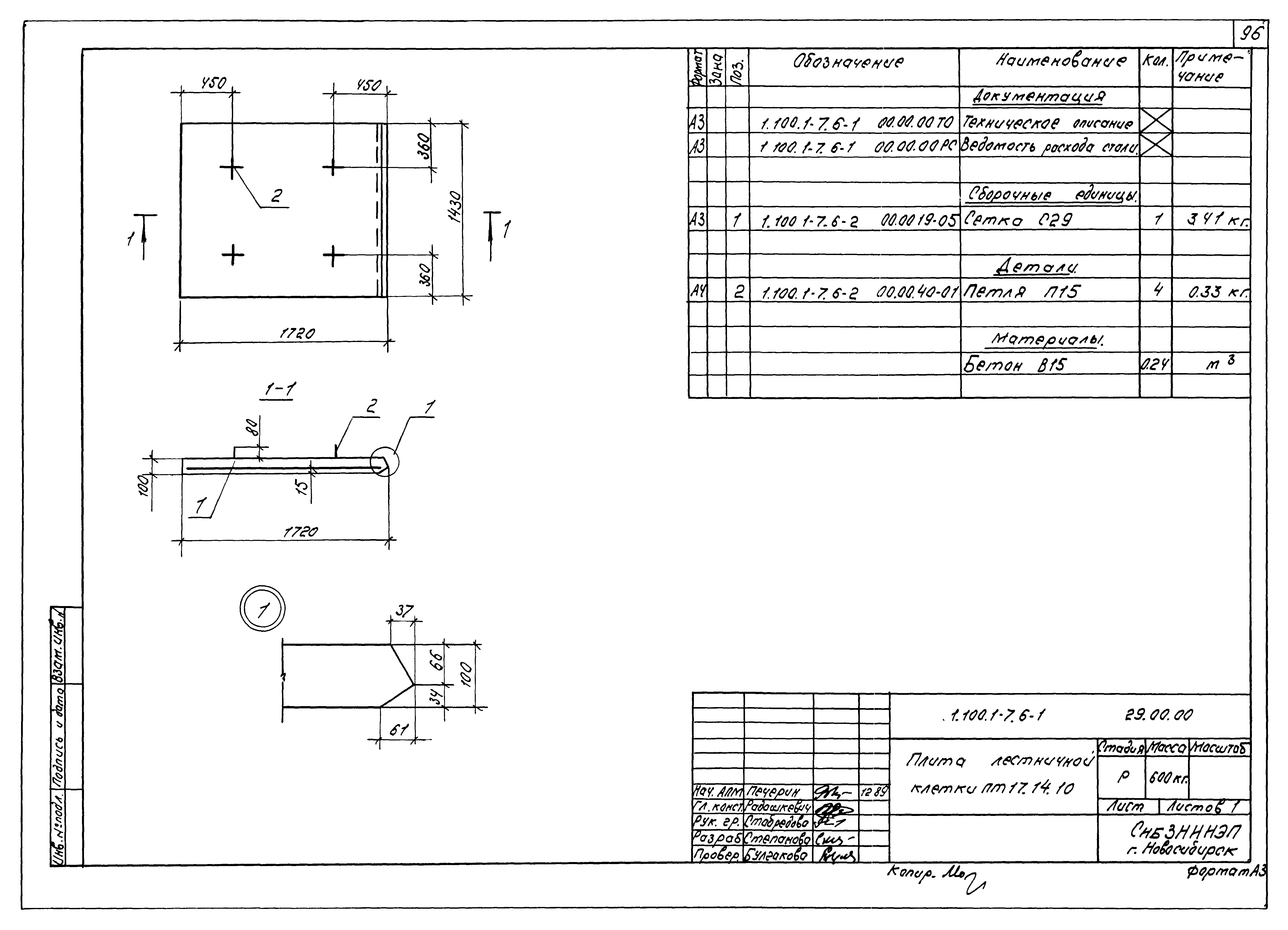
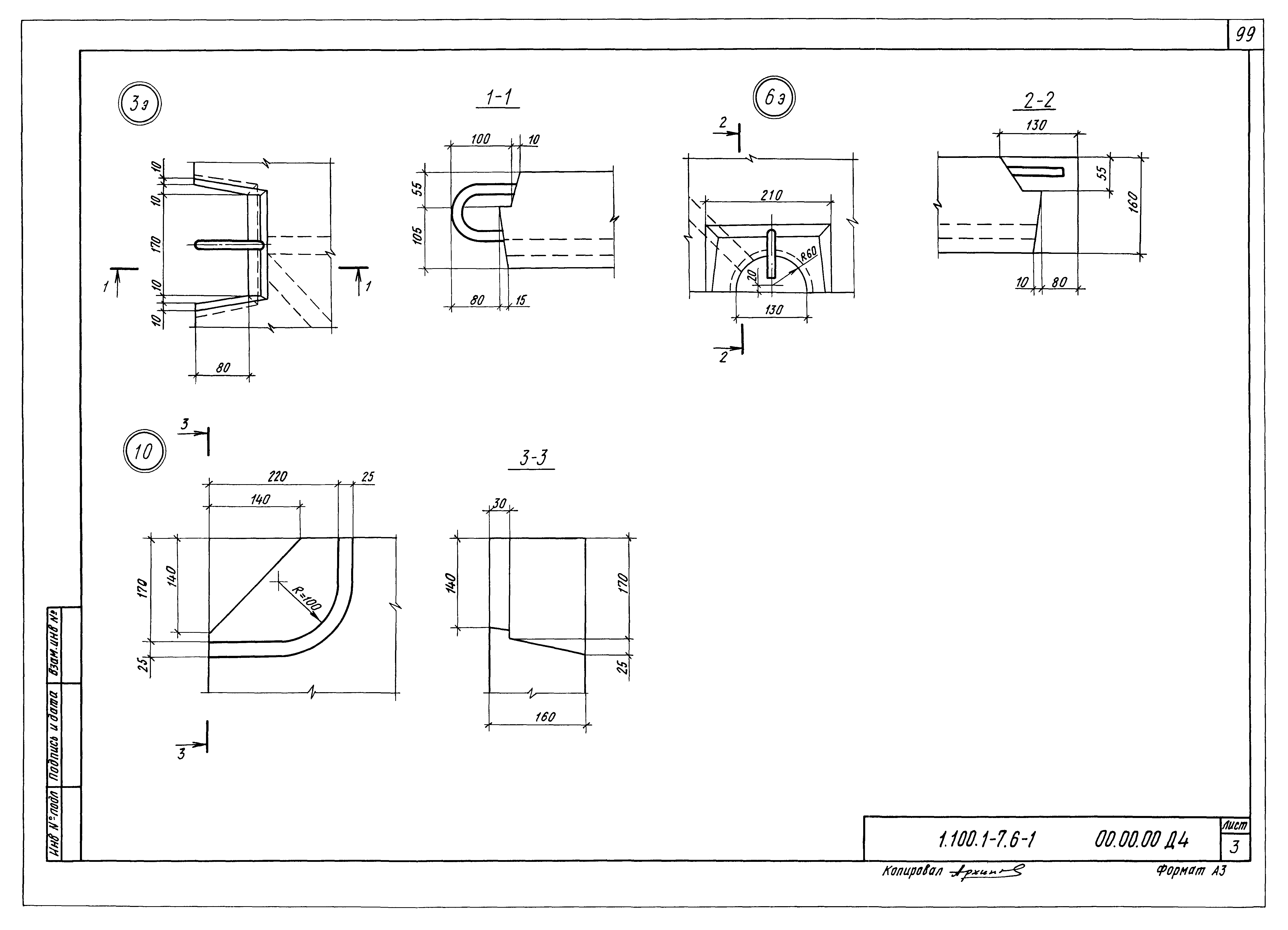
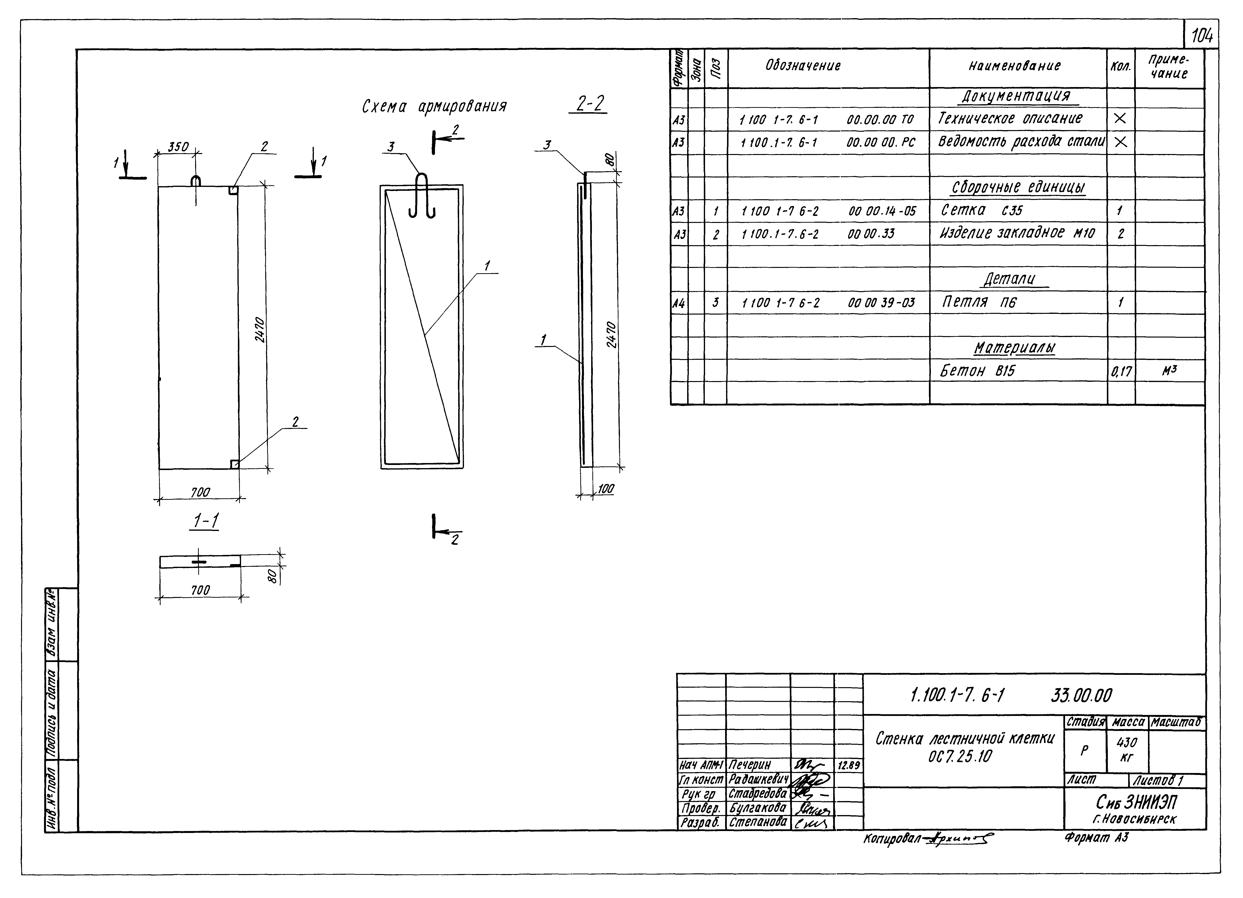
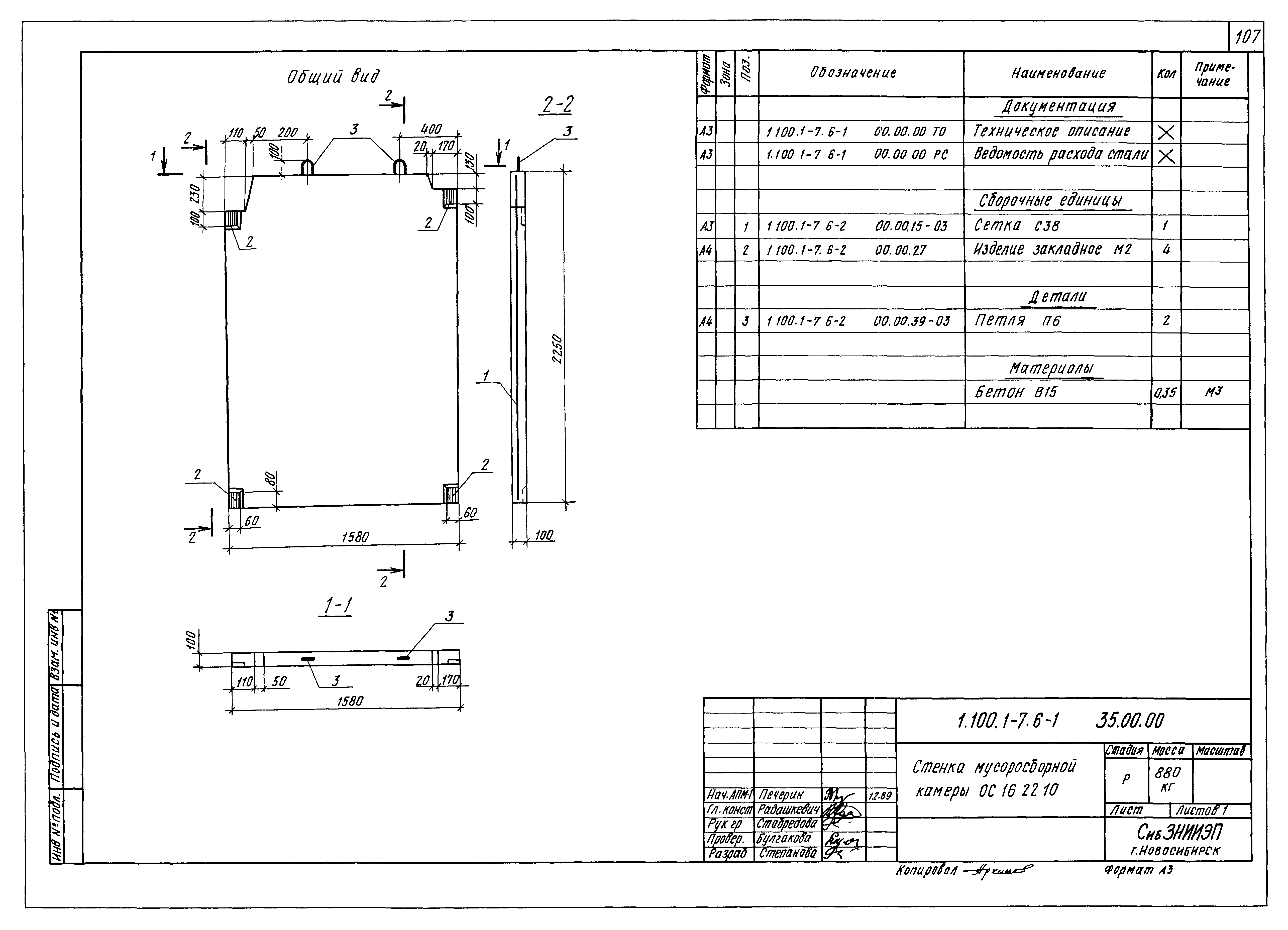
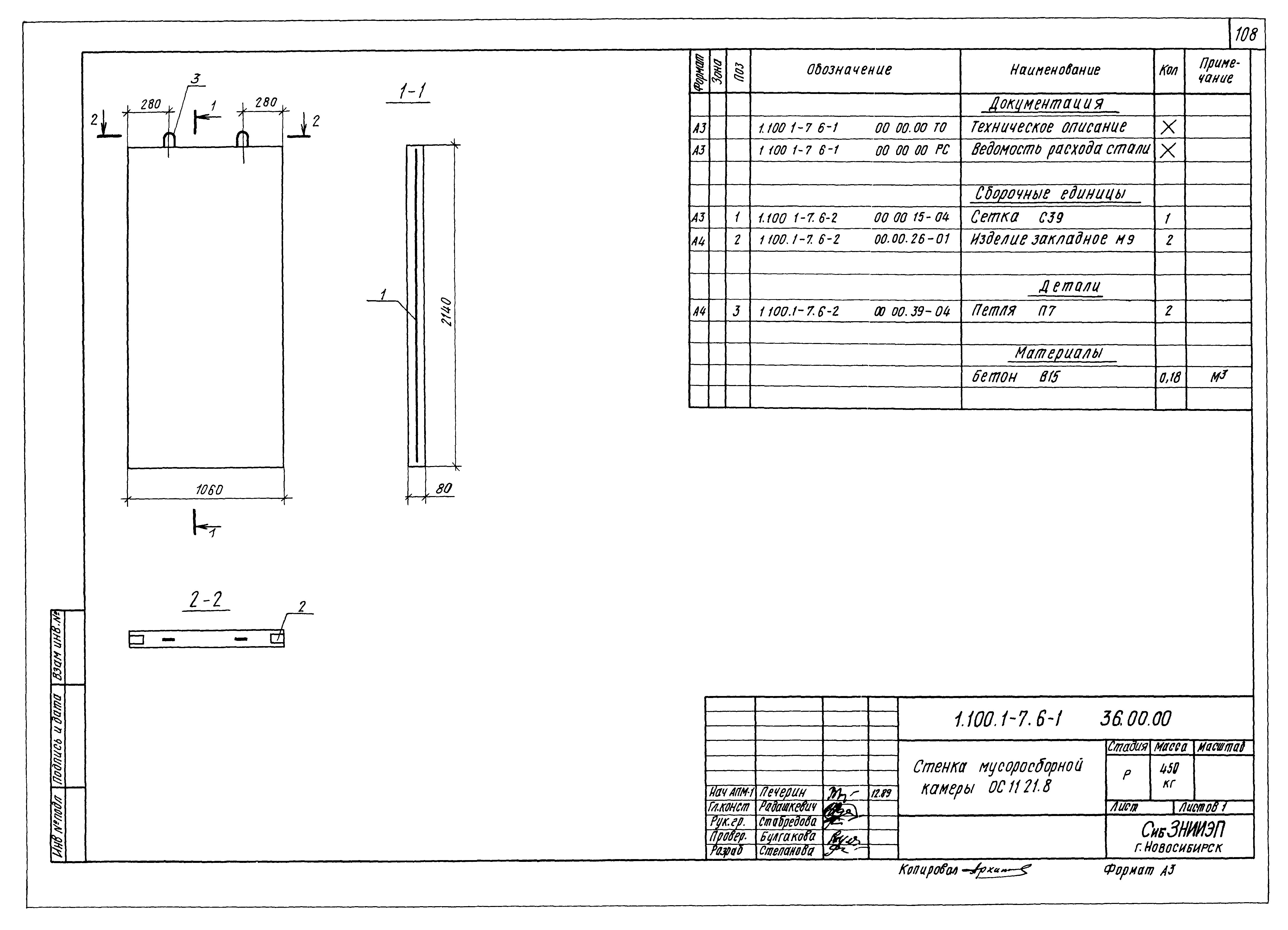
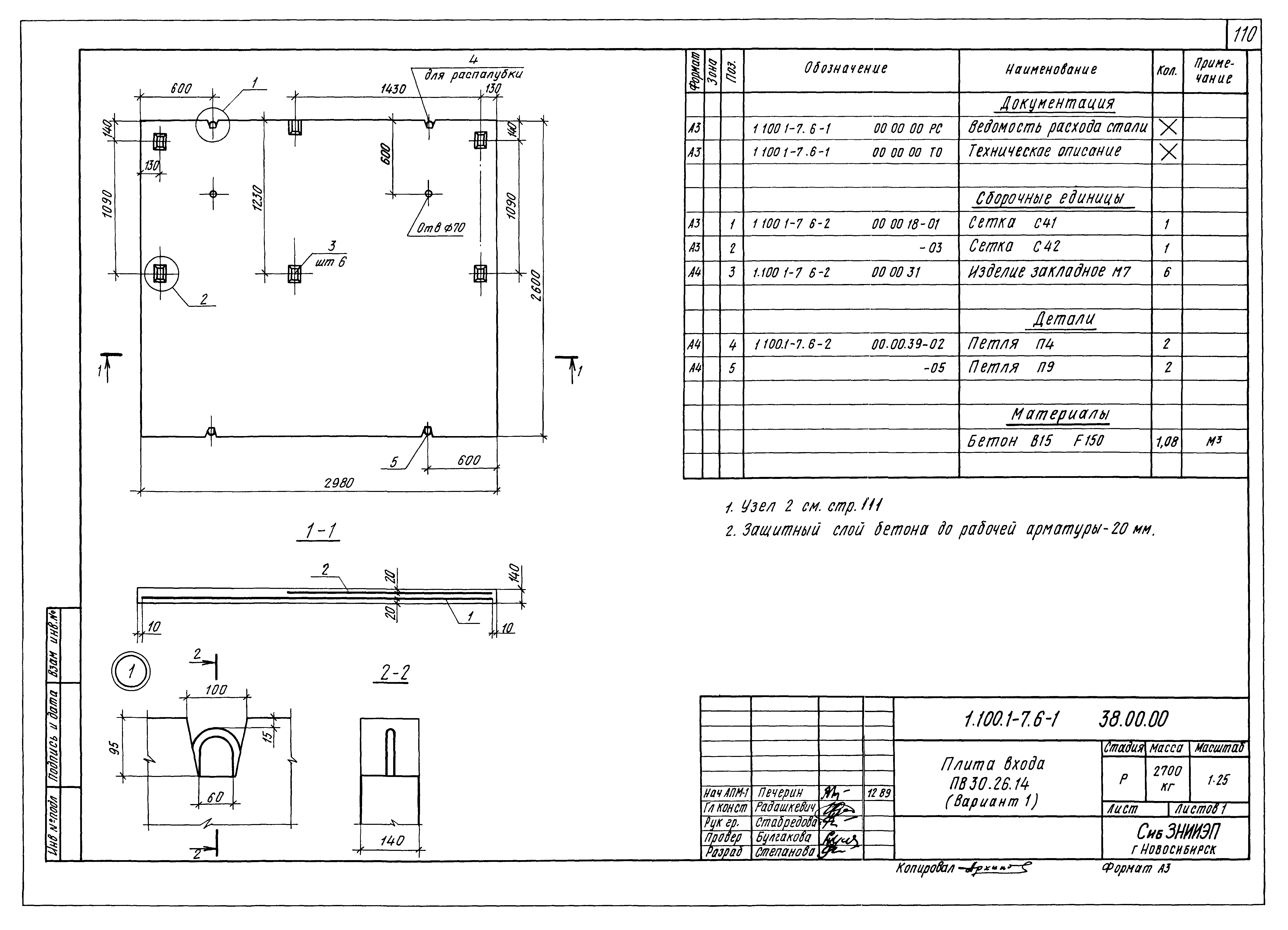
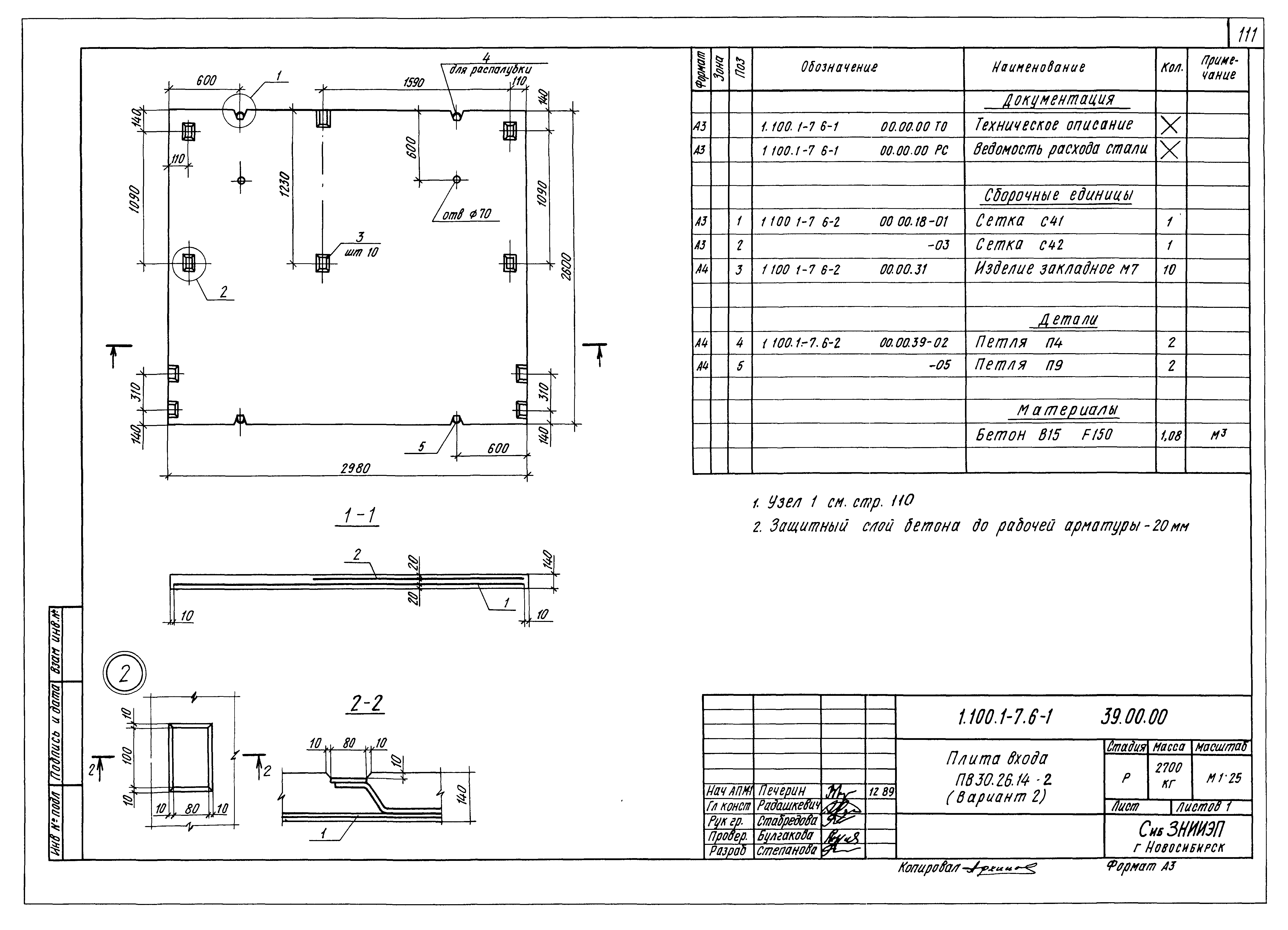
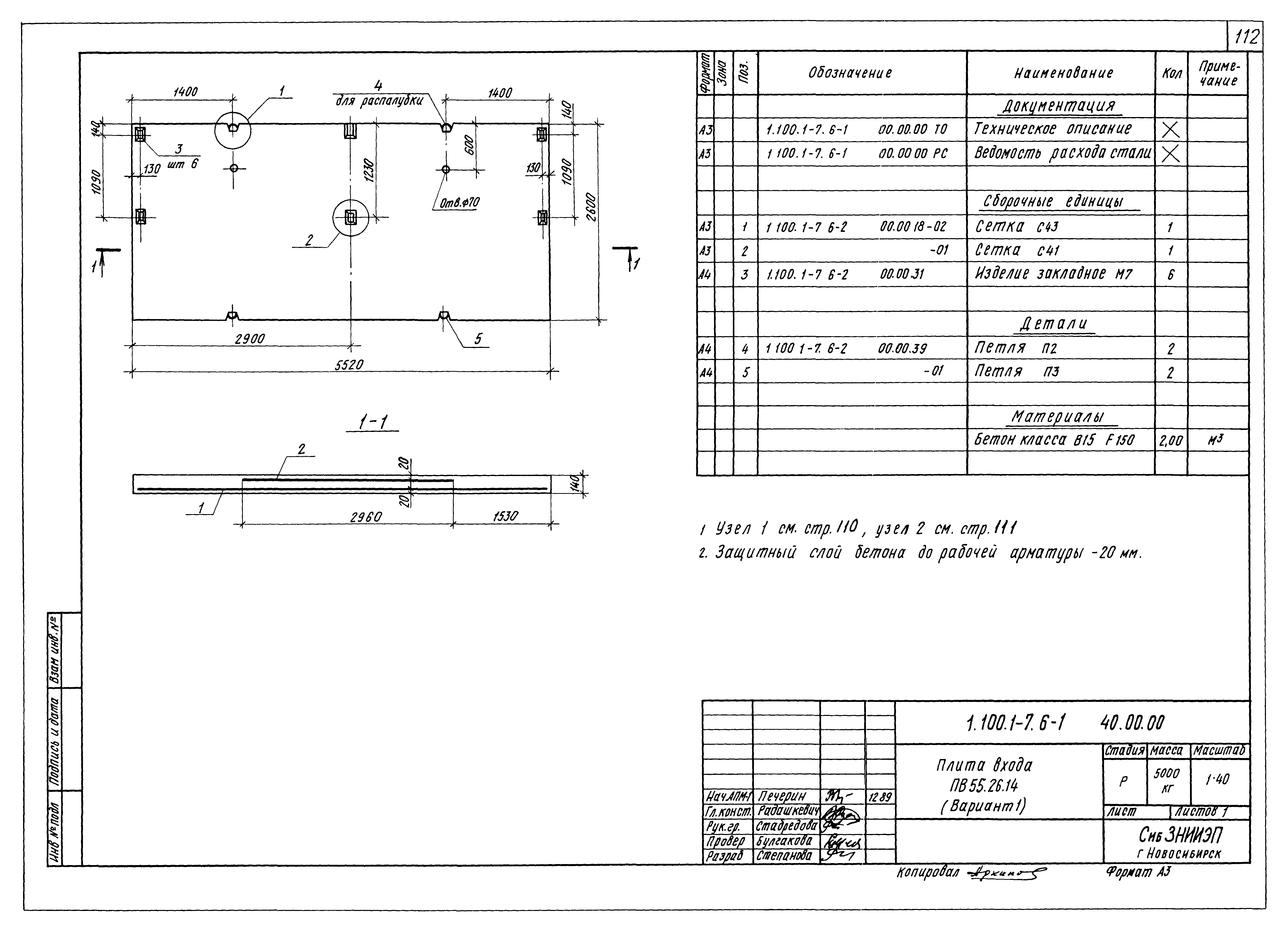
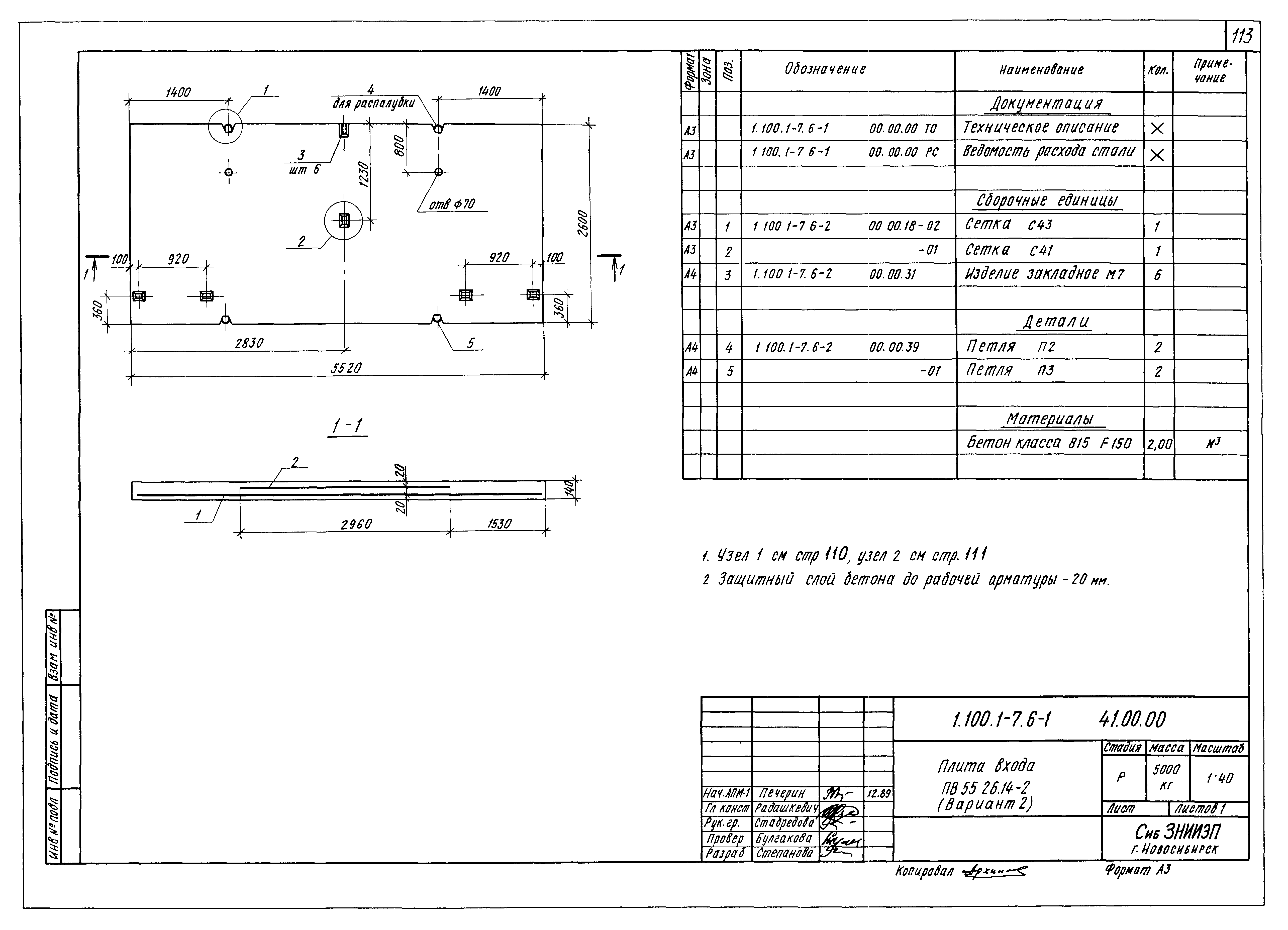
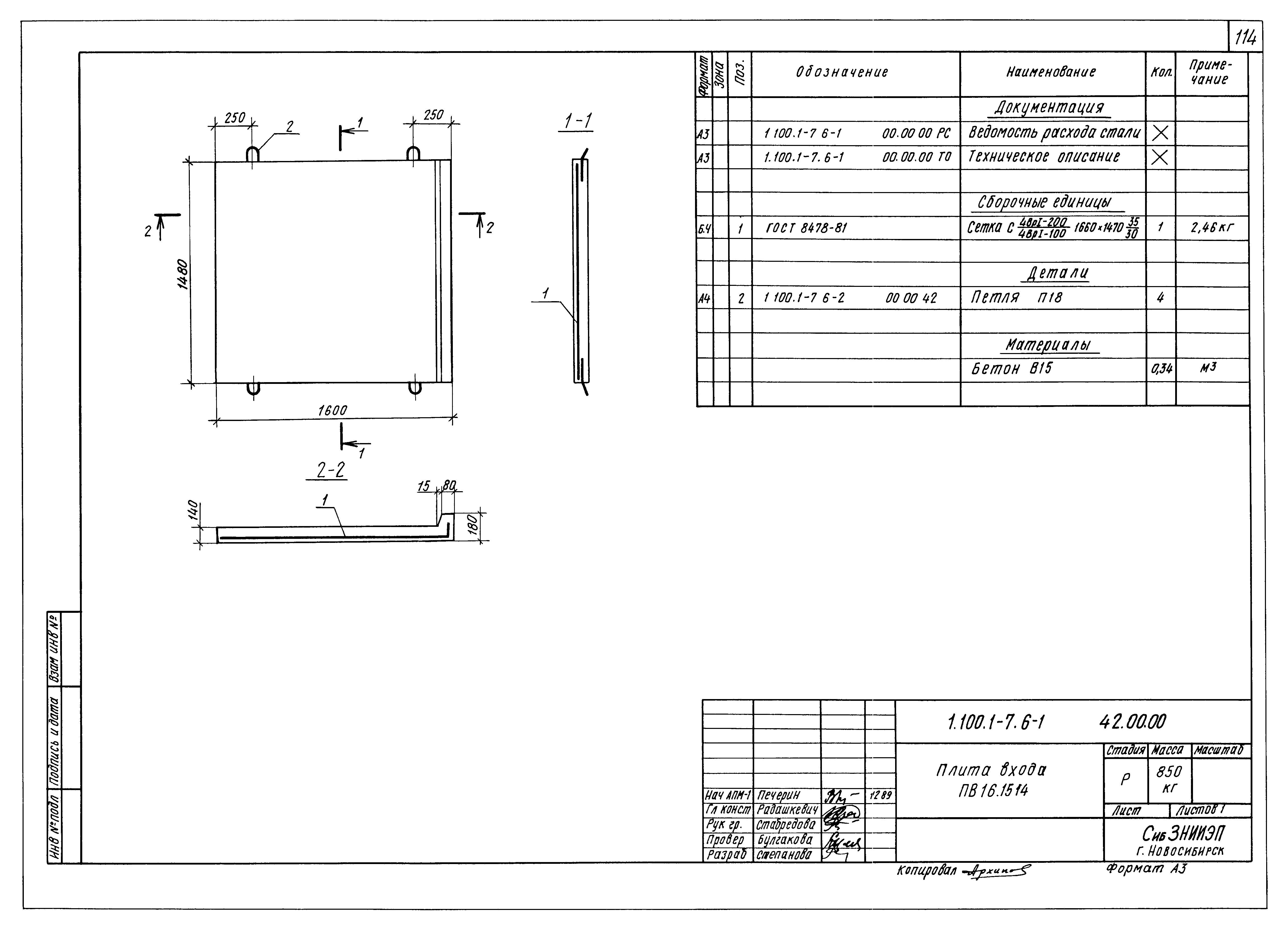
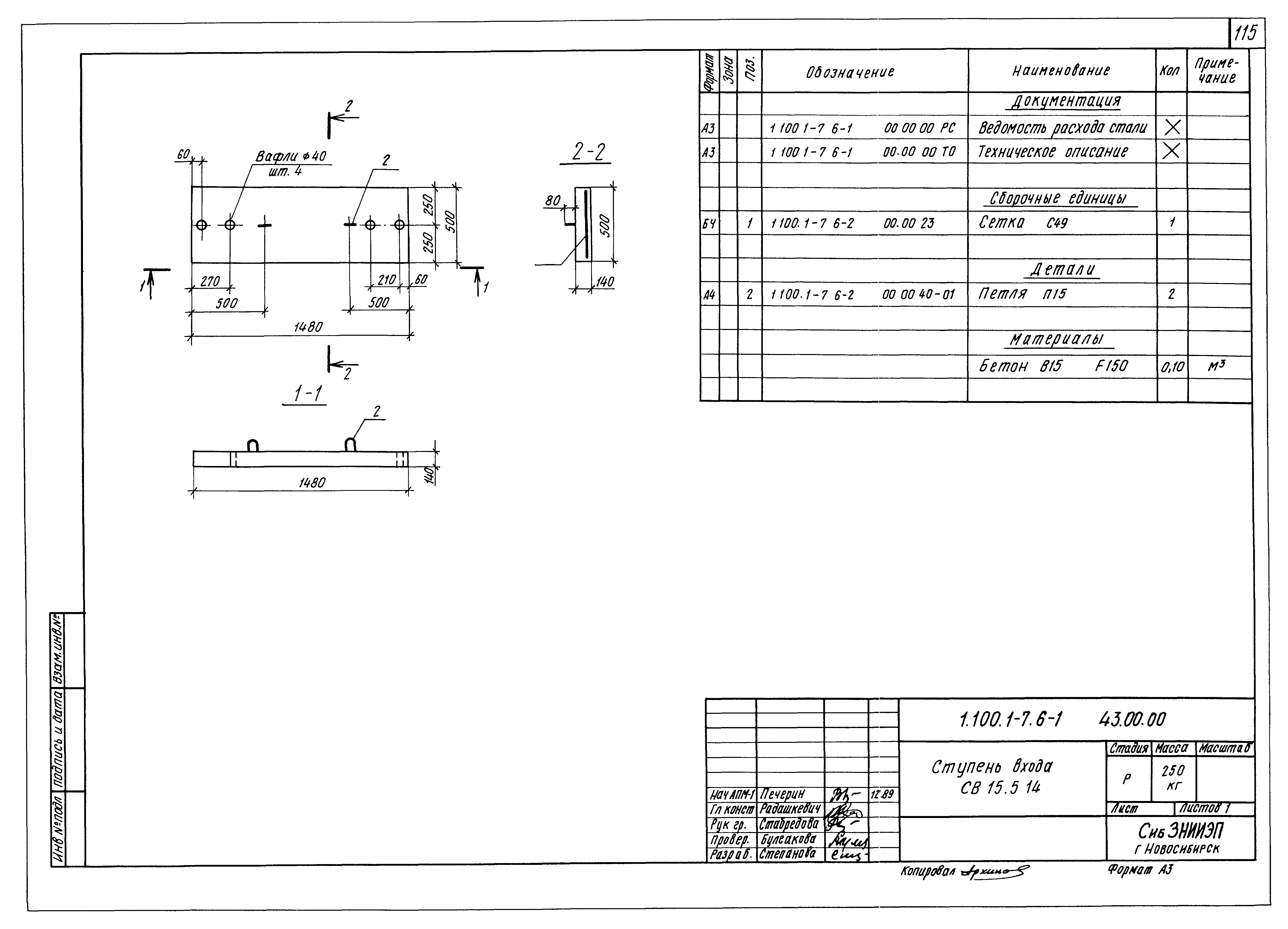
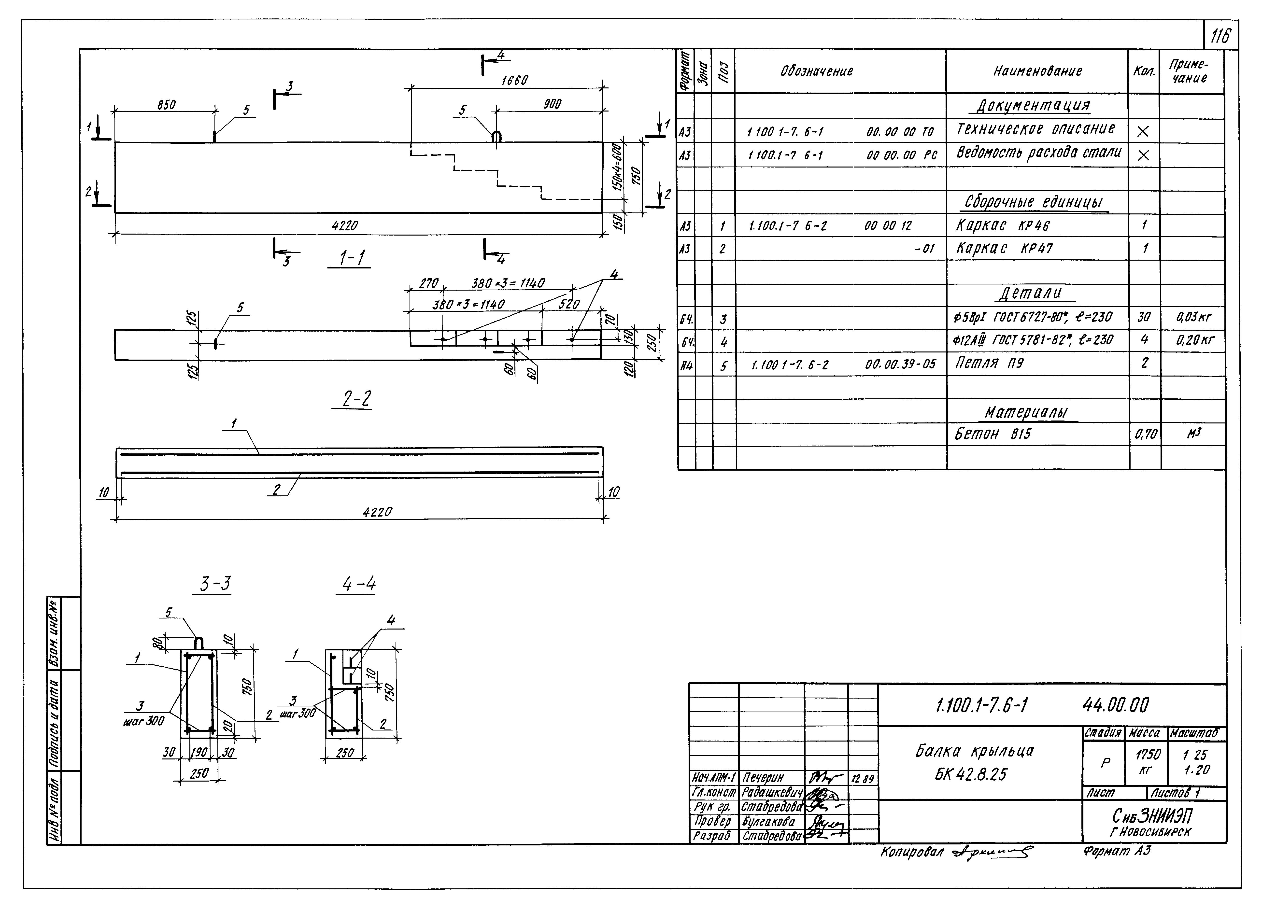
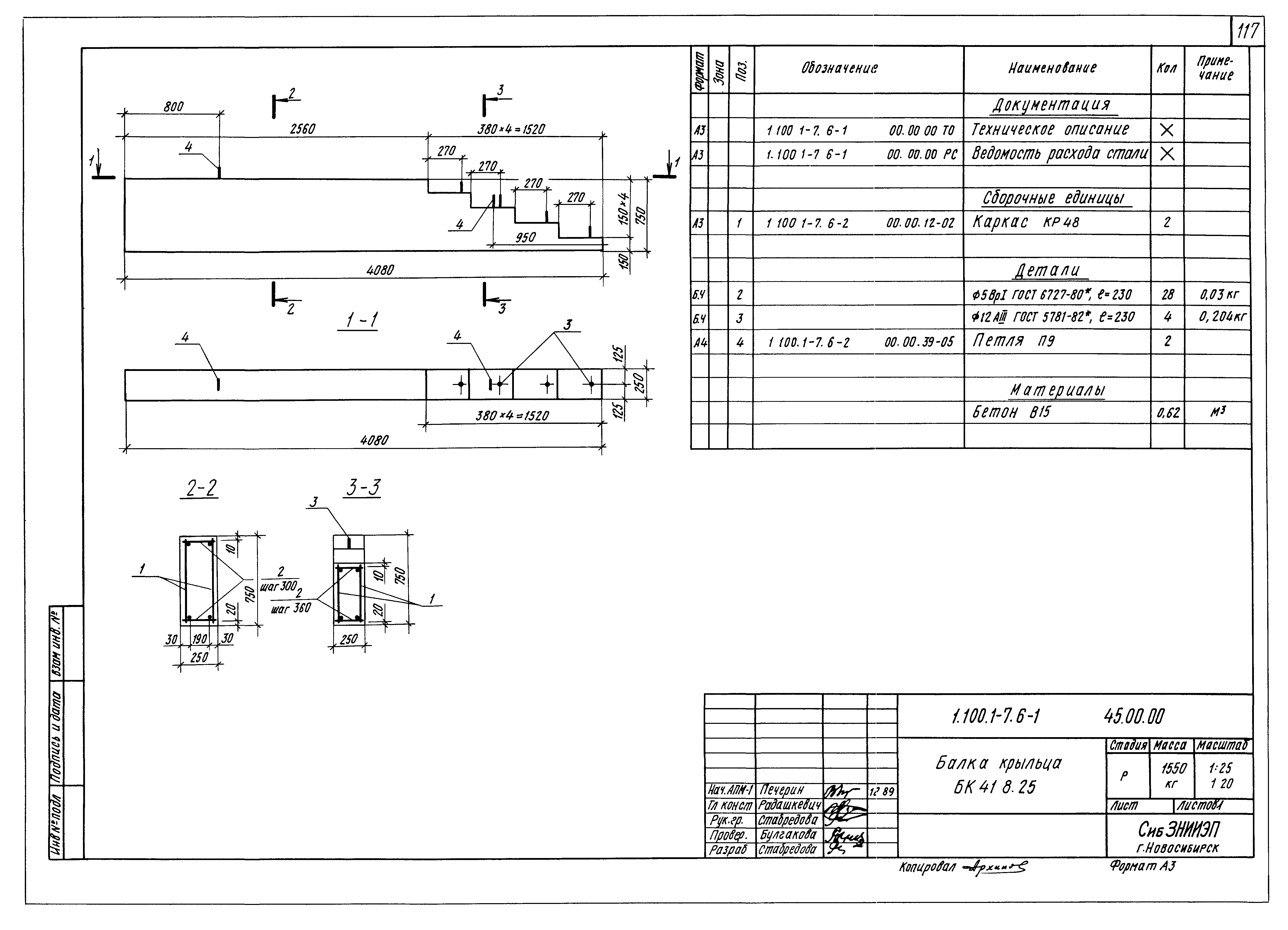
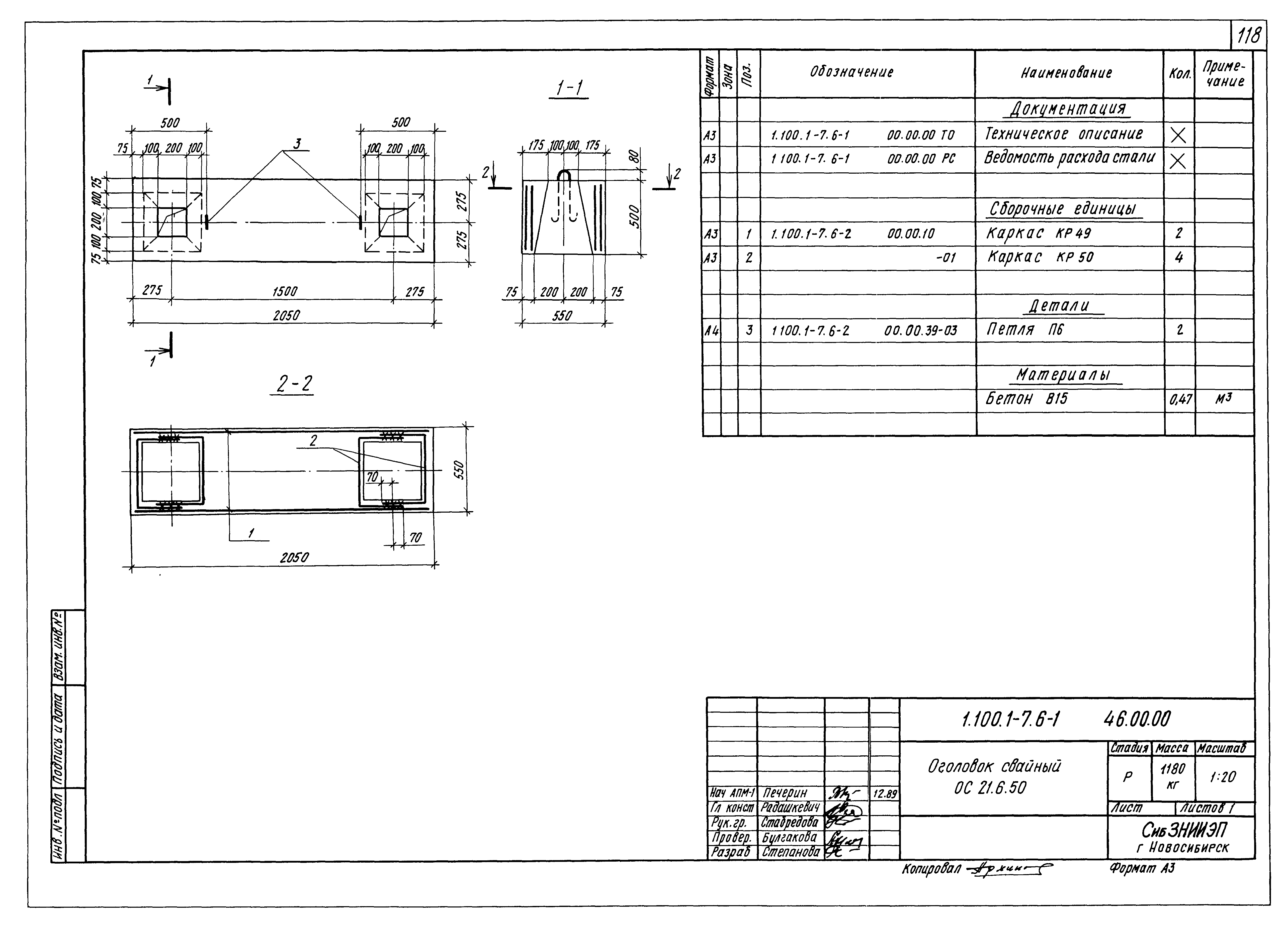
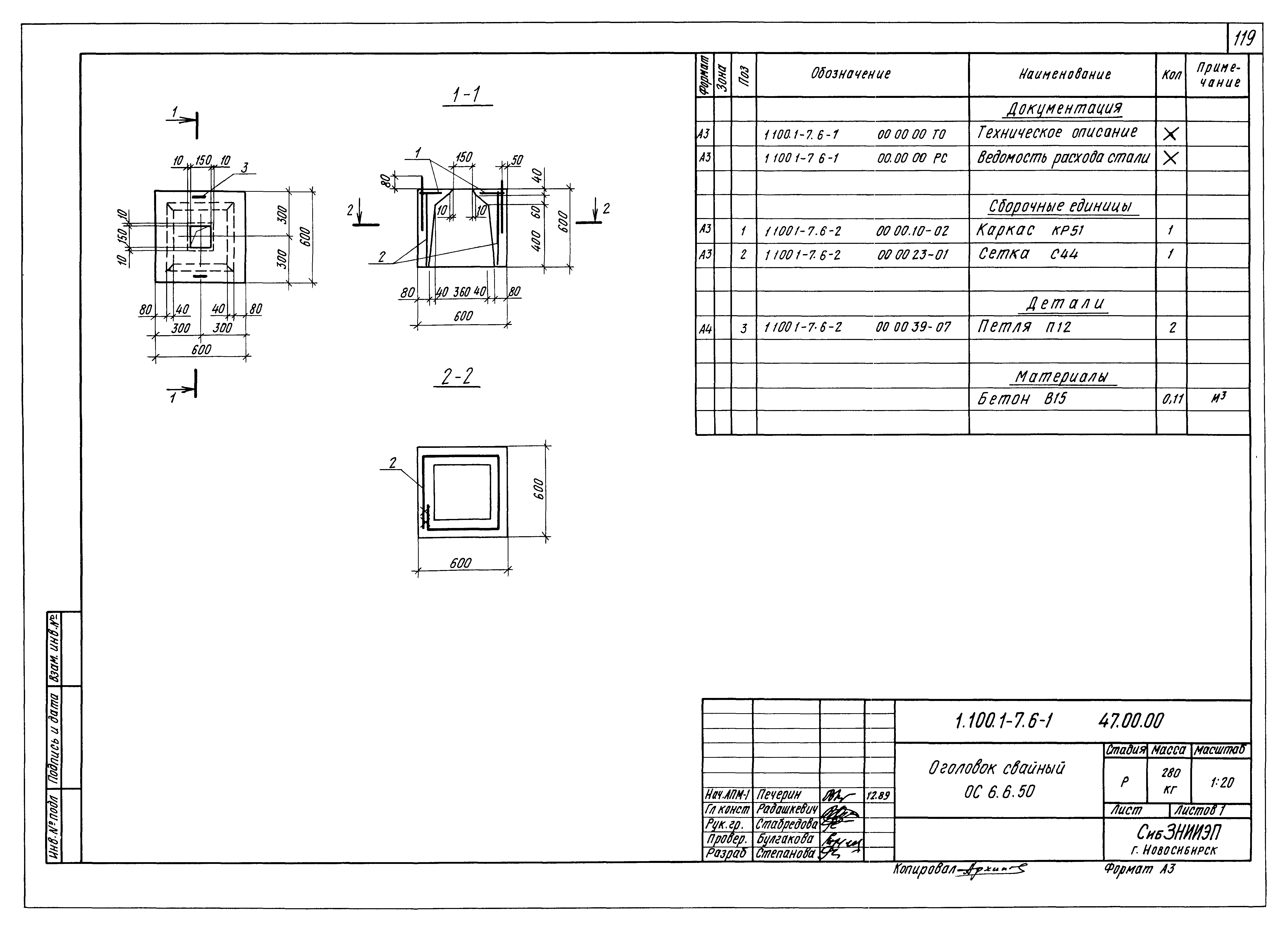
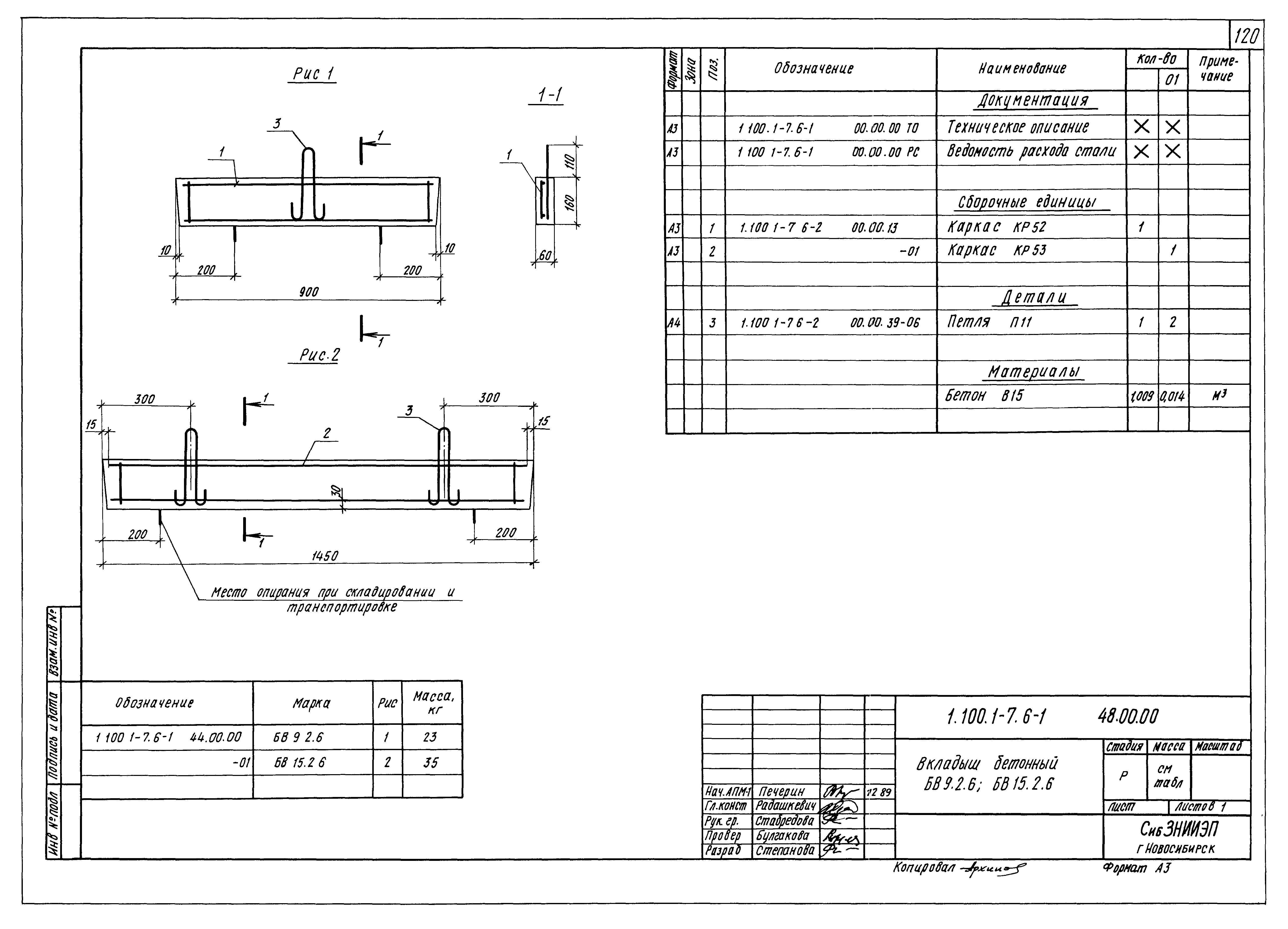
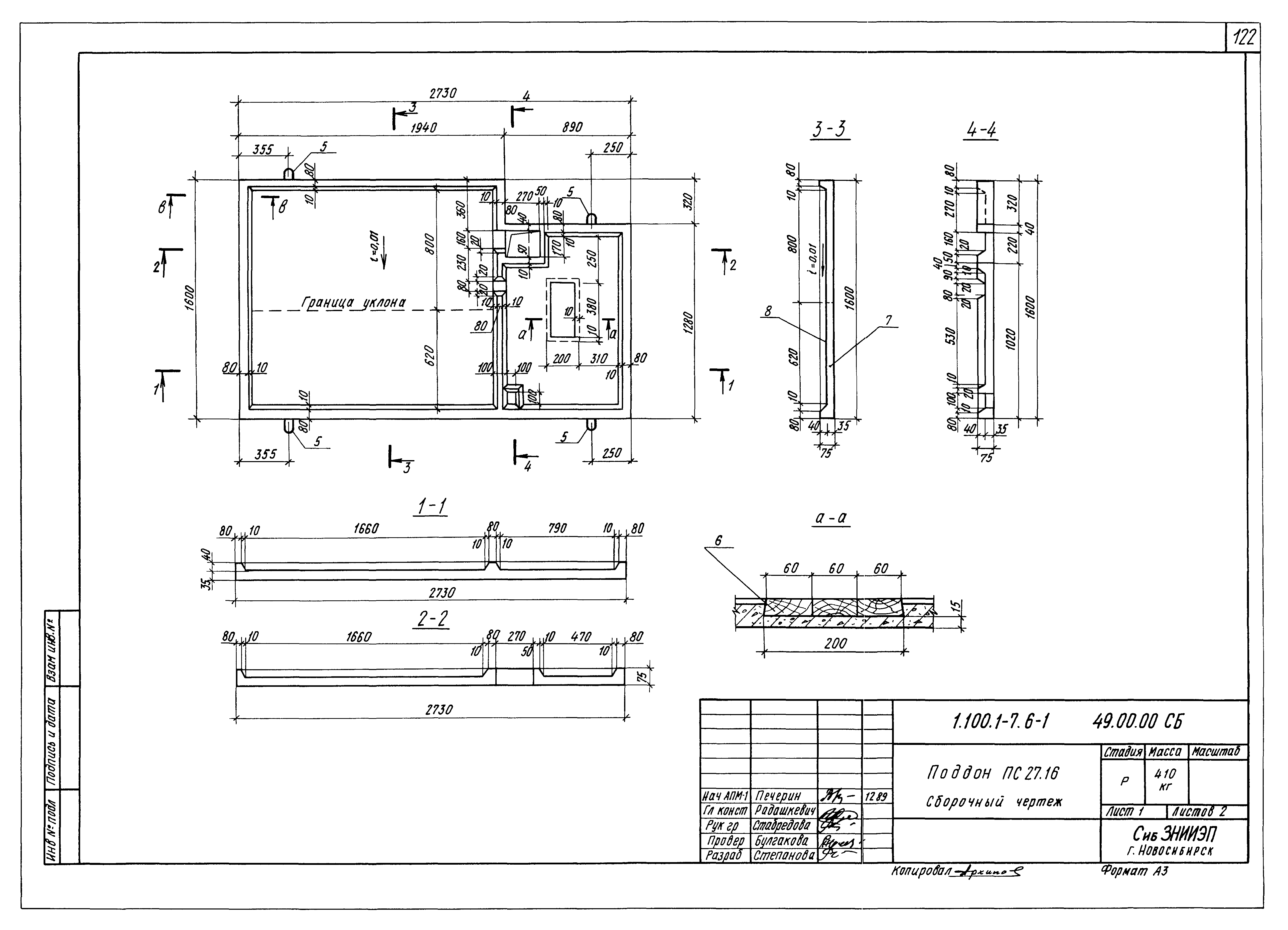
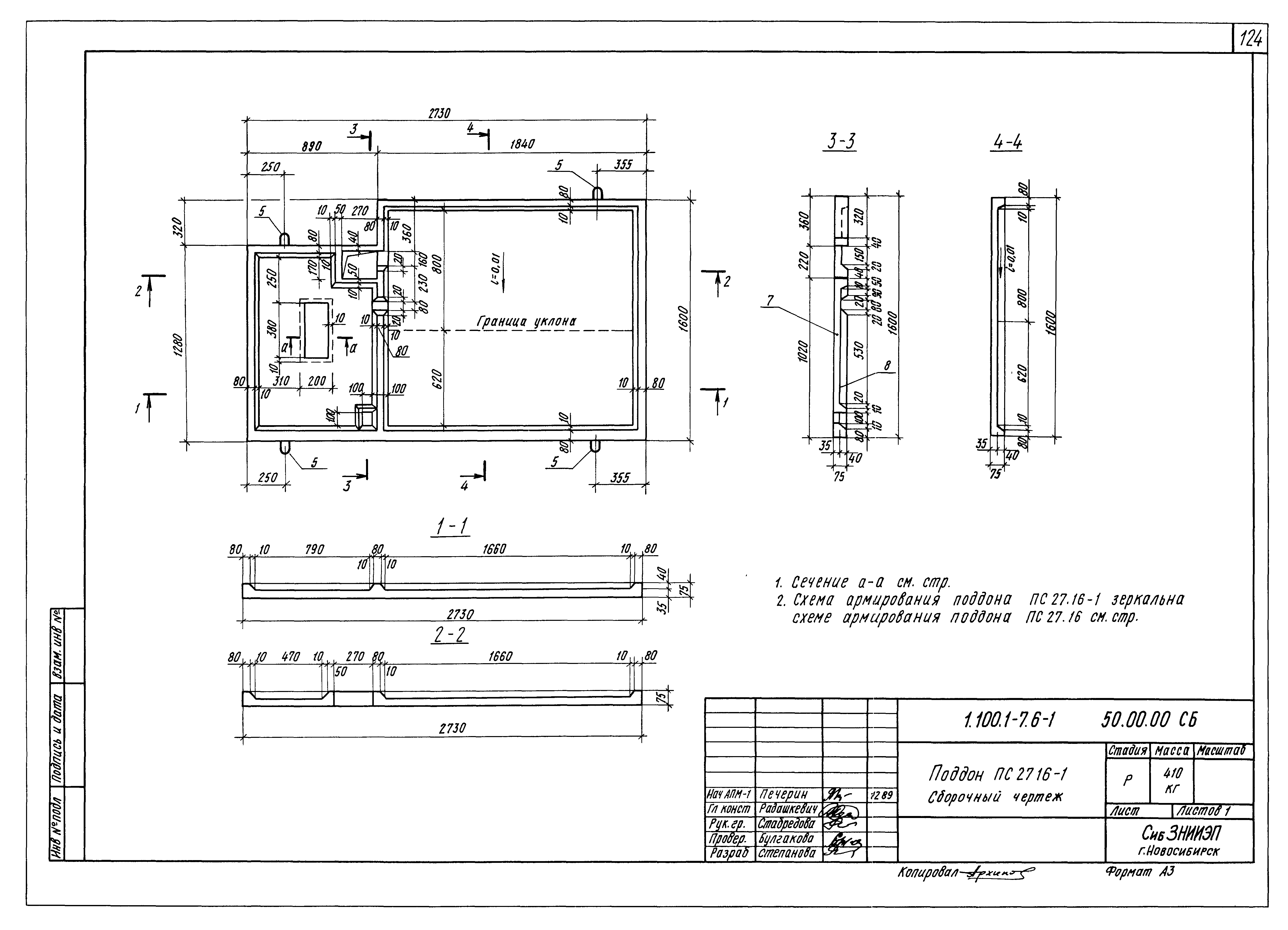
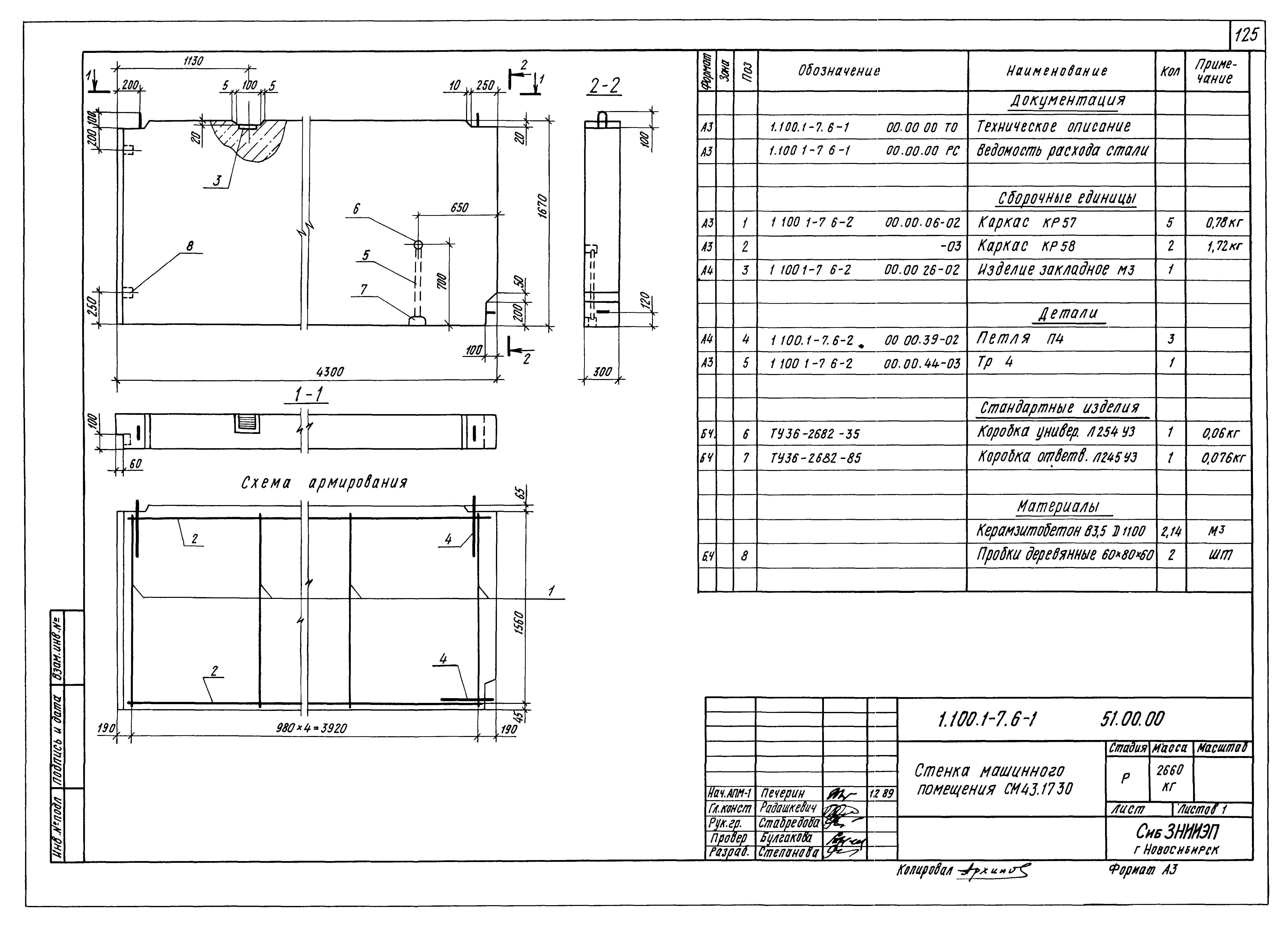
| Оглавление: | 1.100.1-7.6-1 00.00.00 Содержание 1.100.1-7.6-1 00.00.00ТО Техническое описание 1.100.1-7.6-1 00.00.00НИ Номенклатура изделий 1.100.1-7.6-1 01.00.00 Электропанель ВЭ45.28.18 1.100.1-7.6-1 01.00.00 СБ Электропанель ВЭ45.28.18. Сборочный чертеж 1.100.1-7.6-1 01.01.00 Каркас пространственный КП45.28 1.100.1-7.6-1 01.01.00 СБ Каркас пространственный КП45.28. Сборочный чертеж 1.100.1-7.6-1 02.00.00 Электропанель ВЭ45.28.18-2 1.100.1-7.6-1 02.00.00 СБ Электропанель ВЭ45.28.18-2. Сборочный чертеж 1.100.1-7.6-1 02.01.00 Каркас пространственный КП45.28-2 1.100.1-7.6-1 02.01.00 СБ Каркас пространственный КП45.28-2. Сборочный чертеж 1.100.1-7.6-1 03.00.00 Электропанель ВЭ45.28.18-4 1.100.1-7.6-1 03.00.00 СБ Электропанель ВЭ45.28.18-4. Сборочный чертеж 1.100.1-7.6-1 03.01.00 Каркас пространственный КП45.28-4 1.100.1-7.6-1 03.01.00 СБ Каркас пространственный КП45.28-4. Сборочный чертеж 1.100.1-7.6-1 04.00.00 Электропанель ВЭ30.28.18-2 1.100.1-7.6-1 04.01.00 Каркас пространственный КП30.28-2 1.100.1-7.6-1 05.00.00 Электропанель ВЭ30.26.18 1.100.1-7.6-1 05.01.00 Каркас пространственный КП30.26 1.100.1-7.6-1 06.00.00 Электропанель ВЭ30.26.18-1 1.100.1-7.6-1 06.01.00 Каркас пространственный КП30.26-1 1.100.1-7.6-1 00.00.00Д1 Электропанель. Узлы опалубки 1.100.1-7.6-1 07.00.00 Площадки лестничные 2ЛП30.16-4-Ш,2ЛП30.16-4-АШ 1.100.1-7.6-1 07.00.00 СБ Площадки лестничные 2ЛП30.16-4-Ш,2ЛП30.16-4-АШ. Сборочный чертеж 1.100.1-7.6-1 08.00.00 Площадка лестничная 2ЛП30.19-4-Ш 1.100.1-7.6-1 08.00.00 СБ Площадка лестничная 2ЛП30.19-4-Ш. Сборочный чертеж 1.100.1-7.6-1 09.00.00 Площадка лестничная 2ЛП30.19-4-2Ш 1.100.1-7.6-1 09.00.00 СБ Площадка лестничная 2ЛП30.19-4-2Ш. Сборочный чертеж 1.100.1-7.6-1 10.00.00 Площадка лестничная 2ЛП30.25-4-Ш 1.100.1-7.6-1 11.00.00 Площадка лестничная 2ЛП45.21-4-Ш 1.100.1-7.6-1 11.00.00 СБ Площадка лестничная 2ЛП45.21-4-Ш. Сборочный чертеж 1.100.1-7.6-1 12.00.00 Площадка лестничная 2ЛП45.19-4-Ш 1.100.1-7.6-1 12.00.00 СБ Площадка лестничная 2ЛП45.19-4-Ш. Сборочный чертеж 1.100.1-7.6-1 13.00.00 Площадки лестничные 2ЛП45.25-4-Ш,2ЛП45.25-4-АШ 1.100.1-7.6-1 13.00.00 СБ Площадки лестничные 2ЛП45.25-4-Ш,2ЛП45.25-4-АШ. Сборочный чертеж 1.100.1-7.6-1 00.00.00Д2 Узлы 1...3 1.100.1-7.6-1 14.00.00 Плита лестничной клетки ПТ17.14.10-2 1.100.1-7.6-1 15.00.00 Плита лестничной клетки ПТ17.17.10 1.100.1-7.6-1 16.00.00 Плита вкладыш ПМ28.3.8 1.100.1-7.6-1 17.00.00 Марш лестничный 2ЛМ19.12.9-4 1.100.1-7.6-1 18.00.00 Марш лестничный 2ЛМ29.12.14-4 1.100.1-7.6-1 00.00.00Д3 Марши лестничные. Узлы сопряжения с лестничными площадками. Узлы 1,2 1.100.1-7.6-1 19.00.00 Площадка лестничная 1ЛП28.30-4-К 1.100.1-7.6-1 20.00.00 Площадка лестничная 1ЛП28.30-4-МК 1.100.1-7.6-1 21.00.00 Площадка лестничная 1ЛП28.12-4-МК 1.100.1-7.6-1 22.00.00 Площадка лестничная 1ЛП30.15-4-К 1.100.1-7.6-1 23.00.00 Площадка лестничная 1ЛП30.21-4-К 1.100.1-7.6-1 24.00.00 Площадка лестничная 1ЛП30.21-4-МК 1.100.1-7.6-1 25.00.00 Площадка лестничная 1ЛП30.27-4-К 1.100.1-7.6-1 26.00.00 Площадка лестничная 1ЛП30.27-4-ОК 1.100.1-7.6-1 27.00.00 Площадка лестничная 1ЛП30.33-4-К 1.100.1-7.6-1 28.00.00 Площадка лестничная 1ЛП15.12 1.100.1-7.6-1 29.00.00 Плита лестничной клетки ПТ17.14.10 1.100.1-7.6-1 00.00.00Д4 Узлы 1.100.1-7.6-1 30.00.00 Марш лестничный ЛМ29.13.14-4 1.100.1-7.6-1 31.00.00 Марш лестничный ЛМ19.3.9-4 1.100.1-7.6-1 00.00.00Д5 Марши лестничные. Узлы сопряжения с лестничными площадками. Узлы 1,2 1.100.1-7.6-1 32.00.00 Стенка мусоросборной камеры ОС22.22.70 1.100.1-7.6-1 33.00.00 Стенка лестничной клетки ОС7.25.10 1.100.1-7.6-1 34.00.00 Стенка лестничной клетки ОС22.25-8 1.100.1-7.6-1 35.00.00 Стенка мусоросборной камеры ОС16.22.10 1.100.1-7.6-1 36.00.00 Стенка мусоросборной камеры ОС11.21.8 1.100.1-7.6-1 37.00.00 Стенка мусоросборной камеры ОС14.21.8 1.100.1-7.6-1 38.00.00 Плита входа ПВ30.26.14 (вариант 1) 1.100.1-7.6-1 39.00.00 Плита входа ПВ30.26.14-2 (вариант 2) 1.100.1-7.6-1 40.00.00 Плита входа ПВ55.26.14 (вариант 1) 1.100.1-7.6-1 41.00.00 Плита входа ПВ55.26.14-2 (вариант 2) 1.100.1-7.6-1 42.00.00 Плита входа ПВ16.15.14 1.100.1-7.6-1 43.00.00 Ступень входа СВ15.5.14 1.100.1-7.6-1 44.00.00 Балка крыльца БК42.8.25 1.100.1-7.6-1 45.00.00 Балка крыльца БК41.8.25 1.100.1-7.6-1 46.00.00 Оголовок свайный ОС21.6.50 1.100.1-7.6-1 47.00.00 Оголовок свайный ОС6.6.50 1.100.1-7.6-1 48.00.00 Вкладыши бетонные БВ9.2.6,БВ15.2.6 1.100.1-7.6-1 49.00.00 Поддон ПС27.16 1.100.1-7.6-1 50.00.00 Поддон ПС27.16-1 1.100.1-7.6-1 49.00.00 СБ Поддон ПС27.16. Сборочный чертеж 1.100.1-7.6-1 50.00.00 СБ Поддон ПС27.16-л. Сборочный чертеж 1.100.1-7.6-1 51.00.00 Стенка машинного помещения СМ43.17.30 1.100.1-7.6-1 00.00.00РС Ведомость расхода стали |
| Разработан: | СибЗНИИЭП Госгражданстроя |
| Утверждён: | 23.03.1990 Госкомархитектура (46) |































































































































