Скачать Серия 1.130.1-1с Выпуск 0-1. Элементы внутренних стен. Материалы для проектированияДата актуализации: 01.01.2021
|
| Обозначение: | Серия 1.130.1-1с |
| Обозначение англ: | Series 1.130.1-1с |
| Статус: | не определен законодательством |
| Название рус.: | Выпуск 0-1. Элементы внутренних стен. Материалы для проектирования |
| Дата добавления в базу: | 01.09.2013 |
| Дата актуализации: | 01.01.2021 |
| Дата введения: | 01.07.1987 |
| Дата окончания срока действия: | 30.06.2003 |
| Область применения: | Типовые решения элементов и узлов монолитных и сборно-монолитных жилых зданий высотой до 16 этажей включительно, для строительства в условиях сейсмичности 7, 8 и 9 баллов при возведении их в переставных опалубках системы "Гражданстрой" |
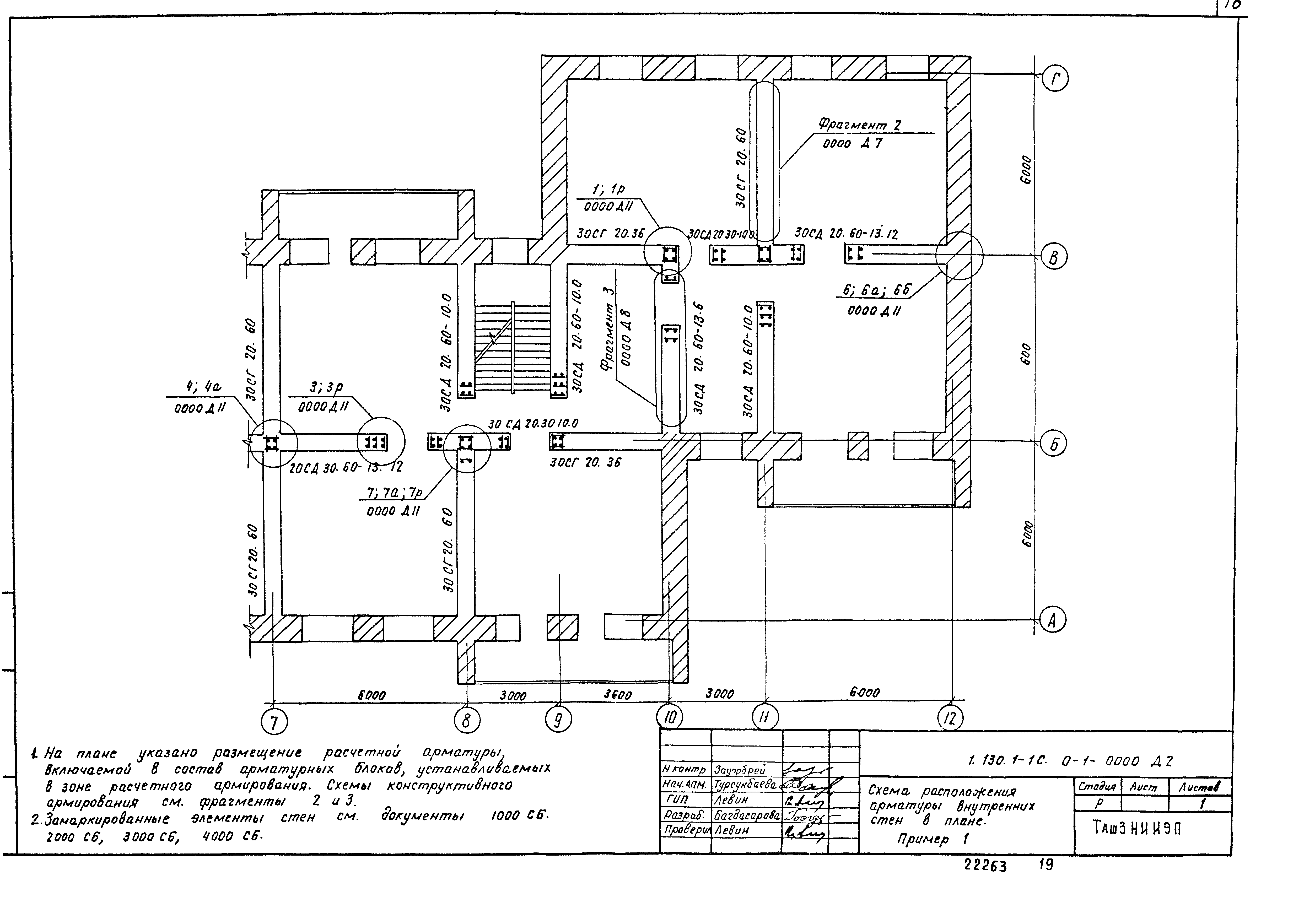
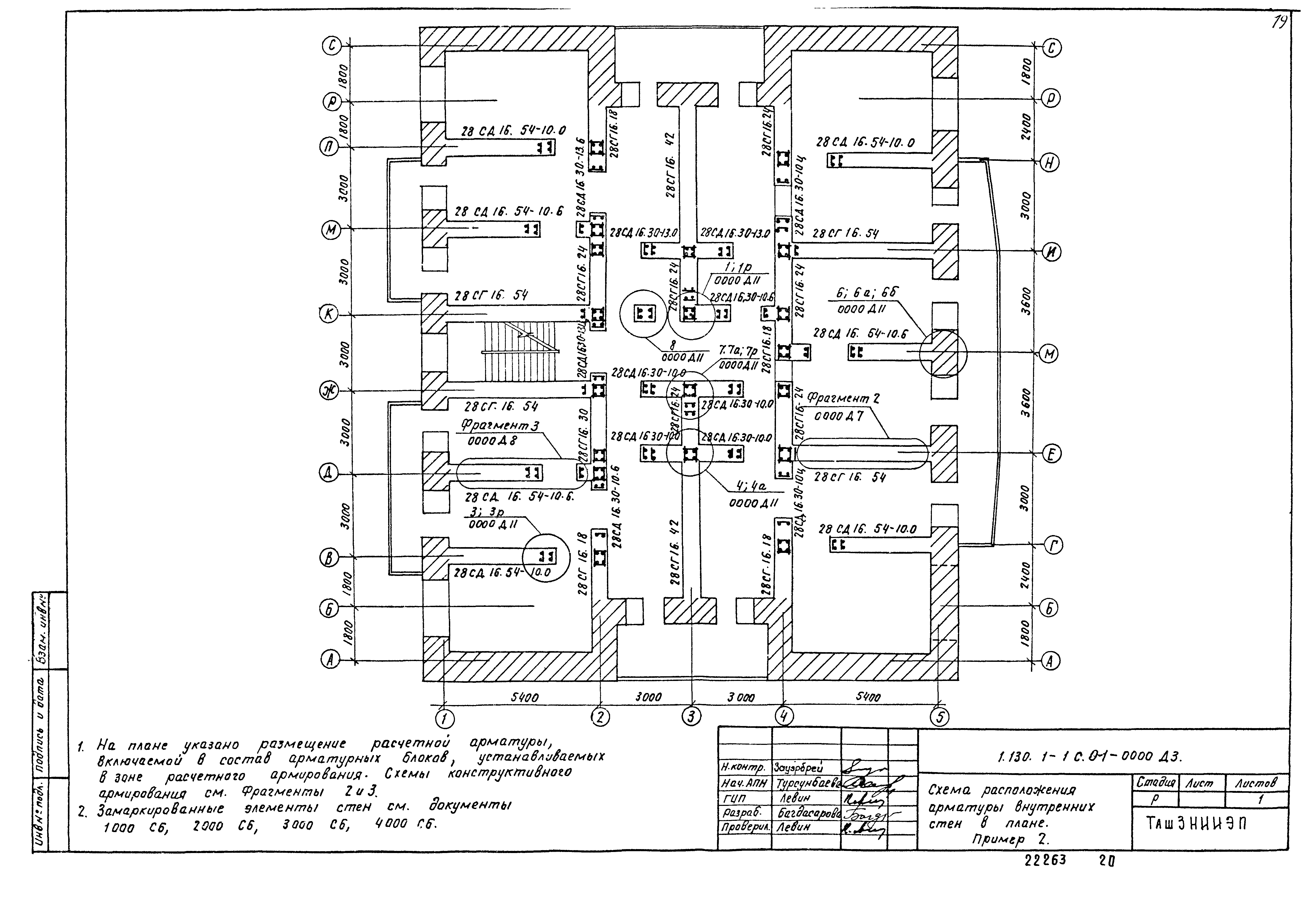
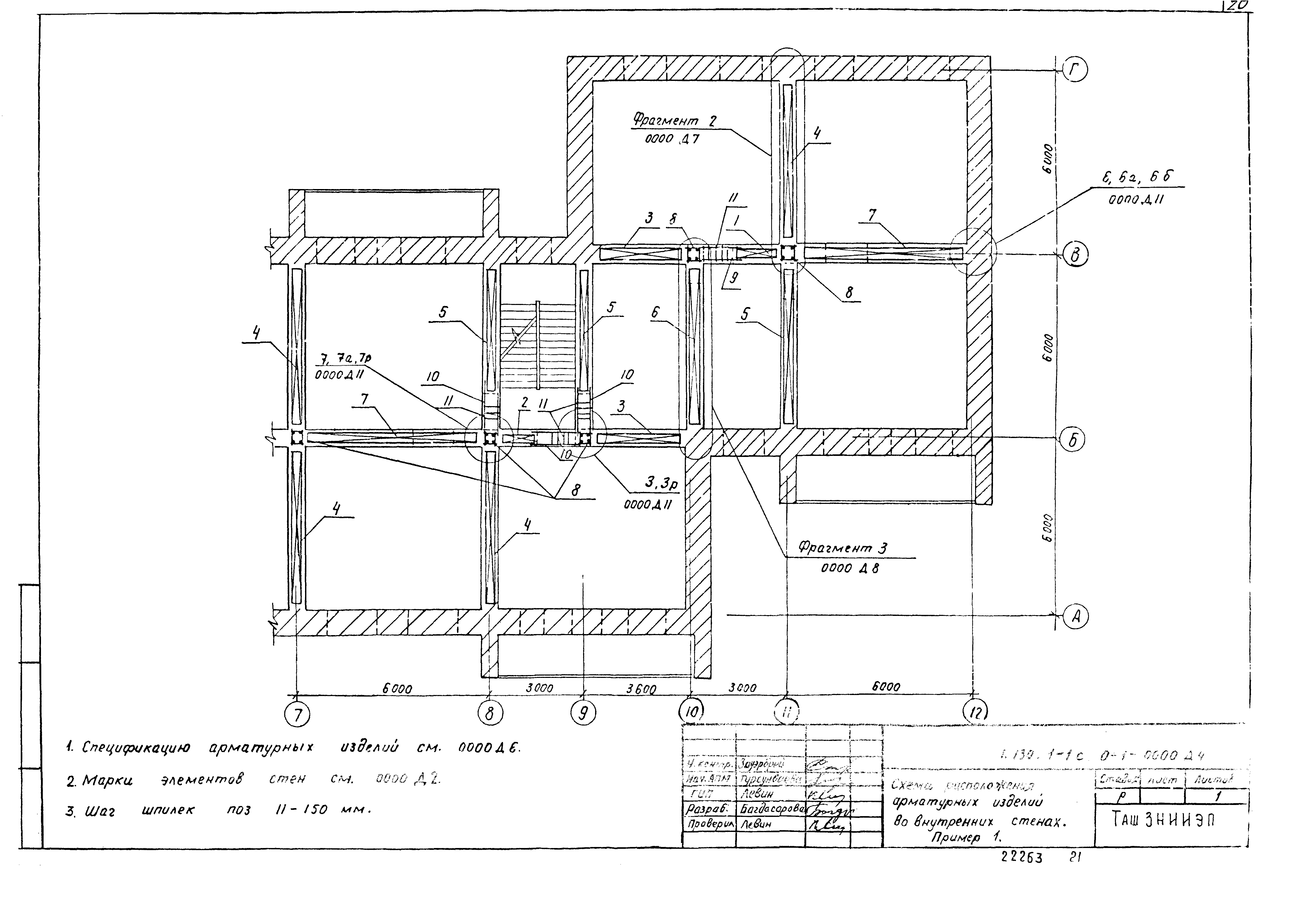
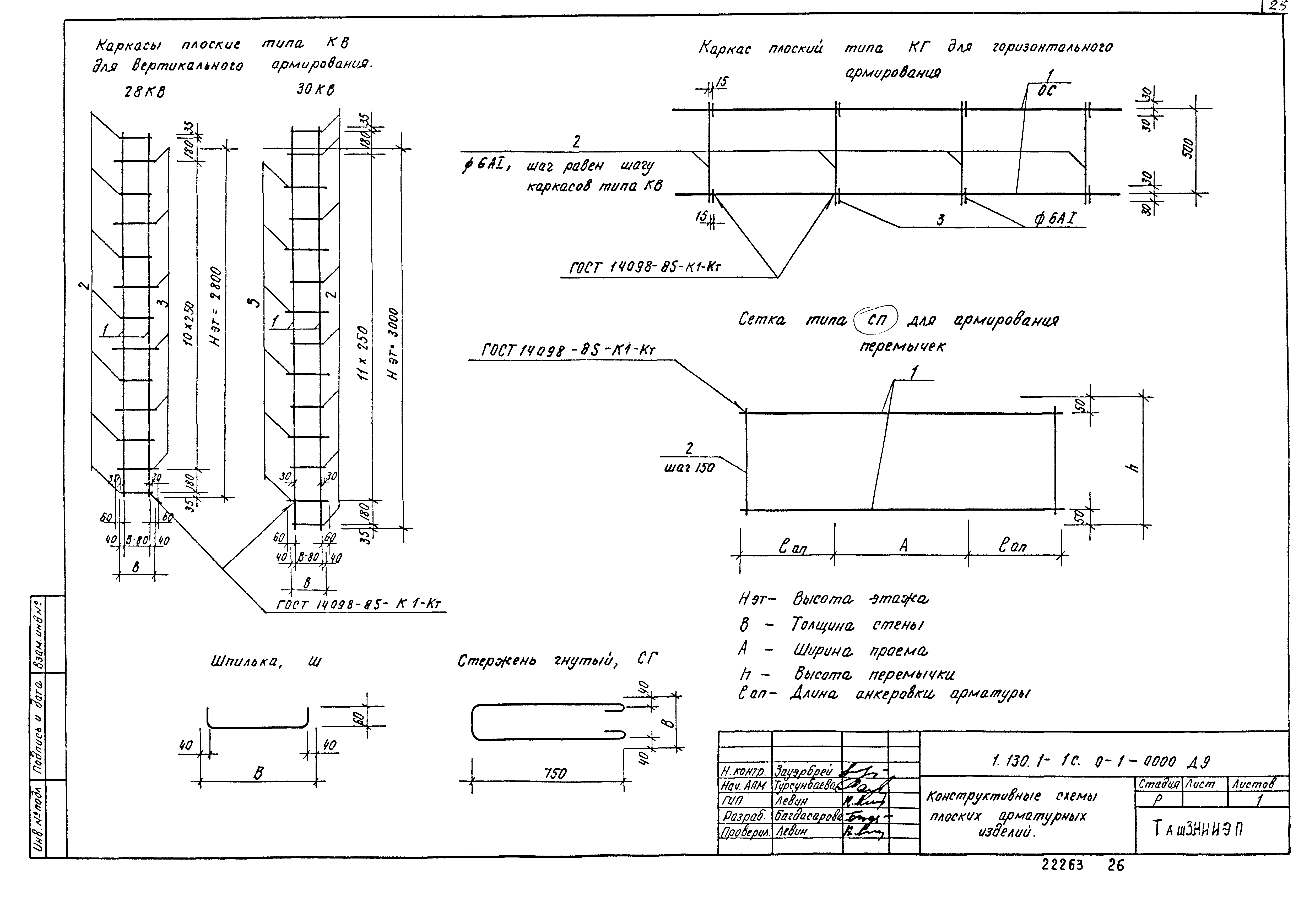
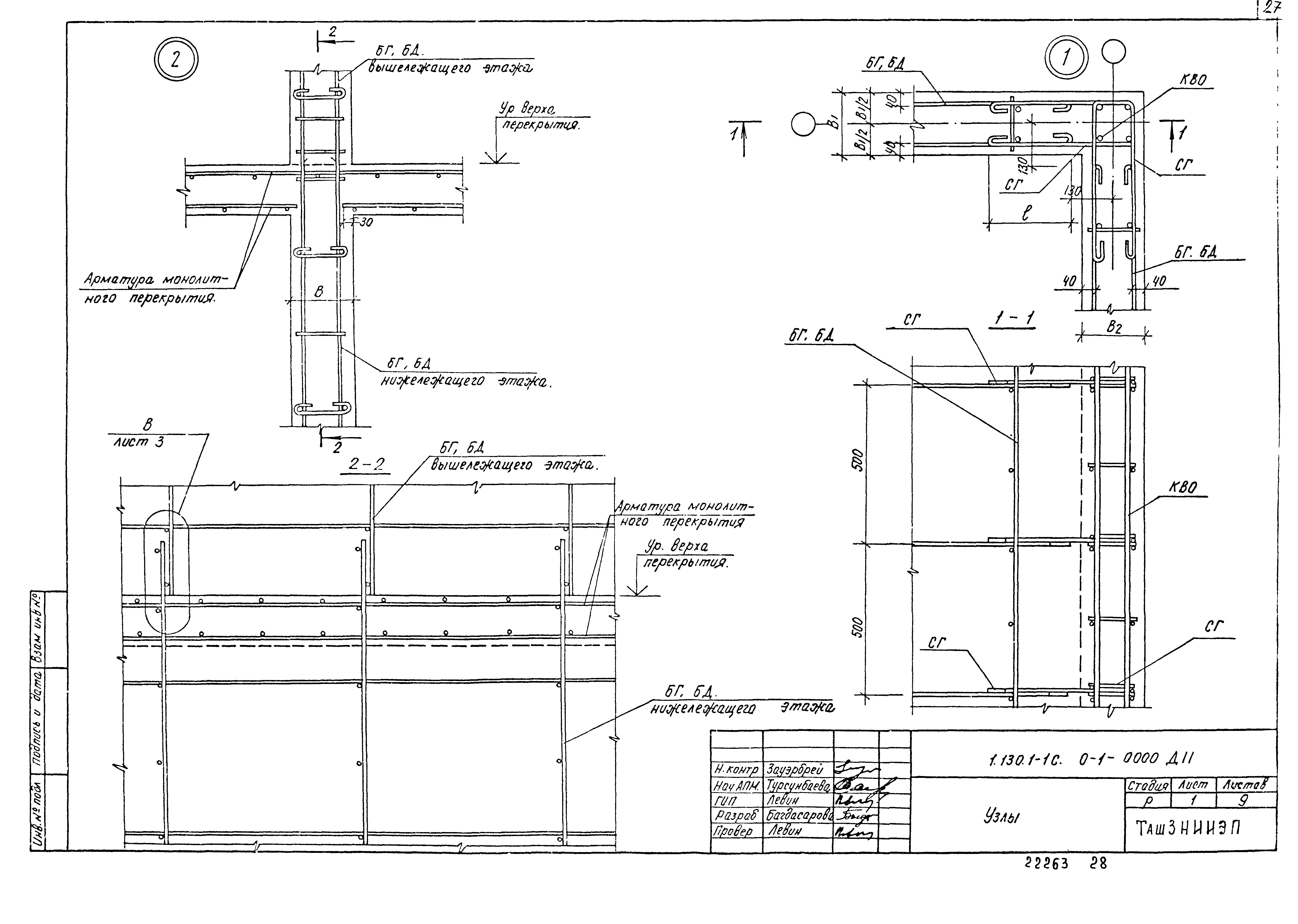
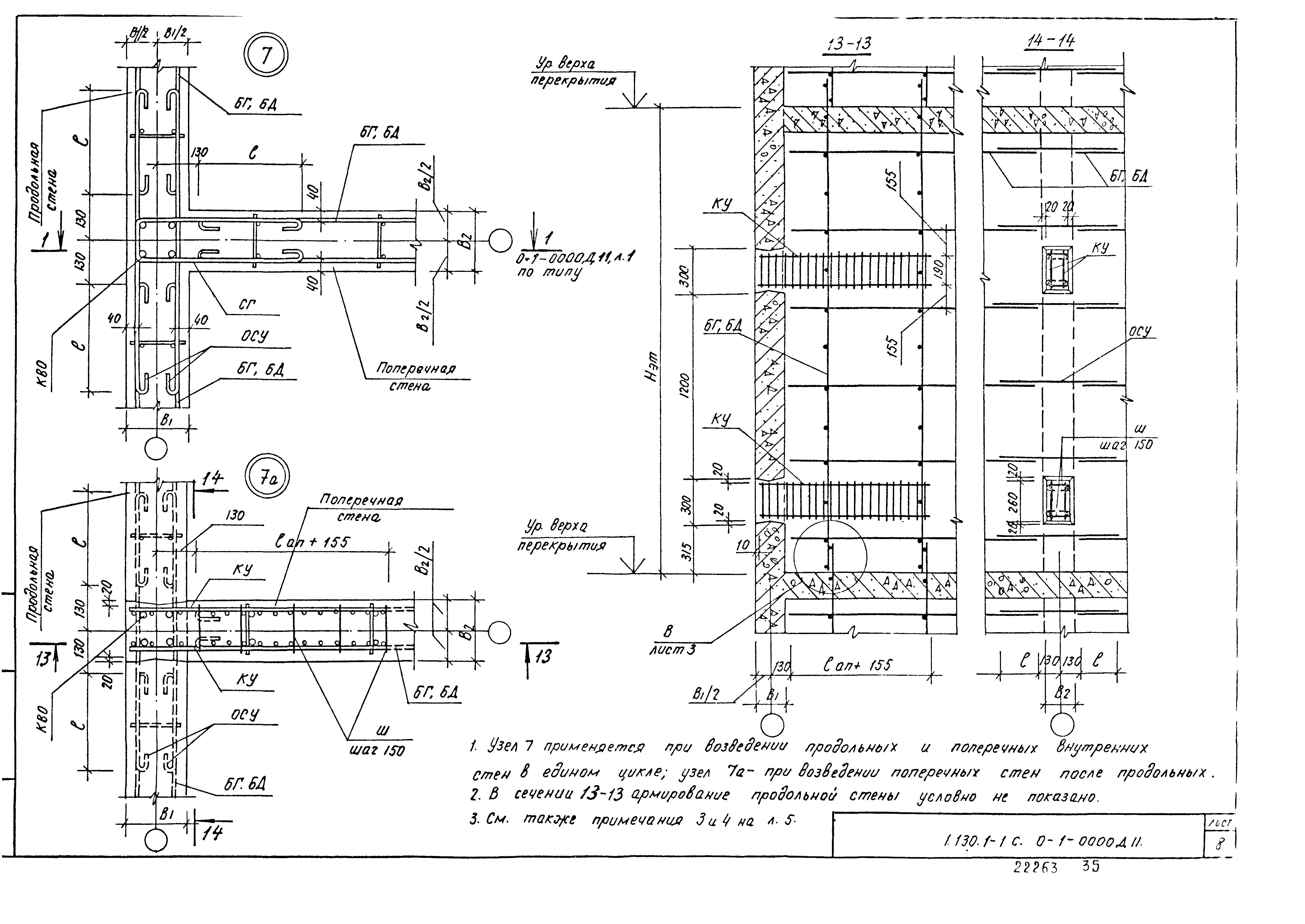
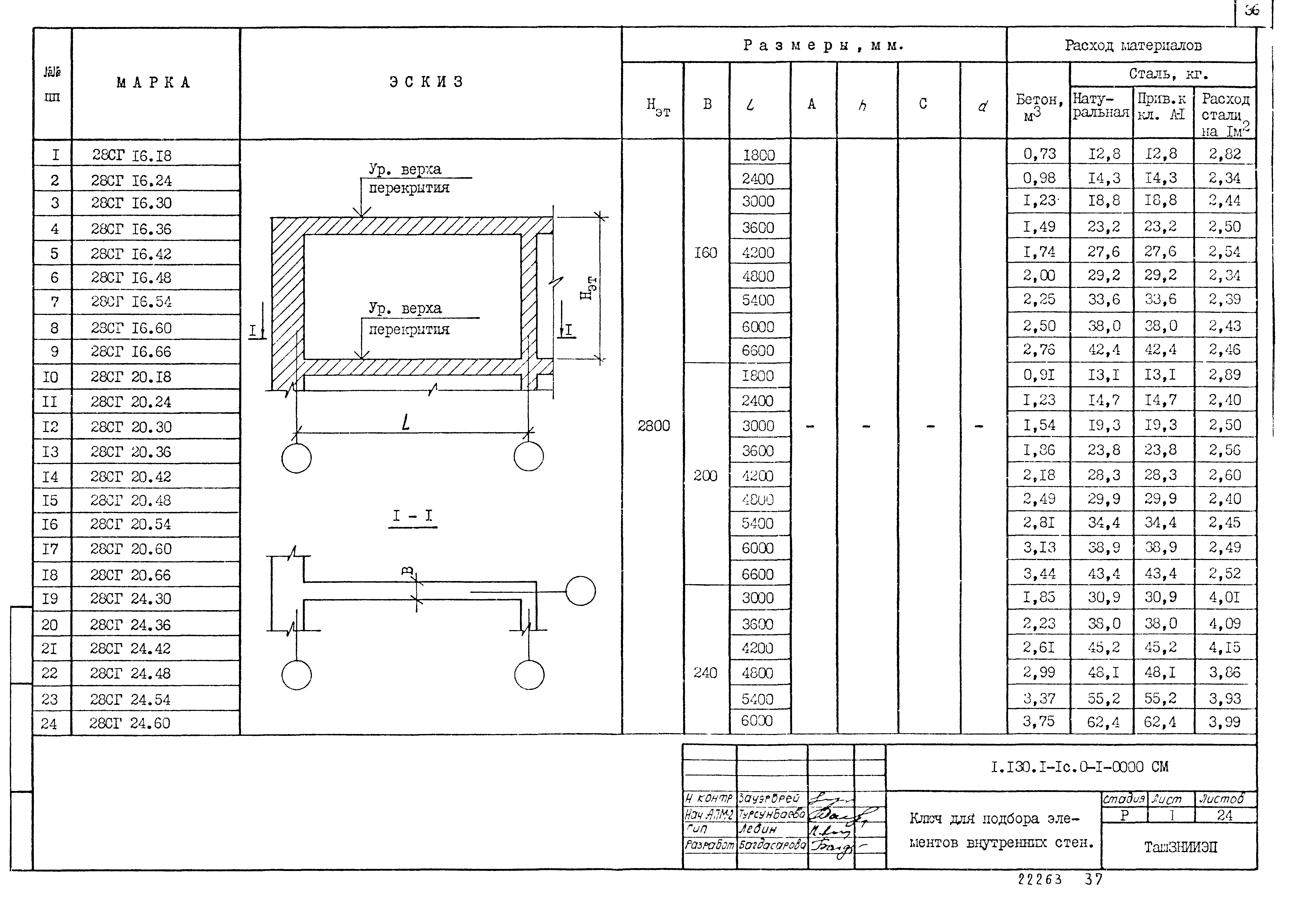
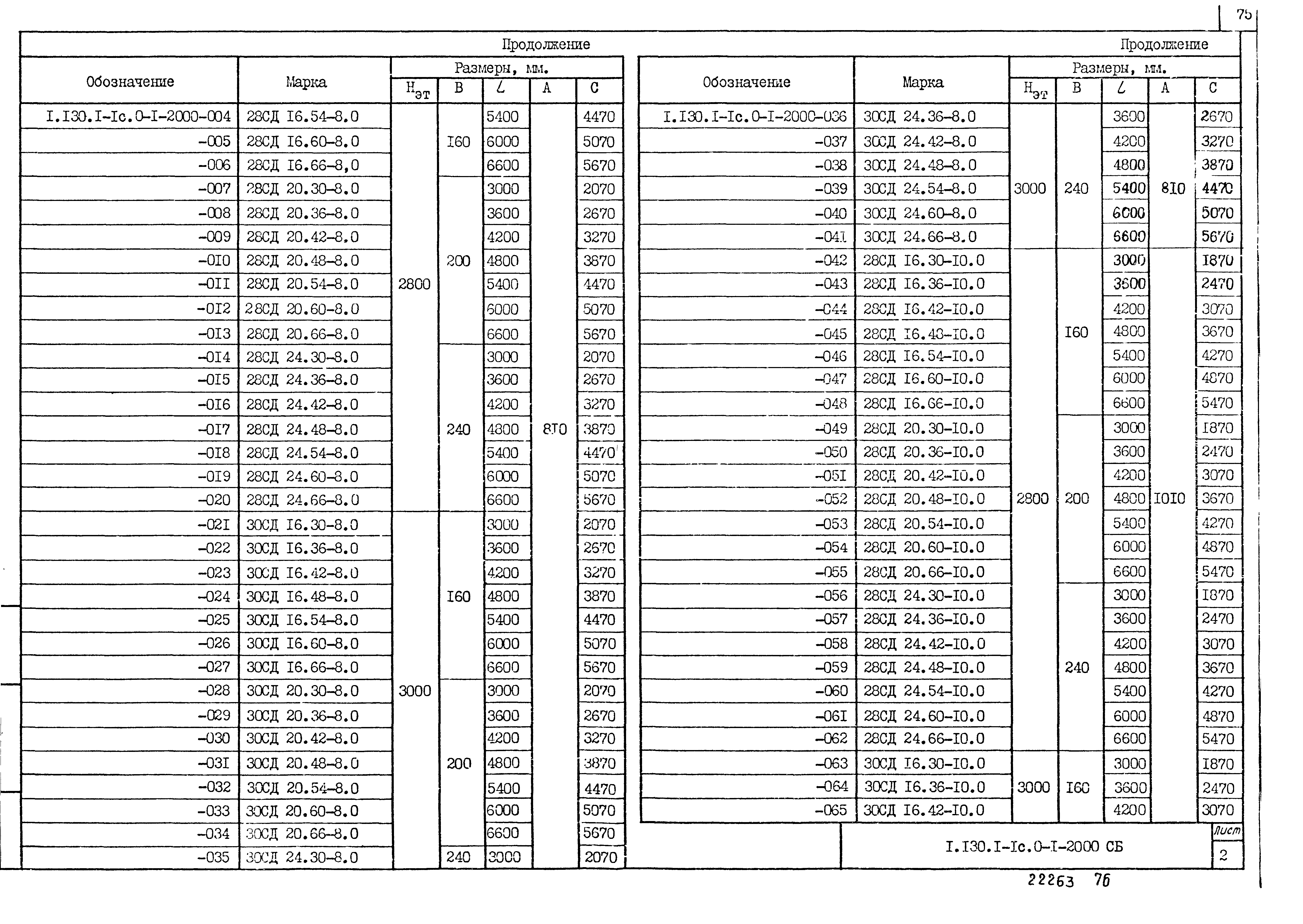
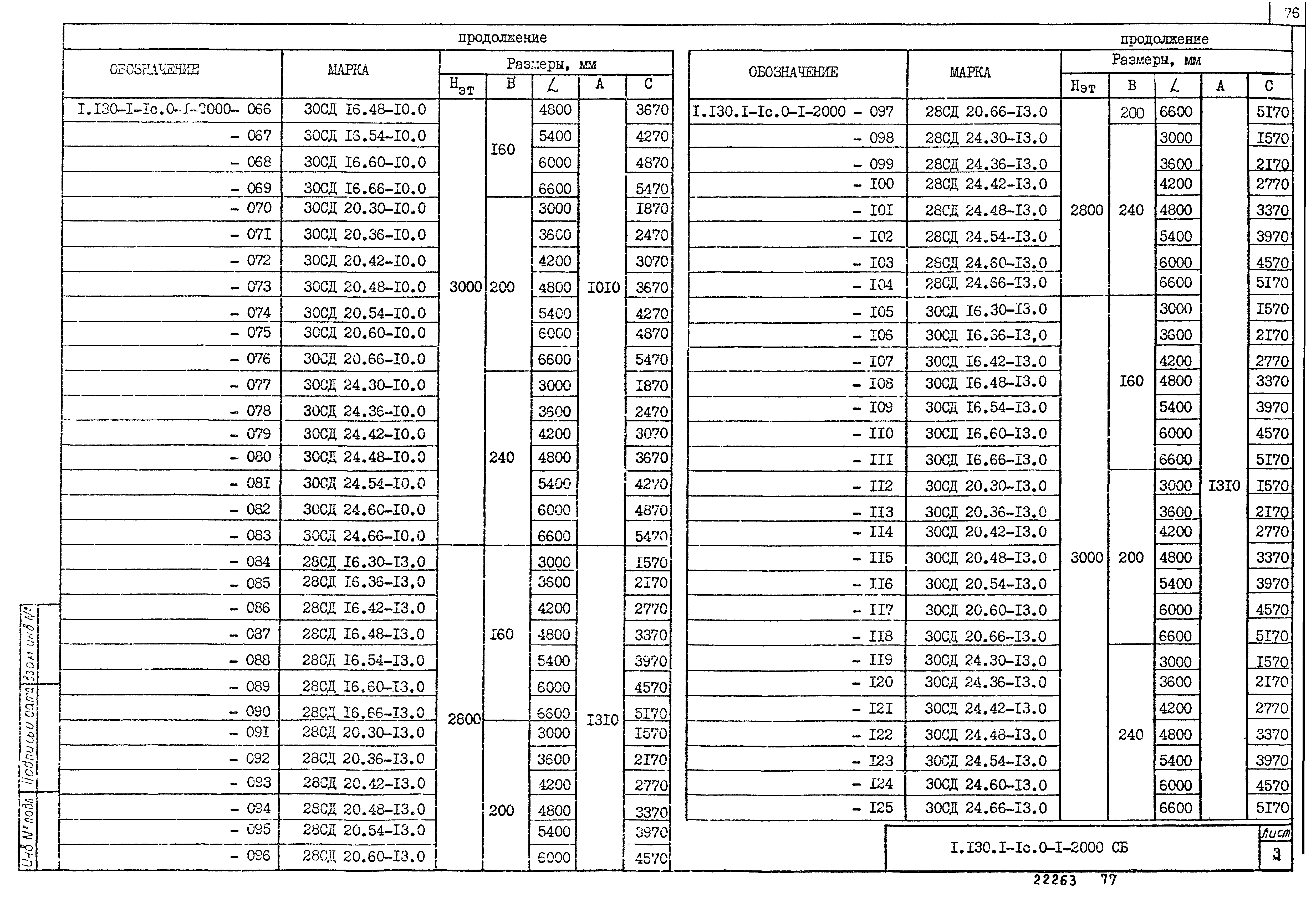
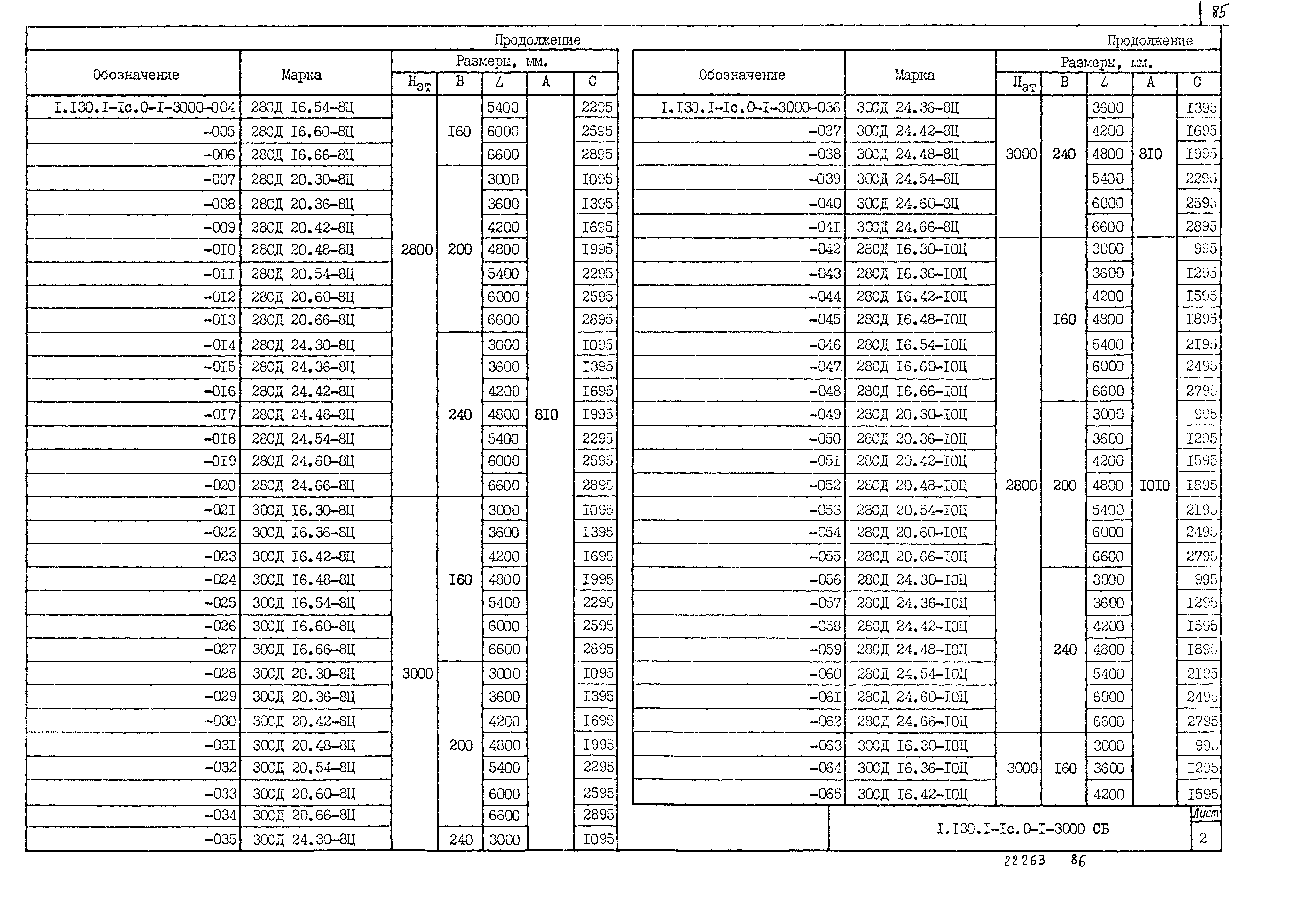
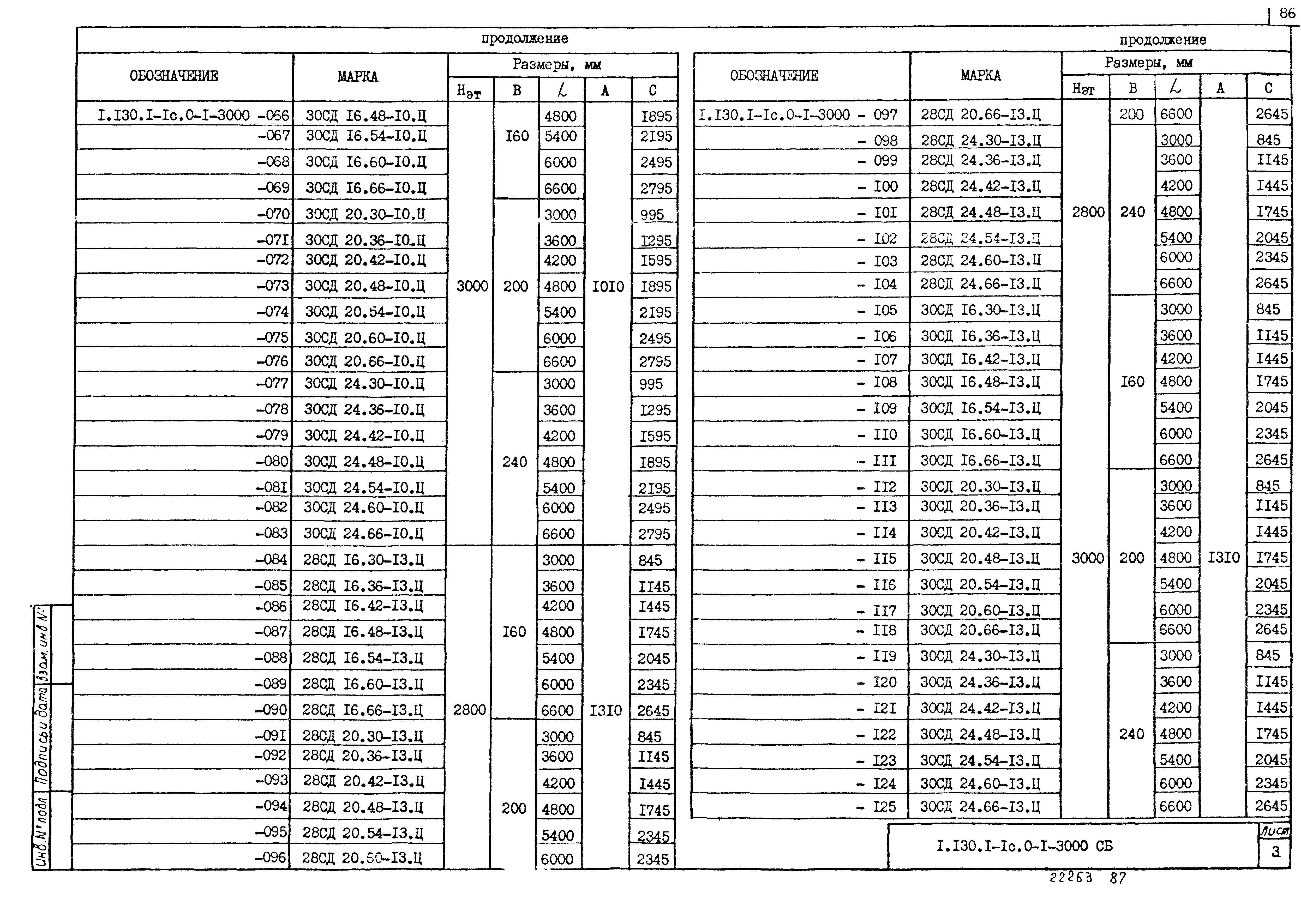
| Оглавление: | 1.130.1-1с.0-1-0000 Содержание. 1.130.1-1с.0-1-0000 ПЗ Пояснительная записка. 1.130.1-1с.0-1-0000 Д1 Схема расположения арматуры внутренних стен по вертикали. 1.130.1-1с.0-1-0000 Д2 Схема расположения арматуры внутренних стен в плане. Пример 1. 1.130.1-1с.0-1-0000 Д3 Схема расположения арматуры внутренних стен в плане. Пример 2. 1.130.1-1с.0-1-0000 Д4 Схема расположения арматурных изделий во внутренних стенах. Пример 1 1.130.1-1с.0-1-0000 Д5 Схема расположения арматурных изделий во внутренних стенах. Пример 2 1.130.1-1с.0-1-0000 Д6 Спецификация арматурных изделий внутренних стен. 1.130.1-1с.0-1-0000 Д7 Фрагмент 2. 1.130.1-1с.0-1-0000 Д8 Фрагмент 3. 1.130.1-1с.0-1-0000 Д9 Конструктивные схемы плоских арматурных изделий. 1.130.1-1с.0-1-0000 Д10 Блок арматурный БД с привязкой дверного проема 1200 мм для расчетного армирования. 1.130.1-1с.0-1-0000 Д11 Узлы. 1.130.1-1с.0-1-0000 СМ Ключ для подбора элементов внутренних стен. 1.130.1-1с.0-1-1000 Элемент внутренней стены СГ 1.130.1-1с.0-1-1000 СБ Элемент внутренней стены СГ. Сборочный чертеж. 1.130.1-1с.0-1-2000 Элемент внутренней стены СД с нулевое привязкой дверного проема. 1.130.1-1с.0-1-2000 СБ Элемент внутренней стены СД с нулевой привязкой дверного проема. Сборочный чертеж. 1.130.1-1с.0-1-3000 Элемент внутренней стены СД с центральной привязкой дверного проема. 1.130.1-1с.0-1-3000 СБ Элемент внутренней стены СД с центральной привязкой дверного проема. Сборочный чертеж. 1.130.1-1с.0-1-4000 Элемент внутренней стены СД с привязкой дверного проема 600; 1200; 1800; 2400 мм. 1.130.1-1с.0-1-4000 СБ Элемент внутренней стены СД с привязкой дверного проема 600; 1200; 1800; 2400 мм. Сборочный чертеж. |
| Разработан: | ТашЗНИИЭП Госгражданстроя |
| Утверждён: | 01.06.1987 Госгражданстрой (Gosgrazhdanstroy 170) |













































































































