Скачать Серия 1.200.1-1с Выпуск 0-1. Элементы монолитных наружных и внутренних стен. Материалы для проектированияДата актуализации: 01.01.2021
|
| Обозначение: | Серия 1.200.1-1с |
| Обозначение англ: | Series 1.200.1-1с |
| Статус: | не определен законодательством |
| Название рус.: | Выпуск 0-1. Элементы монолитных наружных и внутренних стен. Материалы для проектирования |
| Дата добавления в базу: | 01.09.2013 |
| Дата актуализации: | 01.01.2021 |
| Дата введения: | 01.10.1990 |
| Дата окончания срока действия: | 30.06.2003 |
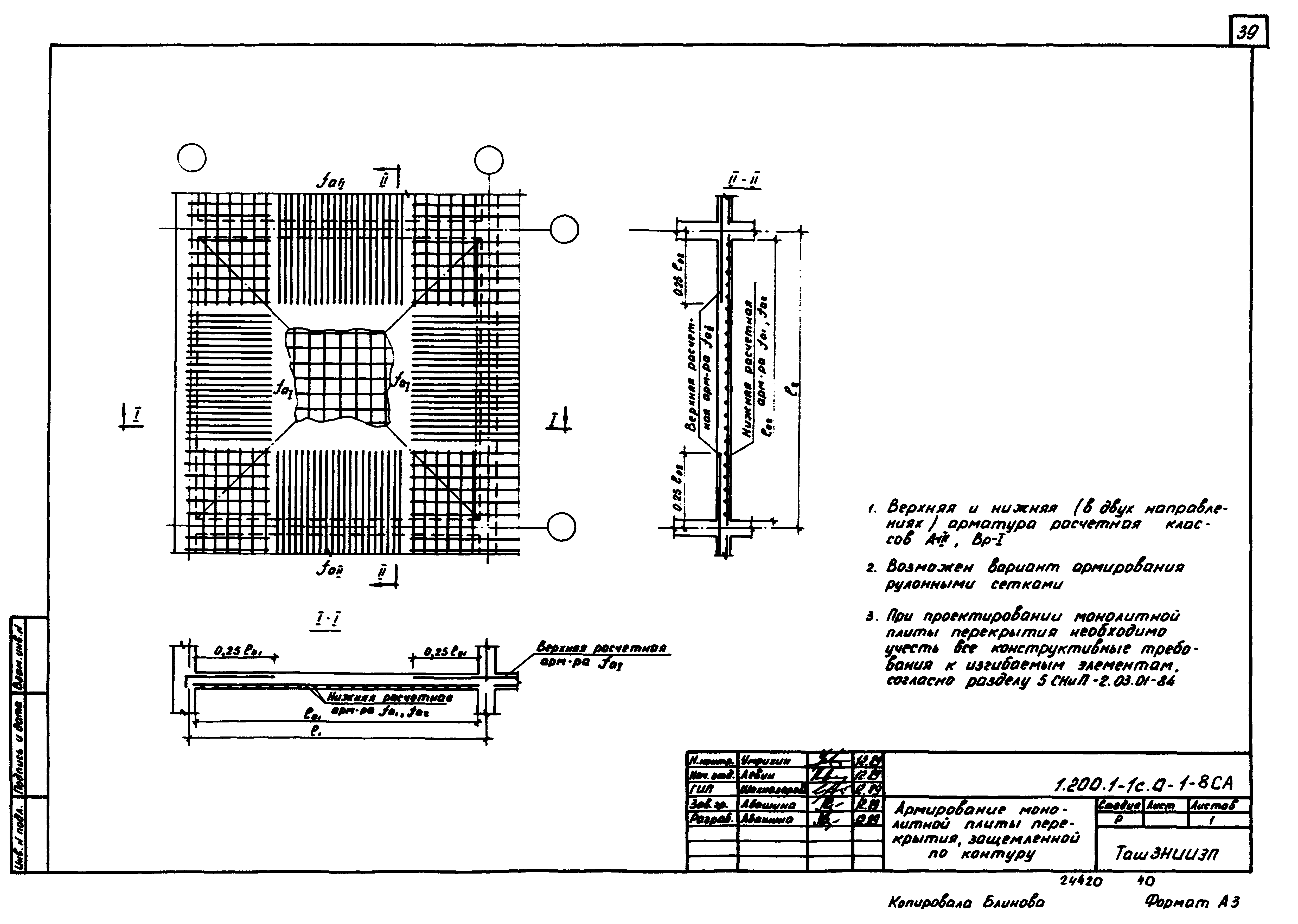
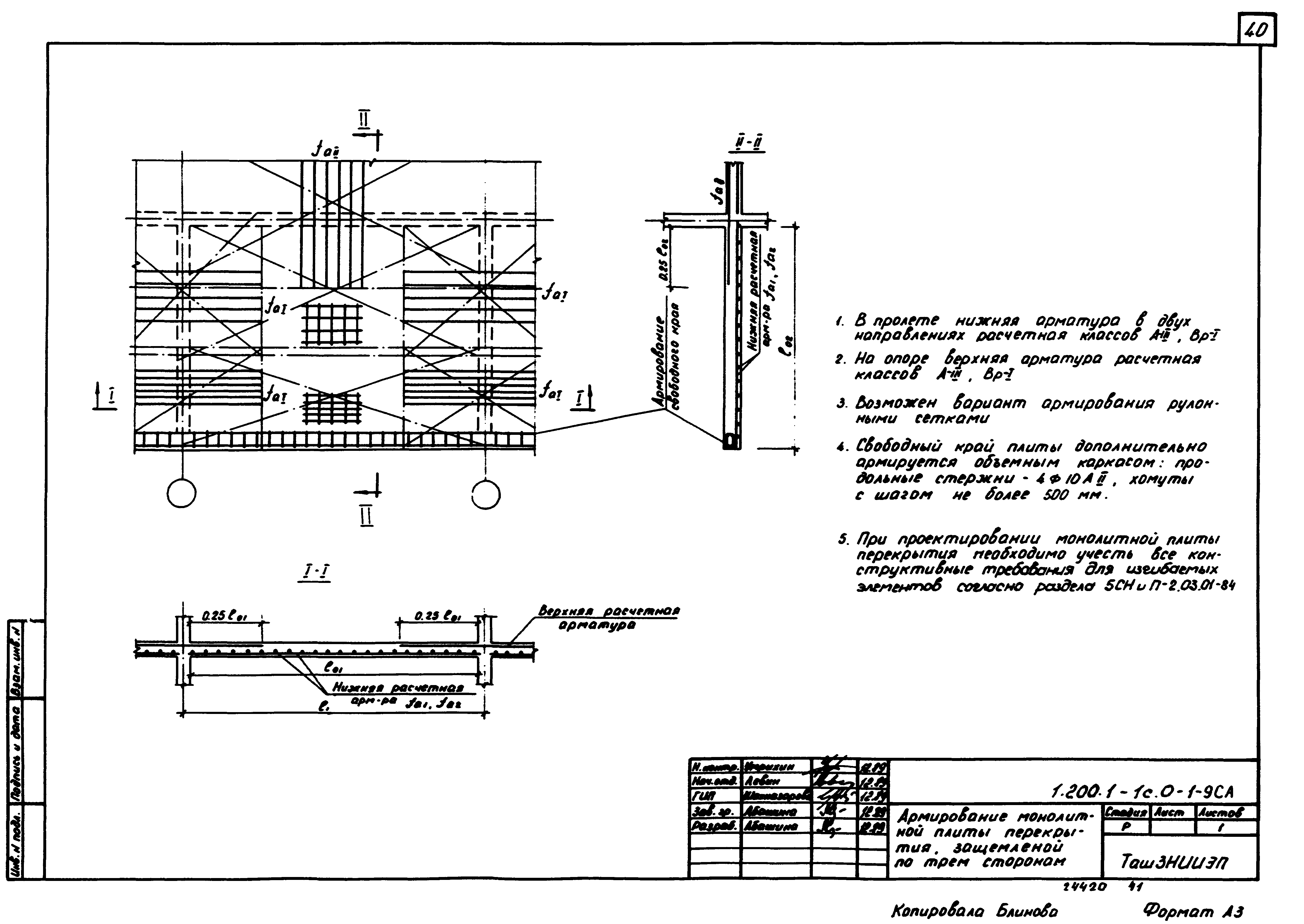
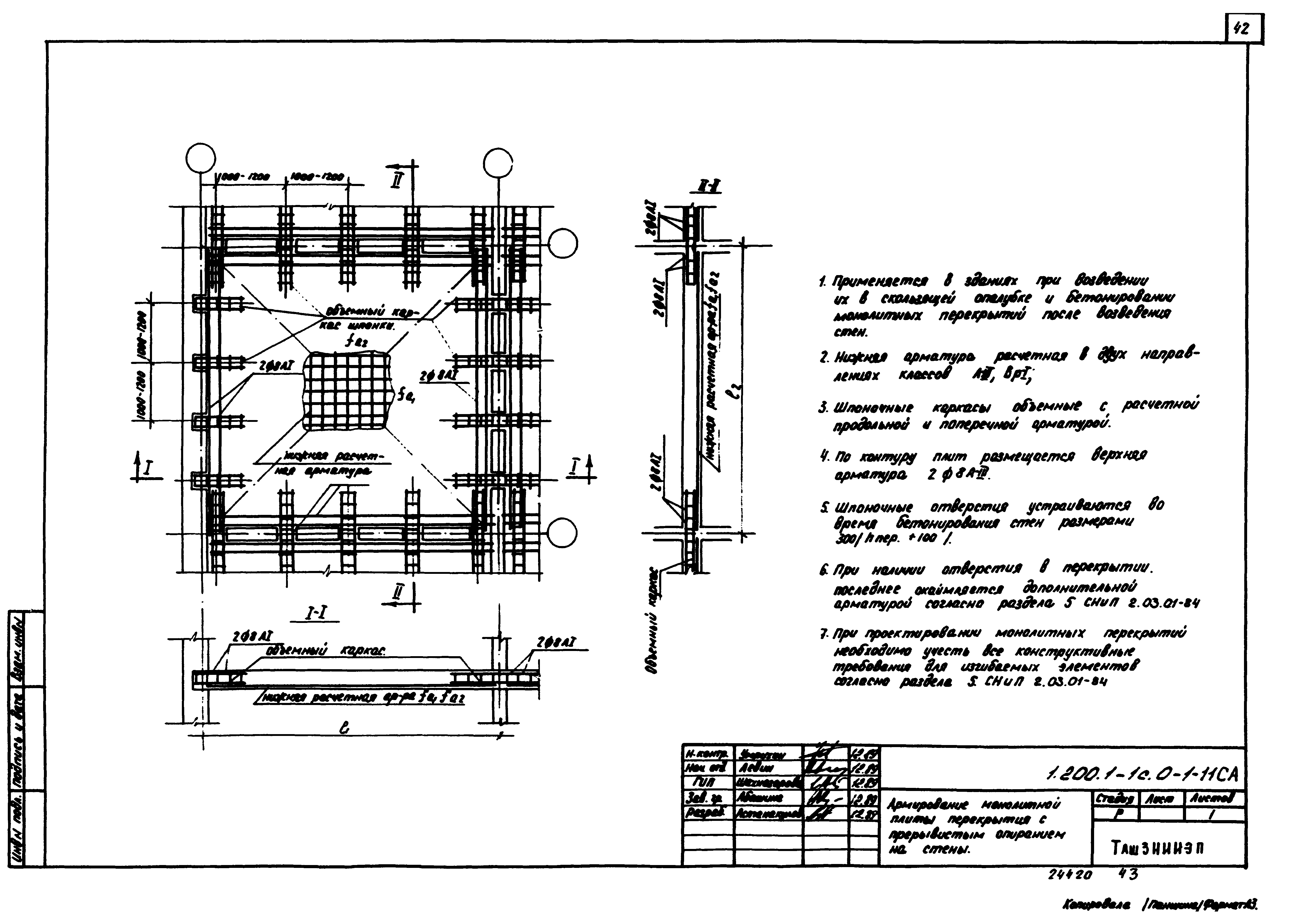
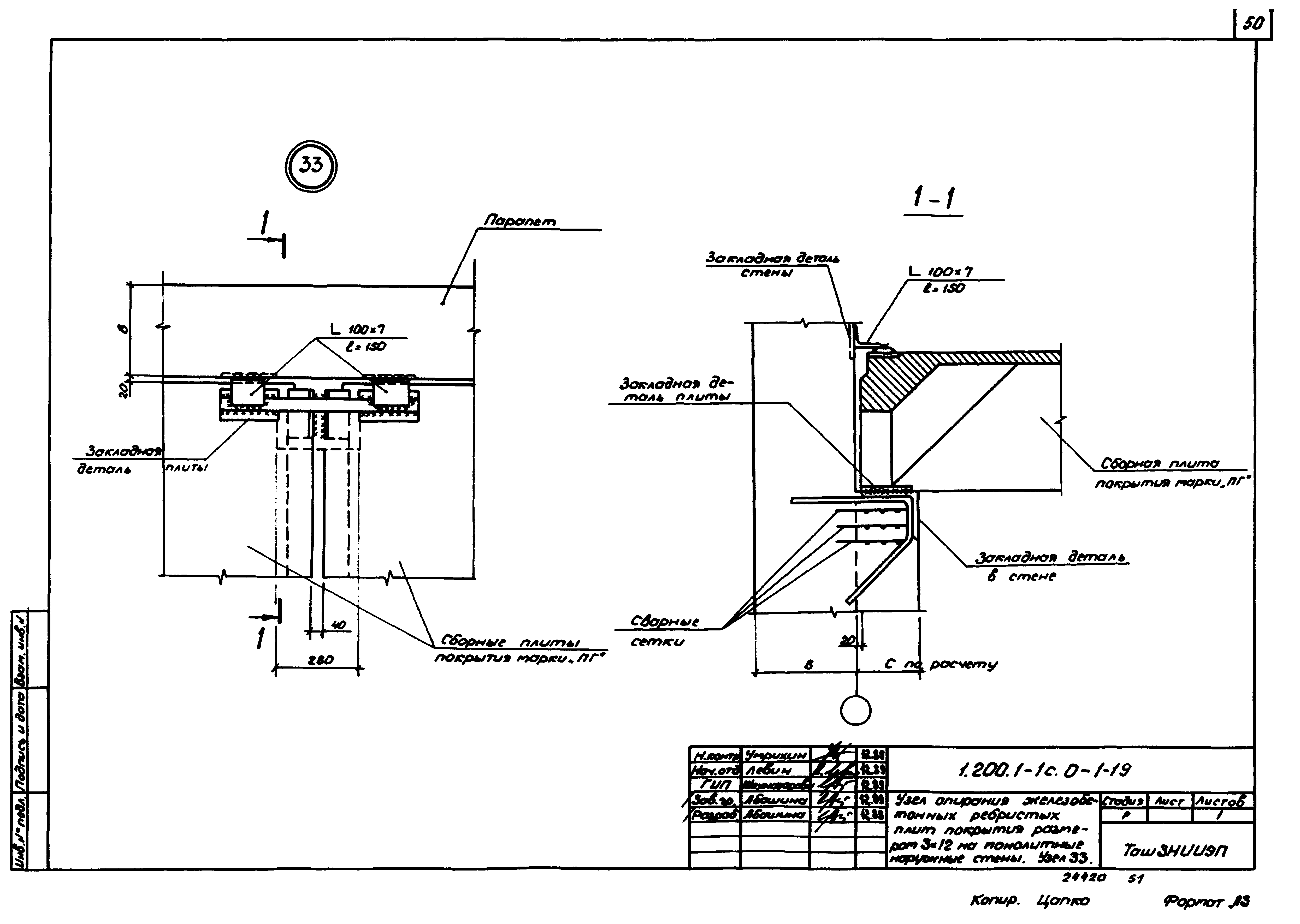
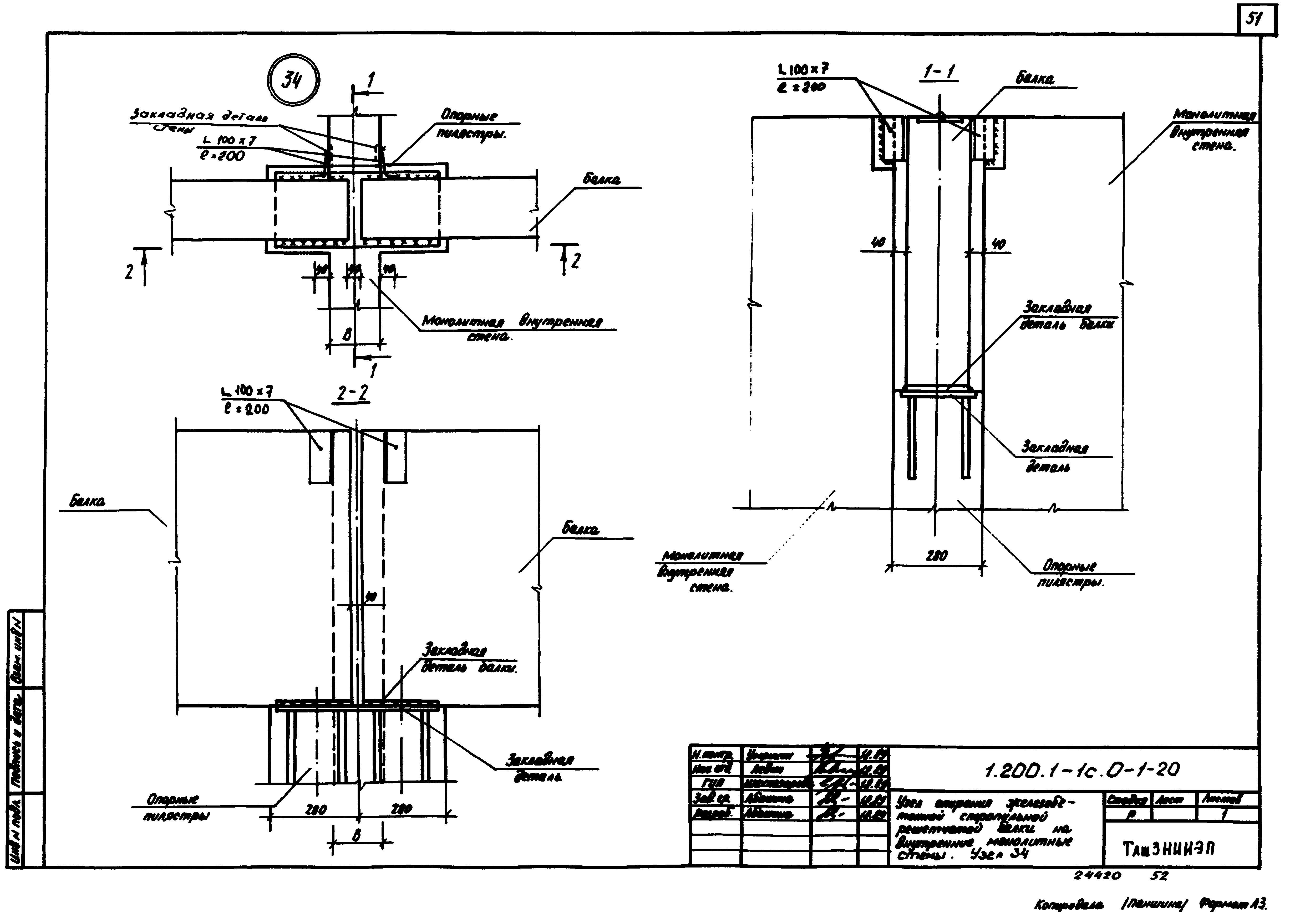
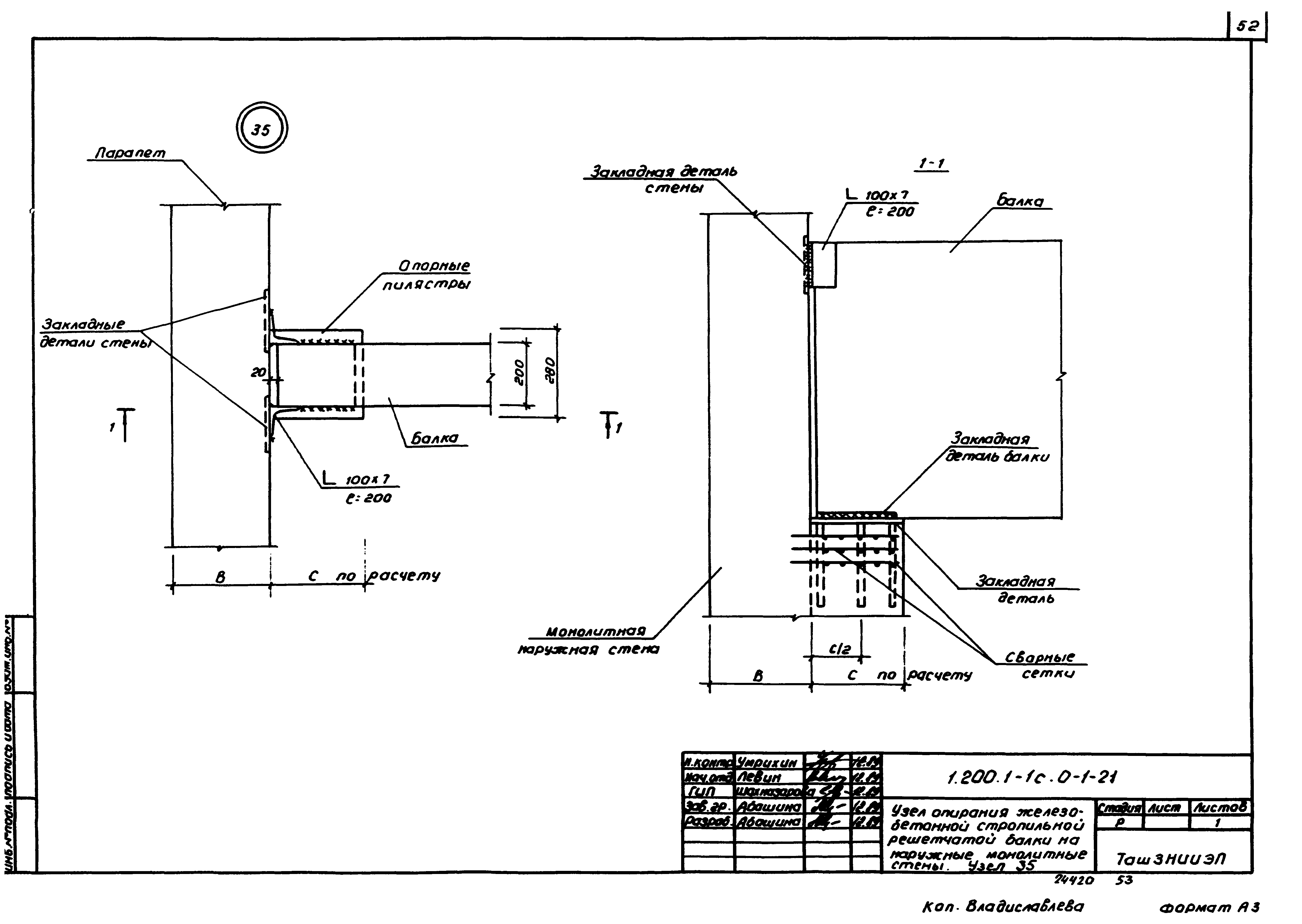
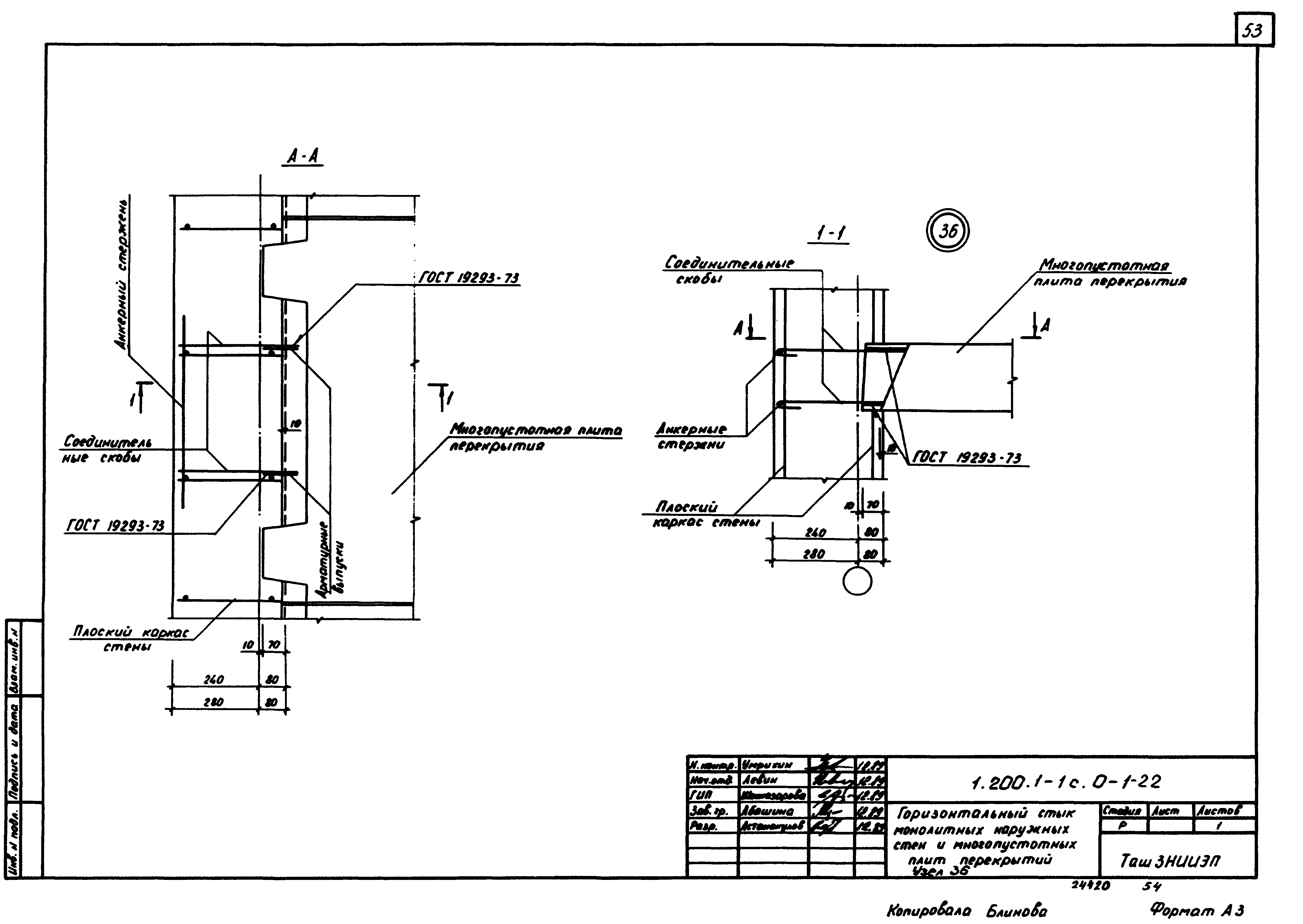
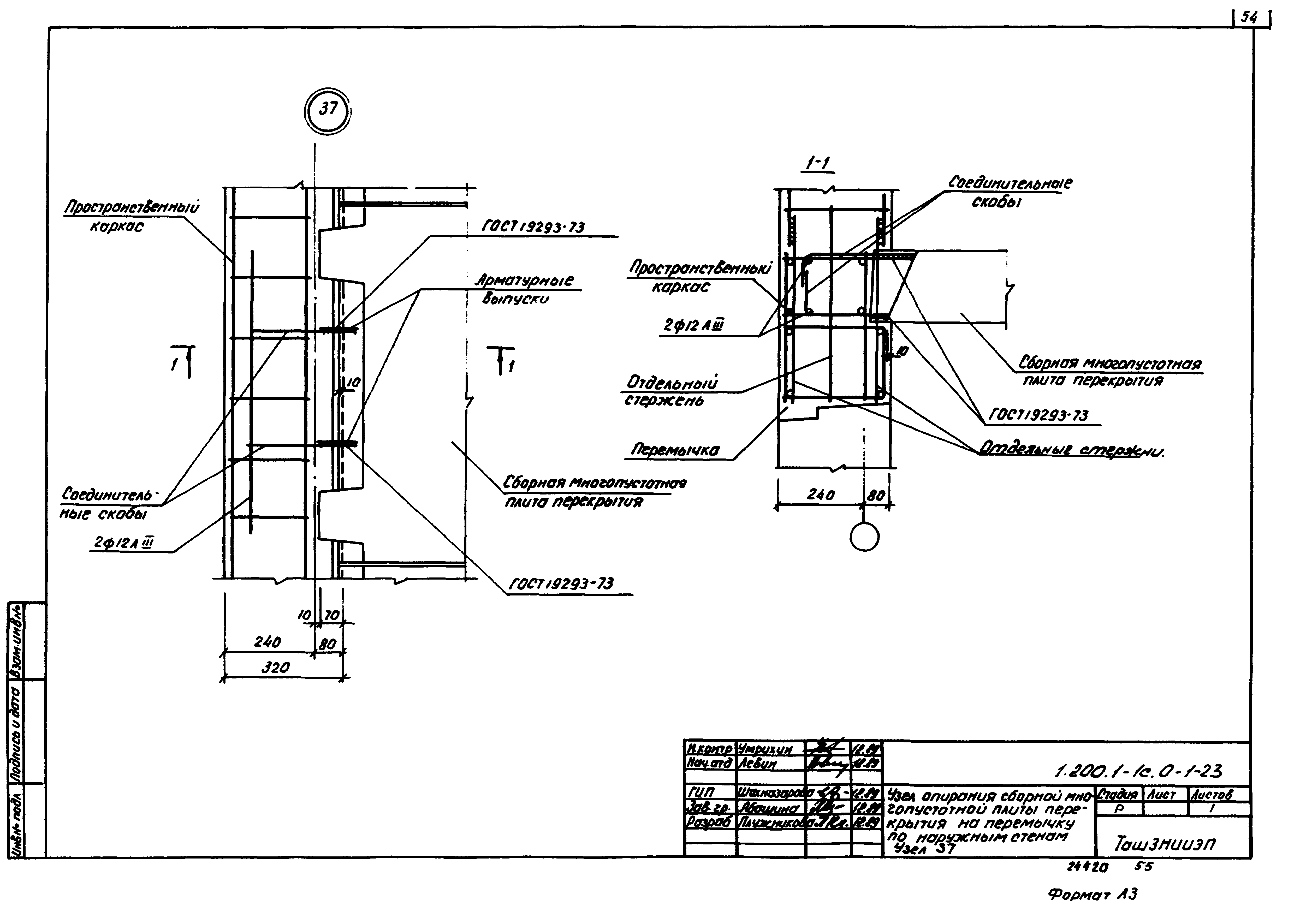
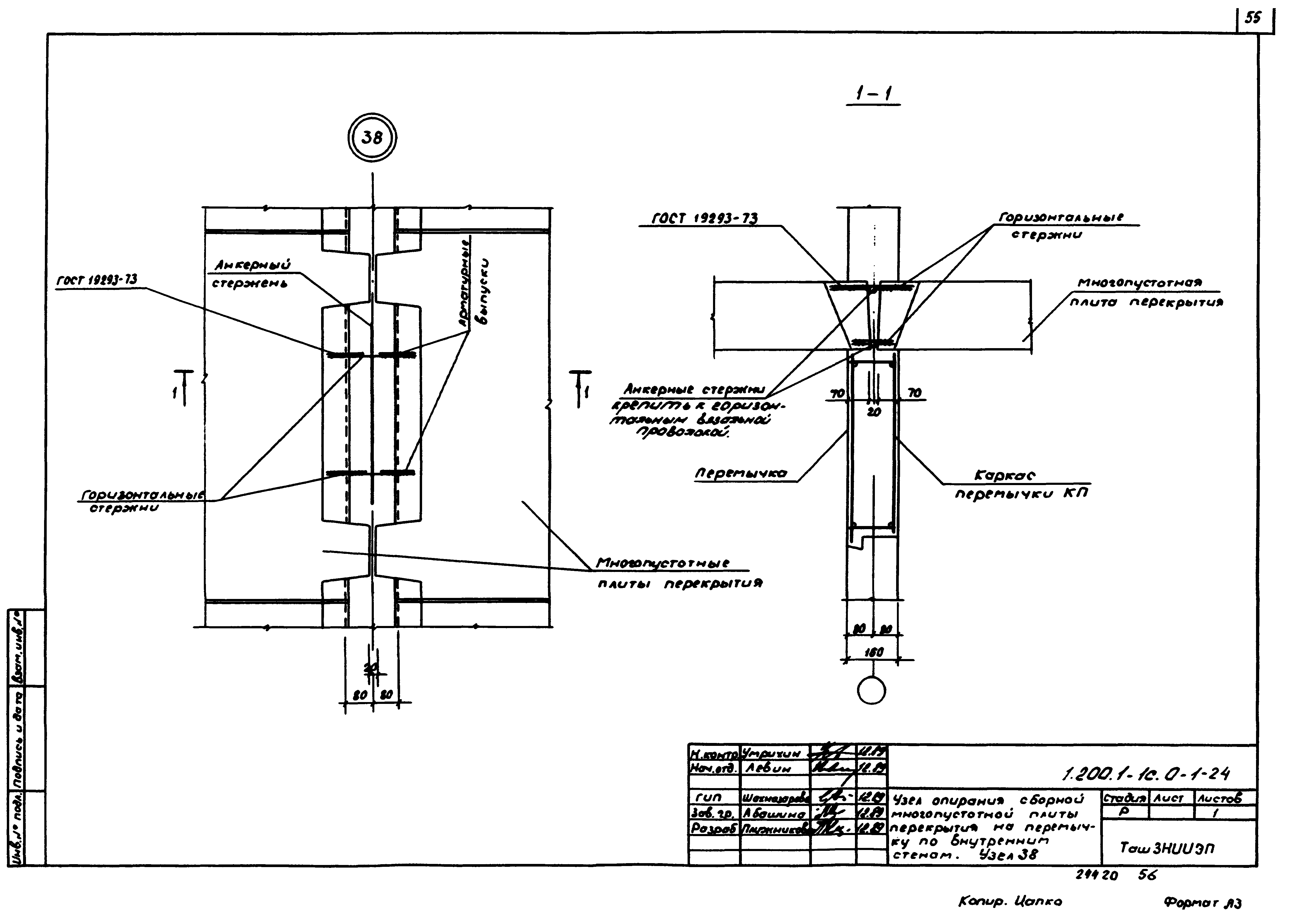
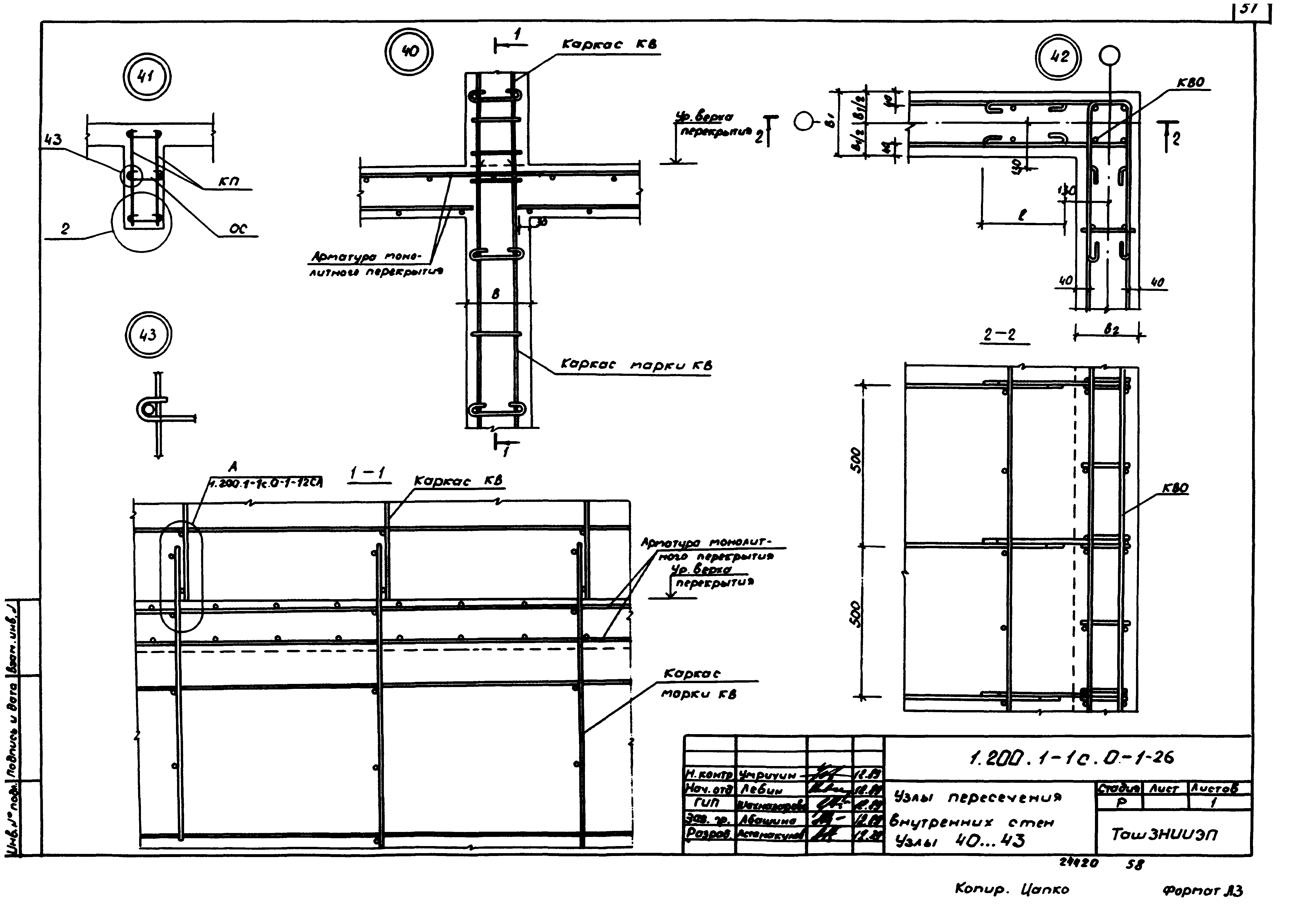
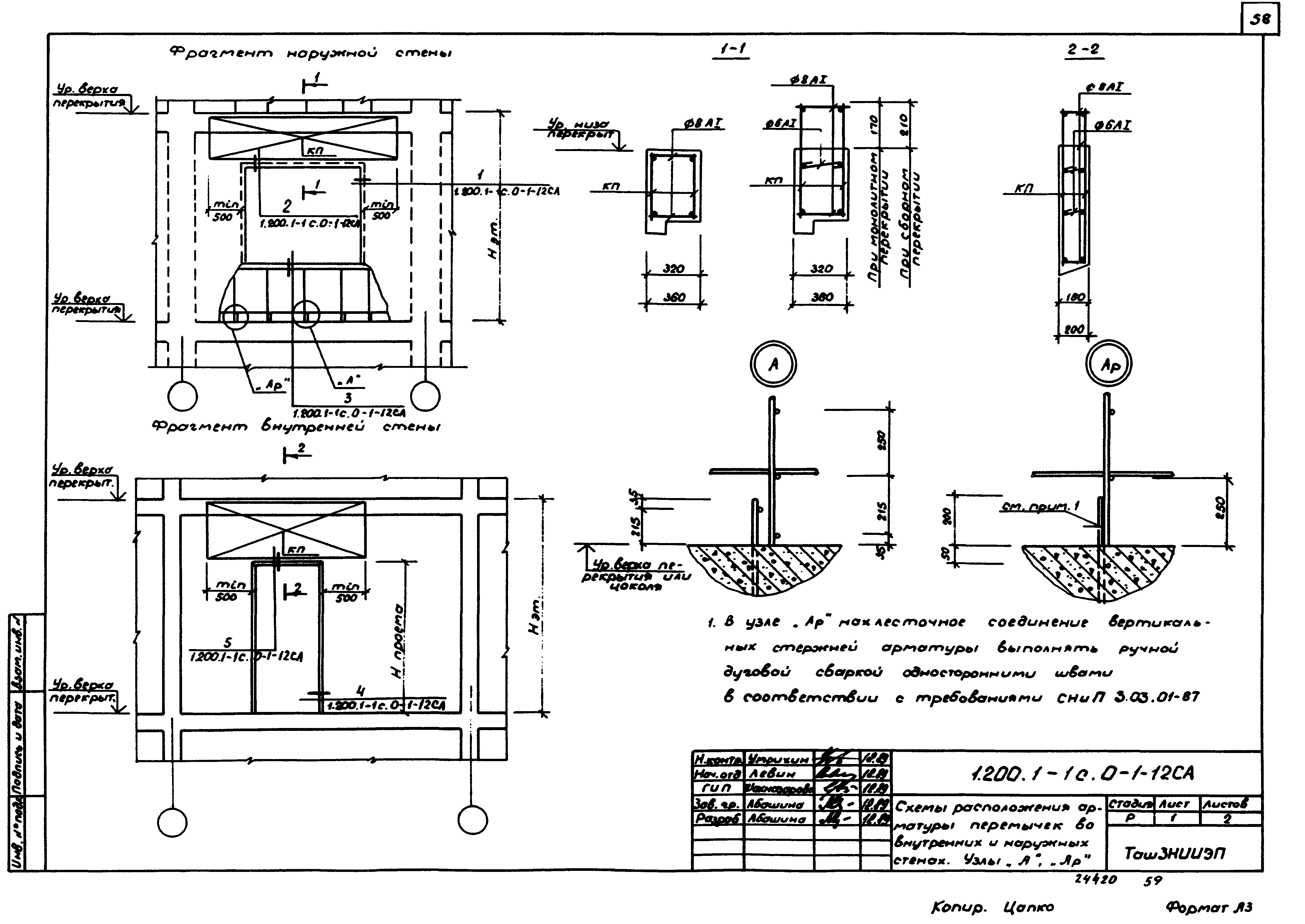
| Оглавление: | 1.200.1-1с.0-1-ПЗ Пояснительная записка 1.200.1-1с.0-1-1СМ Маркировочная схема узлов 1.200.1-1с.0-1-1СА Схемы расположения арматуры внутренних и наружных стен по вертикали 1.200.1-1с.0-1-2СА Армирование внутренних стен без проемов 1.200.1-1с.0-1-3СА Армирование внутренних стен с проемом 1.200.1-1с.0-1-4СА Армирование внутренних стен с проемом вблизи пересечения стен 1.200.1-1с.0-1-5СА Армирование однослойной наружной стены с проемами 1.200.1-1с.0-1-6СА Армирование трехслойной наружной стены с оконными проемами 1.200.1-1с.0-1-7СА Армирование внутренних стен с двумя проемами 1.200.1-1с.0-1-1 Угловое пересечение наружных однослойных стен и тавровое пересечение наружной однослойной и внутренней стен. Узел 1,2 1.200.1-1с.0-1-2 Угловое пересечение наружных двухслойных стен и тавровое пересечение наружной двухслойной и внутренней стен. Узел 3,4 1.200.1-1с.0-1-3 Угловое пересечение наружных трехслойных стен и тавровое пересечение наружной трехслойной и внутренней стен. Узел 5,6 1.200.1-1с.0-1-4 Пересечение однослойных наружных и внутренней стен во входящем углу. Узел 7 1.200.1-1с.0-1-5 Пересечение двухслойных и трехслойных наружных и внутренней стен во входящем углу. Узел 8,9 1.200.1-1с.0-1-6 Детали наружных стен с оконным проемом. Узел 10,11 1.200.1-1с.0-1-7 Узел соединения стен из разных бетонов. Деталь наружной однослойной стены с оконным проемом. Узел 12,13 1.200.1-1с.0-1-8 Деталь пересечения наружных стен с внутренними, при возведении наружных стен с отставанием от внутренних. Узел 14 1.200.1-1с.0-1-9 Детали пересечения продольных и поперечных внутренних стен, при возведении в едином цикле, при возведении поперечных стен после продольных. Узел 15,16 1.200.1-1с.0-1-10 Соединение наружных несущих стеновых панелей с монолитной внутренней стеной. Узел 17,18 1.200.1-1с.0-1-11 Деталь крепления наружных навесных легкобетонных панелей. Узел 19 1.200.1-1с.0-1-12 Детали крепления стен и панелей с эффективным утеплителем. Узлы 20,21 1.200.1-1с.0-1-13 Деталь наружной сборно-монолитной стены с навесными "скорлупами" и эффективным утеплителем. Узел 22 1.200.1-1с.0-1-8СА Армирование монолитной плиты перекрытия, защемленной по контуру 1.200.1-1с.0-1-9СА Армирование монолитной плиты перекрытия, защемленной по трем сторонам 1.200.1-1с.0-1-10СА Армирование многопролетной монолитной блочной плиты перекрытия 1.200.1-1с.0-1-11СА Армирование монолитной плиты перекрытия с прерывистым опиранием на стены 1.200.1-1с.0-1-14 Горизонтальный стык сборных многопустотных плит перекрытия с монолитными наружными и внутренними стенами. Узлы 23...27 1.200.1-1с.0-1-15 Горизонтальный стык монолитных наружных и внутренних стен с монолитными перекрытиями. Узлы 27,28 1.200.1-1с.0-1-2СМ Пример схемы расположения плит - "скорлуп" 1.200.1-1с.0-1-3СМ Пример схемы временных поддерживающих конструкций 1.200.1-1с.0-1-16 Плиты-"скорлупы" СК1...СК4,СК4А 1.200.1-1с.0-1-17 Узлы опирания перекрытия на наружную стену, на внутреннюю стену. Узел стыка плит-"скорлуп". Узлы 29...31 1.200.1-1с.0-1-18 Узел опирания железобетонных ребристых плит покрытия размером 3х12 м на внутренние монолитные стены. Узел 32 1.200.1-1с.0-1-19 Узел опирания железобетонных ребристых плит покрытия размером 3х12 м на монолитные наружные стены. Узел 33 1.200.1-1с.0-1-20 Узел опирания железобетонной стропильной решетчатой балки на внутренние монолитные стены. Узел 34 1.200.1-1с.0-1-21 Узел опирания железобетонной стропильной решетчатой балки на наружные монолитные стены. Узел 35 1.200.1-1с.0-1-22 Горизонтальный стык монолитных наружных стен и многопустотных плит перекрытий. Узел 37 1.200.1-1с.0-1-23 Узел опирания сборной многопустотной плиты перекрытия на перемычку по наружным стенам. Узел 37 1.200.1-1с.0-1-24 Узел опирания сборной многопустотной плиты перекрытия на перемычку по внутренним стенам. Узел 38 1.200.1-1с.0-1-25 Узел сопряжения внутренних стен с монолитными перекрытиями при устройстве цоколей для фиксации опалубки. Узел 39 1.200.1-1с.0-1-26 Узлы пересечения внутренних стен. Узлы 40...43 1.200.1-1с.0-1-12СА Схемы расположения арматуры перемычек во внутренних и наружных стенах. Узлы "А","Ар" 1.200.1-1с.0-1-27 Монолитная рама. Вариант с залом Н=6.0 м 1.200.1-1с.0-1-28 Узлы 48,49 |
| Разработан: | ТашЗНИИЭП Госгражданстроя |
| Утверждён: | 07.03.1990 Госкомархитектура (42) |
| Издан: | ЦИТП Госстроя СССР (CITP, Gosstroy (USSR) 1990 г. ) |






























































