Скачать Серия 3.013.9-1 Выпуск 3. Стальные конструкции. Чертежи КМДата актуализации: 01.01.2021
|
| Обозначение: | Серия 3.013.9-1 |
| Обозначение англ: | Series 3.013.9-1 |
| Статус: | не определен законодательством |
| Название рус.: | Выпуск 3. Стальные конструкции. Чертежи КМ |
| Дата добавления в базу: | 01.09.2013 |
| Дата актуализации: | 01.01.2021 |
| Дата введения: | 01.08.1989 |
| Дата окончания срока действия: | 30.06.2003 |
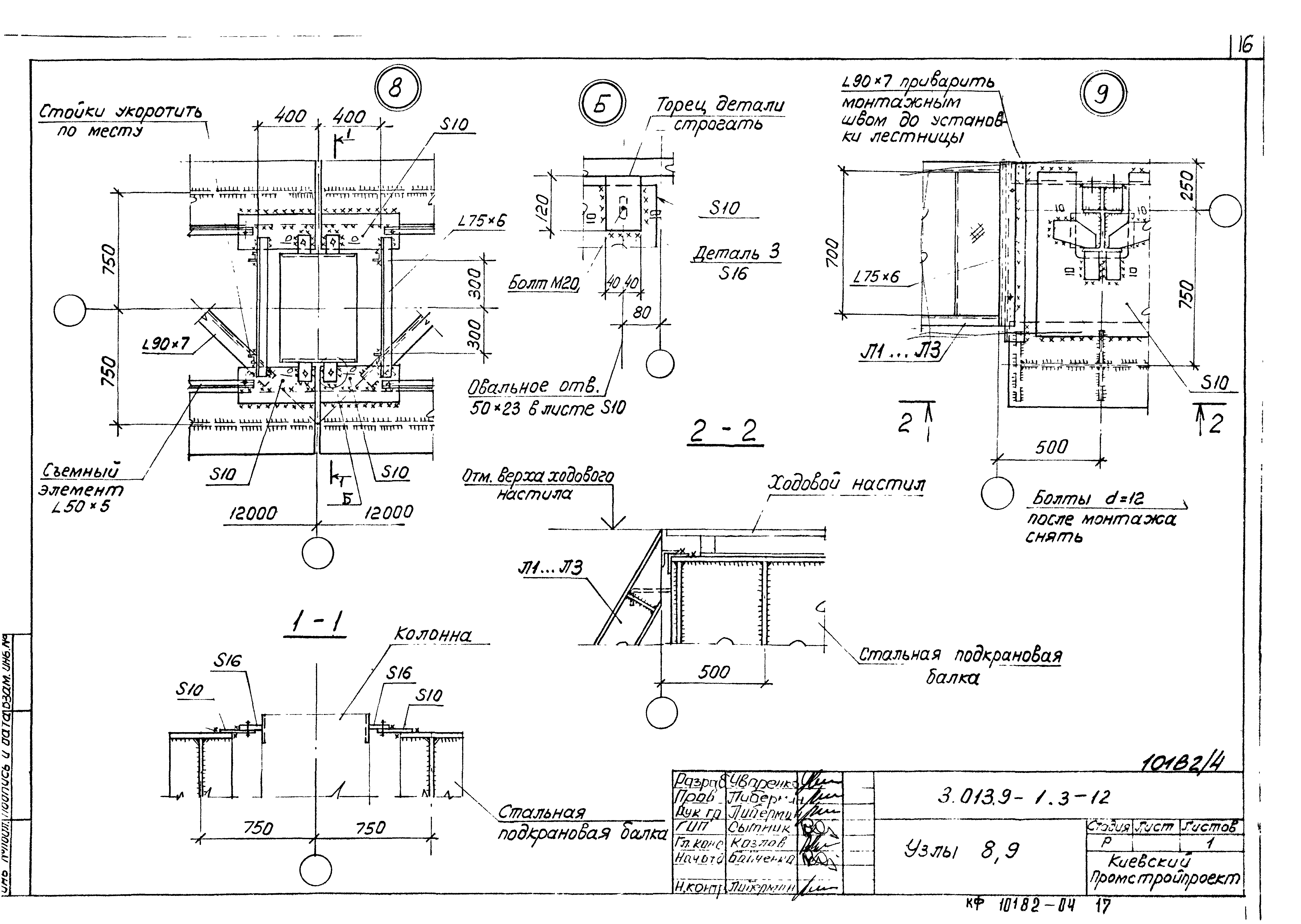
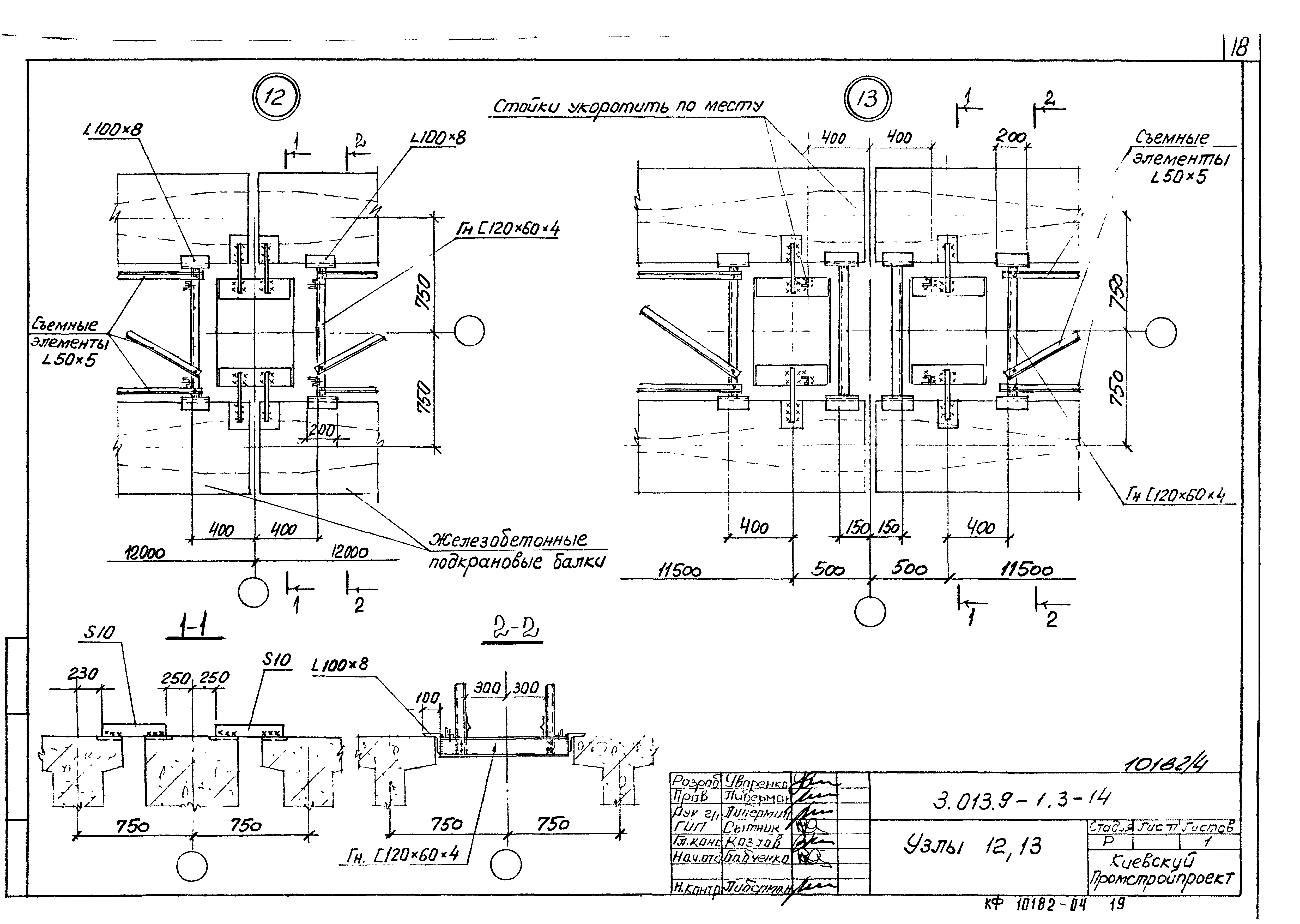
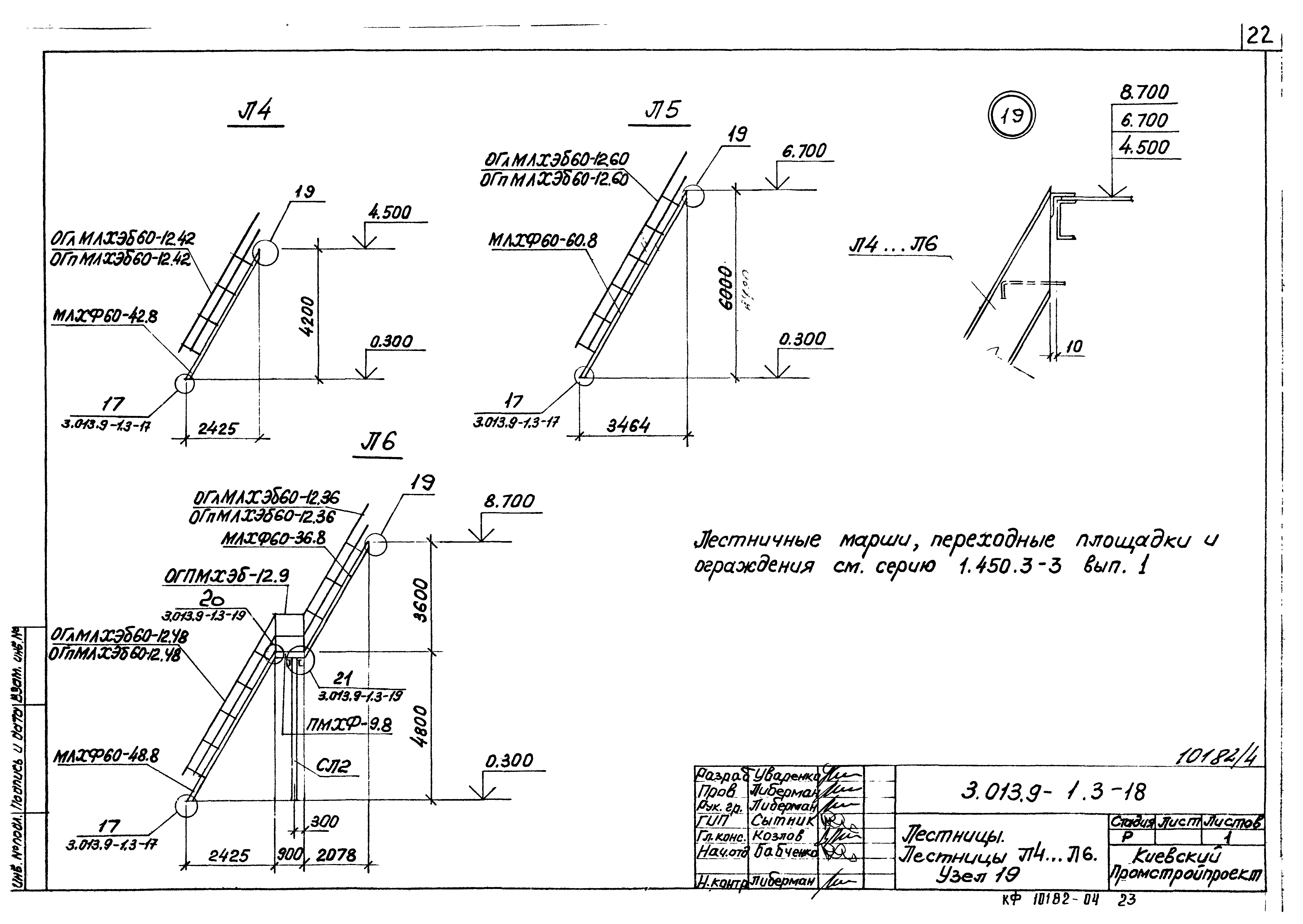
| Оглавление: | 3.013.9-1.3-ПЗ Пояснительная записка 3.013.9-1.3-1 Схема расположения стальных конструкций эстакад под краны общего назначения (со стальными подкрановыми балками) 3.013.9-1.3-2 Схема расположения стальных конструкций эстакад под краны общего назначения (с железобетонными подкрановыми балками) 3.013.9-1.3-3 Схема расположения стальных конструкций эстакад под специальные краны 3.013.9-1.3-4 Тормозные фермы ТФ1,ТФК1,ТФ2,ТФК2 3.013.9-1.3-5 Тормозные балки ТБ1,ТБК1 3.013.9-1.3-6 Балки настила БН1,БНК1,БН2,БНК2 3.013.9-1.3-7 Оголовки С1...С7 3.013.9-1.3-8 Вертикальные связи ВС1...ВС8 3.013.9-1.3-9 Узлы 1,2 3.013.9-1.3-10 Узлы 3...6 3.013.9-1.3-11 Узлы 7 3.013.9-1.3-12 Узлы 8,9 3.013.9-1.3-13 Узлы 10,11 3.013.9-1.3-14 Узлы 12,13 3.013.9-1.3-15 Узлы 14,15 3.013.9-1.3-16 Узлы 16 3.013.9-1.3-17 Лестницы. Лестницы Л1...Л3. Узлы 17,18 3.013.9-1.3-18 Лестницы. Лестницы Л4...Л6. Узел 19 3.013.9-1.3-19 Лестницы. Узлы 20,21 3.013.9-1.3-20 Лестницы. Стойки лестниц СТ1...СТ3. Узлы 22...24 3.013.9-1.3-21 Перильное ограждение ПО1 3.013.9-1.3-22 Перильные ограждения ПО2...ПО5 3.013.9-1.3-23 Посадочная площадка по варианту 1 3.013.9-1.3-24 Посадочная площадка по варианту 2 3.013.9-1.3-25 Детали проходов вдоль кранового пути при тормозных балках 3.013.9-1.3-26 Техническая спецификация стали (начало) 3.013.9-1.3-27 Техническая спецификация стали (окончание) |
| Разработан: | Киевский Промстройпроект |
| Утверждён: | 26.04.1988 Госстрой СССР (Государственный комитет Совета Министров СССР по делам строительства) (USSR Gosstroy ) |
| Издан: | ЦИТП Госстроя СССР (CITP, Gosstroy (USSR) 1990 г. ) |
| Заменяет собой: |






























