Скачать Серия 3.016.1-11 Выпуск 0-2. Узлы прокладки кабелей. Материалы для проектированияДата актуализации: 01.01.2021
|
| Обозначение: | Серия 3.016.1-11 |
| Обозначение англ: | Series 3.016.1-11 |
| Статус: | не определен законодательством |
| Название рус.: | Выпуск 0-2. Узлы прокладки кабелей. Материалы для проектирования |
| Дата добавления в базу: | 01.09.2013 |
| Дата актуализации: | 01.01.2021 |
| Дата введения: | 01.10.1991 |
| Дата окончания срока действия: | 30.06.2003 |
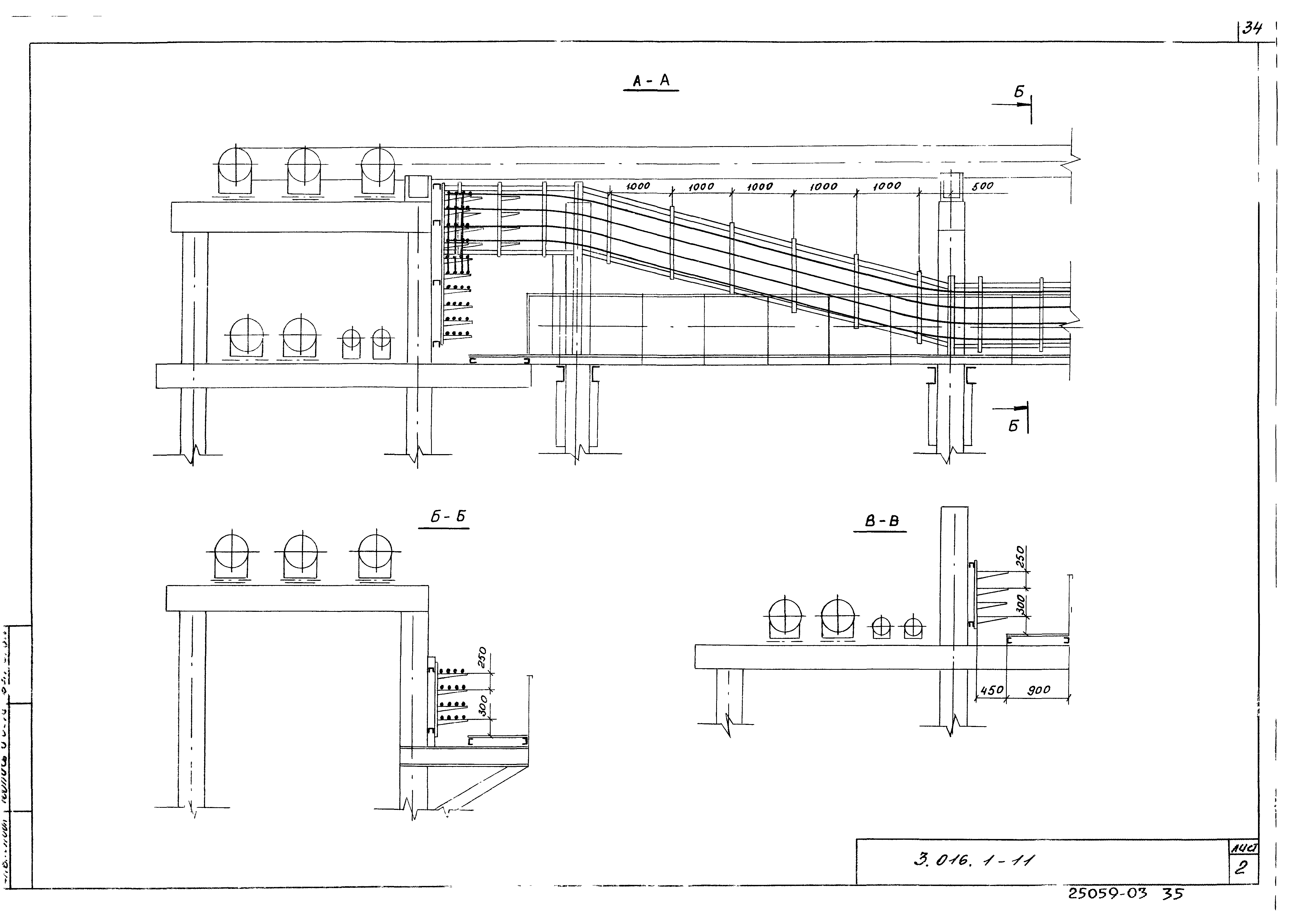
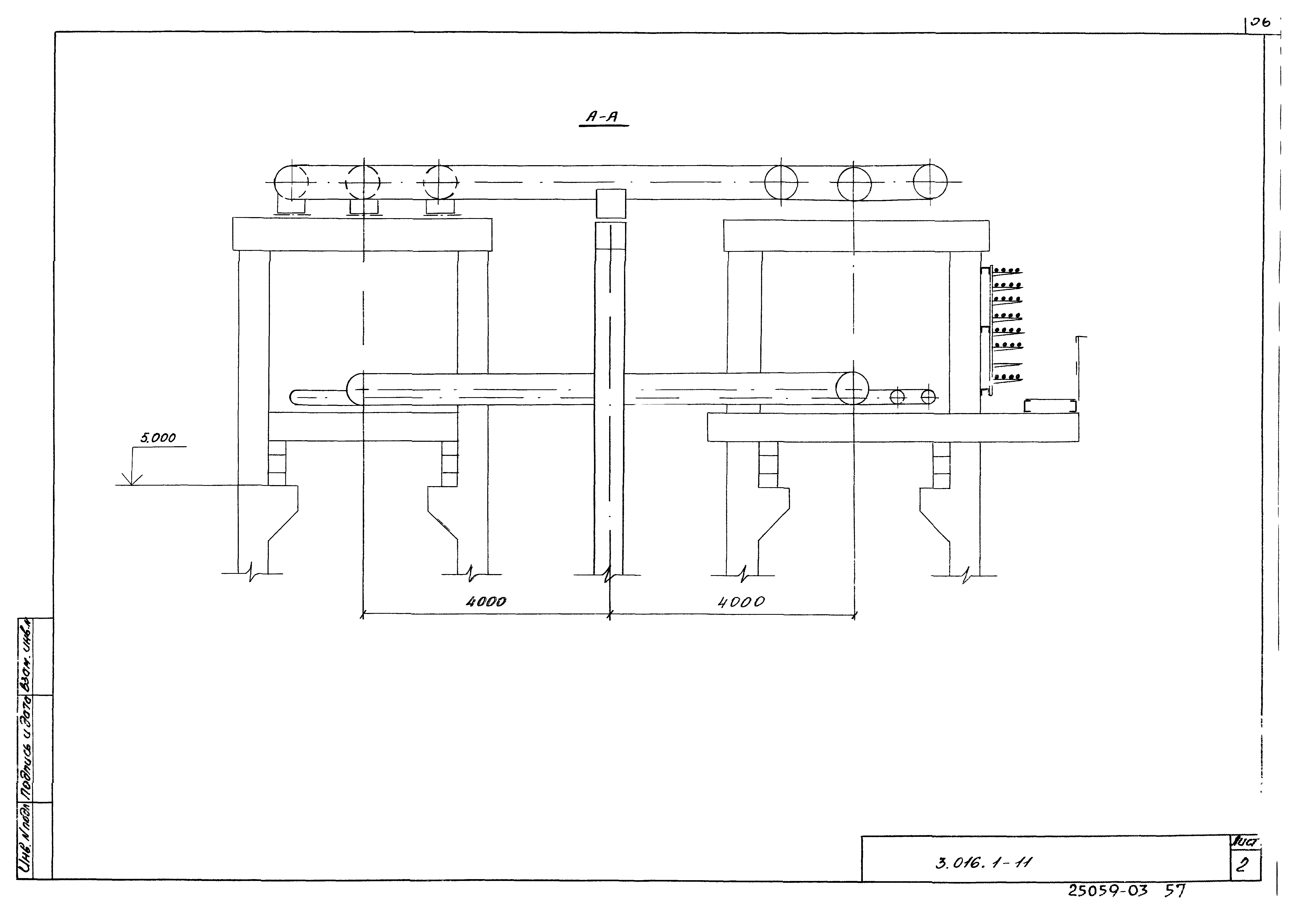
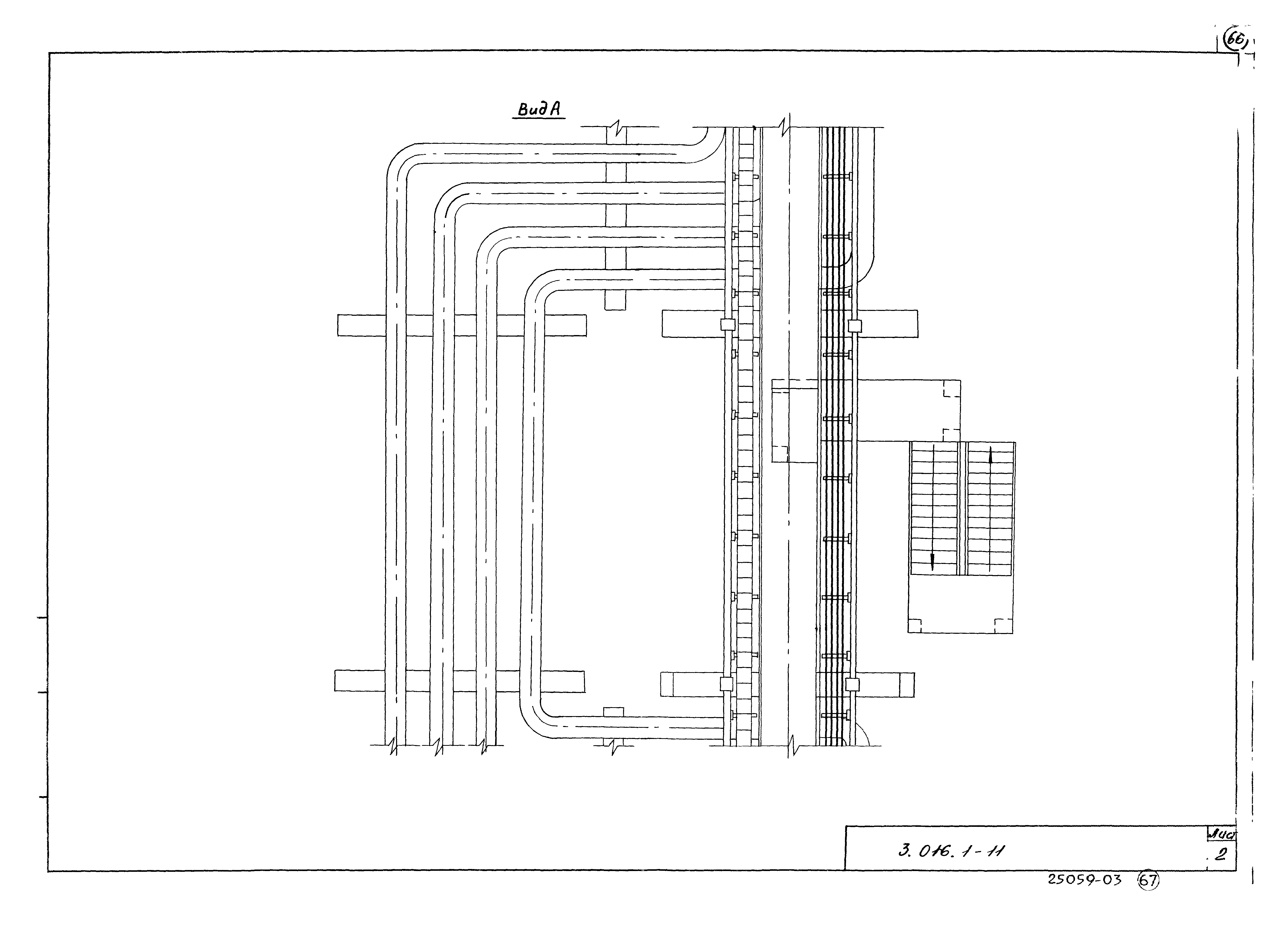
| Оглавление: | 3.016.1-11-001 ПЗ Пояснительная записка 3.016.1-11-002 Варианты разработанных схем комбинированных эстакад 3.016.1-11-003 Прокладка кабелей на прямых участках комбинированной эстакады типа 1 3.016.1-11-004 Прокладка кабелей на прямых участках комбинированной эстакады типа 2, вариант 1 3.016.1-11-005 Прокладка кабелей на прямых участках комбинированной эстакады типа 2, вариант 2 3.016.1-11-006 Прокладка кабелей на прямых участках комбинированной эстакады типа 2, вариант 3 3.016.1-11-007 Прокладка кабелей на прямых участках комбинированной эстакады типа 3, варианты 1,2,5,6 3.016.1-11-008 Прокладка кабелей на прямых участках комбинированной эстакады типа 3, варианты 3,4 3.016.1-11-009 Прокладка кабелей на прямых участках комбинированной эстакады типа 4, варианты 1,3 3.016.1-11-010 Прокладка кабелей на прямых участках комбинированной эстакады типа 4, вариант 2 3.016.1-11-011 Прокладка кабелей на прямых участках комбинированной эстакады типов 5,8, варианты 1,3 3.016.1-11-012 Прокладка кабелей на прямых участках комбинированной эстакады типов 5,8, вариант 2 3.016.1-11-013 Прокладка кабелей на прямых участках комбинированной эстакады типа 6, варианты 1,2,5,6 3.016.1-11-014 Прокладка кабелей на прямых участках комбинированной эстакады типа 6, варианты 3,4 3.016.1-11-015 Прокладка кабелей на прямых участках комбинированной эстакады типа 7, варианты 1,3 3.016.1-11-016 Прокладка кабелей на прямых участках комбинированной эстакады типа 7, вариант 2 3.016.1-11-017 Прокладка кабелей на вапр комбинированной эстакады типов 1,2, электротехническая часть - на внутренней стороне угла поворота эстакады 3.016.1-11-018 Прокладка кабелей на повороте комбинированной эстакады типов 1,2, электротехническая часть эстакады на внешней стороне угла поворота эстакады 3.016.1-11-019 Прокладка кабелей на повороте комбинированной эстакады типа 3 3.016.1-11-020 Прокладка кабелей на повороте комбинированной эстакады типа 4 3.016.1-11-021 Прокладка кабелей на повороте комбинированной эстакады типов 5,8 3.016.1-11-022 Прокладка кабелей на повороте комбинированной эстакады типа 6 3.016.1-11-023 Прокладка кабелей на повороте комбинированной эстакады типа 7 3.016.1-11-024 Прокладка кабелей на разветвлении комбинированной эстакады типа 1 на две эстакады типа 2 под углом 90º 3.016.1-11-025 Прокладка кабелей на разветвлении комбинированной эстакады типов 5,8 на две эстакады типа 4 под углом 90º 3.016.1-11-026 Прокладка кабелей на разветвлении комбинированной эстакады типа 3 на две эстакады типа 2, варианты 1,2 под углом 180º 3.016.1-11-027 Прокладка кабелей на разветвлении комбинированной эстакады типа 8 на две эстакады типа 4 под углом 180º 3.016.1-11-028 Прокладка кабелей на ответвлении от комбинированной эстакады типа 4 на эстакаду типа 2 3.016.1-11-029 Прокладка кабелей на ответвлении от комбинированной эстакады типа 8 на эстакаду типа 4 3.016.1-11-030 Прокладка кабелей на переходе двухсекционной электротехнической части эстакады типов 5,8 в односекционную типа 4 3.016.1-11-031 Прокладка кабелей на переходе двухсекционной электротехнической части комбинированной эстакады типов 6,7 в односекционную типов 3,4 3.016.1-11-032 Прокладка кабелей на примыкании электротехнической части комбинированной эстакады типов 3,4,5,8 к зданию на уровне земли 3.016.1-11-033 Прокладка кабелей на примыкании двухсекционной электротехнической части эстакады типов 5,8 к зданию под углом 90º к оси комбинированной эстакады со спуском под углом 45º 3.016.1-11-034 Прокладка кабелей на примыкании двухсекционной электротехнической части эстакады типов 5,8 к зданию под углом 90º к оси комбинированной эстакады со спуском пандусом 3.016.1-11-035 Прокладка кабелей на примыкании эстакад типов 1,2,3,4,5,8 к зданию на уровне габарита подхода 3.016.1-11-036 Прокладка кабелей на пересечении кабельной эстакады с комбинированной типа 4 под углом 90º 3.016.1-11-037 Прокладка кабелей в зоне П-образного компенсатора для трубопроводов комбинированных эстакад типов 1,2 3.016.1-11-038 Прокладка кабелей в зоне П-образного компенсатора для трубопроводов комбинированных эстакад типов 3,6 с шагом 12000 3.016.1-11-039 Прокладка кабелей в зоне П-образного компенсатора для трубопроводов комбинированных эстакад типов 3,6 с шагом колонн 18000 3.016.1-11-040 Лестничный подъем на электротехническую часть комбинированной эстакады типа 3 вариант 3,4, тип 4 вариант 2 3.016.1-11-041 Лестничный подъем на электротехническую часть комбинированной эстакады типа 5 вариант 1,3; типа 8 вариант 1,3 3.016.1-11-042 Лестничный подъем на электротехническую часть комбинированной эстакады типа 6 вариант 3,4; типа 7 вариант 2 3.016.1-11-043 Лестничный подъем на электротехническую часть комбинированной эстакады типа 3 через трубный компенсатор |
| Разработан: | ВНИИПроектэлектромонтаж |
| Утверждён: | 14.06.1991 Госстрой СССР (Государственный комитет Совета Министров СССР по делам строительства) (USSR Gosstroy 5/6-188) |
| Издан: | АПП ЦИТП (1991 г. ) |

































































