Скачать Серия 5.407-97 Выпуск 1. Монтажные чертежи. Чертежи изделийДата актуализации: 01.01.2021
|
| Обозначение: | Серия 5.407-97 |
| Обозначение англ: | Series 5.407-97 |
| Статус: | не определен законодательством |
| Название рус.: | Выпуск 1. Монтажные чертежи. Чертежи изделий |
| Дата добавления в базу: | 01.09.2013 |
| Дата актуализации: | 01.01.2021 |
| Дата введения: | 14.09.1988 |
| Дата окончания срока действия: | 30.06.2003 |
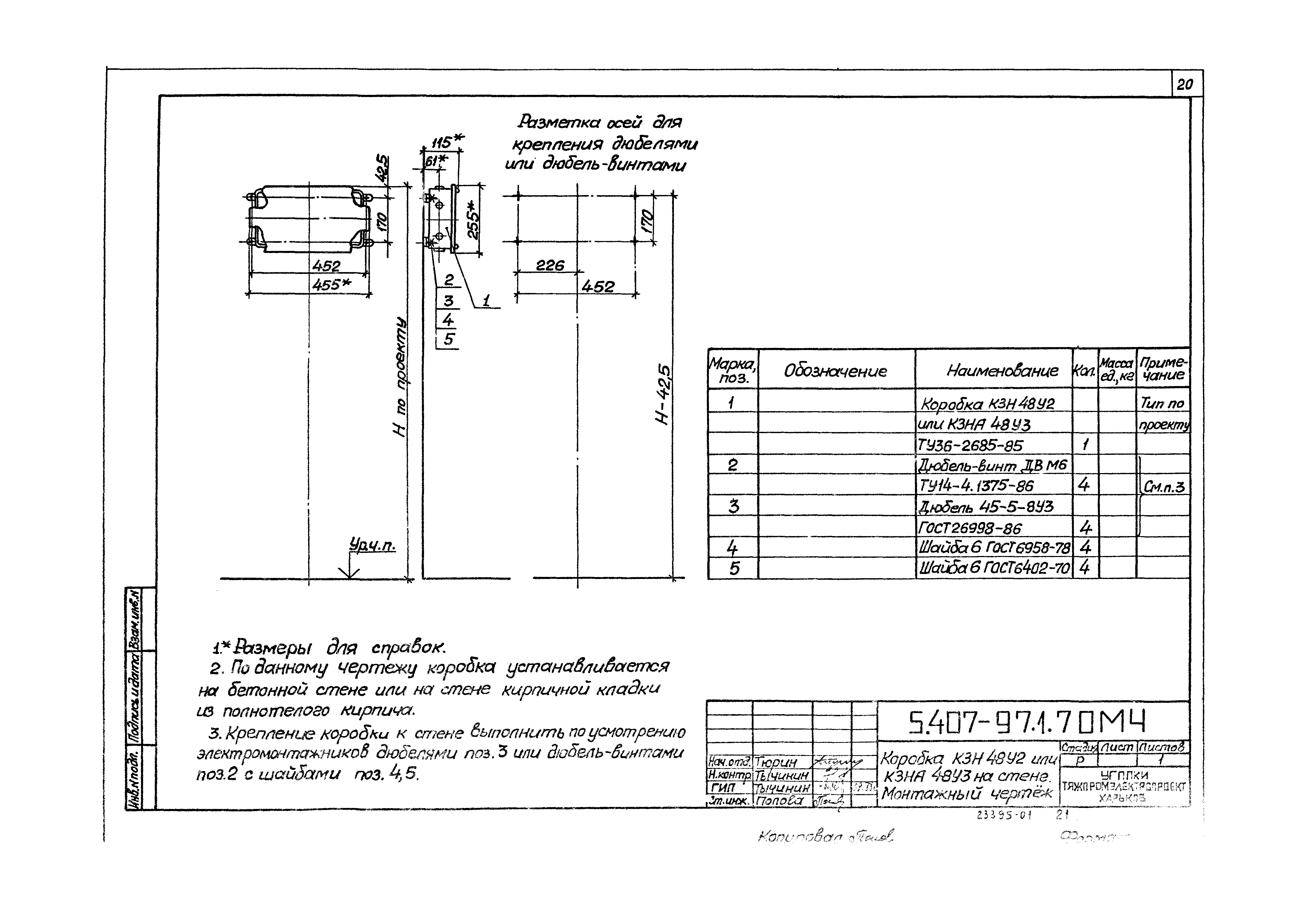
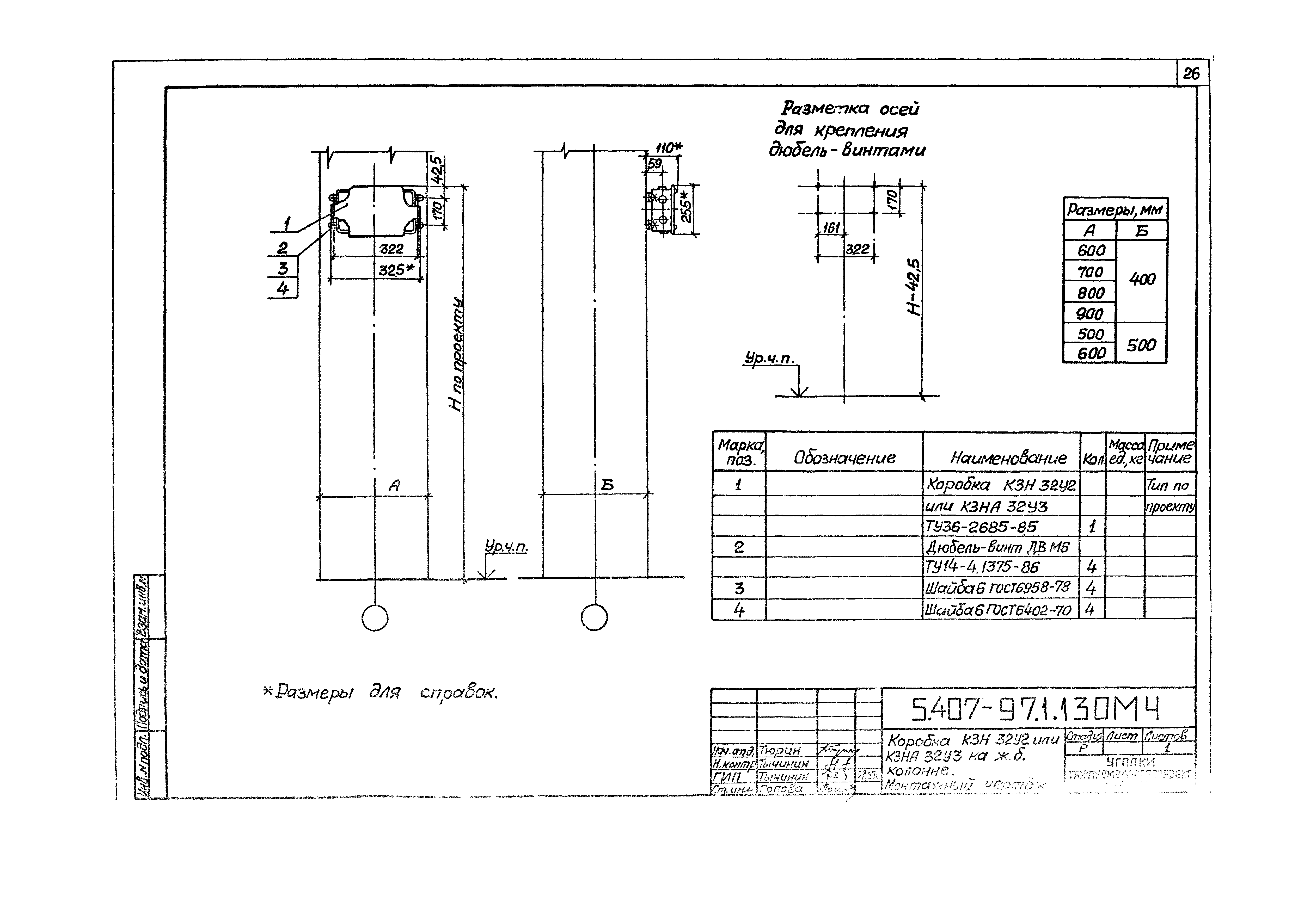
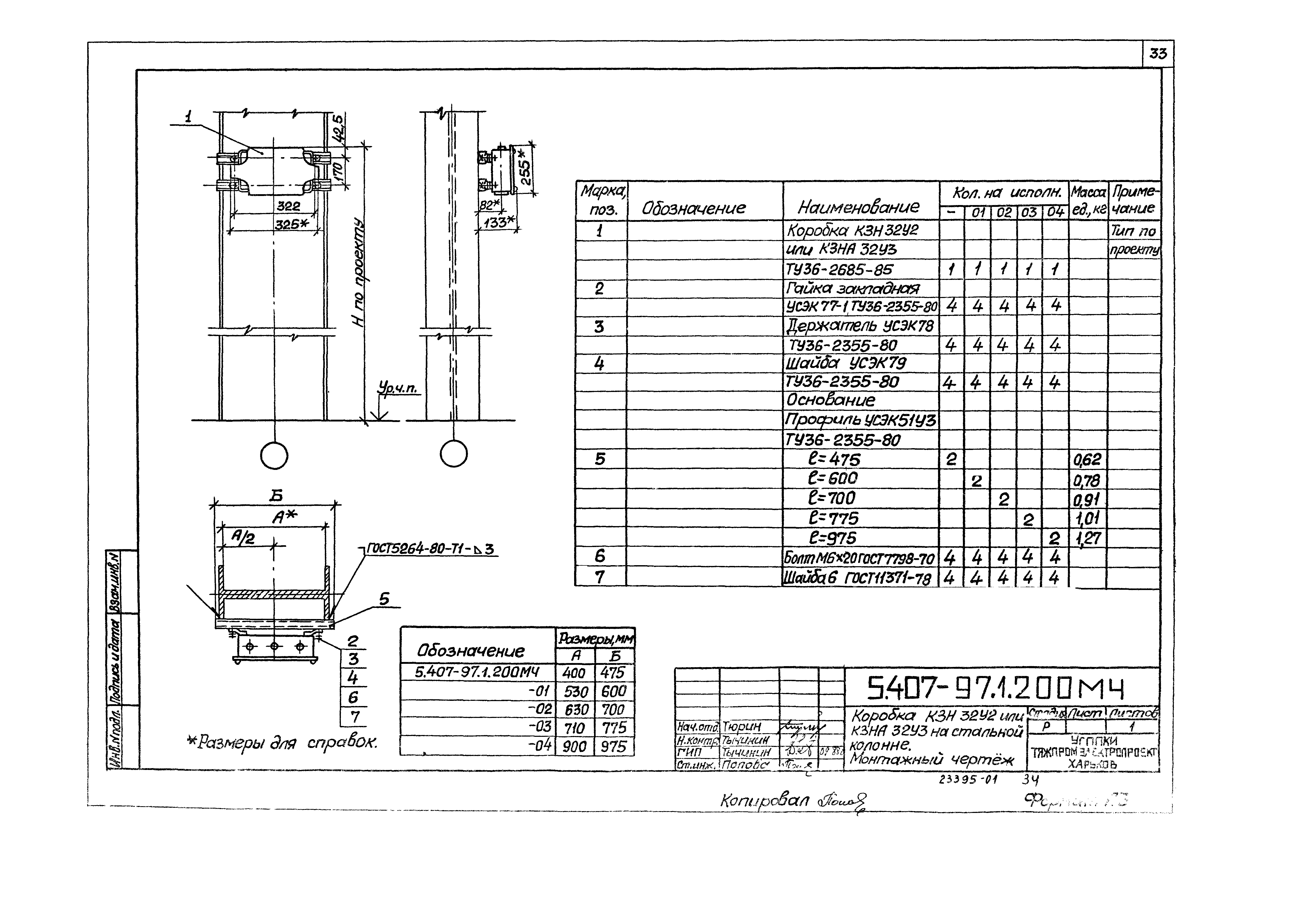
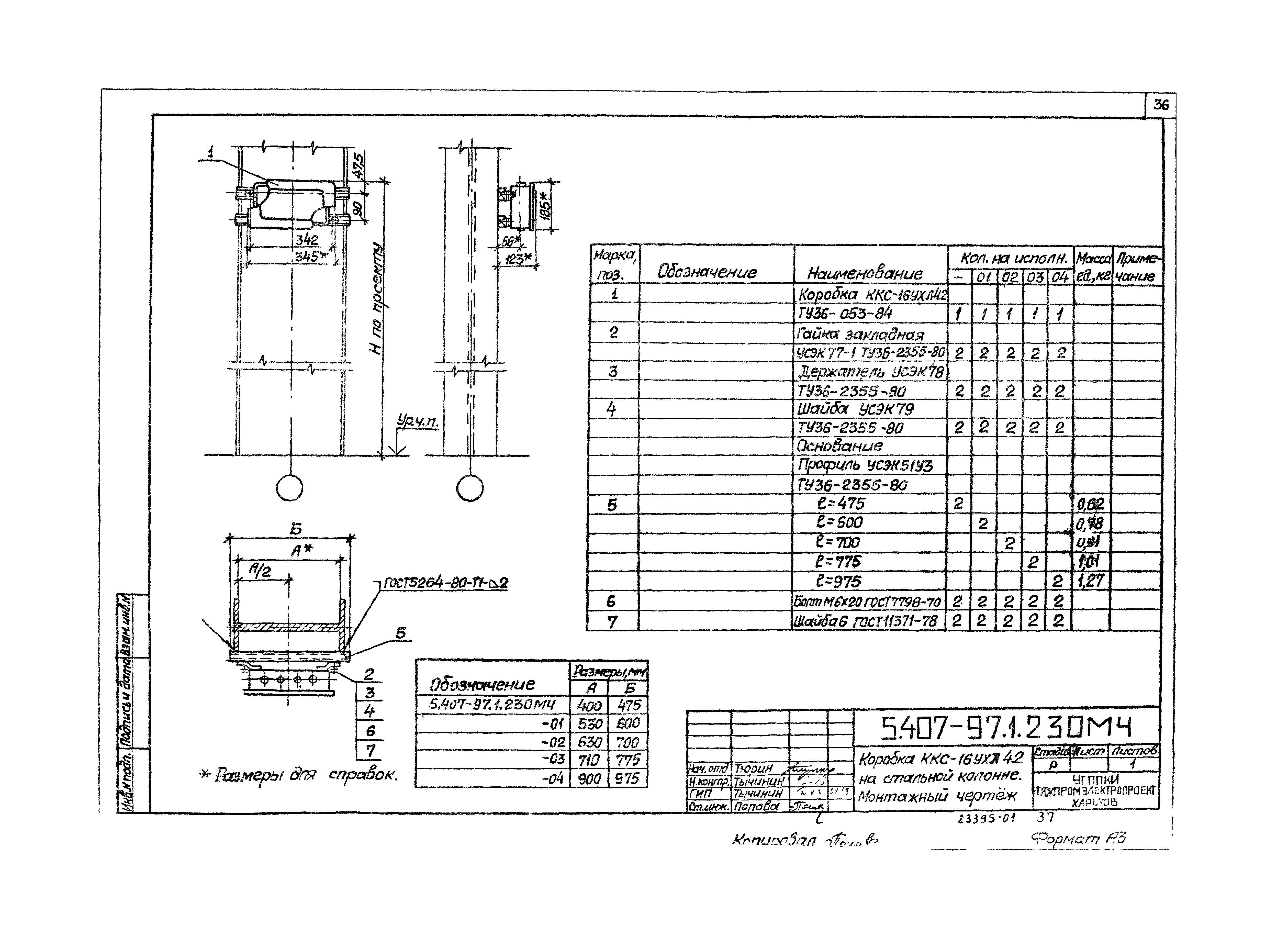
| Оглавление: | Титульный лист Содержание 5.407-97.1.ПЗ Пояснительная записка 5.407-97.1.10ГЧ Коробки с зажимами КЗН, КЗНА, ККС и ККА. Габаритный чертеж 5.407-97.1.20ТБ Таблица выбора монтажных чертежей 5.407-97.1.30Д Ведомость потребности в изделиях и материалах 5.407-97.1.40МЧ Коробка КЗН08У2 или КЗНА08У3 на стене. Монтажный чертеж 5.407-97.1.50МЧ Коробка КЗН16У2 или КЗНА16У3 на стене. Монтажный чертеж 5.407-97.1.60МЧ Коробка КЗН32У2 или КЗНА32У3 на стене. Монтажный чертеж 5.407-97.1.70МЧ Коробка КЗН48У2 или КЗНА48У3 на стене. Монтажный чертеж 5.407-97.1.80МЧ Коробка ККС8УХ4.2 на стене. Монтажный чертеж 5.407-97.1.90МЧ Коробка ККС16УХ4.2 на стене. Монтажный чертеж 5.407-97.1.100МЧ Коробка ККС32УХ4.2 или ККА32 04.2 на стене. Монтажный чертеж 5.407-97.1.110МЧ Коробка КЗН08У2 или КЗНА08У3 на ж.б. колонне. Монтажный чертеж 5.407-97.1.120МЧ Коробка КЗН16У2 или КЗНА16У3 на ж.б. колонне. Монтажный чертеж 5.407-97.1.130МЧ Коробка КЗН32У2 или КЗНА32У3 на ж.б. колонне. Монтажный чертеж 5.407-97.1.140МЧ Коробка КЗН48У2 или КЗНА48У3 на ж.б. колонне. Монтажный чертеж 5.407-97.1.150МЧ Коробка ККС8УХЛ4.2 на ж.б. колонне. Монтажный чертеж 5.407-97.1.160МЧ Коробка ККС16УХЛ4.2 на ж.б. колонне. Монтажный чертеж 5.407-97.1.170МЧ Коробка ККС32УХЛ4.2 или ККА32 04.2 на ж.б. колонне. Монтажный чертеж 5.407-97.1.180МЧ Коробка КЗН08У2 или КЗНА08У3 на стальной колонне. Монтажный чертеж 5.407-97.1.190МЧ Коробка КЗН16У2 или КЗНА16У3 на стальной колонне. Монтажный чертеж 5.407-97.1.200МЧ Коробка КЗН32У2 или КЗНА32У3 на стальной колонне. Монтажный чертеж 5.407-97.1.210МЧ Коробка КЗН48У2 или КЗНА48У3 на стальной колонне. Монтажный чертеж 5.407-97.1.220МЧ Коробка ККС8УХЛ4.2 на стальной колонне. Монтажный чертеж 5.407-97.1.230МЧ Коробка ККС16УХЛ4.2 на стальной колонне. Монтажный чертеж 5.407-97.1.240МЧ Коробка ККС32УХЛ4.2 или ККА3204.2 на стальной колонне. Монтажный чертеж 5.407-97.1.250МЧ Коробка КЗН08У2 или КЗНА08У3 на стальной колонне. Монтажный чертеж 5.407-97.1.260МЧ Коробка КЗН16У2 или КЗНА16У3 на стальной колонне. Монтажный чертеж 5.407-97.1.270МЧ Коробка КЗН32У2 или КЗНА32У3 на стальной колонне. Монтажный чертеж 5.407-97.1.280МЧ Коробка КЗН48У2 или КЗНА48У3 на стальной колонне. Монтажный чертеж 5.407-97.1.290МЧ Коробка ККС8УХЛ4.2 на стальной колонне. Монтажный чертеж 5.407-97.1.300МЧ Коробка ККС16УХЛ4.2 на стальной колонне. Монтажный чертеж 5.407-97.1.310МЧ Коробка ККС32УХЛ4.2 или ККА320.42 на стальной колонне. Монтажный чертеж 5.407-97.1.320МЧ Коробка КЗН08У2 или КЗНА08У3 на стальной ступенчатой колонне. Монтажный чертеж 5.407-97.1.330МЧ Коробка КЗН16У2 или КЗНА16У3 на стальной ступенчатой колонне. Монтажный чертеж 5.407-97.1.340МЧ Коробка КЗН32У2 или КЗНА32У3 на стальной ступенчатой колонне. Монтажный чертеж 5.407-97.1.350МЧ Коробка КЗН48У2 или КЗНА48У3 на стальной ступенчатой колонне. Монтажный чертеж 5.407-97.1.360МЧ Коробка ККС8УХЛ4.2 на стальной ступенчатой колонне. Монтажный чертеж 5.407-97.1.370МЧ Коробка ККС16УХЛ4.2 на стальной ступенчатой колонне. Монтажный чертеж 5.407-97.1.380МЧ Коробка ККС32УХЛ4.2 или ККА3204.2 на стальной ступенчатой колонне. Монтажный чертеж 5.407-97.1.390 Конструкция 5.407-97.1.400 Конструкция 5.407-97.1.410 Шаблон для разметки осей крепления коробок с двумя папками 5.407-97.1.420 Шаблон для разметки осей крепления коробок с четырьмя папками |
| Разработан: | УГППКИ Тяжпромэлектропроект |
| Утверждён: | 14.09.1988 УГППКИ Тяжпромэлектропроект (1396) |
| Издан: | ЦИТП Госстроя СССР (CITP, Gosstroy (USSR) 1989 г. ) |






















































