Скачать Серия 5.407-113 Выпуск 1. Монтажные чертежи. Чертежи изделийДата актуализации: 01.01.2021
|
| Обозначение: | Серия 5.407-113 |
| Обозначение англ: | Series 5.407-113 |
| Статус: | не определен законодательством |
| Название рус.: | Выпуск 1. Монтажные чертежи. Чертежи изделий |
| Дата добавления в базу: | 01.09.2013 |
| Дата актуализации: | 01.01.2021 |
| Дата введения: | 01.01.1990 |
| Дата окончания срока действия: | 30.06.2003 |
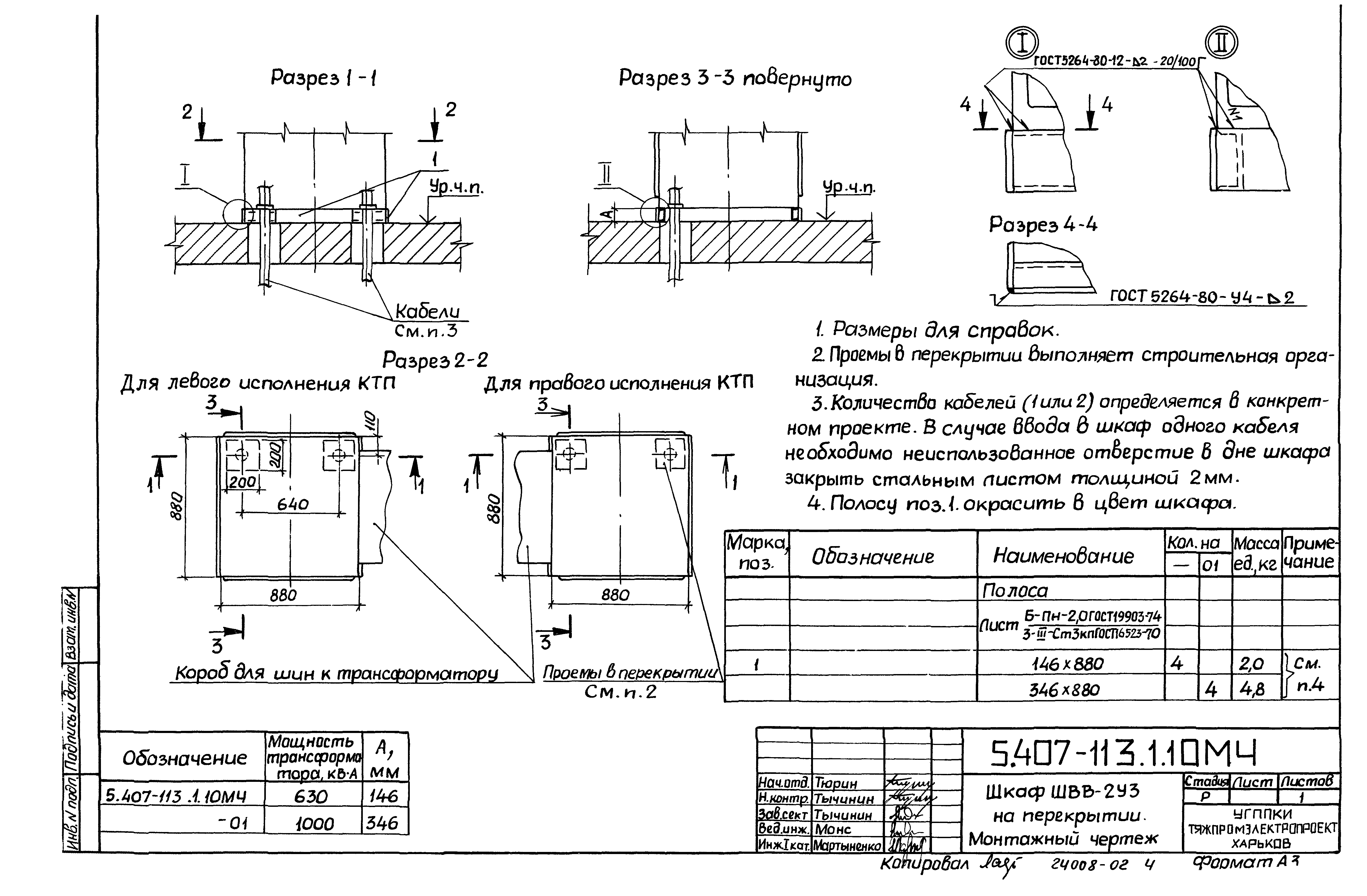
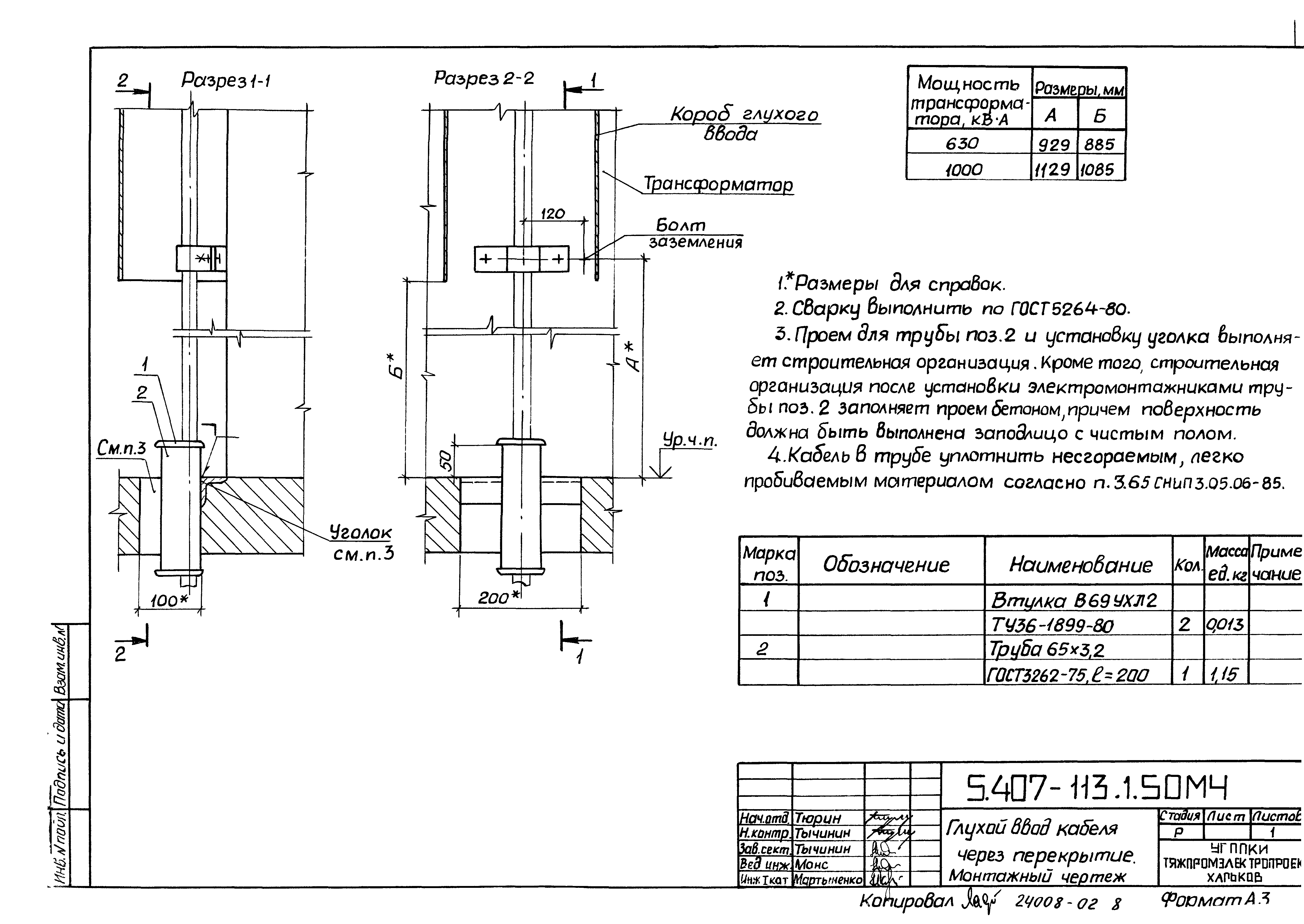
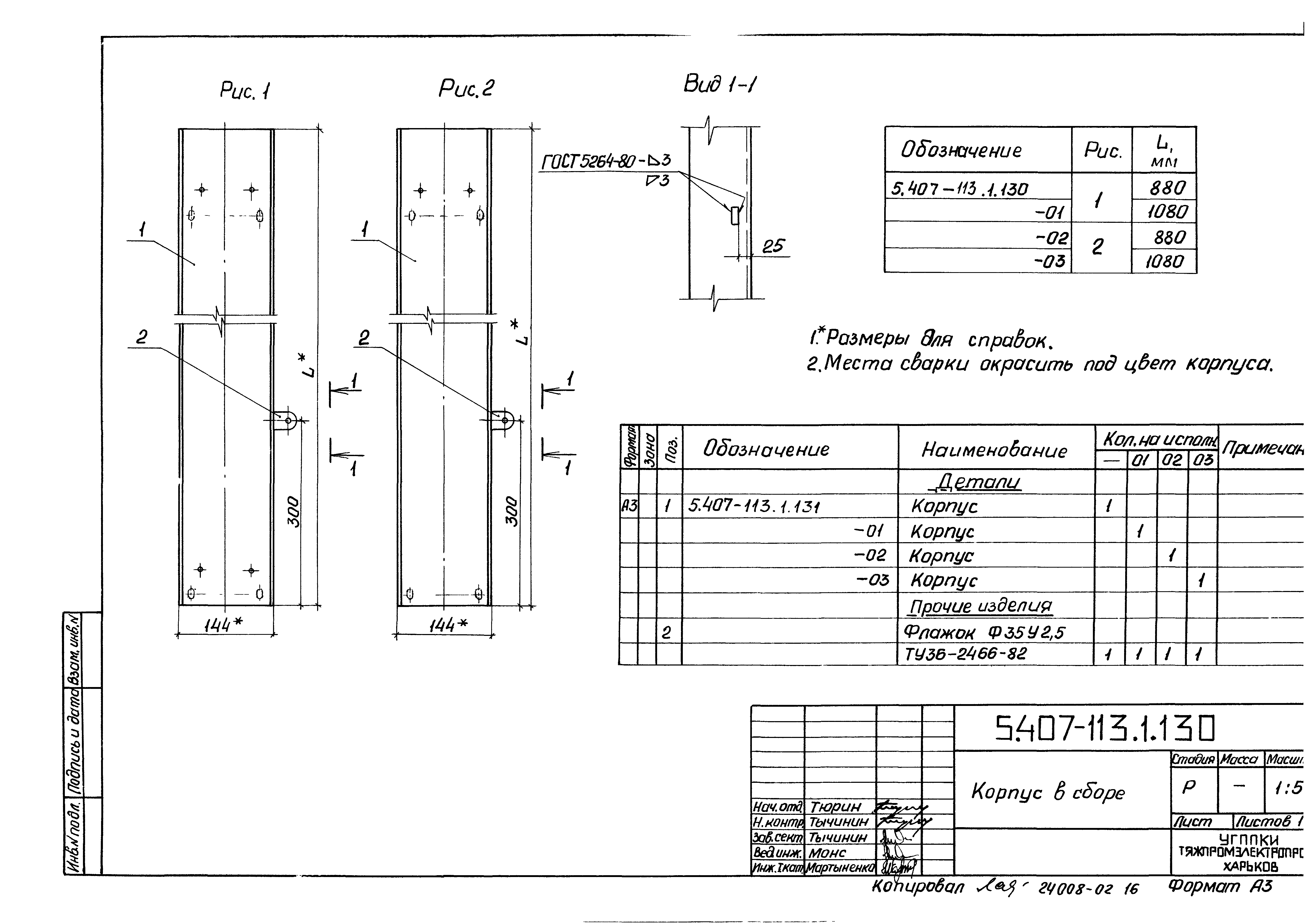
| Оглавление: | Титульный лист Содержание 5.407-113.1.10МЧ Шкаф ШВВ-2УЗ на перекрытии. Монтажный чертеж 5.407-113.1.20МЧ Шкаф ШВВ-2УЗ на канале. Монтажный чертеж 5.407-113.1.30МЧ Шкафы ШНВ, ШНС, и ШНЛ на перекрытии. Монтажный чертеж 5.407-113.1.40МЧ Шкаф ШНВ, ШНС и ШНЛ на канале. Монтажный чертеж 5.407-113.1.50МЧ Глухой ввод кабеля через перекрытие. Монтажный чертеж 5.407-113.1.60МЧ Глухой ввод кабеля через перекрытие с защитой от механических повреждений. Монтажный чертеж 5.407-113.1.70МЧ Глухой ввод кабеля из канала. Монтажный чертеж 5.407-113.1.80МЧ Глухой ввод кабеля из канала с защитой от механических повреждений. Монтажный чертеж 5.407-113.1.90 Блок из патрубков 5.407-113.1.100 Стойка правая 5.407-113.1.110 Стойка левая 5.407-113.1.120 Короб 5.407-113.1.121 Крышка 5.407-113.1.130 Корпус в сборе 5.407-113.1.131 Корпус |
| Разработан: | УГППКИ Тяжпромэлектропроект |
| Утверждён: | 14.02.1989 НПО Электромонтаж ММСС СССР |
| Издан: | ЦИТП Госстроя СССР (CITP, Gosstroy (USSR) 1989 г. ) |


















