Скачать Серия 5.407-116 Выпуск 1. Узлы и изделия. Рабочие чертежиДата актуализации: 01.01.2021
|
| Обозначение: | Серия 5.407-116 |
| Обозначение англ: | Series 5.407-116 |
| Статус: | не определен законодательством |
| Название рус.: | Выпуск 1. Узлы и изделия. Рабочие чертежи |
| Дата добавления в базу: | 01.09.2013 |
| Дата актуализации: | 01.01.2021 |
| Дата введения: | 01.04.1990 |
| Дата окончания срока действия: | 30.06.2003 |
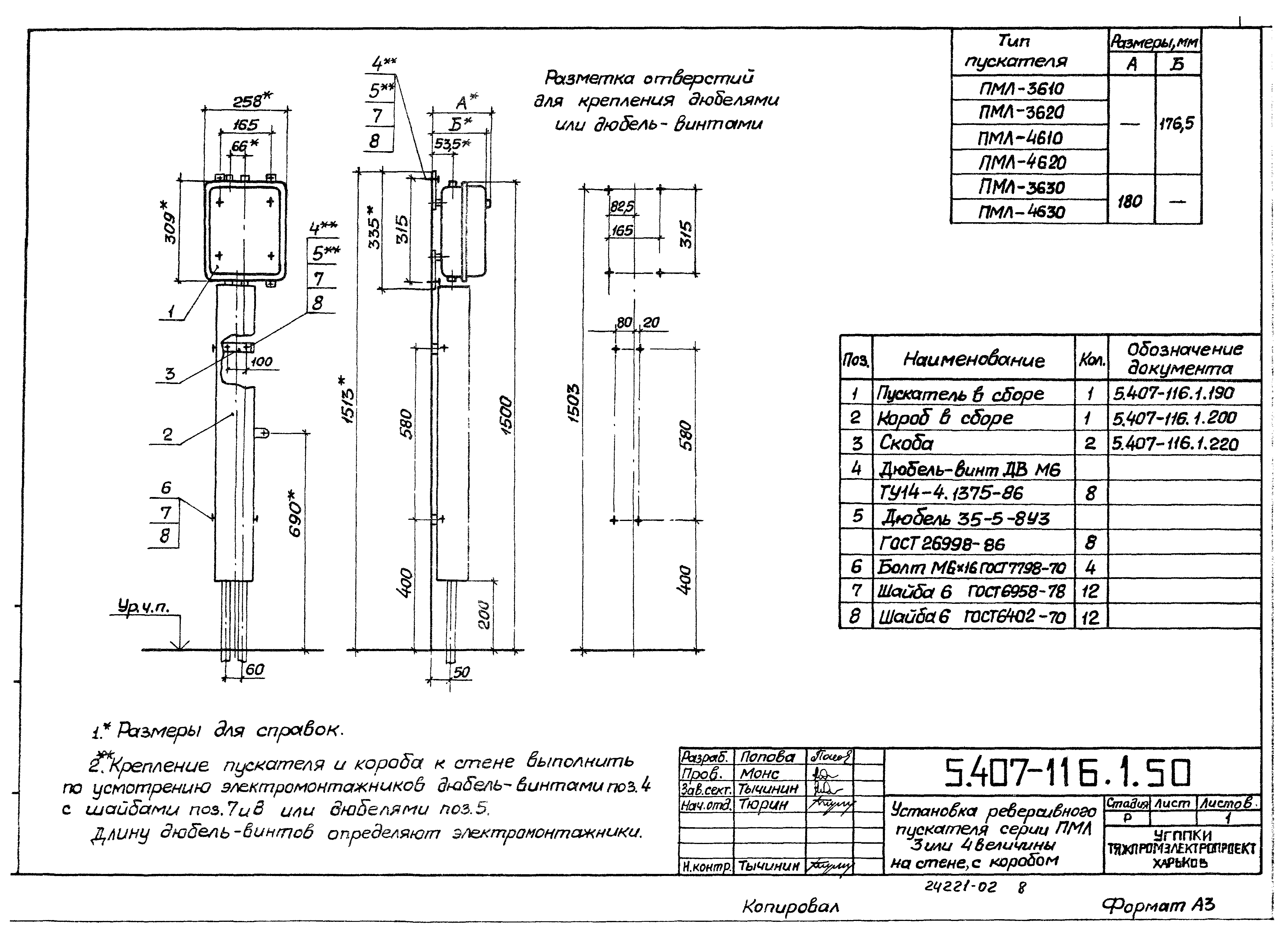
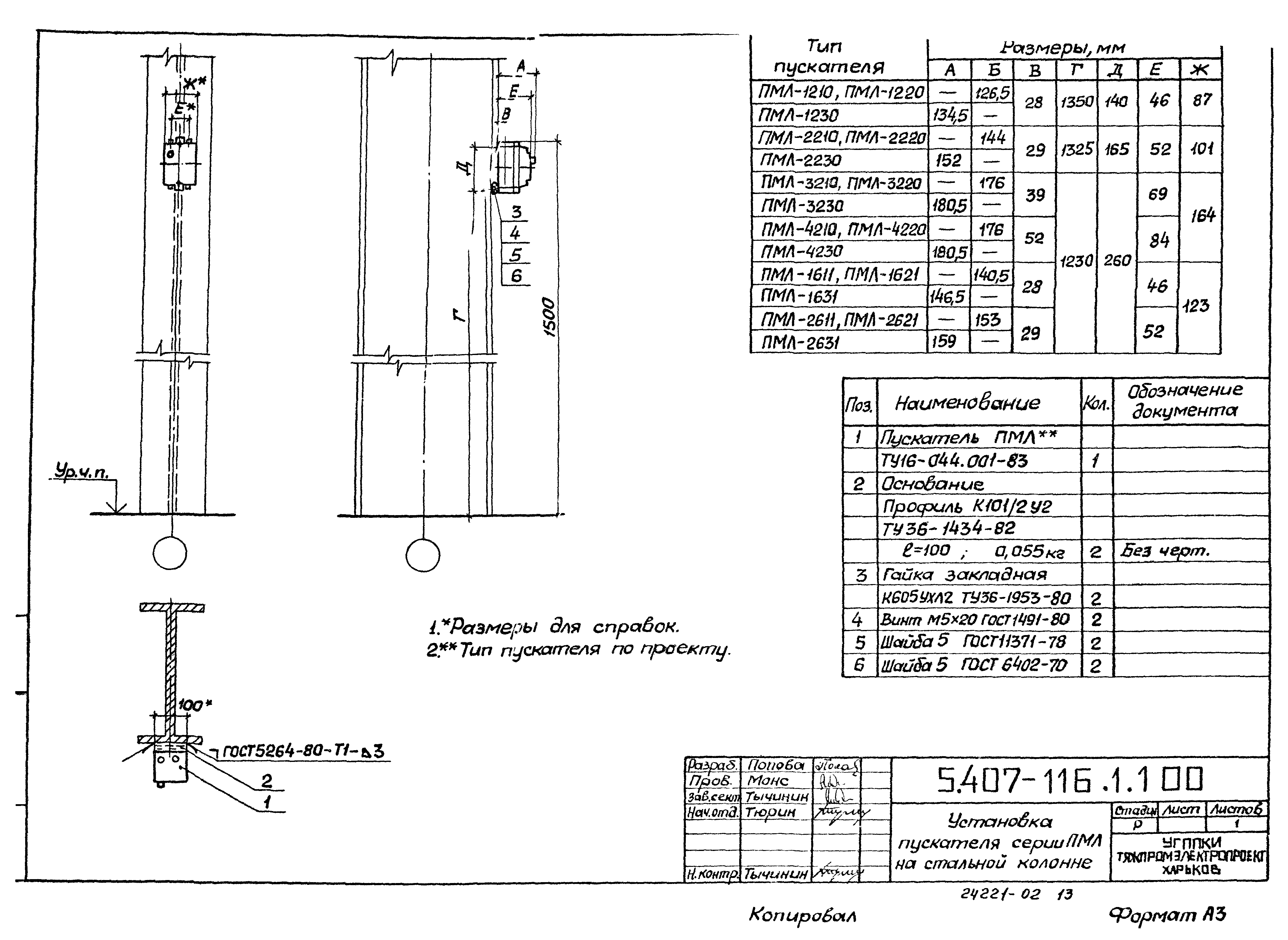
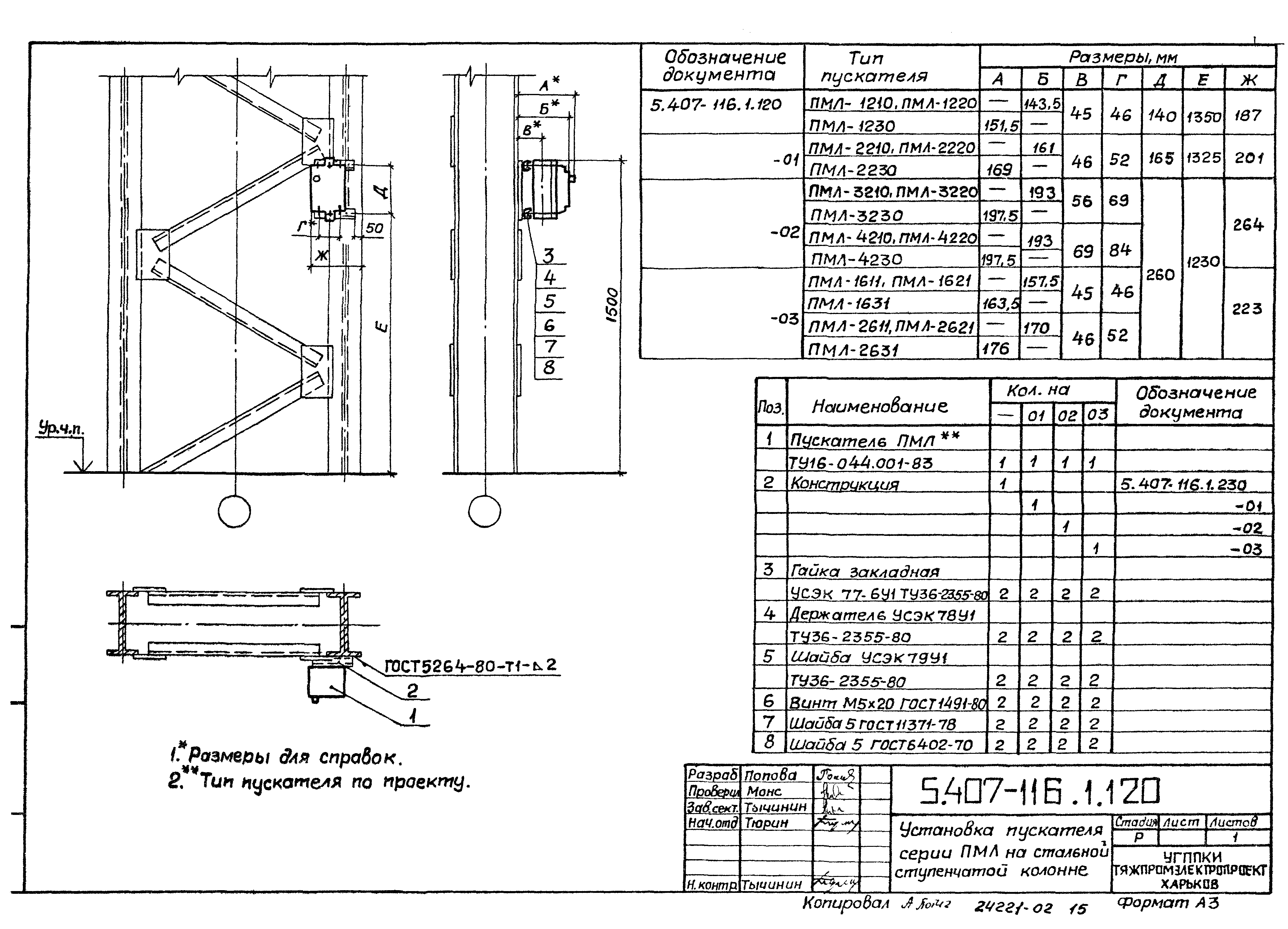
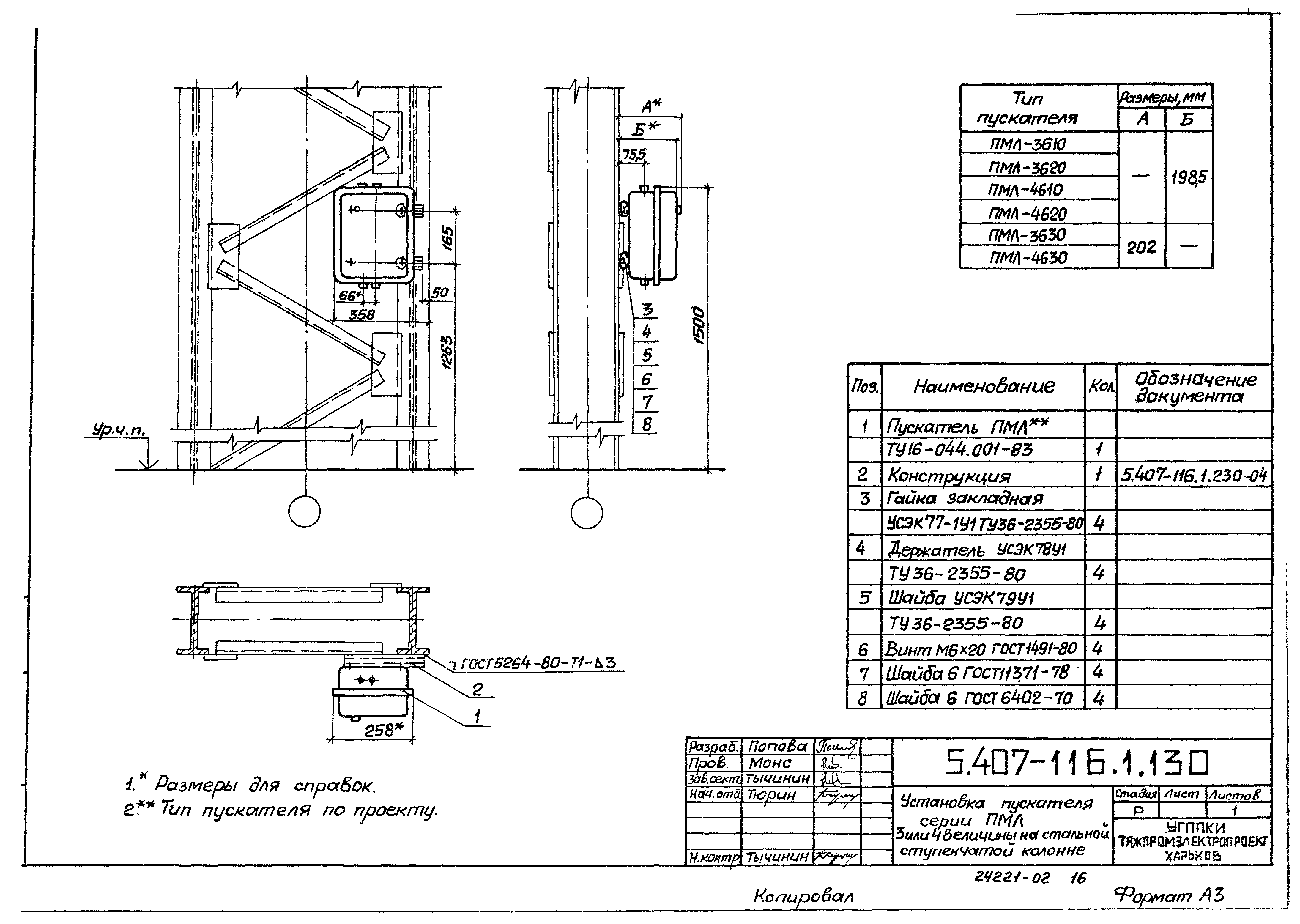
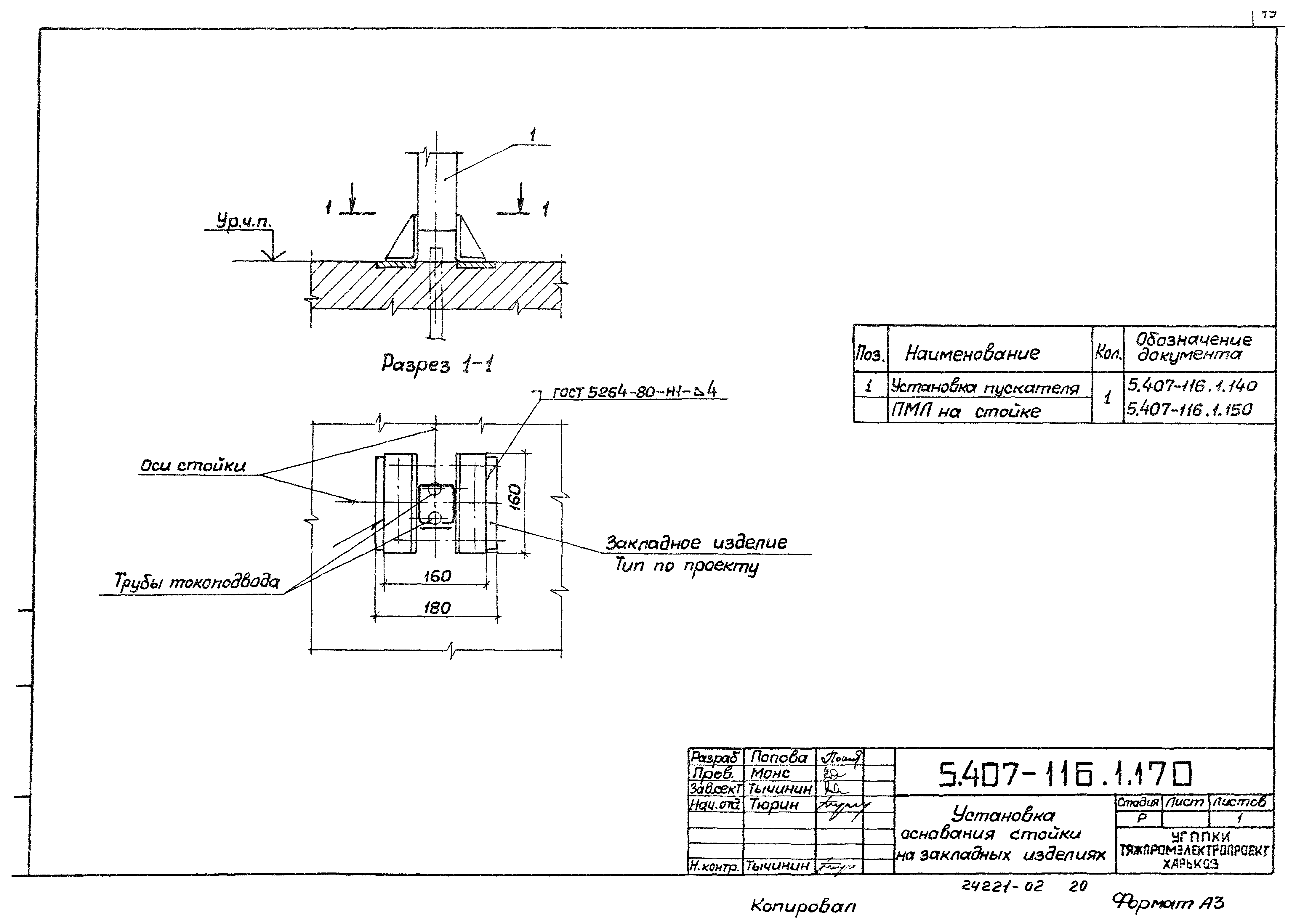
| Оглавление: | Титульный лист Содержание 5.407-116.1.10 Установка пускателя серии ПМЛ на стене 5.407-116.1.20 Установка реверсивного пускателя серии ПМЛ 3 или 4 величины на стене 5.407-116.1.30 Установка пускателя серии ПМЛ 1 или 2 величины на стене с коробом 5.407-116.1.40 Установка нереверсивного пускателя серии ПМЛ 3 или 4 величины на стене с коробом 5.407-116.1.50 Установка реверсивного пускателя серии ПМЛ 3 или 4 величины на стене с коробом 5.407-116.1.60 Установка пускателя серии ПМЛ на ж.б. колонне 5.407-116.1.70 Установка реверсивного пускателя серии ПМЛ 3 или 4 величины на ж.б. колонне 5.407-116.1.80 Установка пускателя серии ПМЛ на стальной колонне 5.407-116.1.90 Установка реверсивного пускателя серии ПМЛ 3 или 4 величины на стальной колонне 5.407-116.1.100 Установка пускателя серии ПМЛ на стальной колонне 5.407-116.1.110 Установка реверсивного пускателя серии ПМЛ 3 или 4 величины на стальной колонне 5.407-116.1.120 Установка пускателя серии ПМЛ на стальной ступенчатой колонне 5.407-116.1.130 Установка реверсивного пускателя серии ПМЛ 3 или 4 величины на стальной ступенчатой колонне 5.407-116.1.140 Установка пускателя серии ПМЛ на стойке 5.407-116.1.150 Установка реверсивного пускателя серии ПМЛ 3 или 4 величины на стойке 5.407-116.1.160 Установка основания стойки на шпильках 5.407-116.1.170 Установка основания стойки на закладных изделиях 5.407-116.1.180 Пускатель в сборе 5.407-116.1.181 Скоба 5.407-116.1.190 Пускатель в сборе 5.407-116.1.200 Короб в сборе 5.407-116.1.201 Короб 5.407-116.1.210 Скоба 5.407-116.1.220 Скоба 5.407-116.1.230 Конструкция 5.407-116.1.240 Прогон 5.407-116.1.250 Закреп |
| Разработан: | УГППКИ Тяжпромэлектропроект |
| Утверждён: | 13.04.1989 НПО Электромонтаж ММСС СССР |
| Издан: | ЦИТП Госстроя СССР (CITP, Gosstroy (USSR) 1990 г. ) |


























