Скачать Серия 5.407-130 Выпуск 0. Материалы для проектированияДата актуализации: 01.01.2021
|
| Обозначение: | Серия 5.407-130 |
| Обозначение англ: | Series 5.407-130 |
| Статус: | не определен законодательством |
| Название рус.: | Выпуск 0. Материалы для проектирования |
| Дата добавления в базу: | 01.09.2013 |
| Дата актуализации: | 01.01.2021 |
| Дата введения: | 01.01.1991 |
| Дата окончания срока действия: | 30.06.2003 |
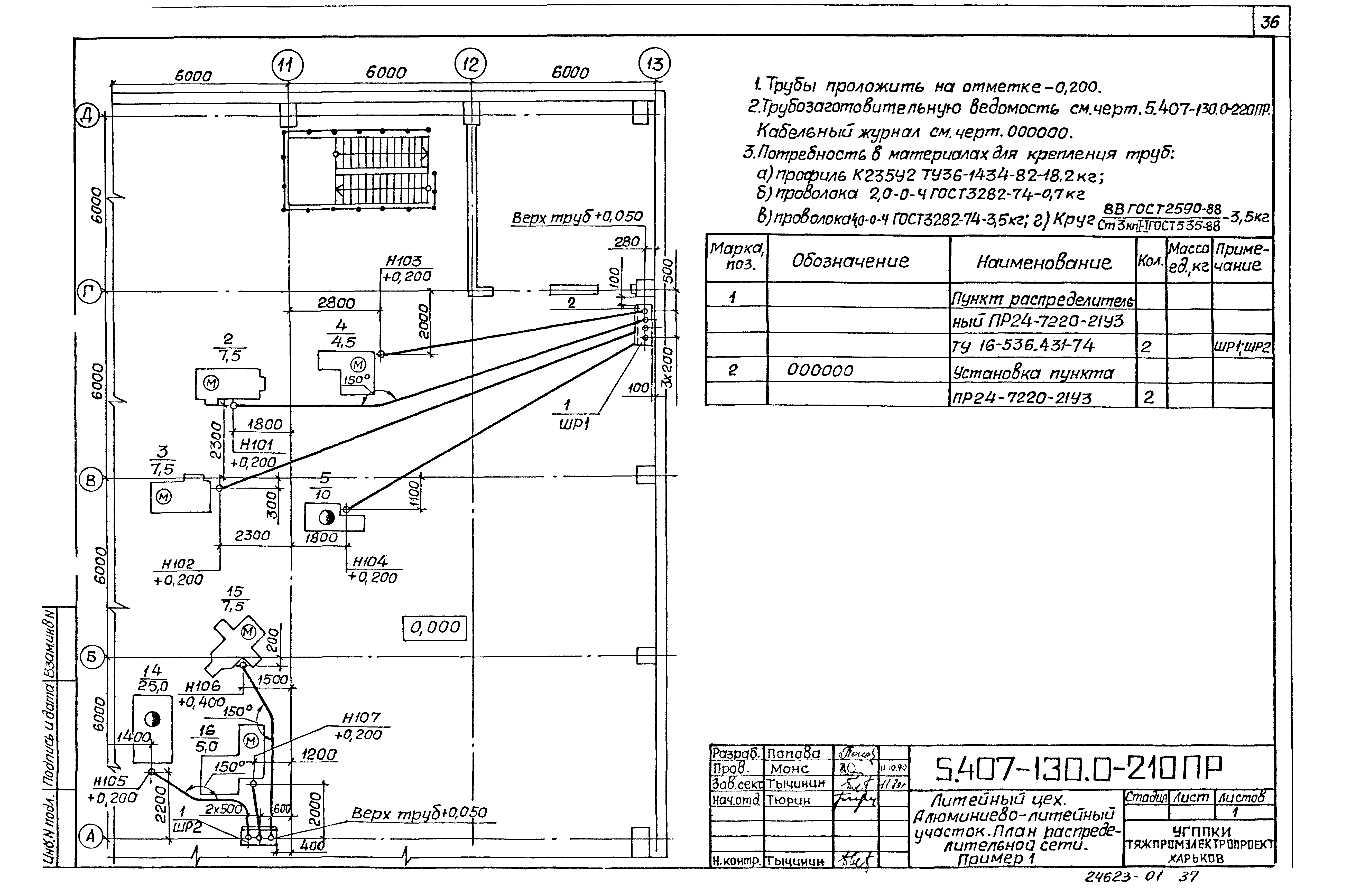
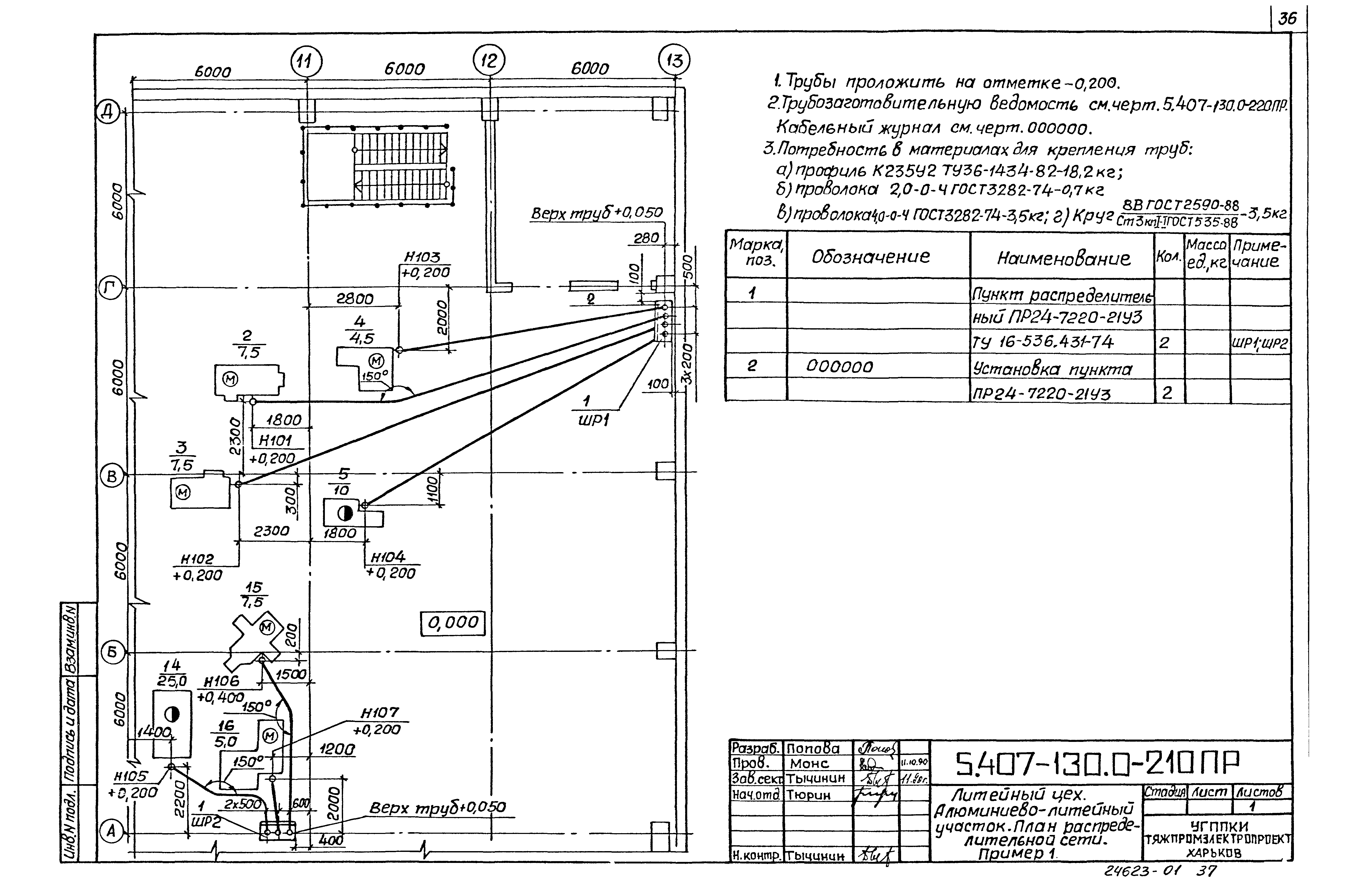
| Оглавление: | Титульный лист Содержание выпуска 5.407-130.0-ПЗ Пояснительная записка 5.407-130.0-10ТБ Условные графические изображения трубных проводок на чертежах 5.407-130.0-20ТБ Область применения полиэтиленовых труб для прокладки проводов и кабелей в промышленных предприятиях 5.407-130.0-30ТБ Трубы из полиэтилена ГОСТ 18599-83 5.407-130.0-40ТБ Выбор стальных и поливинилхлоридных труб соединяемых с полиэтиленовыми трубами 5.407-130.0-50Д Выбор полиэтиленовых труб для прокладки проводов и кабелей по расчетным формулам 5.407-130.0-60Д Выбор полиэтиленовых труб для прокладки кабелей с однопроволочными алюминиевыми жилами 5.407-130.0-70ТБ Таблицы выбора полиэтиленовых труб для прокладки проводов 5.407-130.0-80ТБ Таблицы выбора полиэтиленовых труб для прокладки силовых небронированных кабелей 5.407-130.0-90ТБ Таблицы выбора полиэтиленовых труб для прокладки контрольных небронированных кабелей 5.407-130.0-100Д Оконцевание полиэтиленовых труб при выходе их из бетона 5.407-130.0-110Д Выбор колеи из электросварных труб 5.407-130.0-120Д Выбор колеи из легких водогазопроводных труб 5.407-130.0-130Д Рекомендуемые способы прокладки проводов и кабелей при выходе их из пола 5.407-130.0-140ВМ Ведомость потребности в оборудовании, изделиях и материалах 5.407-130.0-150ПР Защита блока полиэтиленовых труб при выходе из фундамента в грунт. Строительное здание. Пример 5.407-130.0-160ПР Защита блока полиэтиленовых труб на переходе их через деформационный шов. Строительное здание. Пример 5.407-130.0-170ПР Пакет из полиэтиленовых труб. Пример 5.407-130.0-180ПР Двухслойный блок из полиэтиленовых труб. Пример 5.407-130.0-190Д Определение длины шпильки для крепления труб в двухслойном блоке 5.407-130.0-200ПР Установка протяжного ящика типа К659У2. Пример 5.407-130.0-210ПР Литейный цех. Алюминиево-литейный участок. План распределительной сети. Пример 1 5.407-130.0-220ПР Трубозаготовительная ведомость. Пример заполнения 5.407-130.0-230ПР Литейный цех. Алюминиево-литейный участок. План распределительной сети. Пример 2 5.407-130.0-240ПР Кабельный журнал, совмещенный с трубозаготовительной ведомостью. Пример заполнения |
| Разработан: | УГППКИ Тяжпромэлектропроект |
| Утверждён: | 22.03.1990 НПО Электромонтаж ММСС СССР |
| Издан: | ЦИТП Госстроя СССР (CITP, Gosstroy (USSR) 1991 г. ) |









































