Скачать Серия 5.416-2 Выпуск 1. Верстаки, столы. Рабочие чертежиДата актуализации: 01.01.2021
|
| Обозначение: | Серия 5.416-2 |
| Обозначение англ: | Series 5.416-2 |
| Статус: | не определен законодательством |
| Название рус.: | Выпуск 1. Верстаки, столы. Рабочие чертежи |
| Дата добавления в базу: | 01.09.2013 |
| Дата актуализации: | 01.01.2021 |
| Дата введения: | 01.08.1988 |
| Дата окончания срока действия: | 30.06.2003 |
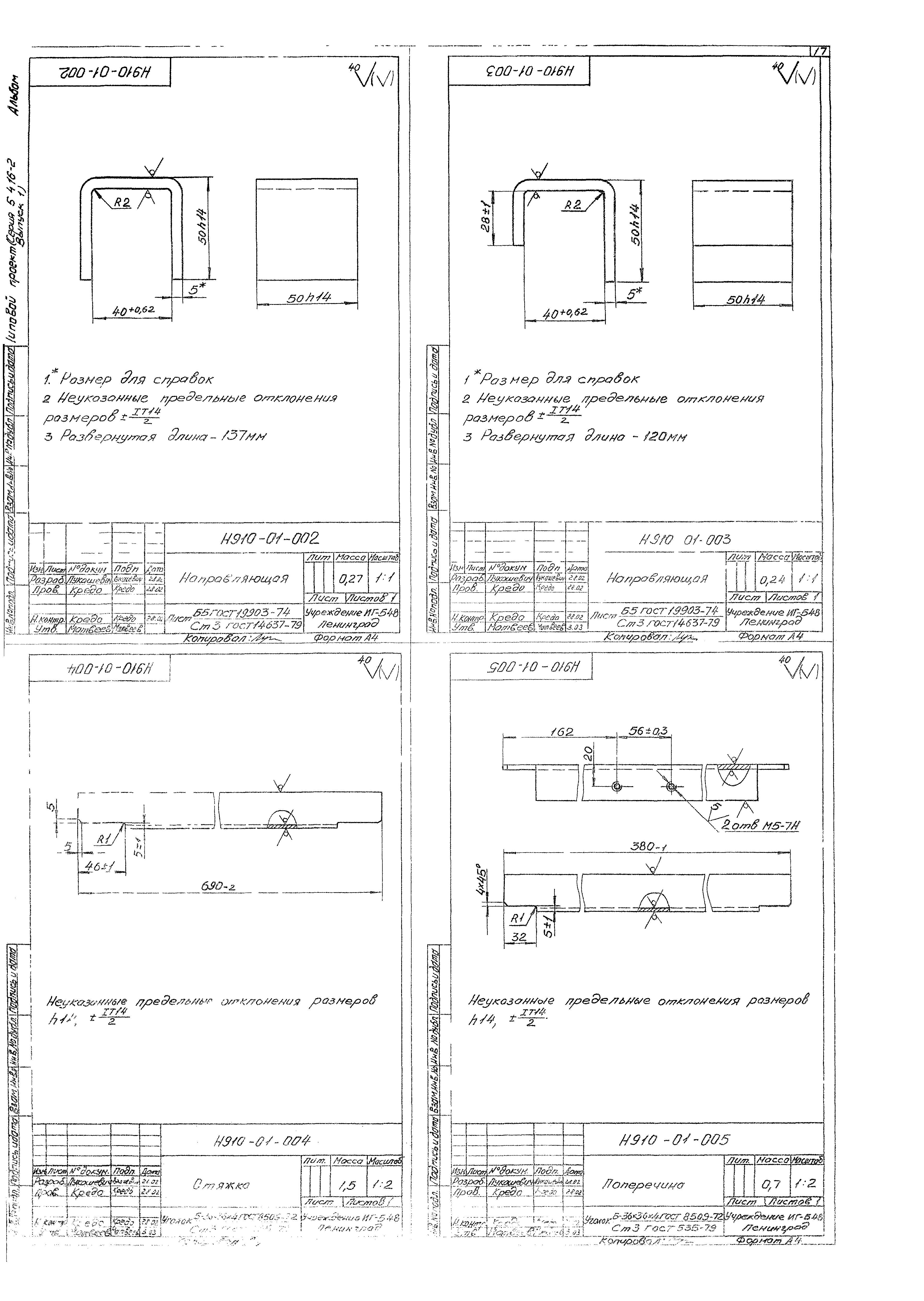
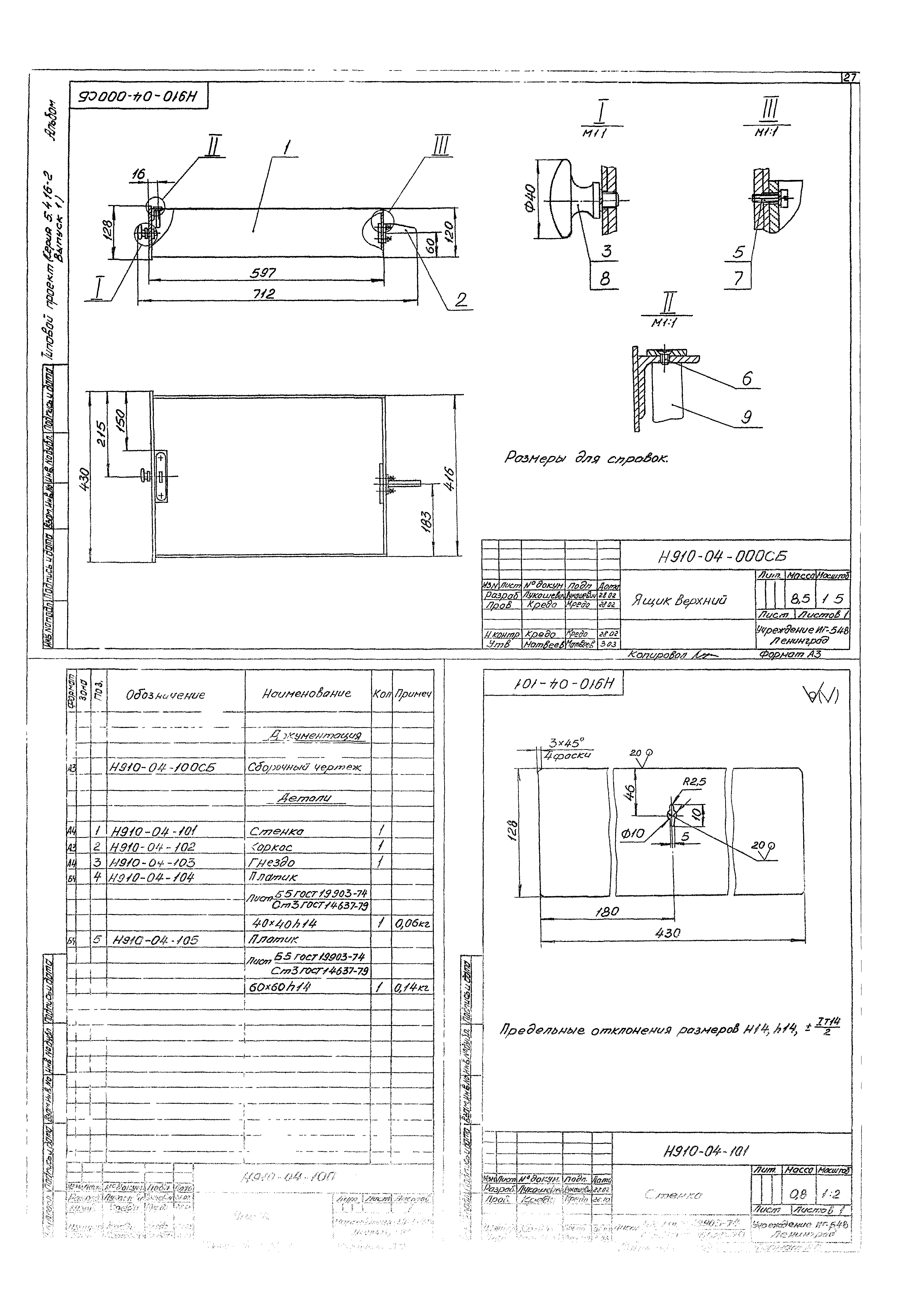
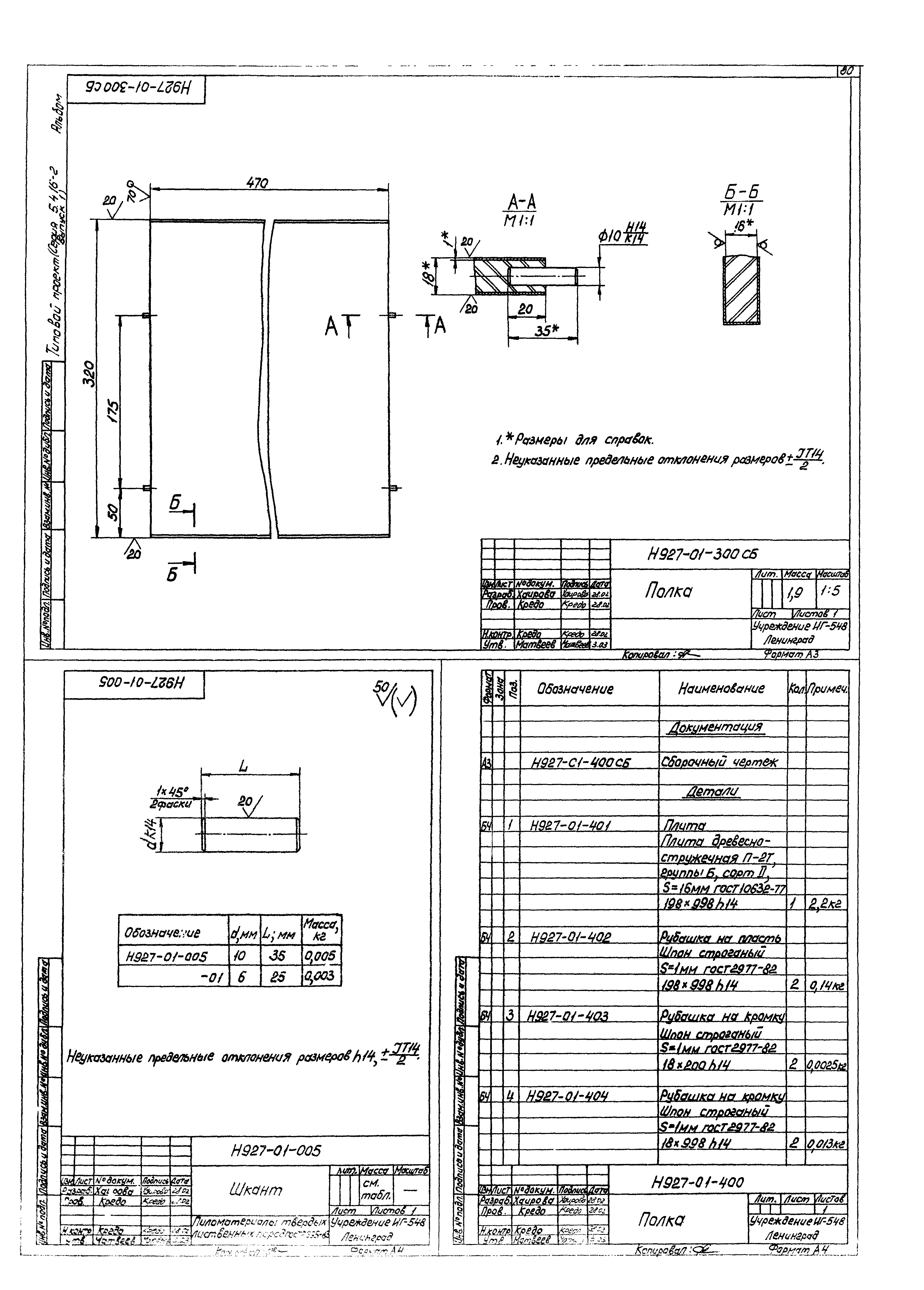
| Оглавление: | Содержание альбома 5.416-2.1-00ПЗ Пояснительная записка 5.416-2.1-00ТУ Общие технические условия Н910-00-000ВС Верстак слесарный. Ведомость спецификаций Н910-00-000ВП Верстак слесарный. Ведомость покупных изделий Н910-00-000 Верстак слесарный Н910-00-000СБ Верстак слесарный. Сборочный чертеж Н910-00-001 Направляющая Н910-01-000 Каркас Н910-01-000СБ Каркас. Сборочный чертеж Н910-01-001 Рамка Н910-01-002 Направляющая Н910-01-003 Направляющая Н910-01-004 Стяжка Н910-01-005 Поперечина Н910-01-006 Крышка Н910-01-100 Боковина Н910-01-101 Стойка Н910-01-102 Стойка Н910-01-100СБ Боковина. Сборочный чертеж Н910-01-200 Боковина Н910-01-201 Стойка Н910-01-202 Стойка Н910-01-300 Боковина Н910-01-200СБ Боковина. Сборочный чертеж Н910-01-300СБ Боковина. Сборочный чертеж Н910-02-000 Ограждение Н910-02-001 Рамка Н910-02-002 Стяжка Н910-02-000СБ Ограждение. Сборочный чертеж Н910-03-000 Крышка Н910-03-001 Упор Н910-04-000 Ящик верхний Н910-04-001 Ручка Н910-03-000СБ Крышка. Сборочный чертеж Н910-04-000СБ Ящик верхний. Сборочный чертеж Н910-04-100 Ящик Н910-04-101 Стенка Н910-04-000СБ Ящик. Сборочный чертеж Н910-04-102 Каркас Н910-04-200 Кронштейн Н910-04-103 Гнездо Н910-04-200СБ Кронштейн Н910-05-000 Ящик нижний Н910-04-201 Направляющая Н910-05-000СБ Ящик нижний. Сборочный чертеж Н910-05-100 Ящик Н910-05-101 Стенка Н910-05-100СБ Ящик. Сборочный чертеж Н910-06-000 Стул поворотный. Сборочный чертеж Н910-06-001 Ось Н910-06-100 Сиденье Н910-06-000СБ Стул поворотный. Сборочный чертеж Н910-06-100СБ Сиденье Н910-06-101 Диск Н910-06-102 Основание Н910-06-200 Кронштейн Н910-06-201 Планка Н910-06-200СБ Кронштейн. Сборочный чертеж Н910-06-300 Кронштейн Н910-06-202 Втулка Н910-06-301 Связь Н910-06-300СБ Кронштейн. Сборочный чертеж Н910-06-302 Втулка Н910-06-303 Втулка Н910-06-304 Ребро Н910-06-400 Винт в сборе Н910-06-400СБ Винт в сборе. Сборочный чертеж Н910-06-401 Основание Н910-06-402 Винт Н910-07-000 Затвор Н910-07-001 Ролик Н910-07-000СБ Затвор. Сборочный чертеж Н910-07-002 Рейка Н910-07-003 Затвор Н910-07-004 Ось Н920-00-000ВС Верстак для ремонта рукавов. Ведомость спецификаций Н920-00-000ВП Верстак для ремонта рукавов. Ведомость покупных изделий Н920-00-000 Верстак для ремонта рукавов Н920-01-000 Каркас Н920-00-000СБ Верстак для ремонта рукавов. Сборочный чертеж Н920-01-000СБ Каркас. Сборочный чертеж Н920-01-001 Стойка Н920-01-002 Связь Н920-01-003 Связь Н920-01-004 Связь Н920-01-005 Плотик Н920-02-000 Ящик Н920-02-000СБ Ящик. Сборочный чертеж Н920-02-001 Ручка Н920-02-002 Корпус ящика Н922-00-000ВС Стол для набивки патронов. Ведомость спецификаций Н922-00-000ВП Стол для набивки патронов. Ведомость покупных изделий Н922-00-000 Стол для набивки патронов Н922-00-001 Плита Н922-00-002 Фланец Н922-00-000СБ Стол для набивки патронов. Сборочный чертеж Н922-01-000 Каркас Н922-01-001 Уголок Н922-01-002 Косынка Н922-01-003 Связь Н922-01-000СБ Каркас. Сборочный чертеж Н922-01-004 Платик Н922-02-000 Короб Н922-02-000СБ Короб. Сборочный чертеж Н922-02-001 Уголок Н922-02-002 Уголок Н922-02-003 Уголок Н922-02-004 Стенка Н922-02-005 Стенка Н922-02-006 Стенка Н922-03-000 Бункер Н922-04-000 Шибер Н922-03-000СБ Бункер. Сборочный чертеж Н922-04-000СБ Шибер. Сборочный чертеж Н922-04-100 Рама Н922-04-100СБ Рама. Сборочный чертеж Н922-04-200 Заслонка Н922-04-200СБ Заслонка. Сборочный чертеж Н922-04-201 Ручка Н922-05-000 Патрубок Н922-05-000СБ Патрубок. Сборочный чертеж Н926-00-000ВС Стол для поверки апр. Ведомость для спецификаций Н926-00-000ВП Стол для поверки апр. Ведомость покупных изделий Н926-00-000 Стол для поверки КИП Н926-01-000 Каркас Н926-01-001 Распорка передняя Н926-00-000СБ Стол для проверки КИП. Сборочный чертеж Н926-01-000СБ Каркас. Сборочный чертеж Н926-01-002 Ножка Н926-01-004 Распорка Н926-01-005 Распорка Н926-01-006 Проножка боковая Н926-01-007 Уголок Н926-01-008 Направляющая Н926-01-009 Шкант Н926-01-010 Распорка Н926-01-011 Распорка Н926-01-012 Поперечина Н926-02-000 Ящик Н926-02-000СБ Ящик. Сборочный чертеж Н926-02-001 Доска лицевая Н926-02-002 Стенка задняя Н926-02-003 Стенка боковая Н926-03-000 Столешница Н926-04-000 Полка Н926-03-000СБ Столешница. Сборочный чертеж Н926-04-000СБ Полка. Сборочный чертеж Н926-05-000 Стенка боковая Н926-05-000СБ Стенка боковая Н926-06-000 Стенка внутренняя Н926-07-000 Стенка задняя Н926-06-000СБ Стенка внутренняя. Сборочный чертеж Н926-07-000СБ Стенка задняя. Сборочный чертеж Н927-00-000ВС Стол лабораторный. Ведомость спецификаций Н927-00-000ВП Стол лабораторный. Ведомость покупных изделий Н927-00-000 Стол лабораторный Н927-01-001 Направляющая Н927-01-000 Каркас Н927-00-000СБ Стол лабораторный. Сборочный чертеж Н927-01-000 Каркас. Сборочный чертеж Н927-01-002 Распорка Н927-01-100 Днище Н927-01-100СБ Днище. Сборочный чертеж Н927-01-003 Распорка Н927-01-200 Стенка боковая Н927-01-200СБ Стенка боковая. Сборочный чертеж Н927-01-004 Распорка Н927-01-300 Полка Н927-01-300СБ Полка. Сборочный чертеж Н927-01-005 Шкант Н927-01-400 Полка Н927-01-400СБ Полка. Сборочный чертеж Н927-03-001 Ручка Н927-01-500 Стенка средняя Н927-01-500СБ Стенка средняя. Сборочный чертеж Н927-01-600 Стенка боковая Н927-01-700 Столешница Н927-01-600СБ Стенка боковая. Сборочный чертеж Н927-01-700СБ Столешница. Сборочный чертеж Н927-01-601 Планка Н927-02-001 Стенка Н927-02-002 Стенка Н927-02-000 Ящик Н927-02-000СБ Ящик. Сборочный чертеж Н927-02-003 Доска лицевая Н927-03-000 Створка Н927-03-000СБ Створка. Сборочный чертеж Н927-03-100 Плита Н927-03-100СБ Плита. Сборочный чертеж |
| Разработан: | Учреждение ИГ-548 |
| Утверждён: | 17.06.1988 МВД СССР (USSR Ministry of Internal Affairs 49-88) |




















































































