Скачать Серия 1.020.1-3пв Выпуск 4-4. Диафрагмы жесткости нулевого цикла для сборного варианта. Арматурные и закладные изделия. Рабочие чертежиДата актуализации: 01.01.2021
|
| Обозначение: | Серия 1.020.1-3пв |
| Обозначение англ: | Series 1.020.1-3пв |
| Статус: | действует |
| Название рус.: | Выпуск 4-4. Диафрагмы жесткости нулевого цикла для сборного варианта. Арматурные и закладные изделия. Рабочие чертежи |
| Дата добавления в базу: | 01.09.2013 |
| Дата актуализации: | 01.01.2021 |
| Дата введения: | 01.11.1985 |
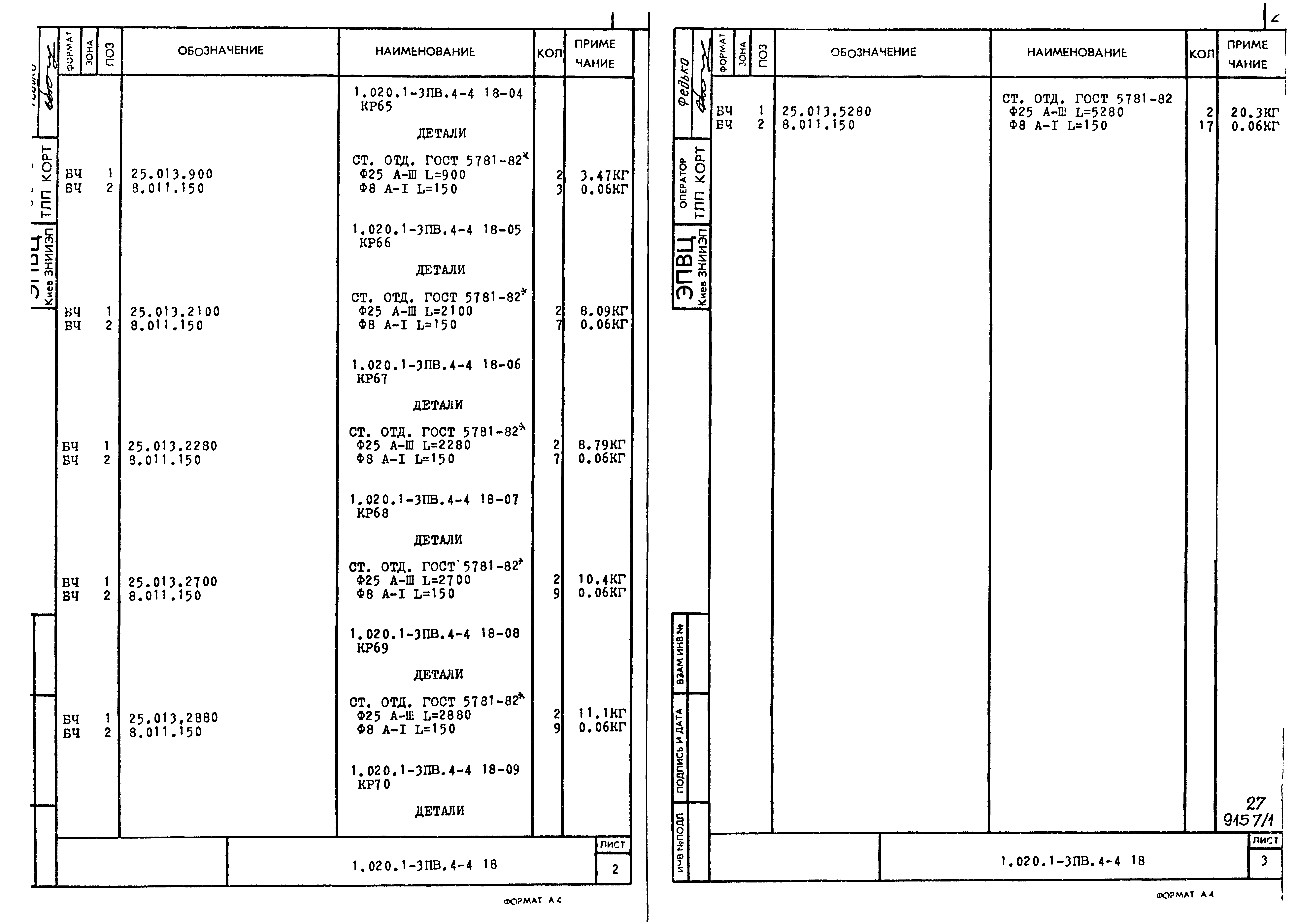
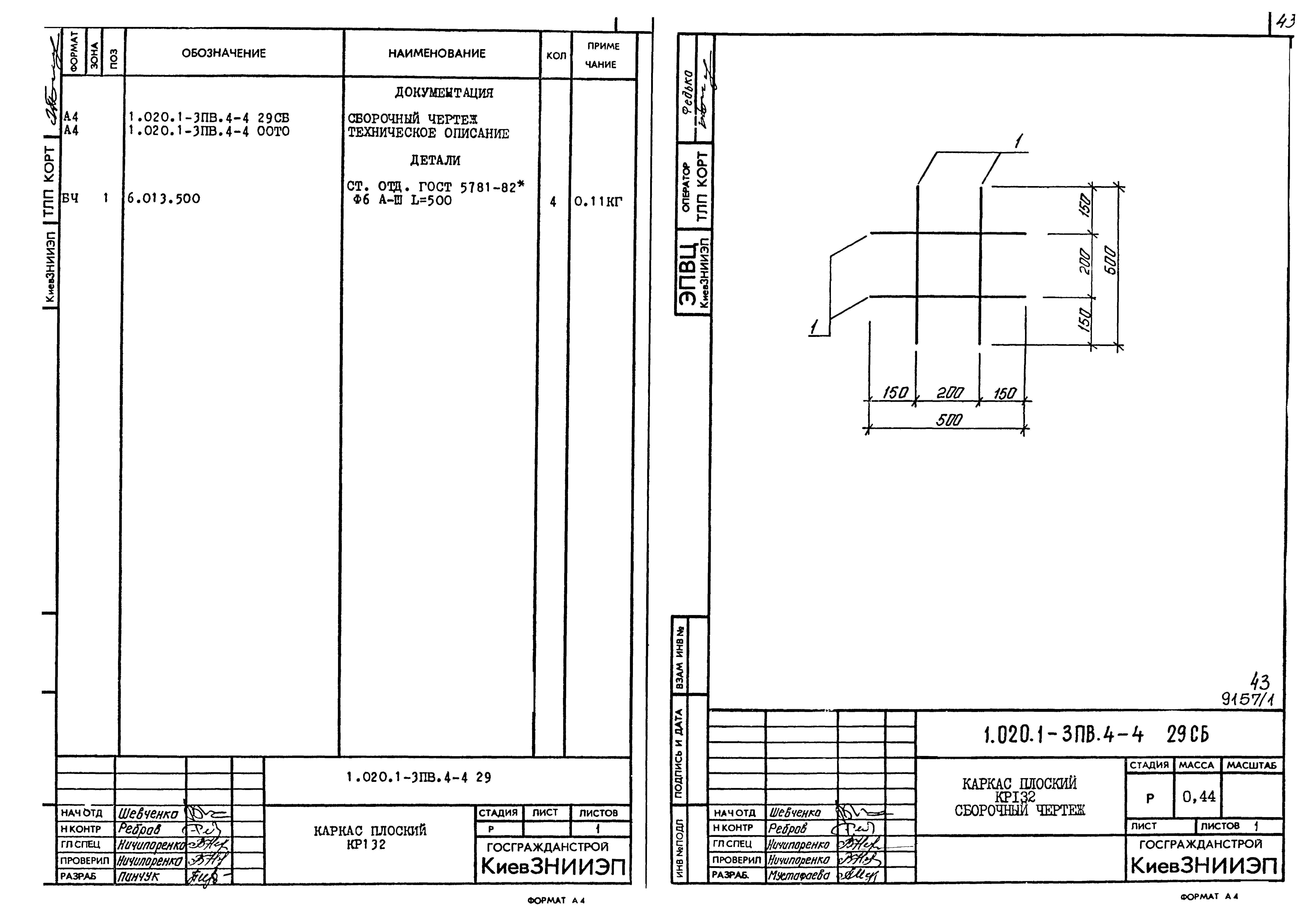
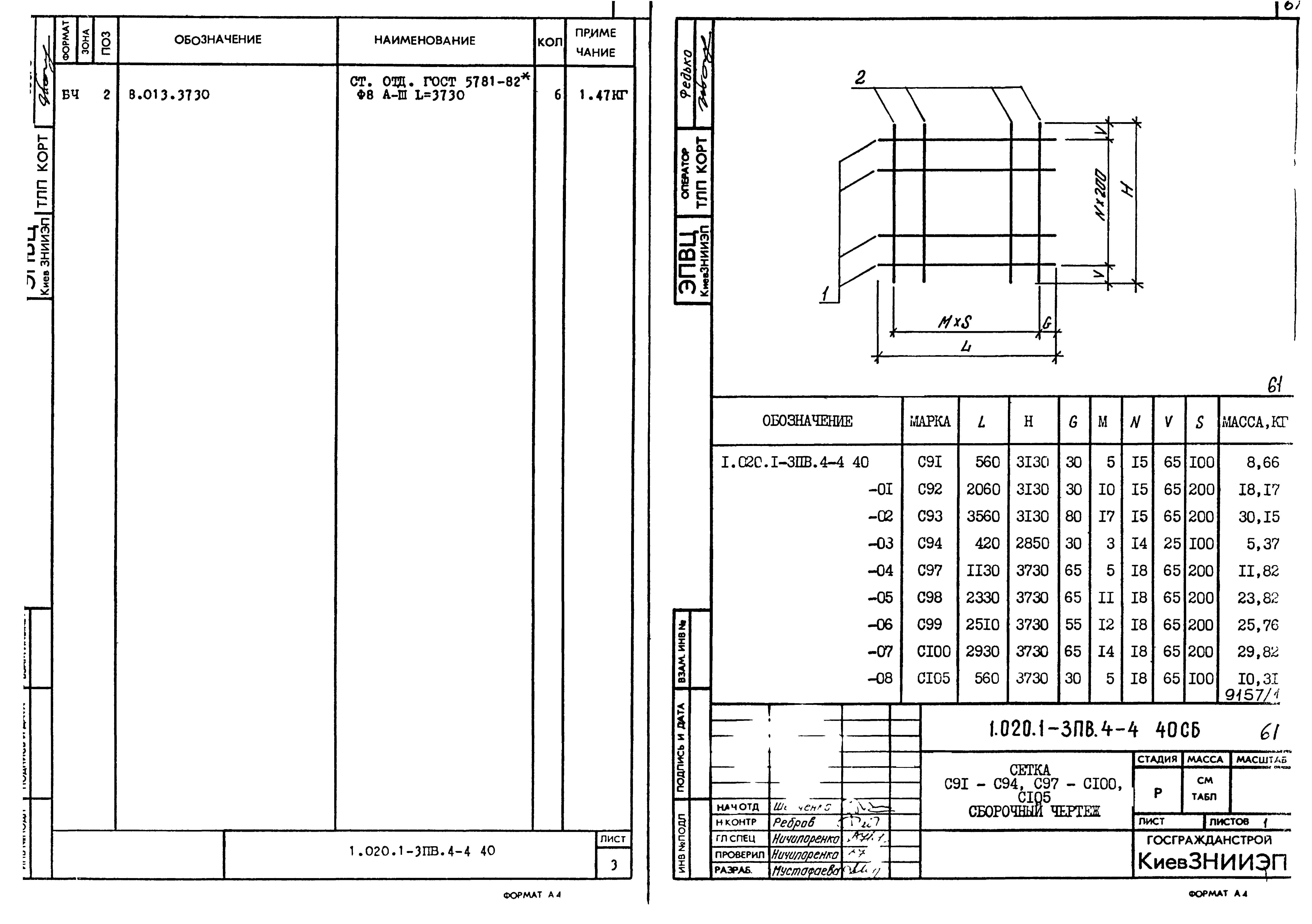
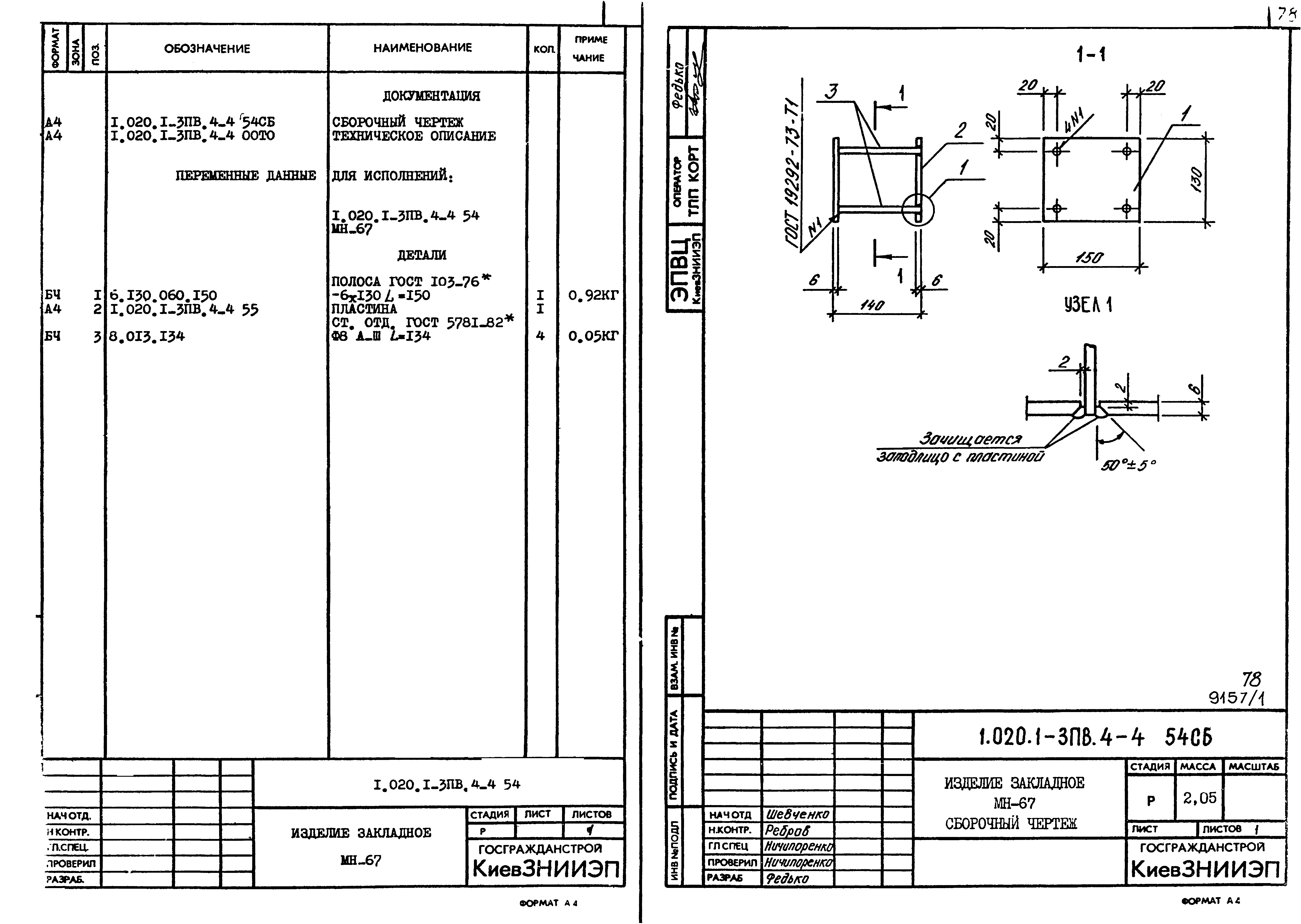
| Оглавление: | 1.020.1-3ПВ.2-4 00ТО Техническое описание 1.020.1-3ПВ.2-4 01 Каркас укруп. Сборки СМН1-СМН3 1.020.1-3ПВ.2-4 02 Каркас укруп. Сборки СМН4 1.020.1-3ПВ.2-4 03 Каркас укруп. Сборки СМН5-СМН7 1.020.1-3ПВ.2-4 04 Каркас укруп. Сборки СМН8-СМН10 1.020.1-3ПВ.2-4 05 Каркас укруп. Сборки СМН11 1.020.1-3ПВ.2-4 06 Каркас укруп. Сборки СМН12-СМН14 1.020.1-3ПВ.2-4 07 Каркас укруп. Сборки СМН15 1.020.1-3ПВ.2-4 08 Каркас укруп. Сборки СМН16, СМН17 1.020.1-3ПВ.2-4 09 Каркас укруп. Сборки СМН18, СМН19 1.020.1-3ПВ.2-4 10 Каркас укруп. Сборки СМН20, СМН21 1.020.1-3ПВ.2-4 11 Каркас укруп. Сборки СМН22, СМН23 1.020.1-3ПВ.2-4 12 Каркас плоский КР1-КР10 1.020.1-3ПВ.2-4 13 Каркас плоский КР11-КР19 1.020.1-3ПВ.2-4 14 Каркас плоский КР24-КР31 1.020.1-3ПВ.2-4 15 Каркас плоский КР32-КР40 1.020.1-3ПВ.2-4 16 Каркас плоский КР41-КР50 1.020.1-3ПВ.2-4 17 Каркас плоский КР51-КР60 1.020.1-3ПВ.2-4 18 Каркас плоский КР61-КР70 1.020.1-3ПВ.2-4 19 Каркас плоский КР71-КР80 1.020.1-3ПВ.2-4 20 Каркас плоский КР81-КР90 1.020.1-3ПВ.2-4 21 Каркас плоский КР91-КР94 1.020.1-3ПВ.2-4 22 Каркас плоский КР95-КР98 1.020.1-3ПВ.2-4 23 Каркас плоский КР99-КР104 1.020.1-3ПВ.2-4 24 Каркас плоский КР105, КР107, КР109, КР111, КР113, КР115 1.020.1-3ПВ.2-4 25 Каркас плоский КР106, КР108, КР110, КР112, КР114, КР116 1.020.1-3ПВ.2-4 26 Каркас плоский КР117-КР119 1.020.1-3ПВ.2-4 27 Каркас плоский КР120-КР124 1.020.1-3ПВ.2-4 28 Каркас плоский КР125-КР131 1.020.1-3ПВ.2-4 29 Каркас плоский КР132 1.020.1-3ПВ.2-4 30 Сетка С1-С4, С9-С12 1.020.1-3ПВ.2-4 31 Сетка С5-С8, С13-С16 1.020.1-3ПВ.2-4 32 Сетка С17-С19, С23-С26 1.020.1-3ПВ.2-4 33 Сетка С20-С22, С27-С30 1.020.1-3ПВ.2-4 34 Сетка С31, С32, С39, С40, С49, С53 1.020.1-3ПВ.2-4 35 Сетка С33, С34, С44, С45, С51, С55 1.020.1-3ПВ.2-4 36 Сетка С35, С36, С41-С43, С50, С54 1.020.1-3ПВ.2-4 37 Сетка С37, С38, С46-С48, С52, С56 1.020.1-3ПВ.2-4 38 Сетка С57-С60, С65-С72 1.020.1-3ПВ.2-4 39 Сетка С77-С81, С83-С86 1.020.1-3ПВ.2-4 40 Сетка С91-С94, С97-С100, С105 1.020.1-3ПВ.2-4 41 Сетка С61-С64, С87, С88 1.020.1-3ПВ.2-4 42 Сетка С89, С90, С101-С104, С106 1.020.1-3ПВ.2-4 43 Сетка С68, С95, С96 1.020.1-3ПВ.2-4 44 Сетка С73-С76 1.020.1-3ПВ.2-4 45 Сетка С82 1.020.1-3ПВ.2-4 46 Сетка С107-С111 1.020.1-3ПВ.2-4 47 Сетка С112 1.020.1-3ПВ.2-4 48 Сетка С113 1.020.1-3ПВ.2-4 49 Сетка С114-С117 1.020.1-3ПВ.2-4 50 Сетка С118-С121 1.020.1-3ПВ.2-4 51 Изделие закладное МН1, МН2 1.020.1-3ПВ.2-4 52 Петля строповочная ПСВ1-ПСВ9 1.020.1-3ПВ.2-4 53 Петля строповочная ПСГ1-ПСГ5 1.020.1-3ПВ.2-4 54 Изделие закладное МН-67 1.020.1-3ПВ.2-4 55 Пластина |
| Разработан: | КиевЗНИИЭП ЦНИИЭП торгово-бытовых зданий и туристских комплексов |
| Утверждён: | 30.07.1985 Госстрой СССР (Государственный комитет Совета Министров СССР по делам строительства) (USSR Gosstroy АЧ-30) |
| Заменяет собой: |















































































