Скачать Серия 1.220.1-4м Выпуск 2-3. Колонны. Арматурные и закладные изделия. Рабочие чертежиДата актуализации: 01.01.2021
|
| Обозначение: | Серия 1.220.1-4м |
| Обозначение англ: | Series 1.220.1-4м |
| Статус: | не определен законодательством |
| Название рус.: | Выпуск 2-3. Колонны. Арматурные и закладные изделия. Рабочие чертежи |
| Дата добавления в базу: | 01.09.2013 |
| Дата актуализации: | 01.01.2021 |
| Дата введения: | 01.07.1988 |
| Дата окончания срока действия: | 30.06.2003 |
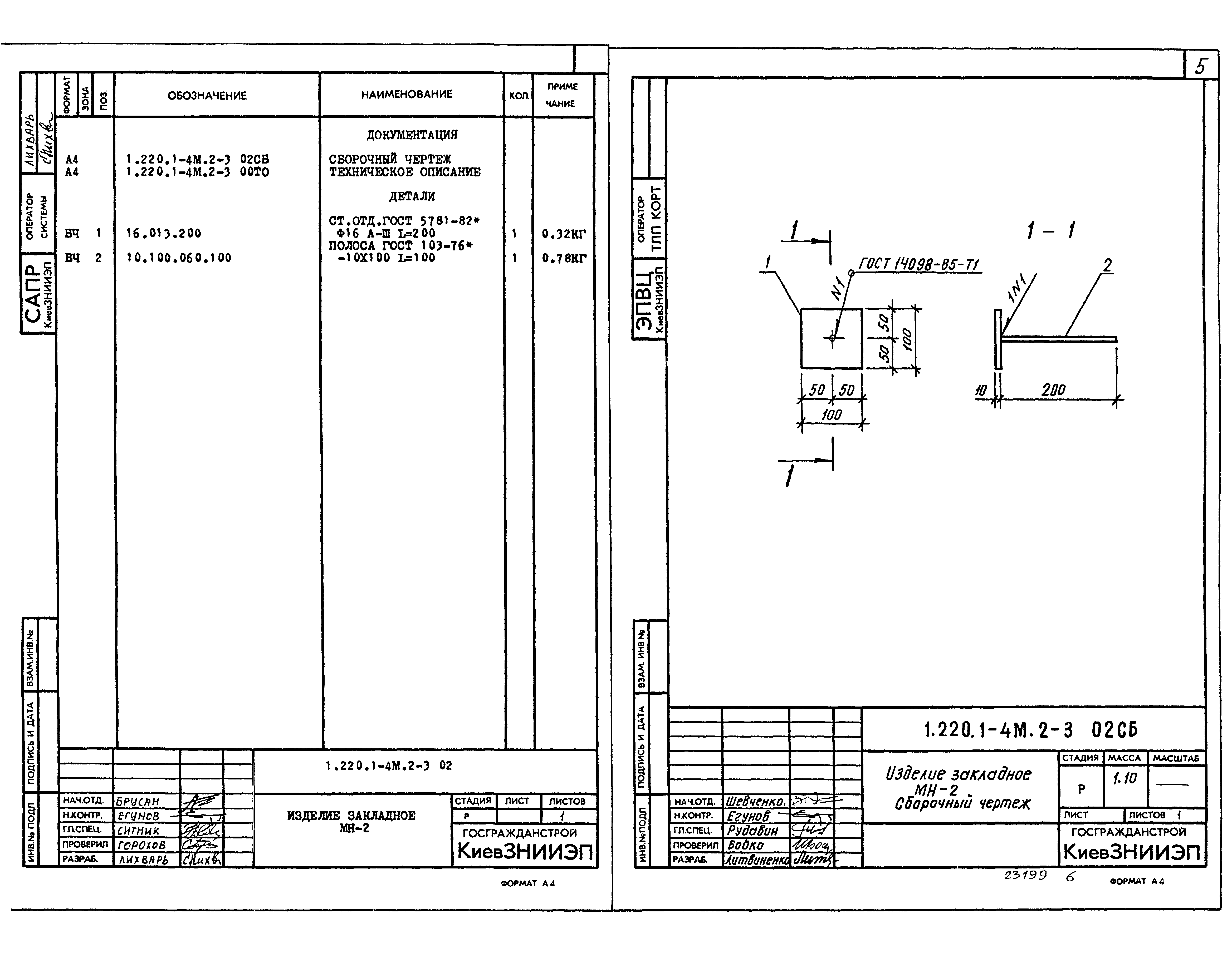
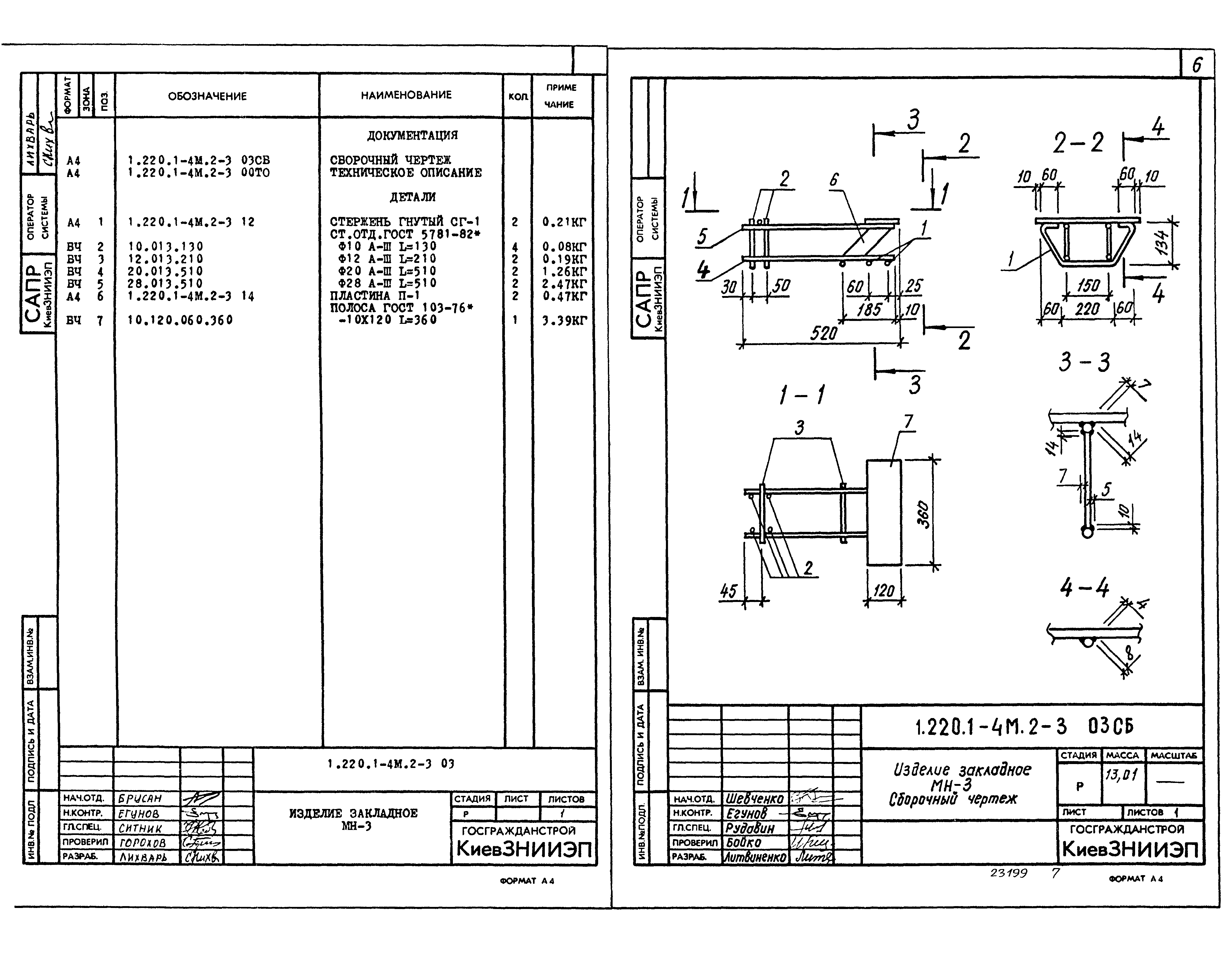
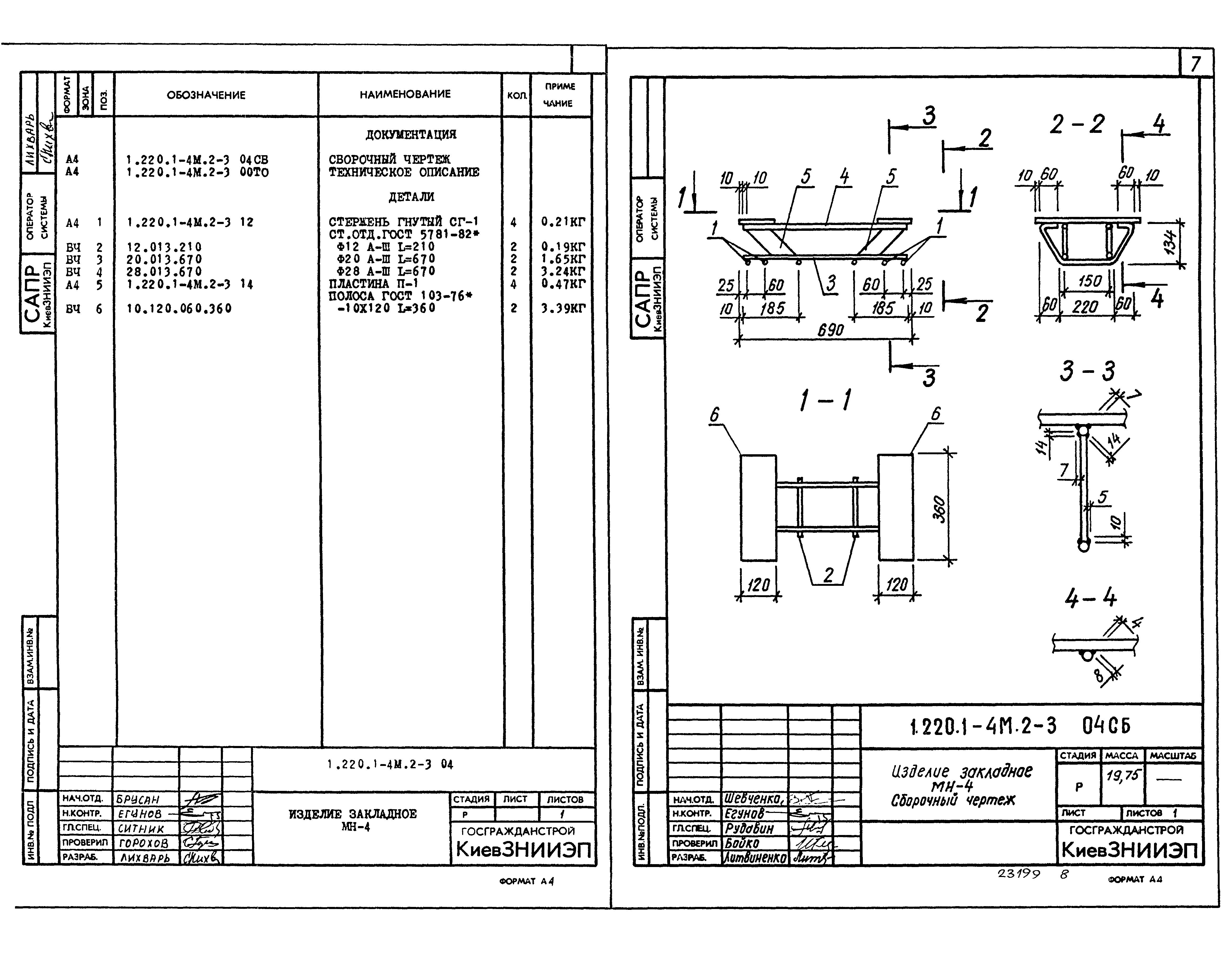
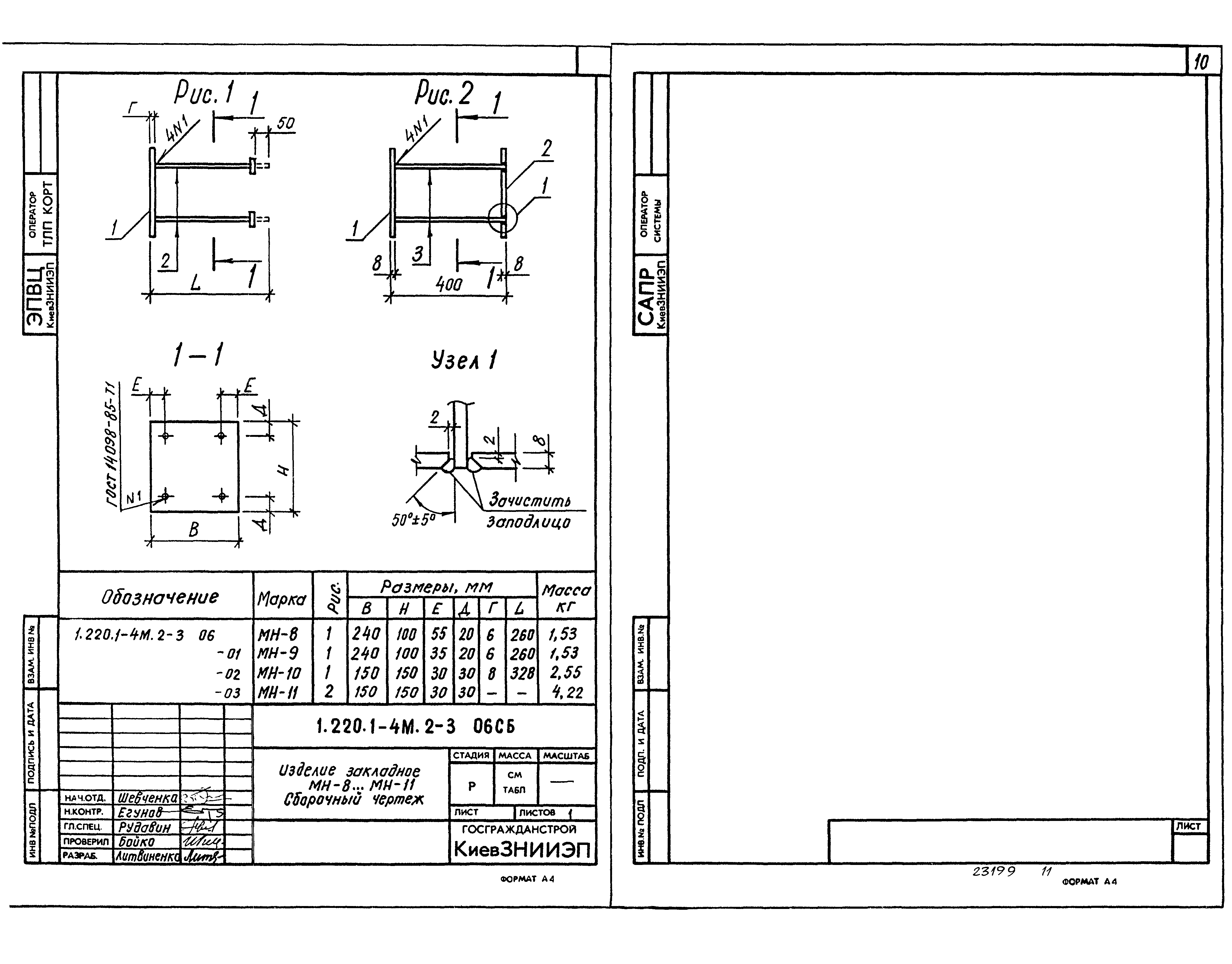
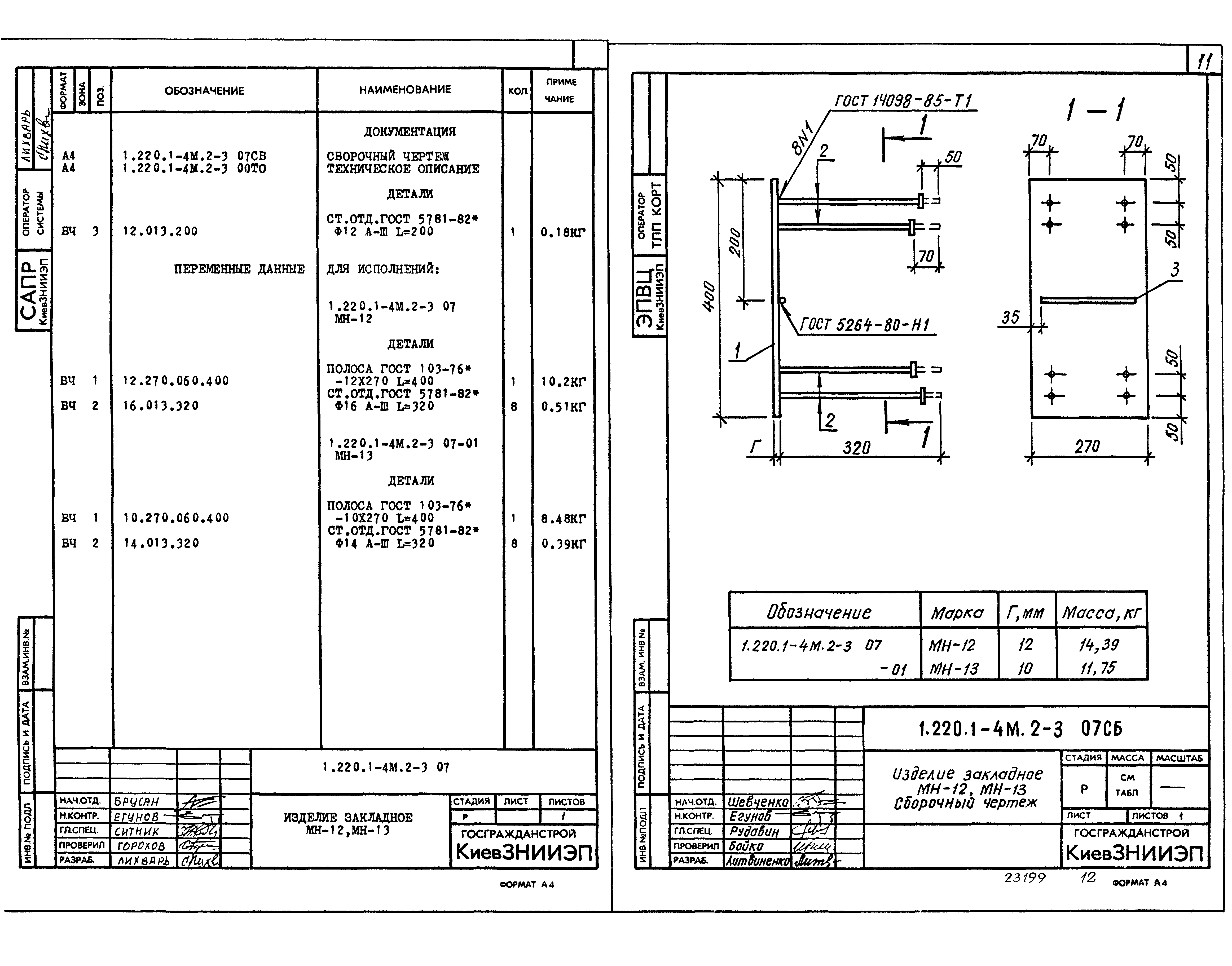
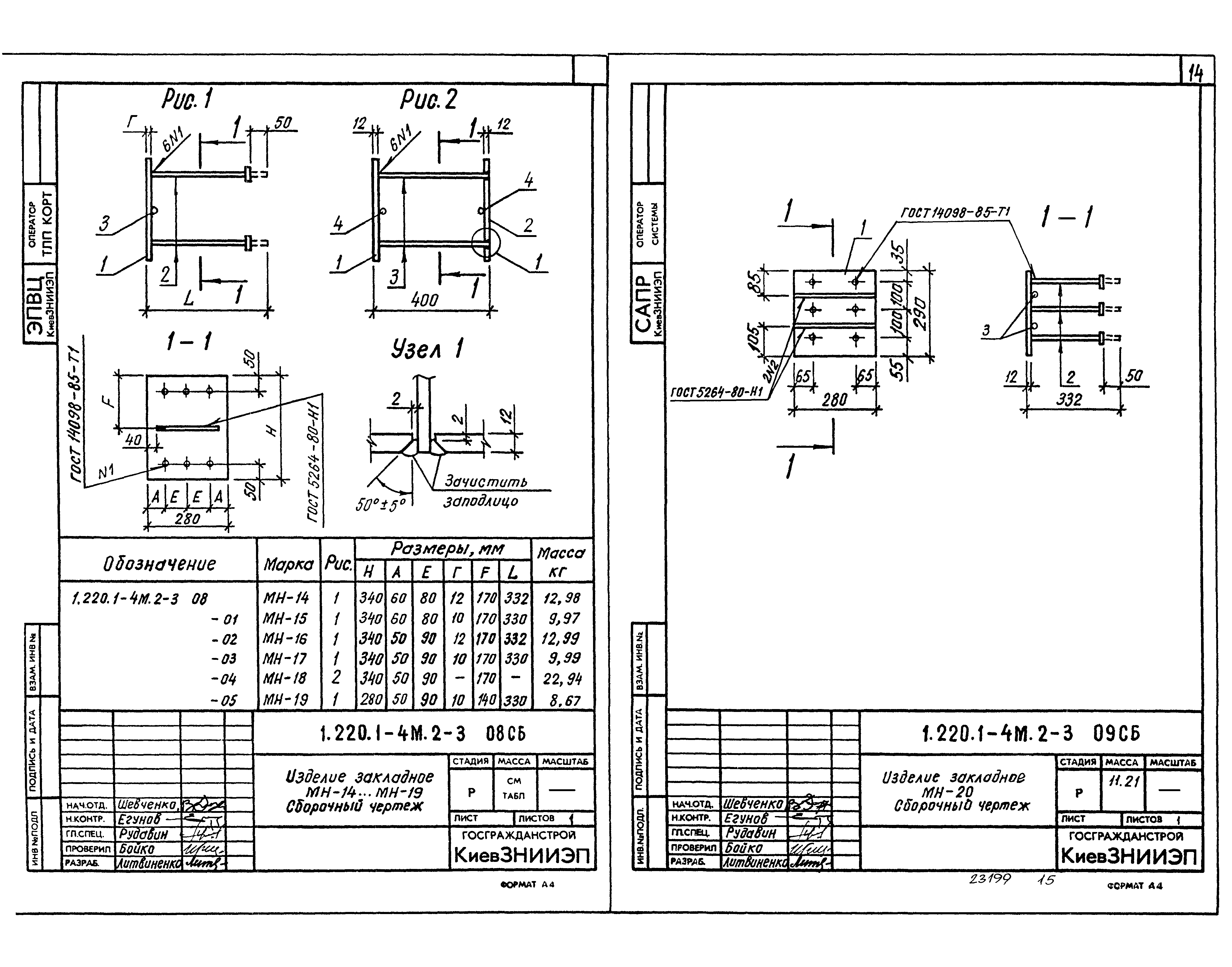
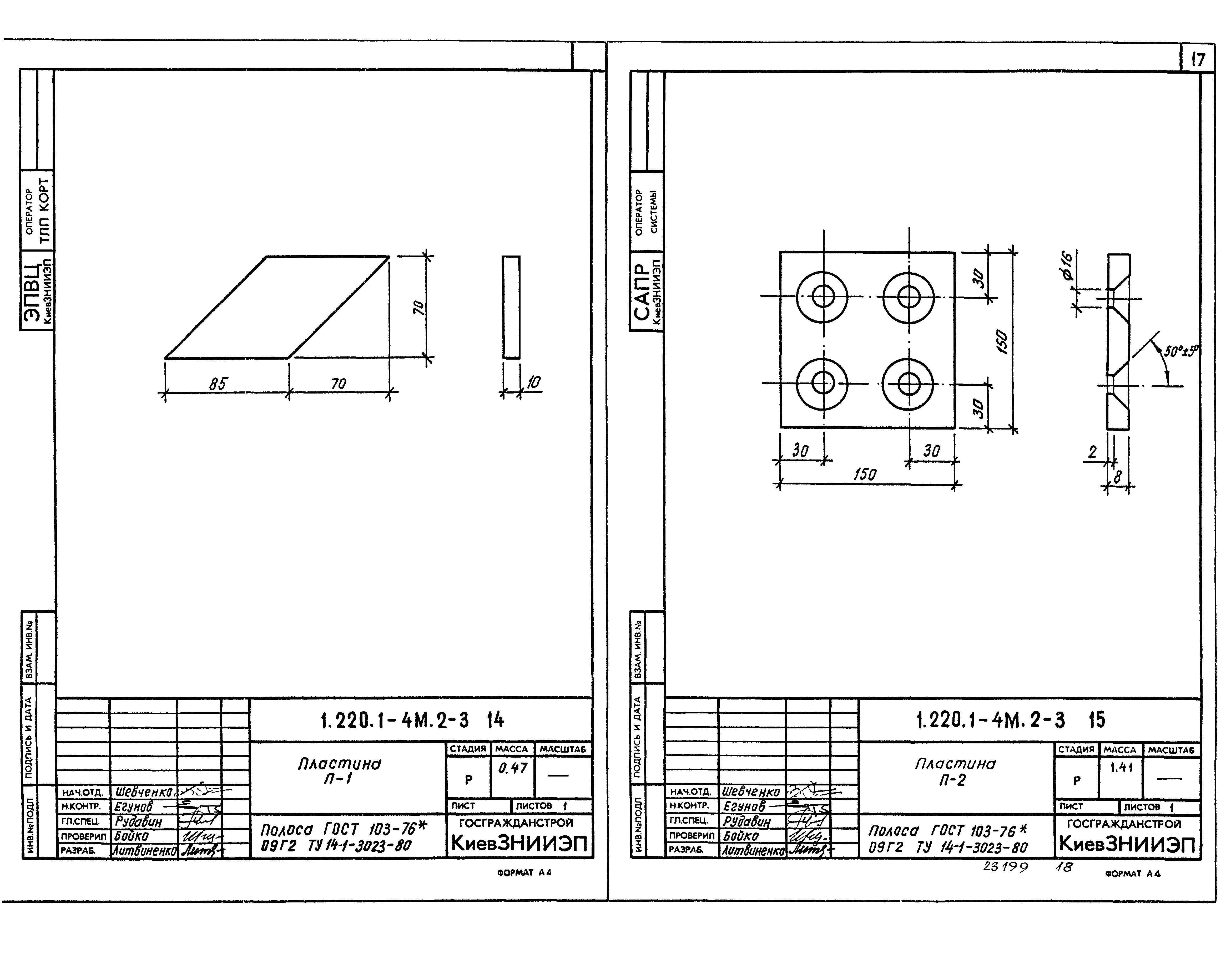
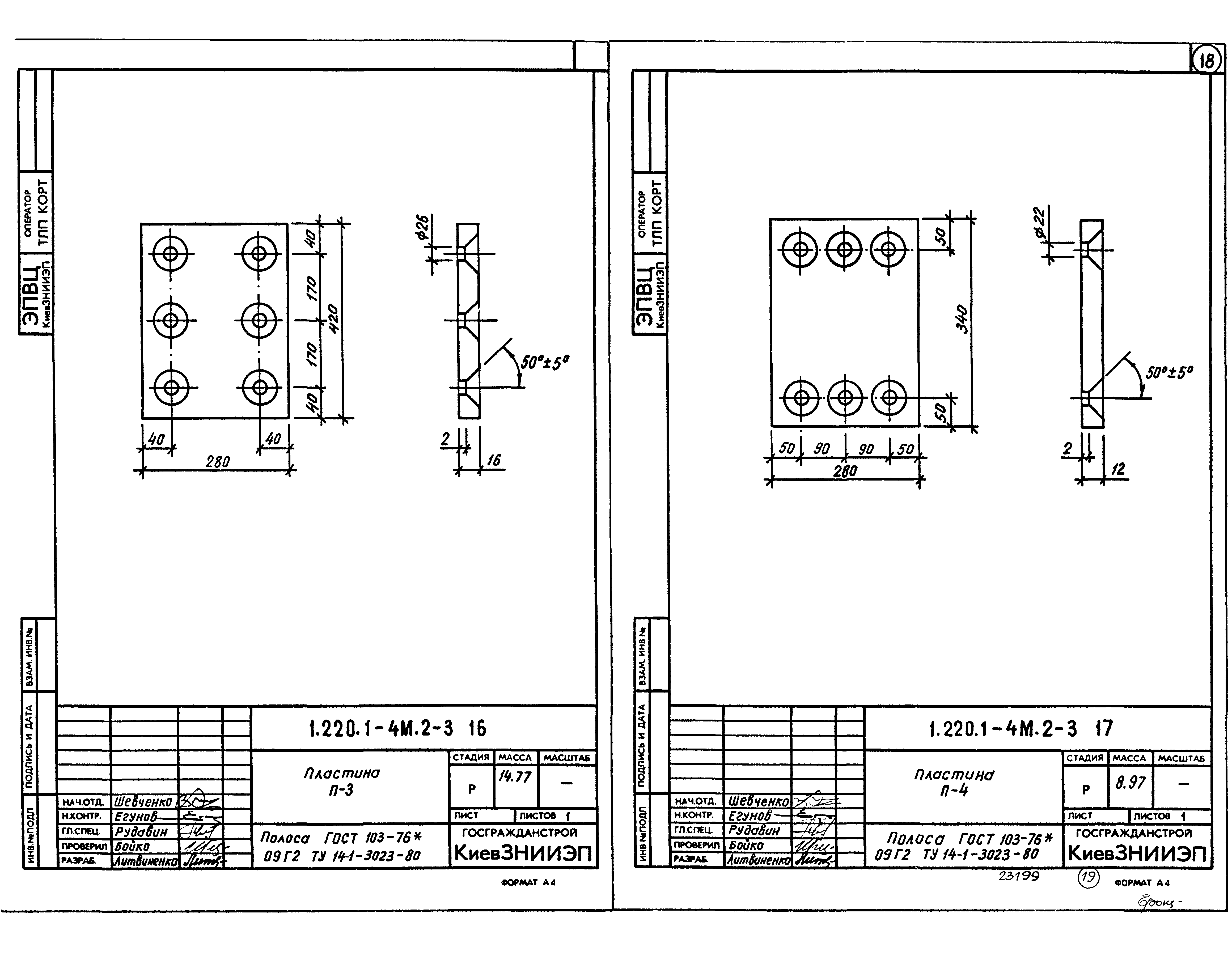
| Оглавление: | 1.220.1-4М.2-3 00ТО Техническое описание 1.220.1-4М.2-3 01 Изделие закладное МН-1 1.220.1-4М.2-3 01СБ Изделие закладное МН-1. Сборочный чертеж 1.220.1-4М.2-3 02 Изделие закладное МН-2 1.220.1-4М.2-3 02СБ Изделие закладное МН-2. Сборочный чертеж 1.220.1-4М.2-3 03 Изделие закладное МН-3 1.220.1-4М.2-3 03СБ Изделие закладное МН-3. Сборочный чертеж 1.220.1-4М.2-3 04 Изделие закладное МН-4 1.220.1-4М.2-3 04СБ Изделие закладное МН-4. Сборочный чертеж 1.220.1-4М.2-3 05 Изделие закладное МН-5…МН-7 1.220.1-4М.2-3 05СБ Изделие закладное МН-5…МН-7. Сборочный чертеж 1.220.1-4М.2-3 06 Изделие закладное МН-8…МН-11 1.220.1-4М.2-3 06СБ Изделие закладное МН-8…МН-11. Сборочный чертеж 1.220.1-4М.2-3 07 Изделие закладное МН-12, МН-13 1.220.1-4М.2-3 07СБ Изделие закладное МН-12, МН-13. Сборочный чертеж 1.220.1-4М.2-3 08 Изделие закладное МН-14…МН-19 1.220.1-4М.2-3 09 Изделие закладное МН-20 1.220.1-4М.2-3 10 Сетка С-1 1.220.1-4М.2-3 08СБ Изделие закладное МН-14…МН-19. Сборочный чертеж 1.220.1-4М.2-3 00СБ Изделие закладное МН-20. Сборочный чертеж 1.220.1-4М.2-3 10СБ Сетка С-1. Сборочный чертеж 1.220.1-4М.2-3 11 Стержень отдельный ХМ-1, ХМ-2 1.220.1-4М.2-3 12 Стержень гнутый СГ-1 1.220.1-4М.2-3 13 Стержень гнутый СГ-2, СГ-3 1.220.1-4М.2-3 14 Пластина П-1 1.220.1-4М.2-3 15 Пластина П-2 1.220.1-4М.2-3 16 Пластина П-3 1.220.1-4М.2-3 17 Пластина П-4 |
| Разработан: | ЛенЗНИИЭП Госгражданстроя КиевЗНИИЭП |
| Утверждён: | 23.05.1988 Госкомархитектура (146) |


















