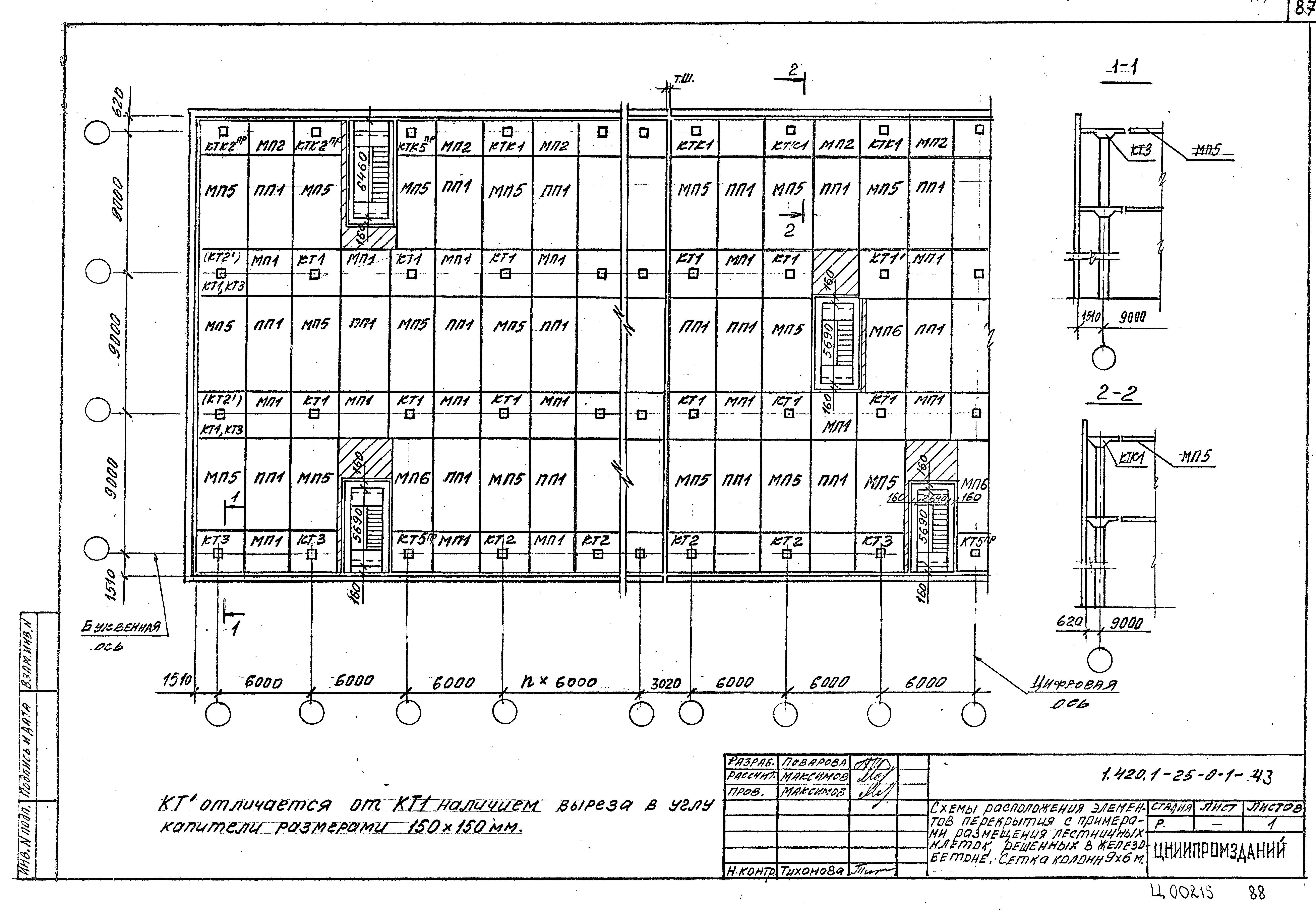
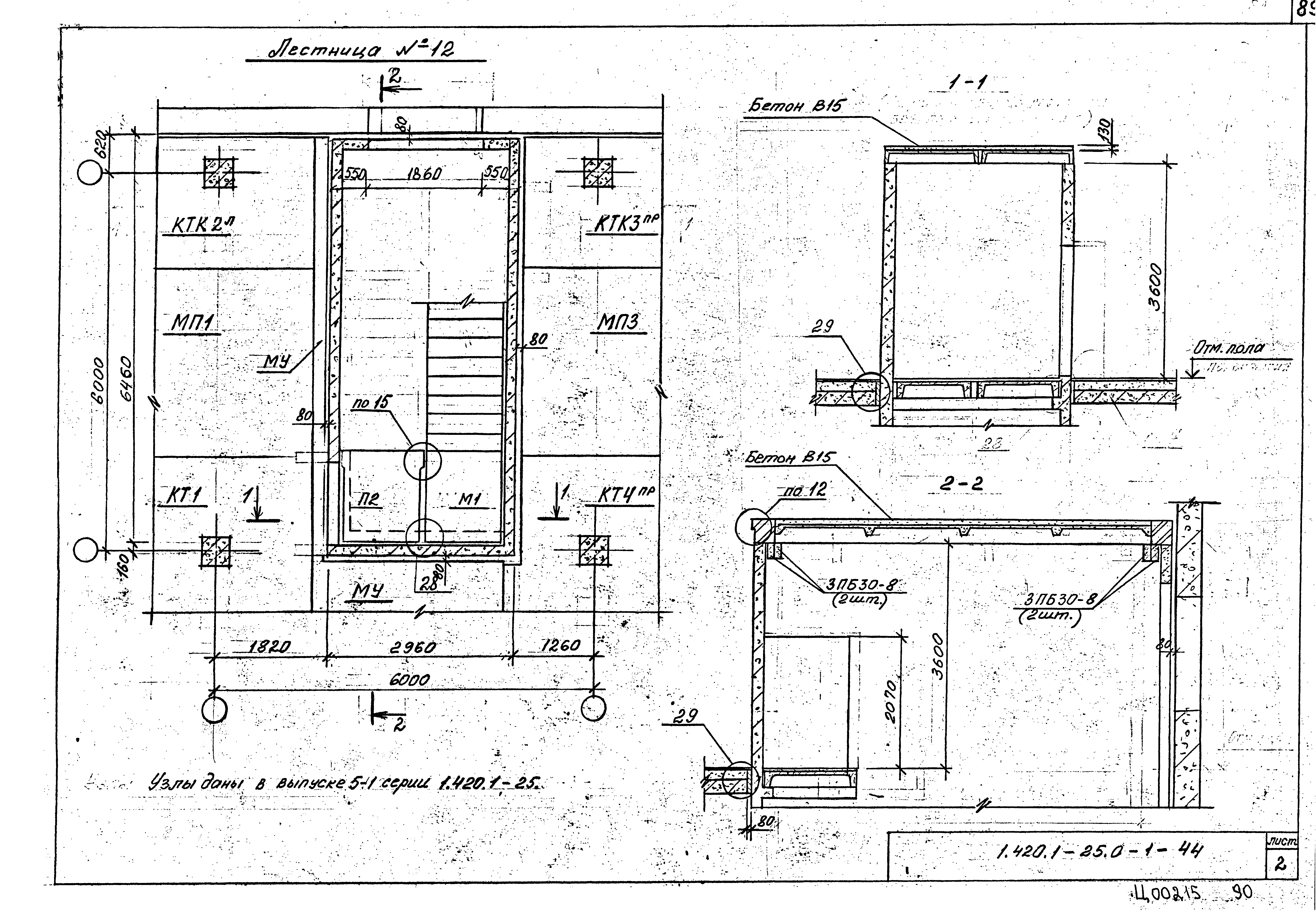
Скачать Серия 1.420.1-25 Выпуск 0-1. Материалы для проектирования лестничных клетокДата актуализации: 01.01.2021
|
| Обозначение: | Серия 1.420.1-25 |
| Обозначение англ: | Series 1.420.1-25 |
| Статус: | не определен законодательством |
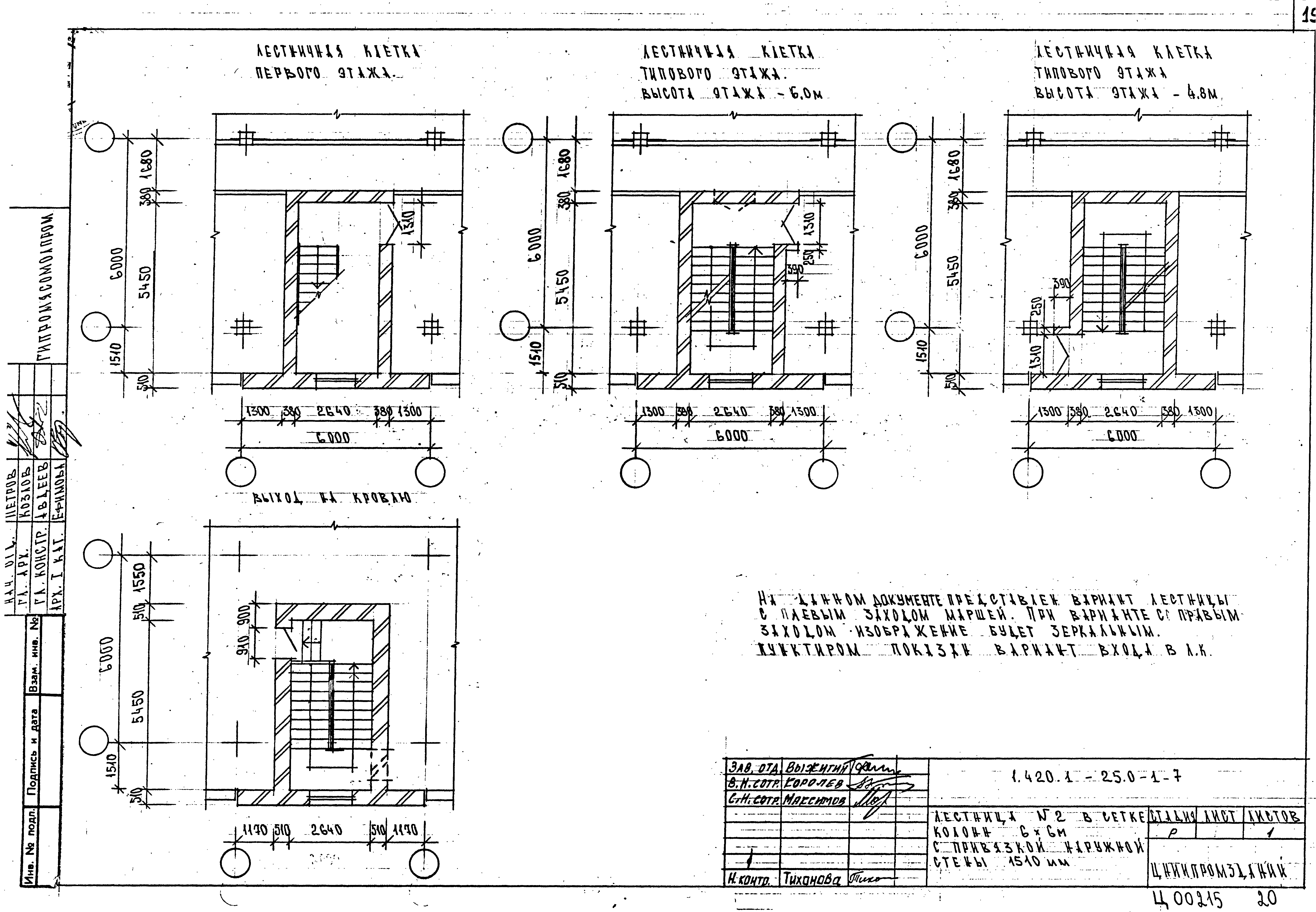
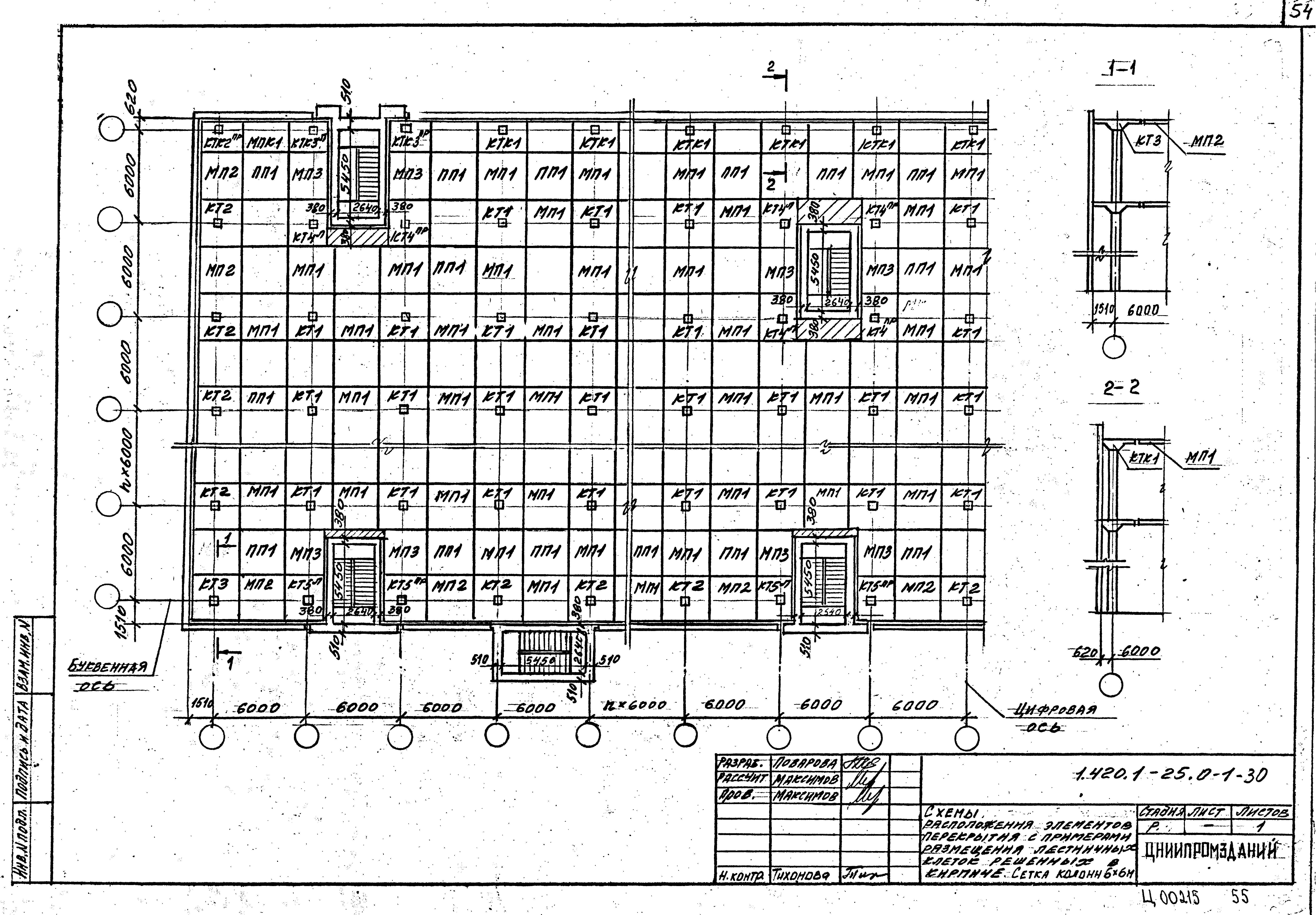
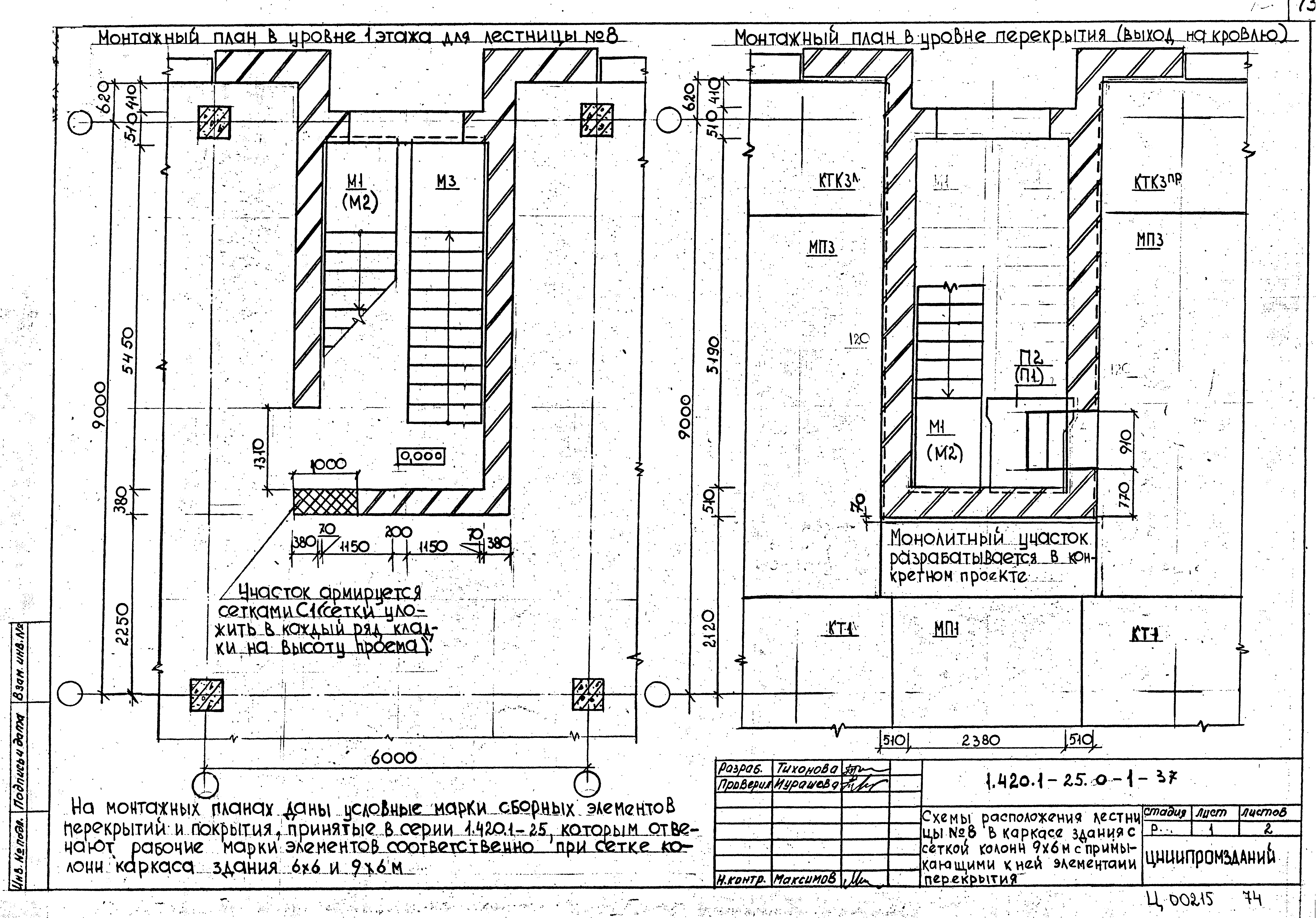
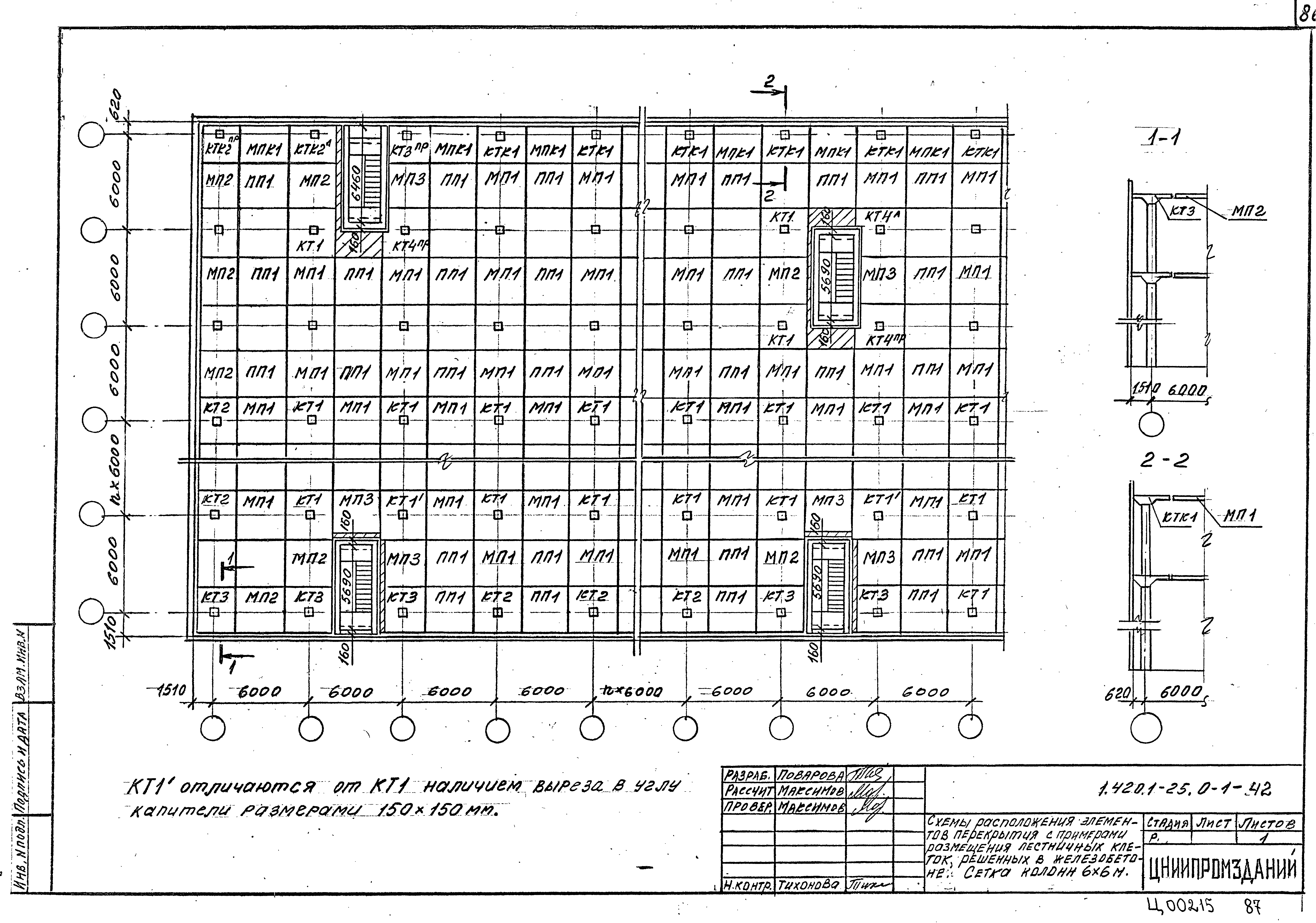
| Название рус.: | Выпуск 0-1. Материалы для проектирования лестничных клеток |
| Дата добавления в базу: | 01.09.2013 |
| Дата актуализации: | 01.01.2021 |
| Дата введения: | 01.07.1994 |
| Дата окончания срока действия: | 30.06.2003 |
| Разработан: | ЦНИИпромзданий |
| Утверждён: | 13.04.1994 Главпроект Госстроя России (9-3-2/72) |
| Заменяет собой: |









































































































