Скачать Серия 1.420-35.95 Выпуск 1-3. Колонны железобетонные, высота этажей 4,8; 6,0 и 7,2 м. Изделия арматурные и закладные. Рабочие чертежиДата актуализации: 01.01.2021
|
| Обозначение: | Серия 1.420-35.95 |
| Обозначение англ: | Series 1.420-35.95 |
| Статус: | не определен законодательством |
| Название рус.: | Выпуск 1-3. Колонны железобетонные, высота этажей 4,8; 6,0 и 7,2 м. Изделия арматурные и закладные. Рабочие чертежи |
| Дата добавления в базу: | 01.09.2013 |
| Дата актуализации: | 01.01.2021 |
| Дата введения: | 01.03.1998 |
| Дата окончания срока действия: | 30.06.2003 |
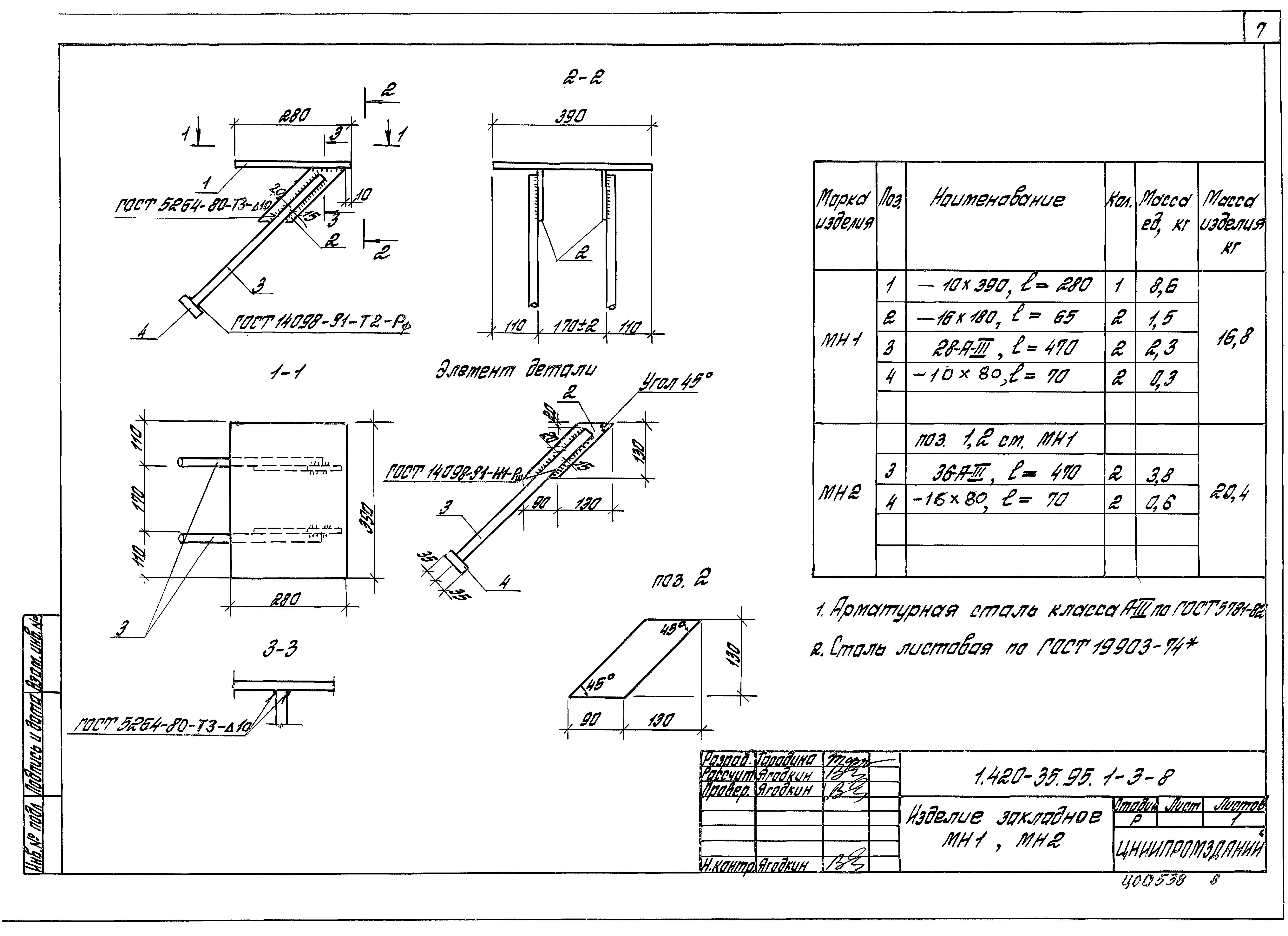
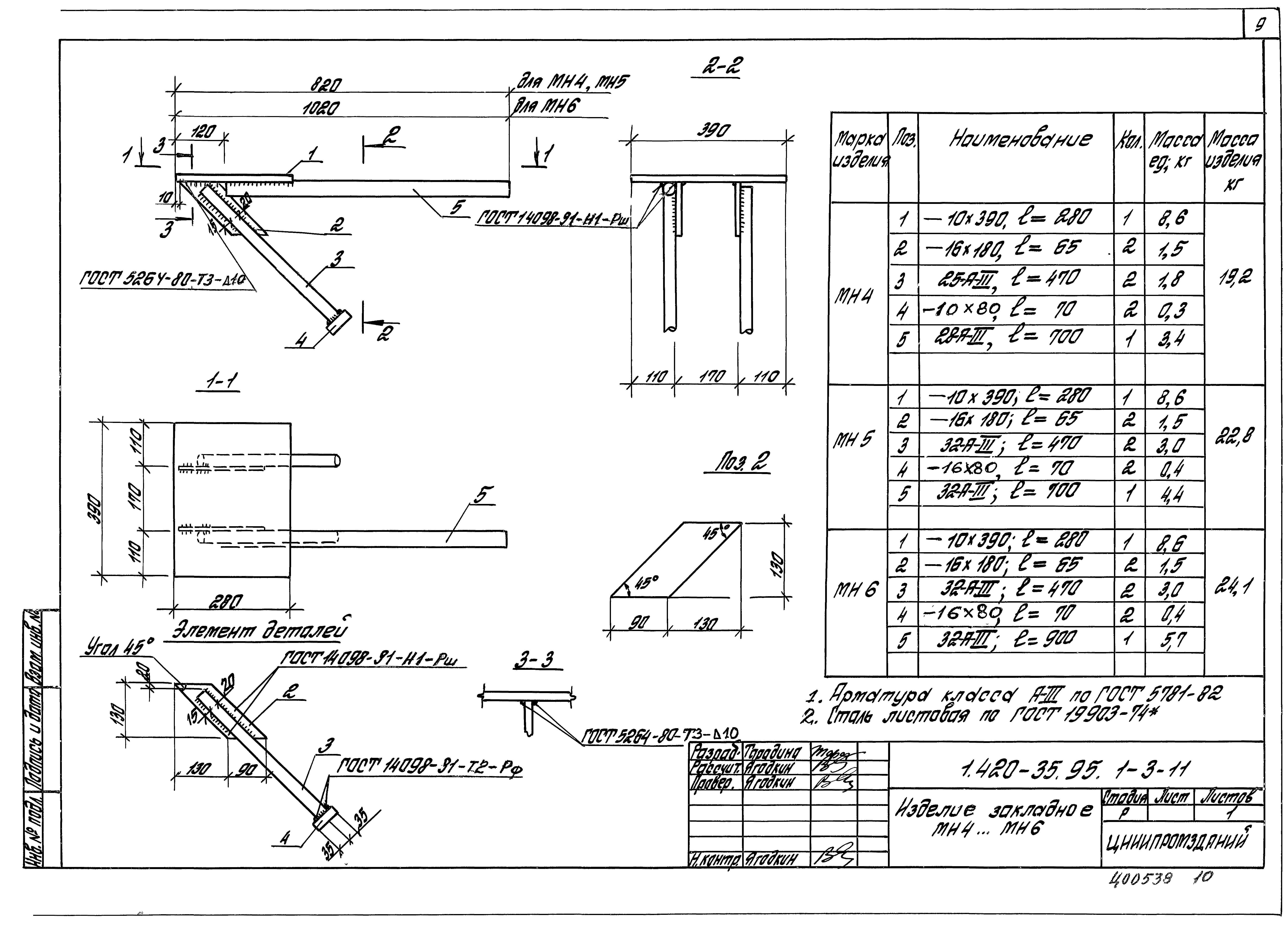
| Оглавление: | 1.420-35.95.1-3-1ТТ Технические требования 1.420-35.95.1-3-2 Сетка пространственная СП1…СП3 1.420-35.95.1-3-3 Сетка С1, С2 1.420-35.95.1-3-4 Сетка С3 1.420-35.95.1-3-5 Сетка С4 1.420-35.95.1-3-6 Сетка С5 1.420-35.95.1-3-7 Хомут (поз.4,5) 1.420-35.95.1-3-8 Изделие закладное МН1, МН2 1.420-35.95.1-3-9 Изделие закладное МН3 1.420-35.95.1-3-10 Изделие закладное МН7, МН7а, МН8 1.420-35.95.1-3-11 Изделие закладное МН4, МН5, МН6 1.420-35.95.1-3-12 Изделие закладное МН9, МН12 1.420-35.95.1-3-13 Изделие закладное МН10, МН11 1.420-35.95.1-3-14 Монтажная петля МН13, МН13а, МН14 1.420-35.95.1-3-15 Изделие закладное МН15, МН15а 1.420-35.95.1-3-16 Изделие закладное МН16 1.420-35.95.1-3-17 Изделие закладное МН17 1.420-35.95.1-3-18 Изделие закладное МН19 1.420-35.95.1-3-19 Изделие закладное МН24, МН25 1.420-35.95.1-3-20 Изделие закладное МН20, МН21 1.420-35.95.1-3-21 Изделие закладное МН26 |
| Разработан: | АО ЦНИИпромзданий |
| Утверждён: | 09.12.1997 Департамент развития научно-технической политики и проектно-изыскательских работ Госстроя России (Department of Technical Research Policy and Design and Survey Operations, Russian Federation Gosstroy 9-1-1/160) |
| Заменяет собой: |















