Скачать Серия 1.420-35.95 Выпуск 2-1. Ригели железобетонные пролетом 6,0 м с полками для опирания плит. Армирование и пространственные каркасы. Рабочие чертежиДата актуализации: 01.01.2021
|
| Обозначение: | Серия 1.420-35.95 |
| Обозначение англ: | Series 1.420-35.95 |
| Статус: | не определен законодательством |
| Название рус.: | Выпуск 2-1. Ригели железобетонные пролетом 6,0 м с полками для опирания плит. Армирование и пространственные каркасы. Рабочие чертежи |
| Дата добавления в базу: | 01.09.2013 |
| Дата актуализации: | 01.01.2021 |
| Дата введения: | 01.03.1998 |
| Дата окончания срока действия: | 30.06.2003 |
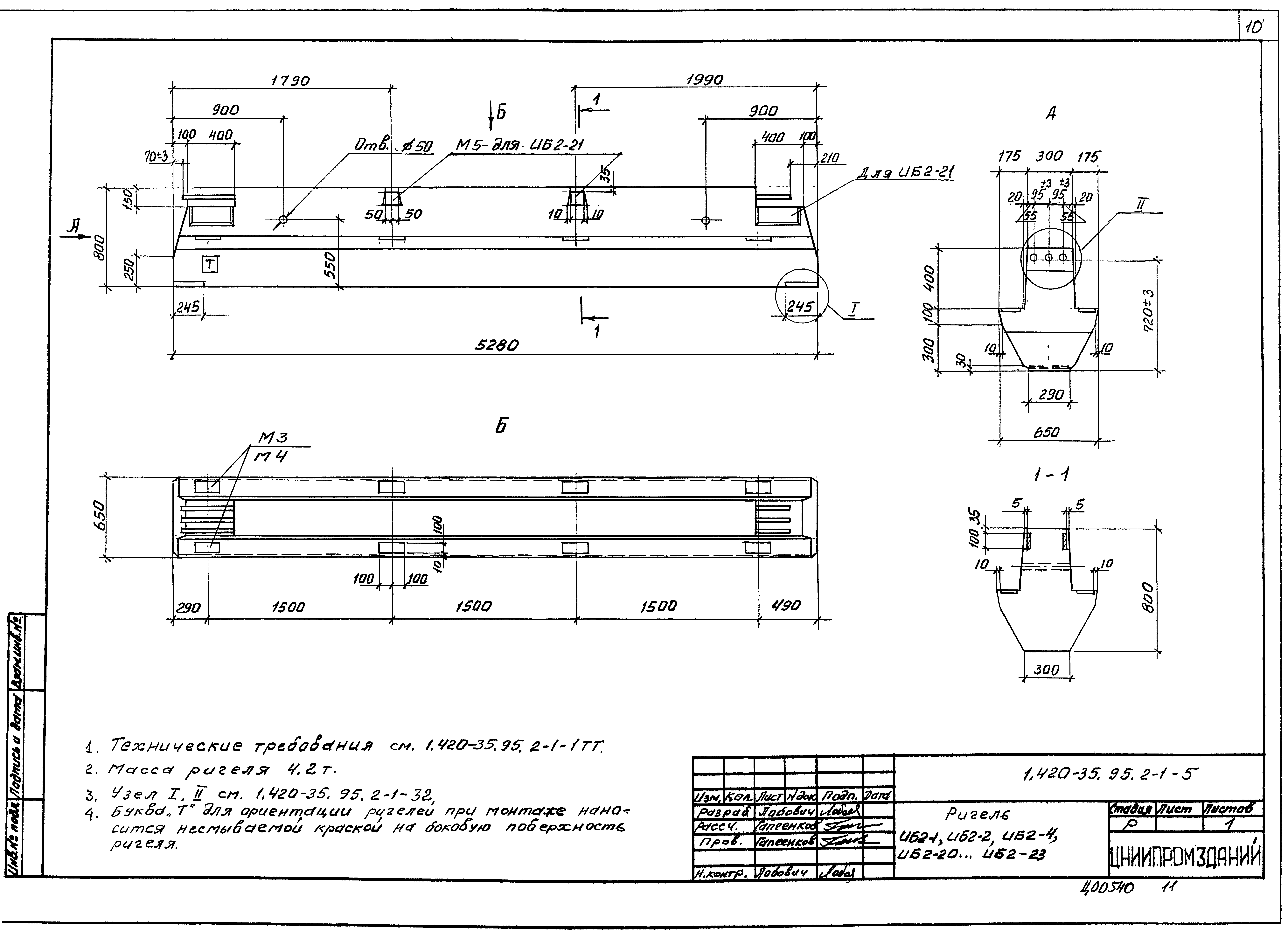
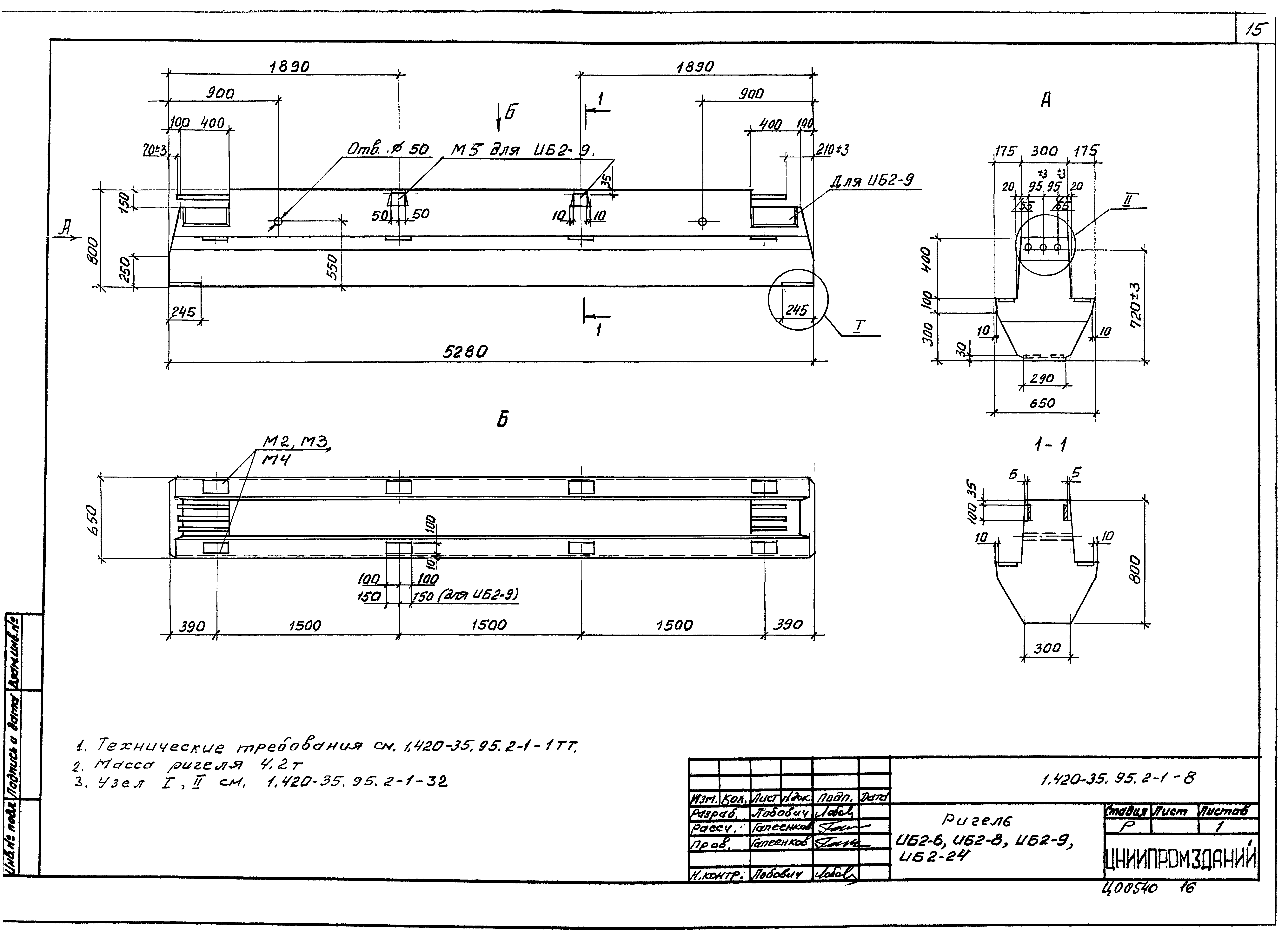
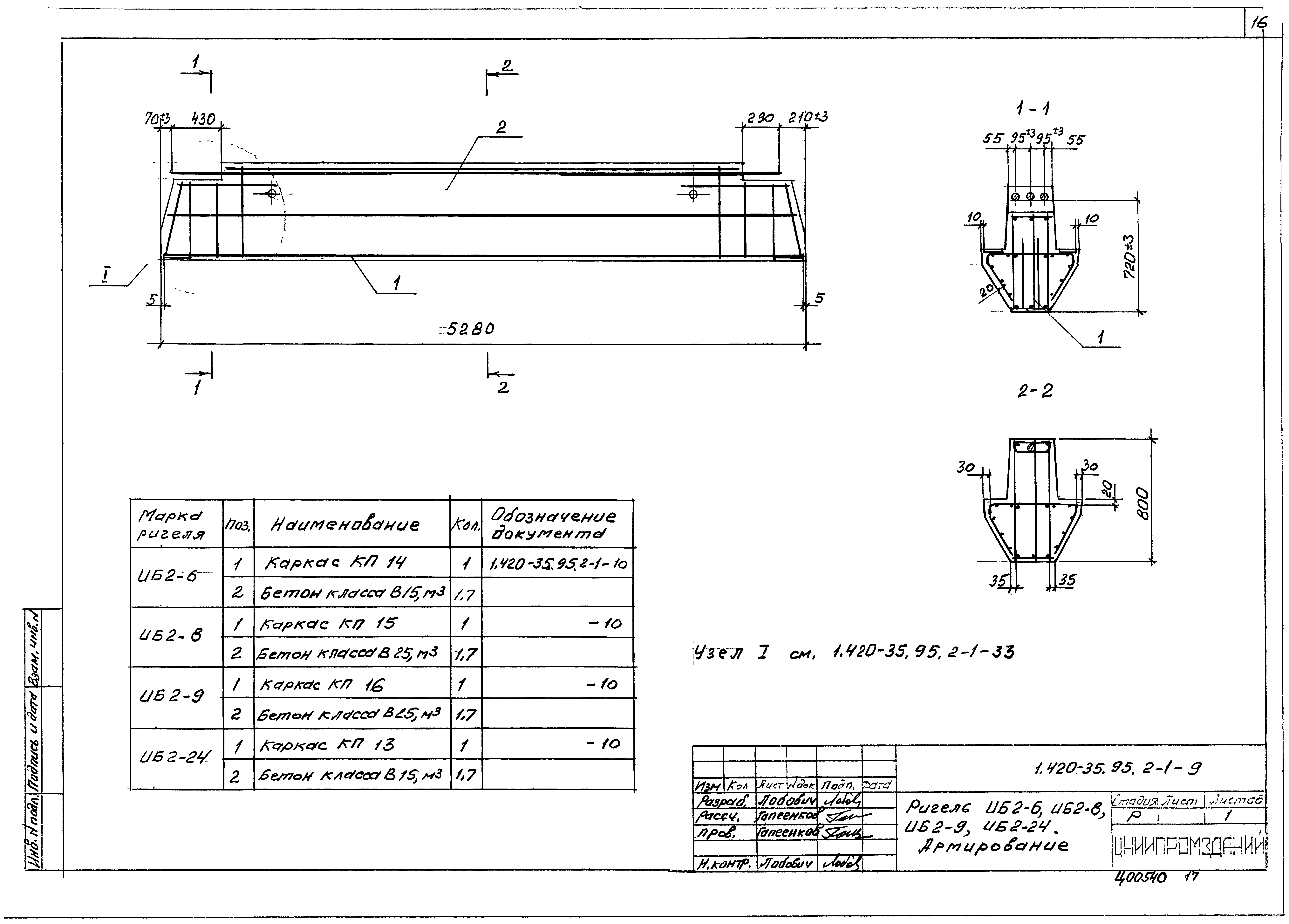
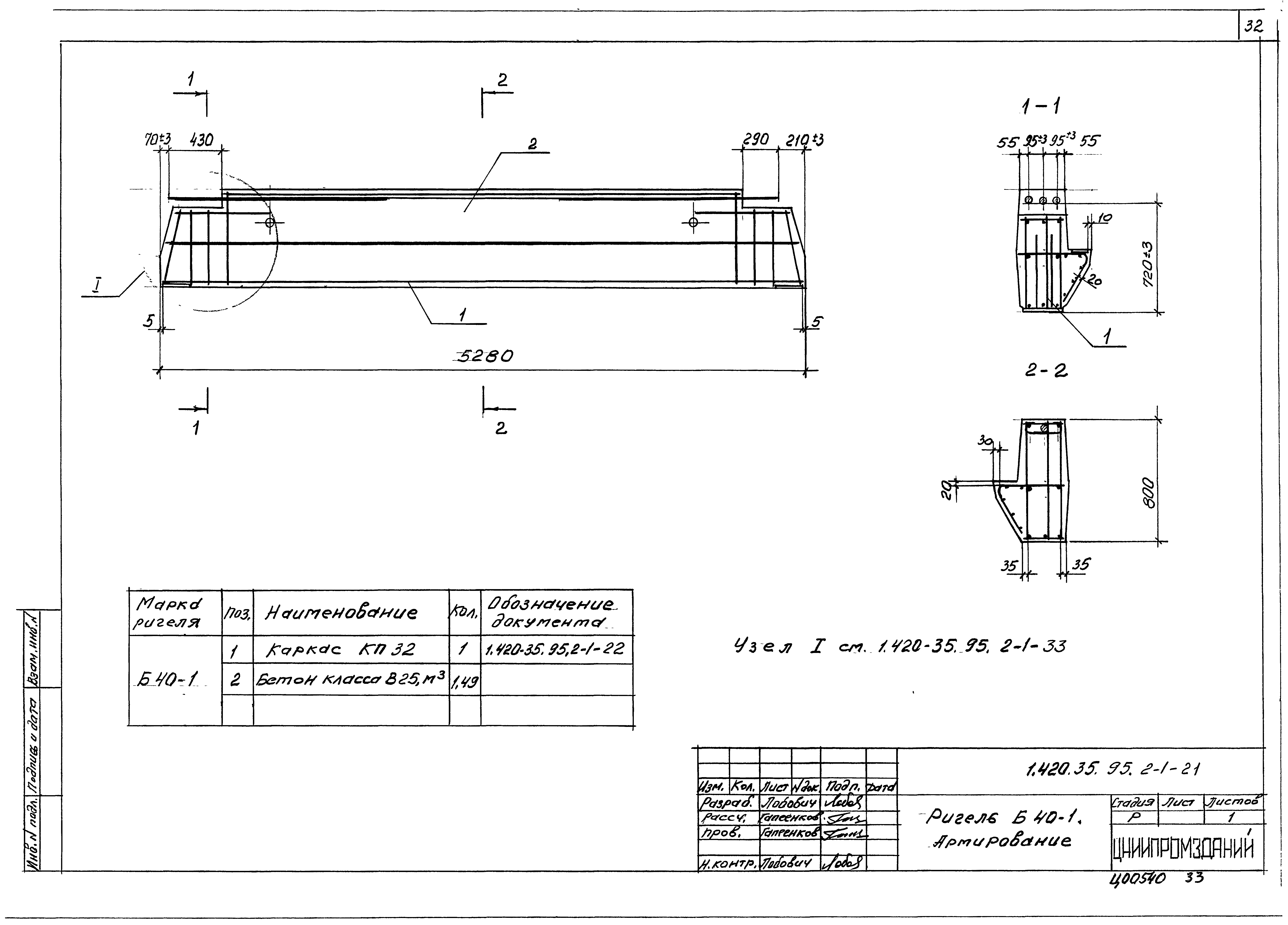
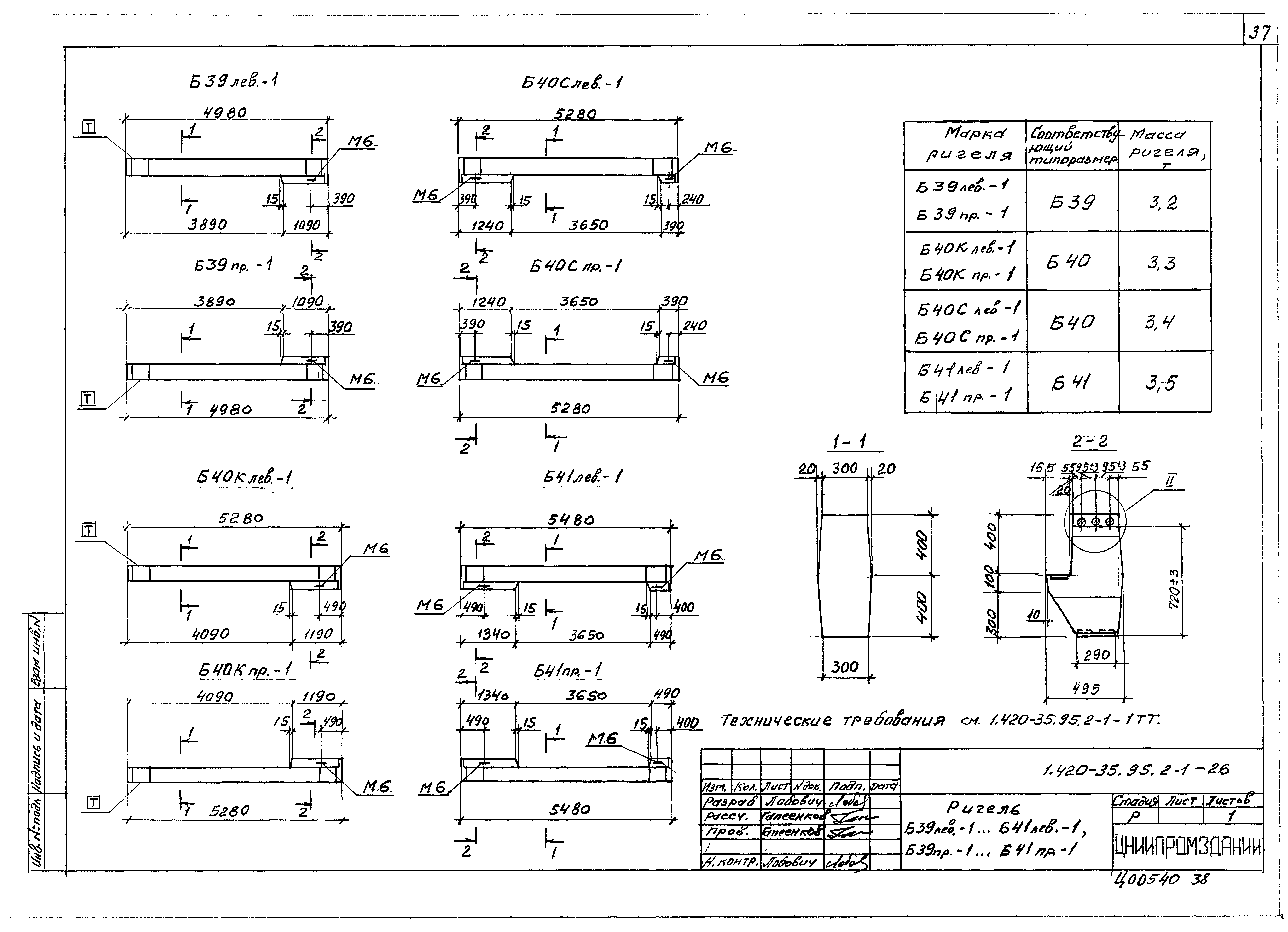
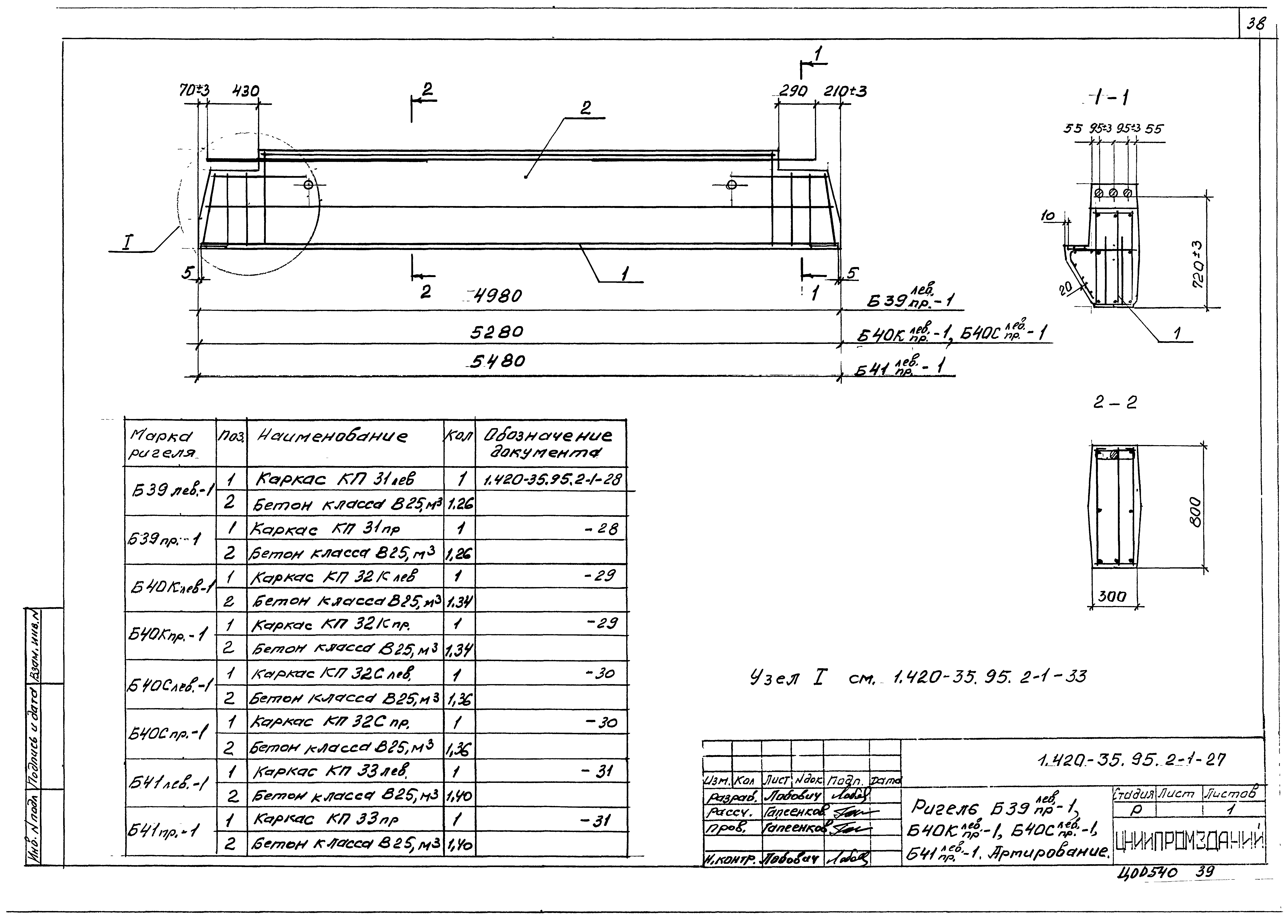
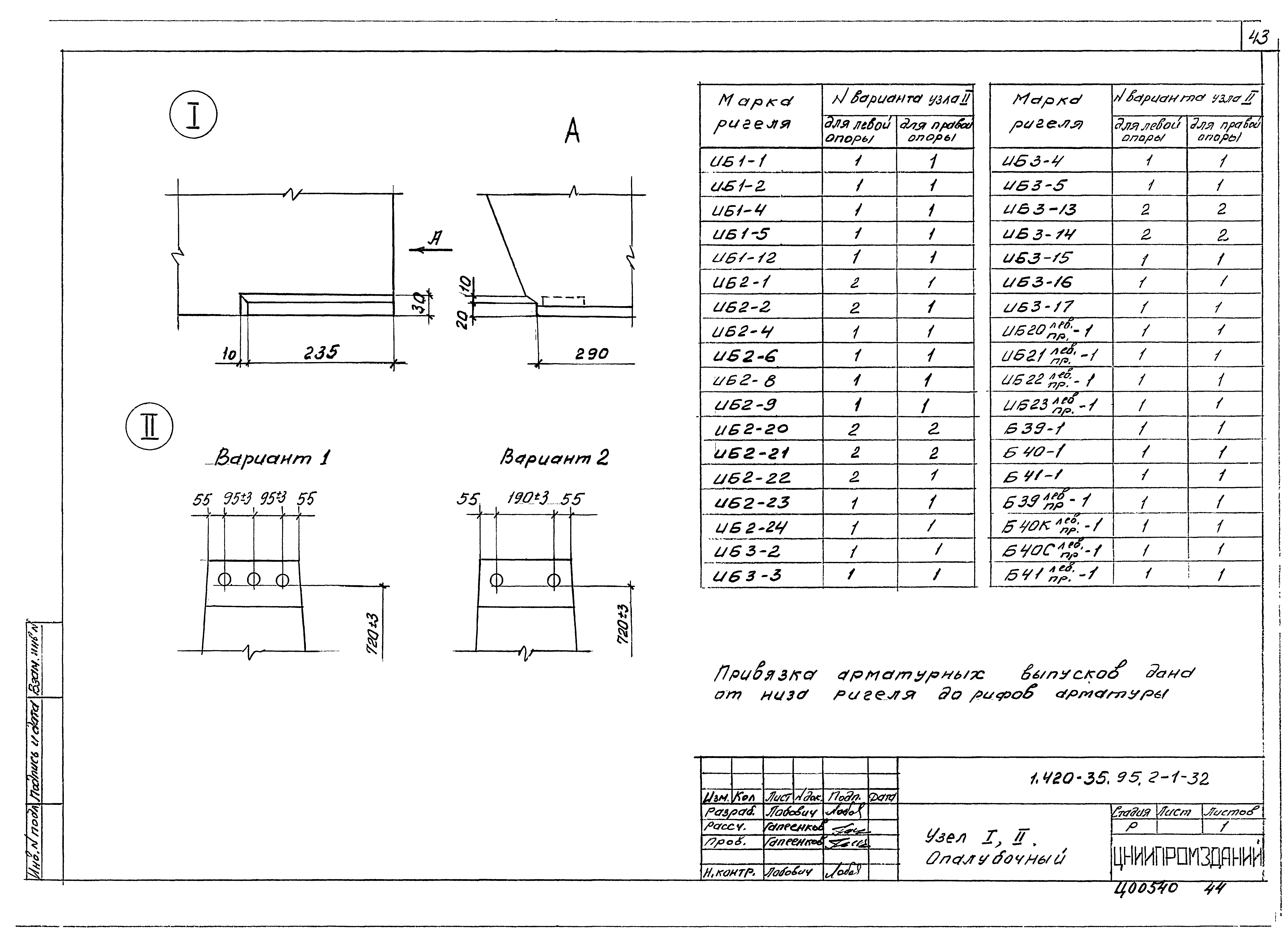
| Оглавление: | 1.420-35.95.2-1-1ТТ Технические требования 1.420-35.95.2-1-2 Ригель ИБ1-1, ИБ1-2, ИБ1-4, ИБ1-5, ТБ1-12 1.420-35.95.2-1-3 Ригель ИБ1-1, ИБ1-2, ИБ1-4, ИБ1-5, ТБ1-12. Армирование 1.420-35.95.2-1-4 Каркас пространственный. КП1…КП5 1.420-35.95.2-1-5 Ригель ИБ2-1, ИБ2-2, ИБ2-4, ИБ2-20...ТБ2-23 1.420-35.95.2-1-6 Ригель ИБ2-1, ИБ2-2, ИБ2-4, ИБ2-20...ТБ2-23. Армирование 1.420-35.95.2-1-7 Каркас пространственный. КП6…КП12 1.420-35.95.2-1-8 Ригель ИБ2-6, ИБ2-8, ИБ2-8, ИБ2-9, ИБ2-24 1.420-35.95.2-1-9 Ригель ИБ2-6, ИБ2-8, ИБ2-8, ИБ2-9, ИБ2-24. Армирование 1.420-35.95.2-1-10 Каркас пространственный КП13…КП16 1.420-35.95.2-1-11 Ригель ИБ3-2…ИБ3-5, ИБ3-13…ИБ3-17 1.420-35.95.2-1-12 Ригель ИБ3-2…ИБ3-5, ИБ3-13…ИБ3-17. Армирование 1.420-35.95.2-1-13 Каркас пространственный КП17…КП25 1.420-35.95.2-1-14 Ригель ИБ20лев-1…ИБ23лев-1, ИБ20пр-1…ИБ23пр-1 1.420-35.95.2-1-15 Ригель ИБ20лев-1…ИБ23лев-1, ИБ20пр-1…ИБ23пр-1. Армирование 1.420-35.95.2-1-16 Каркас пространственный КП27лев…КП30лев, КП27пр…КП30пр 1.420-35.95.2-1-17 Ригель Б39-1 1.420-35.95.2-1-18 Ригель Б39-1. Армирование 1.420-35.95.2-1-19 Каркас пространственный КП31 1.420-35.95.2-1-20 Ригель Б40-1 1.420-35.95.2-1-21 Ригель Б40-1. Армирование 1.420-35.95.2-1-22 Каркас пространственный КП32 1.420-35.95.2-1-23 Ригель Б41-1 1.420-35.95.2-1-24 Ригель Б41-1. Армирование 1.420-35.95.2-1-25 Каркас пространственный КП33 1.420-35.95.2-1-26 Ригель Б39лев-1…Б41лев-1, Б39пр-1…Б41пр-1 1.420-35.95.2-1-27 Ригель Б39пр(в степени лев)-1, Б40Кпр(в степени лев)-1, Б40Спр(в степени лев)-1, Б41пр(в степени лев)-1. Армирование 1.420-35.95.2-1-28 Каркас пространственный КП31лев, КП31пр 1.420-35.95.2-1-29 Каркас пространственный КП32лев, КП32пр 1.420-35.95.2-1-30 Каркас пространственный КП32Слев, КП32Спр 1.420-35.95.2-1-31 Каркас пространственный КП33лев, КП33пр 1.420-35.95.2-1-32 Узел 1,2. Опалубочный 1.420-35.95.2-1-33 Узел 1. Армирование. Пример установки закладных изделий М2…М4 1.420-35.95.2-1-34 Узел 1,2. пространственных каркасов 1.420-35.95.2-1-35РС Ведомость расхода стали, кг 1.420-35.95.2-1-36СМ Справочный материал |
| Разработан: | АО ЦНИИпромзданий |
| Утверждён: | 09.12.1997 Департамент развития научно-технической политики и проектно-изыскательских работ Госстроя России (Department of Technical Research Policy and Design and Survey Operations, Russian Federation Gosstroy 9-1-1/160) |
| Заменяет собой: |


















































