Скачать Серия 1.420-35.95 Выпуск 3-2. Узлы монтажные сопряжений плит перекрытий и покрытия. Рабочие чертежиДата актуализации: 01.01.2021
|
| Обозначение: | Серия 1.420-35.95 |
| Обозначение англ: | Series 1.420-35.95 |
| Статус: | не определен законодательством |
| Название рус.: | Выпуск 3-2. Узлы монтажные сопряжений плит перекрытий и покрытия. Рабочие чертежи |
| Дата добавления в базу: | 01.09.2013 |
| Дата актуализации: | 01.01.2021 |
| Дата введения: | 01.03.1998 |
| Дата окончания срока действия: | 30.06.2003 |
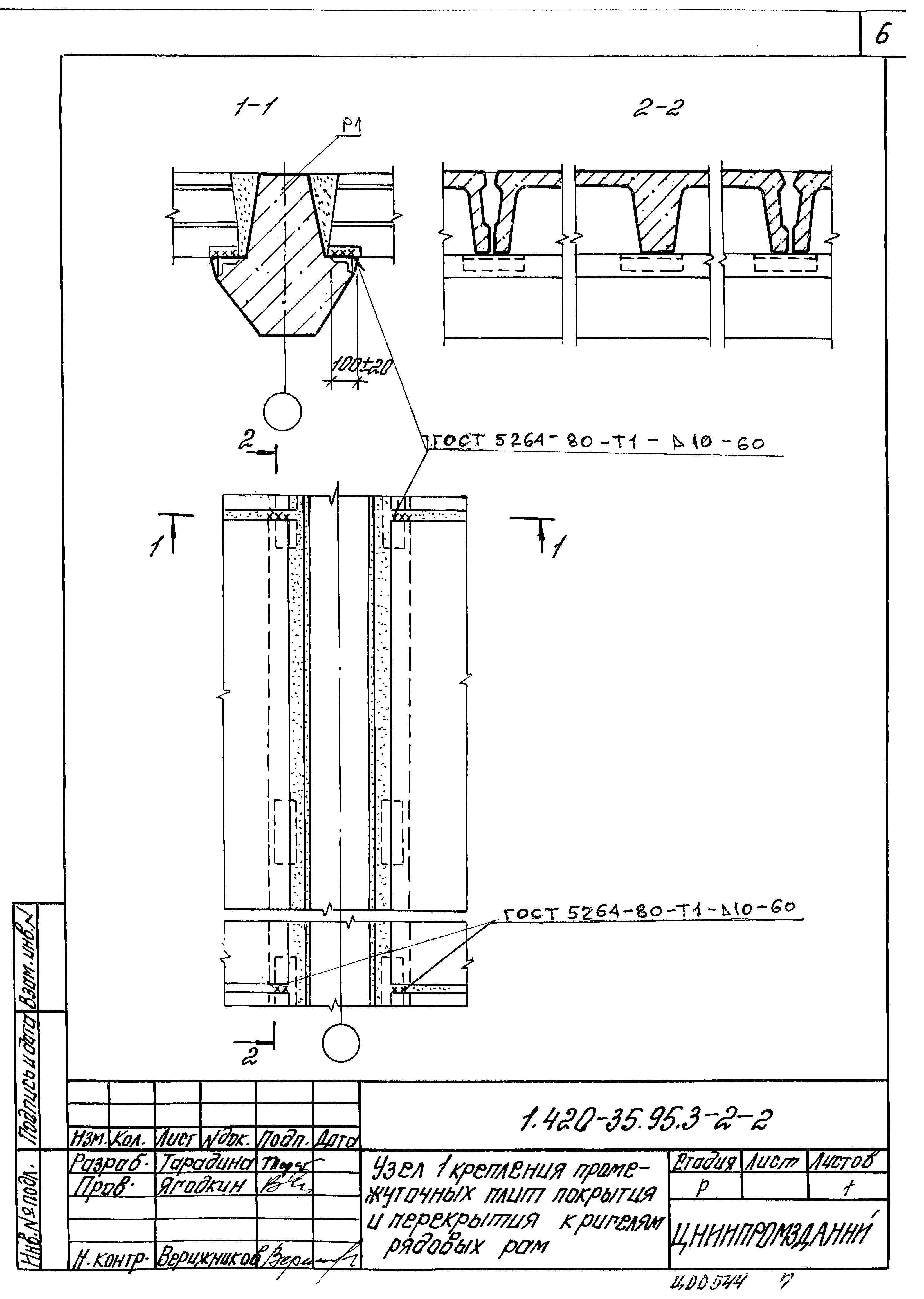
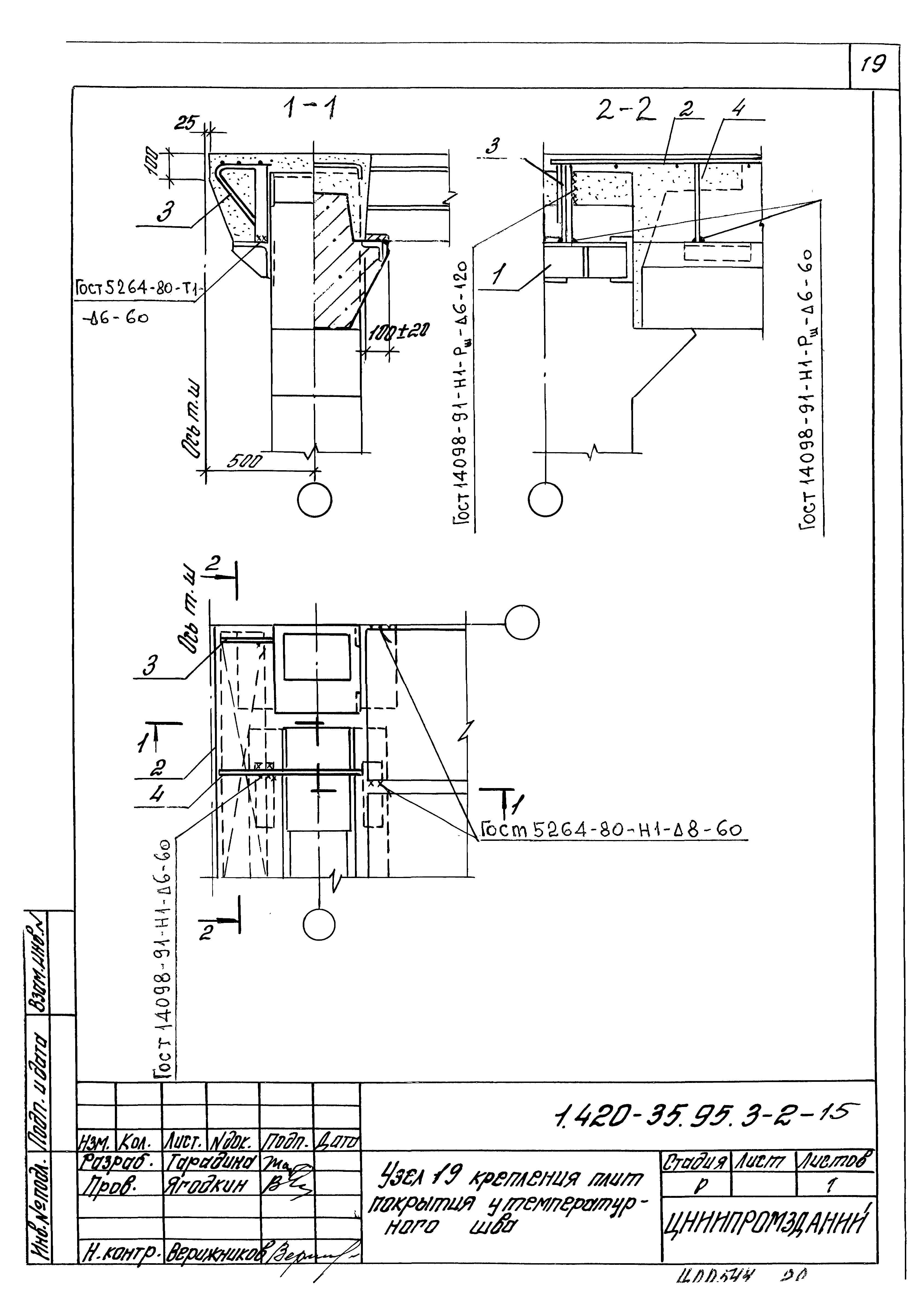
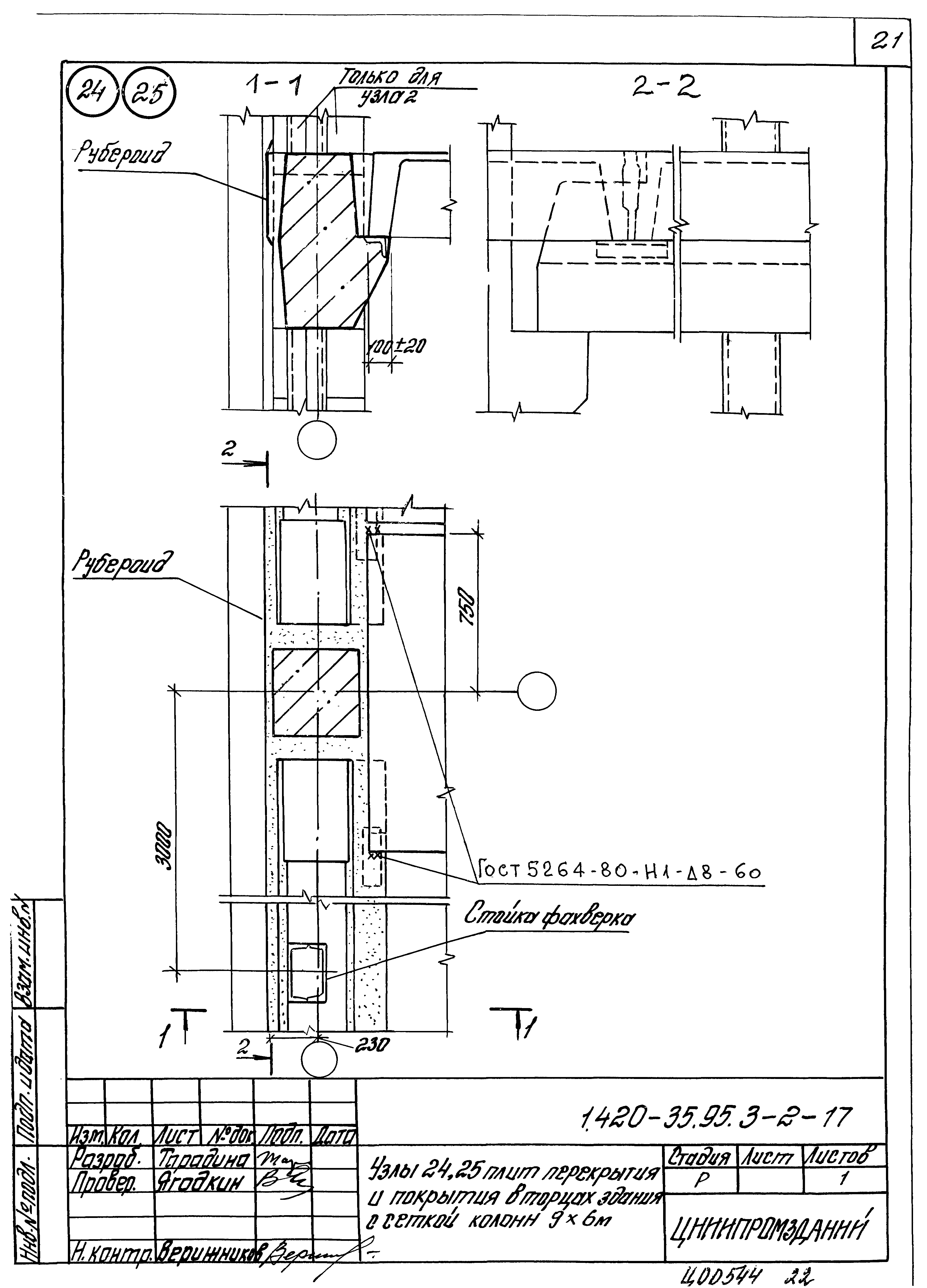
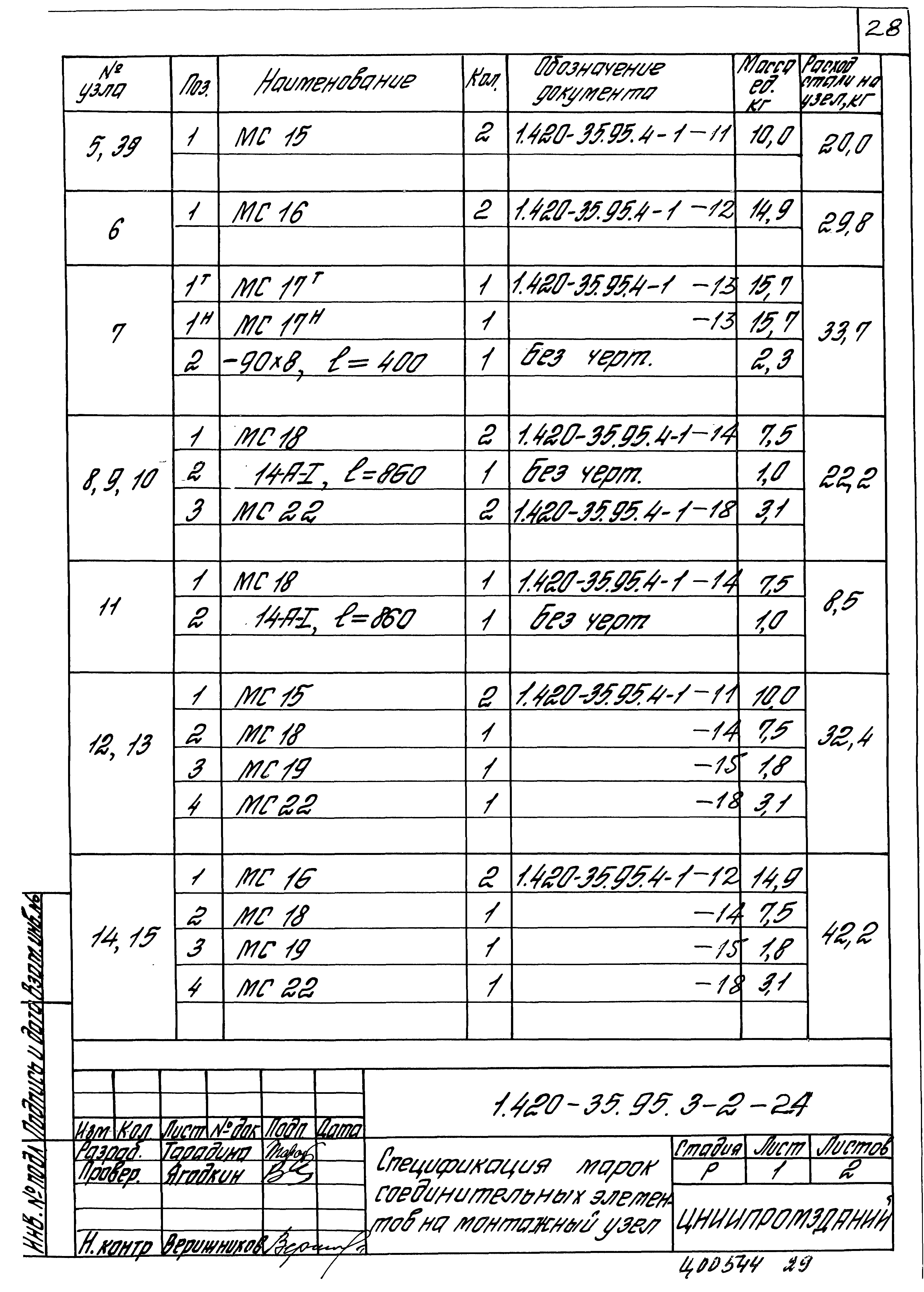
| Оглавление: | 1.420-35.95.3-2-1ТТ Технические требования 1.420-35.95.3-2-2 Узел 1 крепления промежуточного плит покрытия и перекрытия к ригелям рядовых рам 1.420-35.95.3-2-3 Узел 2 крепления промежуточного плит покрытия и перекрытия к ригелям рядовых рам 1.420-35.95.3-2-4 Узел 3, 37 крепления промежуточного плит перекрытия и покрытия у средней колонны 1.420-35.95.3-2-5 Узел 4, 38 крепления плит перекрытия и покрытия у средней колонны 1.420-35.95.3-2-6 Узел 5, 39 крепления плит перекрытия у крайней колонны 1.420-35.95.3-2-7 Узел 6 крепления плит перекрытия у крайней колонны 1.420-35.95.3-2-8 Узел 7 крепления плит перекрытия у крайней колонны 1.420-35.95.3-2-9 Узел 8, 9, 10 крепления плит перекрытия и покрытия у температурного шва 1.420-35.95.3-2-10 Узел 11 армирования монолитного участка у температурного шва в покрытии и перекрытии 1.420-35.95.3-2-11 Узел 12, 13 крепления плит перекрытия у температурного шва 1.420-35.95.3-2-12 Узел 14, 15 крепления плит перекрытия у температурного шва 1.420-35.95.3-2-13 Узел 16, 17 крепления плит перекрытия у температурного шва 1.420-35.95.3-2-14 Узел 18 крепления плит покрытия у температурного шва 1.420-35.95.3-2-15 Узел 19 крепления плит покрытия у температурного шва 1.420-35.95.3-2-16 Узлы 20…23 крепления плит перекрытия и покрытия в торце здания с сеткой колонн 6х6 м 1.420-35.95.3-2-17 Узлы 24, 25 крепления плит перекрытия и покрытия в торцах здания с сеткой колонн 9х6 м 1.420-35.95.3-2-18 Узлы 26, 27 крепления плит перекрытия и покрытия в торцах здания с сеткой колонн 9х6 м 1.420-35.95.3-2-19 Узлы 28, 29 крепления плит перекрытия и покрытия в углах здания 1.420-35.95.3-2-20 Узел 30 крепления плит перекрытия в углах здания 1.420-35.95.3-2-21 Узел 31 крепления плит перекрытия в углах здания 1.420-35.95.3-2-22 Узлы 32…35 крепления плит перекрытия у температурного шва 1.420-35.95.3-2-23 Узел 36 крепления опорных столиков к колонне 1.420-35.95.3-2-24 Спецификация марок соединительных элементов на монтажный узел |
| Разработан: | АО ЦНИИпромзданий |
| Утверждён: | 09.12.1997 Департамент развития научно-технической политики и проектно-изыскательских работ Госстроя России (Department of Technical Research Policy and Design and Survey Operations, Russian Federation Gosstroy 9-1-1/160) |
| Заменяет собой: |





























