Скачать Серия 1.420.1-20с Выпуск 0-4. Материалы для проектирования лестничных клеток зданий со стальными связями в продольном направленииДата актуализации: 01.01.2021
|
| Обозначение: | Серия 1.420.1-20с |
| Обозначение англ: | Series 1.420.1-20с |
| Статус: | не определен законодательством |
| Название рус.: | Выпуск 0-4. Материалы для проектирования лестничных клеток зданий со стальными связями в продольном направлении |
| Дата добавления в базу: | 01.09.2013 |
| Дата актуализации: | 01.01.2021 |
| Дата введения: | 01.03.1991 |
| Дата окончания срока действия: | 30.06.2003 |
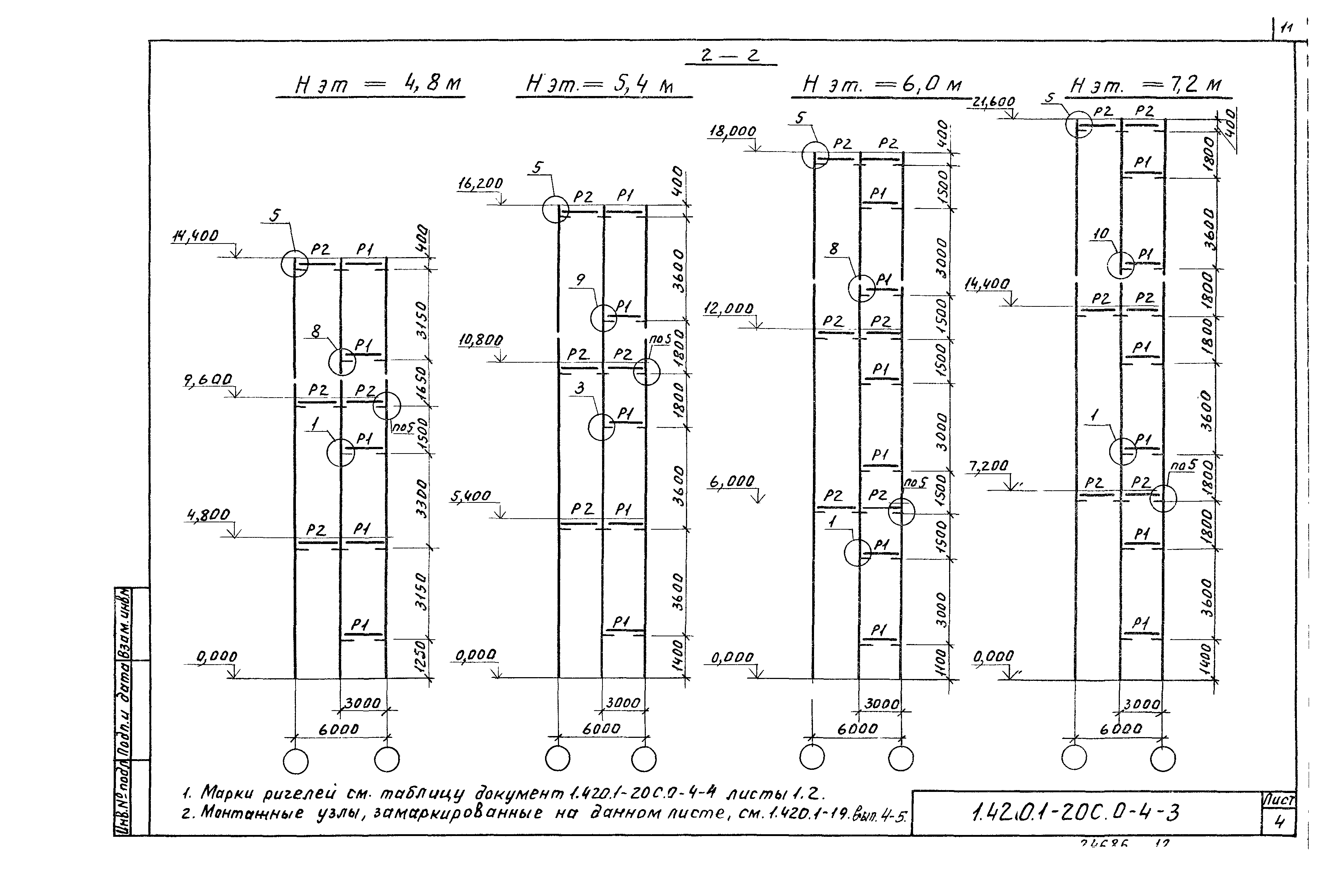
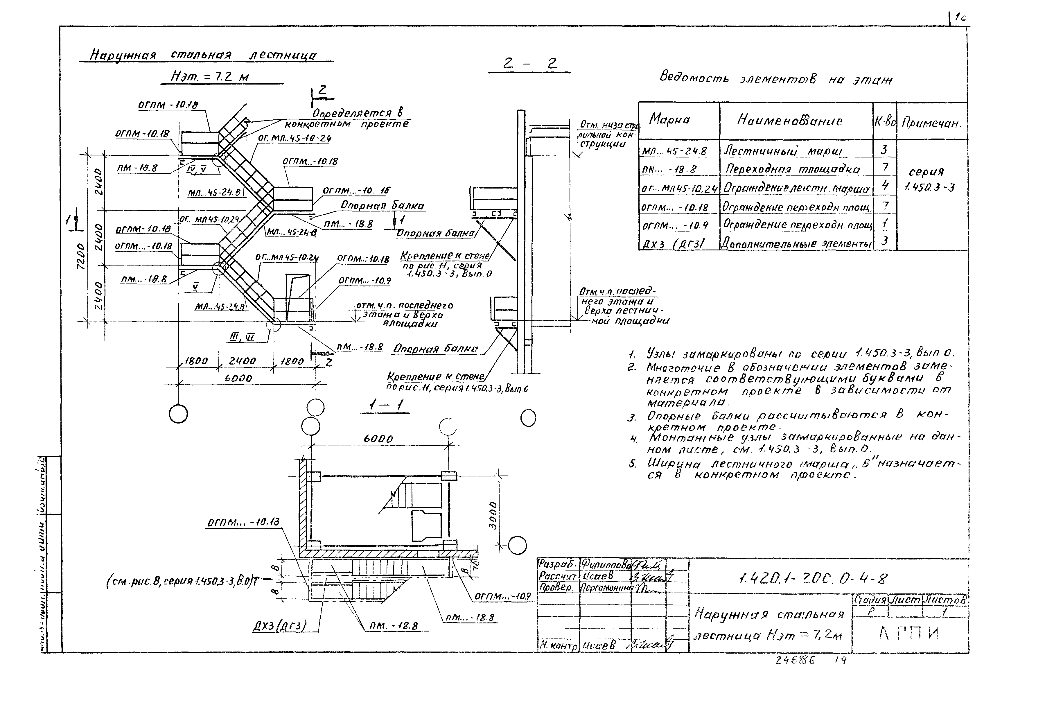
| Оглавление: | 1.420.1-20С.0-4-1ТТ Технические требования 1.420.1-20С.0-4-2СМ Марки, основные характеристики, область применения ригелей пролетами 3 м и 6 м для лестничных клеток 1.420.1-20С.0-4-3 Схема расположения лестничных клеток в здании 1.420.1-20С.0-4-4 Схемы расположения лестничных маршей и верхней лестничной площадки 1.420.1-20С.0-4-5 Схемы расположения проступей на лестничных маршах и верхних площадках 1.420.1-20С.0-4-6 Схемы ограждений лестничных маршей и площадок 1.420.1-20С.0-4-7 Наружная стальная лестница Нэт = 6,0 м 1.420.1-20С.0-4-8 Наружная стальная лестница, Нэт = 7,2 м 1.420.1-20С.0-4-9 Примеры расположения дополнительных закладных изделий в колоннах 1.420.1-20С.0-4-10 Расположение дополнительных закладных изделий в ригелях 1.420.1-20С.0-4-11 Примеры выходов на кровлю при сетках колонн 6х6 м, 9х6 м |
| Разработан: | АО ЦНИИпромзданий ЛГПИ |
| Утверждён: | 19.09.1990 Госстрой СССР (Государственный комитет Совета Министров СССР по делам строительства) (USSR Gosstroy 5/6-796) |
| Издан: | АПП ЦИТП (1991 г. ) |
























