Скачать Серия 1.420.1-24с Выпуск 2. Книга 1. Железобетонные капители, межколонные и пролетные плиты. Рабочие чертежиДата актуализации: 01.01.2021
|
| Обозначение: | Серия 1.420.1-24с |
| Обозначение англ: | Series 1.420.1-24с |
| Статус: | не определен законодательством |
| Название рус.: | Выпуск 2. Книга 1. Железобетонные капители, межколонные и пролетные плиты. Рабочие чертежи |
| Дата добавления в базу: | 01.09.2013 |
| Дата актуализации: | 01.01.2021 |
| Дата введения: | 01.03.1991 |
| Дата окончания срока действия: | 30.06.2003 |
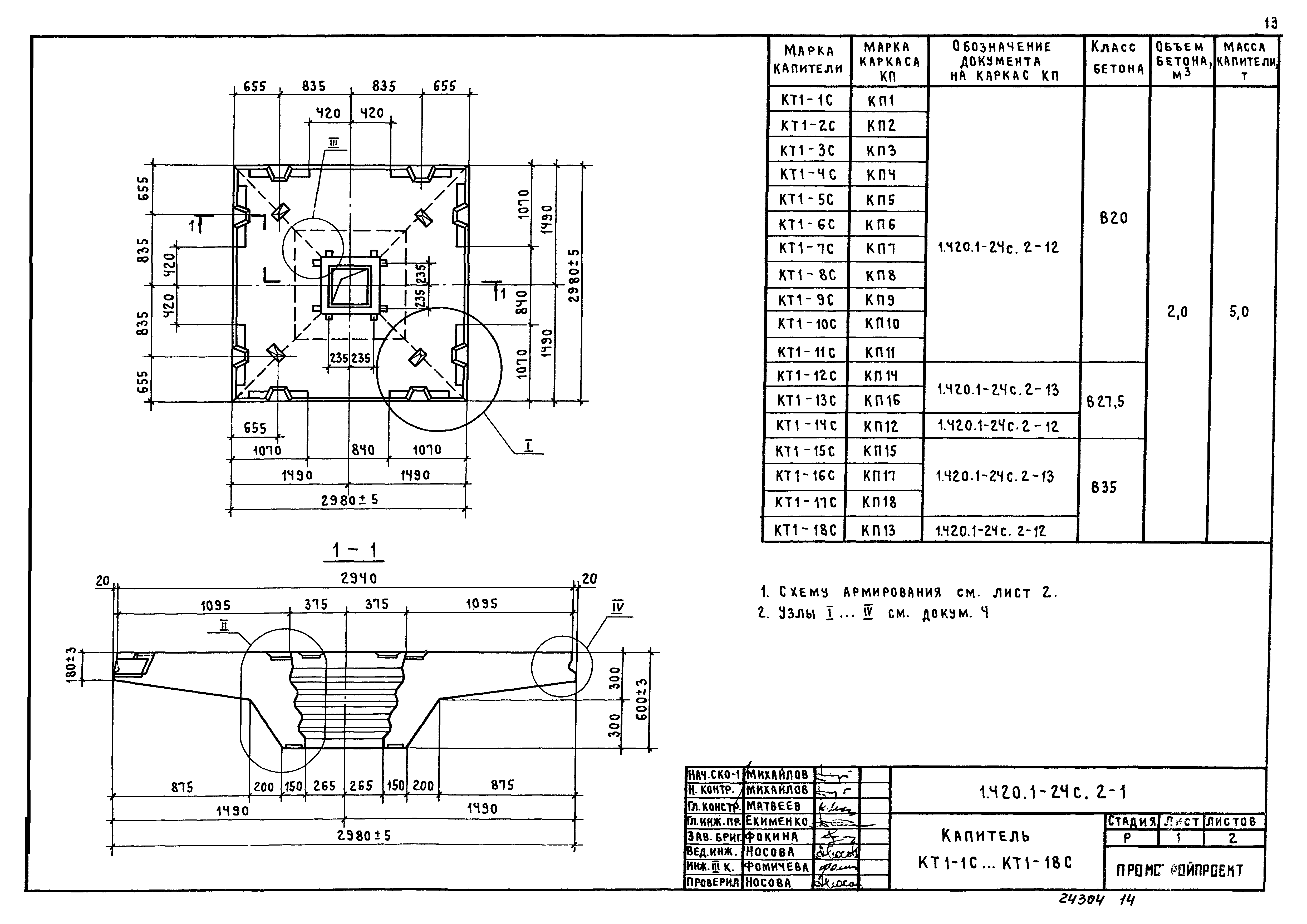
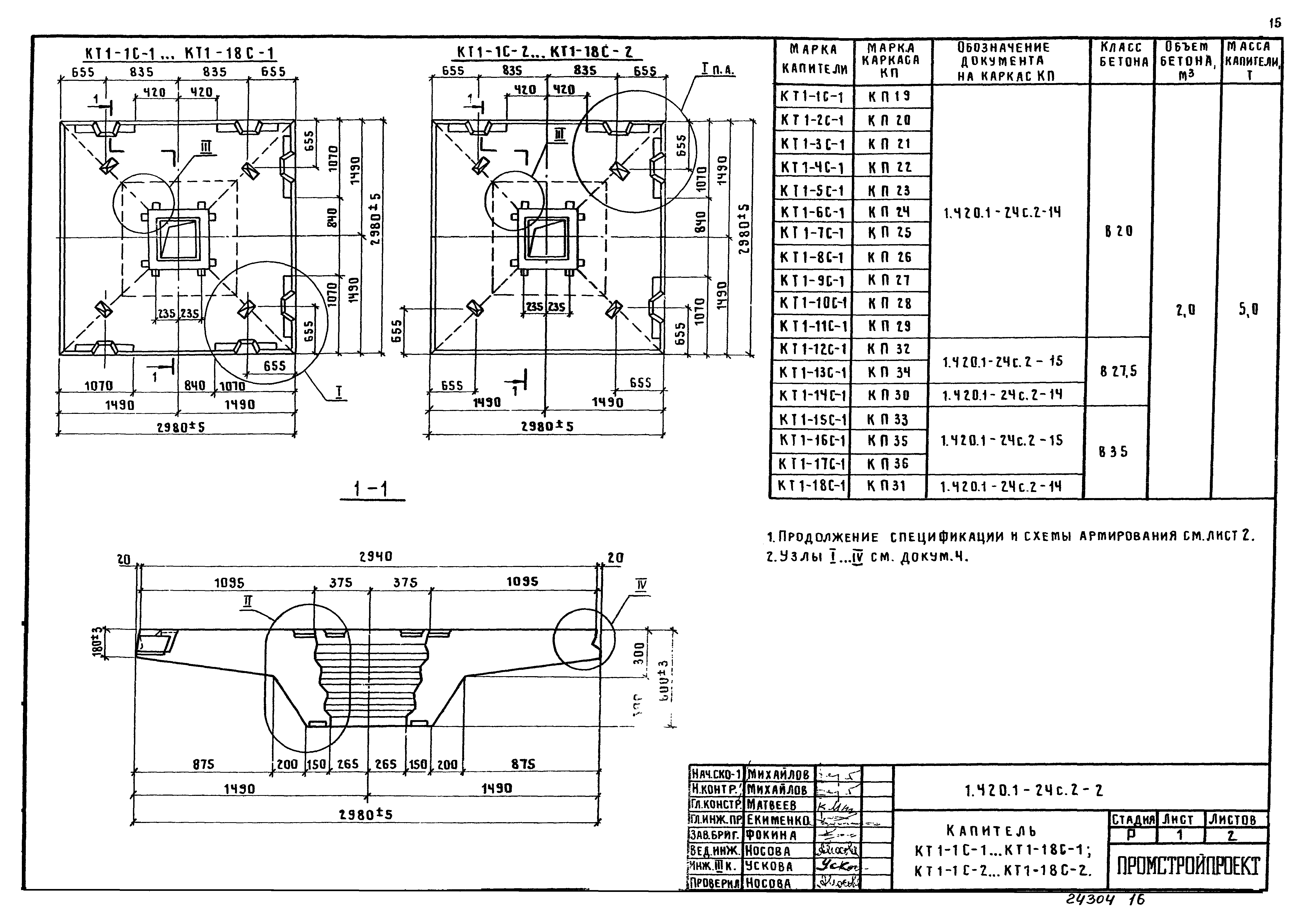
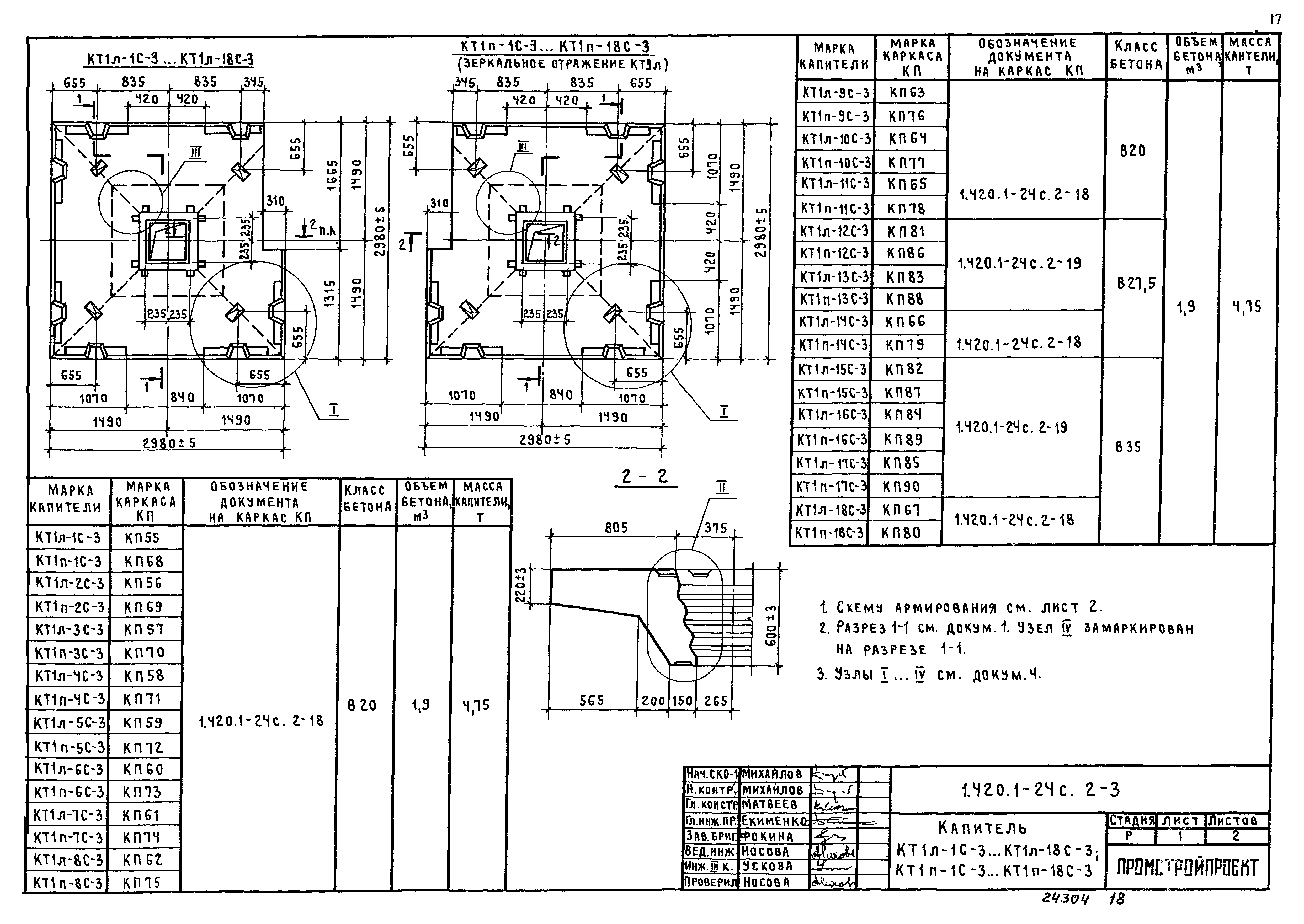
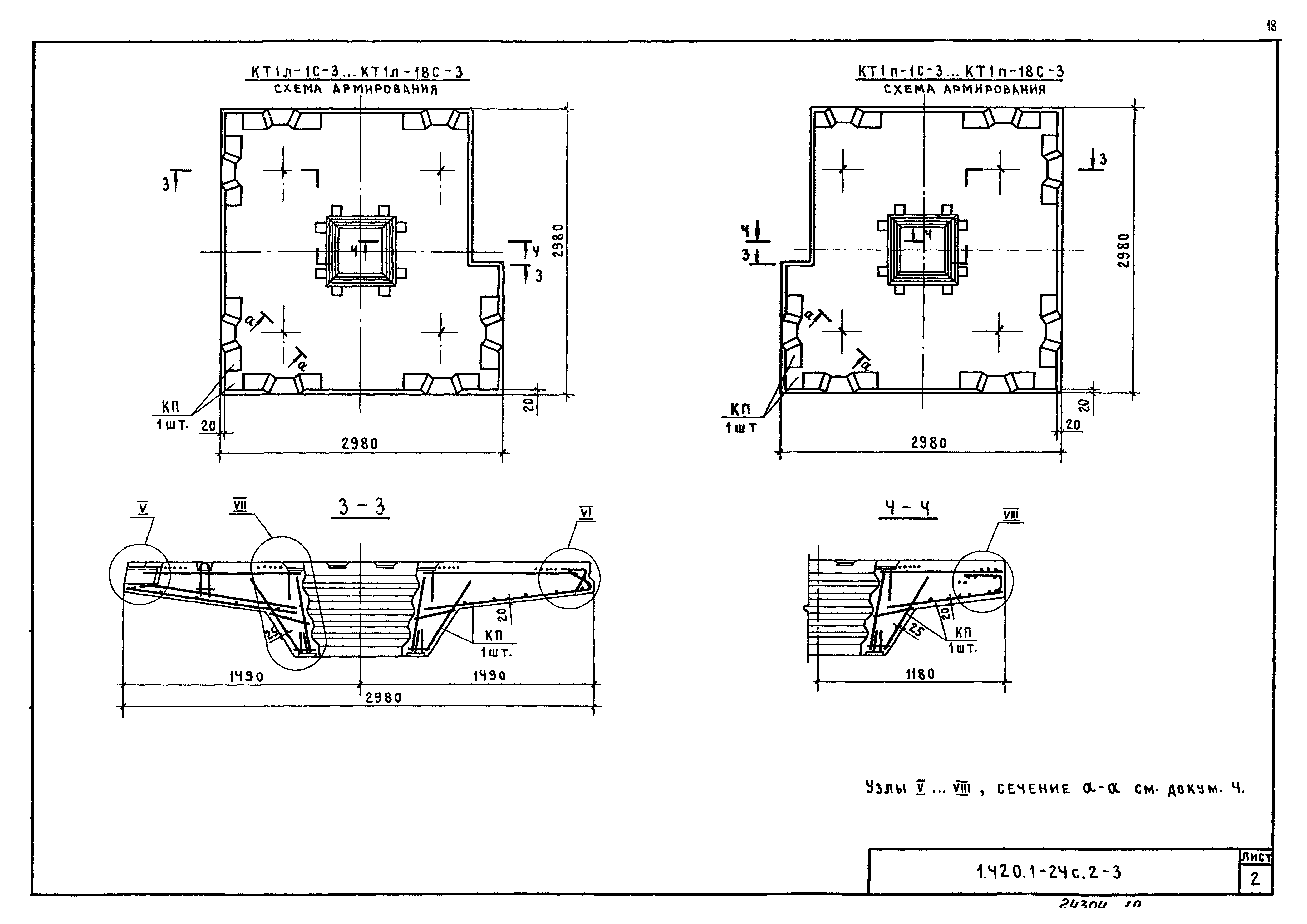
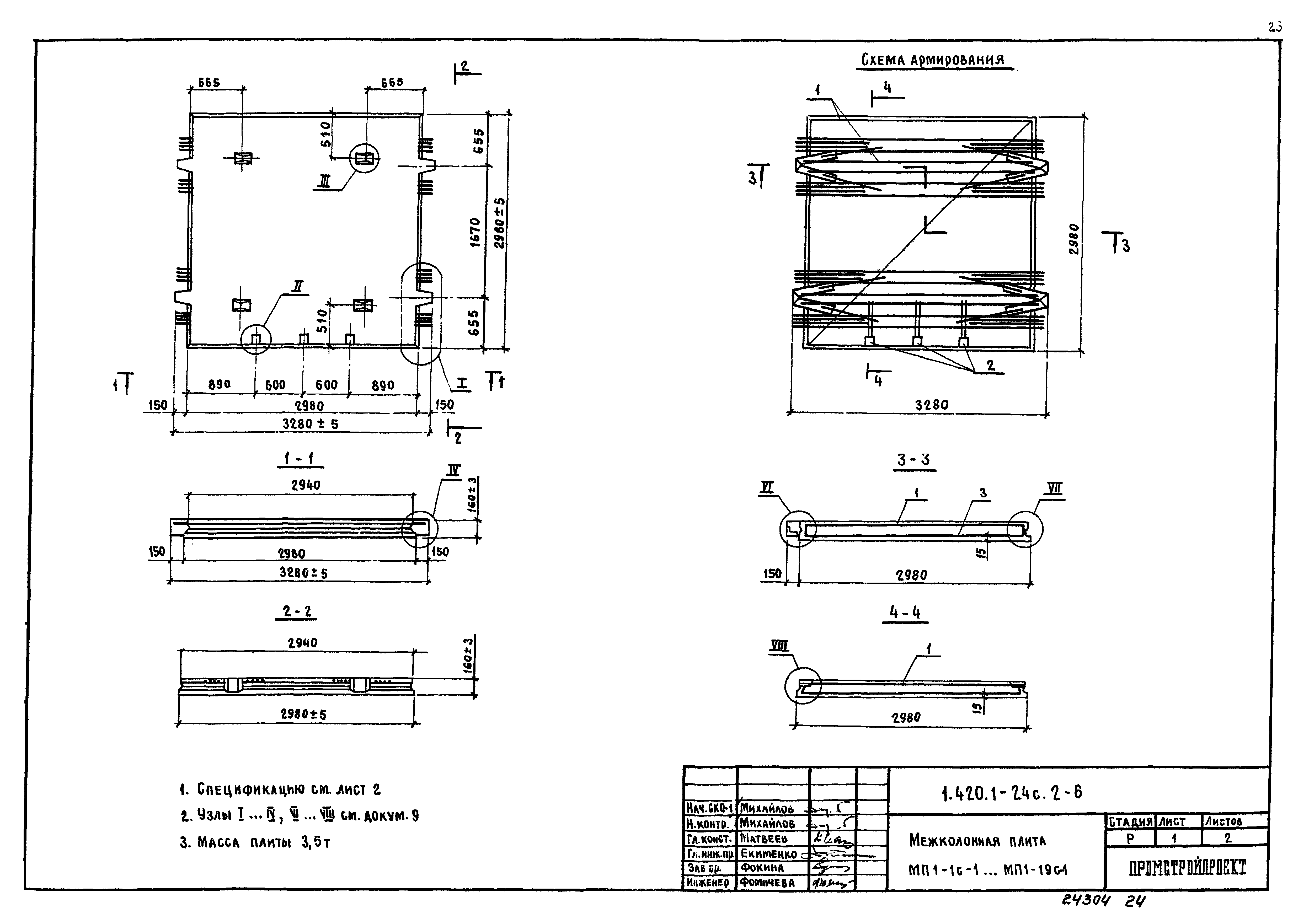
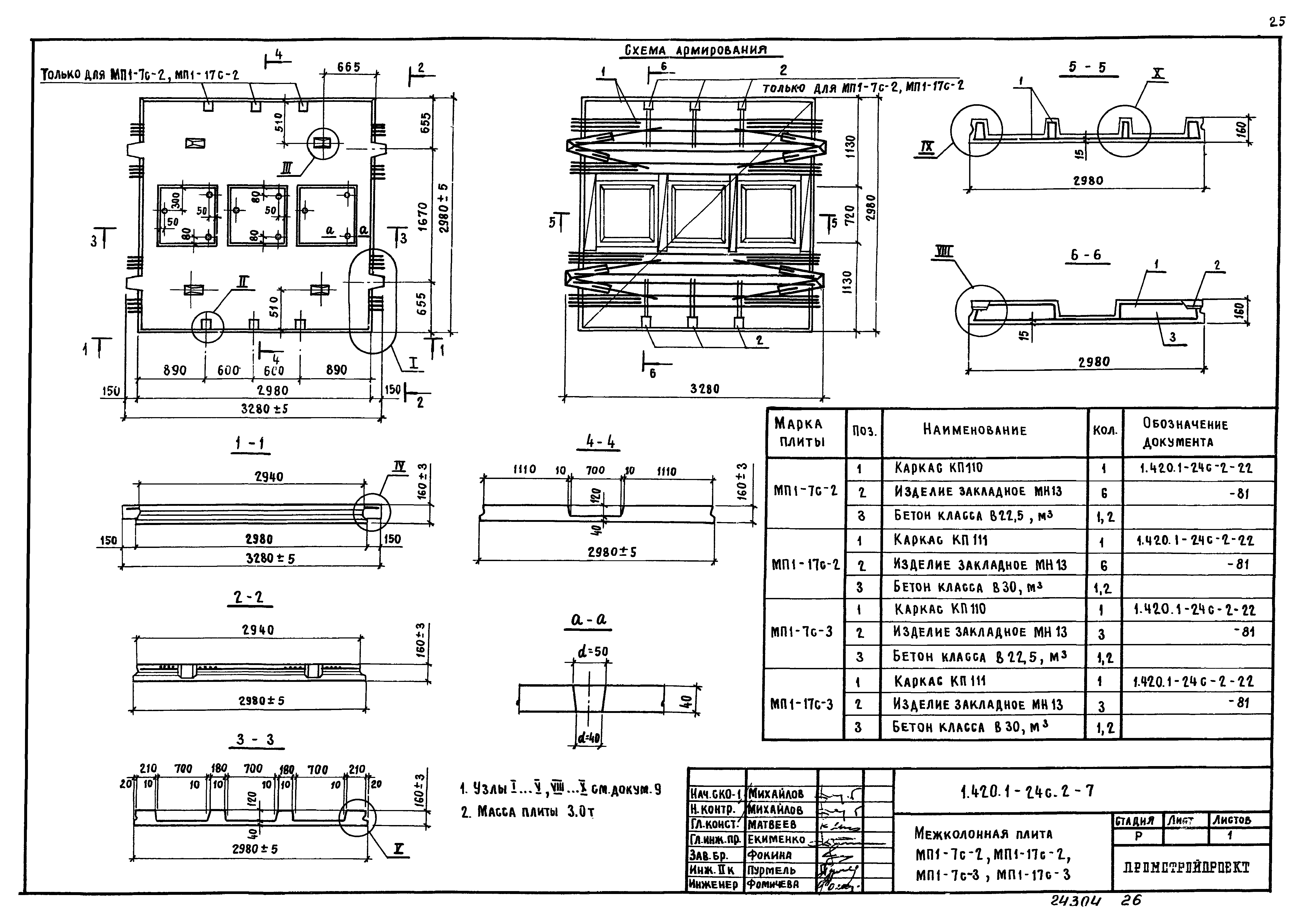
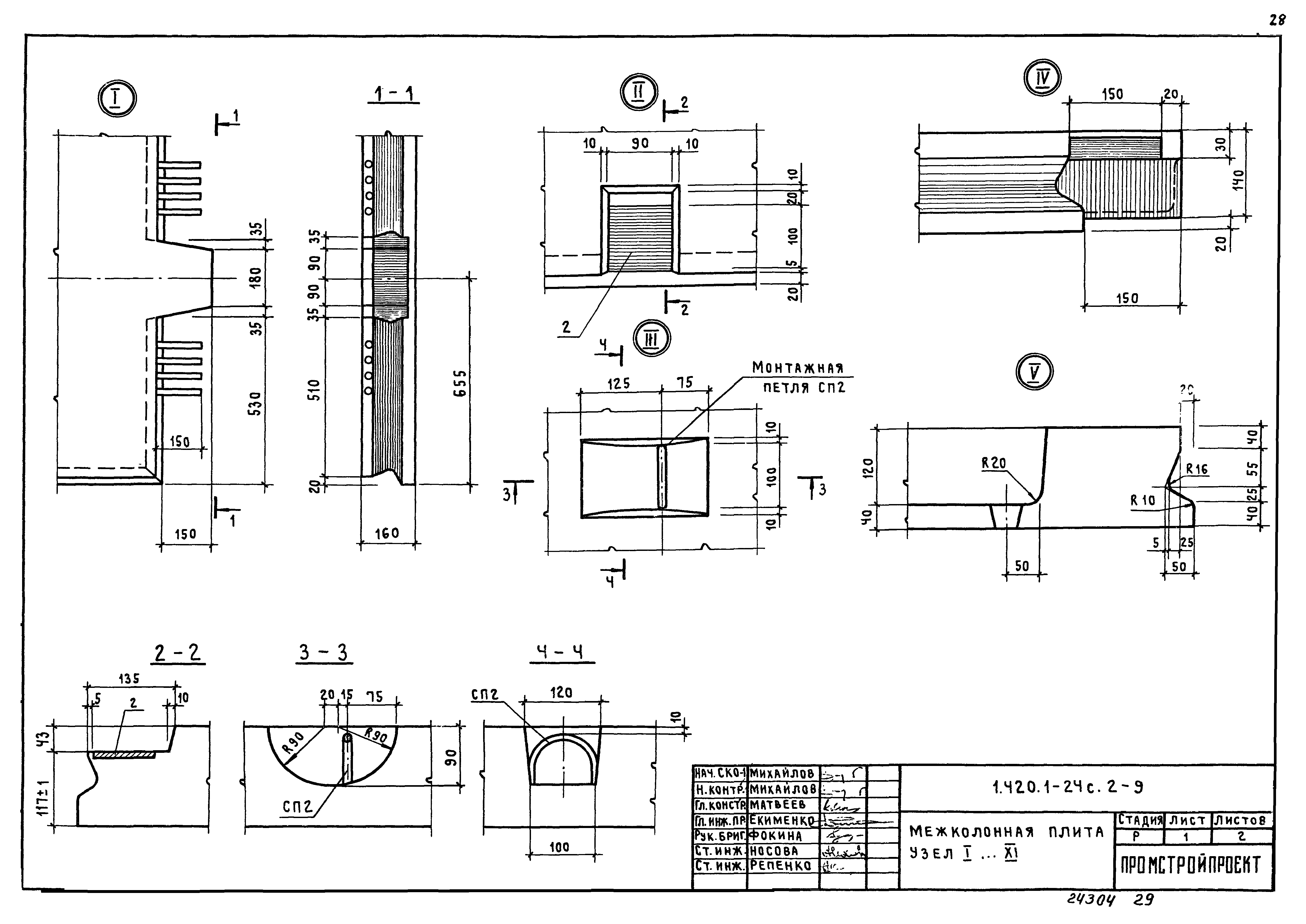
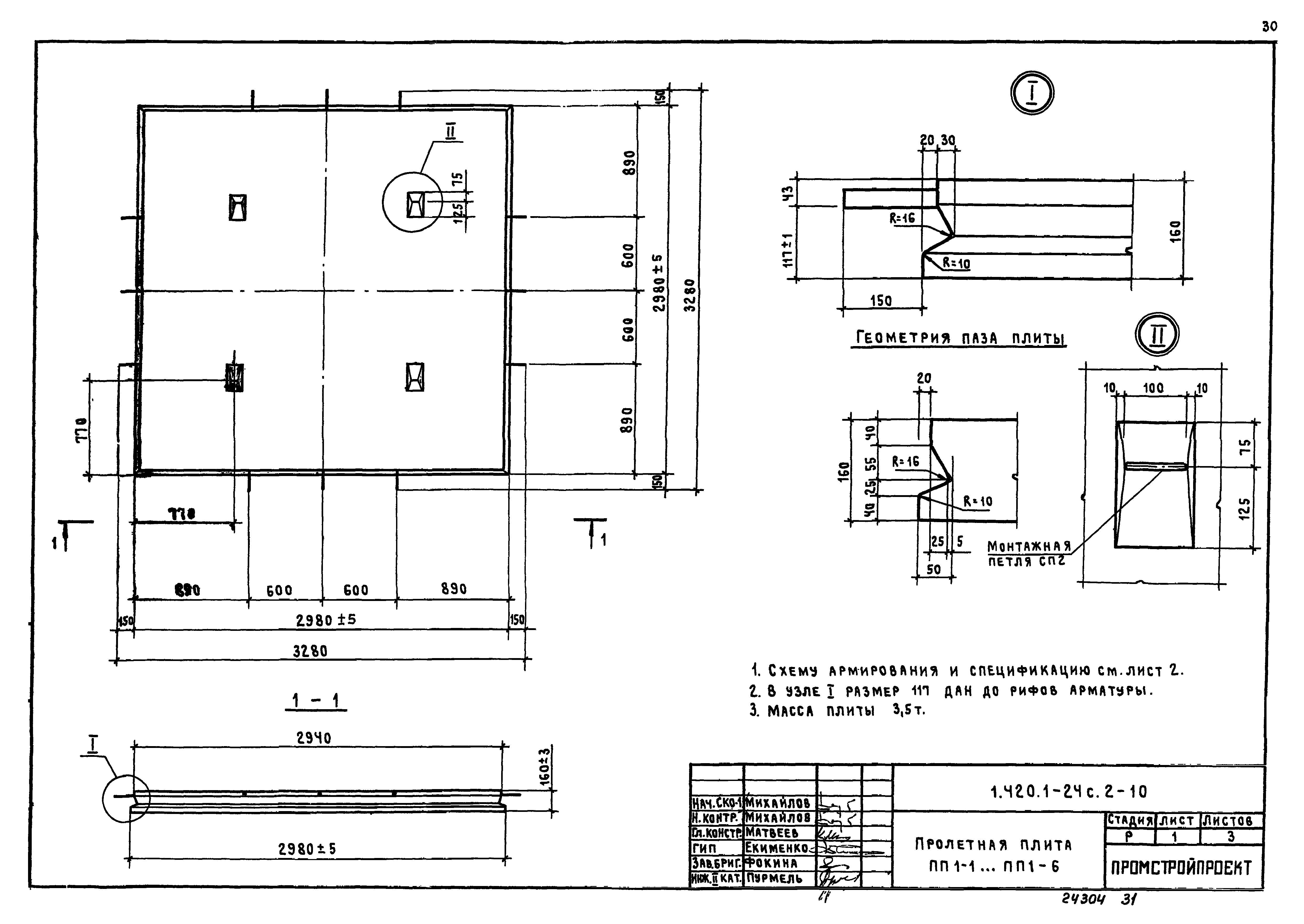
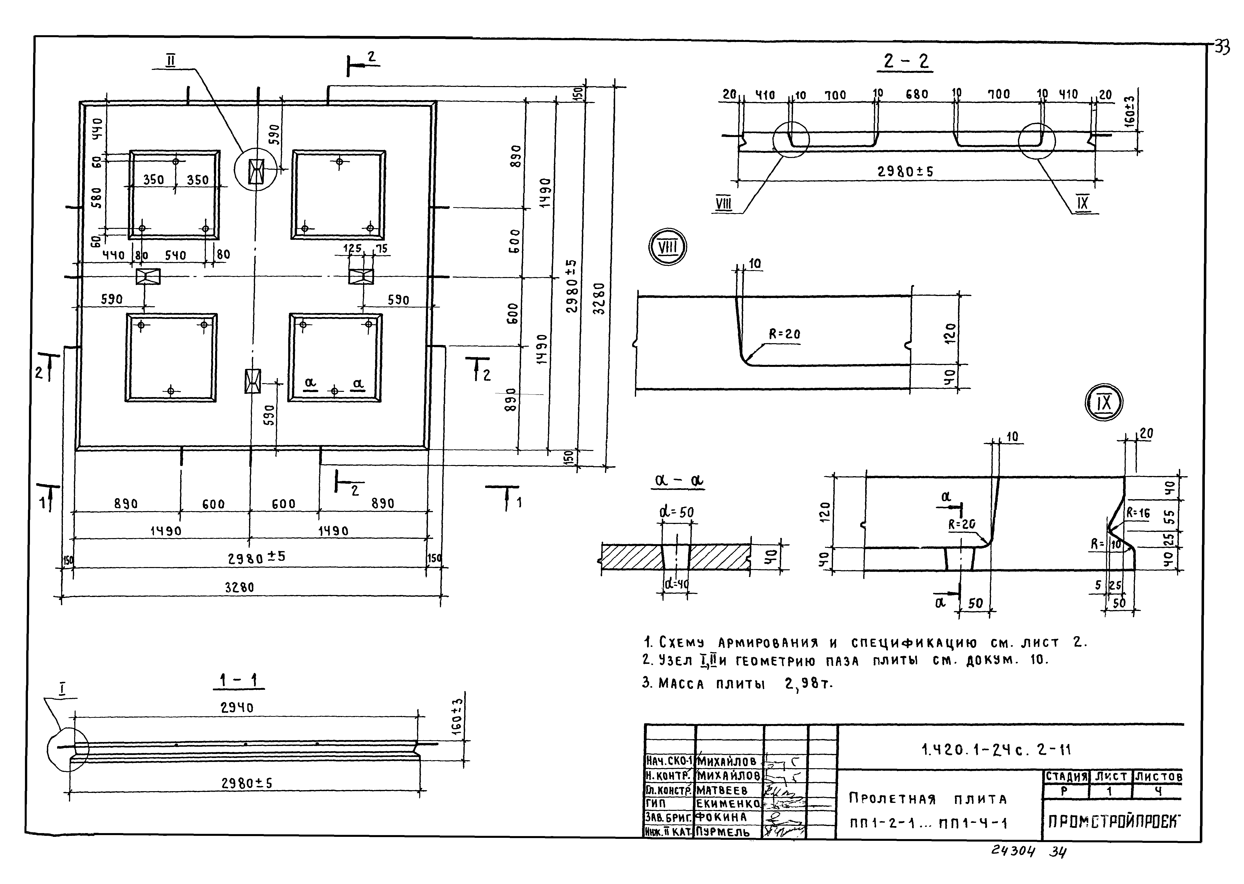
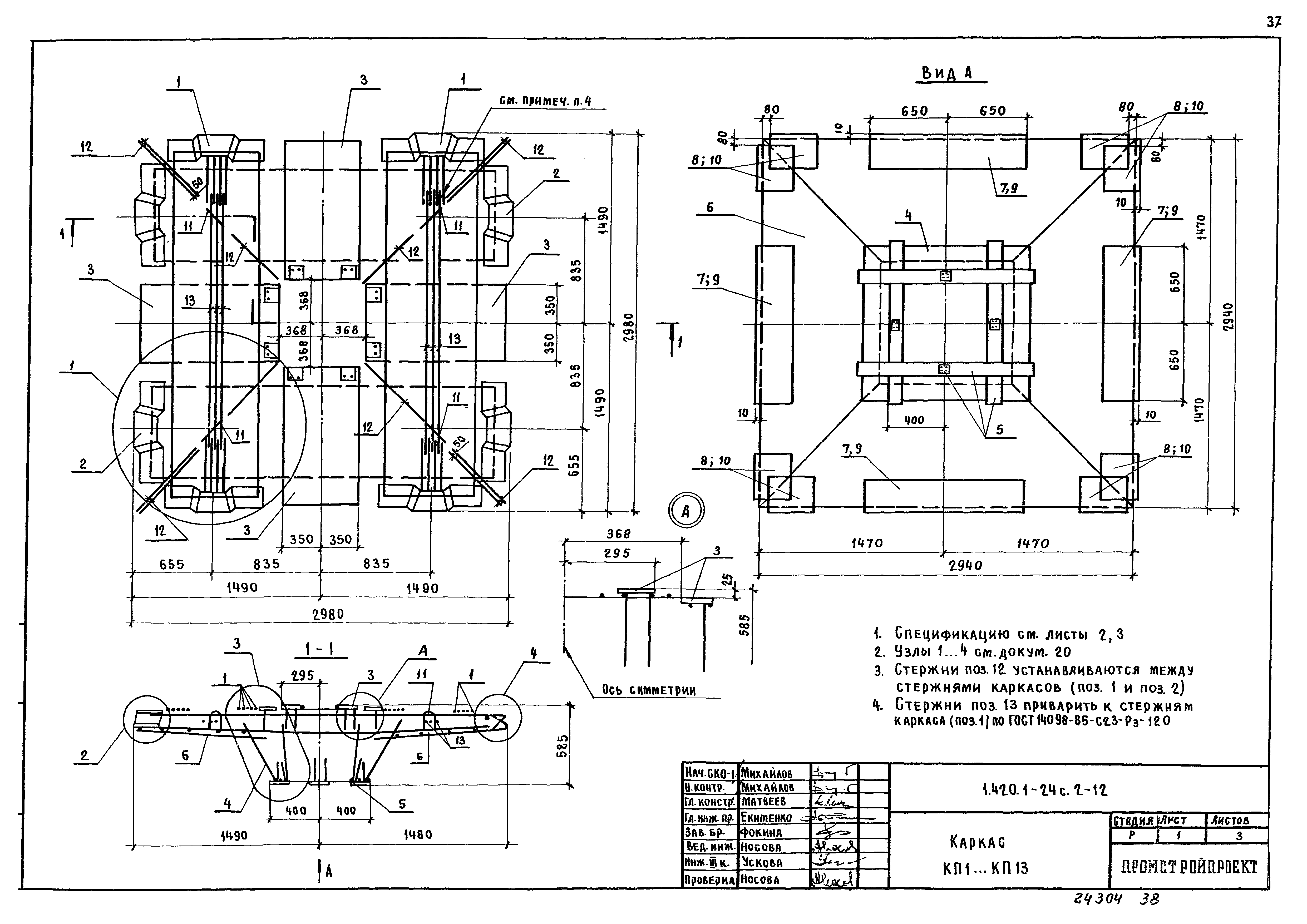
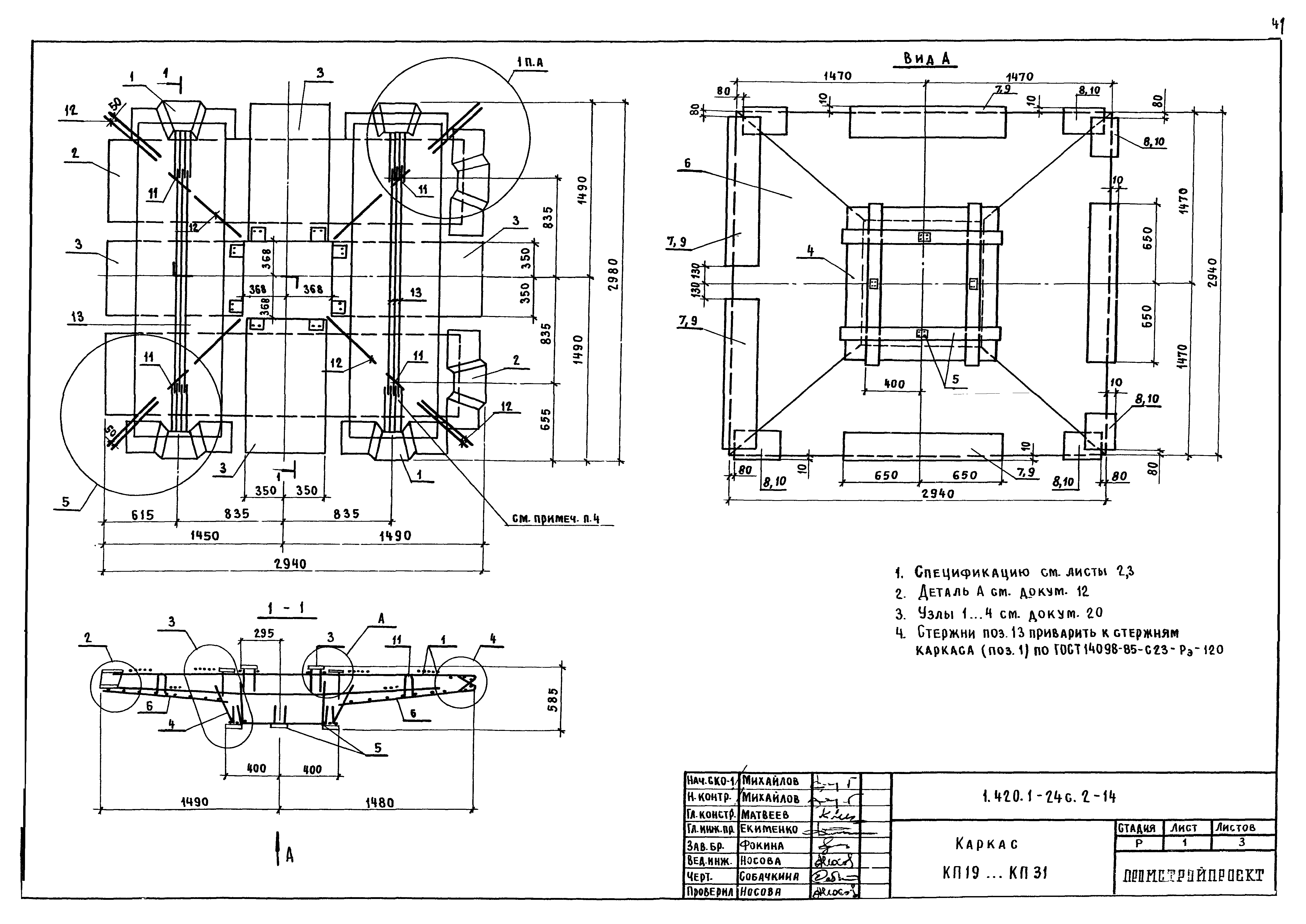
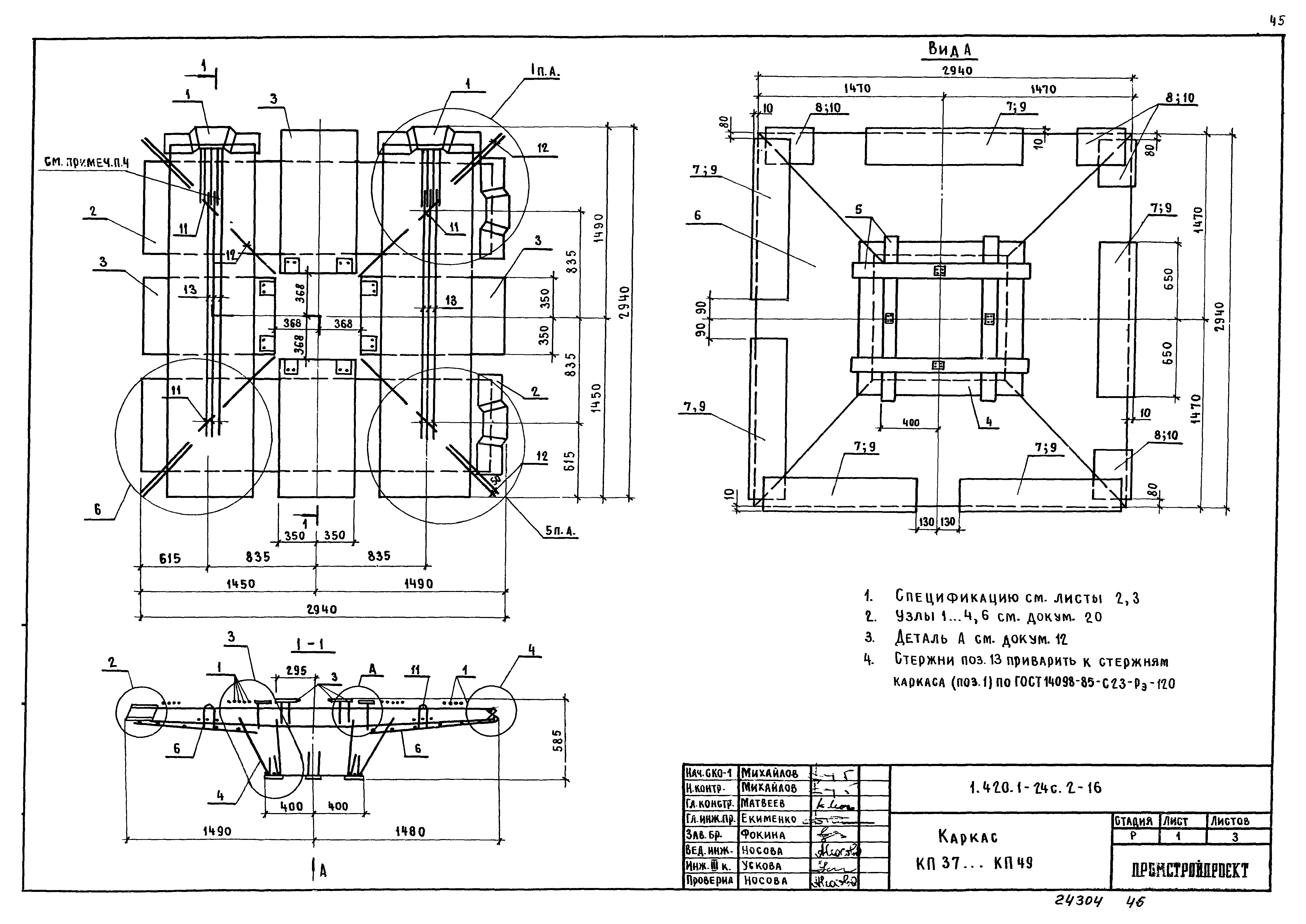
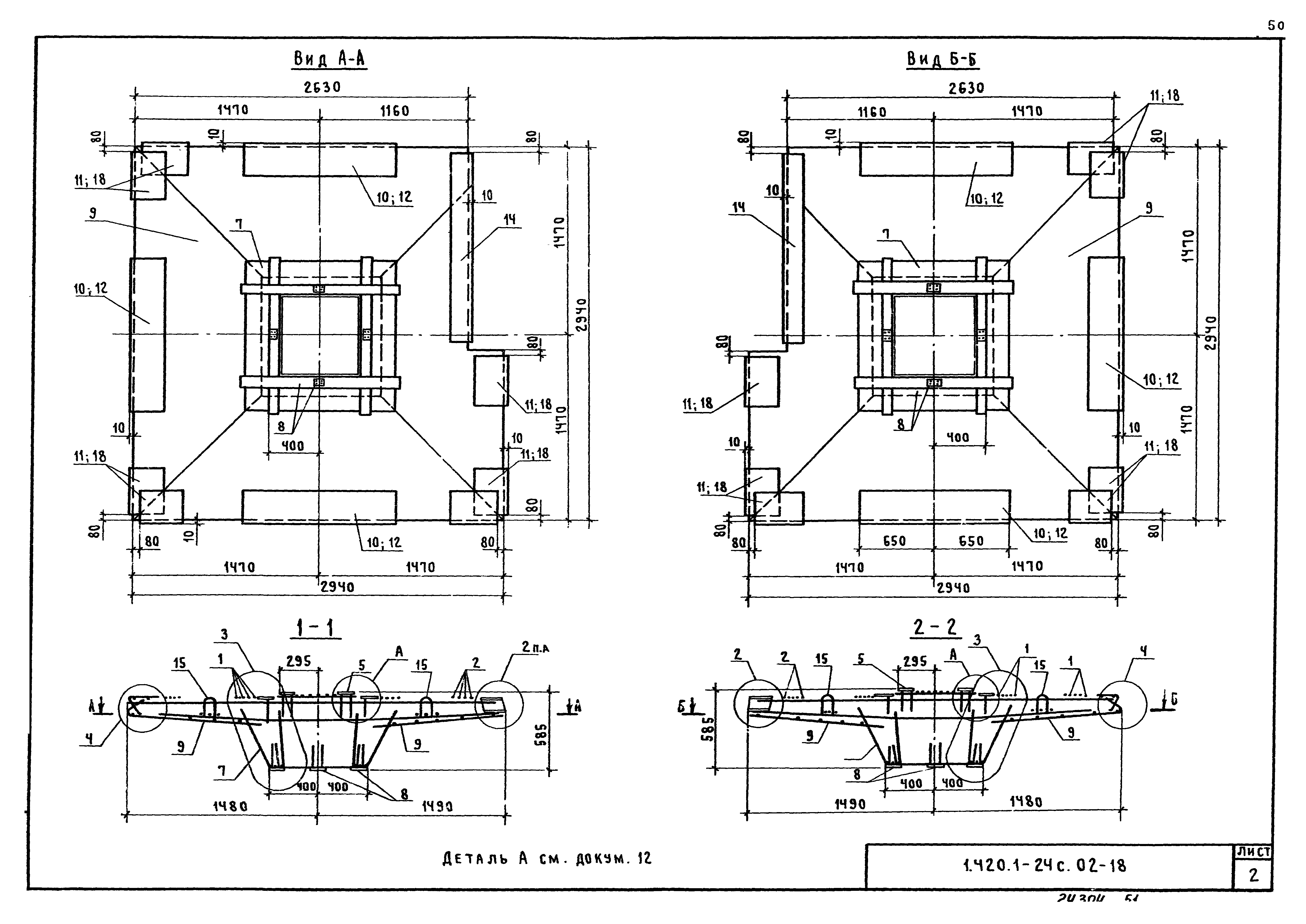
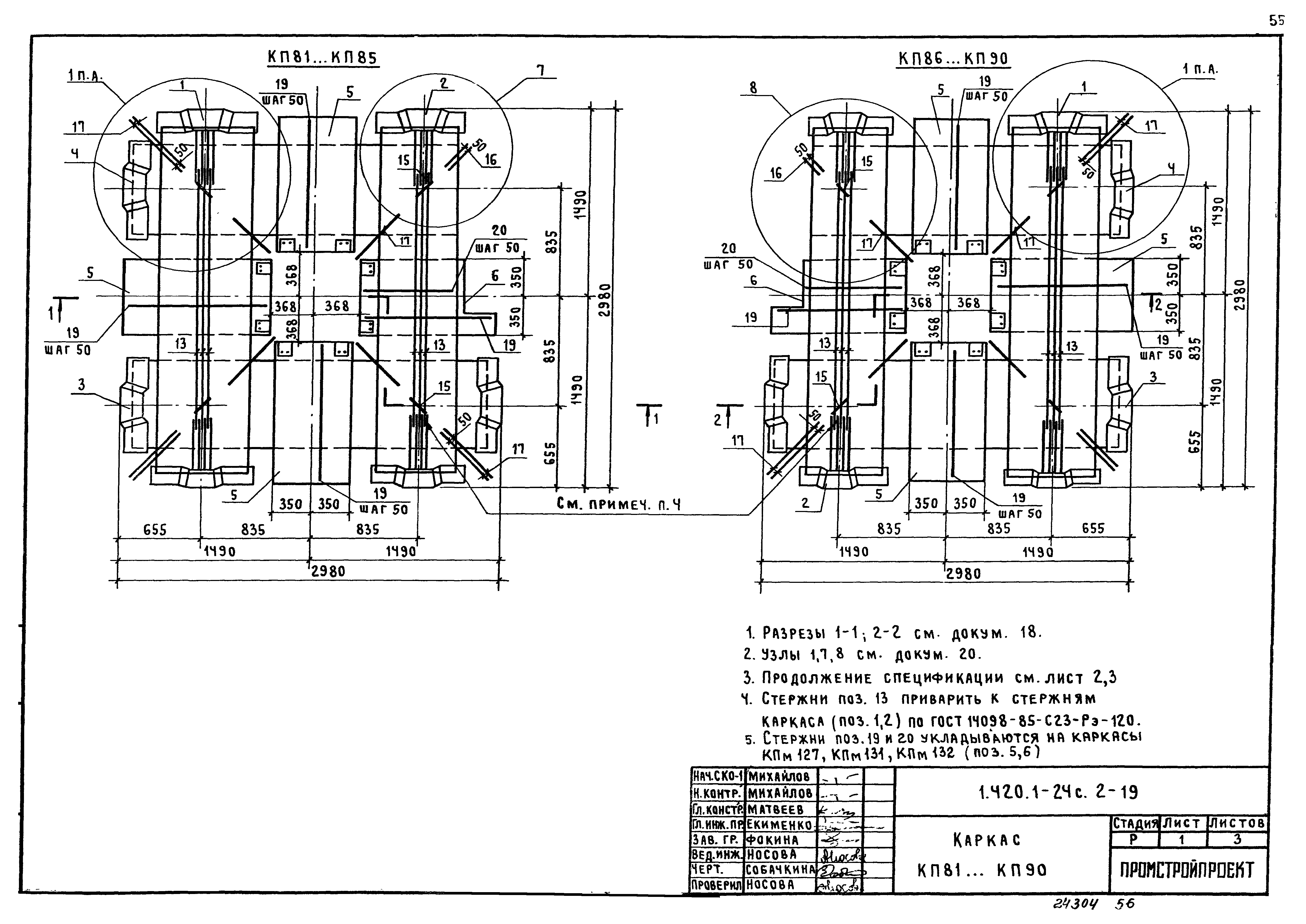
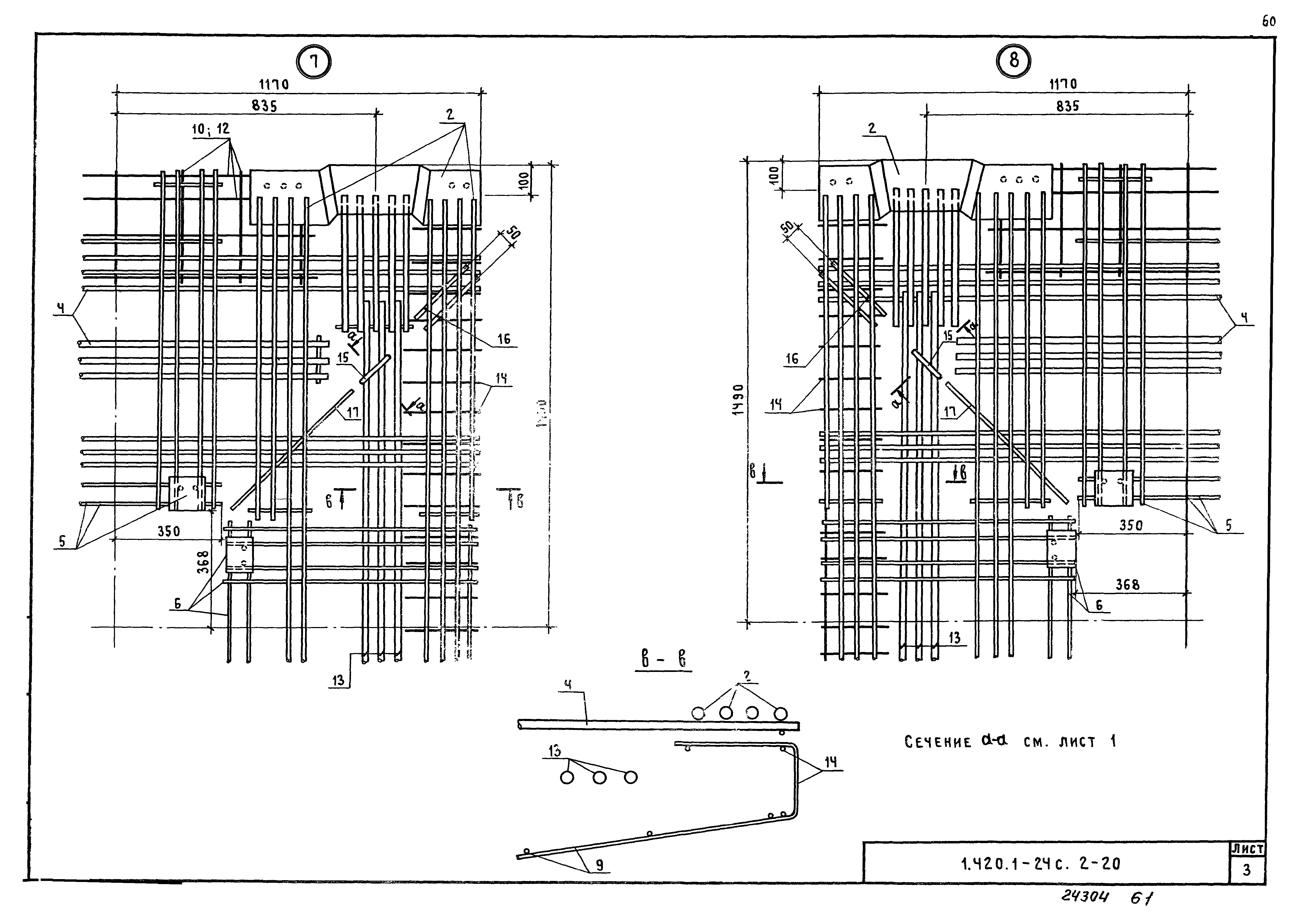
| Оглавление: | 1.420.1-24с.2-ТТ Технические требования 1.420.1-24с.2-1 Капитель КТ1-1с … КТ1-18с 1.420.1-24с.2-2 Капитель КТ1-1с … КТ1-18с-1; КТ1-1с-2 … КТ1-18с-2 1.420.1-24с.2-3 Капитель КТ1-1л-1с-3 … КТ1л-18с-3; КТ1п-1с-3 … КТ1п-18с-3 1.420.1-24с.2-4 Капитель. Узел I … VIII 1.420.1-24с.2-5 Межколонная плита МП1-1с … МП1-19с 1.420.1-24с.2-6 Межколонная плита МП1-1с-1 … МП1-19с-1 1.420.1-24с.2-7 Межколонная плита МП1-7с-2, МП1-17с-2, МП1-7с-3, МП1-17с-3 1.420.1-24с.2-8 Межколонная плита МП2-1с … МП2-19с 1.420.1-24с.2-9 Межколонная плита. Узел I … XI 1.420.1-24с.2-10 Пролетная плита ПП1-1 … ПП1-6 1.420.1-24с.2-11 Пролетная плита ПП1-2-1 … ПП1-4-1 1.420.1-24с.2-12 Каркас КП1 … КП13 1.420.1-24с.2-13 Каркас КП14 … КП18 1.420.1-24с.2-14 Каркас КП19 … КП31 1.420.1-24с.2-15 Каркас КП32 … КП36 1.420.1-24с.2-16 Каркас КП37 … КП49 1.420.1-24с.2-17 Каркас КП50 … КП54 1.420.1-24с.2-18 Каркас КП55 … КП80 1.420.1-24с.2-19 Каркас КП81 … КП90 1.420.1-24с.2-20 Узел 1 … 8 1.420.1-24с.2-21 Каркас КП91 … КП109 1.420.1-24с.2-22 Каркас КП110, КП111, Узел 9, 10 1.420.1-24с.2-23 Каркас КП112 … КП130, Узел 11 1.420.1-24с.2-24 Узел 12 … 15 1.420.1-24с.2-25 Каркас КП131 … КП136, Узел 16 … 20 |
| Разработан: | ЦНИИпромзданий НИИЖБ Узгипротяжпром Промстройпроект |
| Утверждён: | 30.11.1989 Главоргпроект Госстроя СССР (4/5-1470) |
| Издан: | ЦИТП Госстроя СССР (CITP, Gosstroy (USSR) 1990 г. ) |











































































