Скачать Серия 1.041.1-3 Выпуск 8. Плиты длиной 5160 мм, армированные напрягаемой арматурой из стали классов Ат-V, Ат-IVC и А-IIIB, из тяжелого и легкого бетонов. Рабочие чертежиДата актуализации: 01.01.2021
|
| Обозначение: | Серия 1.041.1-3 |
| Обозначение англ: | Series 1.041.1-3 |
| Статус: | не определен законодательством |
| Название рус.: | Выпуск 8. Плиты длиной 5160 мм, армированные напрягаемой арматурой из стали классов Ат-V, Ат-IVC и А-IIIB, из тяжелого и легкого бетонов. Рабочие чертежи |
| Дата добавления в базу: | 01.09.2013 |
| Дата актуализации: | 01.01.2021 |
| Дата введения: | 01.03.1991 |
| Дата окончания срока действия: | 30.06.2003 |
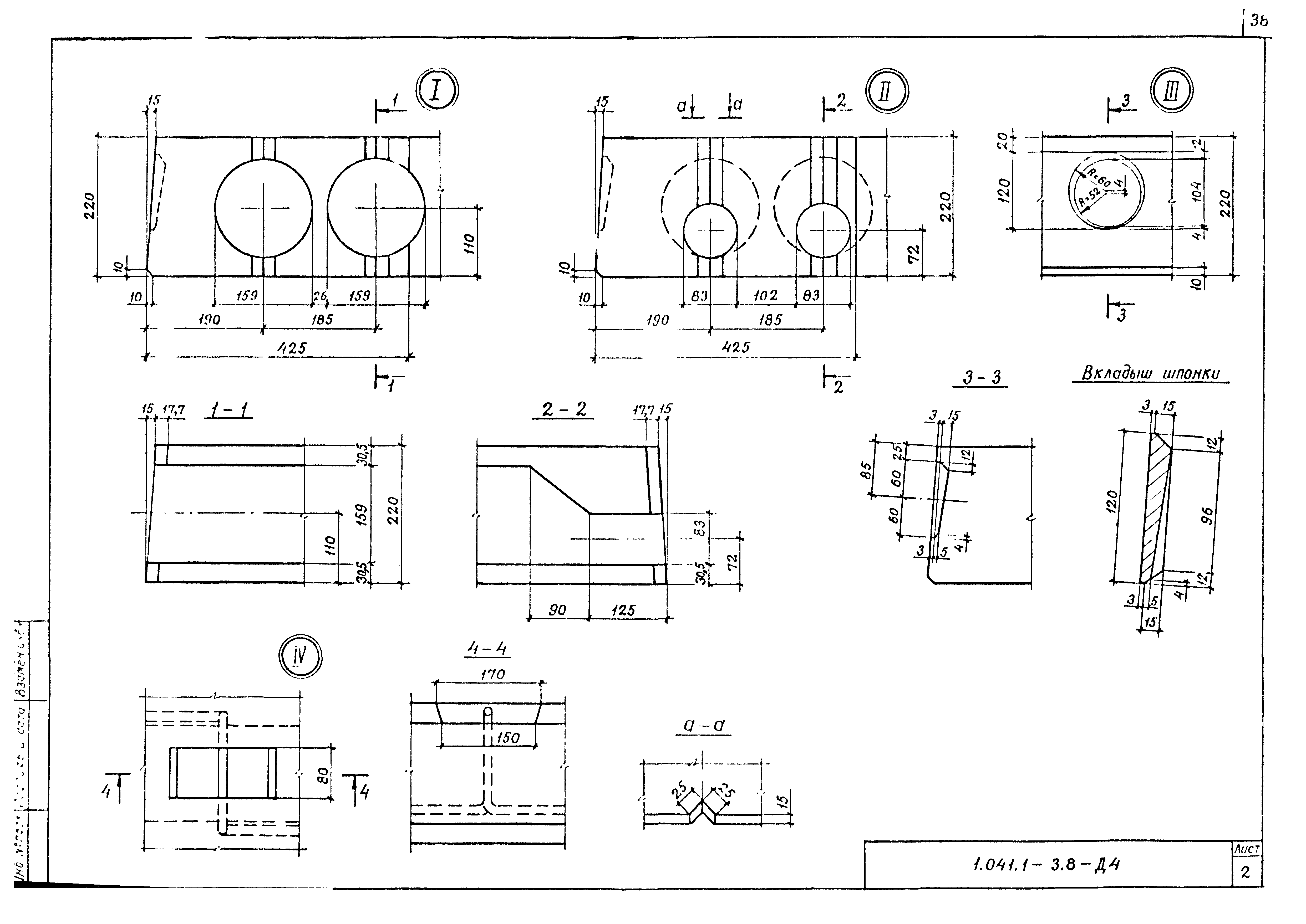
| Оглавление: | 1.041.1-3.8-ТО Техническое описание 1.041.1-3.8-НИ Номенклатура изделий 1.041.1-3.8-Д1 Плита рядовая ПК52.30 1.041.1-3.8-РС1 Ведомость расхода стали 1.041.1-3.8-Д2 Плита рядовая ПК56.15 1.041.1-3.8-РС2 Ведомость расхода стали 1.041.1-3.8-Д3 Плита пристенная ПК56.15 1.041.1-3.8-РС3 Ведомость расхода стали 1.041.1-3.8-Д4 Плита связевая ПК56.15 1.041.1-3.8-РС4 Ведомость расхода стали 1.041.1-3.8-Д5 Плита рядовая ПК56.12 1.041.1-3.8-РС5 Ведомость расхода стали 1.041.1-3.8-Д6 Плита пристенная ПК56.12 1.041.1-3.8-РС6 Ведомость расхода стали 1.041.1-3.8-Д7 Каркас КР12 1.041.1-3.8-Д8 Каркас КР13 1.041.1-3.8-Д9 Сетка С35 1.041.1-3.8-Д10 Сетка С36 1.041.1-3.8-Д11 Сетка С37 1.041.1-3.8-Д12 Сетка С38 1.041.1-3.8-Д13 Сетка С39 1.041.1-3.8-Д14 Сетка С40 |
| Разработан: | ЦНИИпромзданий |
| Утверждён: | 19.09.1990 Госстрой СССР (Государственный комитет Совета Министров СССР по делам строительства) (USSR Gosstroy 5/6-797) |
| Издан: | ЦИТП Госстроя СССР (CITP, Gosstroy (USSR) 1991 г. ) |
| Заменяет собой: |



































































