Скачать Серия 1.090.1-1 Выпуск 0-1. Указания по применению изделий. Рабочие чертежиДата актуализации: 01.01.2021
|
| Обозначение: | Серия 1.090.1-1 |
| Обозначение англ: | Series 1.090.1-1 |
| Статус: | не действует |
| Название рус.: | Выпуск 0-1. Указания по применению изделий. Рабочие чертежи |
| Дата добавления в базу: | 01.09.2013 |
| Дата актуализации: | 01.01.2021 |
| Дата введения: | 01.01.1984 |
| Дата окончания срока действия: | 01.05.1999 |
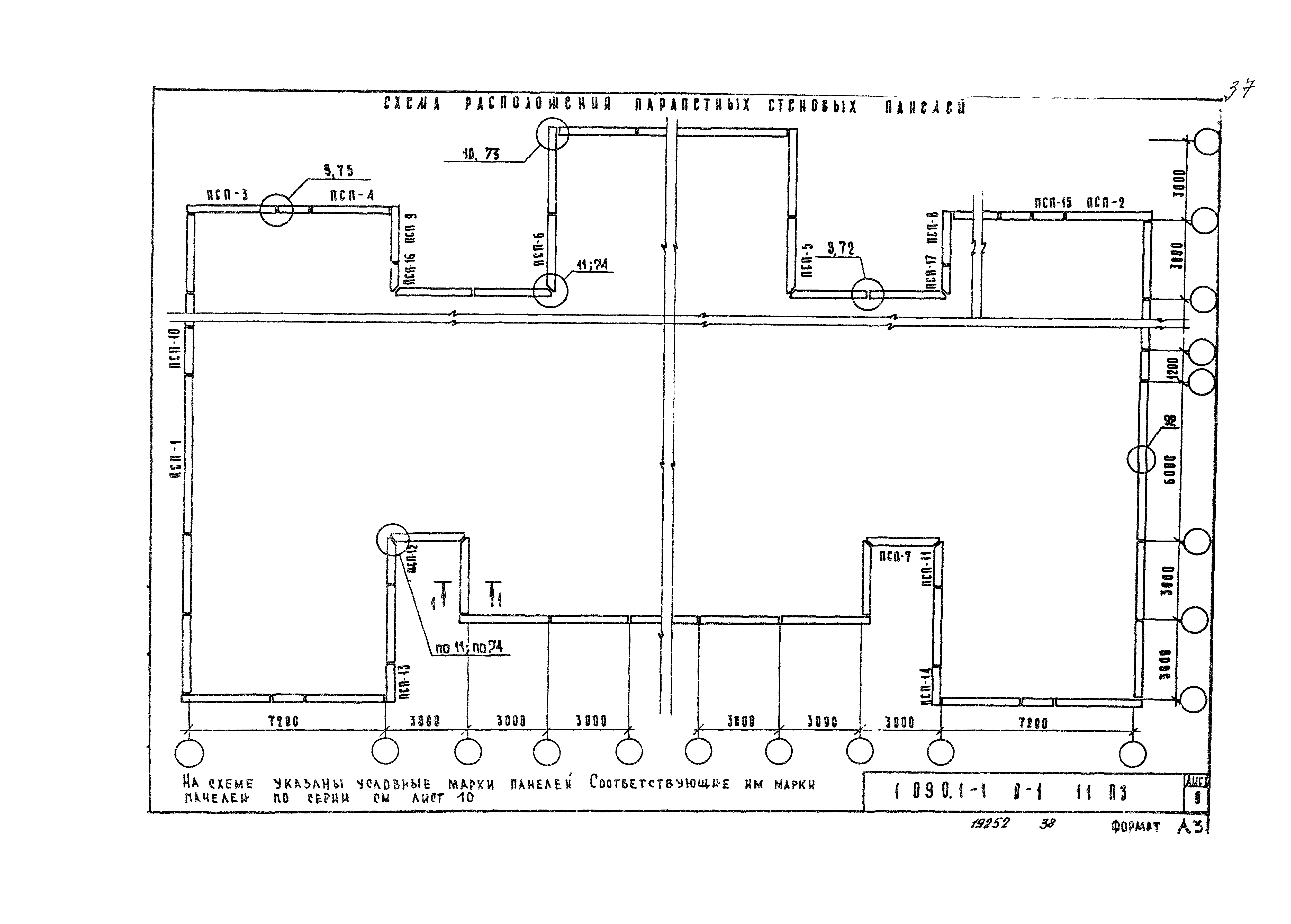
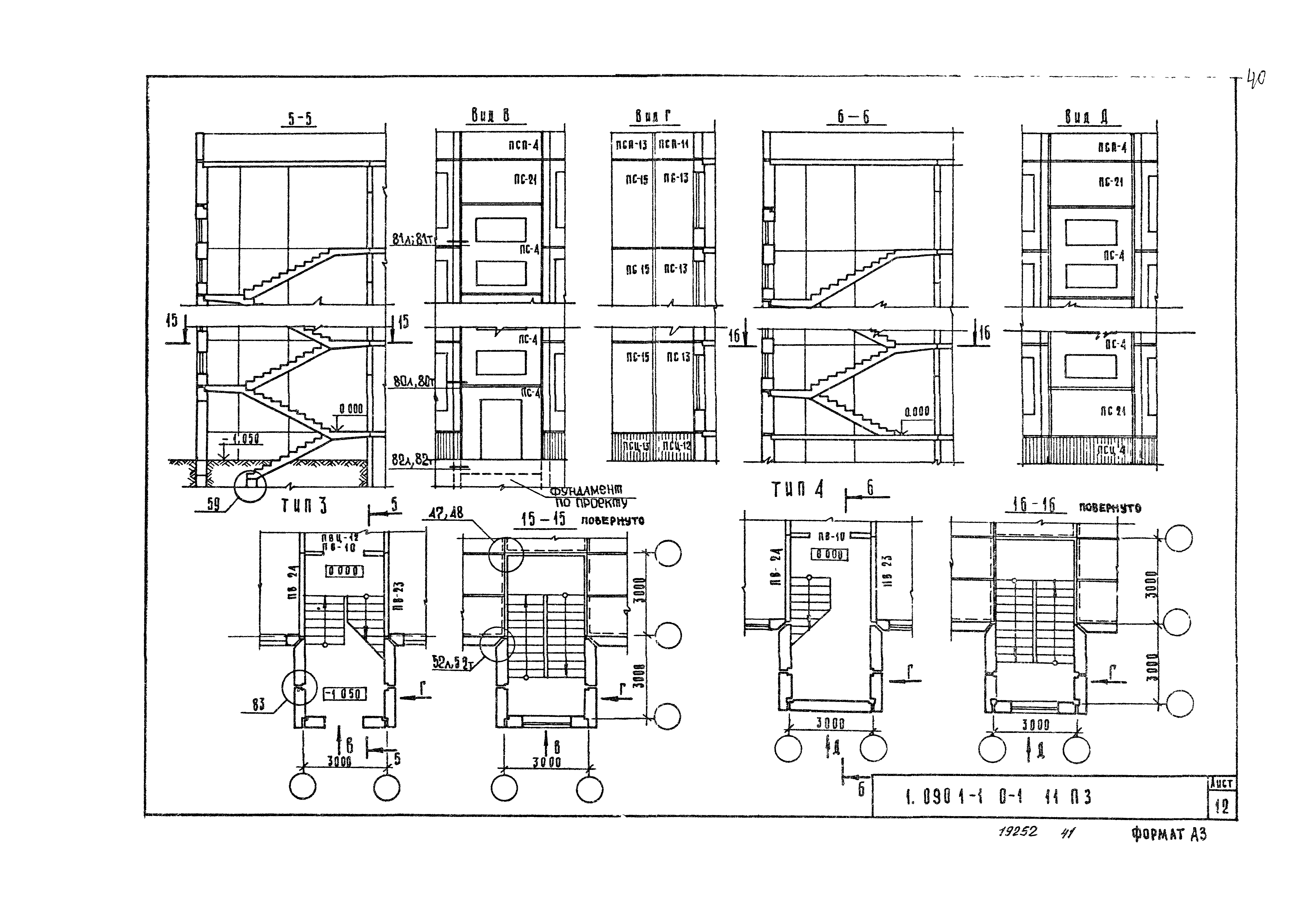
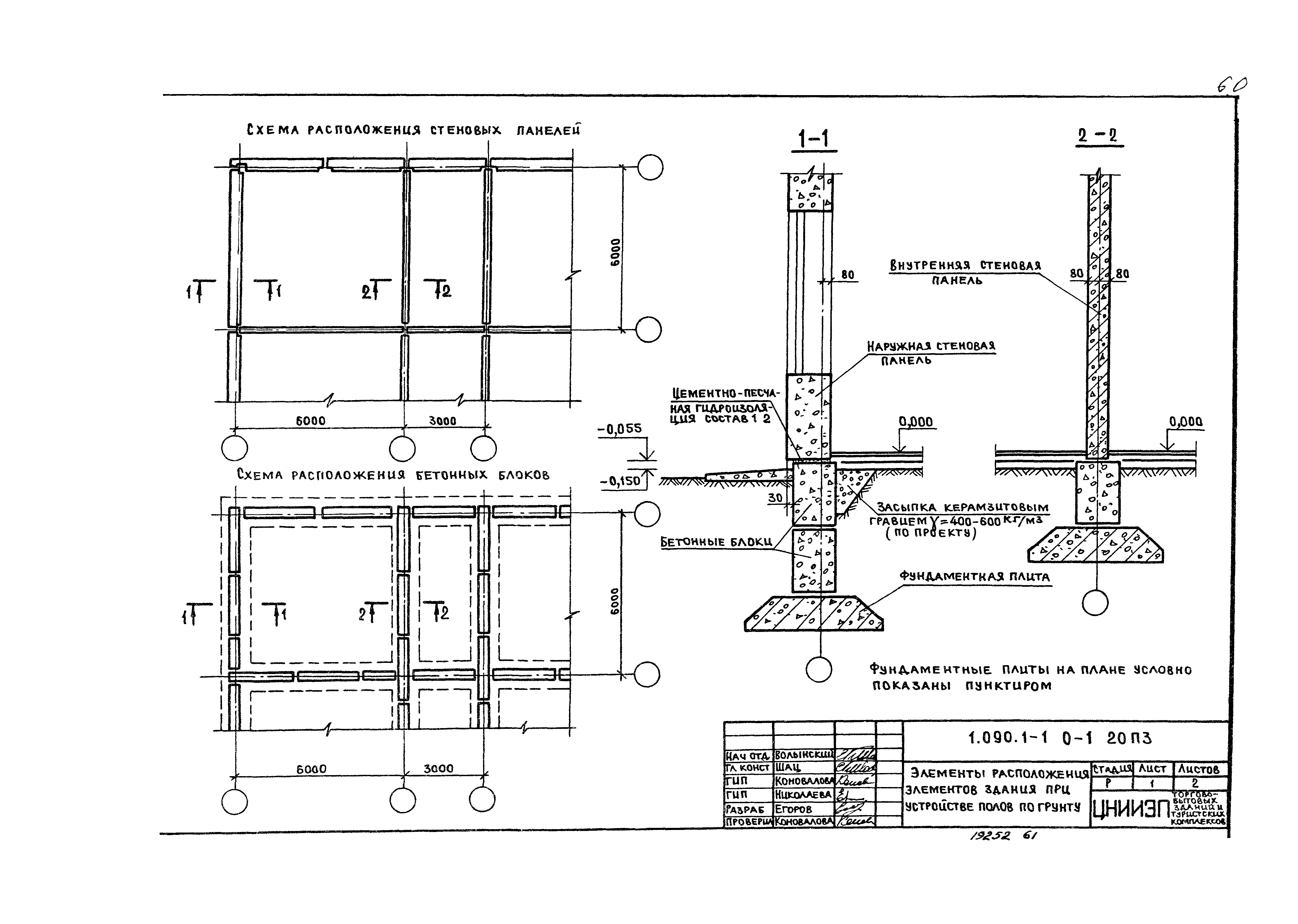
| Оглавление: | 1.090.1-1 0-1 01ПЗ Общая часть 1.090.1-1 0-1 02ПЗ Конструктивные решения 1.090.1-1 0-1 03ПЗ Номенклатура изделий серии 1.090.1-1 0-1 04ПЗ Расчет элементов зданий на вертикальную нагрузку 1.090.1-1 0-1 05ПЗ Графики несущей способности наружных и внутренних стен при расчете на вертикальные нагрузки 1.090.1-1 0-1 06ПЗ Расчет несущих систем крупнопанельных зданий на совместное действие горизонтальных и вертикальных нагрузок 1.090.1-1 0-1 07ПЗ Предельные длины грузового фронта горизонтальной нагрузки для диафрагм жесткости, составленных панелями внутренних стен 1.090.1-1 0-1 08ПЗ Предельные длины грузового фронта горизонтальной нагрузки для диафрагм жесткости, составленных панелями наружных стен 1.090.1-1 0-1 09ПЗ Предельные пролеты дисков перекрытия 1.090.1-1 0-1 10ПЗ Компоновка крупнопанельных общественных зданий 1.090.1-1 0-1 11ПЗ Примеры схем расположения панелей наружных и внутренних стен, перекрытий и лестничных клеток 1.090.1-1 0-1 12ПЗ Схемы расположения элементов лестничной клетки со схемой установки ограждения 1.090.1-1 0-1 13ПЗ Схемы расположения лестничных маршей и верхних лестничных площадок при ширине проступей 1210 и 1350мм 1.090.1-1 0-1 14ПЗ Схемы расположения проступей лестничных маршей и площадок лестниц 1.090.1-1 0-1 15ПЗ Развертки панелей вентблоков и сечения 1.090.1-1 0-1 16ПЗ Указания по способу выполнения электрических проводок 1.090.1-1 0-1 17ПЗ Принципы архитектурной разработки вариантов фасадов крупнопанельных общественных зданий 1.090.1-1 0-1 18ПЗ Указания по применению конструкций, возводимых в зимнее время 1.090.1-1 0-1 19ПЗ Пример доработки документации для выполнения изделия полной заводской готовности 1.090.1-1 0-1 20ПЗ Схемы расположения элементов здания при устройстве полов по грунту |
| Разработан: | ЦНИИпромзданий ЦНИИЭП торгово-бытовых зданий и туристских комплексов |
| Утверждён: | 30.08.1983 Госстрой СССР (Государственный комитет Совета Министров СССР по делам строительства) (USSR Gosstroy ВА-37) |
| Заменяет собой: |




























































