Скачать Серия 1.041.1-5 Выпуск 12.3-1. Плиты длиной 5650 и шириной 1490 мм с напрягаемой арматурой из стали классов А-IIIв, А-IV и Ат-V, связевые, из тяжелого бетона, метод натяжения - электротермический. Рабочие чертежиДата актуализации: 01.01.2021
|
| Обозначение: | Серия 1.041.1-5 |
| Обозначение англ: | Series 1.041.1-5 |
| Статус: | не определен законодательством |
| Название рус.: | Выпуск 12.3-1. Плиты длиной 5650 и шириной 1490 мм с напрягаемой арматурой из стали классов А-IIIв, А-IV и Ат-V, связевые, из тяжелого бетона, метод натяжения - электротермический. Рабочие чертежи |
| Дата добавления в базу: | 01.09.2013 |
| Дата актуализации: | 01.01.2021 |
| Дата введения: | 01.03.1994 |
| Дата окончания срока действия: | 30.06.2003 |
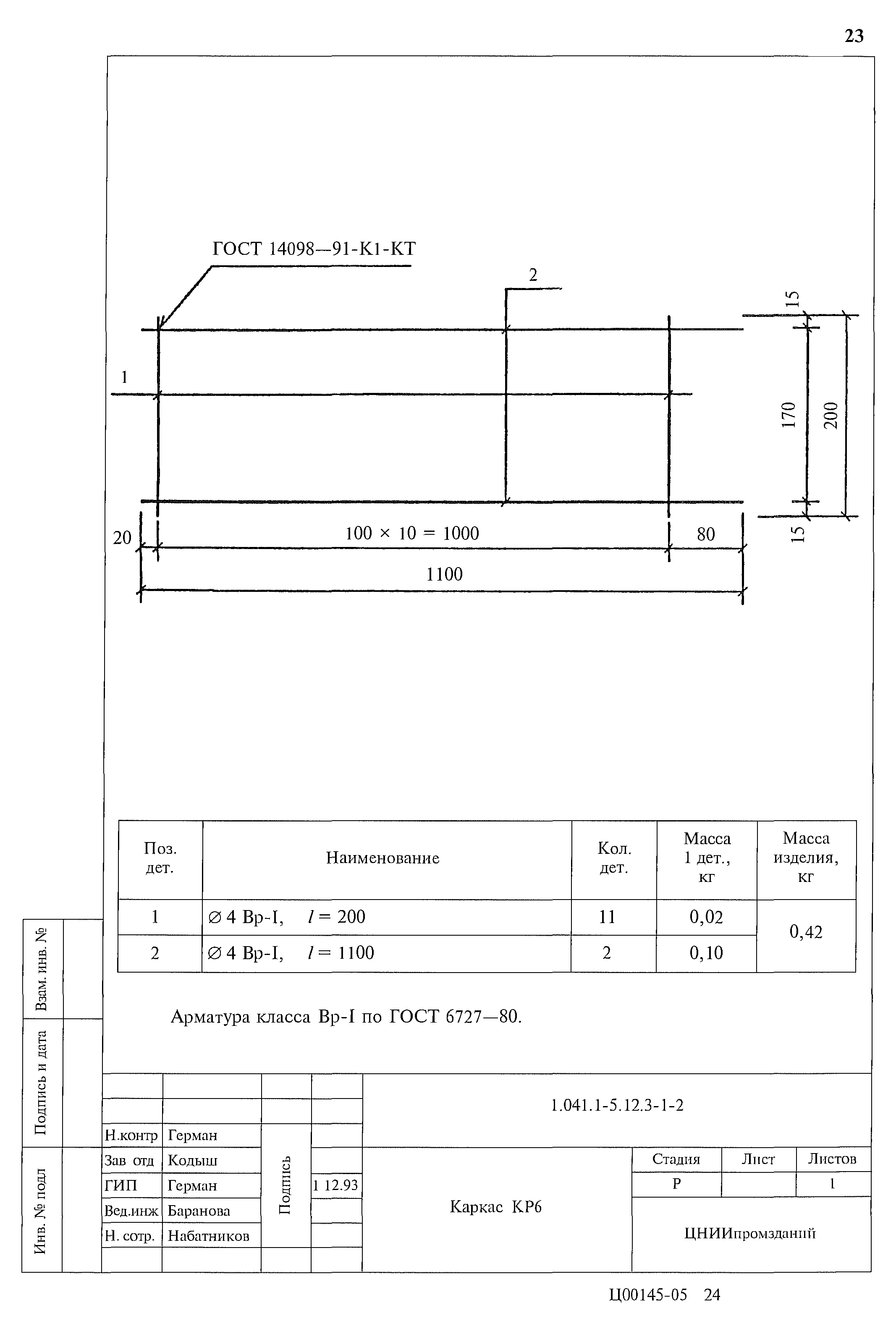
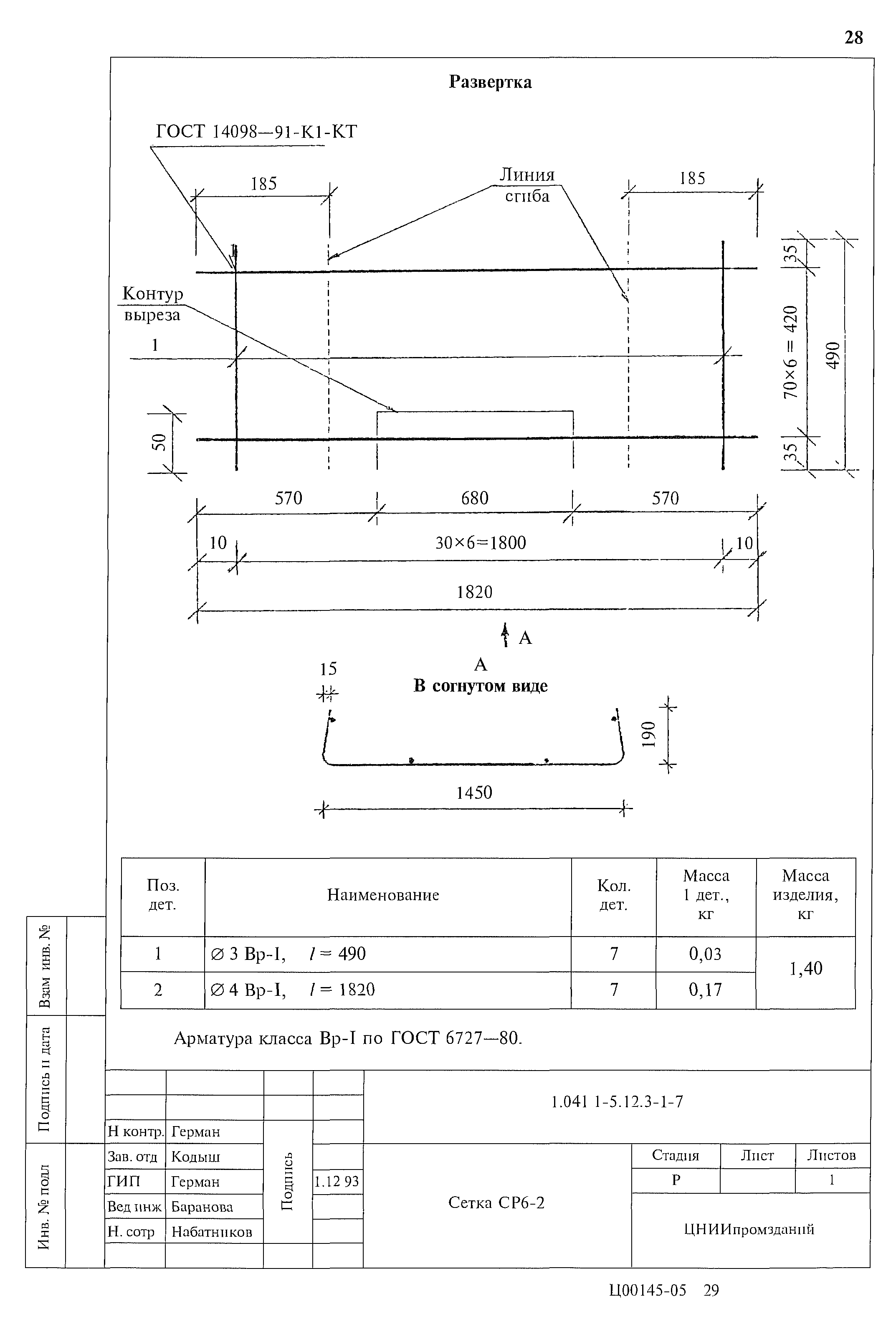
| Оглавление: | 1.041.1-5.12.3-1-ПЗ Пояснительная записка 1.041.1-5.12.3-1-ФЧ Плита 1ПК 56.15. Опалубочный чертеж 1.041.1-5.12.3-1-1 Плита 1ПК 56.15. Армирование 1.041.1-5.12.3-1-2 Каркас КР6 1.041.1-5.12.3-1-3 Каркас КР14 1.041.1-5.12.3-1-4 Каркас КС3 1.041.1-5.12.3-1-5 Каркас КС8 1.041.1-5.12.3-1-6 Сетка СР6-1 1.041.1-5.12.3-1-7 Сетка СР6-2 1.041.1-5.12.3-1-8 Сетка СС3 1.041.1-5.12.3-1-9 Сетка СС4 1.041.1-5.12.3-1-10 Сетка СВ45 1.041.1-5.12.3-1-11 Петля ПС2 1.041.1-5.12.3-1-РС Ведомость расхода стали, кг |
| Разработан: | ЦНИИпромзданий МГСУ Минвуза РФ НИИЖБ ЦНИИпроект Госстроя России |
| Утверждён: | 15.12.1993 Главпроект Госстроя России (9-3-2/284) |




































