Скачать Серия 3.016-2 Выпуск 3. Строительные изделияДата актуализации: 01.01.2021
|
| Обозначение: | Серия 3.016-2 |
| Обозначение англ: | Series 3.016-2 |
| Статус: | не действует |
| Название рус.: | Выпуск 3. Строительные изделия |
| Дата добавления в базу: | 01.09.2013 |
| Дата актуализации: | 01.01.2021 |
| Дата введения: | 01.07.1973 |
| Дата окончания срока действия: | 01.12.1991 |
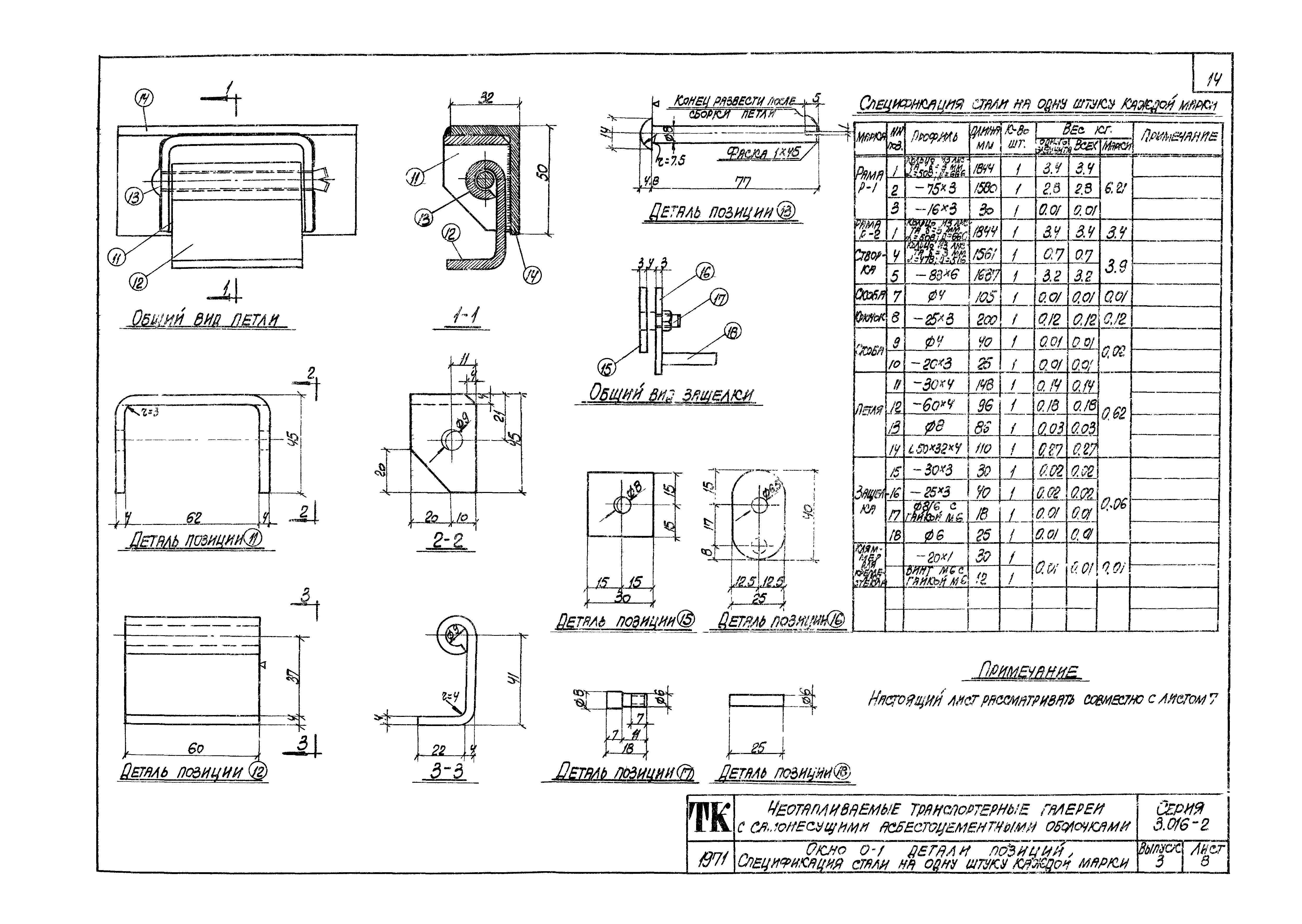
| Оглавление: | Пояснительная записка Асбестоцементные оболочки СЩ-1, СЩ-1-0. Спецификация изделий на одну марку Асбестоцементные оболочки СЩ-2, СЩ-2-0. Спецификация изделий на одну марку Асбестоцементные оболочки СЩ-3, СЩ-3-0. Спецификация изделий на одну марку Асбестоцементные оболочки СЩ-4, СЩ-4-0. Спецификация изделий на одну марку Асбестоцементные элементы оболочек Э-1, Э-2, К-1 - К-3. Спецификация асбестоцементных элементов оболочек Асбестоцементные элементы оболочек Э-3 - Э-8 Окно 0-1. Детали позиций. Спецификация на одну марку Окно 0-1. Детали позиций. Спецификация стали на одну штуку каждой марки Соединительные элементы. Спецификация стали на одну марку Бортовой элемент БЭ1 |
| Разработан: | Харьковский Промстройниипроект Донецкий Промстройниипроект |
| Утверждён: | 29.05.1973 Госстрой СССР (Государственный комитет Совета Министров СССР по делам строительства) (USSR Gosstroy 81) |















