Скачать Серия 5.407-145 Выпуск 1. Указания по применению. Рабочие чертежиДата актуализации: 01.01.2021
|
| Обозначение: | Серия 5.407-145 |
| Обозначение англ: | Series 5.407-145 |
| Статус: | не определен законодательством |
| Название рус.: | Выпуск 1. Указания по применению. Рабочие чертежи |
| Дата добавления в базу: | 01.09.2013 |
| Дата актуализации: | 01.01.2021 |
| Дата введения: | 30.12.1991 |
| Дата окончания срока действия: | 30.06.2003 |
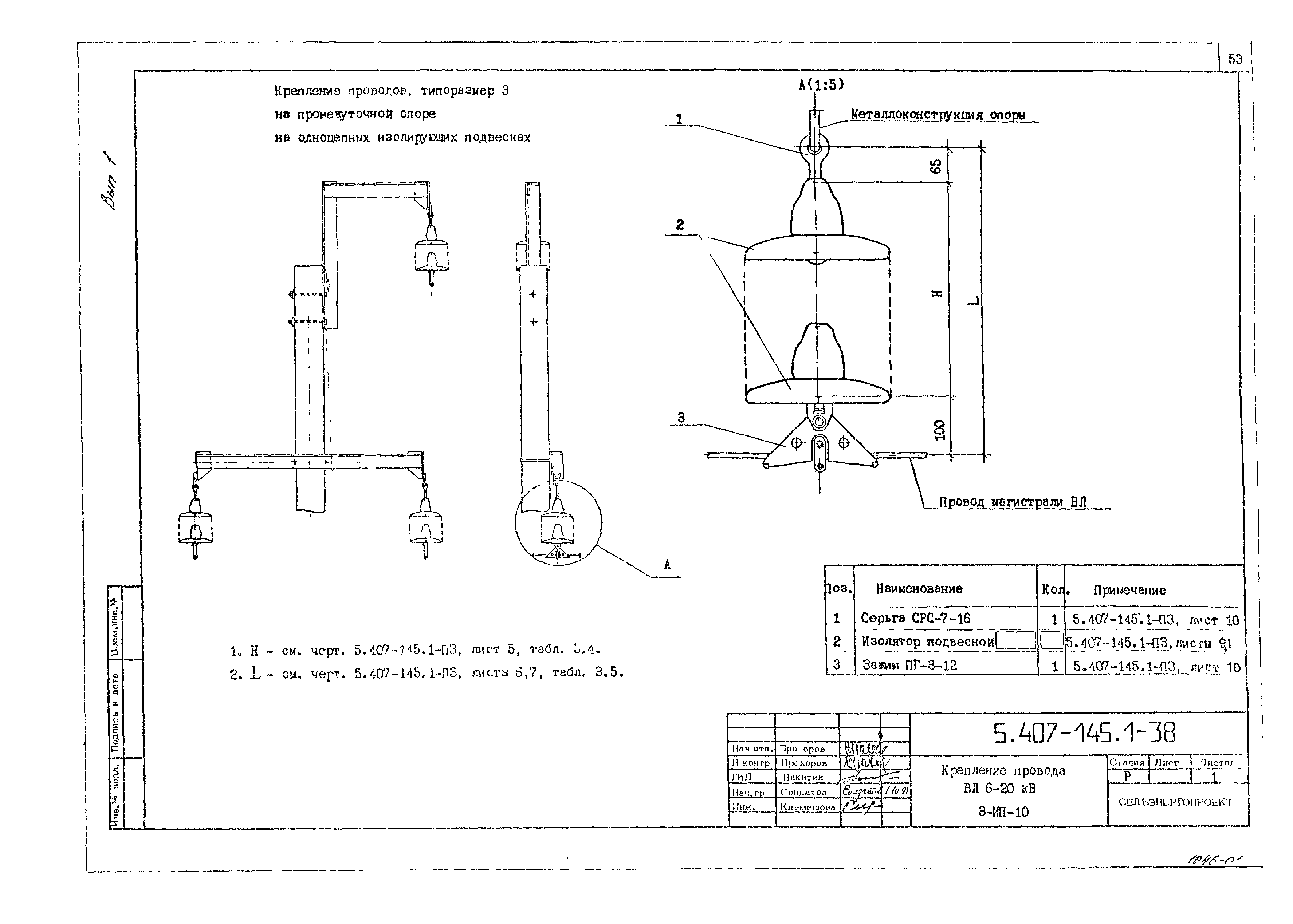
| Оглавление: | 5.407-145.1-00 Содержание 5.407-145.1-ПЗ Пояснительная записка 5.407-145.1-1 Крепление провода ВЛ 0,38 кВ П-1 5.407-145.1-2 Крепление провода ВЛ 0,38 кВ 1-ПД-1 5.407-145.1-3 Крепление провода ВЛ 0,38 кВ 2-ПД-1 5.407-145.1-4 Крепление провода ВЛ 0,38 кВ 1-УП-1 5.407-145.1-5 Крепление провода ВЛ 0,38 кВ 2-УП-1 5.407-145.1-6 Крепление провода ВЛ 0,38 кВ 1-УПД-1 5.407-145.1-7 Крепление провода ВЛ 0,38 кВ 2-УПД-1 5.407-145.1-8 Крепление провода ВЛ 0,38 кВ 1-К-1 5.407-145.1-9 Крепление провода ВЛ 0,38 кВ 2-КД-1 5.407-145.1-10 Крепление провода ВЛ 0,38 кВ 1-КД-1 5.407-145.1-11 Крепление провода ВЛ 0,38 кВ 2-КД-1 5.407-145.1-12 Крепление провода ВЛ 0,38 кВ А-1 5.407-145.1-13 Крепление провода ВЛ 0,38 кВ 1-УА-1 5.407-145.1-14 Крепление провода ВЛ 0,38 кВ 2-УА-1 5.407-145.1-15 Крепление провода ВЛ 0,38 кВ 1-АД-1 5.407-145.1-16 Крепление провода ВЛ 0,38 кВ 2-АД-1 5.407-145.1-17 Крепление провода ВЛ 0,38 кВ 3-АД-1 5.407-145.1-18 Крепление провода ВЛ 0,38 кВ 1-УАД-1 5.407-145.1-19 Крепление провода ВЛ 0,38 кВ 2-УАД-1 5.407-145.1-20 Крепление провода ВЛ 0,38 кВ 3-УАД-1 5.407-145.1-21 Крепление провода ВЛ 0,38 кВ 4-УАД-1 5.407-145.1-22 Крепление провода ВЛ 0,38 кВ 5-УАД-1 5.407-145.1-23 Крепление провода ВЛ 0,38 кВ 6-УАД-1 5.407-145.1-24 Крепление провода ВЛ 0,38 кВ 1-0-1 5.407-145.1-25 Крепление провода ВЛ 0,38 кВ 2-0-1 5.407-145.1-26 Крепление провода ВЛ 0,38 кВ Г-1 5.407-145.1-27 Крепление провода ВЛ 6-20 кВ 1-П-10 5.407-145.1-28 Крепление провода ВЛ 6-20 кВ 2-П-10 5.407-145.1-29 Крепление провода ВЛ 6-20 кВ 3-П-10 5.407-145.1-30 Крепление провода ВЛ 6-20 кВ ПД-10 5.407-145.1-31 Крепление провода ВЛ 6-20 кВ УП-10 5.407-145.1-32 Крепление провода ВЛ 6-20 кВ 1-УПД-10 5.407-145.1-33 Крепление провода ВЛ 6-20 кВ 2-УПД-10 5.407-145.1-34 Крепление провода ВЛ 6-20 кВ 3-УПД-10 5.407-145.1-35 Крепление провода ВЛ 6-20 кВ Г-10 5.407-145.1-36 Крепление провода ВЛ 6-20 кВ 1-ИП-10 5.407-145.1-37 Крепление провода ВЛ 6-20 кВ 2-ИП-10 5.407-145.1-38 Крепление провода ВЛ 6-20 кВ 3-ИП-10 5.407-145.1-39 Крепление провода ВЛ 6-20 кВ 4-ИП-10 5.407-145.1-40 Крепление провода ВЛ 6-20 кВ 1-ИУП-10 5.407-145.1-41 Крепление провода ВЛ 6-20 кВ 2-ИУП-10 5.407-145.1-42 Крепление провода ВЛ 6-20 кВ 1-ИА-10 5.407-145.1-43 Крепление провода ВЛ 6-20 кВ 2-ИА-10 5.407-145.1-44 Крепление провода ВЛ 6-20 кВ 3-ИА-10 5.407-145.1-45 Крепление провода ВЛ 6-20 кВ 4-ИА-10 5.407-145.1-46 Крепление провода ВЛ 6-20 кВ 5-ИА-10 5.407-145.1-47 Крепление провода ВЛ 6-20 кВ 6-ИА-10 5.407-145.1-48 Крепление провода ВЛ 6-20 кВ 7-ИА-10 5.407-145.1-49 Крепление провода ВЛ 6-20 кВ 8-ИА-10 5.407-145.1-50 Крепление провода ВЛ 6-20 кВ 9-ИА-10 5.407-145.1-51 Крепление провода ВЛ 6-20 кВ 10-ИА-10 5.407-145.1-52 Крепление провода ВЛ 6-20 кВ 1-ИУА-10 5.407-145.1-53 Крепление провода ВЛ 6-20 кВ 2-ИУА-10 5.407-145.1-54 Крепление провода ВЛ 6-20 кВ 3-ИУА-10 5.407-145.1-55 Крепление провода ВЛ 6-20 кВ 4-ИУА-10 5.407-145.1-56 Крепление провода ВЛ 6-20 кВ 5-ИУА-10 5.407-145.1-57 Крепление провода ВЛ 6-20 кВ 6-ИУА-10 5.407-145.1-58 Крепление провода ВЛ 6-20 кВ 7-ИУА-10 5.407-145.1-59 Крепление провода ВЛ 6-20 кВ 8-ИУА-10 5.407-145.1-60 Крепление провода ВЛ 6-20 кВ 9-ИУА-10 5.407-145.1-61 Крепление провода ВЛ 6-20 кВ 10-ИУА-10 5.407-145.1-62 Крепление провода ВЛ 6-20 кВ 1-ИАД-10 5.407-145.1-63 Крепление провода ВЛ 6-20 кВ 2-ИАД-10 5.407-145.1-64 Крепление провода ВЛ 6-20 кВ 3-ИАД-10 5.407-145.1-66 Крепление провода ВЛ 6-20 кВ 4-ИАД-10 |
| Разработан: | Сельэнергопроект Минэнерго СССР |
| Утверждён: | 23.10.1991 Минэнерго СССР (USSR Minenergo ) |




















































































