Скачать Серия 3.407.1-148 Выпуск 1. Конструкции фундаментов под трансформаторы и анкерных устройств. Рабочие чертежиДата актуализации: 01.01.2021
|
| Обозначение: | Серия 3.407.1-148 |
| Обозначение англ: | Series 3.407.1-148 |
| Статус: | действует |
| Название рус.: | Выпуск 1. Конструкции фундаментов под трансформаторы и анкерных устройств. Рабочие чертежи |
| Дата добавления в базу: | 01.09.2013 |
| Дата актуализации: | 01.01.2021 |
| Дата введения: | 22.01.1988 |
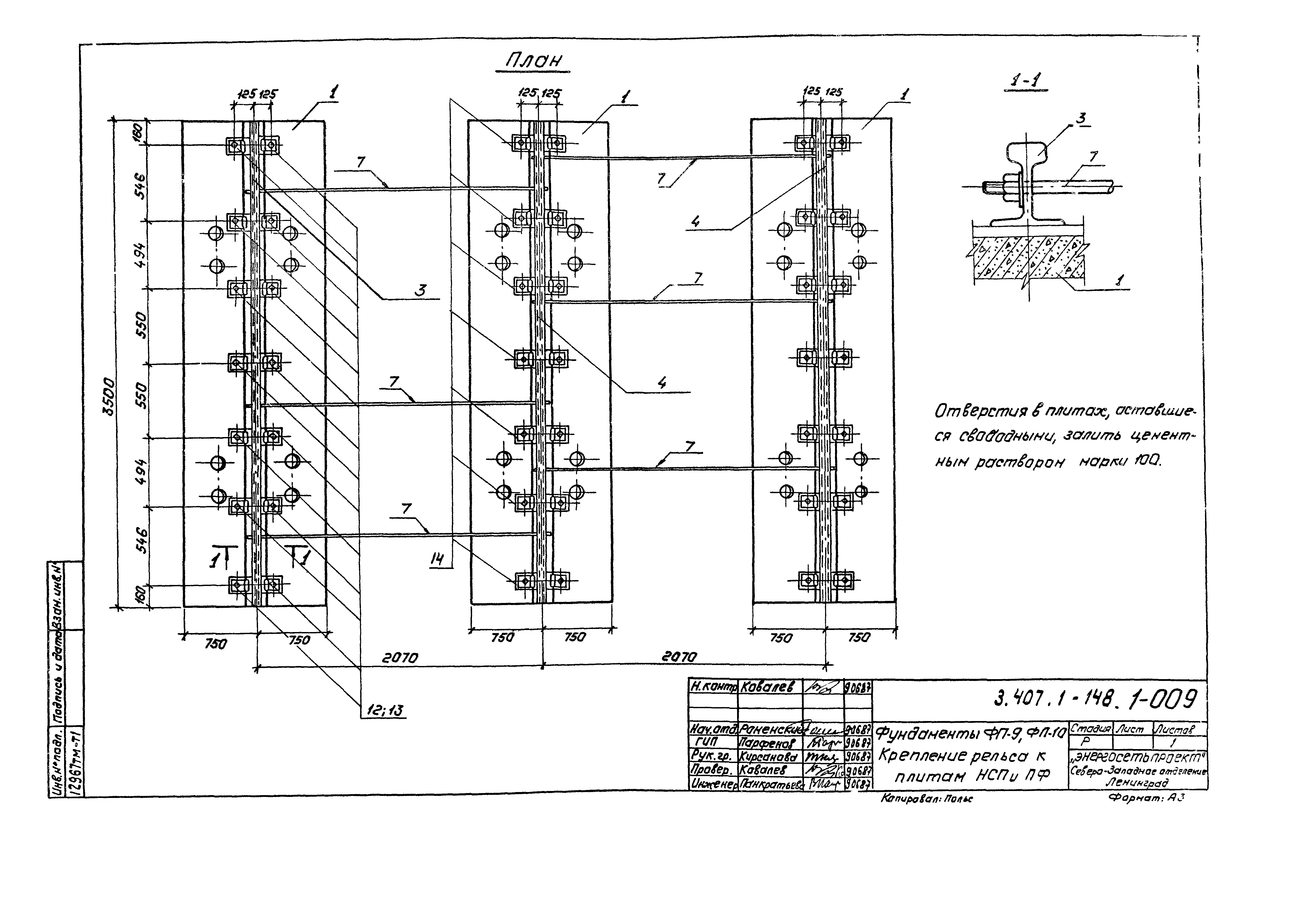
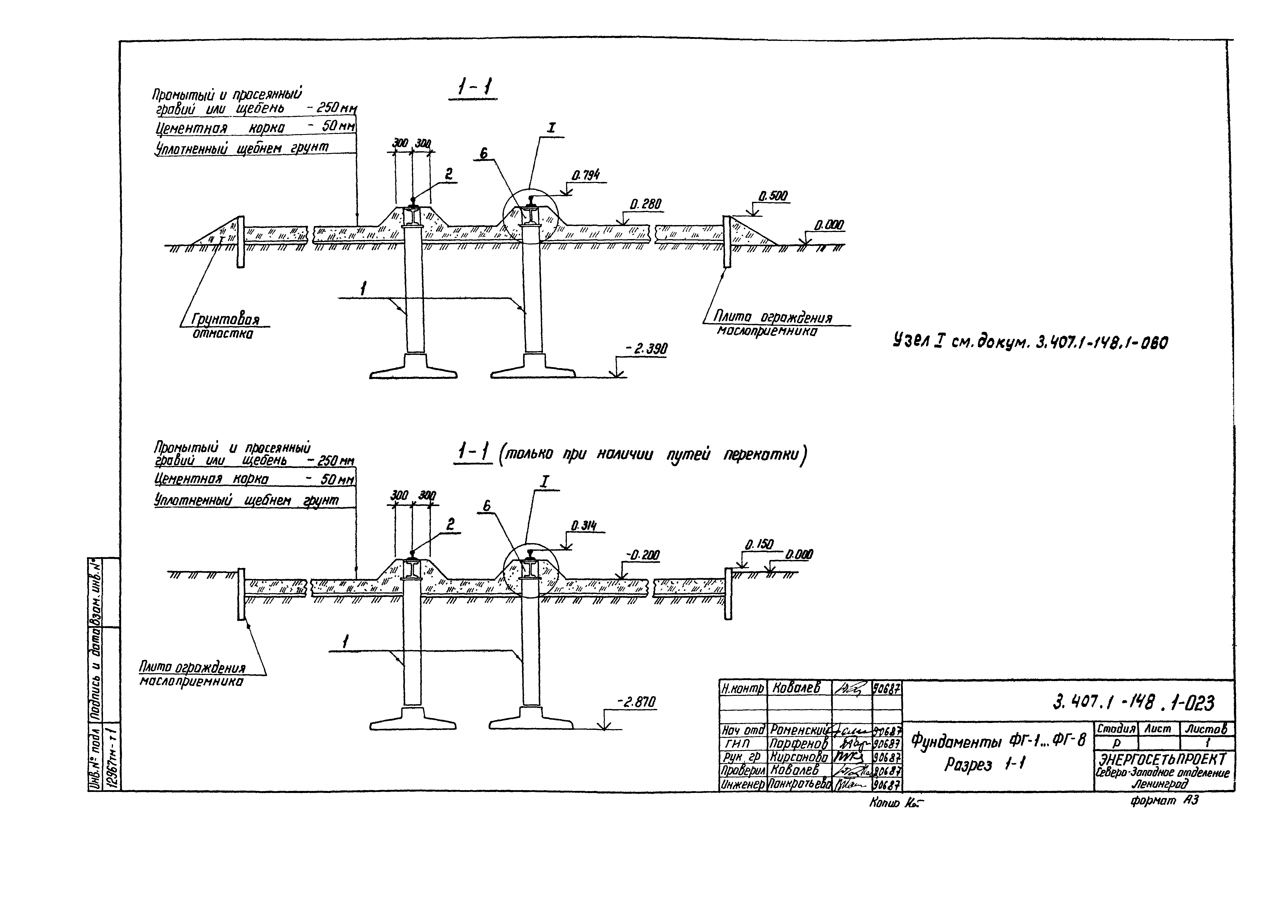
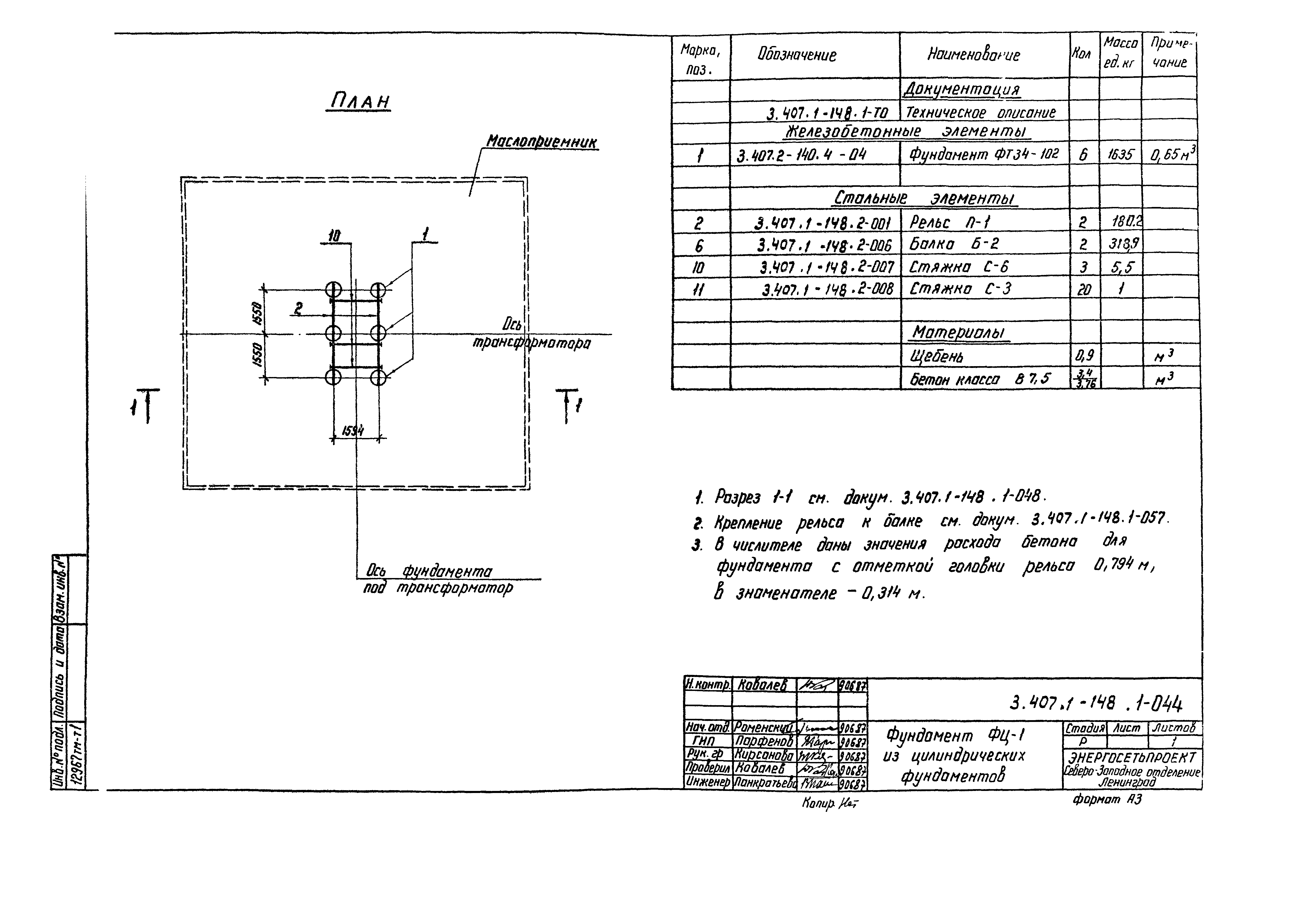
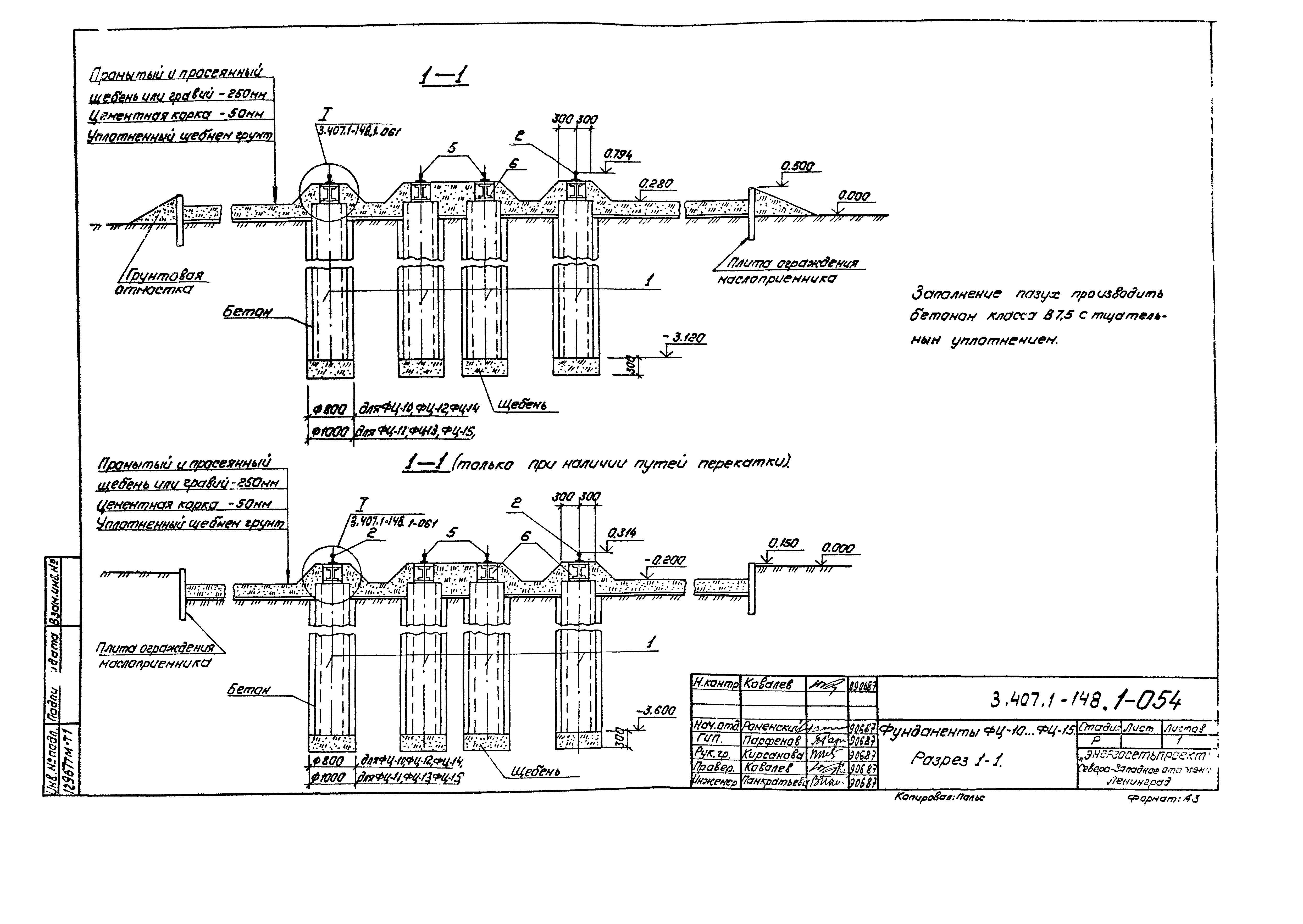
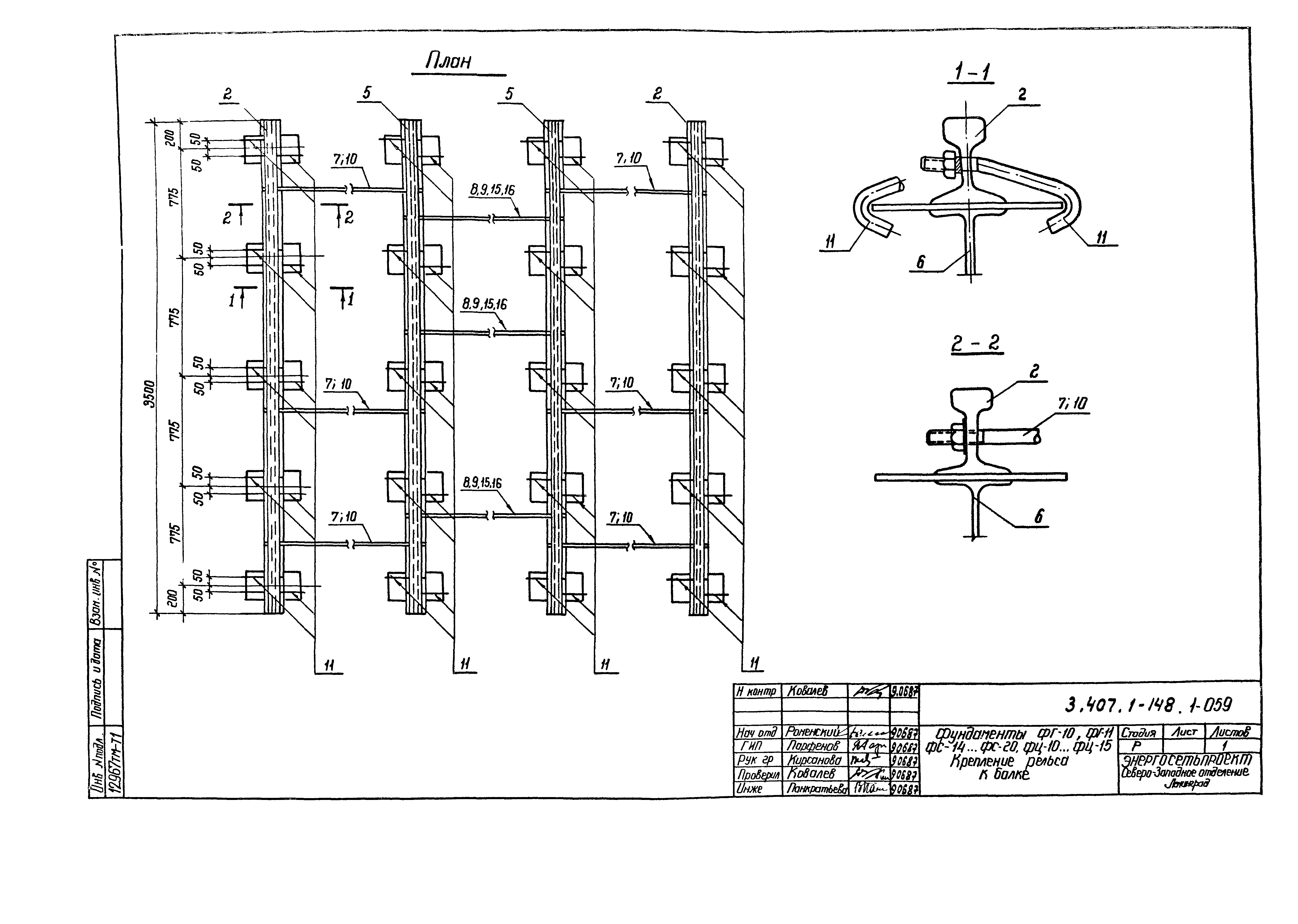
| Оглавление: | 3.407.1-148-000л 1.2 Содержание 3.407.1-148 ТО Техническое описание 3.407.1-148.1-001 Фундамент ФП-1 из плит 3.407.1-148.1-002 Фундаменты ФП-2,ФП-3 из плит 3.407.1-148.1-003 Фундаменты ФП-4...ФП-7 из плит 3.407.1-148.1-004 Фундаменты ФП-8 из плит 3.407.1-148.1-005 Фундаменты ФП1...ФП-8. Разрез 1-1 3.407.1-148.1-006 Фундаменты ФП1...ФП-8. Крепление рельса к плитам НСП и ПФ 3.407.1-148.1-007 Фундаменты ФП-9,ФП-10 из плит 3.407.1-148.1-008 Фундаменты ФП-9,ФП-10. Разрез 1-1 3.407.1-148.1-009 Фундаменты ФП-9,ФП-10. Крепление рельса к плитам НСП и ПФ 3.407.1-148.1-010 Фундамент ФП-11 из плит 3.407.1-148.1-011 Фундаменты ФП-12,ФП-13 из плит 3.407.1-148.1-012 Фундаменты ФП-14,ФП-15 из плит 3.407.1-148.1-013 Фундаменты ФП-11...ФП-15. Разрез 1-1 3.407.1-148.1-014 Фундаменты ФП-11...ФП-15. Крепление рельса к плитам НСП и ПФ 3.407.1-148.1-015 Фундамент ФП-16 из плит 3.407.1-148.1-016 Фундаменты ФП-16. Разрез 1-1 3.407.1-148.1-017 Фундаменты ФП-1…ФП-15. Узел 1 3.407.1-148.1-018 Фундаменты ФГ-1…ФГ-12. Узел 1 3.407.1-148.1-019 Фундаменты ФГ-1,ФГ-2 из подножников 3.407.1-148.1-020 Фундаменты ФГ-3,ФГ-4 из подножников 3.407.1-148.1-021 Фундаменты ФГ-5,ФГ-6 из подножников 3.407.1-148.1-022 Фундаменты ФГ-7,ФГ-8 из подножников 3.407.1-148.1-023 Фундаменты ФГ-1...ФГ-8. Разрез 1-1 3.407.1-148.1-024 Фундаменты ФГ-9 из подножников 3.407.1-148.1-025 Фундаменты ФГ-9. Разрез 1-1 3.407.1-148.1-026 Фундаменты ФГ-10 из подножников 3.407.1-148.1-027 Фундаменты ФГ-11 из подножников 3.407.1-148.1-028 Фундаменты ФГ-10,ФГ-11. Разрез 1-1 3.407.1-148.1-029 Фундаменты ФГ-12 из подножников 3.407.1-148.1-030 Фундаменты ФГ-12. Разрез 1-1 3.407.1-148.1-031 Фундаменты ФС-1 из свай 3.407.1-148.1-032 Фундаменты ФС-2…ФС-4 из свай 3.407.1-148.1-033 Фундаменты ФС-5…ФС-7 из свай 3.407.1-148.1-034 Фундаменты ФС-8…ФС-10 из свай 3.407.1-148.1-035 Фундаменты ФС-1…ФС-10. Разрез 1-1 3.407.1-148.1-036 Фундаменты ФС-11…ФС-13 из свай 3.407.1-148.1-037 Фундаменты ФС-11…ФС-13. Разрез 1-1 3.407.1-148.1-038 Фундаменты ФС-14 из свай 3.407.1-148.1-039 Фундаменты ФС-15…ФС-17 из свай 3.407.1-148.1-040 Фундаменты ФС-18…ФС-20 из свай 3.407.1-148.1-041 Фундаменты ФС-14…ФС-20. Разрез 1-1 3.407.1-148.1-042 Фундаменты ФС-21…ФС-23 из свай 3.407.1-148.1-043 Фундаменты ФС-21…ФС-23. Разрез 1-1 3.407.1-148.1-044 Фундаменты ФЦ-1 из цилиндрических фундаментов 3.407.1-148.1-045 Фундаменты ФЦ-2,ФЦ-3 из цилиндрических фундаментов 3.407.1-148.1-046 Фундаменты ФЦ-4,ФЦ-5 из цилиндрических фундаментов 3.407.1-148.1-047 Фундаменты ФЦ-6,ФЦ-7 из цилиндрических фундаментов 3.407.1-148.1-048 Фундаменты ФЦ-1...ФЦ-7. Разрез 1-1 3.407.1-148.1-049 Фундаменты ФЦ-8,ФЦ-9 из цилиндрических фундаментов 3.407.1-148.1-050 Фундаменты ФЦ-8,ФЦ-9. Разрез 1-1 3.407.1-148.1-051 Фундаменты ФЦ-10,ФЦ-11 из цилиндрических фундаментов 3.407.1-148.1-052 Фундаменты ФЦ-12,ФЦ-13 из цилиндрических фундаментов 3.407.1-148.1-053 Фундаменты ФЦ-14,ФЦ-15 из цилиндрических фундаментов 3.407.1-148.1-054 Фундаменты ФЦ-10...ФЦ-15. Разрез 1-1 3.407.1-148.1-055 Фундаменты ФЦ-16,ФЦ-17 из цилиндрических фундаментов 3.407.1-148.1-056 Фундаменты ФЦ-16,ФЦ-17. Разрез 1-1 3.407.1-148.1-057 Фундаменты ФГ-1...ФГ-7, ФС-1…ФС-10, ФЦ-1…ФЦ-7. Крепление рельса к балке 3.407.1-148.1-058 Фундаменты ФГ-8, ФС-11-ФС-13, ФЦ-8,ФЦ-9,ФГ-9. Крепление рельса к балке 3.407.1-148.1-059 Фундаменты ФГ-10, ФГ-11,ФС-14...ФС-20,ФЦ-10...ФЦ-15. Крепление рельса к балке 3.407.1-148.1-060 Фундаменты ФС1…ФС-23. Узел 1 3.407.1-148.1-061 Фундаменты ФЦ-1…ФЦ-17. Узел 1 3.407.1-148.1-062 Анкерные устройства А-1…А-3 3.407.1-148.1-063 Анкерные устройства А-4…А-6 3.407.1-148.1-064 Анкерные устройства А-7…А-9 3.407.1-148.1-065 Анкерное устройство А-10 3.407.1-148.1-066 Анкерные устройства А-11,А-12 3.407.1-148.1-067 Анкерные устройства А-13,А-14 3.407.1-148.1-068 Анкерные устройства А-15,А-16 3.407.1-148.1-069 Узел установки хомута для крепления полиспаста на цилиндрическом фундаменте 3.407.1-148.1-070 Узел установки хомута для крепления полиспаста на подножке или свае 3.407.1-148.1-071 Анкерное устройство А-17 |
| Разработан: | Северо-западное отделение института Энергосетьпроект |
| Утверждён: | 22.01.1988 Минэнерго СССР (USSR Minenergo 11) |
| Издан: | ЦИТП Госстроя СССР (CITP, Gosstroy (USSR) 1988 г. ) |
| Заменяет собой: |











































































