Скачать Серия 1.135-1 Альбом I. Двери деревянные входные и тамбурныеДата актуализации: 01.01.2021
|
| Обозначение: | Серия 1.135-1 |
| Обозначение англ: | Series 1.135-1 |
| Статус: | заменен |
| Название рус.: | Альбом I. Двери деревянные входные и тамбурные |
| Дата добавления в базу: | 01.09.2013 |
| Дата актуализации: | 01.01.2021 |
| Дата введения: | 10.06.1968 |
| Дата окончания срока действия: | 01.03.1981 |
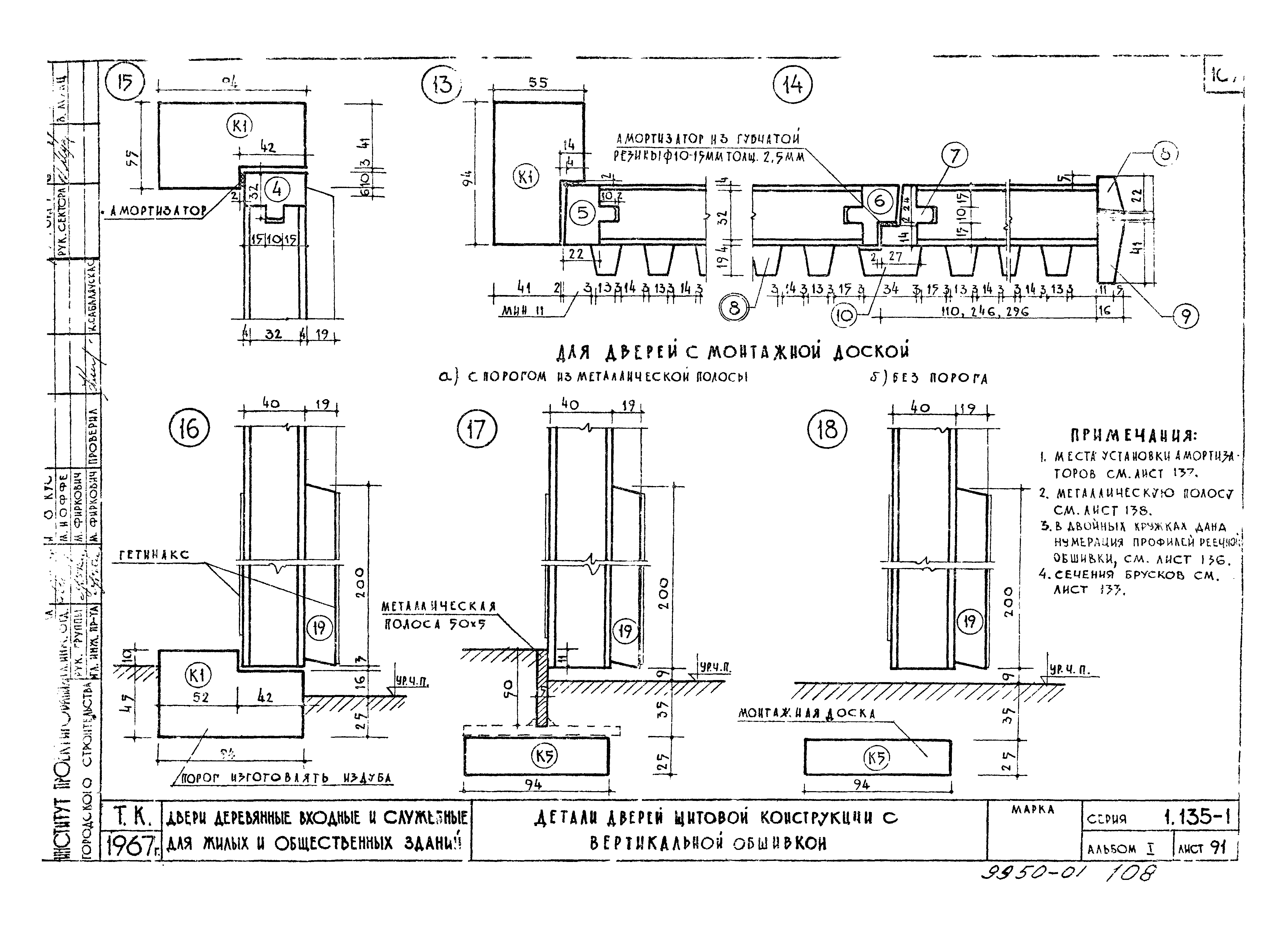
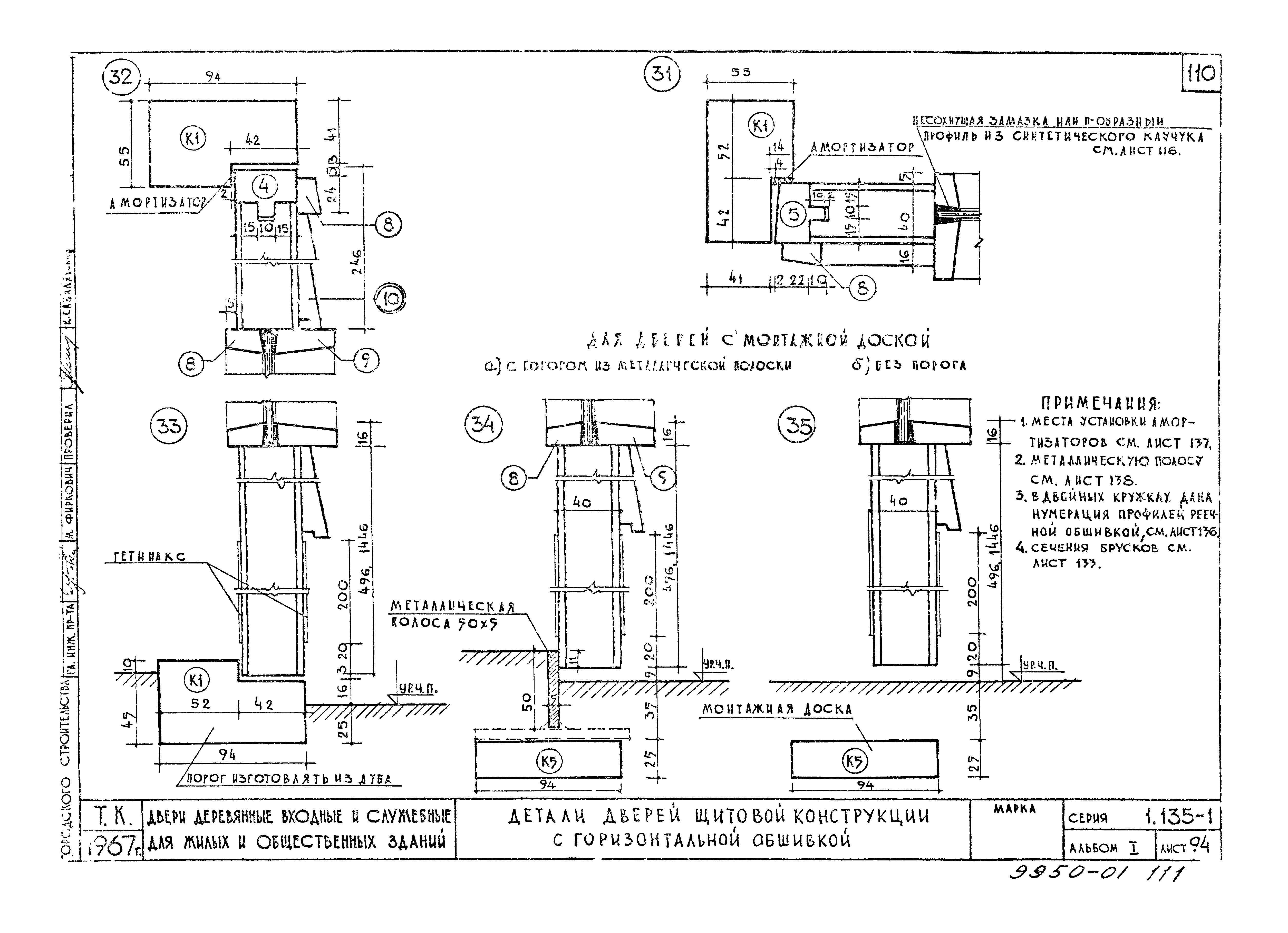
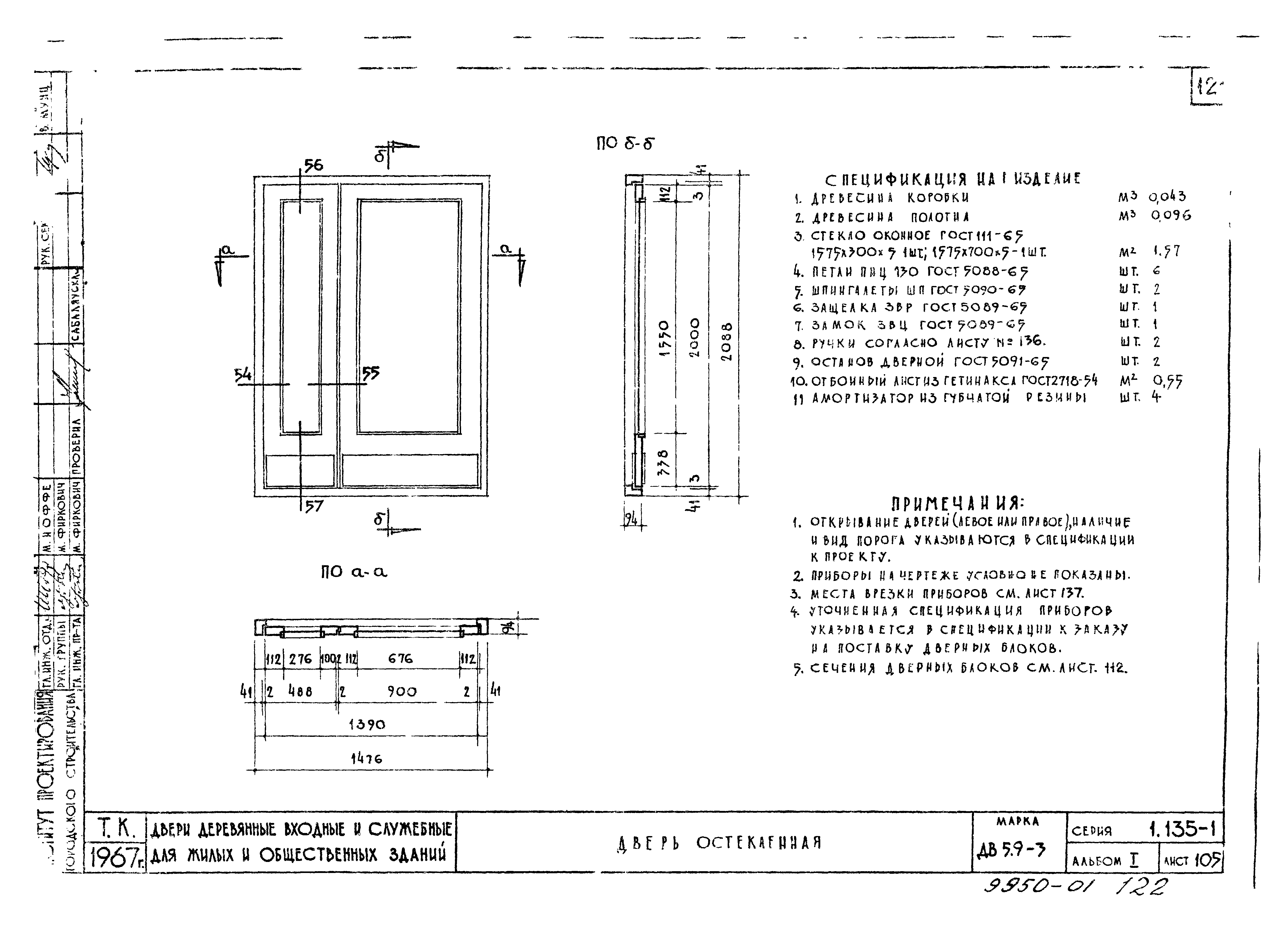
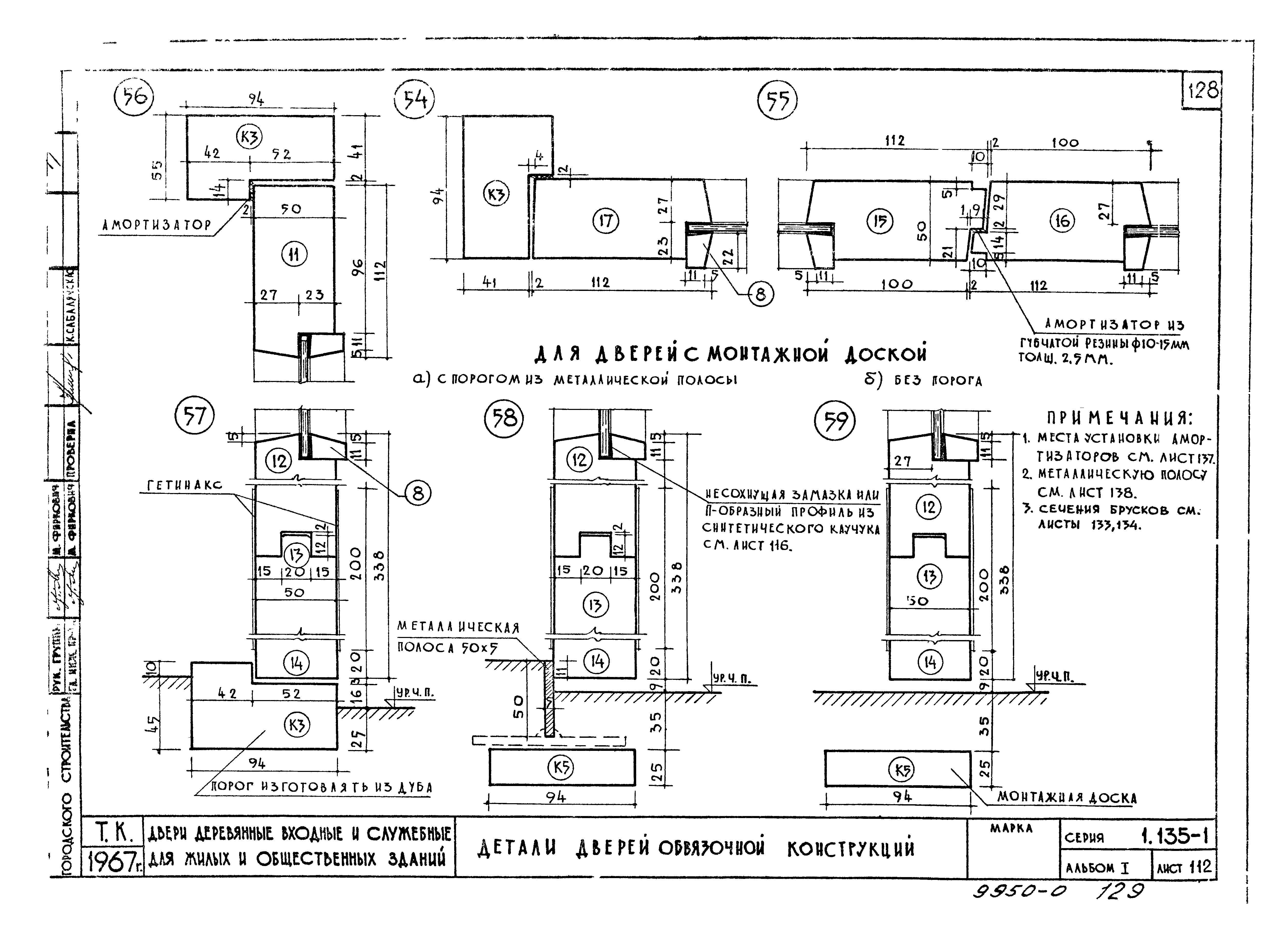
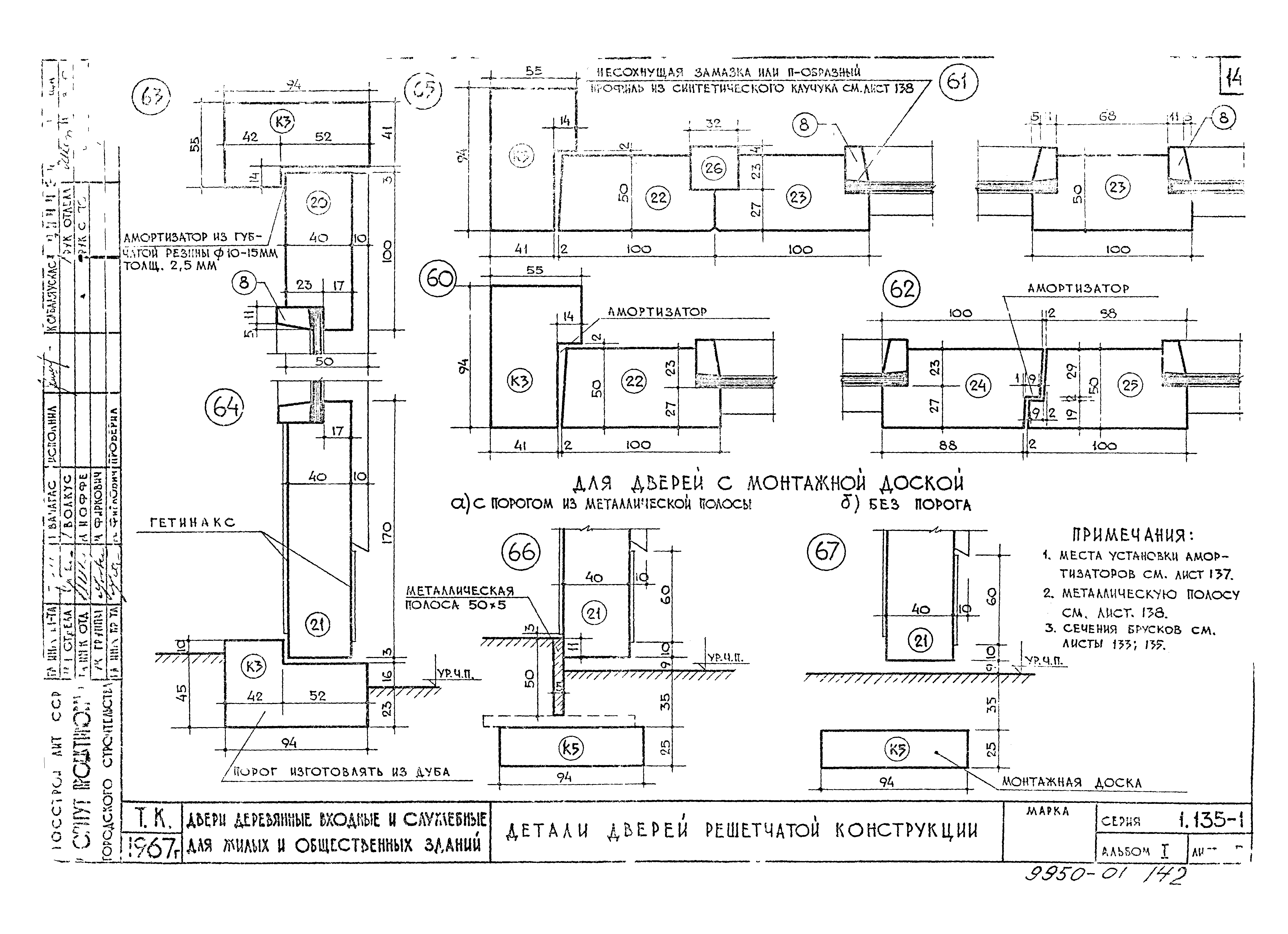
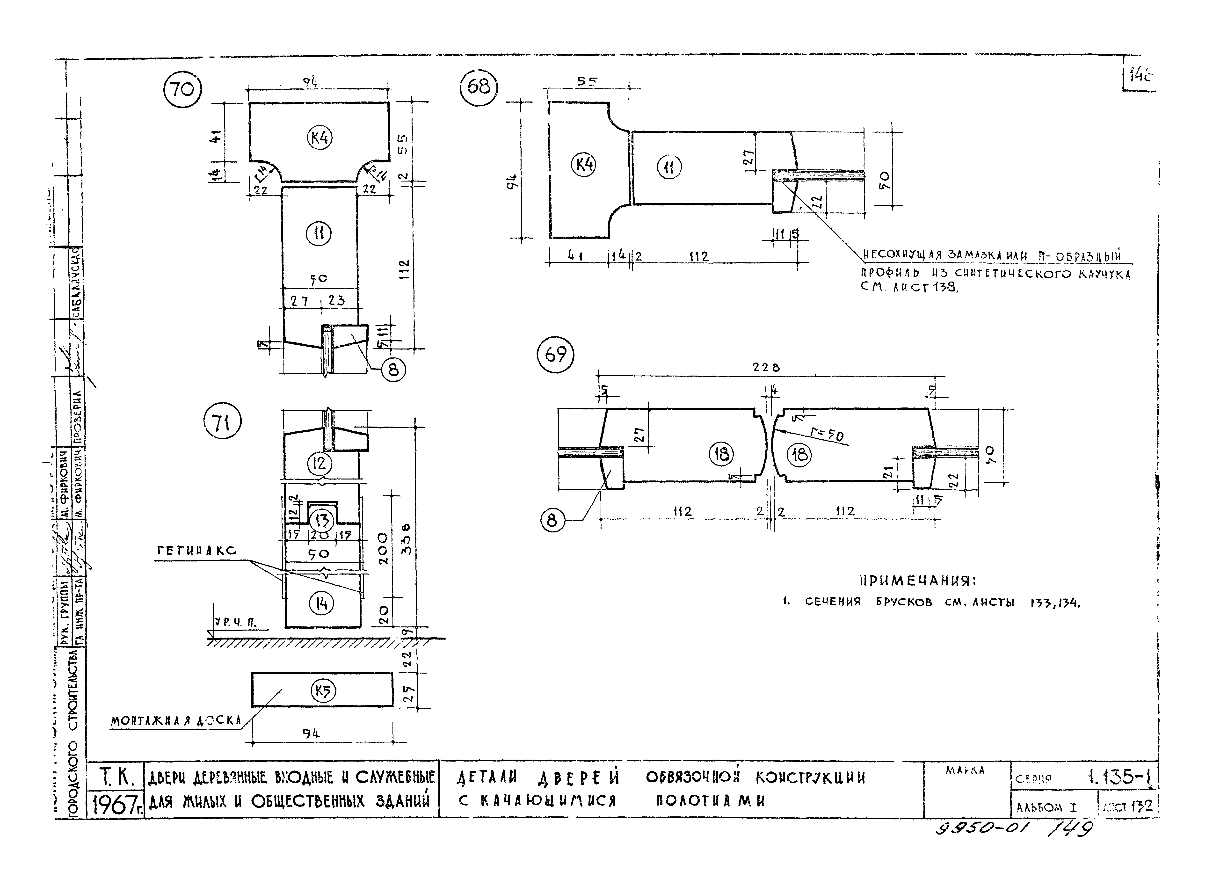
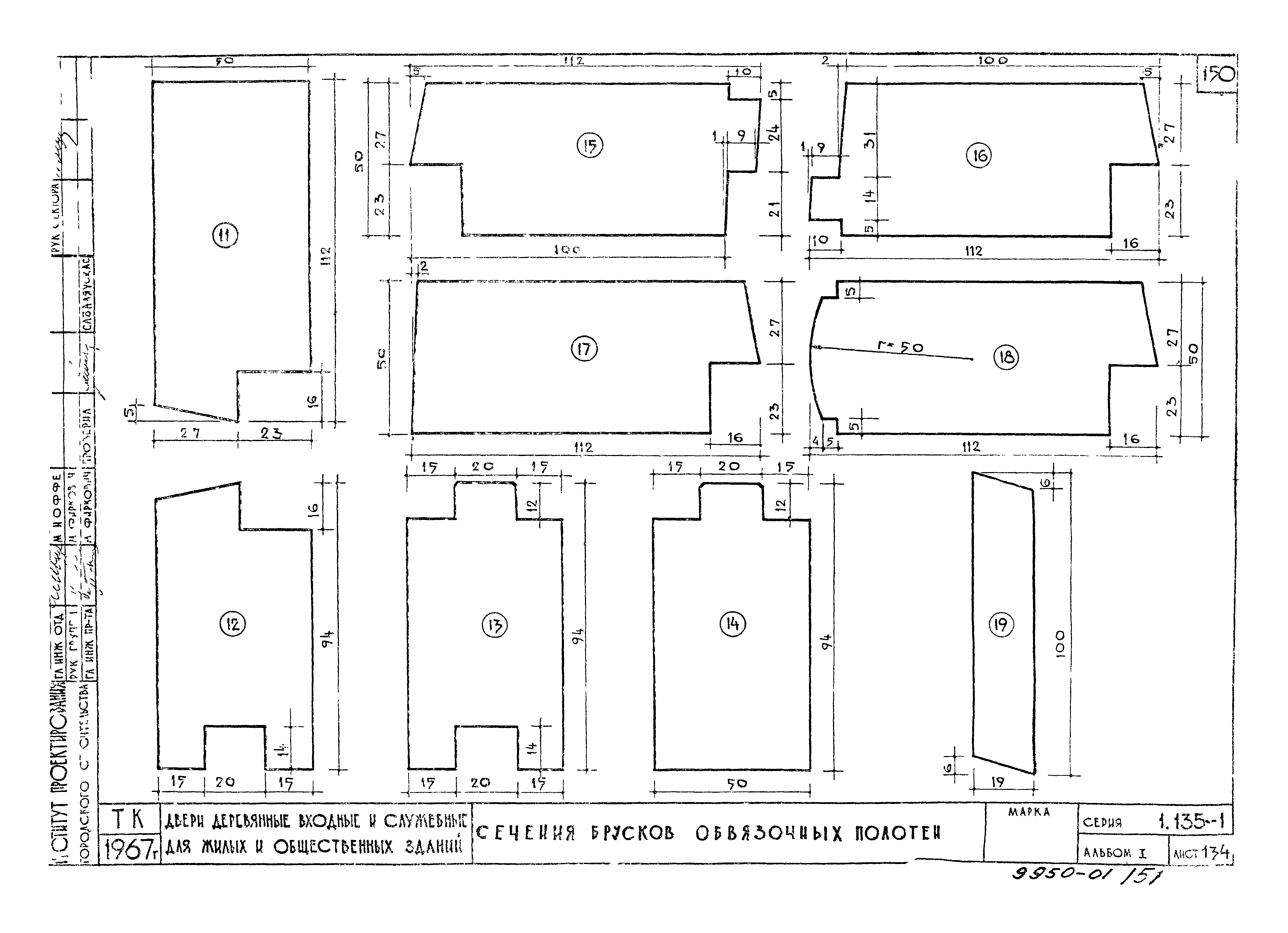
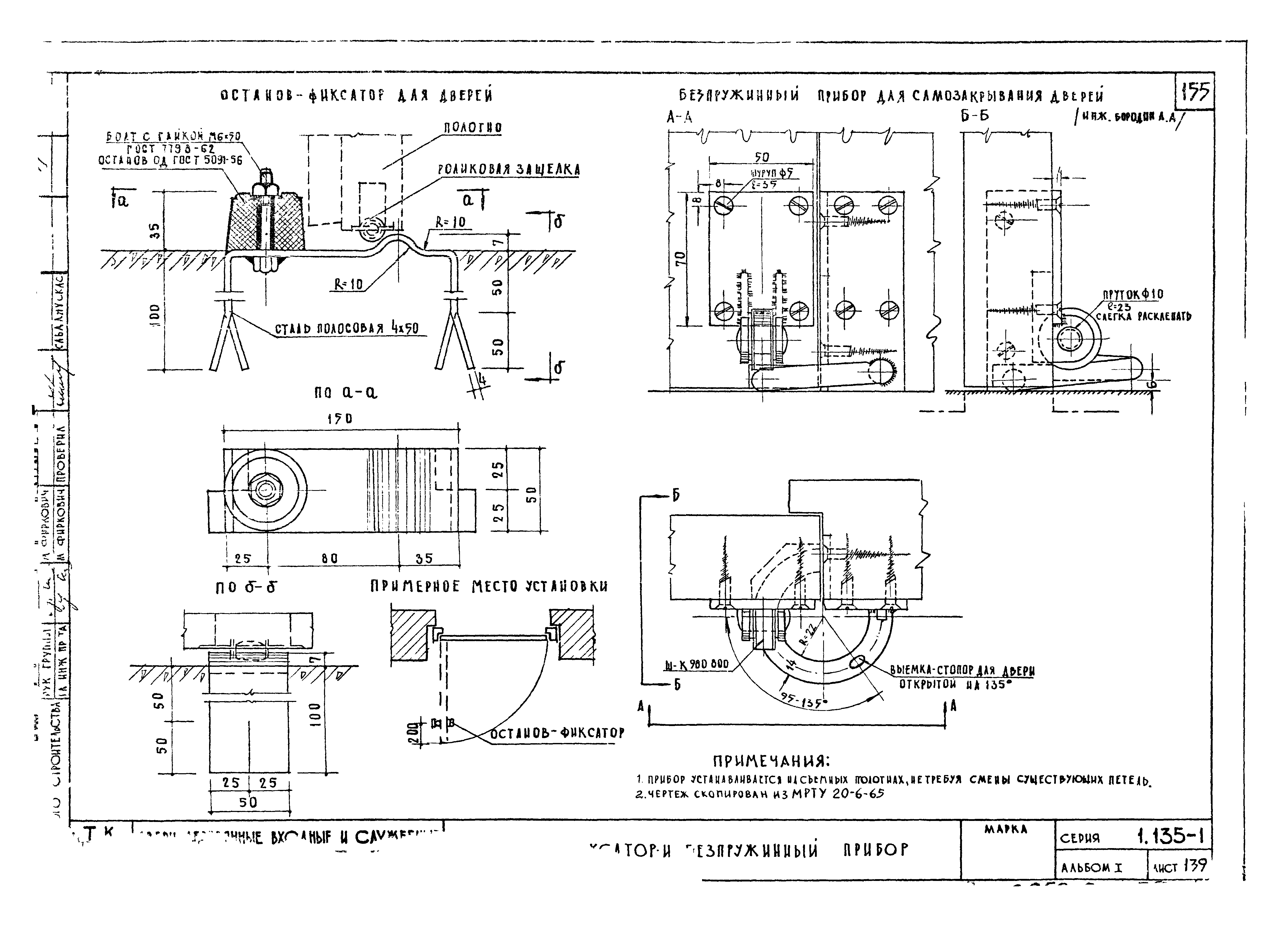
| Оглавление: | Содержание Пояснительная записка Номенклатура входных и тамбурных дверей Двери с полотнами щитовой конструкции Дверь глухая ДВ8-1 Дверь глухая с вертикальной обшивкой ДВ8-2/8 Дверь глухая с горизонтальной обшивкой ДВ8-3/10 Дверь полуостекленная ДВ8-5 Дверь полуостекленная с вертикальной обшивкой ДВ8-6/8 Дверь полуостекленная с горизонтальной обшивкой ДВ8-7/10 Дверь полуостекленная ДВ8-9 Дверь полуостекленная с вертикальной обшивкой ДВ8-10/8 Дверь полуостекленная с горизонтальной обшивкой ДВ8-11/10 Дверь полуостекленная ДВ8-12 Дверь глухая ДВ9-1 Дверь глухая с вертикальной обшивкой ДВ9-2/8 Дверь глухая с горизонтальной обшивкой ДВ9-3/10 Дверь полуостекленная ДВ9-5 Дверь полуостекленная с вертикальной обшивкой ДВ9-6/8 Дверь полуостекленная с горизонтальной обшивкой ДВ9-7/10 Дверь полуостекленная ДВ9-9 Дверь полуостекленная с вертикальной обшивкой ДВ9-10/8 Дверь полуостекленная с горизонтальной обшивкой ДВ9-11/10 Дверь полуостекленная ДВ9-12 Дверь полуостекленная с витражом ДВ(4).8-1 Дверь полуостекленная с витражом с вертикальной обшивкой ДВ(4).8-2/8 Дверь полуостекленная с витражом с горизонтальной обшивкой ДВ(4).8-3/10 Дверь полуостекленная ДВ4.8-4 Дверь полуостекленная ДВ4.8-5 Дверь полуостекленная ДВ4.8-6 Дверь полуостекленная с витражом ДВ(4).9-1 Дверь полуостекленная с витражом с вертикальной обшивкой ДВ(4).9-2/8 Дверь полуостекленная с витражом с горизонтальной обшивкой ДВ(4).9-3/10 Дверь полуостекленная ДВ4.9-4 Дверь полуостекленная ДВ4.9-5 Дверь полуостекленная ДВ4.9-6 Дверь полуостекленная ДВ7.7-1 Дверь полуостекленная ДВ7.7-2 Дверь полуостекленная с вертикальной обшивкой ДВ7.7-4/8 Дверь полуостекленная с вертикальной обшивкой ДВ7.7-5/8 Дверь глухая с вертикальной обшивкой ДВ7.7-7/8 Дверь глухая с горизонтальной обшивкой ДВ7.7-8/10 Дверь глухая с наклонной обшивкой ДВ7.7-9/10 Дверь полуостекленная ДВ5.9-1 Дверь полуостекленная ДВ5.9-2 Дверь полуостекленная с вертикальной обшивкой ДВ5.9-4/8 Дверь полуостекленная с вертикальной обшивкой ДВ5.9-5/8 Дверь глухая с вертикальной обшивкой ДВ5.9-7/8 Дверь глухая с горизонтальной обшивкой ДВ5.9-8/10 Дверь глухая с наклонной обшивкой ДВ5.9-9/10 Дверь полуостекленная ДВ8.8-1 Дверь полуостекленная ДВ8.8-2 Дверь полуостекленная с вертикальной обшивкой ДВ8.8-4/8 Дверь полуостекленная с вертикальной обшивкой ДВ8.8-5/8 Дверь глухая с вертикальной обшивкой ДВ8.8-7/8 Дверь глухая с горизонтальной обшивкой ДВ8.8-8/10 Дверь глухая с наклонной обшивкой ДВ8.8-9/10 Дверь полуостекленная ДВ9.9-1 Дверь полуостекленная ДВ9.9-2 Дверь полуостекленная с вертикальной обшивкой ДВ9.9-4/8 Дверь полуостекленная с вертикальной обшивкой ДВ9.9-5/8 Дверь глухая с вертикальной обшивкой ДВ9.9-7/8 Дверь глухая с горизонтальной обшивкой ДВ9.9-8/10 Дверь глухая с наклонной обшивкой ДВ9.9-9/10 Дверь полуостекленная ДВВ7.7-1 Дверь полуостекленная ДВВ7.7-2 Дверь полуостекленная с вертикальной обшивкой ДВВ7.7-4/8 Дверь полуостекленная с вертикальной обшивкой ДВВ7.7-5/8 Дверь глухая с вертикальной обшивкой ДВВ7.7-7/8 Дверь глухая с горизонтальной обшивкой ДВВ7.7-8/10 Дверь глухая с наклонной обшивкой ДВВ7.7-9/10 Дверь полуостекленная ДВВ5.9-1 Дверь полуостекленная ДВВ5.9-2 Дверь полуостекленная с вертикальной обшивкой ДВВ5.9-4/8 Дверь полуостекленная с вертикальной обшивкой ДВВ5.9-5/8 Дверь глухая с вертикальной обшивкой ДВВ5.9-7/8 Дверь глухая с горизонтальной обшивкой ДВВ5.9-8/10 Дверь глухая с наклонной обшивкой ДВВ5.9-9/10 Дверь полуостекленная ДВВ8.8-1 Дверь полуостекленная ДВВ8.8-2 Дверь полуостекленная с вертикальной обшивкой ДВВ8.8-4/8 Дверь полуостекленная с вертикальной обшивкой ДВВ8.8-5/8 Дверь глухая с вертикальной обшивкой ДВВ8.8-7/8 Дверь глухая с горизонтальной обшивкой ДВВ8.8-8/10 Дверь глухая с наклонной обшивкой ДВВ8.8-9/10 Дверь полуостекленная ДВВ9.9-1 Дверь полуостекленная ДВВ9.9-2 Дверь полуостекленная с вертикальной обшивкой ДВВ9.9-4/8 Дверь полуостекленная с вертикальной обшивкой ДВВ9.9-5/8 Дверь глухая с вертикальной обшивкой ДВВ9.9-7/8 Дверь глухая с горизонтальной обшивкой ДВВ9.9-8/10 Дверь глухая с наклонной обшивкой ДВВ9.9-9/10 Детали дверей щитовой конструкции Детали дверей щитовой конструкции с вертикальной обшивкой Детали дверей щитовой конструкции с горизонтальной обшивкой Детали дверей щитовой конструкции с наклонной обшивкой Детали дверей щитовой конструкции с витражом Двери с полотнами обвязочной и щитовой конструкций Дверь остекленная ДВ4.8-7 Дверь остекленная ДВ4.9-7 Детали дверей обвязочной и щитовой конструкции Двери с полотнами обвязочной конструкции Дверь остекленная ДВ8-4 Дверь остекленная ДВ9-4 Дверь остекленная ДВ4.8-8 Дверь остекленная ДВ4.9-8 Дверь остекленная ДВ7.7-3 Дверь остекленная ДВ5.9-3 Дверь остекленная ДВ8.8-3 Дверь остекленная ДВ9.9-3 Дверь остекленная ДВВ7.7-3 Дверь остекленная ДВВ5.9-3 Дверь остекленная ДВВ8.8-3 Дверь остекленная ДВВ9.9-3 Детали дверей обвязочной конструкции Двери с полотнами решетчатой конструкции Дверь остекленная ДВ8-8 Дверь остекленная ДВ9-8 Дверь остекленная ДВ4.8-9 Дверь остекленная ДВ4.9-9 Дверь остекленная ДВ7.7-6 Дверь остекленная ДВ5.9-6 Дверь остекленная ДВ8.8-6 Дверь остекленная ДВ9.9-6 Дверь остекленная ДВВ7.7-6 Дверь остекленная ДВВ5.9-6 Дверь остекленная ДВВ8.8-6 Дверь остекленная ДВВ9.9-6 Детали дверей решетчатой конструкции Двери с качающимися полотнами Дверь остекленная ДВ7.7-3К Дверь остекленная ДВ8.8-3К Дверь остекленная ДВ9.9-3К Дверь остекленная ДВВ7.7-3К Дверь остекленная ДВВ8.8-3К Дверь остекленная ДВВ9.9-3К Детали дверей обвязочной конструкции с качающимися полотнами Сечения брусков коробок, обкладок и штапиков Сечения брусков обвязочных полотен Сечения брусков решетчатых полотен Профили реечной обшивки и рисунки ручек Примерные места врезки приборов Детали заделки стекла и др. Останов-фиксатор и безпружинный прибор Габаритные размеры дверных блоков и проемов Примеры установки дверных блоков в кирпичных стенах Примеры конструкции щитовых полотен |
| Разработан: | Госстрой Лит. ССР ЦНИИЭП жилища |
| Утверждён: | 10.06.1968 Госкомитет по гражданскому строительству и архитектуре при Госстрое СССР (National Committee on Nonindustrial Construction and Architecture, USSR Gosstroy 94) |
| Издан: | ЦИТП Госстроя СССР (CITP, Gosstroy (USSR) 1968 г. ) |
| Чем заменён: |































































































































































