Скачать Типовой проект 801-2-86.12.87 Альбом I. Пояснительная записка. Технология производства. Отопление и вентиляция. Электрические чертежи. Автоматизация санитарно-технических систем. Связь и сигнализация (из т.п. 801-2-85.12.87)Дата актуализации: 01.01.2021
|
| Обозначение: | Типовой проект 801-2-86.12.87 |
| Обозначение англ: | 801-2-86.12.87 |
| Статус: | не определен законодательством |
| Название рус.: | Альбом I. Пояснительная записка. Технология производства. Отопление и вентиляция. Электрические чертежи. Автоматизация санитарно-технических систем. Связь и сигнализация (из т.п. 801-2-85.12.87) |
| Дата добавления в базу: | 01.09.2013 |
| Дата актуализации: | 01.01.2021 |
| Дата введения: | 30.12.1985 |
| Дата окончания срока действия: | 30.06.2003 |
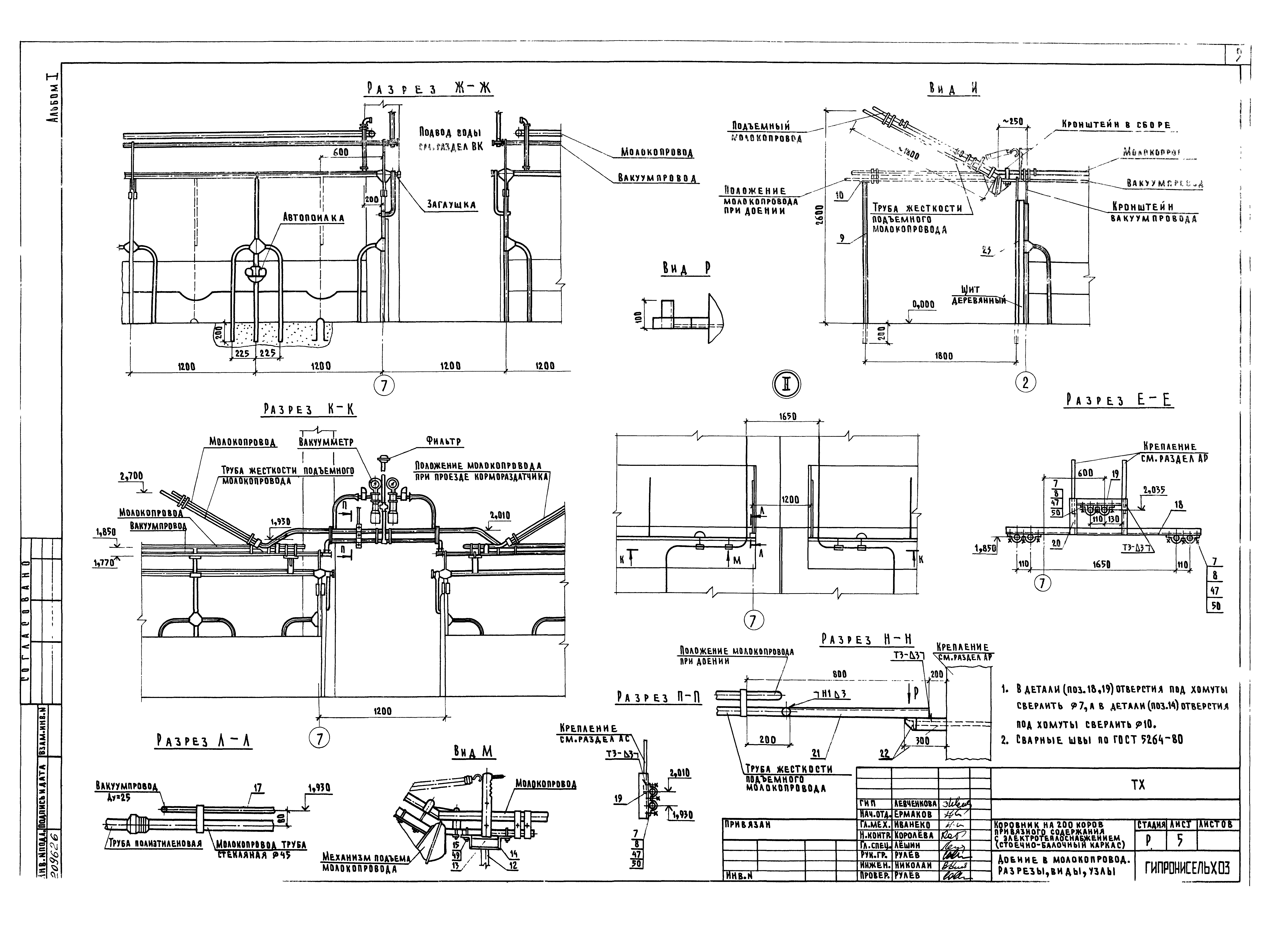
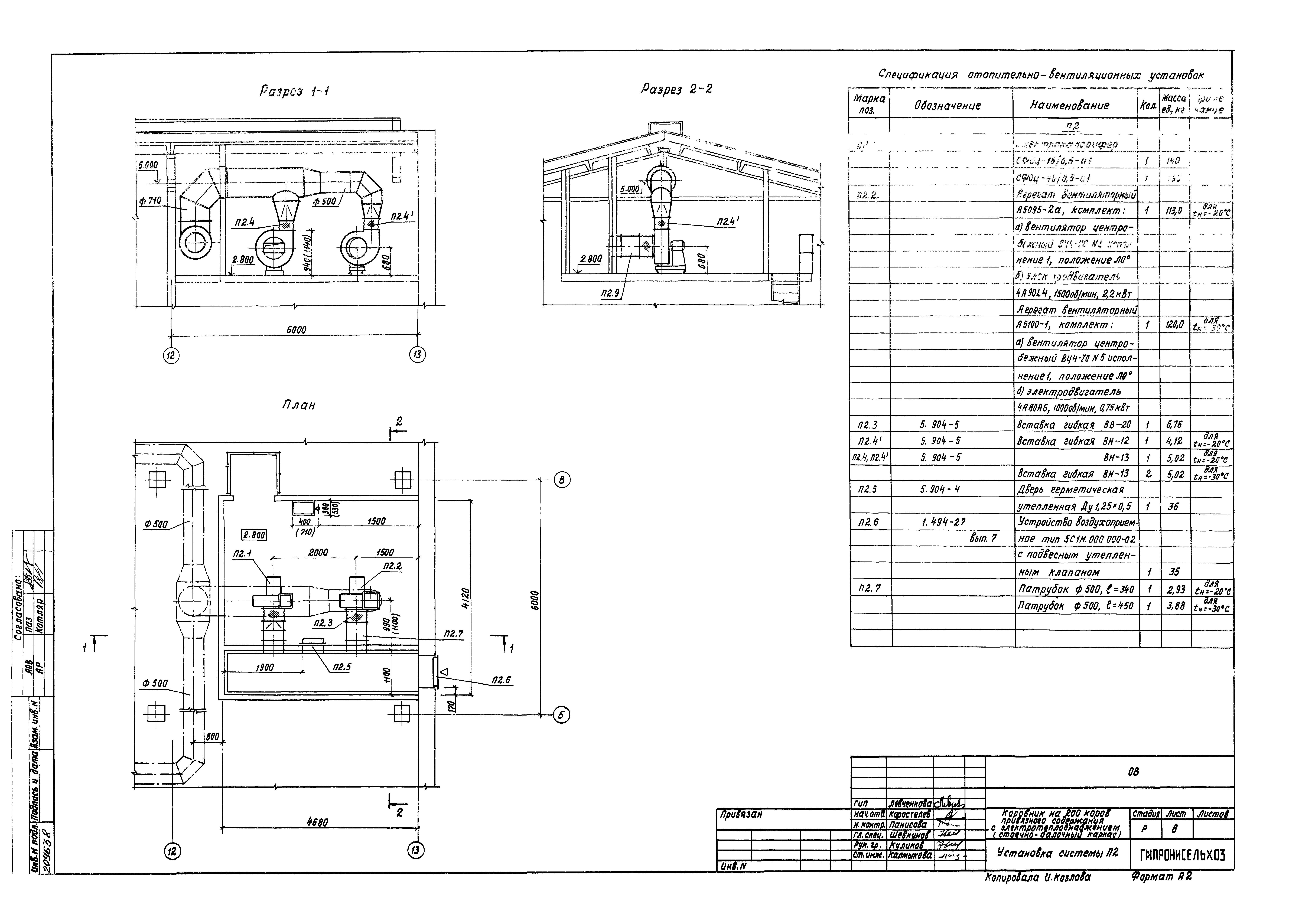
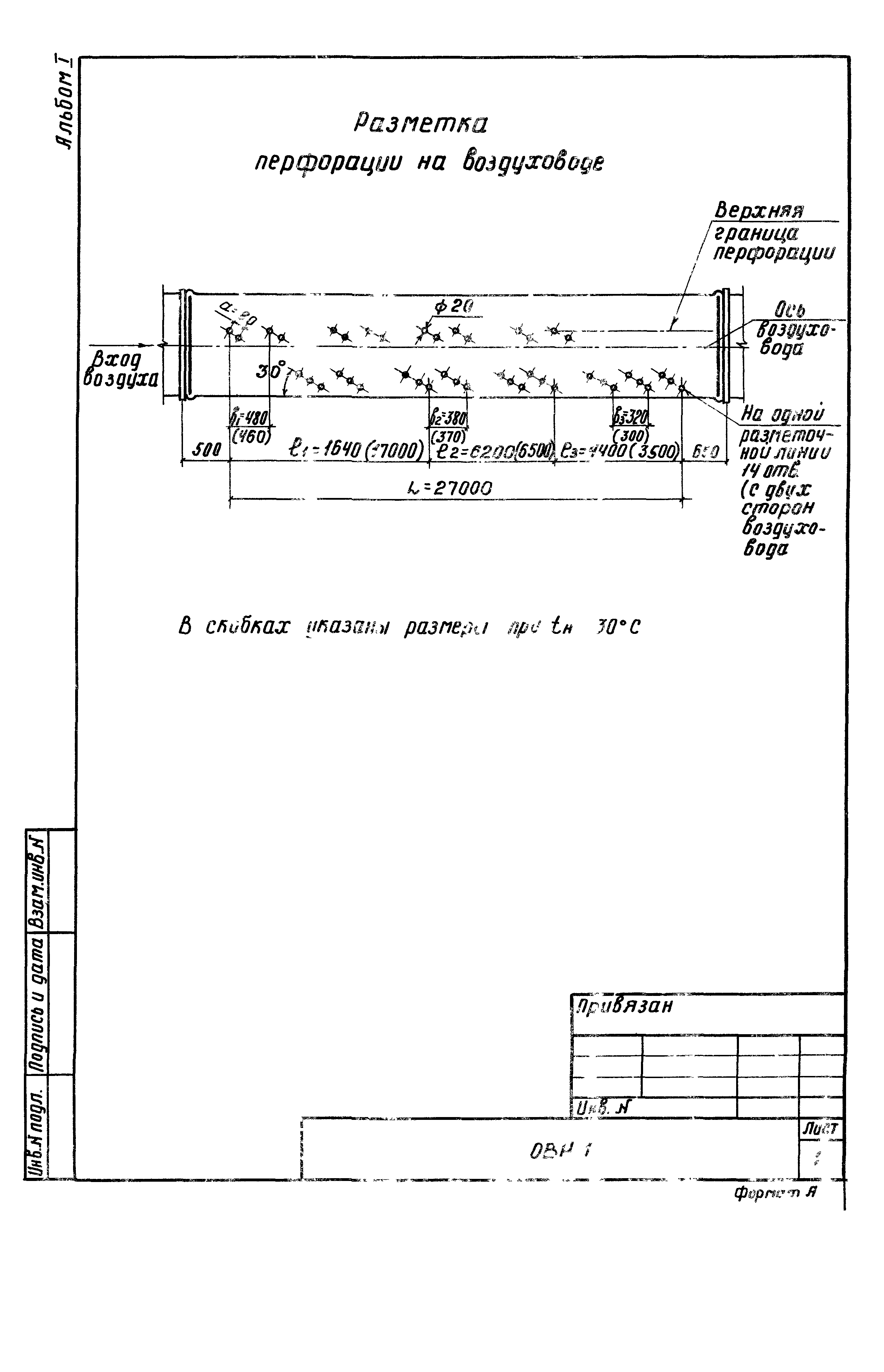
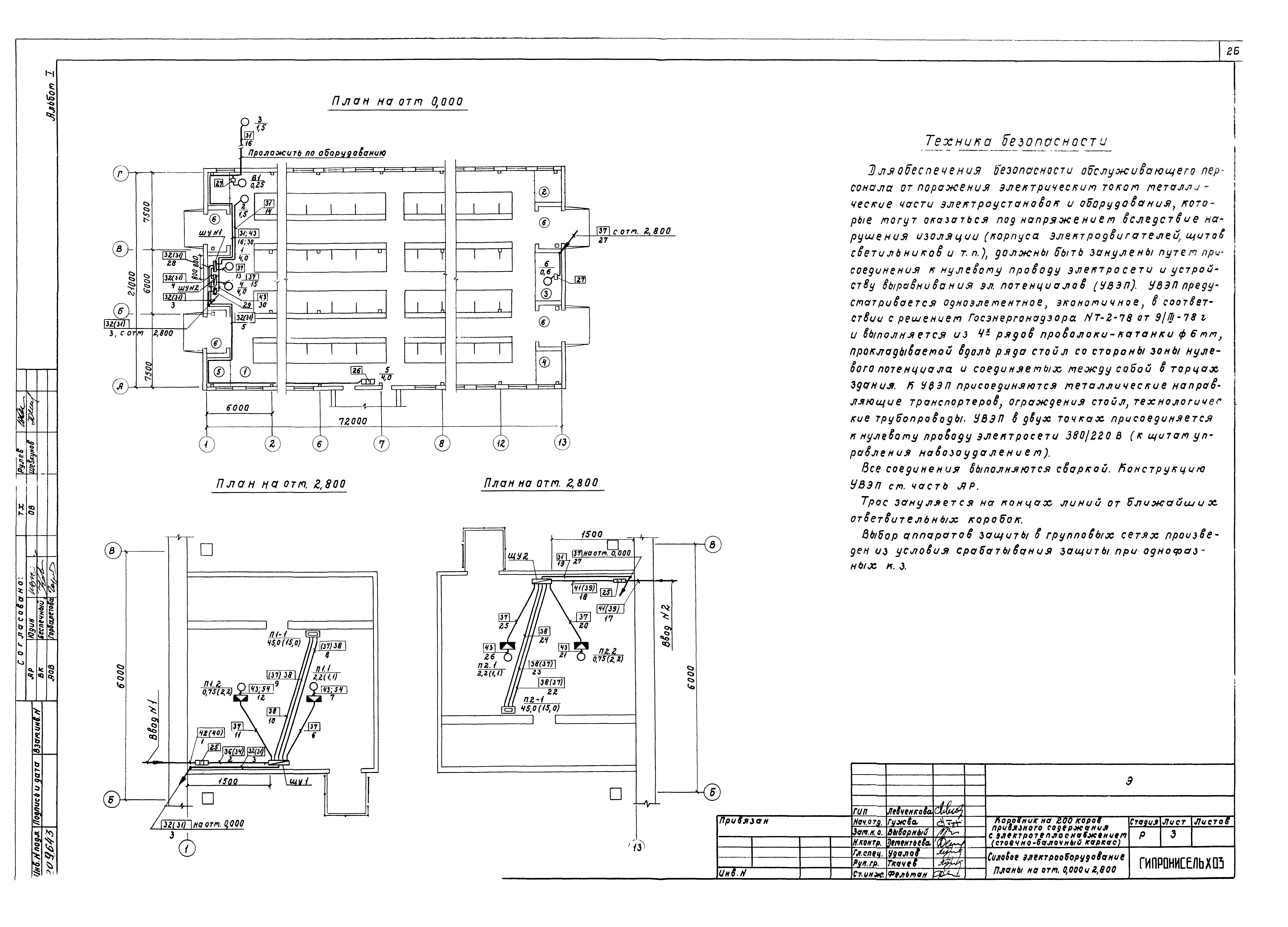
| Оглавление: | Содержание Пояснительная записка Основной комплект рабочих чертежей марки ТХ Общие данные Доение в молоковод. План. Разрез Доение в молоковод. Схема, разрезы, узел Доение в молоковод. Разрезы, виды, узлы Доение в ведра. План, разрез Доение в ведра. Схема, разрезы, узел Разрезы, узлы Основной комплект рабочих чертежей марки ВК Общие данные План на отм. 0.000; отм. 2.800. Разрез 1-1; Разрез 2-2 Схемы систем П1; П2; ВЕ1…ВЕ16 Установка системы П1 Установка системы П2 Эскизные чертежи общих видов нестандартных конструкций систем отопления и вентиляции Содержание Общий вид полиэтиленового воздуховода и узлы Лючок для замера параметров воздуховода Сетка в рамке Основной комплект рабочих чертежей марки 3 Общие данные Электроосвещение. Планы на отм. 0.000; 2.800. Расчетная схема сети электроосвещения 380/220 В Силовое электрооборудование. Планы на отм. 0.000 и 2.800 Электроосвещение и силовое электрооборудование. Спецификация Силовое электрооборудование. Расчетная схема электросети напряжением 380/220 В Силовое электрооборудование. План трубной разводки на отм. 0.000 и 2.800 Основной комплект рабочих чертежей марки АОВ Общие данные. Вентустановка №1(№2). Схема функциональная. Схема внешних проводок Вентустановка №1, №2. План расположения Основной комплект рабочих чертежей марки СС Общие данные. План расположения сетей связи и сигнализации |
| Разработан: | Институт Гипронисельхоз |
| Утверждён: | 14.11.1983 Минсельхоз СССР (USSR Minselkhoz 102) |




































