Скачать Типовой проект 801-2-86.12.87 Альбом II. Архитектурно-строительные решения. Конструкции железобетонные. Конструкции металлическиеДата актуализации: 01.01.2021
|
| Обозначение: | Типовой проект 801-2-86.12.87 |
| Обозначение англ: | 801-2-86.12.87 |
| Статус: | не определен законодательством |
| Название рус.: | Альбом II. Архитектурно-строительные решения. Конструкции железобетонные. Конструкции металлические |
| Дата добавления в базу: | 01.09.2013 |
| Дата актуализации: | 01.01.2021 |
| Дата введения: | 30.12.1985 |
| Дата окончания срока действия: | 30.06.2003 |
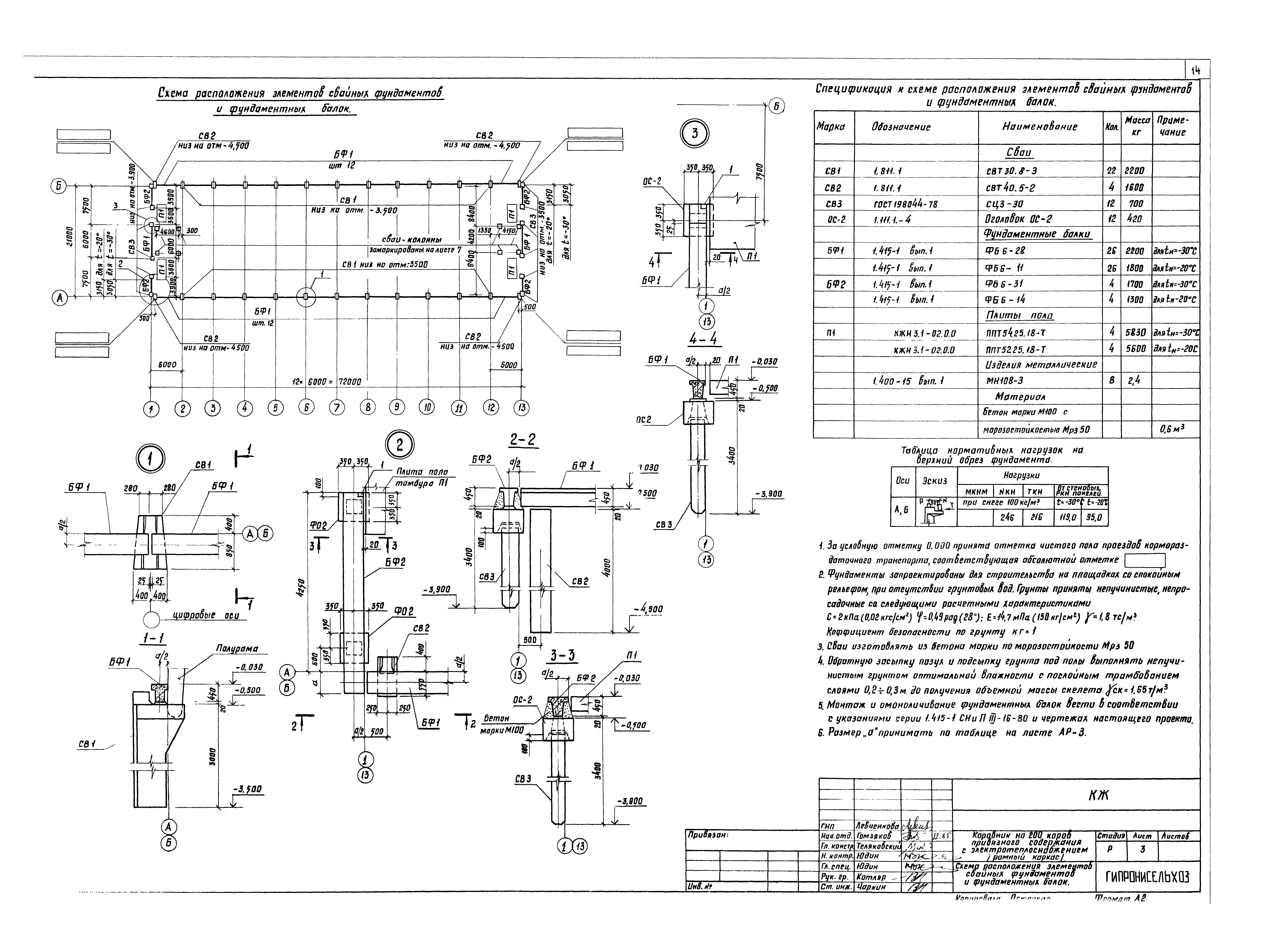
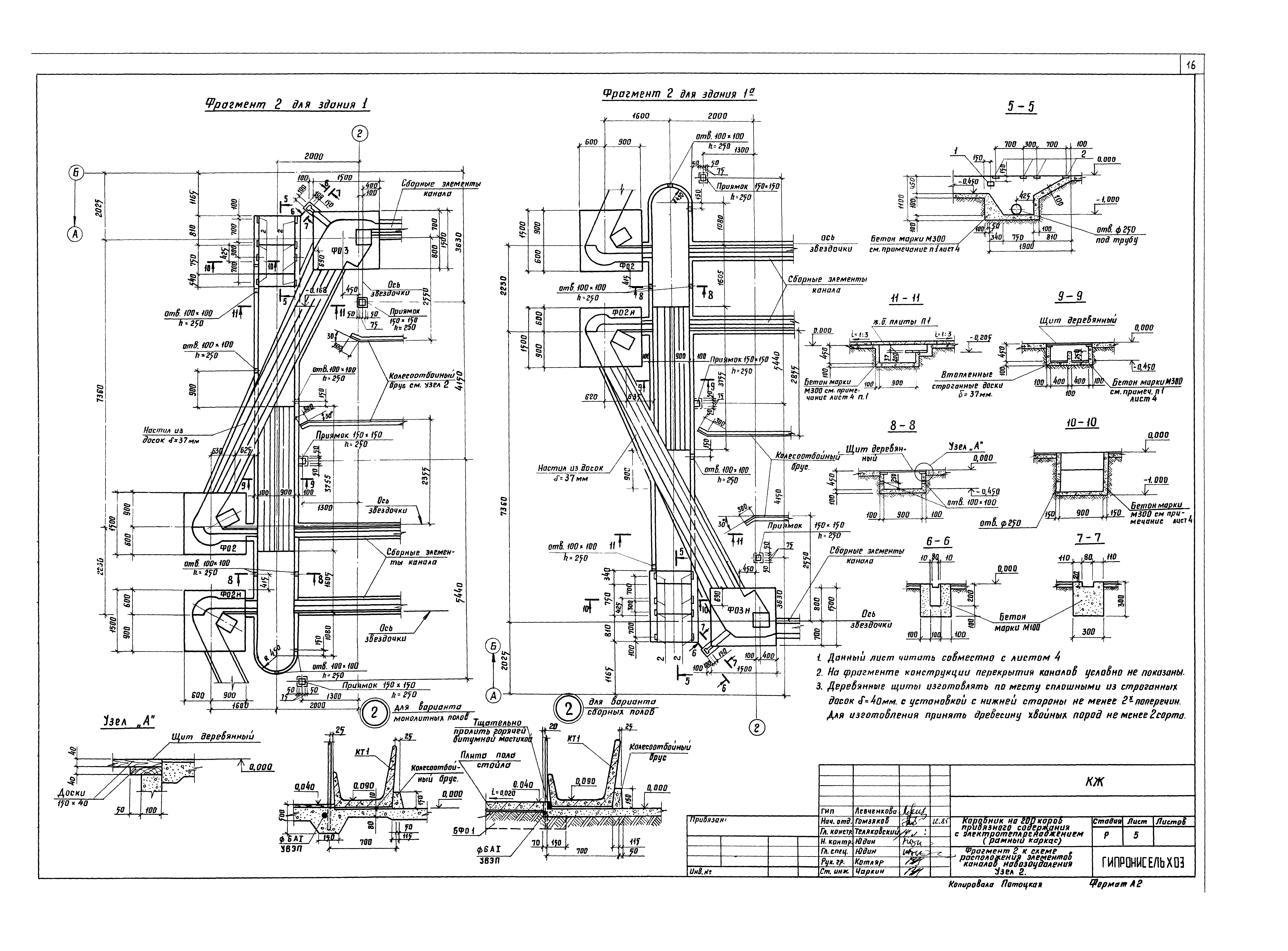
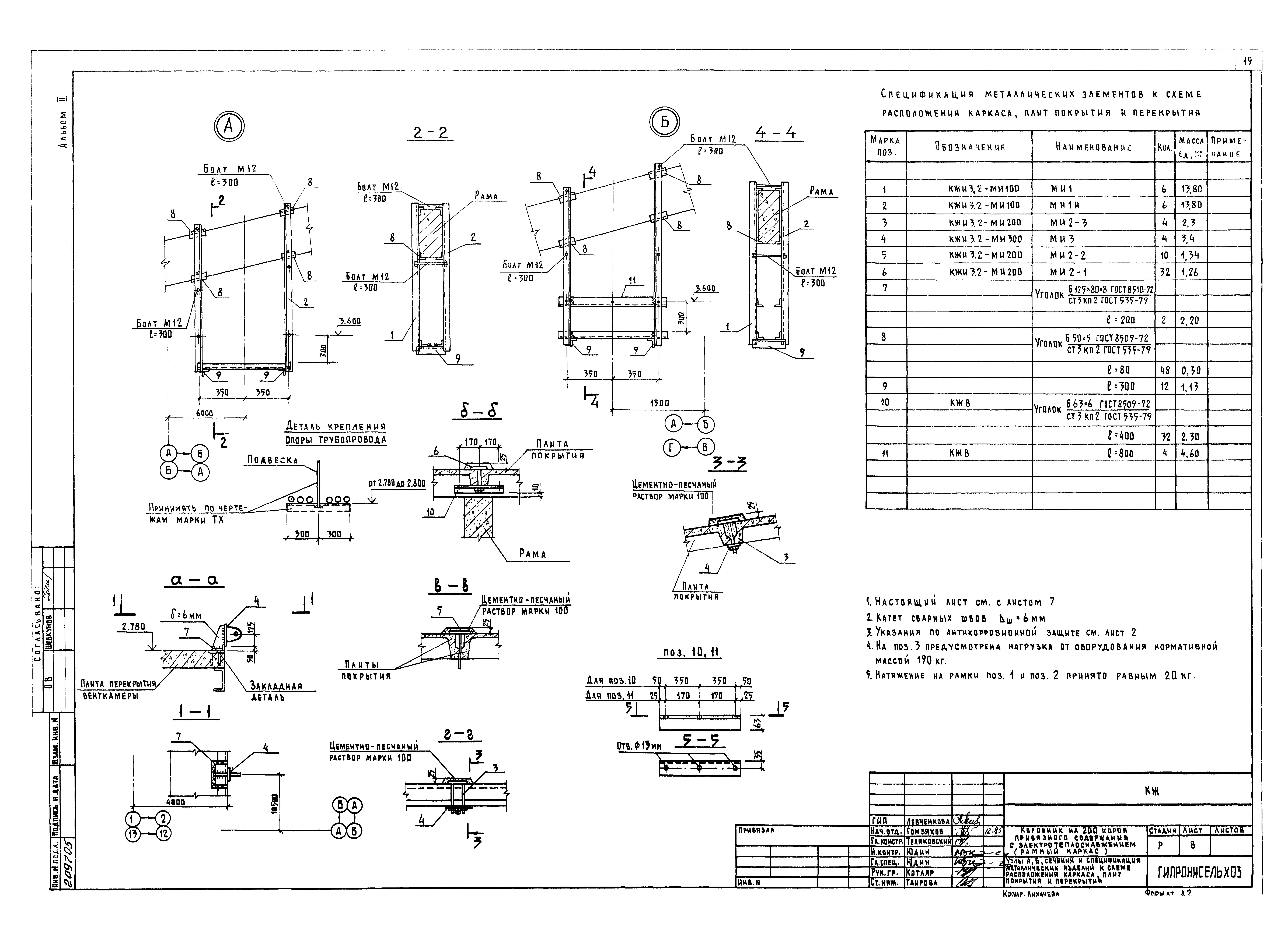
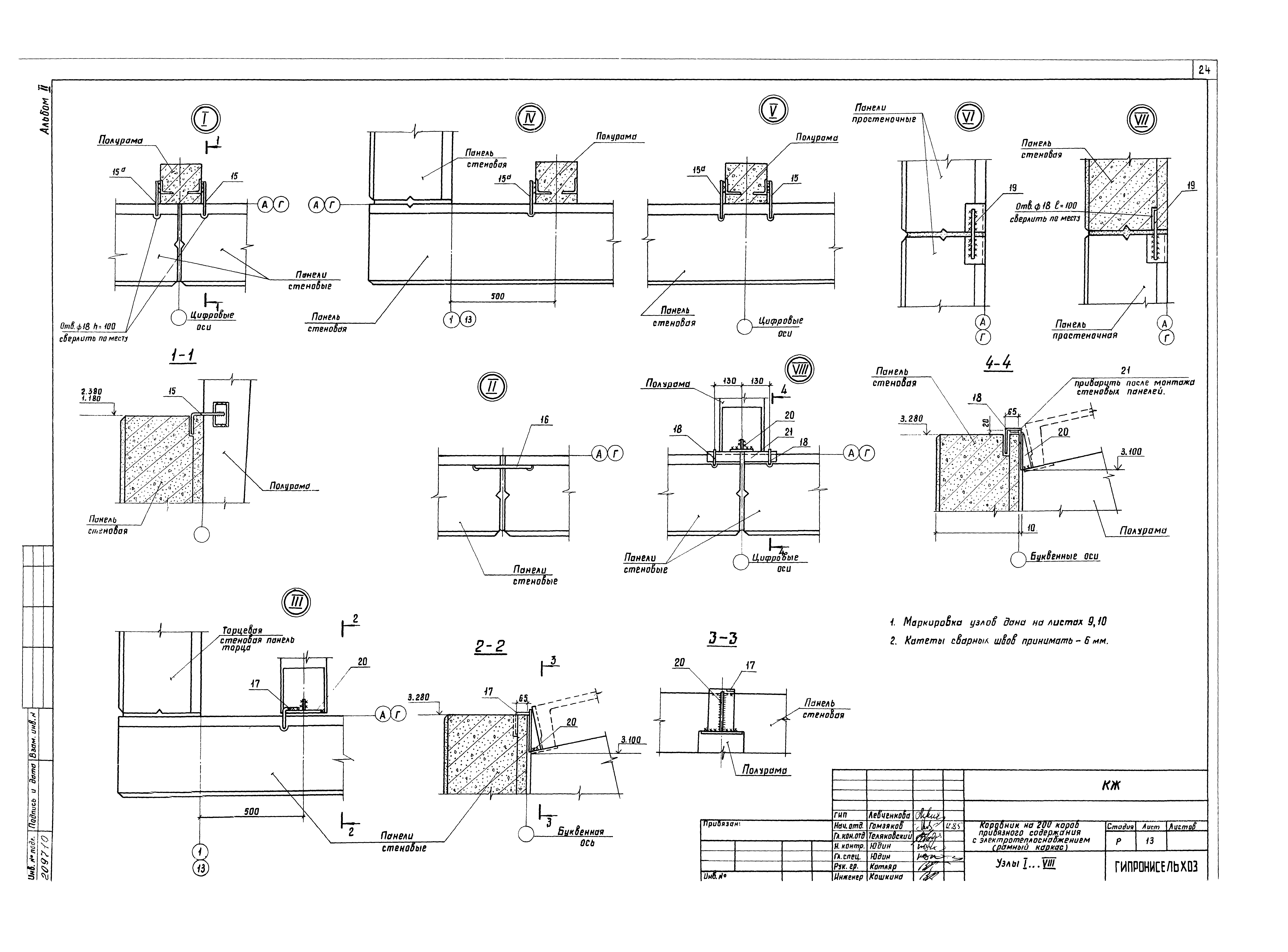
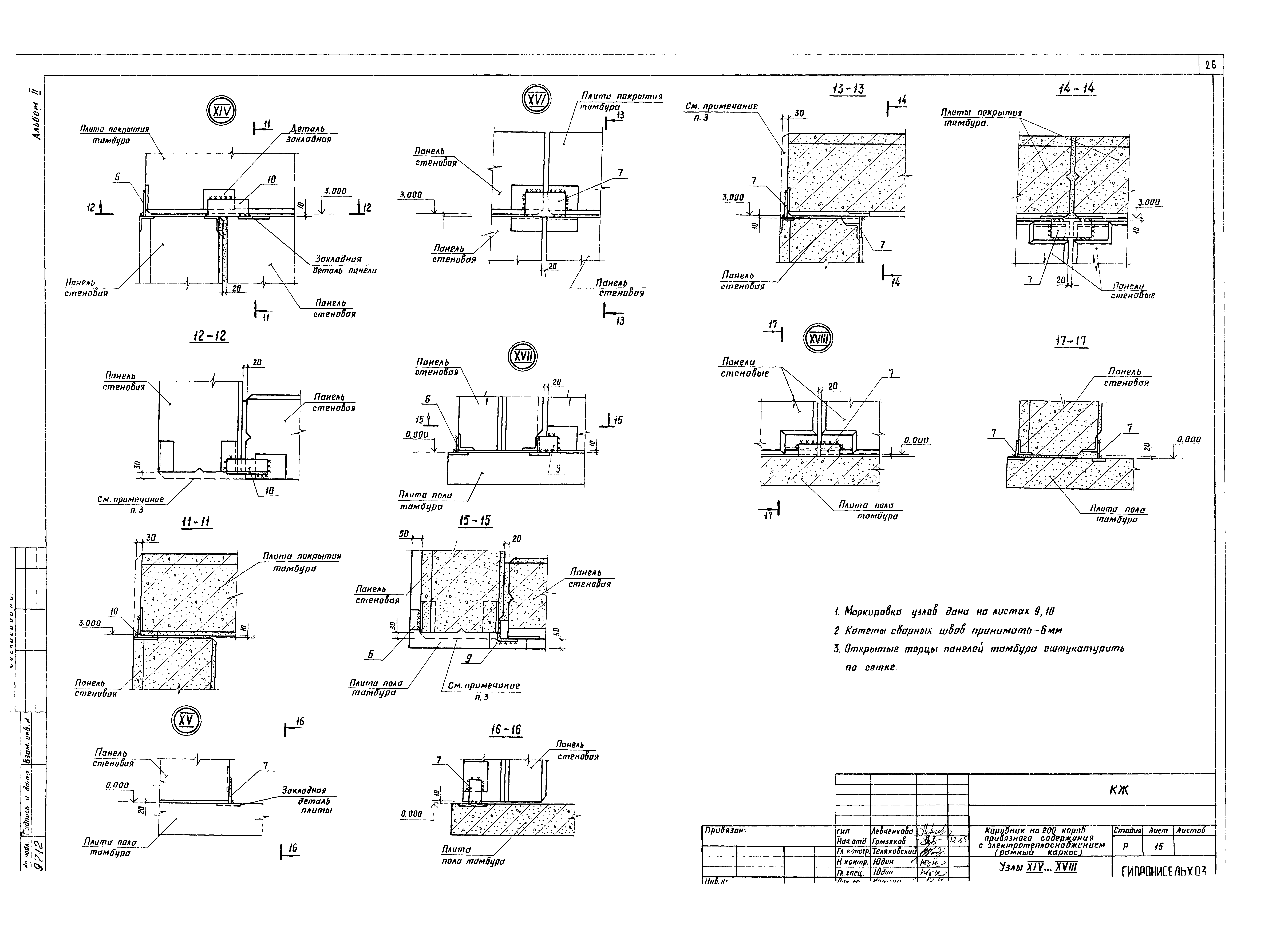
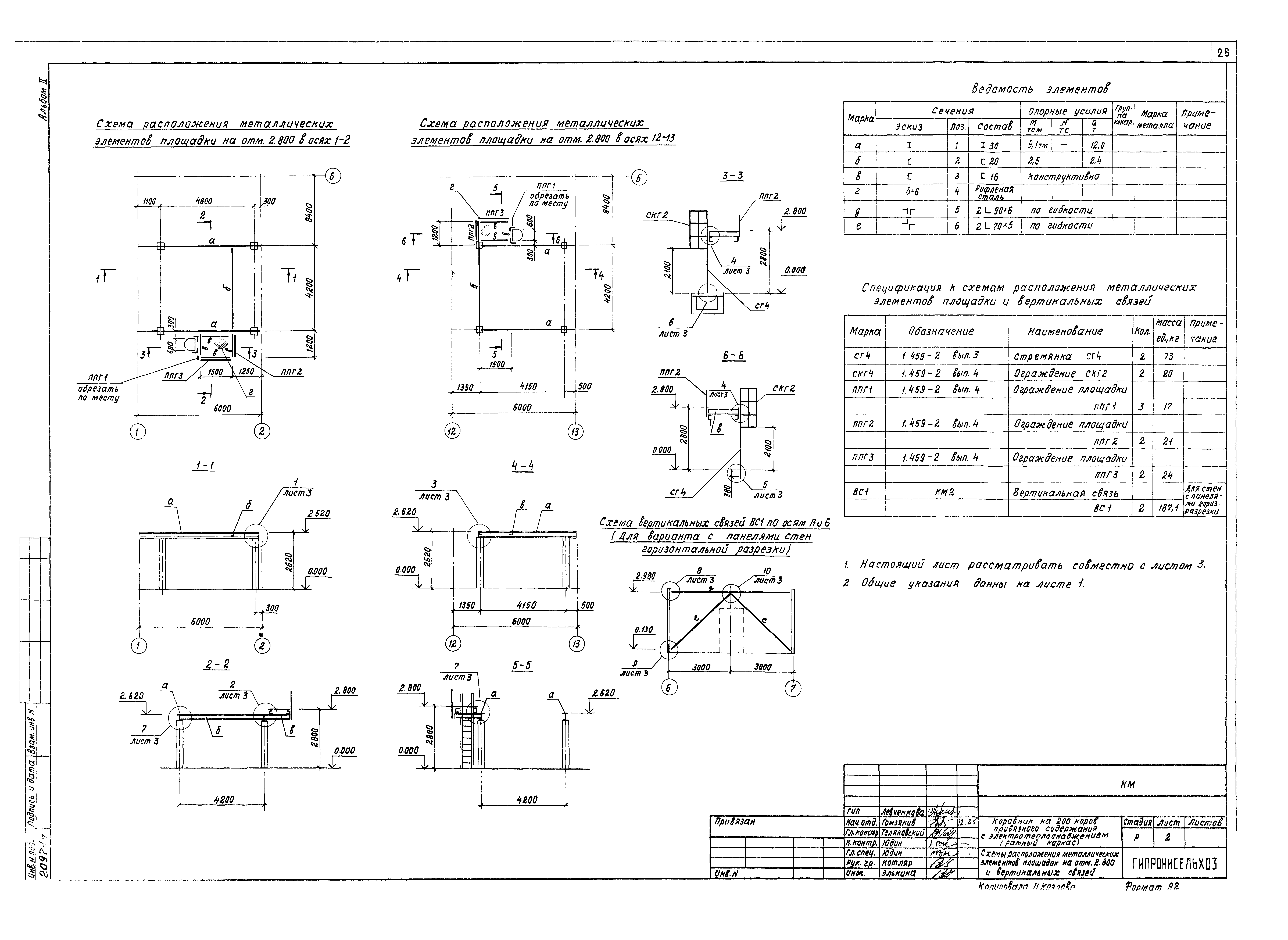
| Оглавление: | Содержание Основной комплект рабочих чертежей марки АР Общие данные (начало) Общие данные (окончание) План на отм 0.000 и 2.800 Разрезы 1-1;2-2;3-3. План кровли. Узлы 1,2 Фасады 1-13;13-1;од. Стены из панелей повышенной заводской готовности Фасады 1-13;13-1;од. Стены из панелей горизонтальной разрезкой. Схема заполнения оконных проемов План полов отверстия и схема расположения ограждений, фрагменты плана 1,2 Узлы 3-5 Узлы 6,7 Основной комплект рабочих чертежей марки КЖ Общие данные (начало) Общие данные (окончание) Схема расположения свайных фундаментов и фундаментных блоков Схема расположения элементов каналов навозоудаления и кормушек Фрагмент 2 к схеме расположения элементов каналов навозоудаления. Узел 2 Схема расположения сборных элементов полов стойл и монолитные фундаменты Ф0М1,Ф0М2 и приямок ПЯм1 Схемы расположения элементов каркаса, плит покрытия, перекрытия тамбуров и вентплощадок Узлы А,Б, сечения спецификаций металлических изделий к схеме расположения плит покрытия и перекрытия Схемы расположения стеновых панелей повышенной заводской готовности Схемы расположения стеновых панелей с горизонтальной разрезкой Спецификация к схемам расположения стеновых панелей повышенной заводской готовности Спецификация к схемам расположения стеновых панелей с горизонтальной разрезкой Узлы 1…8 Узлы 9…13 Узлы 14…18 Основной комплект рабочих чертежей марки КМ Общие данные. Техническая спецификация Схемы расположения металлических элементов площадок на отм. 2.800 и вертикальных связей Узлы 1…7 к схеме расположения элементов площадок в осях 1-2;12-13 |
| Разработан: | Институт Гипронисельхоз |
| Утверждён: | 14.11.1983 Минсельхоз СССР (USSR Minselkhoz 102) |





























