Скачать Серия 1.137.1-8 Выпуск 2. Предварительно напряженные плиты длиной 6280 и 5080 мм и шириной 1190 мм, армированные стержнями из стали класса Ат-V, для зданий со стенами из кирпича и кирпичным ограждением лоджий. Рабочие чертежиДата актуализации: 01.01.2021
|
| Обозначение: | Серия 1.137.1-8 |
| Обозначение англ: | Series 1.137.1-8 |
| Статус: | не определен законодательством |
| Название рус.: | Выпуск 2. Предварительно напряженные плиты длиной 6280 и 5080 мм и шириной 1190 мм, армированные стержнями из стали класса Ат-V, для зданий со стенами из кирпича и кирпичным ограждением лоджий. Рабочие чертежи |
| Дата добавления в базу: | 01.09.2013 |
| Дата актуализации: | 01.01.2021 |
| Дата введения: | 01.02.1988 |
| Дата окончания срока действия: | 30.06.2003 |
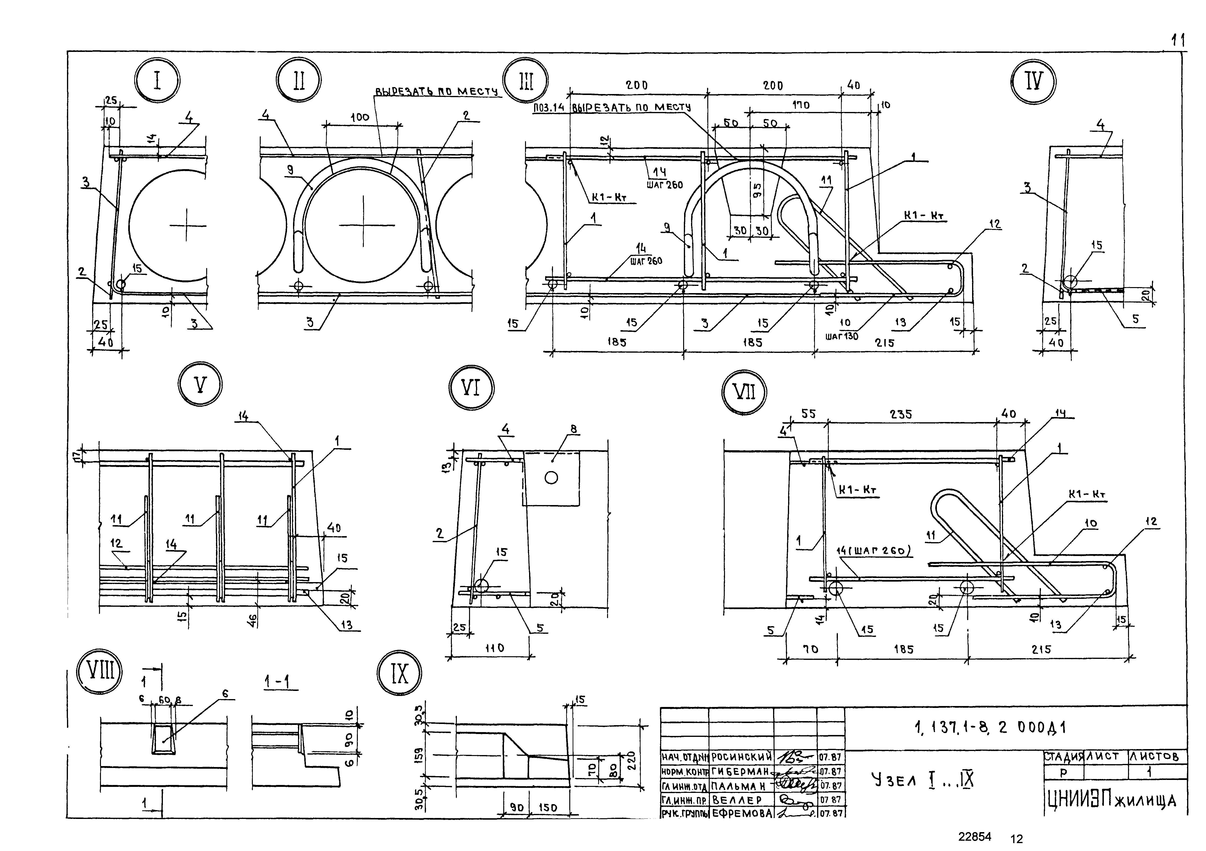
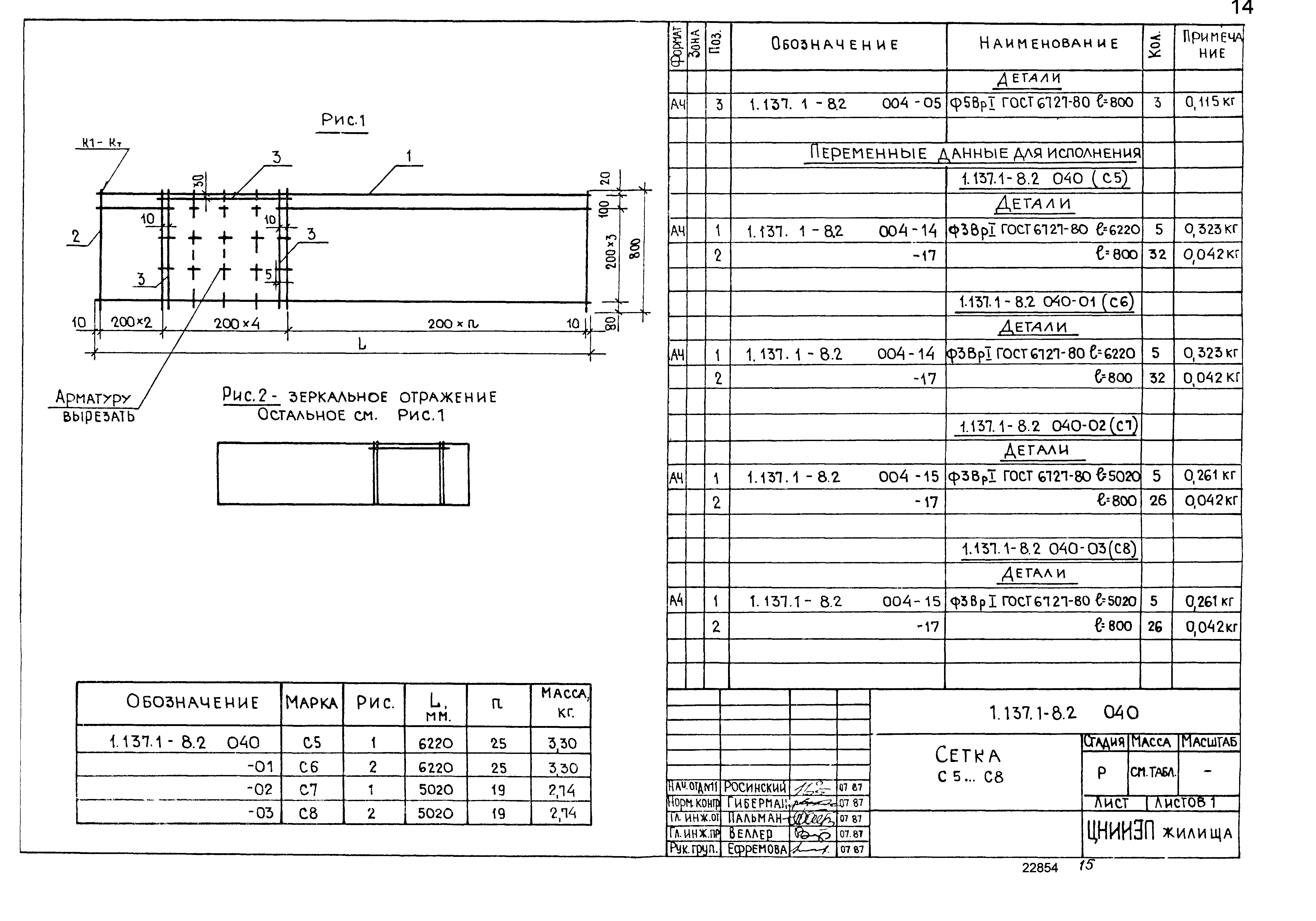
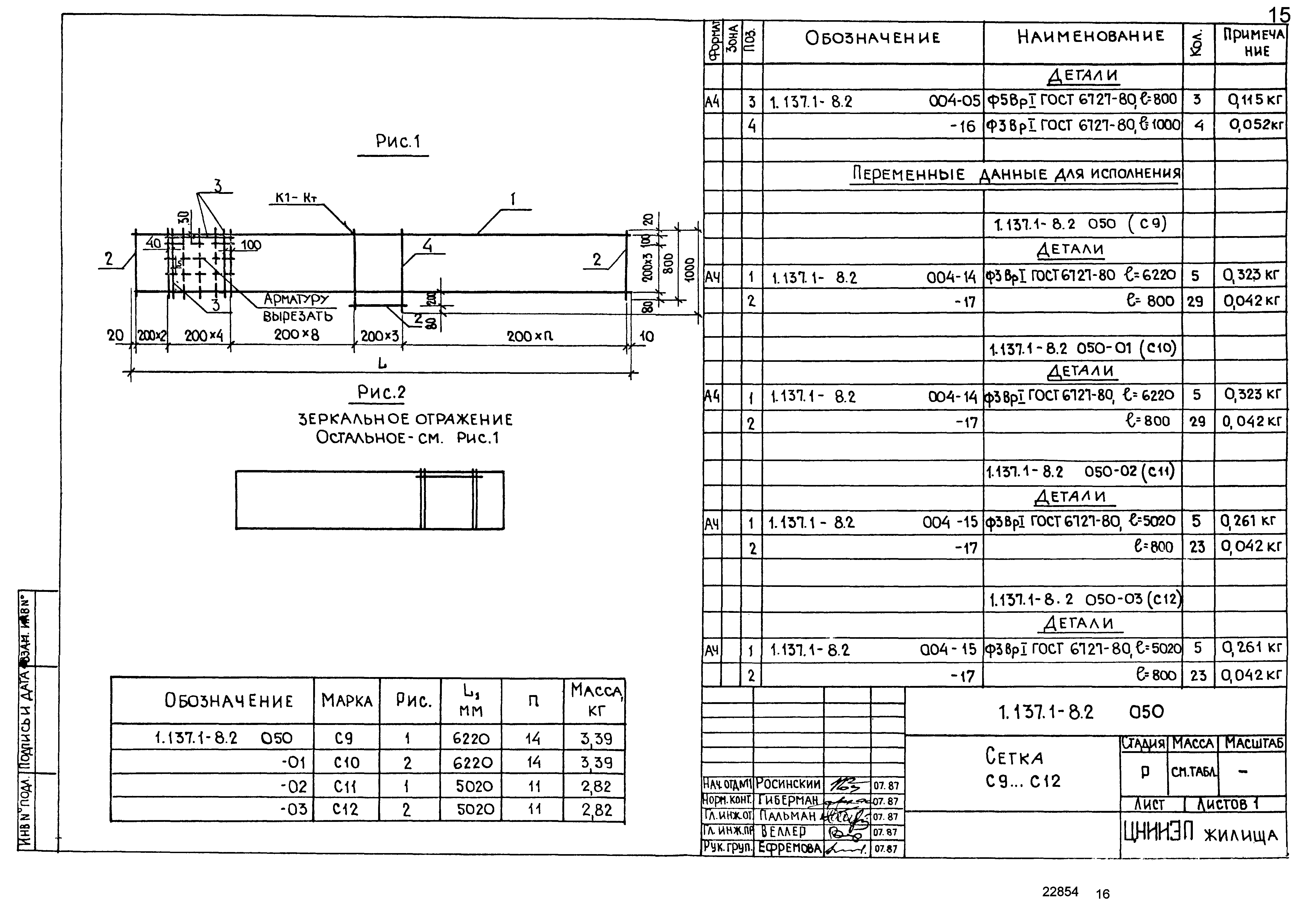
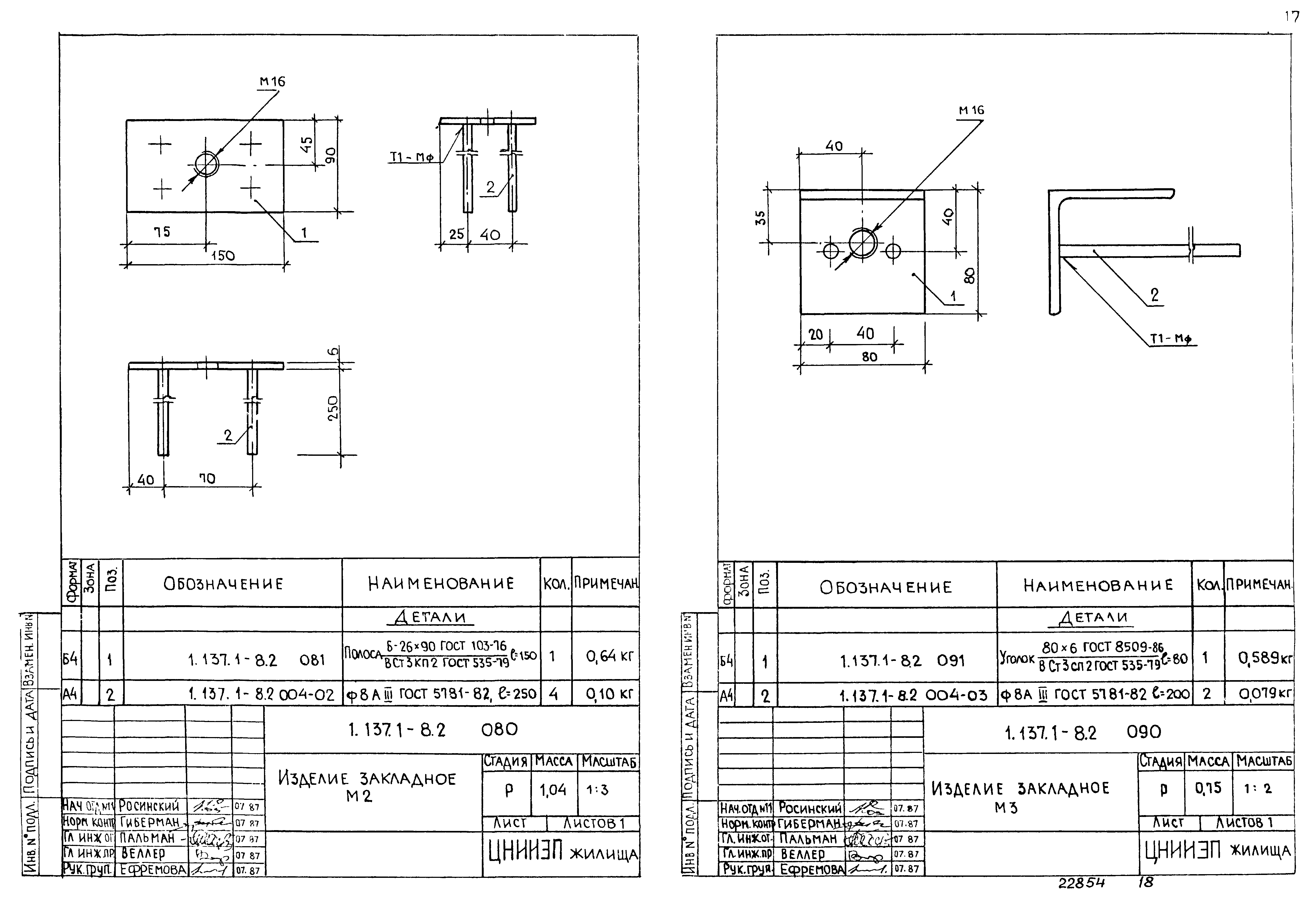
| Оглавление: | 1.137.1-8.2 000ТО Техническое описание 1.137.1-8.2 100 Плита лоджии ПЛП63.12-АтV ПЛП51.12-АтV, ПЛП63.12пр-АтV, ПЛП63.12л-АтV, ПЛП51.12пр-АтV, ПЛП51.12л-АтV 1.137.1-8.2 100СБ Плита лоджии ПЛП63.12-АтV, ПЛП51.12-АтV. Сборочный чертеж 1.137.1-8.2 100-02СБ Плита лоджии ПЛП63.12пр-АтV, ПЛП63.12л-АтV,ПЛП51.12пр-АтV,ПЛП51.12л-АтV. Сборочный чертеж 1.137.1-8.2 000Д1 Узел 1…9 1.137.1-8.2 010 Каркас К1…К4 1.137.1-8.2 010СБ Каркас К1…К4. Сборочный чертеж 1.137.1-8.2 020 Сетка С1,С2 1.137.1-8.2 030 Сетка С3,С4 1.137.1-8.2 040 Сетка С5...С8 1.137.1-8.2 050 Сетка С9...С12 1.137.1-8.2 060 Сетка С13 1.137.1-8.2 070 Изделие закладное М1 1.137.1-8.2 080 Изделие закладное М2 1.137.1-8.2 090 Изделие закладное М3 1.137.1-8.2 001 Петля строповочная П1 1.137.1-8.2 002 Стержень гнутый А1 и А2 1.137.1-8.2 003 Стержень Т1…Т10 1.137.1-8.2 004 Стержень 1.137.1-8.2 000РС Ведомость расхода стали 1.137.1-8.2 000РМ Ведомость расхода материалов |
| Разработан: | НИИЖБ ЦНИИЭП жилища |
| Утверждён: | 04.01.1988 Госкомархитектура (1) |
| Издан: | ЦИТП Госстроя СССР (CITP, Gosstroy (USSR) 1988 г. ) |























