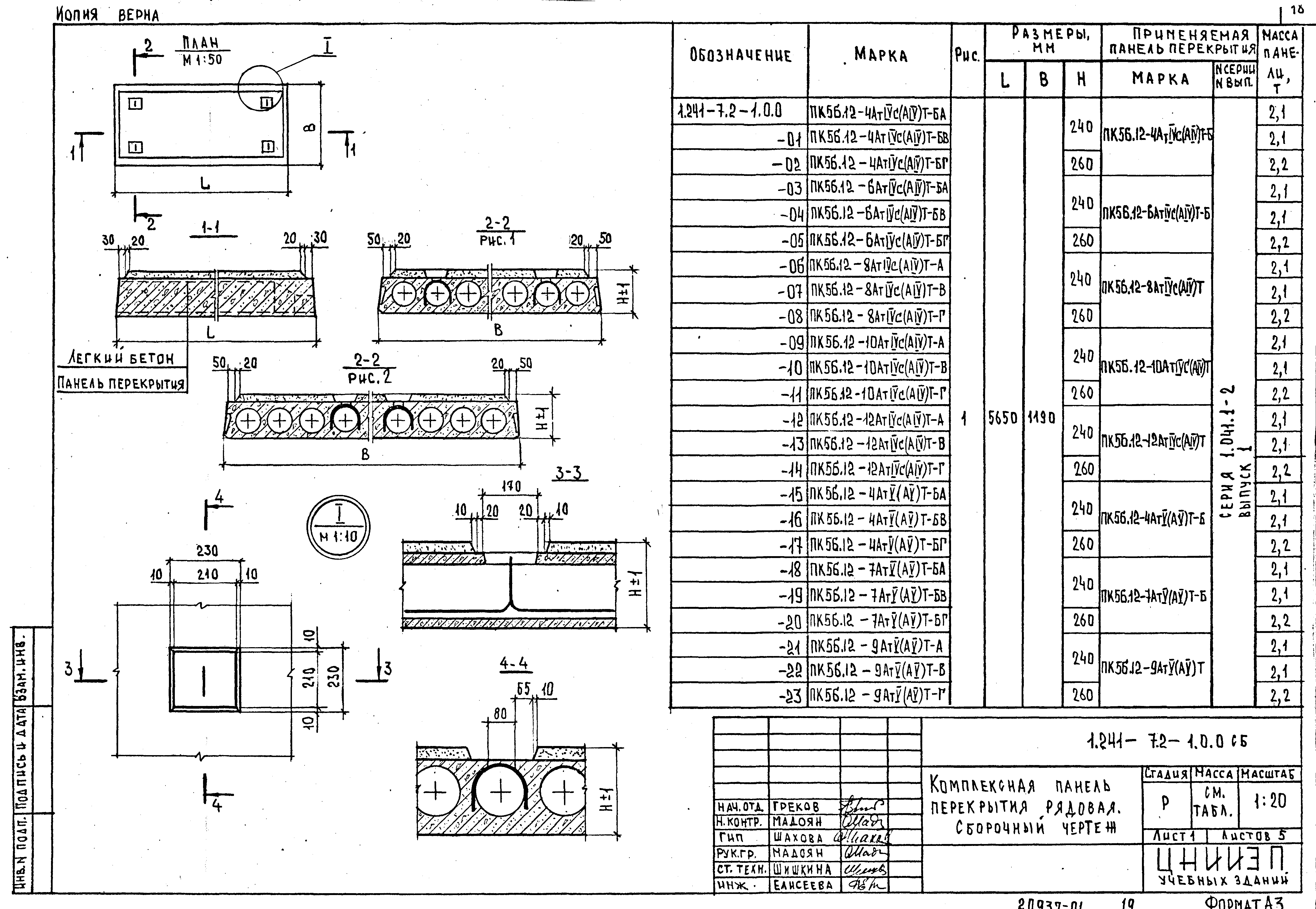
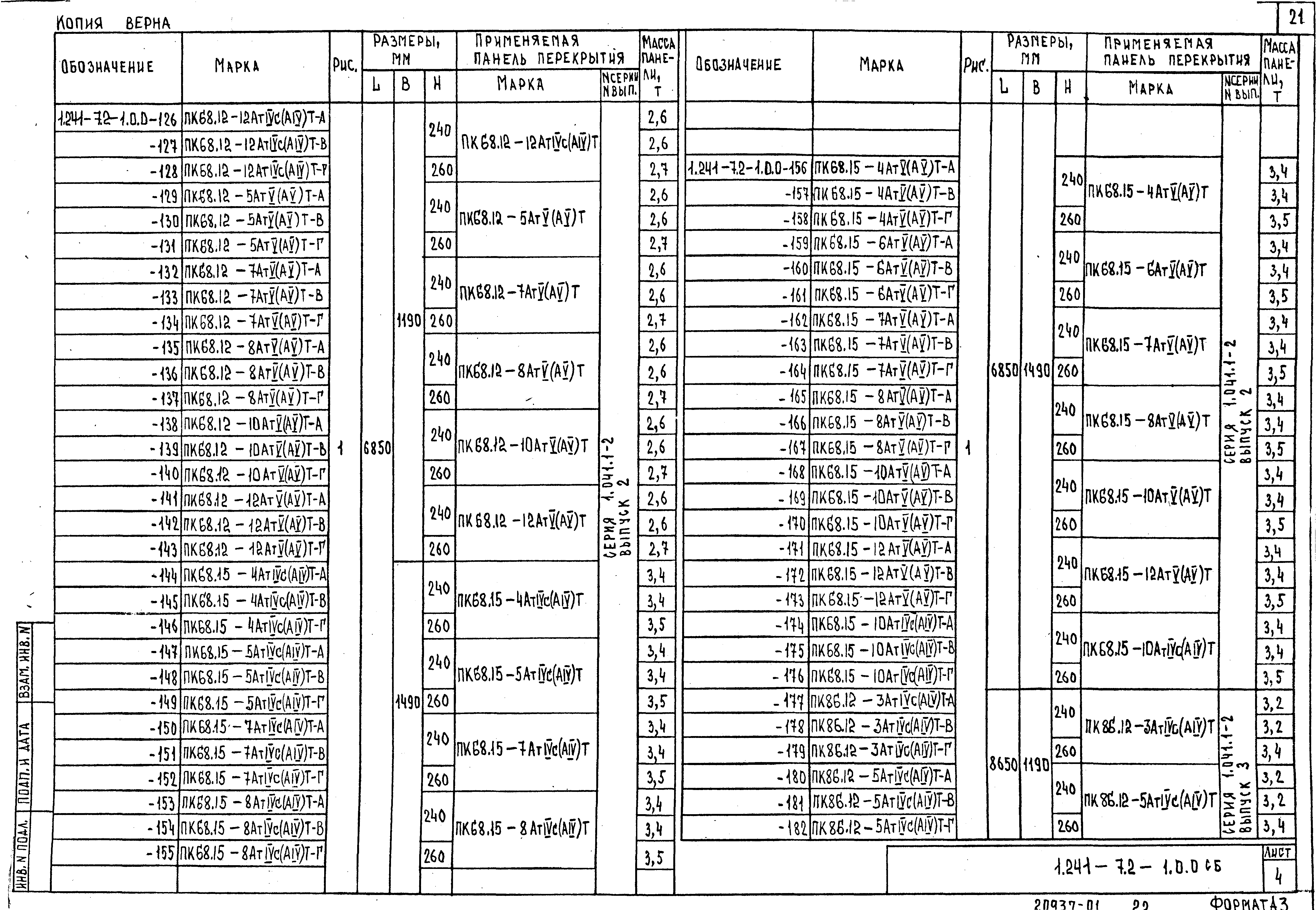
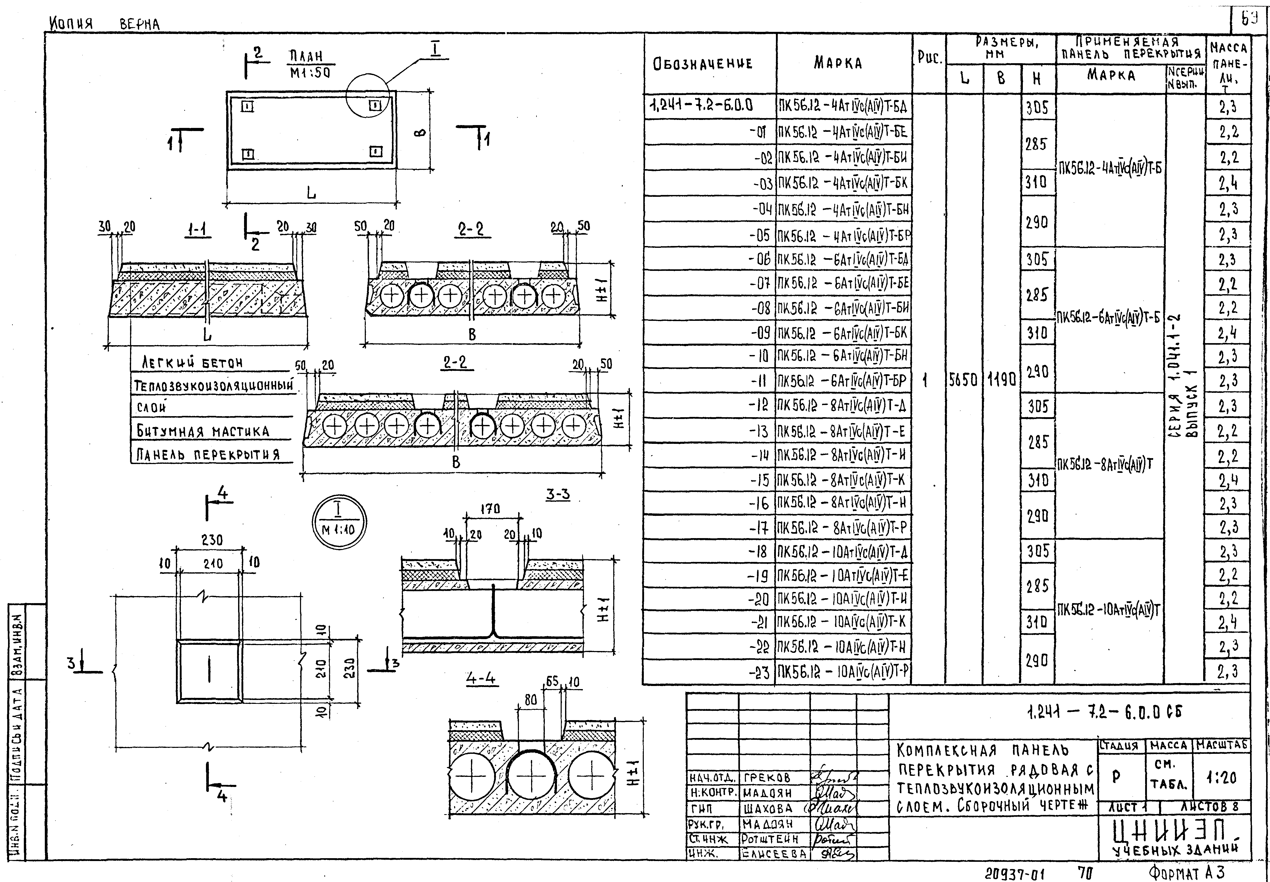
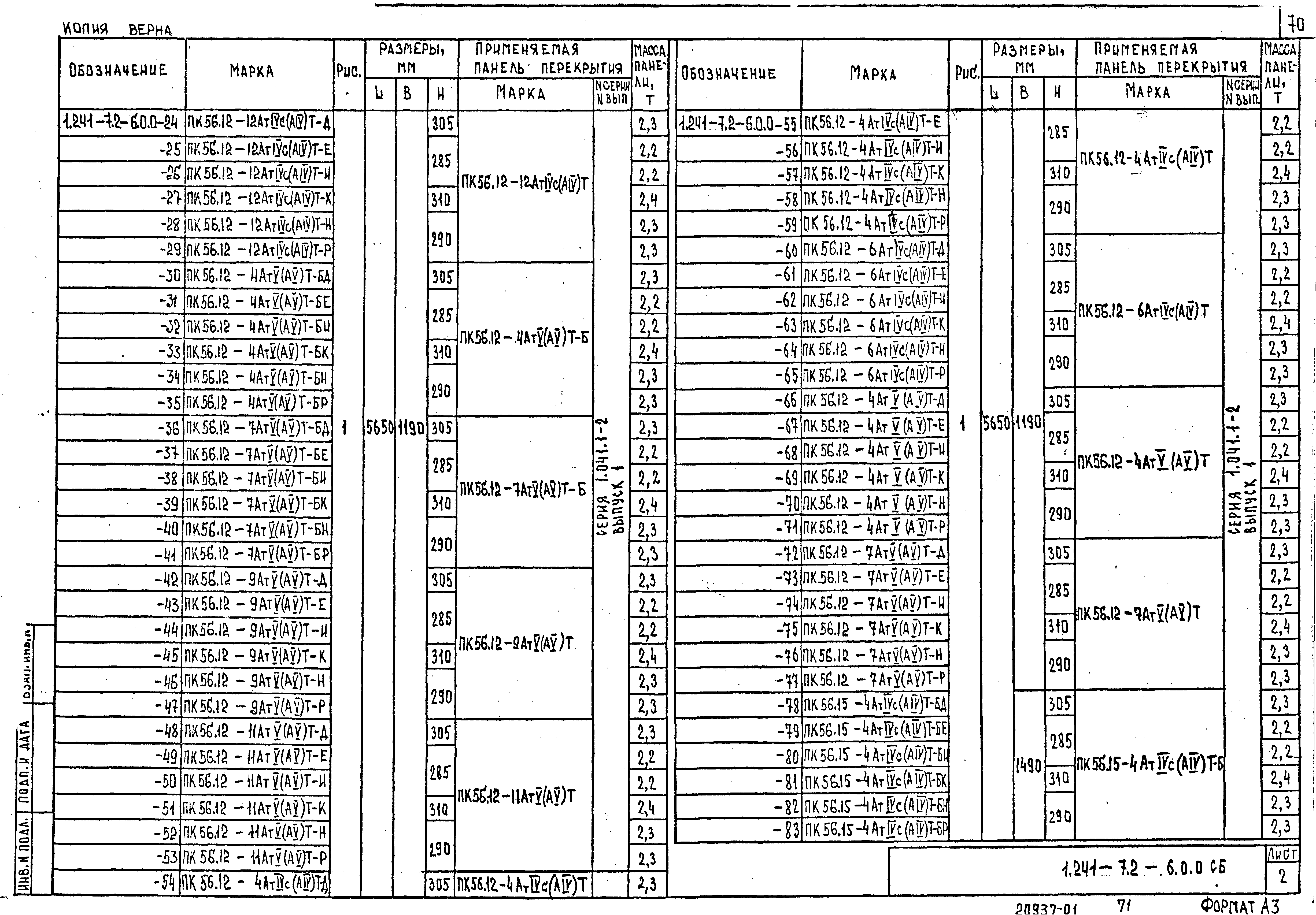
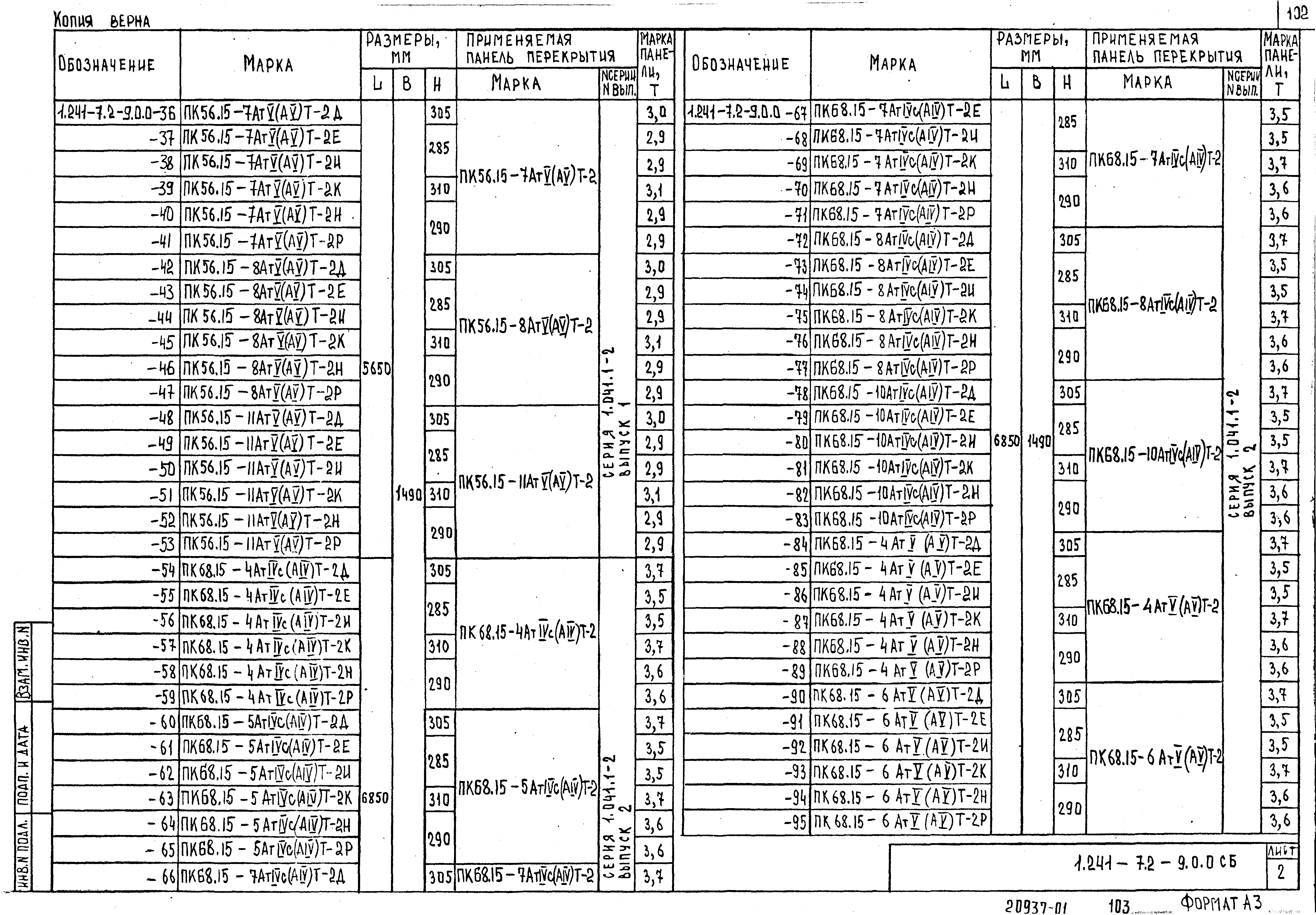
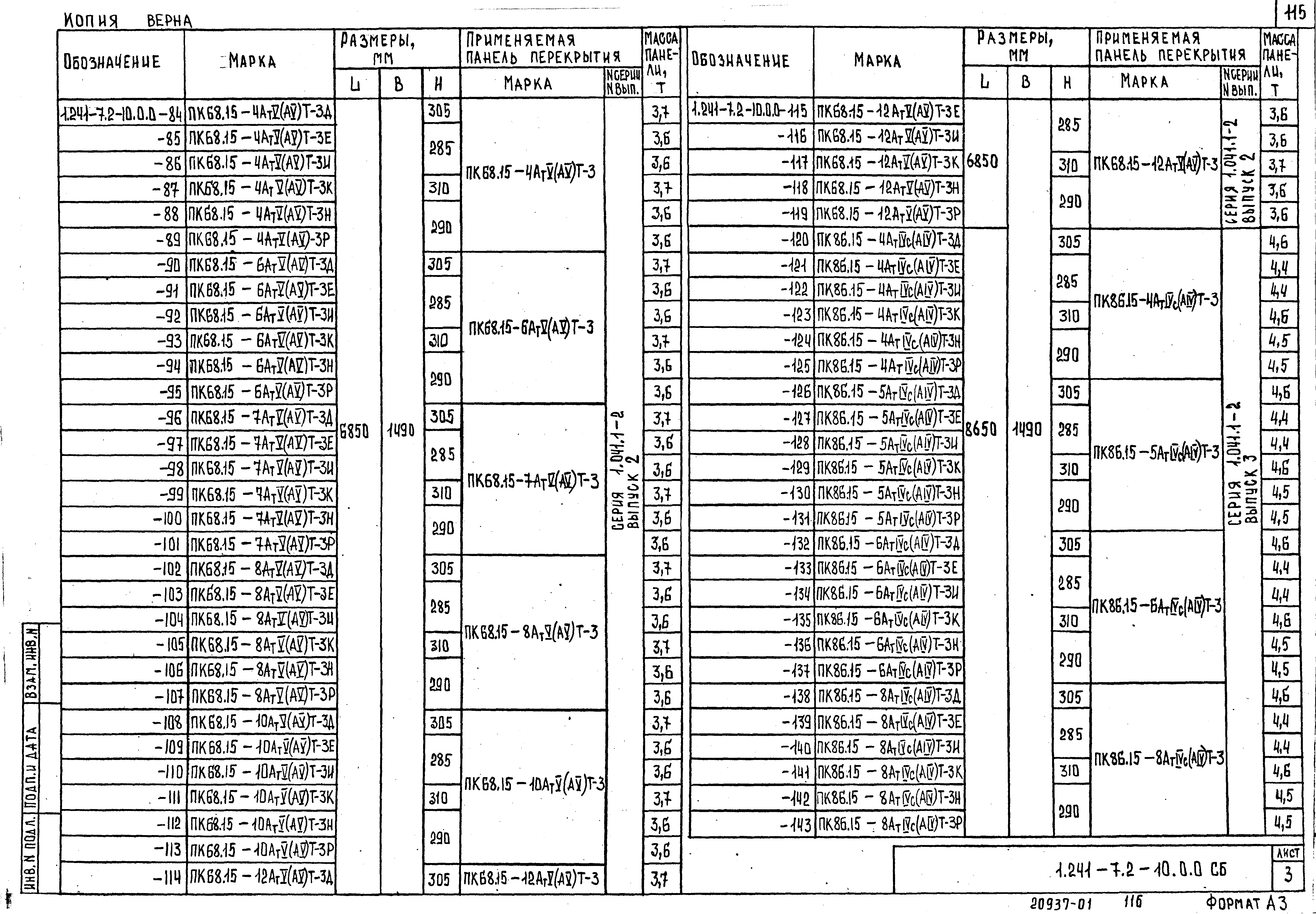
Скачать Серия 1.241-7 Выпуск 2. Часть 1. Плиты перекрытий многопустотные длиной 5650, 6850 и 8650 мм, шириной 940, 1190, 1490 и 2980 мм с основанием пола из легких бетонов и изоляционных материалов. Рабочие чертежиДата актуализации: 01.01.2021 Серия 1.241-7
Выпуск 2. Часть 1. Плиты перекрытий многопустотные длиной 5650, 6850 и 8650 мм, шириной 940, 1190, 1490 и 2980 мм с основанием пола из легких бетонов и изоляционных материалов. Рабочие чертежи| Обозначение: | Серия 1.241-7 | | Обозначение англ: | Series 1.241-7 | | Статус: | не определен законодательством | | Название рус.: | Выпуск 2. Часть 1. Плиты перекрытий многопустотные длиной 5650, 6850 и 8650 мм, шириной 940, 1190, 1490 и 2980 мм с основанием пола из легких бетонов и изоляционных материалов. Рабочие чертежи | | Дата добавления в базу: | 01.09.2013 | | Дата актуализации: | 01.01.2021 | | Дата введения: | 01.01.1986 | | Дата окончания срока действия: | 30.06.2003 | | Разработан: | ЦНИИЭП учебных зданий Госгражданстроя
| | Утверждён: | 05.12.1985 Госгражданстрой (Gosgrazhdanstroy 389)
| | Издан: | ЦИТП Госстроя СССР (CITP, Gosstroy (USSR) 1986 г. )
|
                                                                                                                    
|