Скачать Серия 1.143.1-9с Выпуск 1. Плиты толщиной 120 и 160 мм. Рабочие чертежиДата актуализации: 01.01.2021
|
| Обозначение: | Серия 1.143.1-9с |
| Обозначение англ: | Series 1.143.1-9с |
| Статус: | не определен законодательством |
| Название рус.: | Выпуск 1. Плиты толщиной 120 и 160 мм. Рабочие чертежи |
| Дата добавления в базу: | 01.09.2013 |
| Дата актуализации: | 01.01.2021 |
| Дата введения: | 15.01.1988 |
| Дата окончания срока действия: | 30.06.2003 |
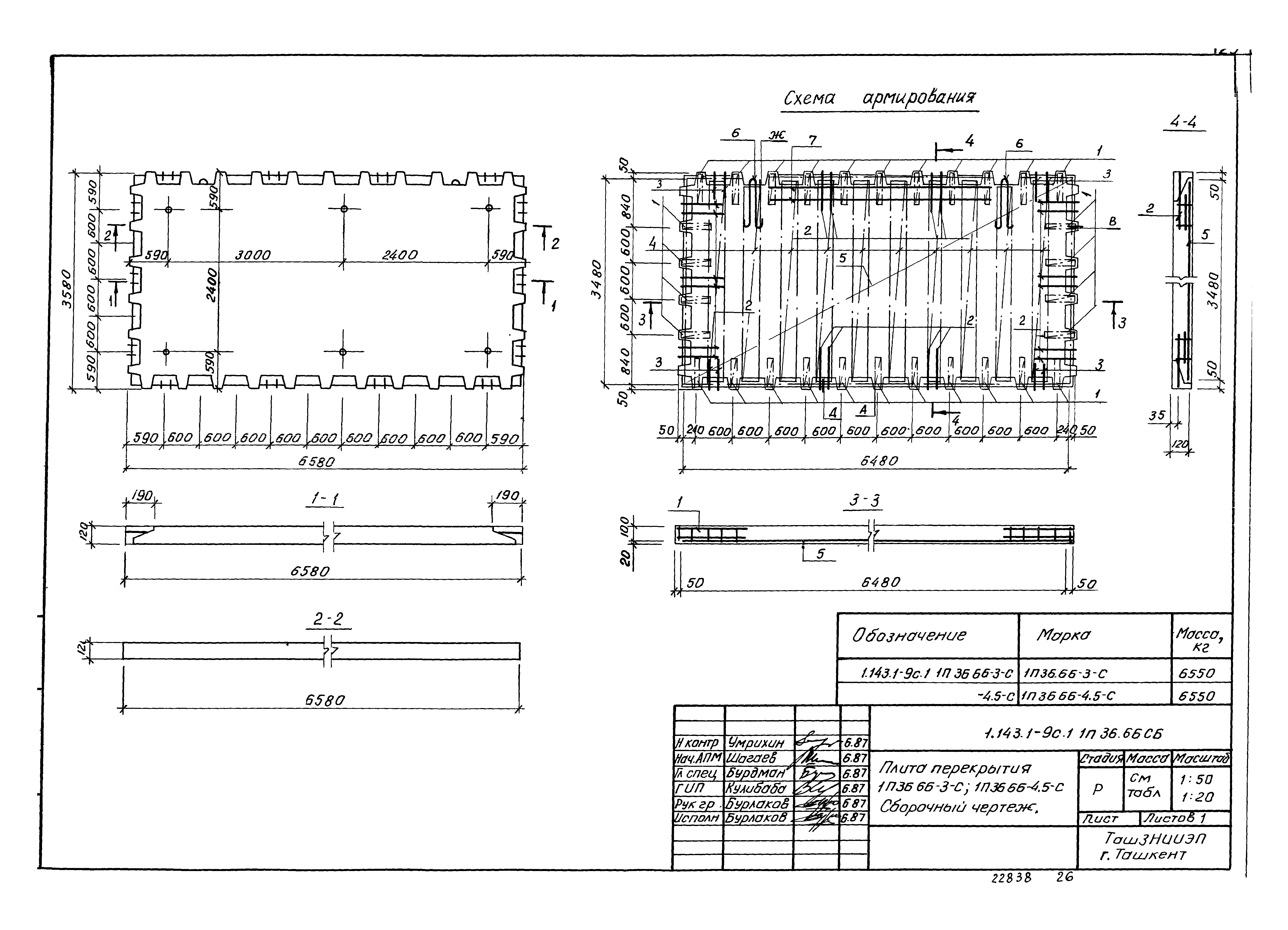
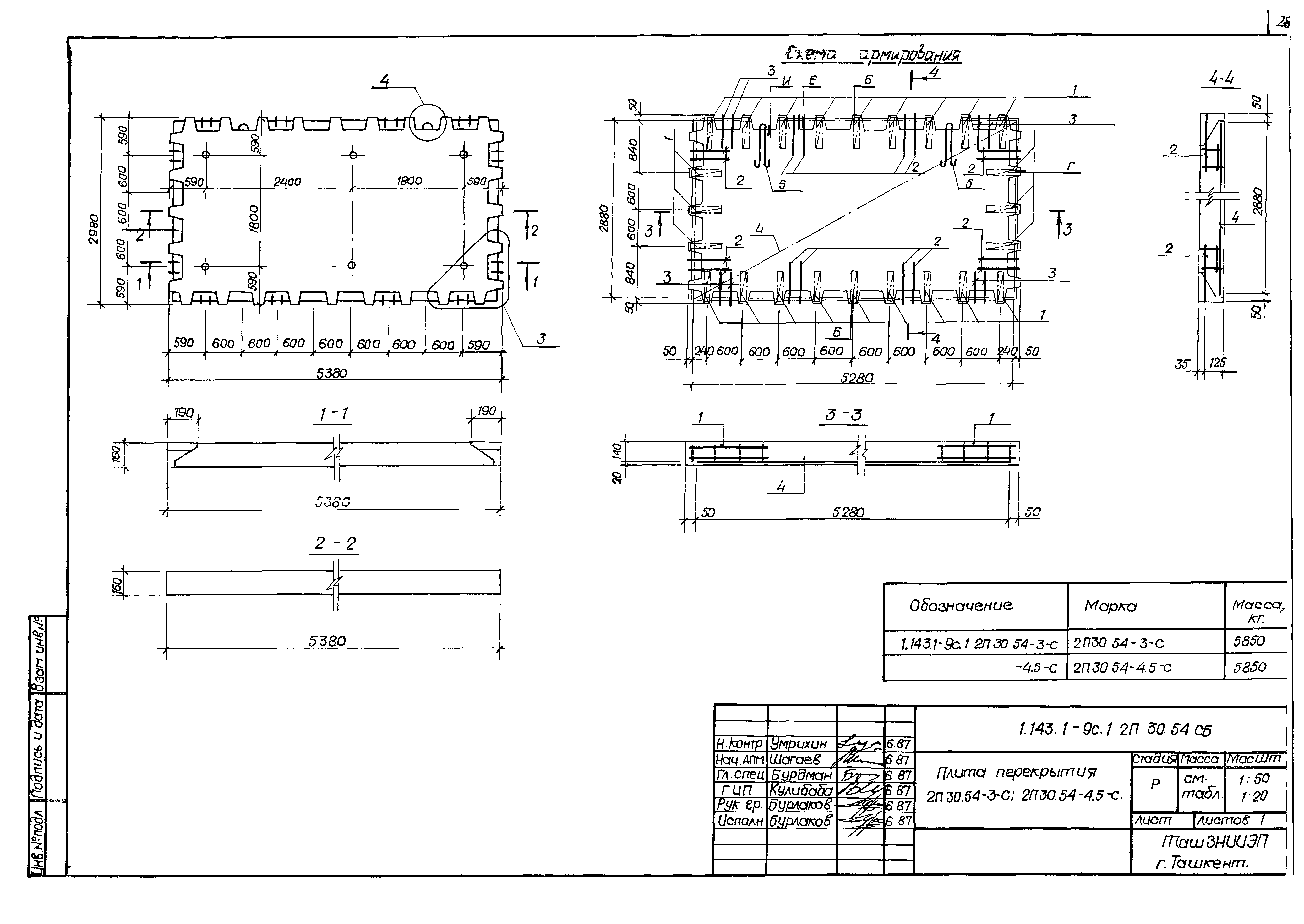
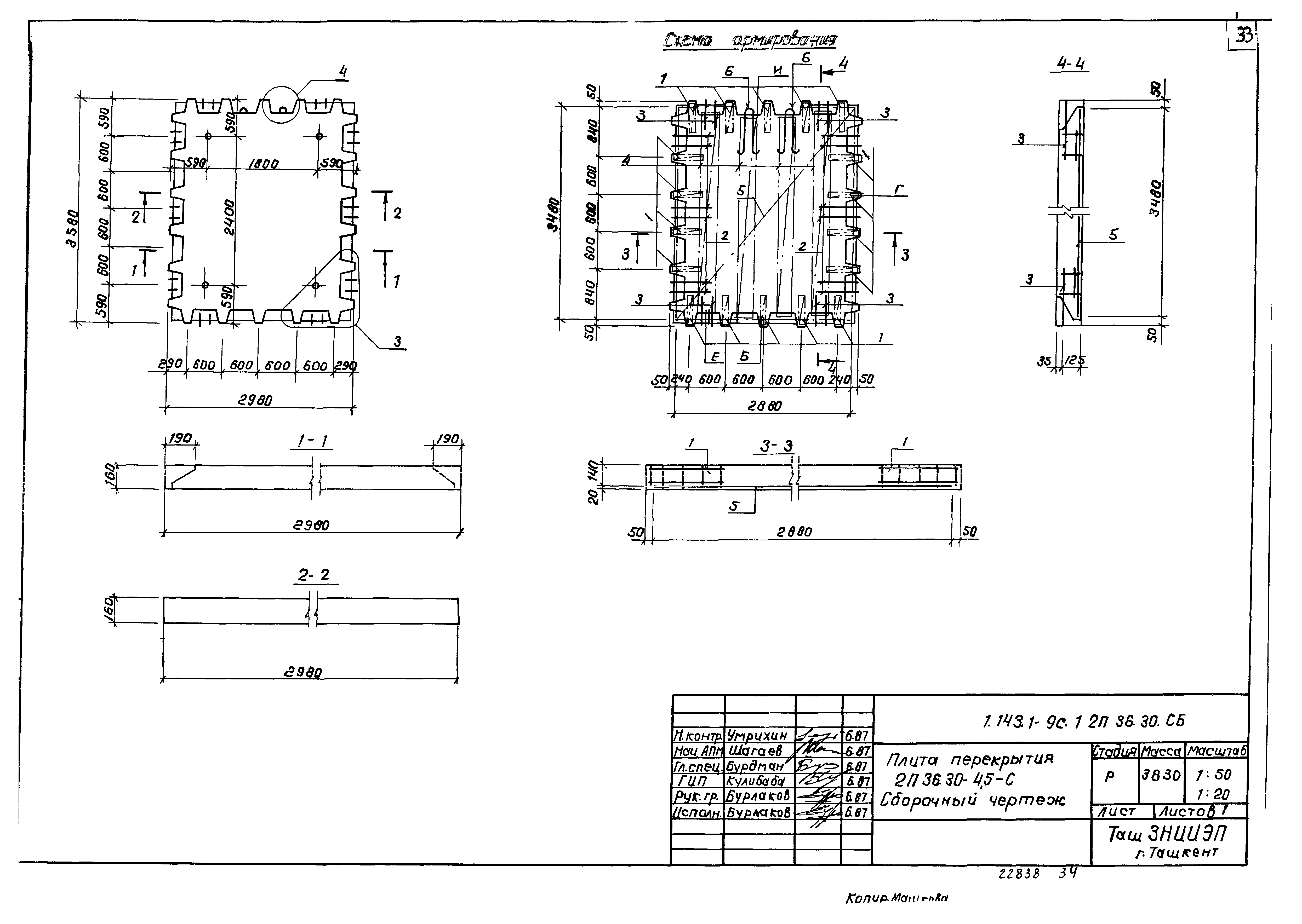
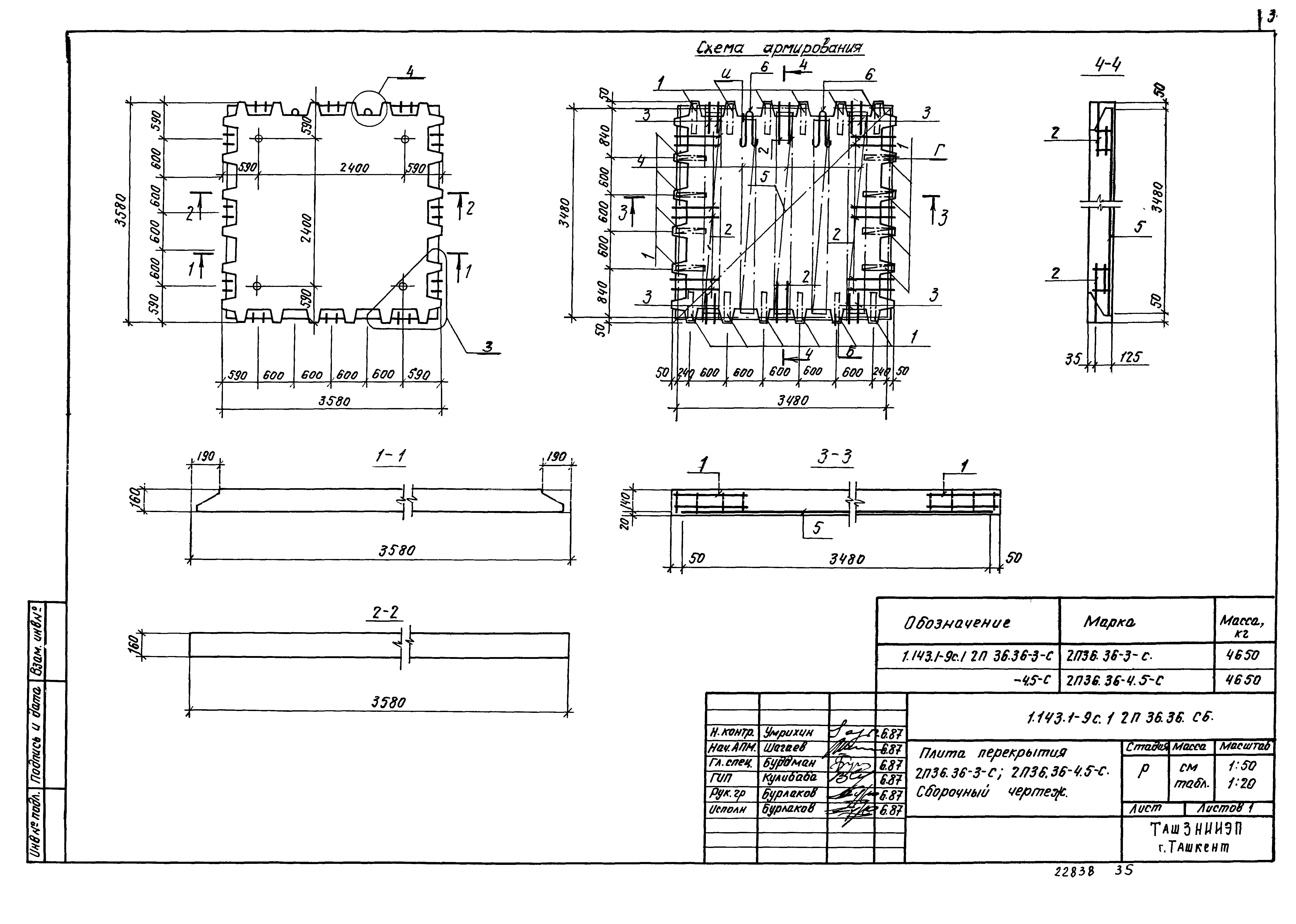
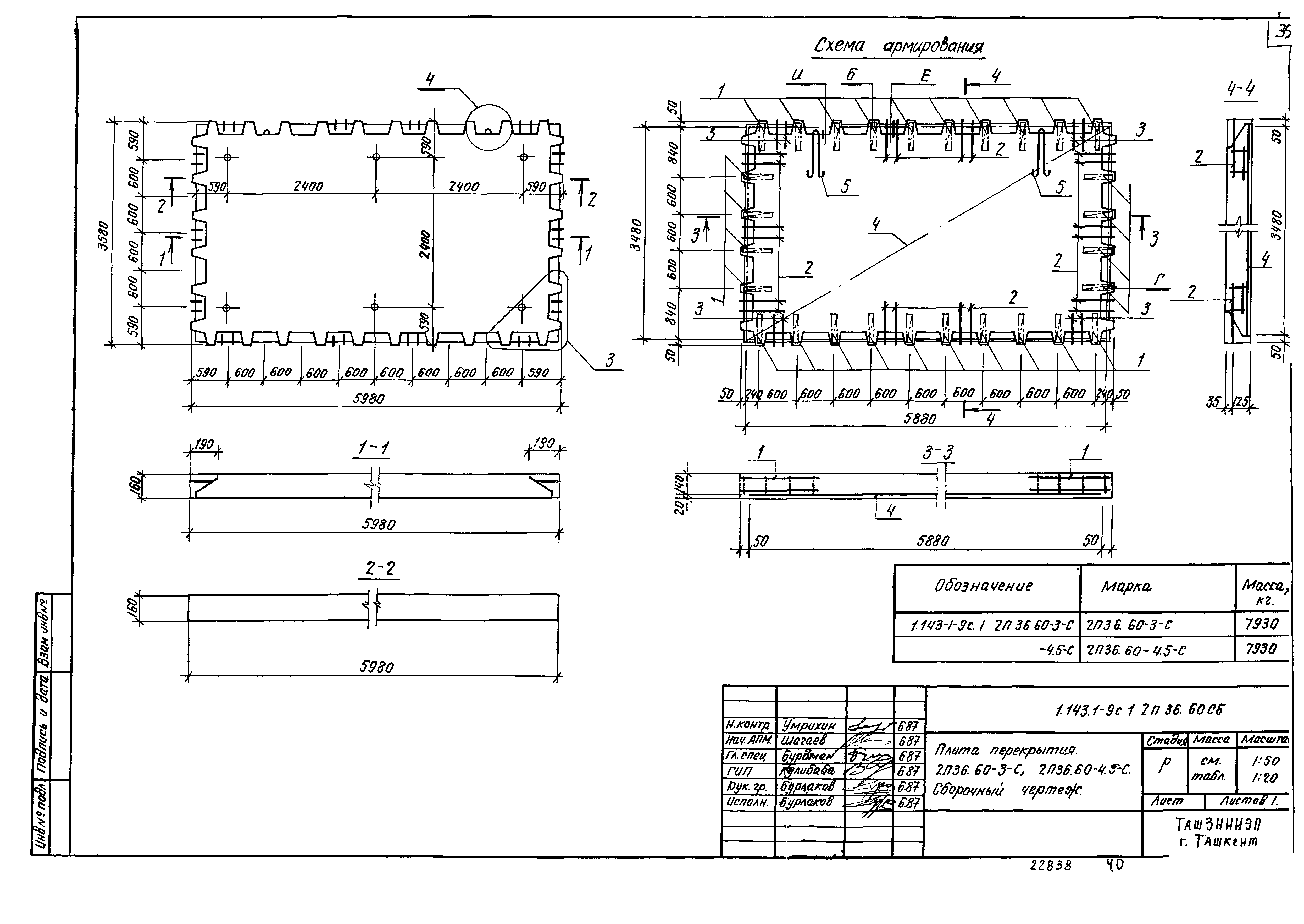
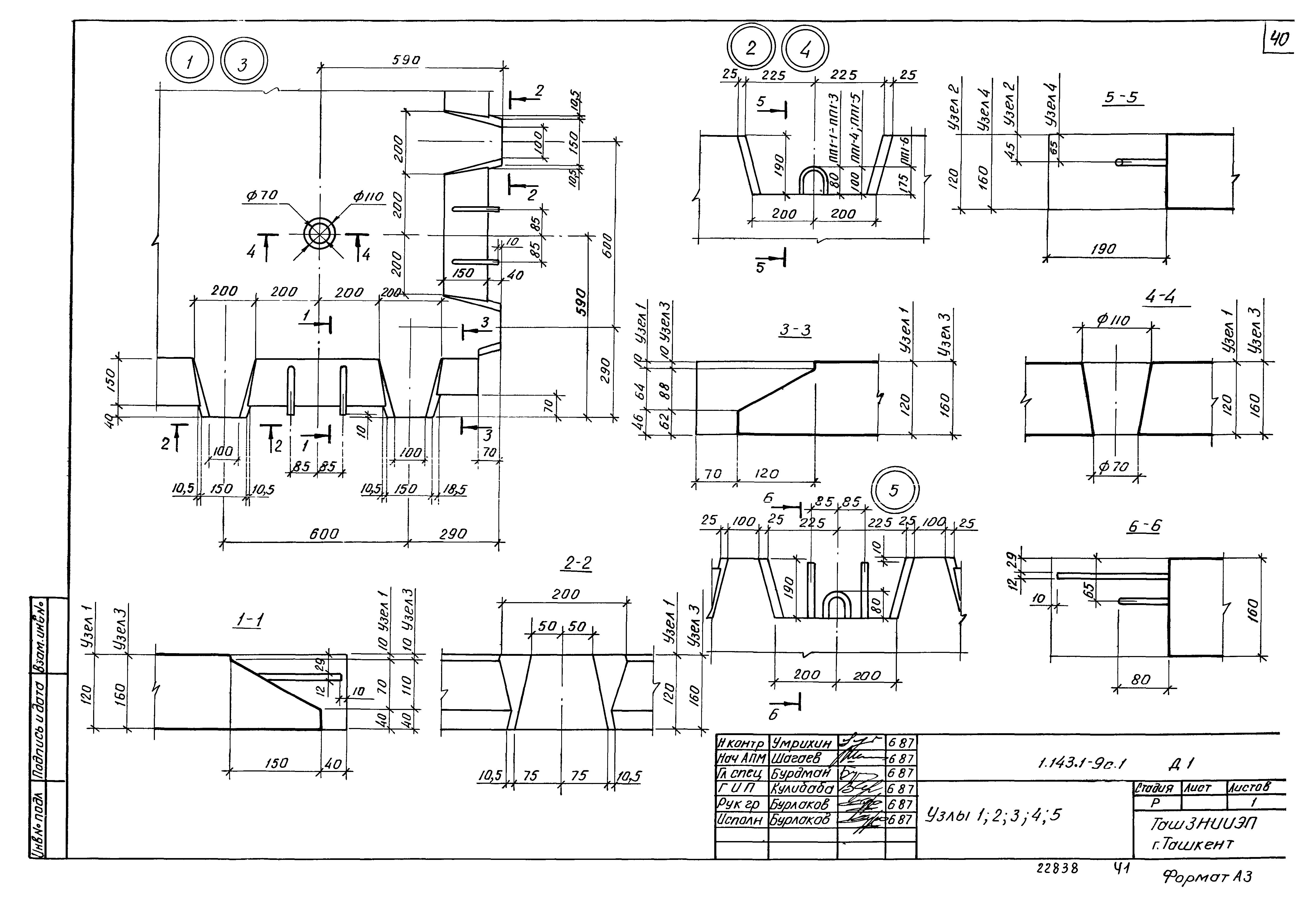
| Оглавление: | 1.143.1-9с.1 Содержание 1.143.1-9с.1 ТО Техническое описание 1.143.1-9с.1 ТУ Технические условия 1.143.1-9с.1 НИ Номенклатура изделий 1.143.1-9с.1 ДИ Данные для испытаний 1.143.1-9с.1 РС Ведомость расхода стали на элемент 1.143.1-9с.1 1П30.48 Плита перекрытия 1П.30.48-3-С;1П.30.48-4.5-С 1.143.1-9с.1 1П30.54 Плита перекрытия 1П.30.54-3-С;1П.30.54-4.5-С 1.143.1-9с.1 1П30.48СБ Плита перекрытия 1П.30.48-3-С;1П.30.48-4.5-С. Сборочный чертеж 1.143.1-9с.1 1П30.54СБ Плита перекрытия 1П.30.54-3-С;1П.30.54-4.5-С. Сборочный чертеж 1.143.1-9с.1 1П30.60 Плита перекрытия 1П.30.60-3-С;1П.30.60-4.5-С 1.143.1-9с.1 1П30.66 Плита перекрытия 1П.30.66-3-С;1П.30.66-4.5-С 1.143.1-9с.1 1П30.60СБ Плита перекрытия 1П.30.60-3-С;1П.30.60-4.5-С. Сборочный чертеж 1.143.1-9с.1 1П30.66СБ Плита перекрытия 1П.30.66-3-С;1П.30.66-4.5-С. Сборочный чертеж 1.143.1-9с.1 1П36.48 Плита перекрытия 1П.36.48-3-С;1П.36.48-4.5-С 1.143.1-9с.1 1П36.54 Плита перекрытия 1П.36.54-3-С;1П.36.54-4.5-С 1.143.1-9с.1 1П36.48СБ Плита перекрытия 1П.36.48-3-С;1П.36.48-4.5-С. Сборочный чертеж 1.143.1-9с.1 1П36.54СБ Плита перекрытия 1П.36.54-3-С;1П.36.54-4.5-С. Сборочный чертеж 1.143.1-9с.1 1П36.60 Плита перекрытия 1П.36.60-3-С;1П.36.60-4.5-С 1.143.1-9с.1 1П36.66 Плита перекрытия 1П.36.66-3-С;1П.36.66-4.5-С 1.143.1-9с.1 1П36.60СБ Плита перекрытия 1П.36.60-3-С;1П.36.60-4.5-С. Сборочный чертеж 1.143.1-9с.1 1П36.66СБ Плита перекрытия 1П.36.66-3-С;1П.36.66-4.5-С. Сборочный чертеж 1.143.1-9с.1 2П30.48 Плита перекрытия 2П.30.48-3-С;2П.30.48-4.5-С 1.143.1-9с.1 2П30.54 Плита перекрытия 2П.30.54-3-С;2П.30.54-4.5-С 1.143.1-9с.1 2П30.48СБ Плита перекрытия 2П.30.48-3-С;2П.30.48-4.5-С. Сборочный чертеж 1.143.1-9с.1 2П30.54СБ Плита перекрытия 2П.30.54-3-С;2П.30.54-4.5-С. Сборочный чертеж 1.143.1-9с.1 2П30.60 Плита перекрытия 2П.30.60-3-С;2П.30.60-4.5-С 1.143.1-9с.1 2П36.24 Плита перекрытия 2П.36.24-4.5С 1.143.1-9с.1 2П30.60СБ Плита перекрытия 2П.30.60-3-С;2П.30.60-4.5-С. Сборочный чертеж 1.143.1-9с.1 2П36.24СБ Плита перекрытия 2П.36.24-4.5С. Сборочный чертеж 1.143.1-9с.1 2П36.30 Плита перекрытия 2П.36.30-4.5С 1.143.1-9с.1 2П36.36 Плита перекрытия 2П.36.36-3-С;2П.36.36-4.5-С 1.143.1-9с.1 2П36.30СБ Плита перекрытия 2П.36.30-4.5С. Сборочный чертеж 1.143.1-9с.1 2П36.36СБ Плита перекрытия 2П.36.36-3-С;2П.36.36-4.5-С. Сборочный чертеж 1.143.1-9с.1 2П36.54 Плита перекрытия 2П.36.48-3-С;2П.36.48-4.5-С 1.143.1-9с.1 2П36.48СБ Плита перекрытия 2П.36.54-3-С;2П.36.54-4.5-С 1.143.1-9с.1 2П36.54СБ Плита перекрытия 2П.36.48-3-С;2П.36.48-4.5-С. Сборочный чертеж 1.143.1-9с.1 2П36.60 Плита перекрытия 2П.36.54-3-С;2П.36.54-4.5-С. Сборочный чертеж 1.143.1-9с.1 2П36.60СБ Плита перекрытия 2П.36.60-3-С;2П.36.60-4.5-С 1.143.1-9с.1 Д1 Плита перекрытия 2П.36.60-3-С;2П.36.60-4.5-С. Сборочный чертеж 1.143.1-9с.1 Д2 Узлы 1;2;3;4;5 1.143.1-9с.1 РМ Узлы А;Б;В;Г;Д;Е;Ж;И 1.143.1-9с.1 Ведомость потребности в материалах |
| Разработан: | ТашЗНИИЭП Госгражданстроя |
| Утверждён: | 24.12.1987 Государственный комитет по гражданскому строительству и архитектуре при Госстрое СССР (438) |
| Издан: | ЦИТП Госстроя СССР (CITP, Gosstroy (USSR) 1988 г. ) |
















































