Скачать Серия 2.140-6 Узлы деревянных перекрытий жилых сельских зданий. Рабочие чертежиДата актуализации: 01.01.2021
|
| Обозначение: | Серия 2.140-6 |
| Обозначение англ: | Series 2.140-6 |
| Статус: | действует |
| Название рус.: | Узлы деревянных перекрытий жилых сельских зданий. Рабочие чертежи |
| Дата добавления в базу: | 01.09.2013 |
| Дата актуализации: | 01.01.2021 |
| Дата введения: | 15.12.1986 |
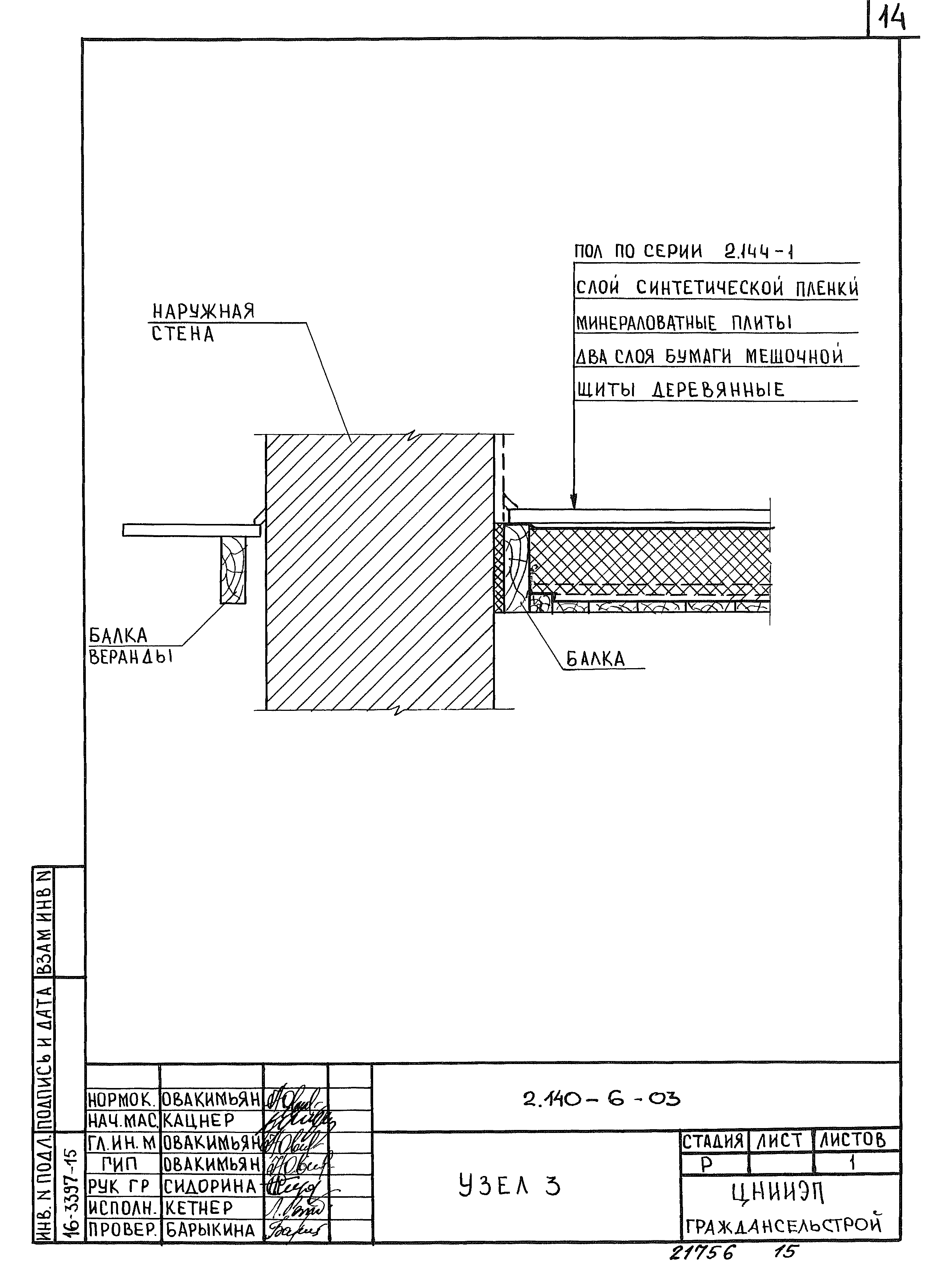
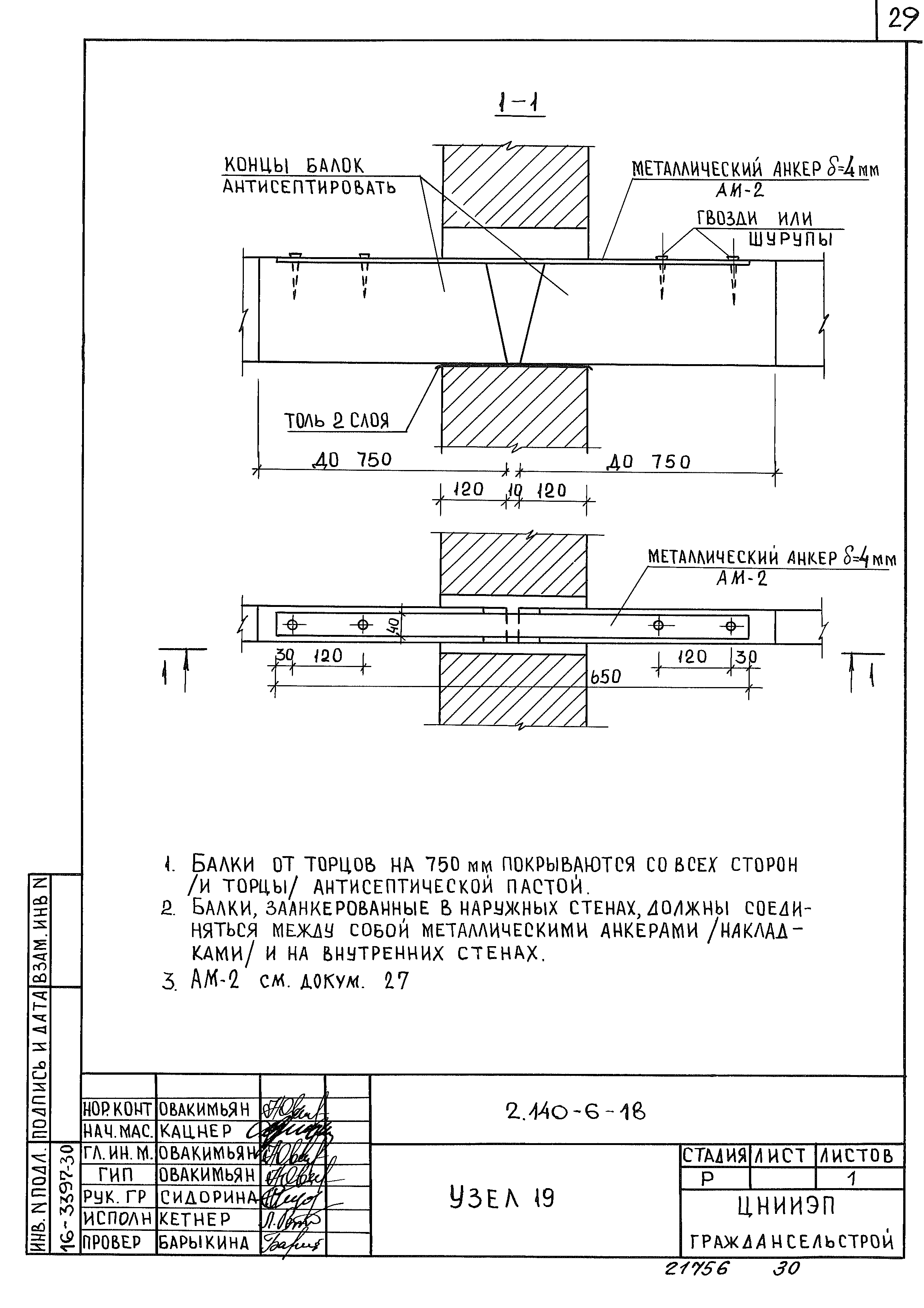
| Оглавление: | 2.140-6-00ПЗ Пояснительная записка 2.140-6-01 Узел 1 2.140-6-02 Узел 2 2.140-6-03 Узел 3 2.140-6-04 Узел 4 2.140-6-05 Узел 5 2.140-6-06 Узел 6 2.140-6-07 Узел 7,8 2.140-6-08 Узел 9 2.140-6-09 Узел 10 2.140-6-10 Узел 11 2.140-6-11 Узел 12 2.140-6-12 Узел 13 2.140-6-13 Узел 14 2.140-6-14 Узел 15 2.140-6-15 Узел 16 2.140-6-16 Узел 17 2.140-6-17 Узел 18 2.140-6-18 Узел 19 2.140-6-19 Узел 20,21 2.140-6-20 Узел 22 2.140-6-21 Узел 23 2.140-6-22 Узел 24,25 2.140-6-23 Узел 26,27 2.140-6-24 Узел 28 2.140-6-25 Узел 29 2.140-6-26 Узел 30,31 2.140-6-27 АМ-1 2.140-6-28 АМ-2,ХМ-1 |
| Разработан: | ЦНИИЭП граждансельстрой |
| Утверждён: | 23.10.1986 Государственный комитет по гражданскому строительству и архитектуре при Госстрое СССР (339) |







































