Скачать Серия 1.252.1-4 Выпуск 2. Лестничные площадки ребристой конструкции шириной 120, 135 см для крупноблочных зданий высотой 2-3 этажа. Указания по применению изделий. Рабочие чертежиДата актуализации: 01.01.2021
|
| Обозначение: | Серия 1.252.1-4 |
| Обозначение англ: | Series 1.252.1-4 |
| Статус: | действует |
| Название рус.: | Выпуск 2. Лестничные площадки ребристой конструкции шириной 120, 135 см для крупноблочных зданий высотой 2-3 этажа. Указания по применению изделий. Рабочие чертежи |
| Дата добавления в базу: | 01.09.2013 |
| Дата актуализации: | 01.01.2021 |
| Дата введения: | 15.03.1990 |
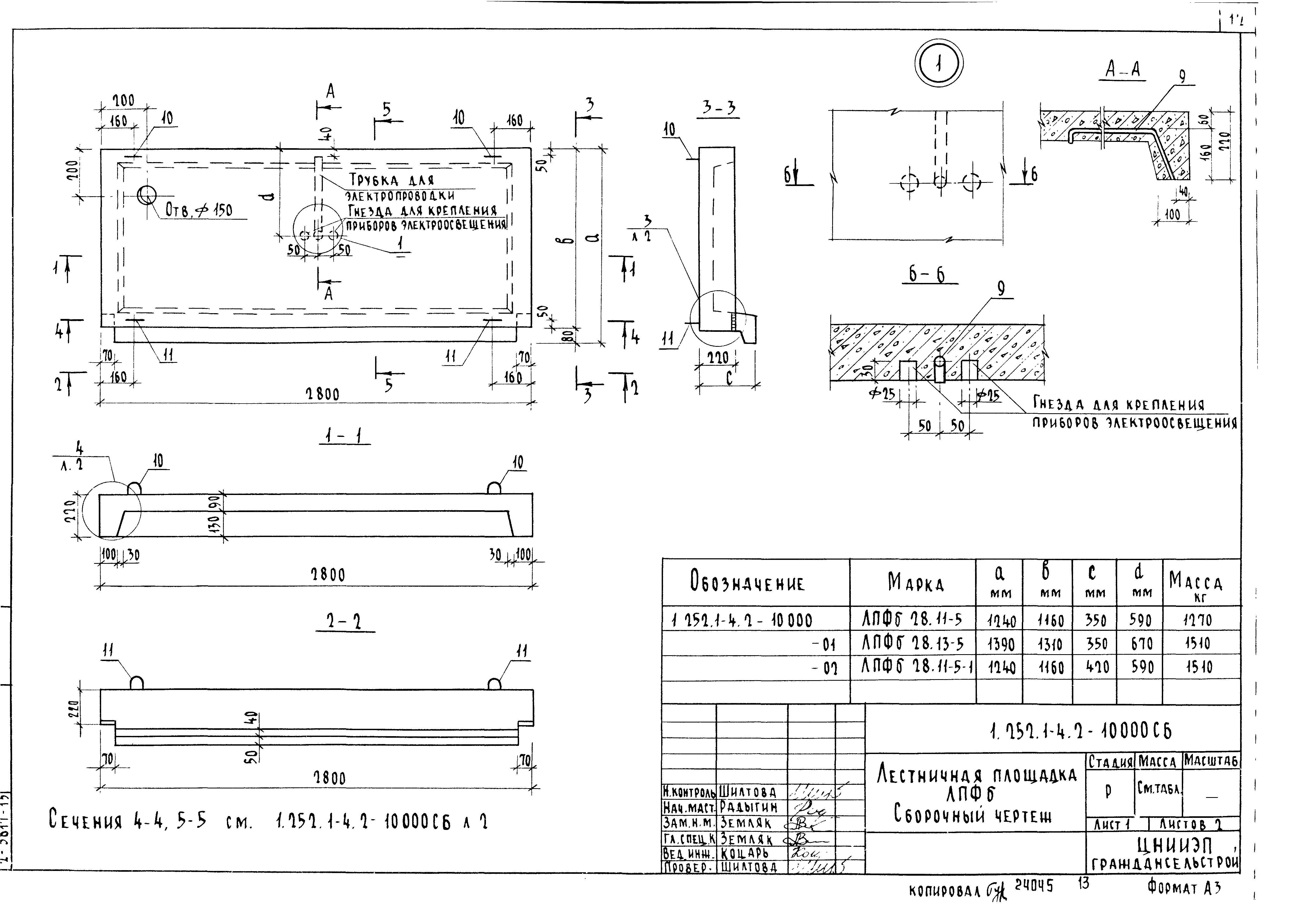
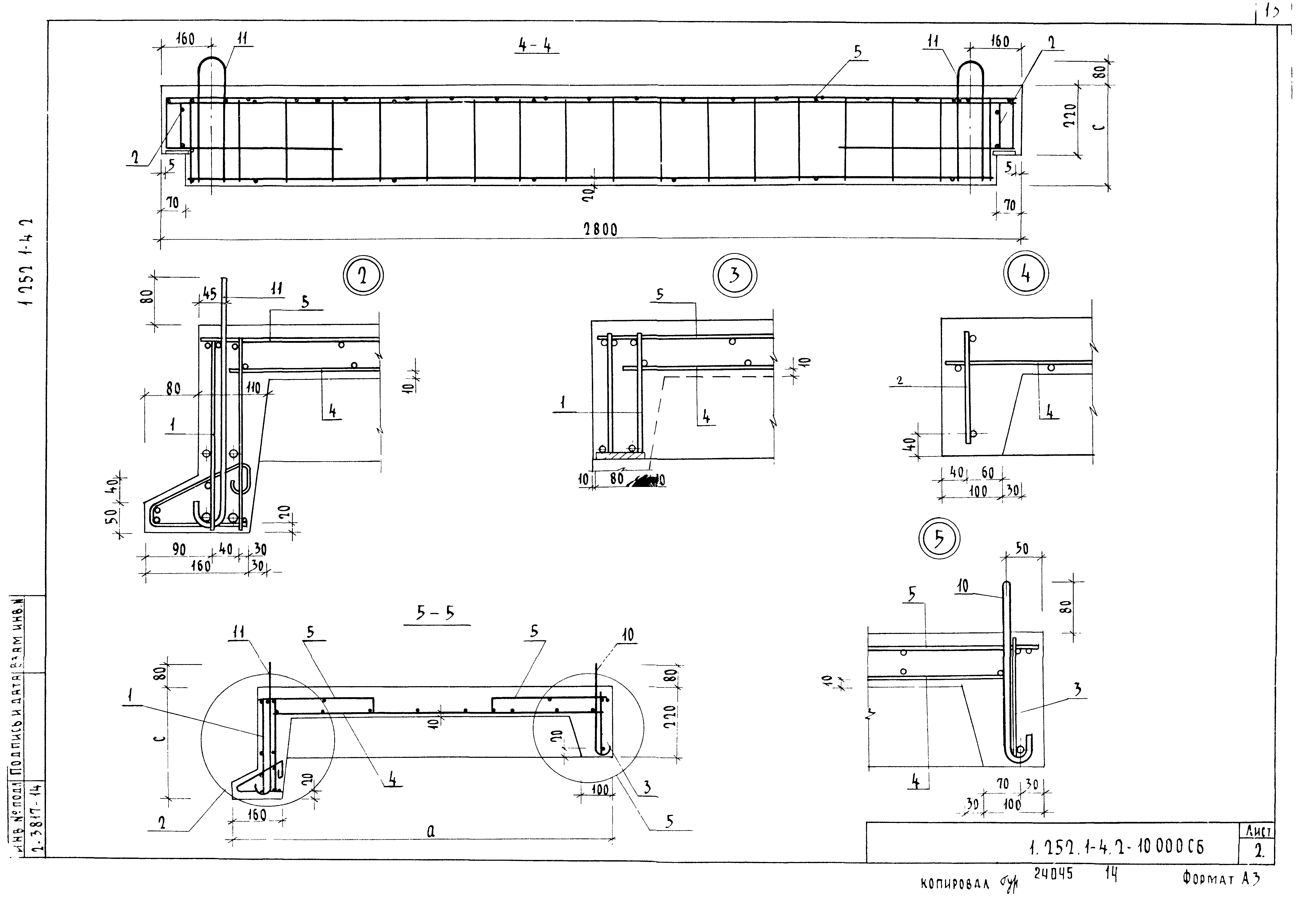
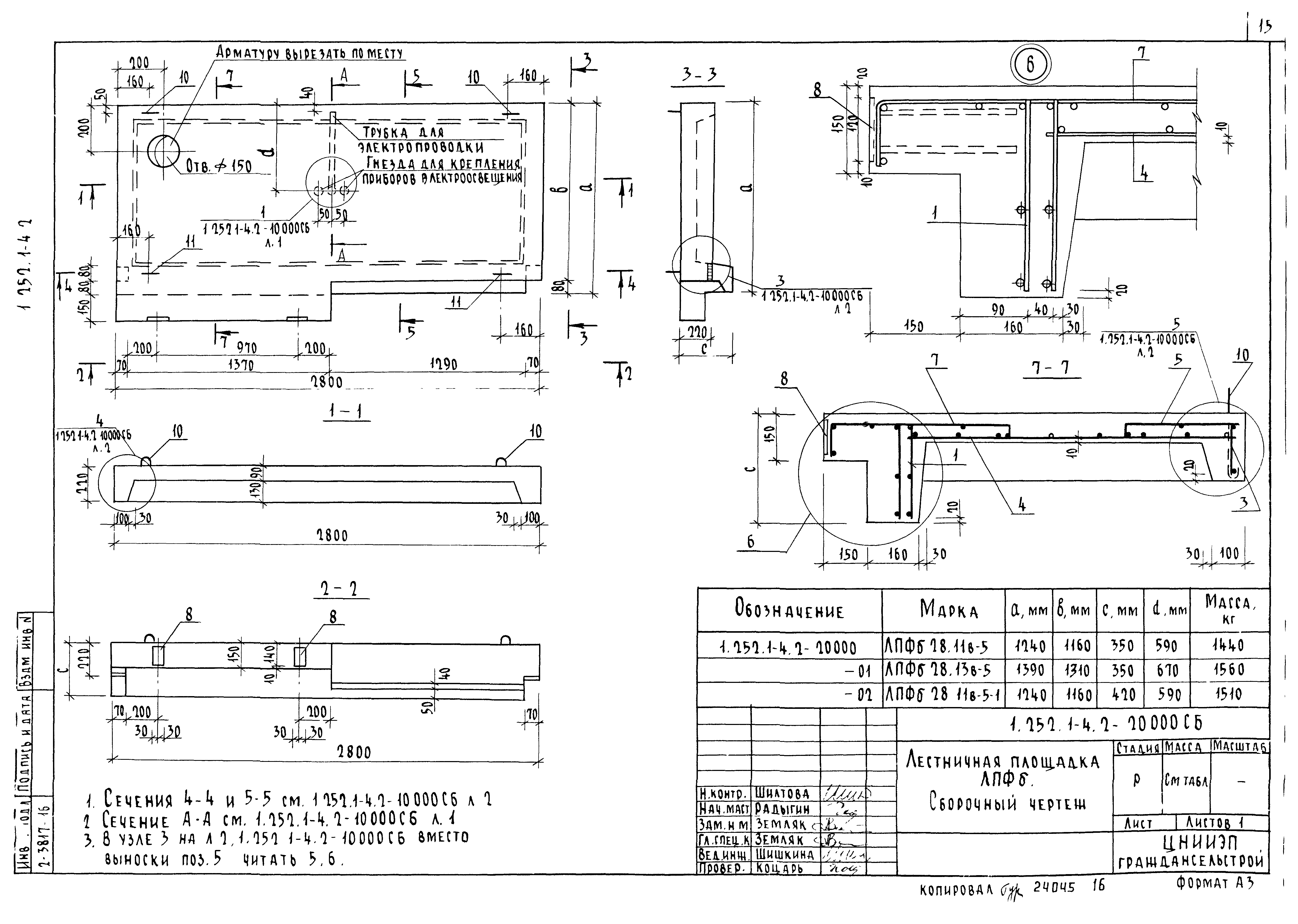
| Оглавление: | 1-252.1-4.2-00000МС Монтажная схема лестниц для зданий с высотой этажа 3,3м;3,6м;4,2м 1-252.1-4.2-00000НИ Номенклатура изделий 1-252.1-4.2-00000ТТ Технические требования 1-252.1-4.2-00000РС Ведомость расхода стали, кг 1-252.1-4.2-10000 Лестничная площадка ЛПФб 1-252.1-4.2-10000СБ Лестничная площадка ЛПФб. Сборочный чертеж 1-252.1-4.2-20000 Лестничная площадка ЛПФб 1-252.1-4.2-20000СБ Лестничная площадка ЛПФб. Сборочный чертеж 1-252.1-4.2-30000 Лестничная площадка ЛПФб 1-252.1-4.2-30000СБ Лестничная площадка ЛПФб. Сборочный чертеж 1-252.1-4.2-01000 Каркас пространственный КП 1-252.1-4.2-01000СБ Каркас пространственный КП. Сборочный чертеж 1-252.1-4.2-02000 Каркас пространственный КП 1-252.1-4.2-02000СБ Каркас пространственный КП. Сборочный чертеж 1-252.1-4.2-00100 Каркас плоский КР 1-252.1-4.2-00100СБ Каркас плоский КР. Сборочный чертеж 1-252.1-4.2-00200 Каркас плоский КР 1-252.1-4.2-00300 Каркас плоский КР. Сборочный чертеж 1-252.1-4.2-00400 Сетка арматурная С 1-252.1-4.2-00400СБ Сетка арматурная С. Сборочный чертеж 1-252.1-4.2-00500 Сетка арматурная С 1-252.1-4.2-00600 Сетка арматурная С 1-252.1-4.2-00700 Сетка арматурная С7 1-252.1-4.2-00800 Изделие закладное ИМ1 1-252.1-4.2-00900 Изделие закладное ИМ 1-252.1-4.2-00910 Изделие закладное ПС |
| Разработан: | ЦНИИЭПгражданстрой |
| Утверждён: | 29.06.1989 Госкомархитектура (ЮШ-2-1079) |
| Издан: | ЦИТП Госстроя СССР (CITP, Gosstroy (USSR) 1989 г. ) |


























