Скачать Серия 1.089.1-2 Выпуск 0-1. Шахты пассажирских и грузовых лифтов по альбому АТ-6. Материалы для проектирования. Указания по монтажуДата актуализации: 01.01.2021
|
| Обозначение: | Серия 1.089.1-2 |
| Обозначение англ: | Series 1.089.1-2 |
| Статус: | не определен законодательством |
| Название рус.: | Выпуск 0-1. Шахты пассажирских и грузовых лифтов по альбому АТ-6. Материалы для проектирования. Указания по монтажу |
| Дата добавления в базу: | 01.09.2013 |
| Дата актуализации: | 01.01.2021 |
| Дата введения: | 01.01.1993 |
| Дата окончания срока действия: | 30.06.2003 |
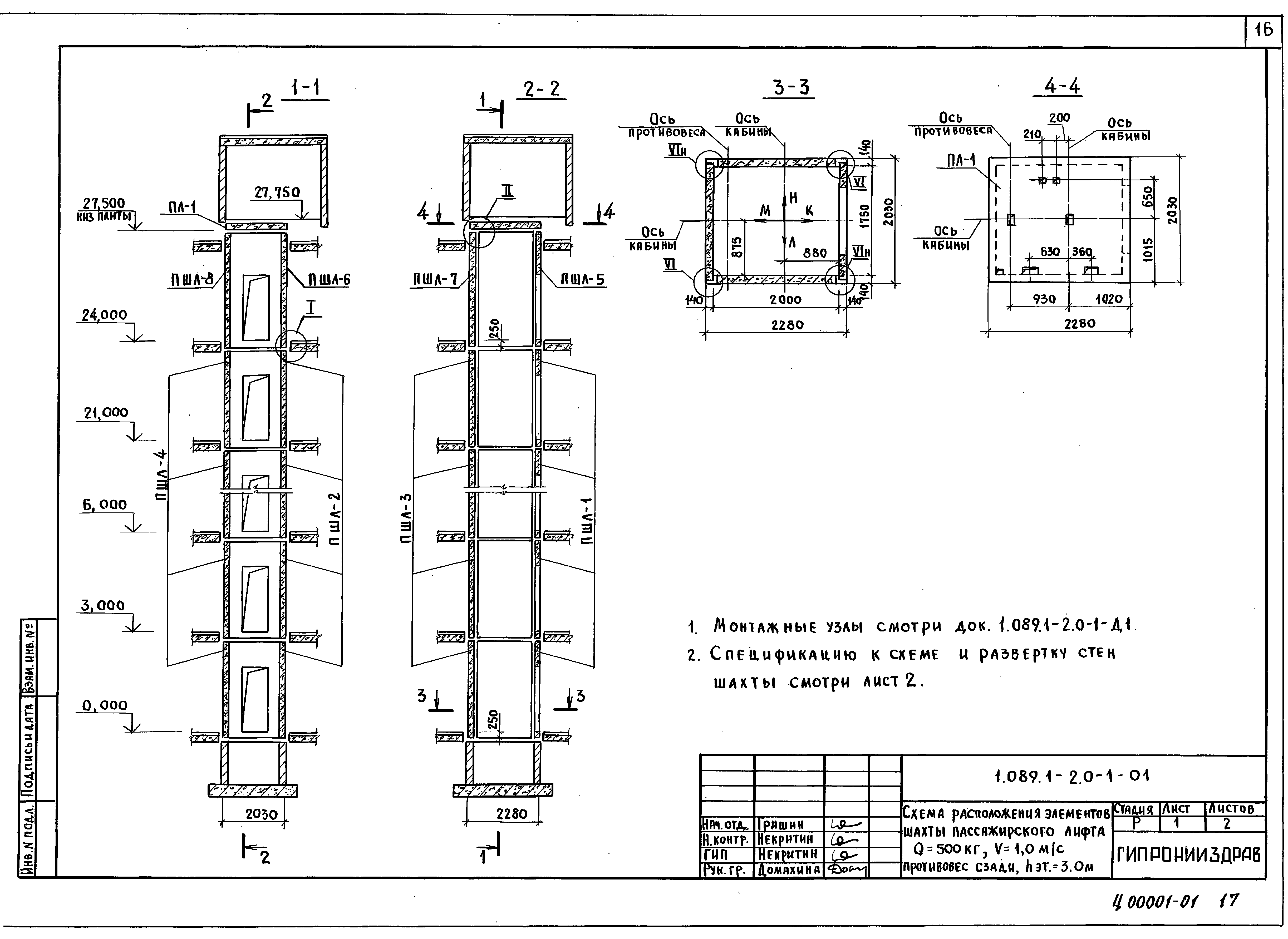
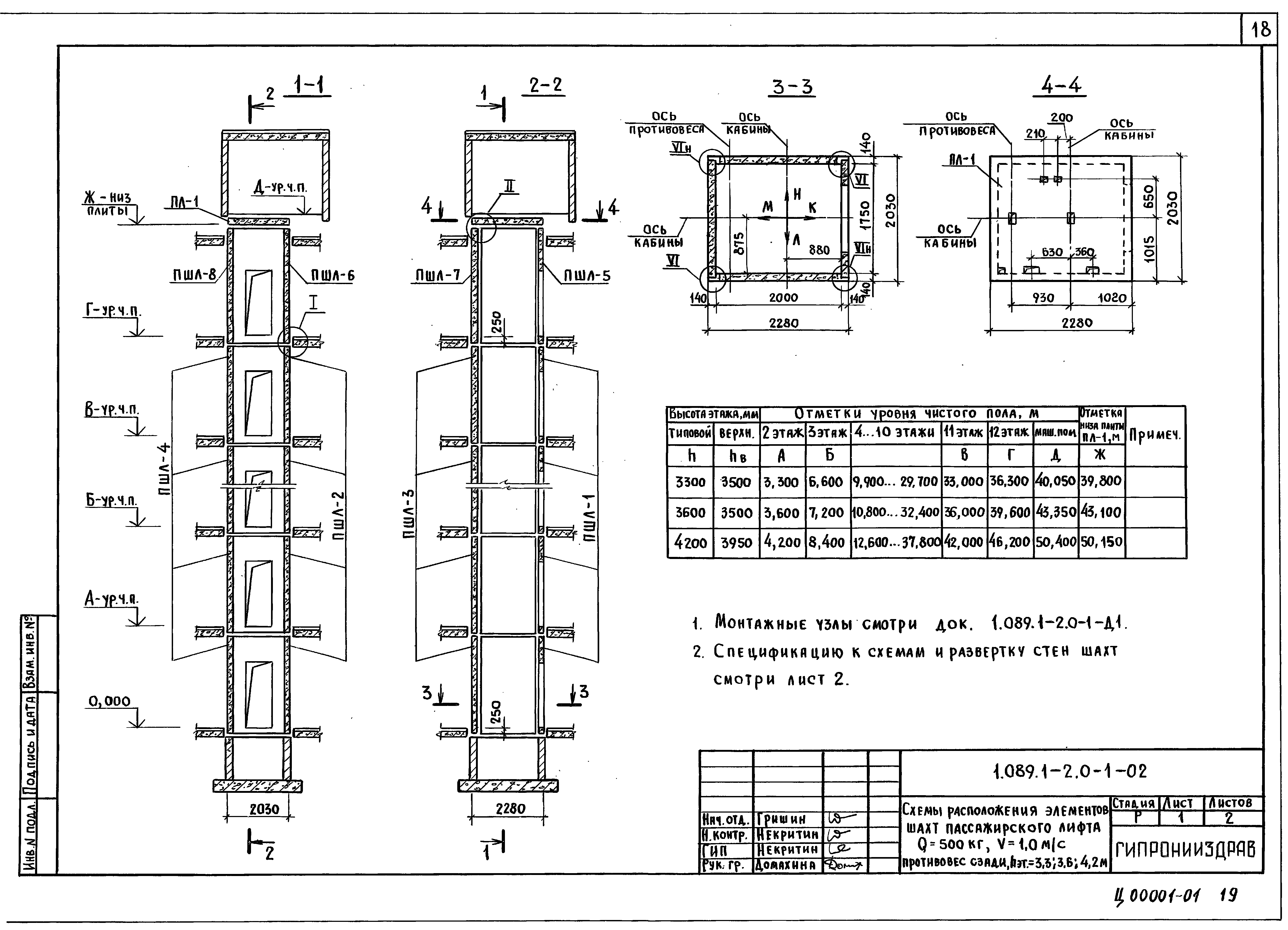
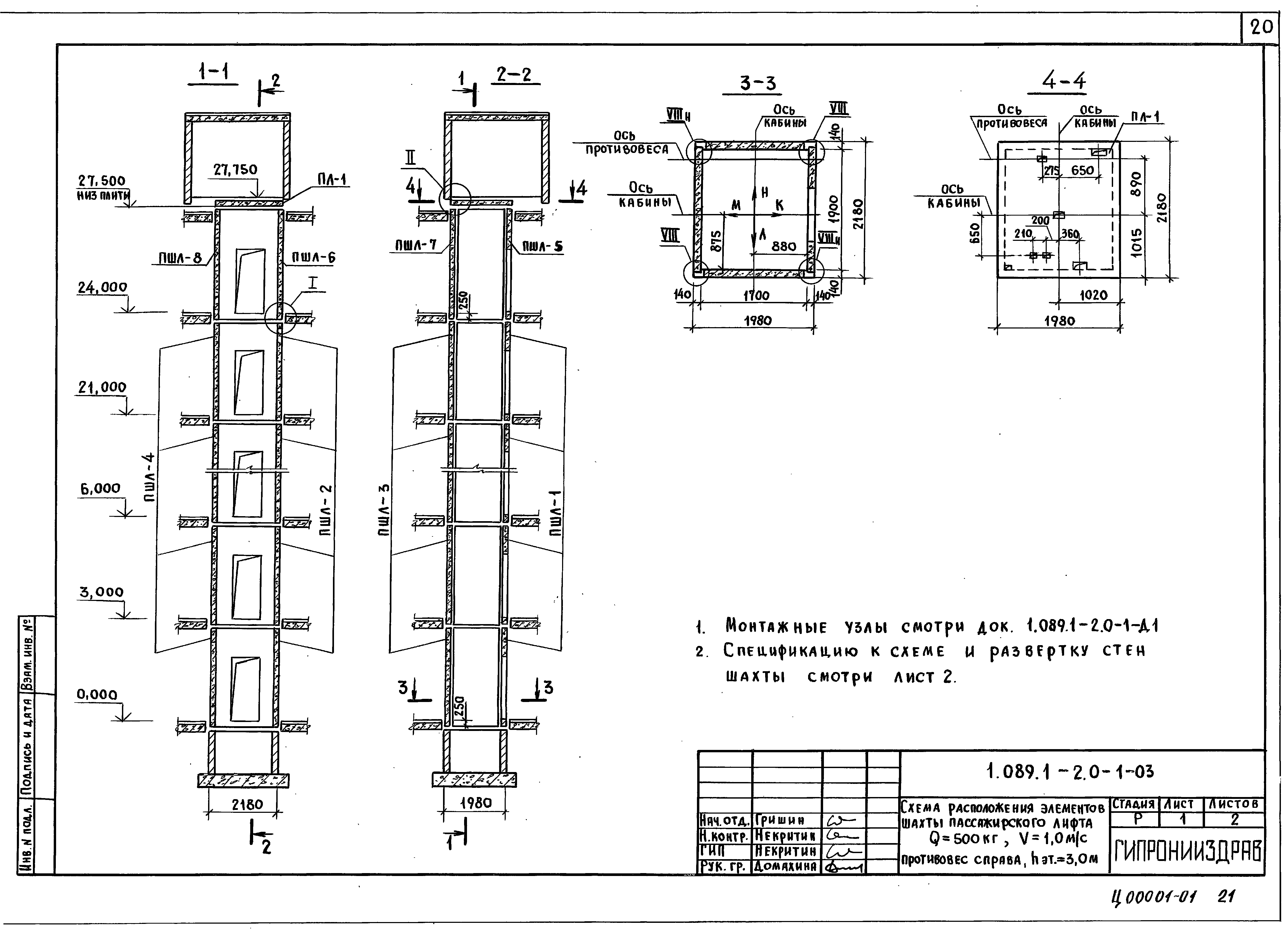
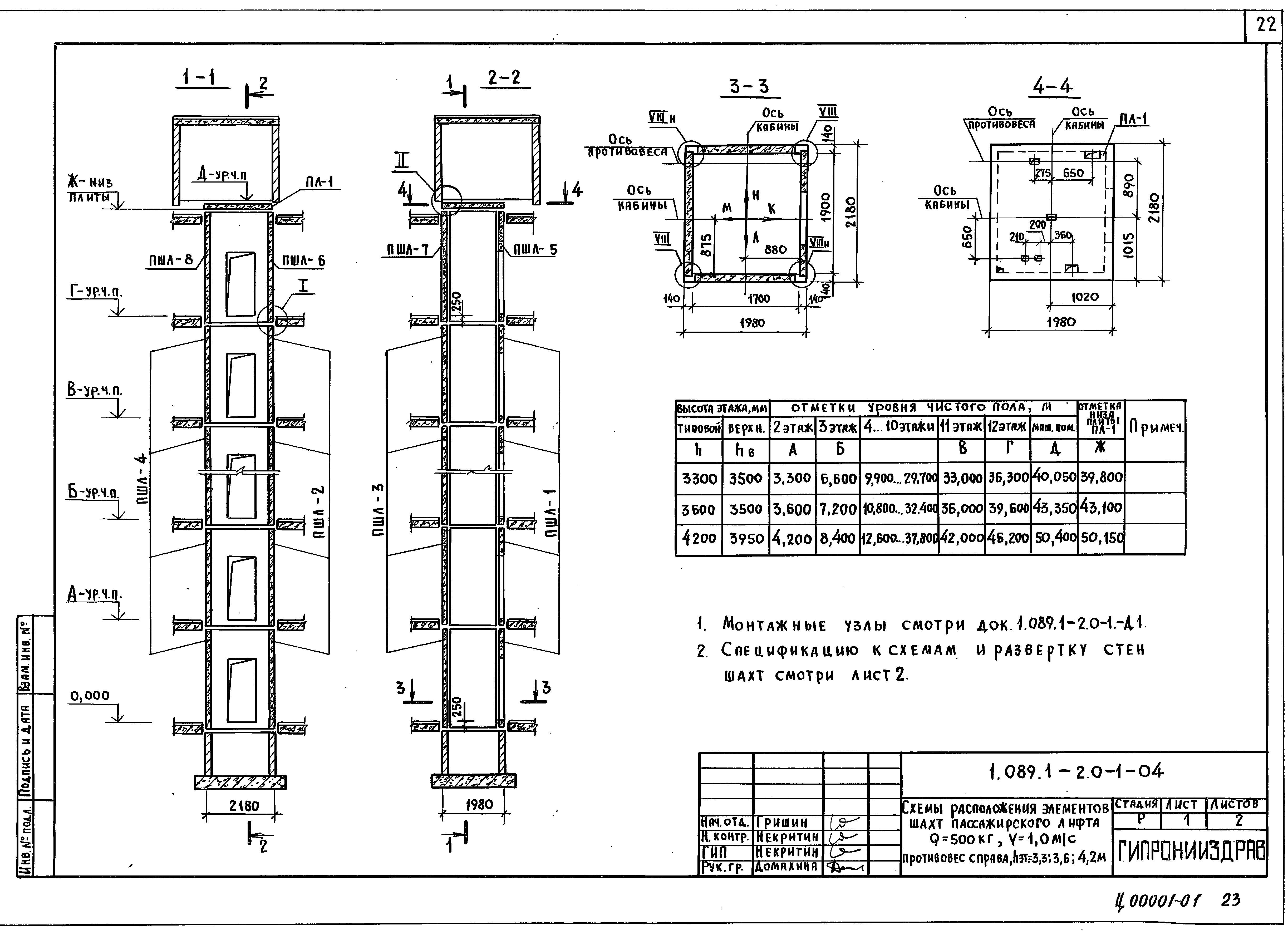
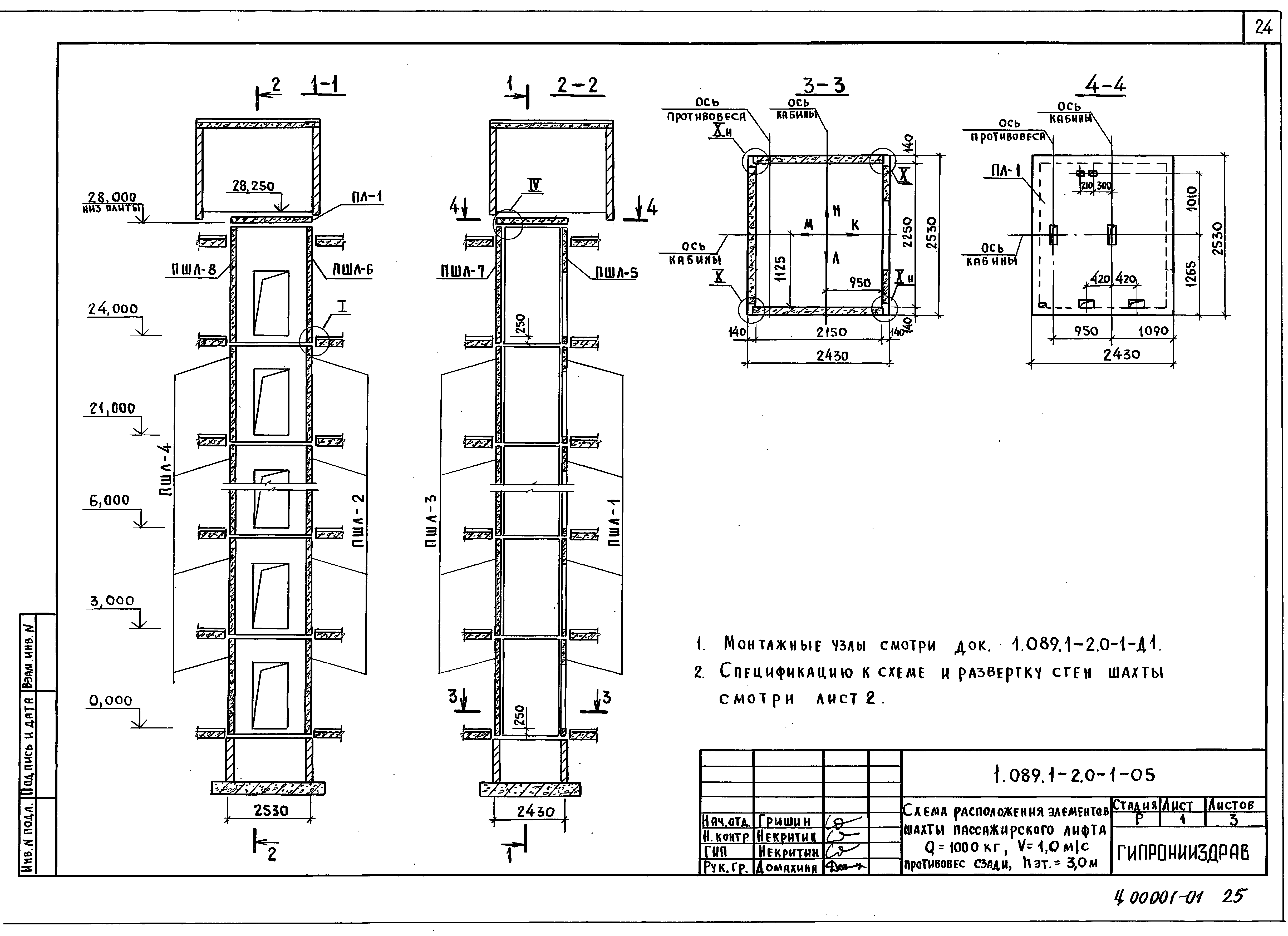
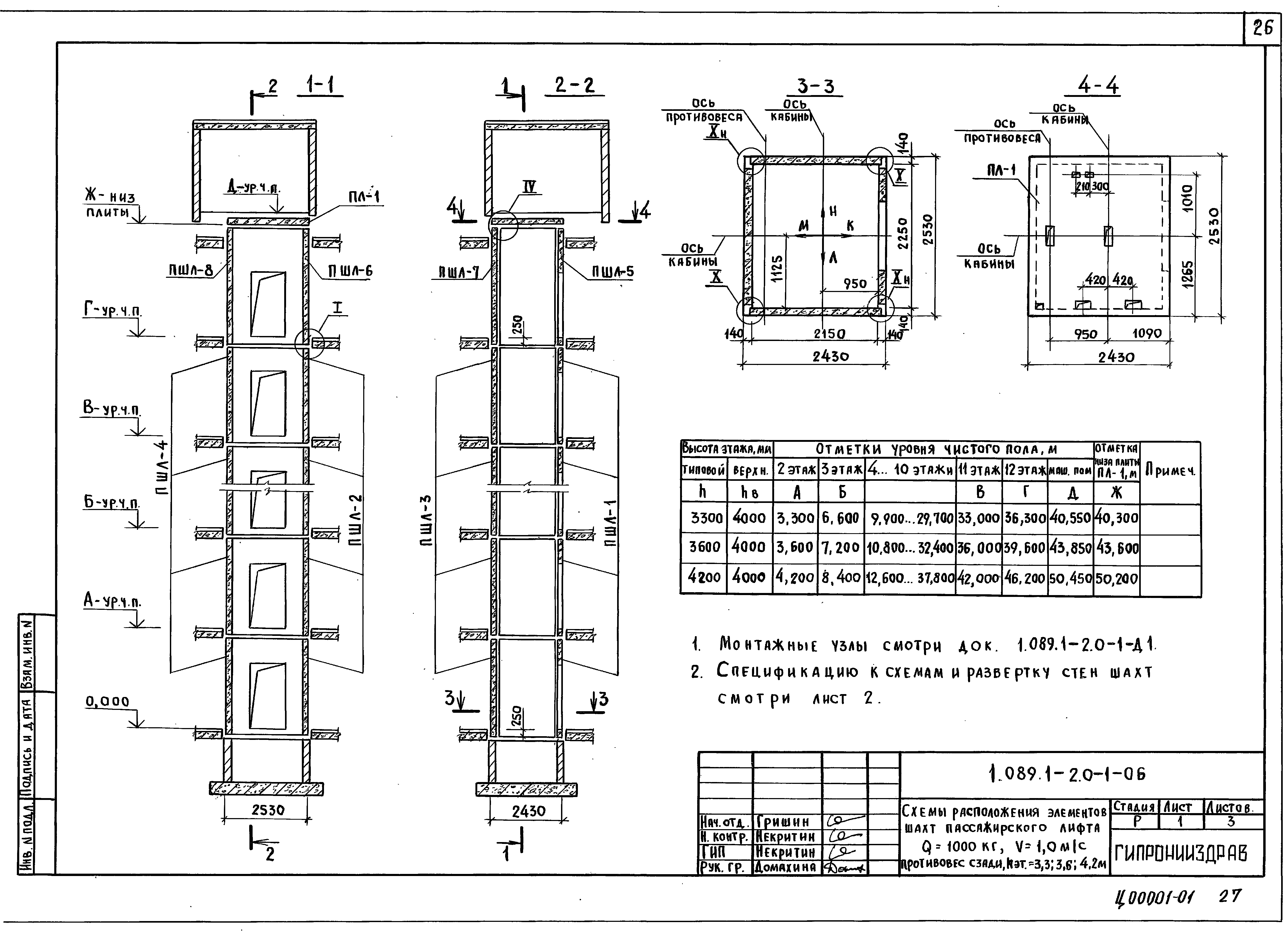
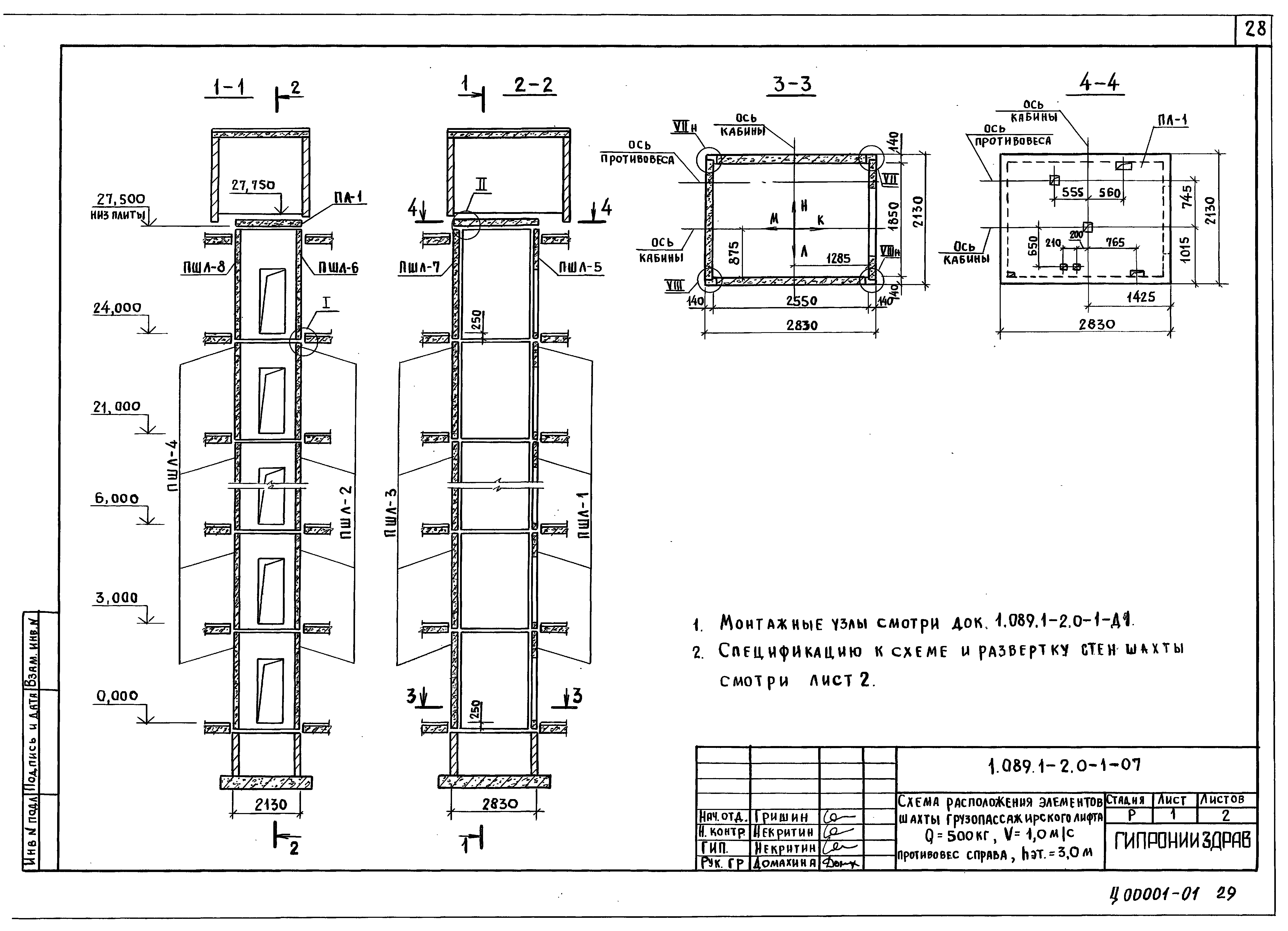
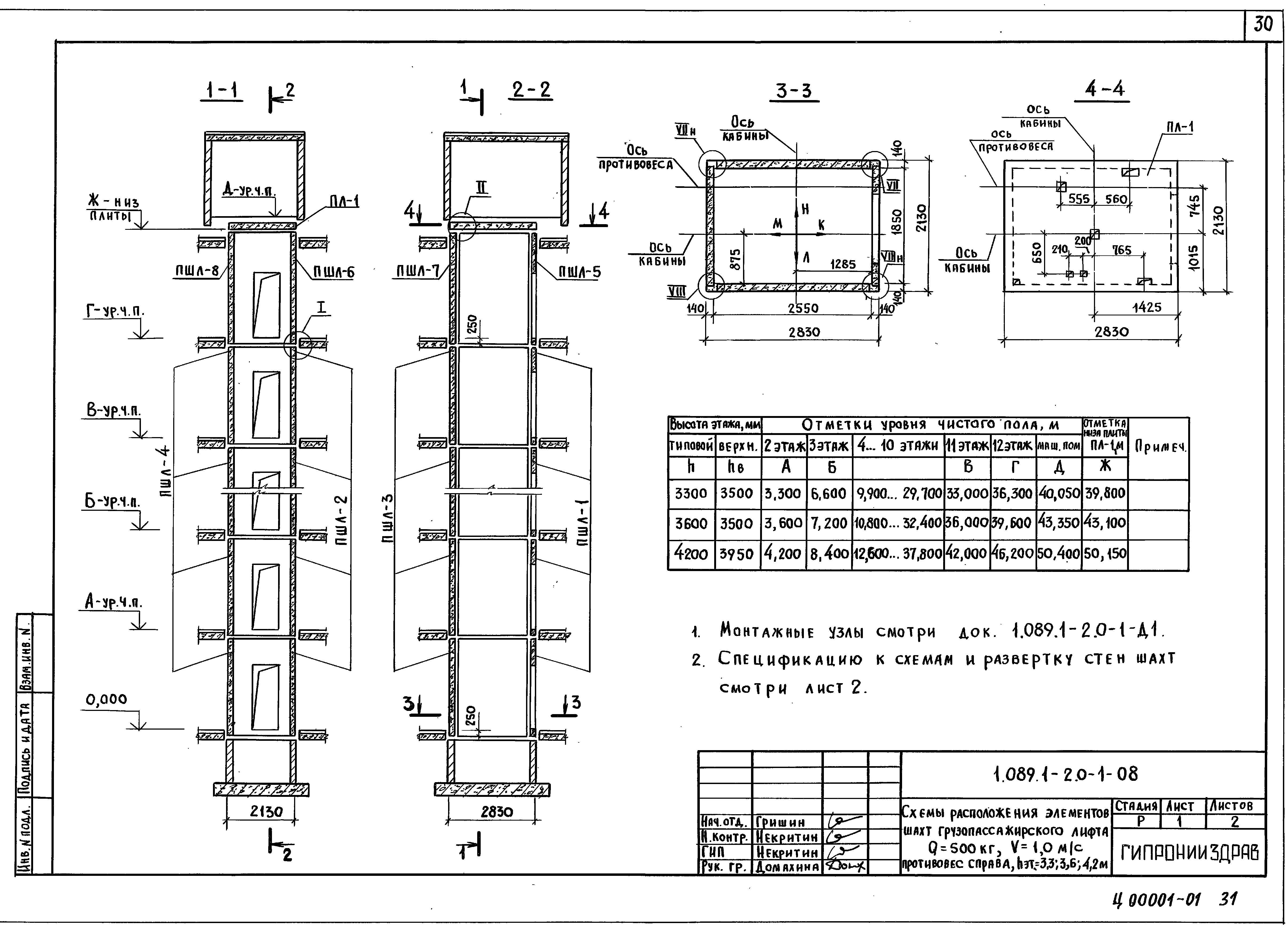
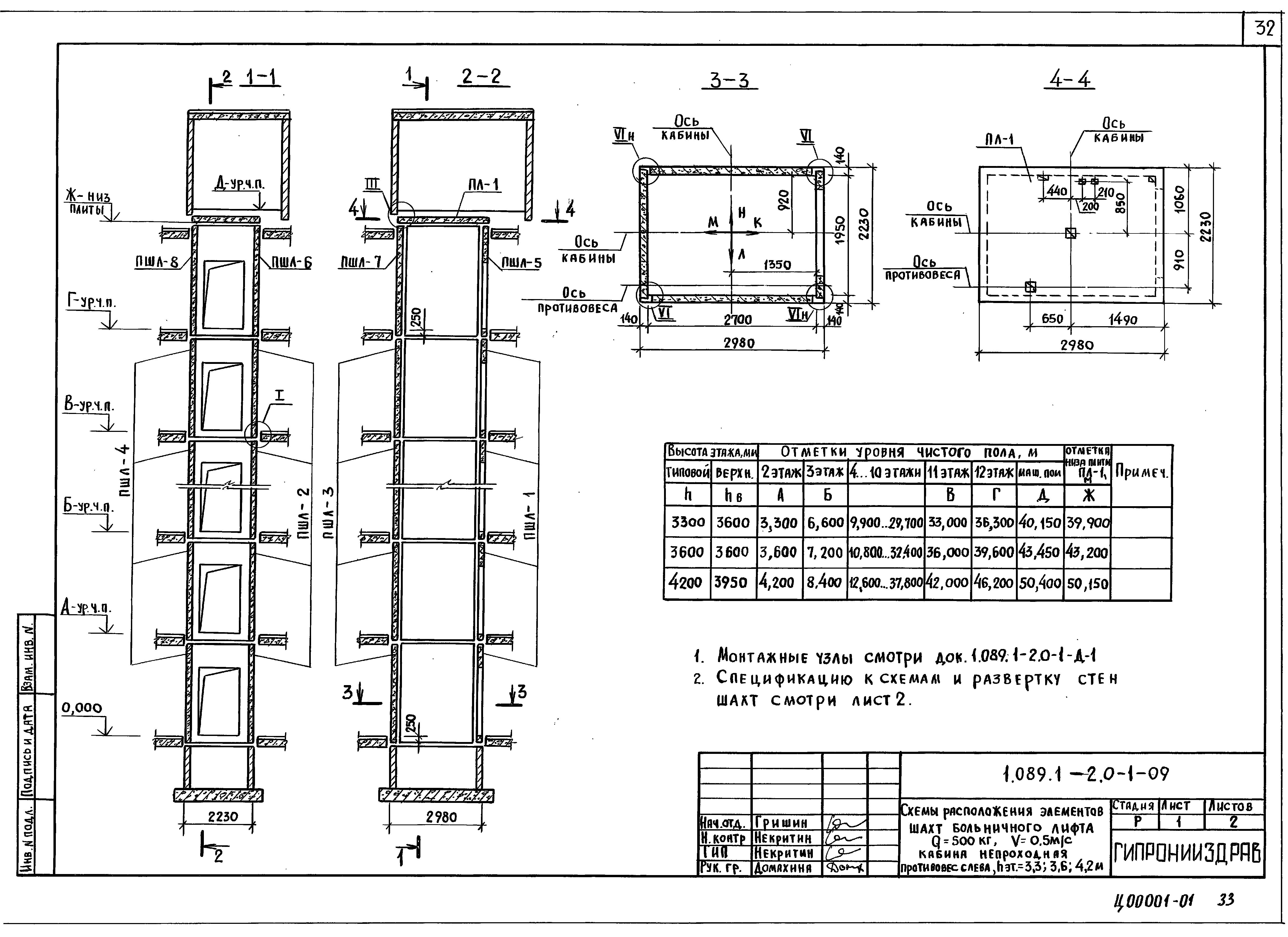
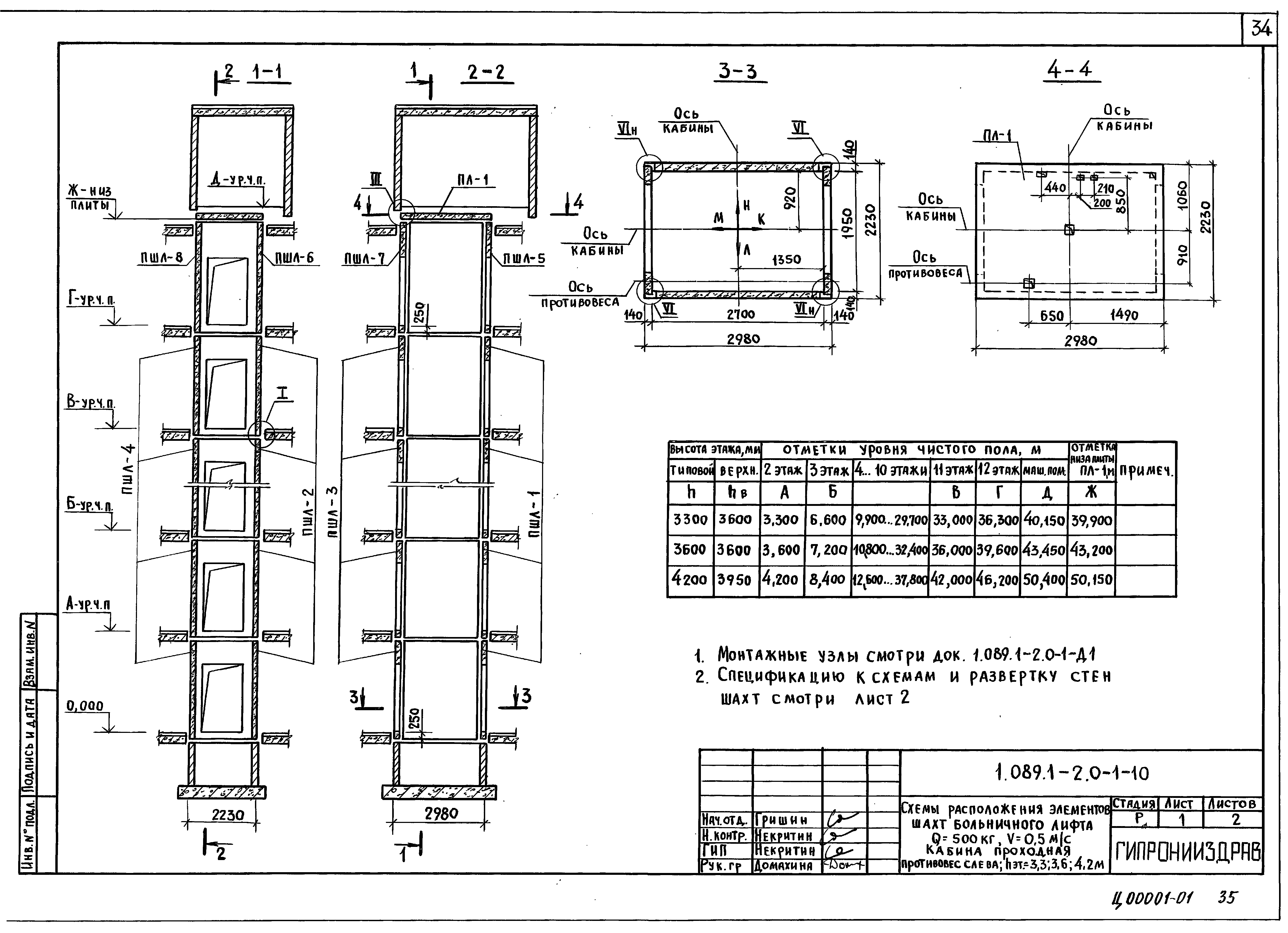
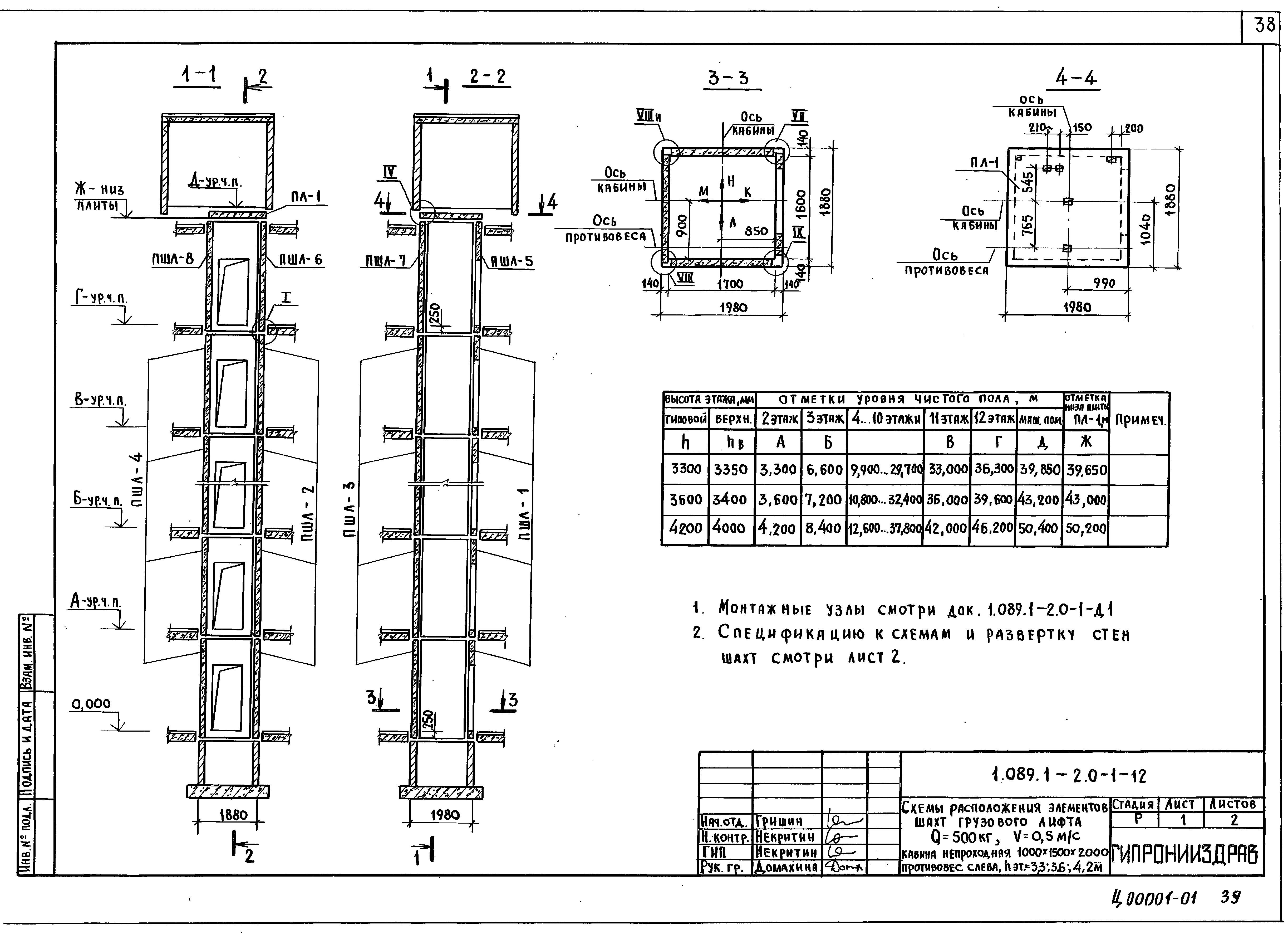
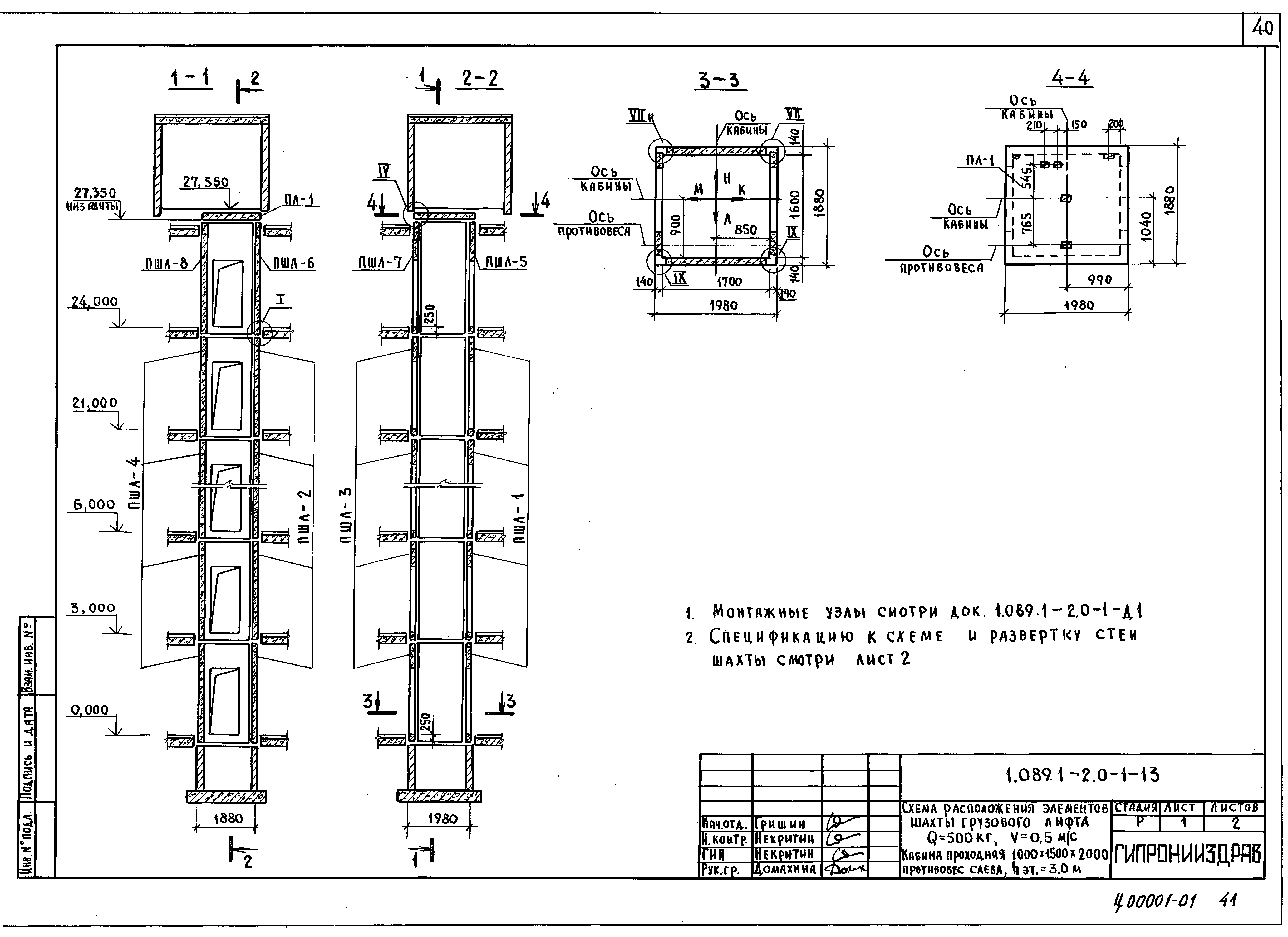
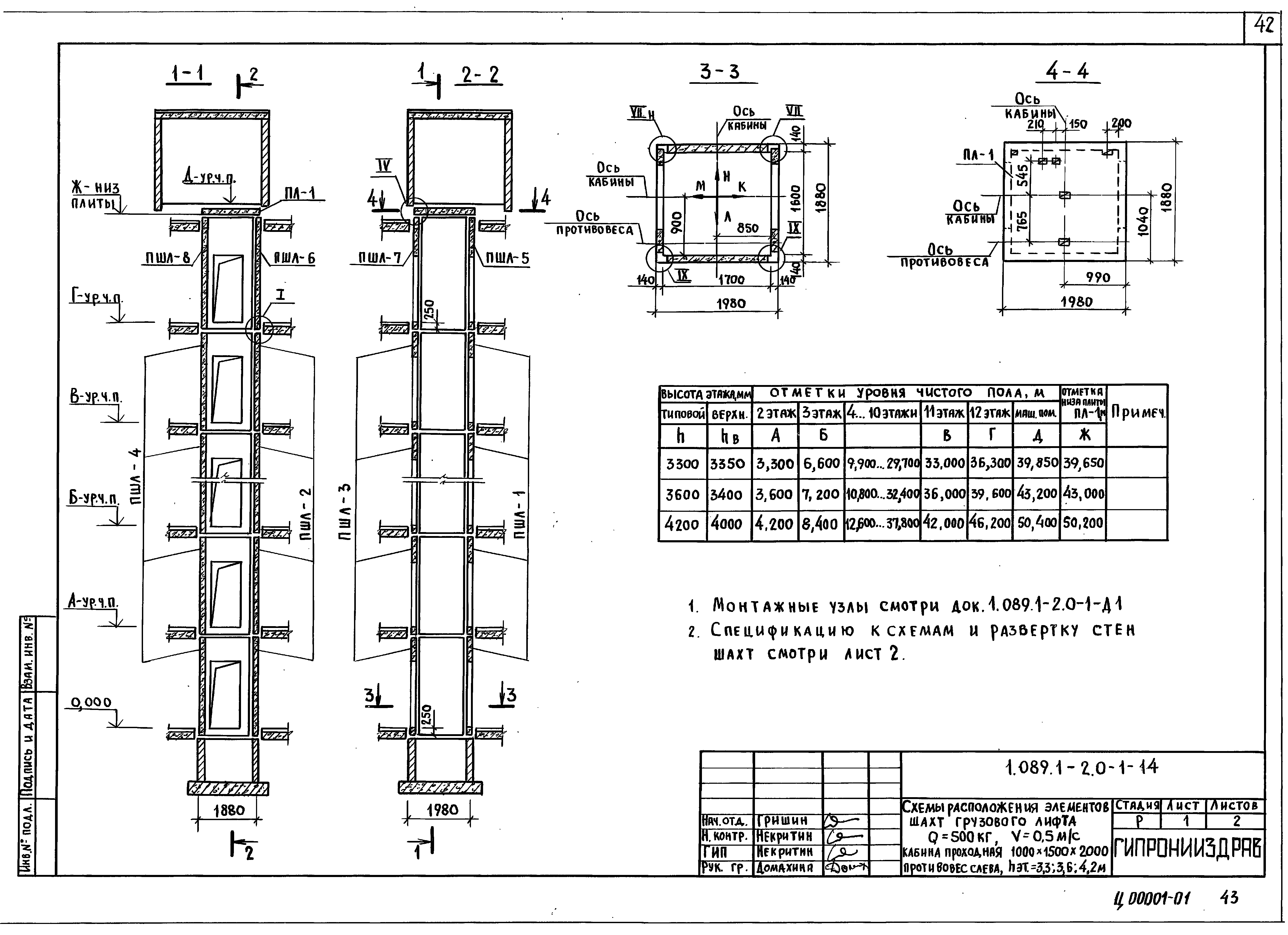
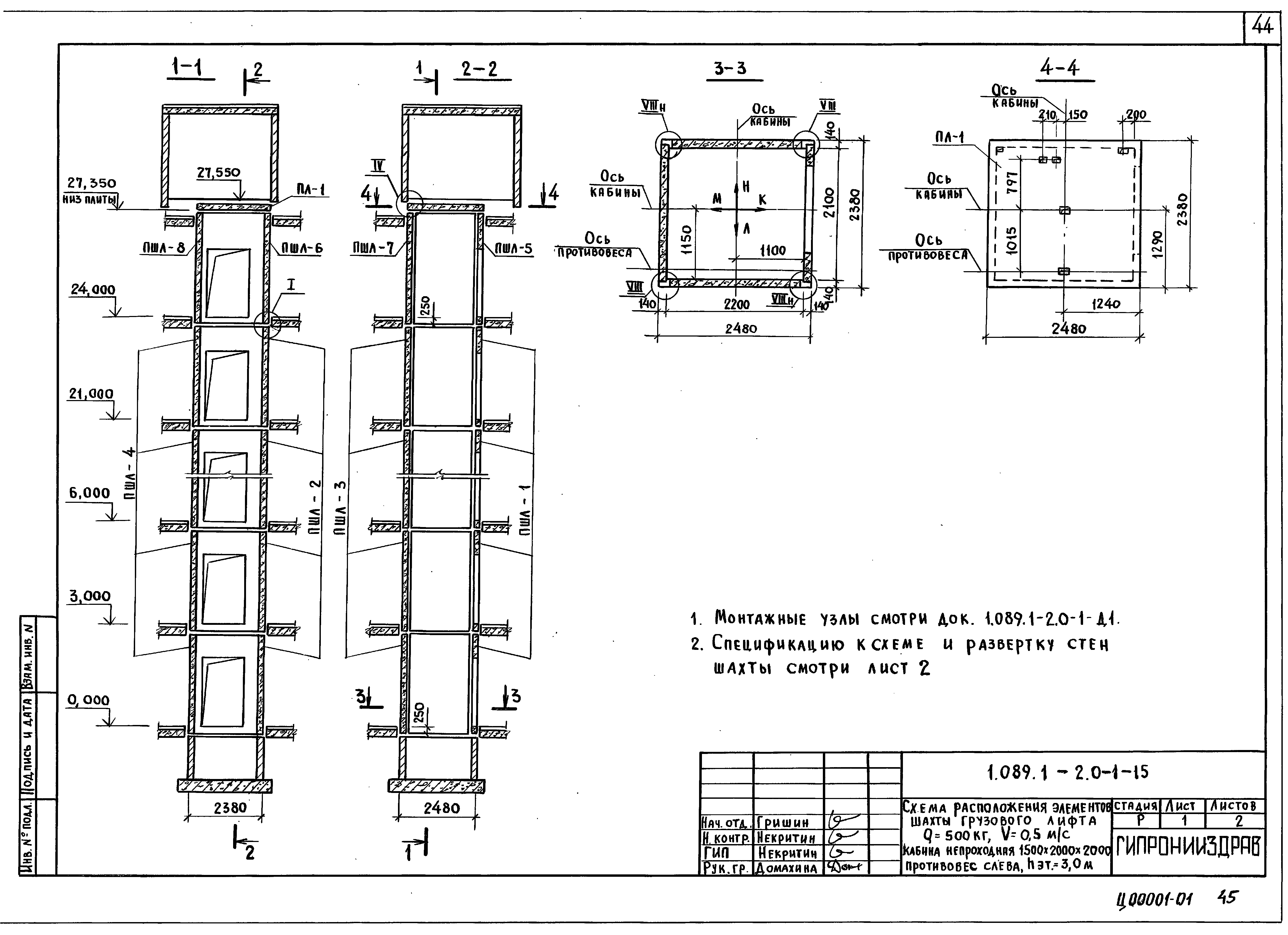
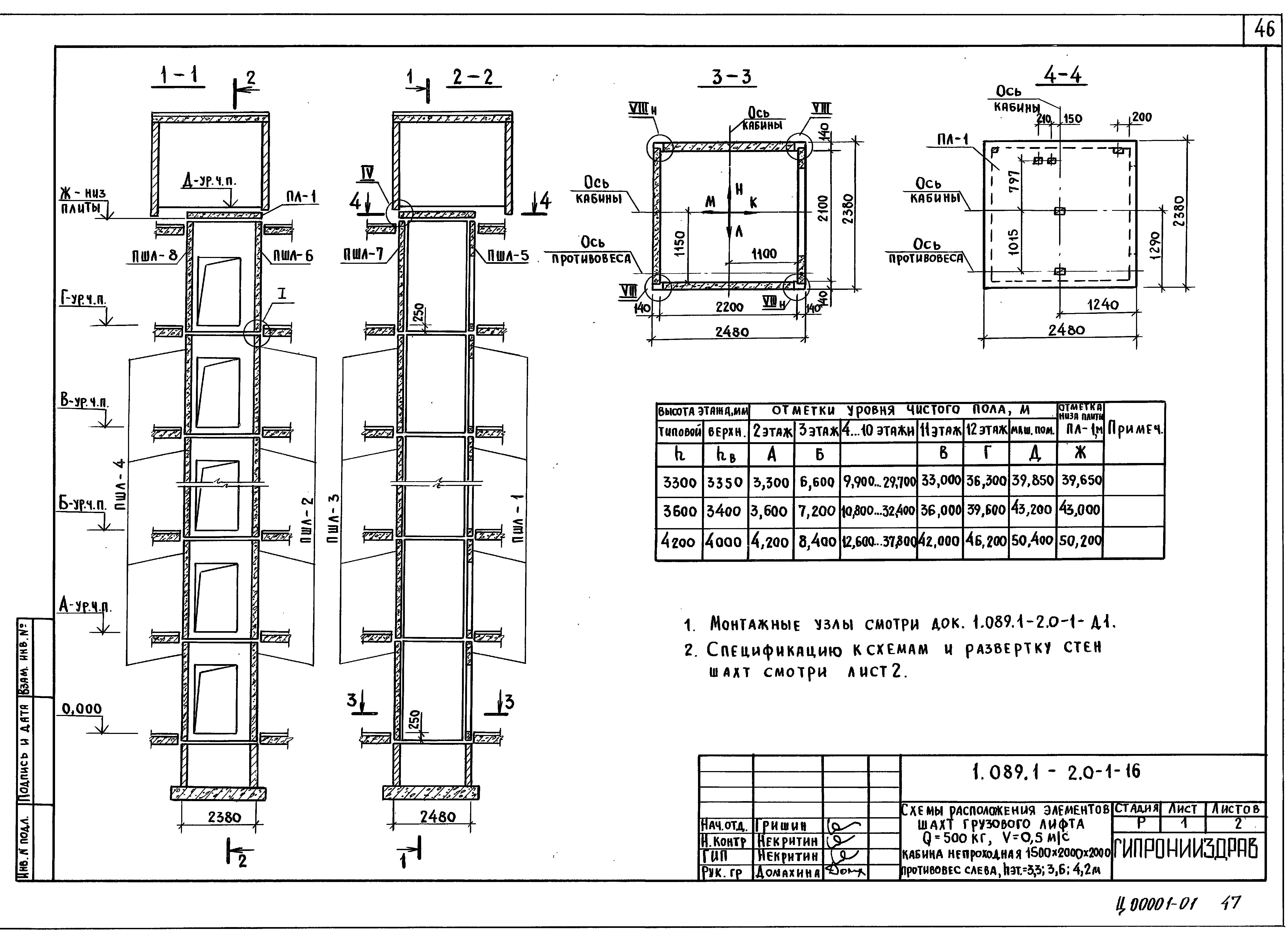
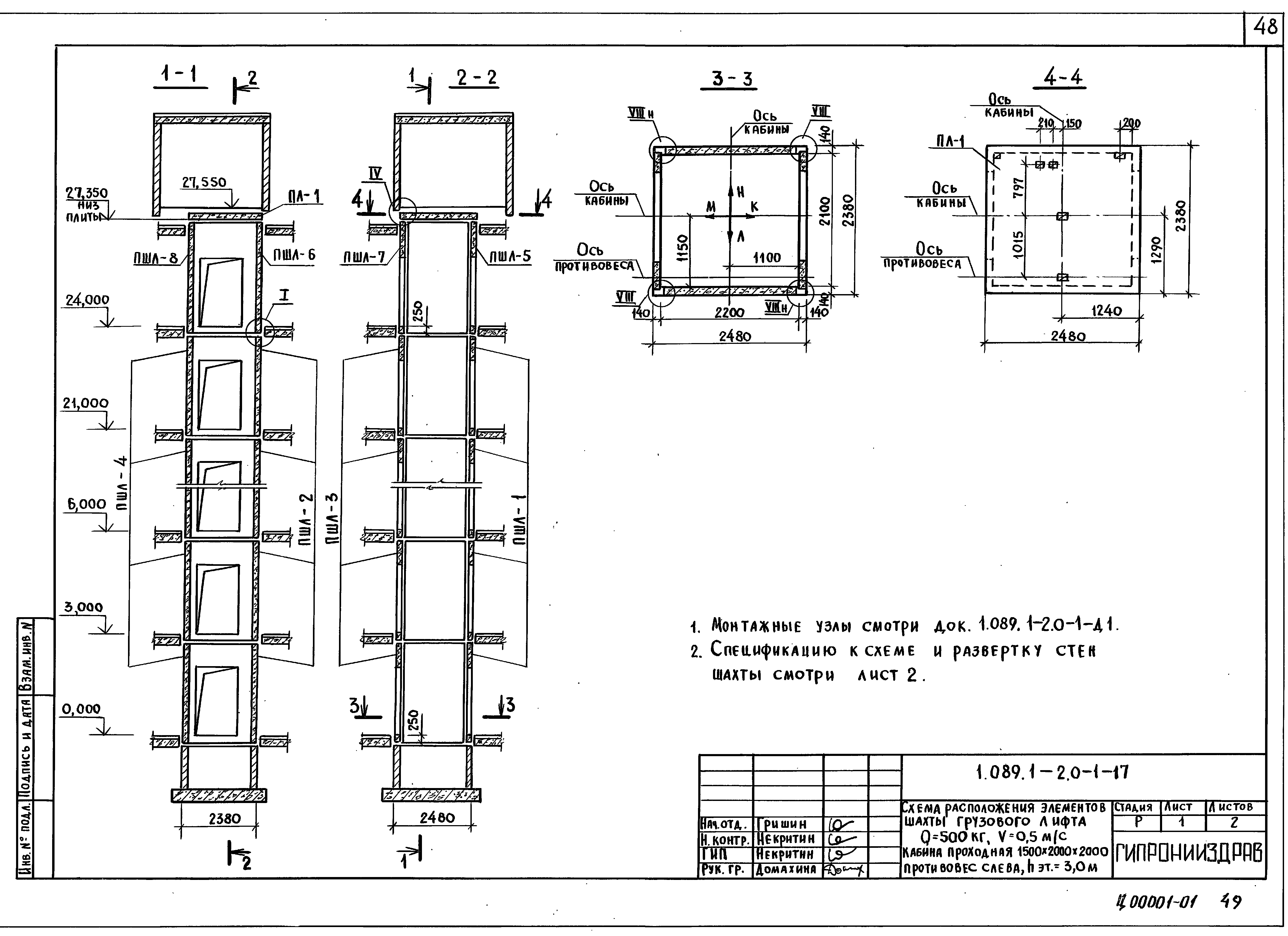
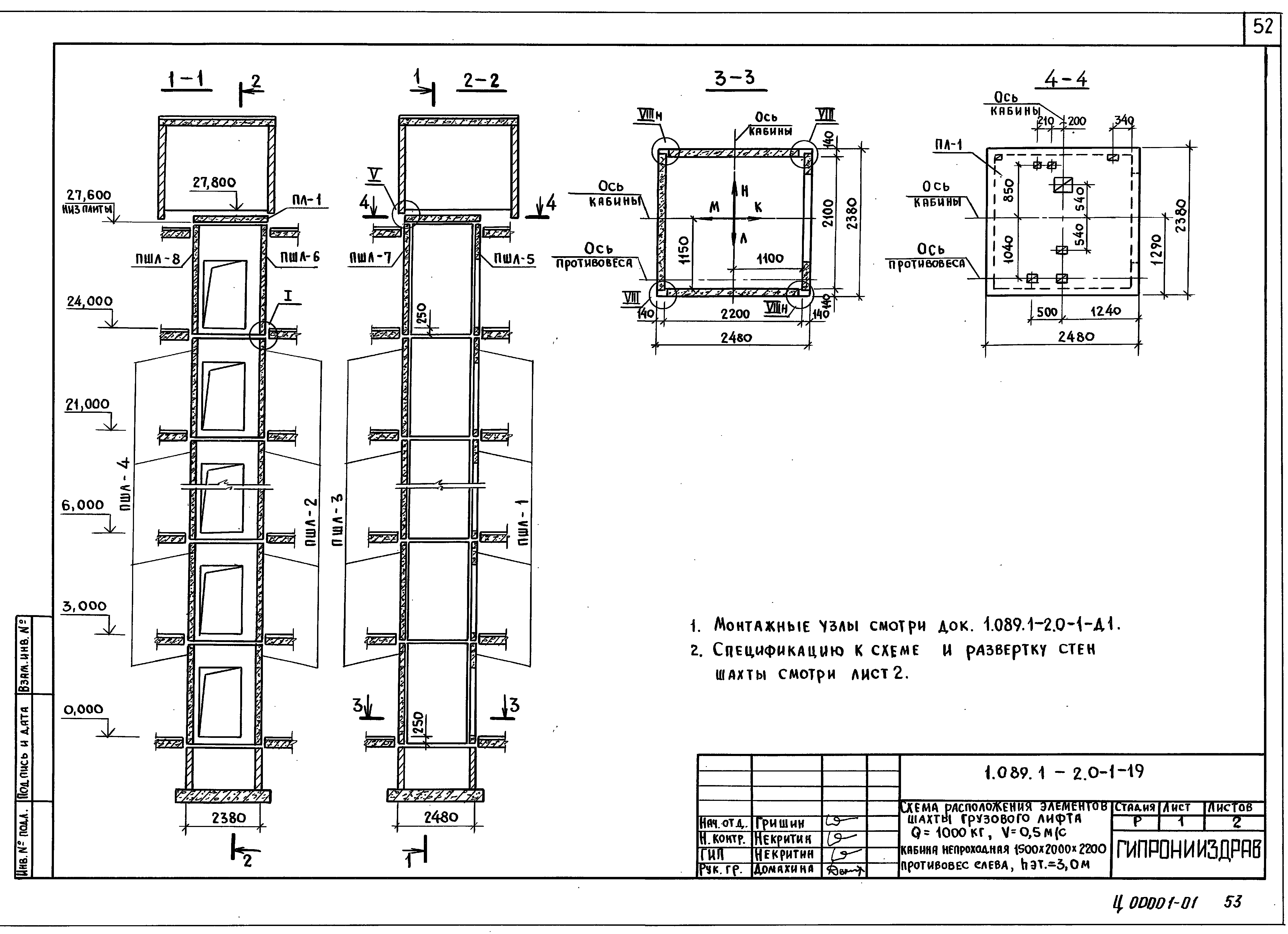
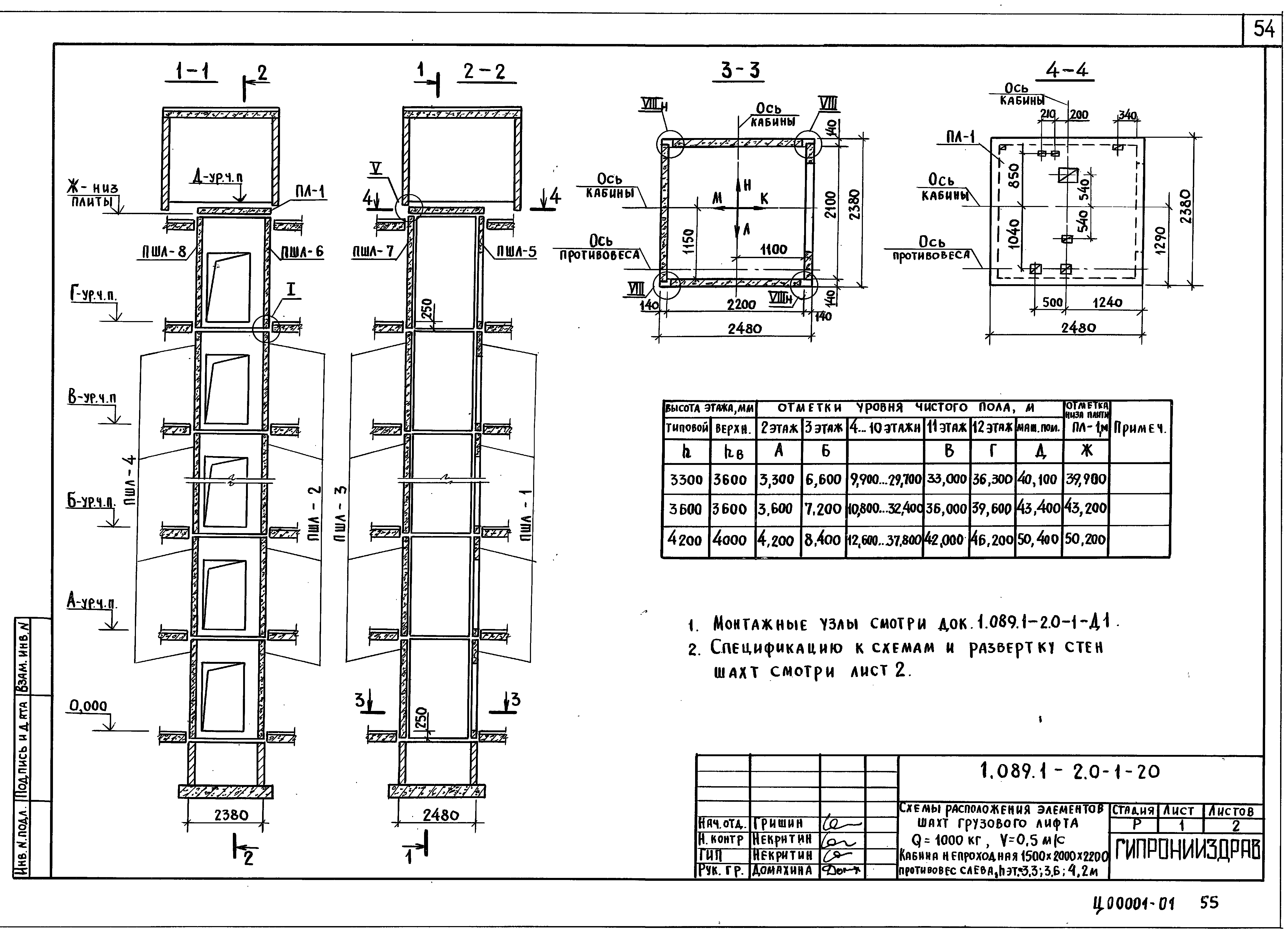
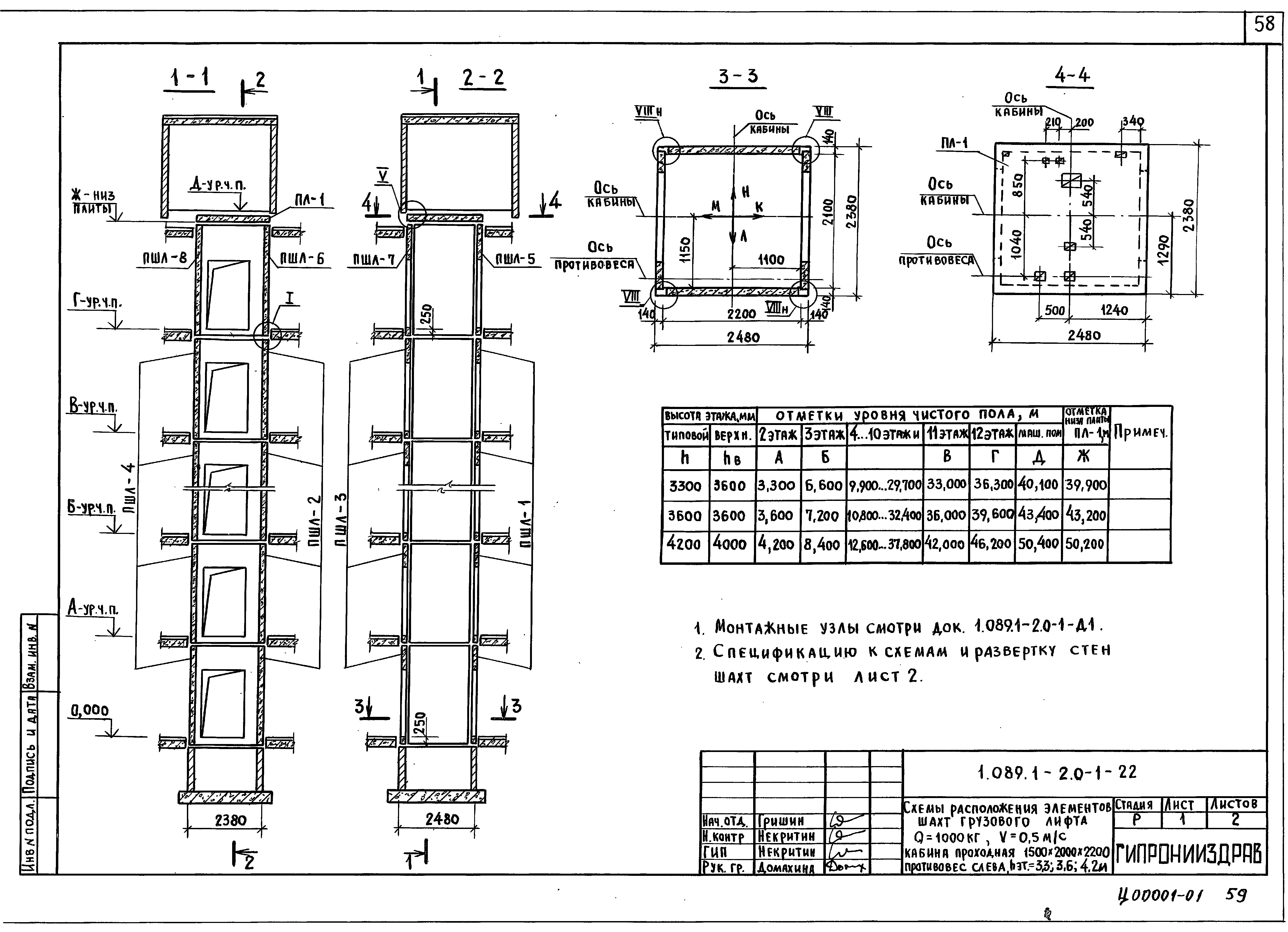
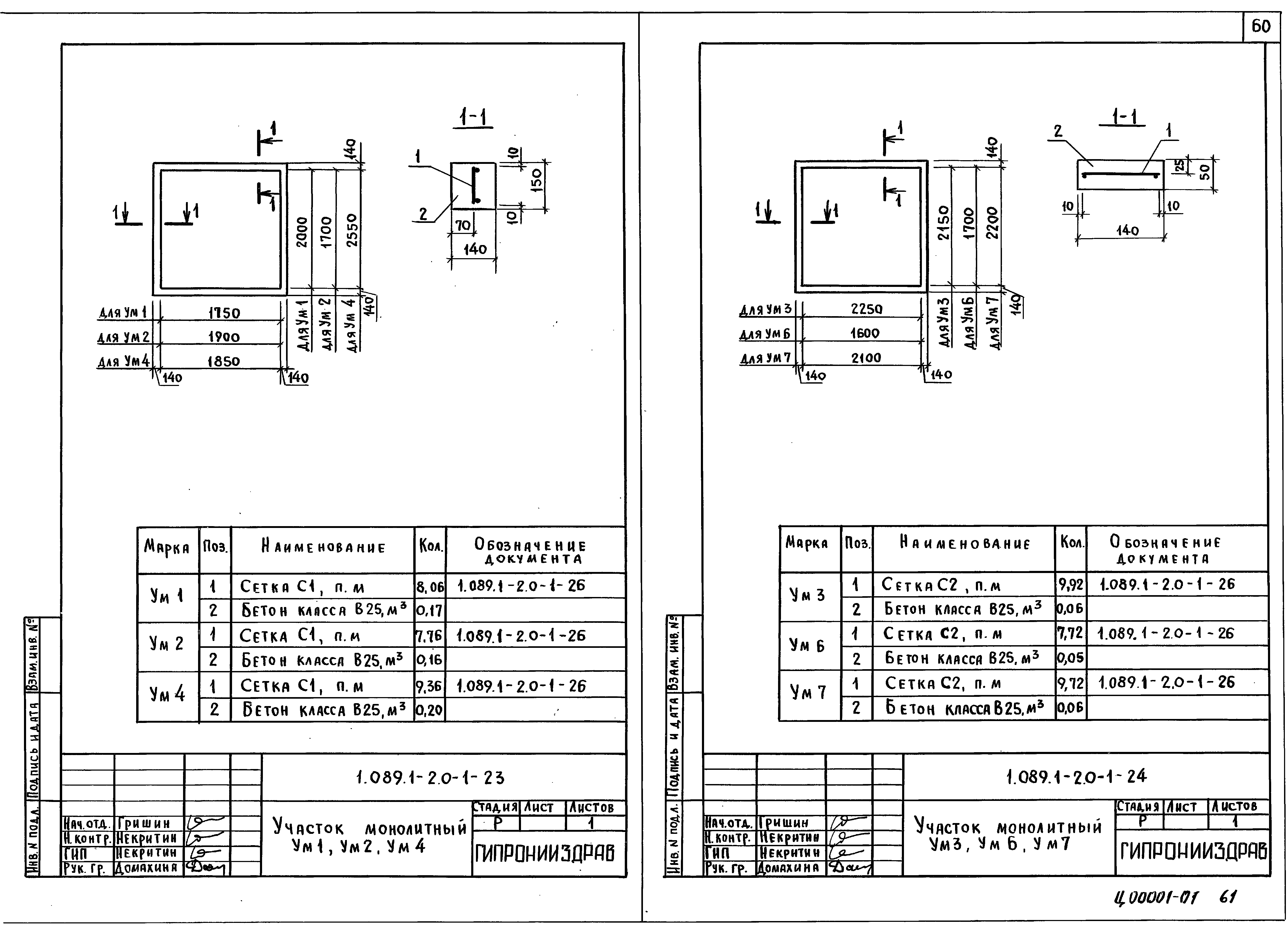
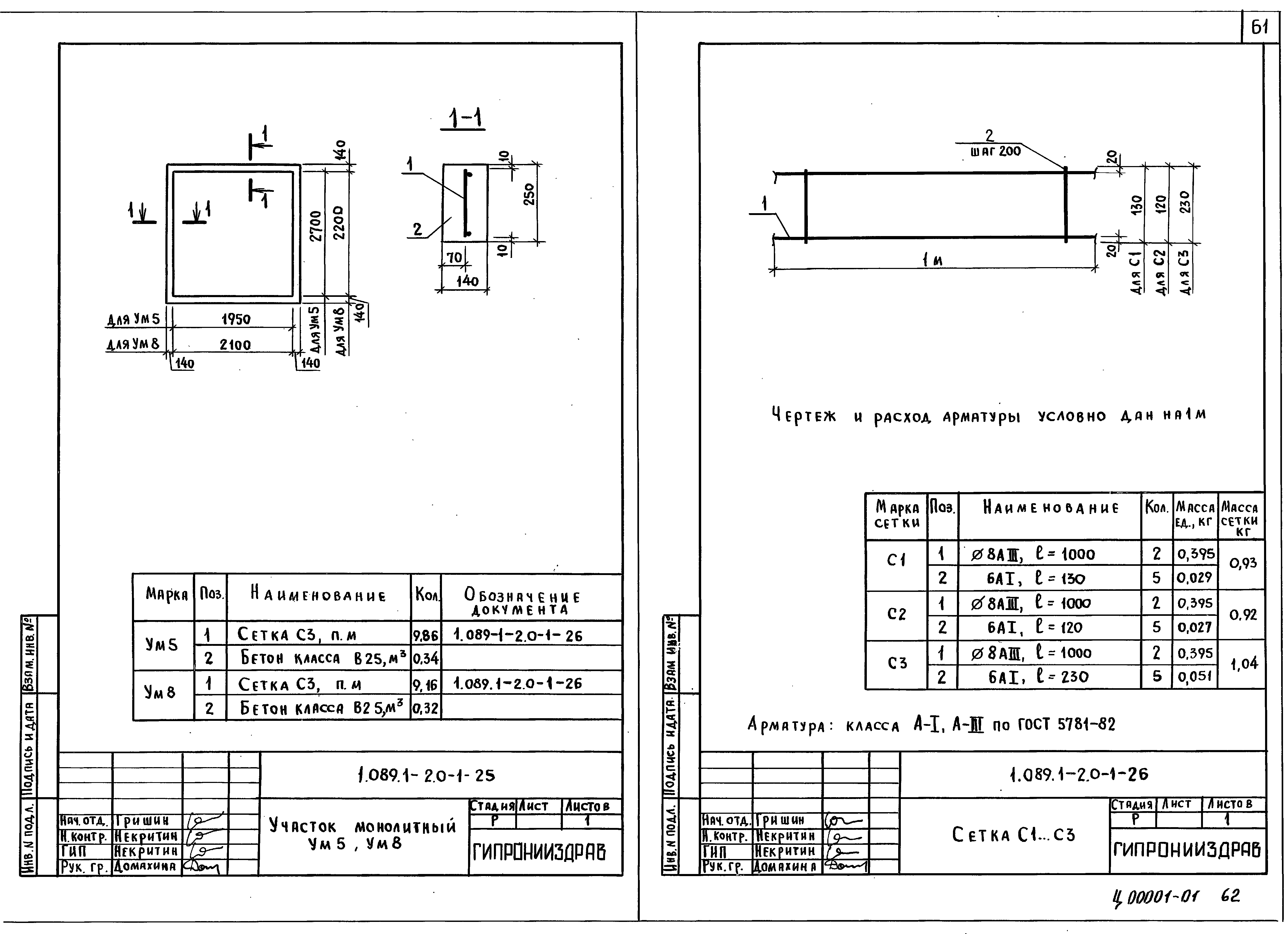
| Оглавление: | 1.089.1-2.0-1-ПЗ Пояснительная записка 1.089.1-2.0-1-НИ Номенклатура изделий 1.089.1-2.0-1-01 Схема расположения элементов шахты пассажирского лифта Q = 500 кг, V = 1,0 м/с противовес сзади, hэт. = 3,0 м 1.089.1-2.0-1-02 Схема расположения элементов шахты пассажирского лифта Q = 500 кг, V = 1,0 м/с противовес сзади, hэт. = 3,3; 3,6; 4,2 м 1.089.1-2.0-1-03 Схема расположения элементов шахты пассажирского лифта Q = 500 кг, V = 1,0 м/с противовес справа, hэт. = 3,0 м 1.089.1-2.0-1-04 Схема расположения элементов шахты пассажирского лифта Q = 500 кг, V = 1,0 м/с противовес справа, hэт. = 3,3; 3,6; 4,2 м 1.089.1-2.0-1-05 Схема расположения элементов шахты пассажирского лифта Q = 1000 кг, V = 1,0 м/с противовес сзади, hэт. = 3,0 м 1.089.1-2.0-1-06 Схема расположения элементов шахты пассажирского лифта Q = 1000 кг, V = 1,0 м/с противовес сзади, hэт. = 3,3; 3,6; 4,2 м 1.089.1-2.0-1-07 Схема расположения элементов шахты грузопассажирского лифта Q = 500 кг, V = 1,0 м/с противовес справа, hэт. = 3,0 м 1.089.1-2.0-1-08 Схема расположения элементов шахты грузопассажирского лифта Q = 500кг, V = 1,0 м/с противовес справа, hэт. = 3,3; 3,6; 4,2 м 1.089.1-2.0-1-09 Схема расположения элементов шахты больничного лифта Q = 500 кг, V = 1,0 м/с кабина непроходная противовес слева, hэт. = 3,3; 3,6; 4,2 м 1.089.1-2.0-1-10 Схема расположения элементов шахты больничного лифта Q = 500 кг, V = 1,0 м/с кабина проходная противовес слева, hэт. = 3,3; 3,6; 4,2м 1.089.1-2.0-1-11 Схема расположения элементов шахты грузового лифта Q = 500 кг, V = 1,0 м/с кабина непроходная 1000х1500х2000 противовес слева, hэт. = 3,0 м 1.089.1-2.0-1-12 Схема расположения элементов шахты грузового лифта Q = 500 кг, V = 1,0 м/с кабина непроходная 1000х1500х2000 противовес слева, hэт. = 3,3; 3,6; 4,2м 1.089.1-2.0-1-13 Схема расположения элементов шахты грузового лифта Q = 500 кг, V = 1,0 м/с кабина проходная 1000х1500х2000 противовес слева, hэт. = 3,0 м 1.089.1-2.0-1-14 Схема расположения элементов шахты грузового лифта Q = 500 кг, V = 1,0 м/с кабина проходная 1000х1500х2000 противовес слева, hэт. = 3,3; 3,6; 4,2м 1.089.1-2.0-1-15 Схема расположения элементов шахты грузового лифта Q = 500 кг, V = 1,0 м/с кабина непроходная 1500х2000х2000 противовес слева, hэт. = 3,0 м 1.089.1-2.0-1-16 Схема расположения элементов шахты грузового лифта Q = 500 кг, V = 1,0 м/с кабина непроходная 1500х2000х2000 противовес слева, hэт. = 3,3; 3,6; 4,2м 1.089.1-2.0-1-17 Схема расположения элементов шахты грузового лифта Q = 500 кг, V = 1,0 м/с кабина проходная 1500х2000х2000 противовес слева, hэт. = 3,0 м 1.089.1-2.0-1-18 Схема расположения элементов шахты грузового лифта Q = 500 кг, V = 1,0 м/с кабина проходная 1500х2000х2000 противовес слева, hэт. = 3,3; 3,6; 4,2 м 1.089.1-2.0-1-19 Схема расположения элементов шахты грузового лифта Q = 1000 кг, V = 1,0 м/с кабина непроходная 1500х2000х2000 противовес слева, hэт. = 3,0 м 1.089.1-2.0-1-20 Схема расположения элементов шахты грузового лифта Q = 1000 кг, V = 1,0 м/с кабина непроходная 1500х2000х2000 противовес слева, hэт. = 3,3; 3,6; 4,2 м 1.089.1-2.0-1-21 Схема расположения элементов шахты грузового лифта Q = 1000 кг, V = 1,0 м/с кабина проходная 1500х2000х2000 противовес слева, hэт. = 3,0 м 1.089.1-2.0-1-22 Схема расположения элементов шахты грузового лифта Q = 1000 кг, V = 1,0 м/с кабина проходная 1500х2000х2000 противовес слева, hэт. = 3,3; 3,6; 4,2 м 1.089.1-2.0-1-23 Участок монолитный УМ1, УМ2, УМ4 1.089.1-2.0-1-24 Участок монолитный УМ3, УМ6, УМ7 1.089.1-2.0-1-25 Участок монолитный УМ5, УМ8 1.089.1-2.0-1-26 Сетка С1…С3 1.089.1-2.0-1-РС Ведомость расхода стали на монолитный участок УМ1…УМ8 1.089.1-2.0-1-27 Изделие соединительное МС5 1.089.1-2.0-1-Д1 Узел 1…10 1.089.1-2.0-1-Д2 Монтажные узлы при групповой установке шахт (пример) |
| Разработан: | ГипроНИИздрав Минздрава СССР |
| Утверждён: | 06.10.1992 Минстрой России (Russian Federation Minstroy 9-1/303) |

































































