Скачать Серия 1.189.1-8 Выпуск 2. Материалы для проектирования и объемные элементы шахт пассажирских лифтов грузоподъемностью 400 кг с противовесом сзади кабины. Рабочие чертежи

Дата актуализации: 01.01.2021

Серия 1.189.1-8

Выпуск 2. Материалы для проектирования и объемные элементы шахт пассажирских лифтов грузоподъемностью 400 кг с противовесом сзади кабины. Рабочие чертежи

Обозначение: Серия 1.189.1-8
Обозначение англ: Series 1.189.1-8
Статус:действует
Название рус.:Выпуск 2. Материалы для проектирования и объемные элементы шахт пассажирских лифтов грузоподъемностью 400 кг с противовесом сзади кабины. Рабочие чертежи
Дата добавления в базу:01.09.2013
Дата актуализации:01.01.2021
Дата введения:15.04.1986
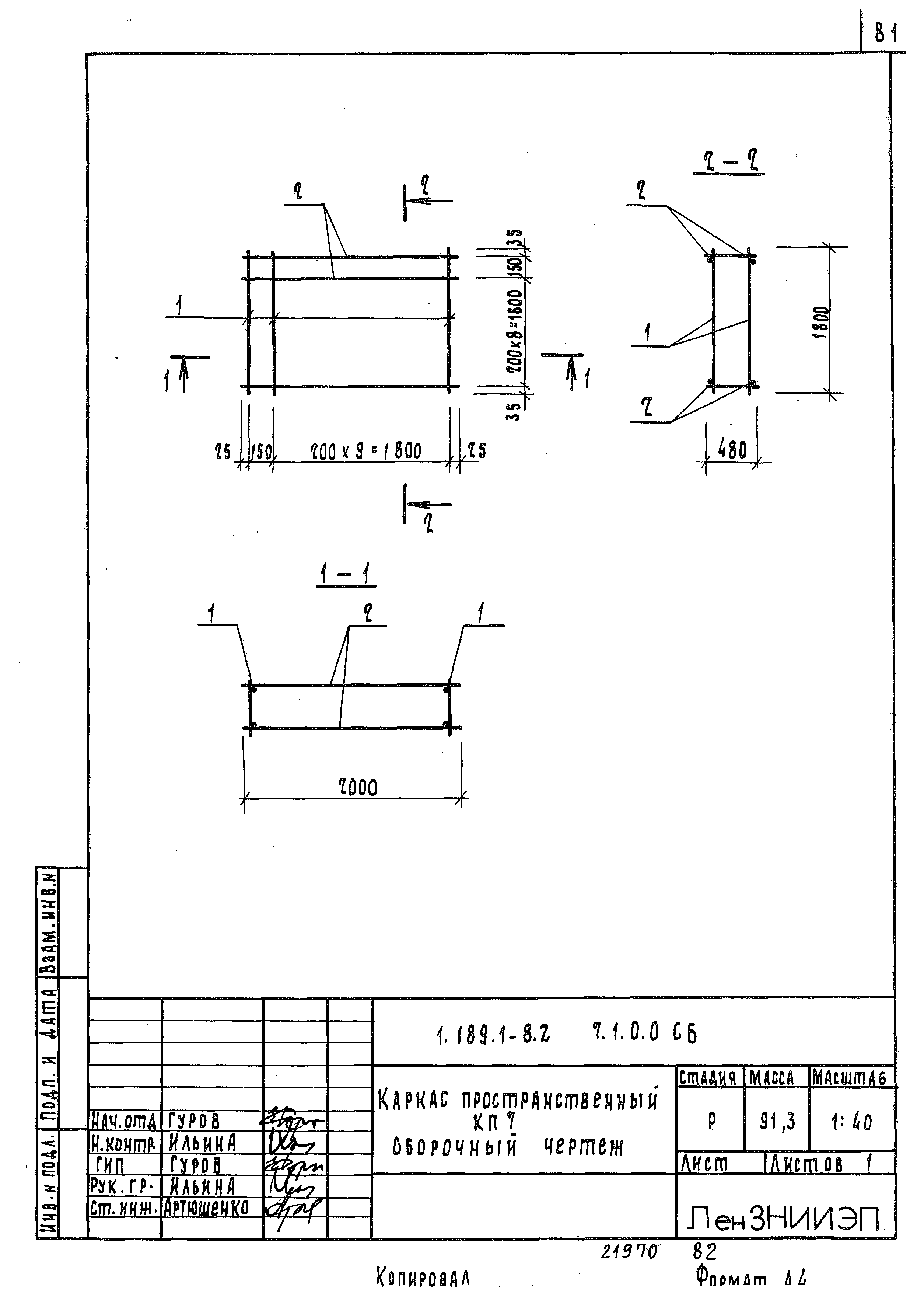
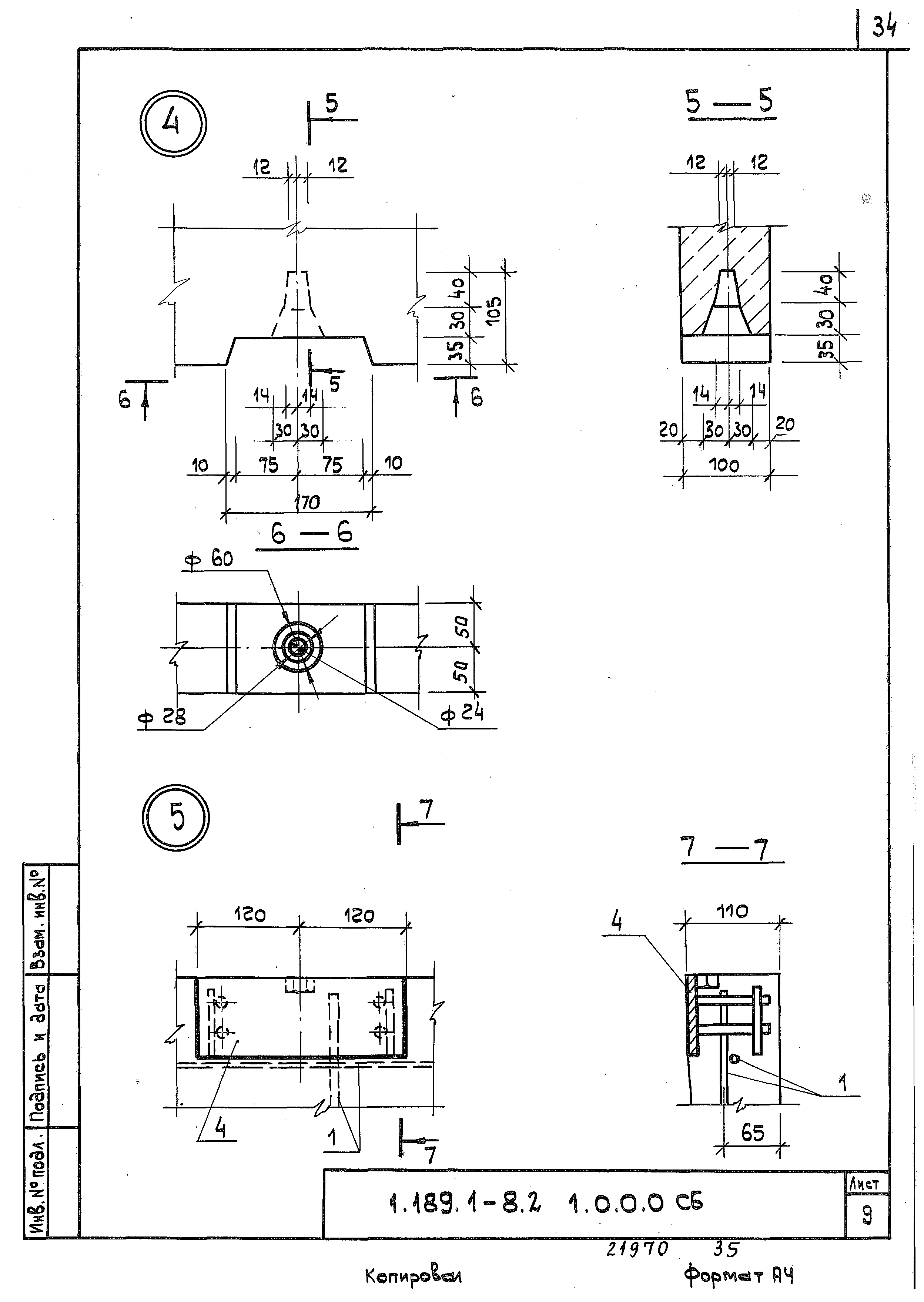
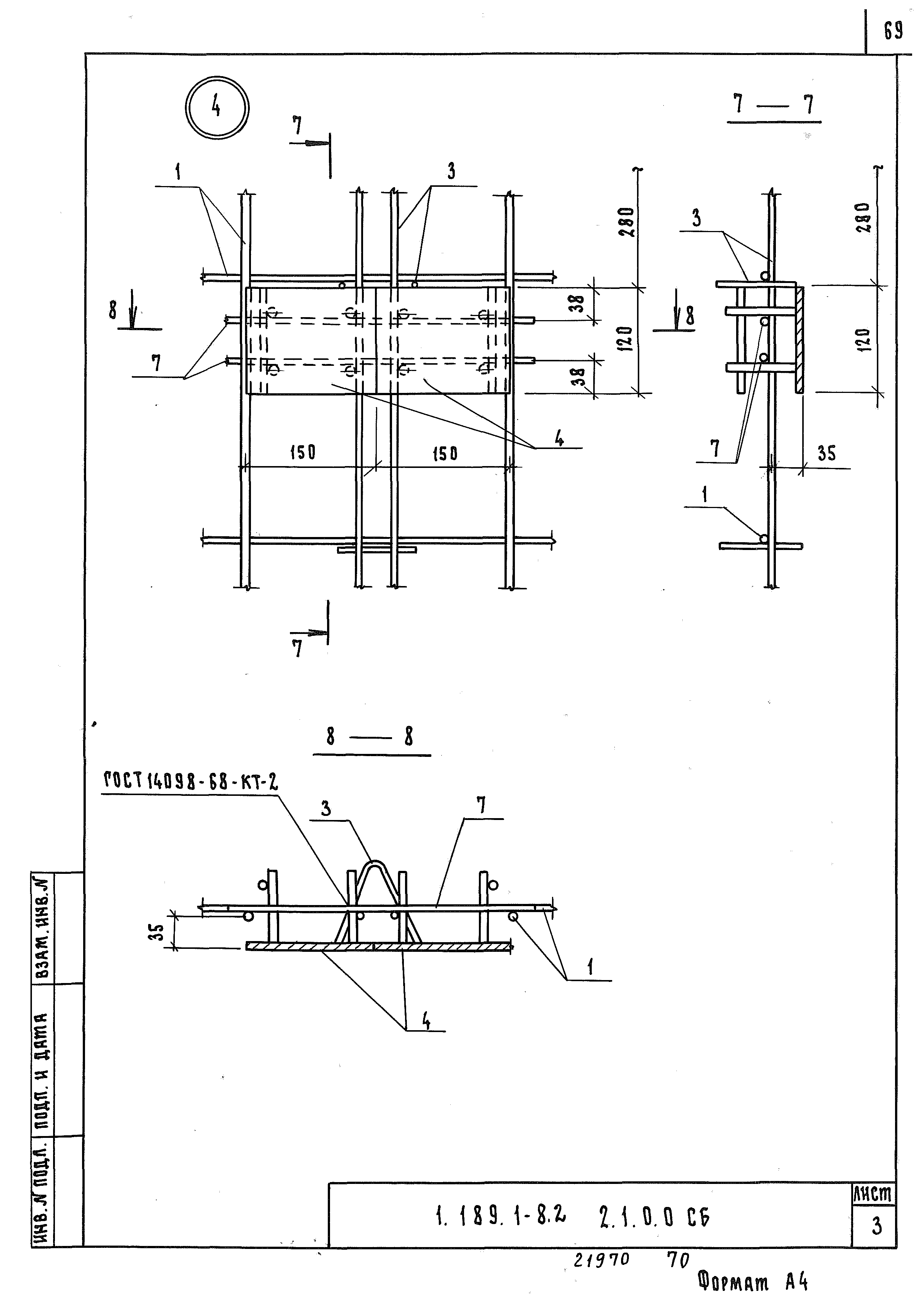
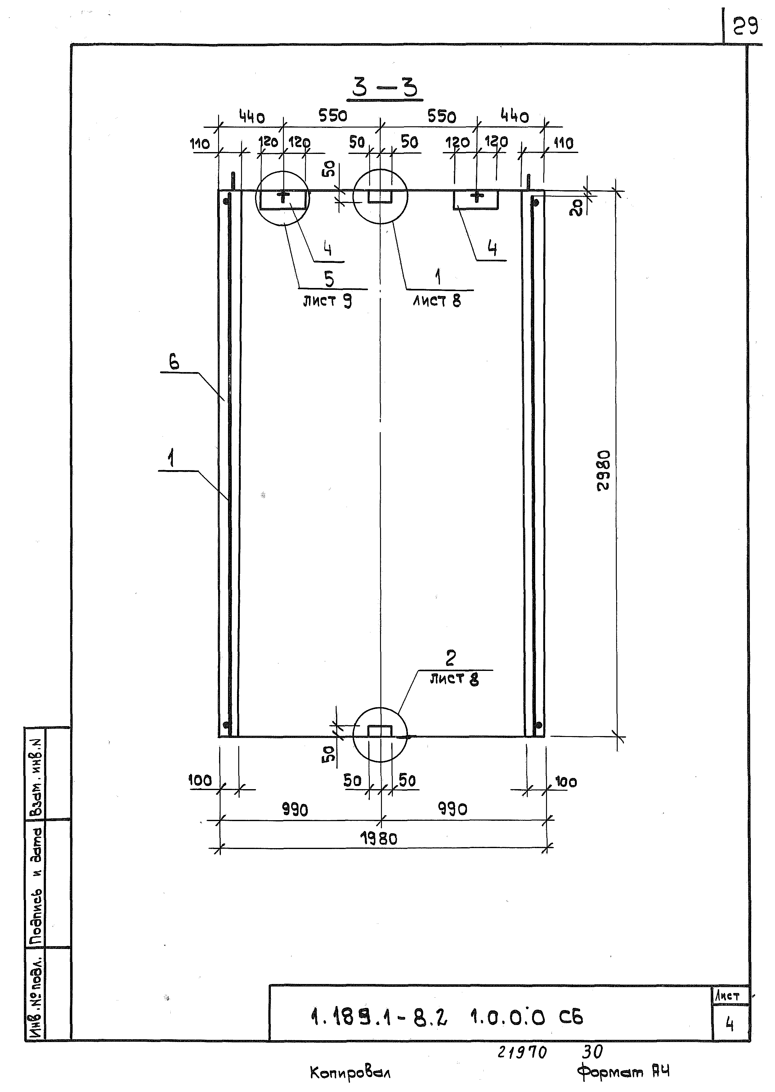
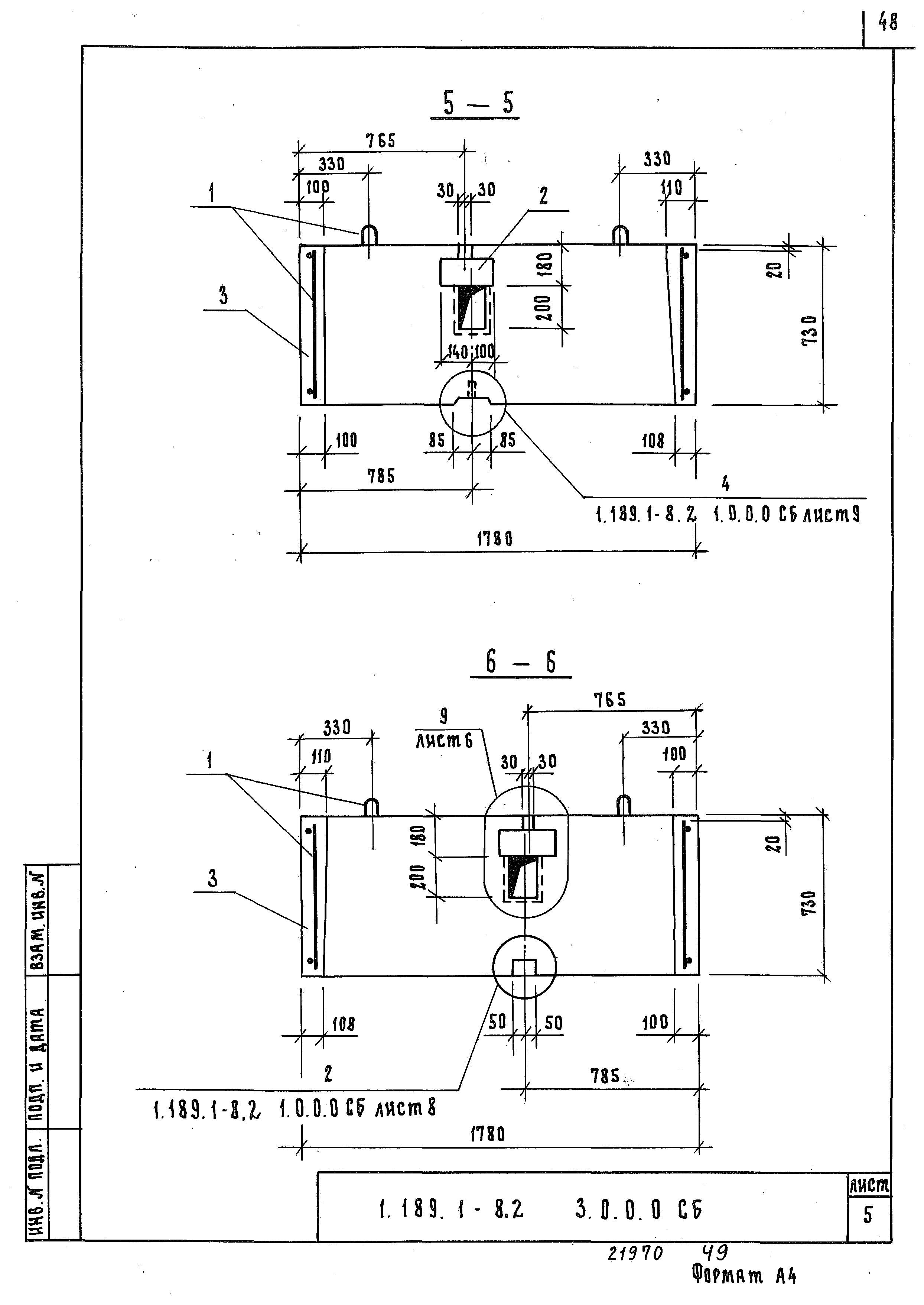
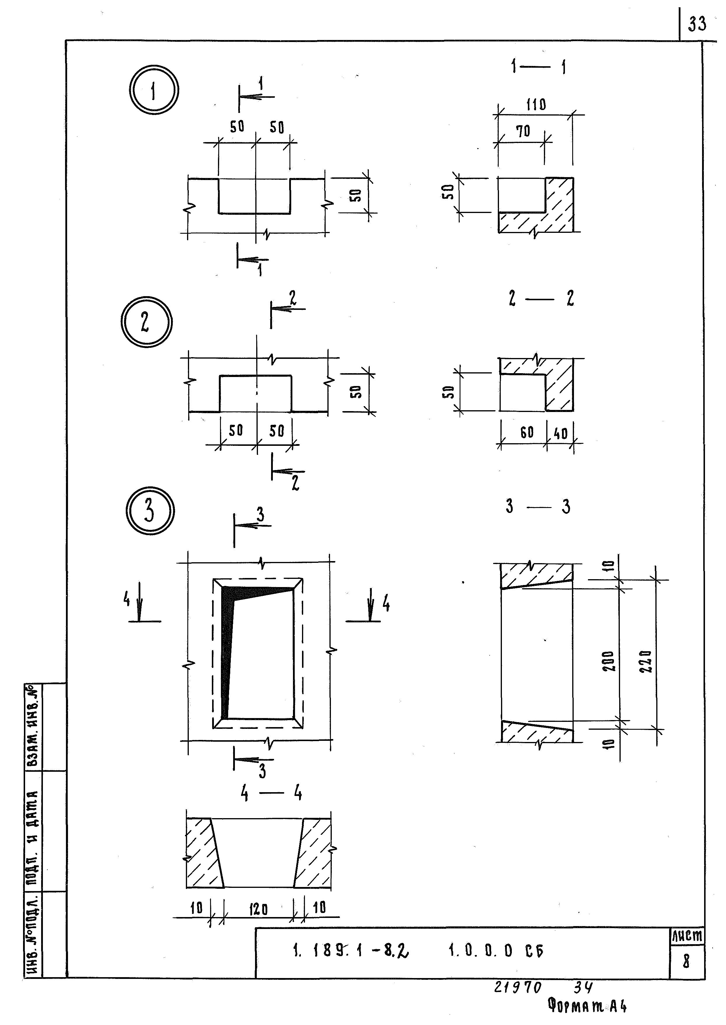
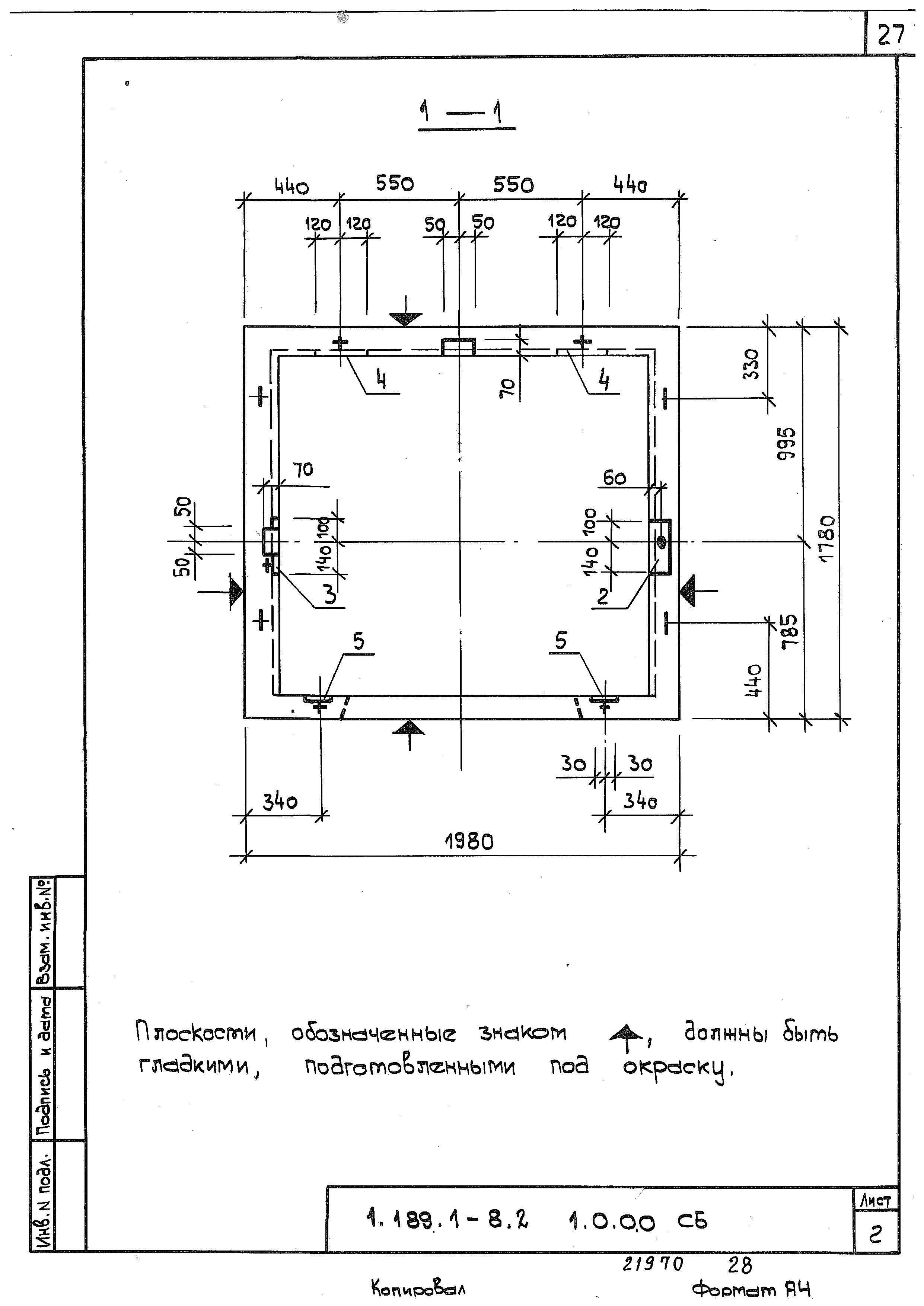
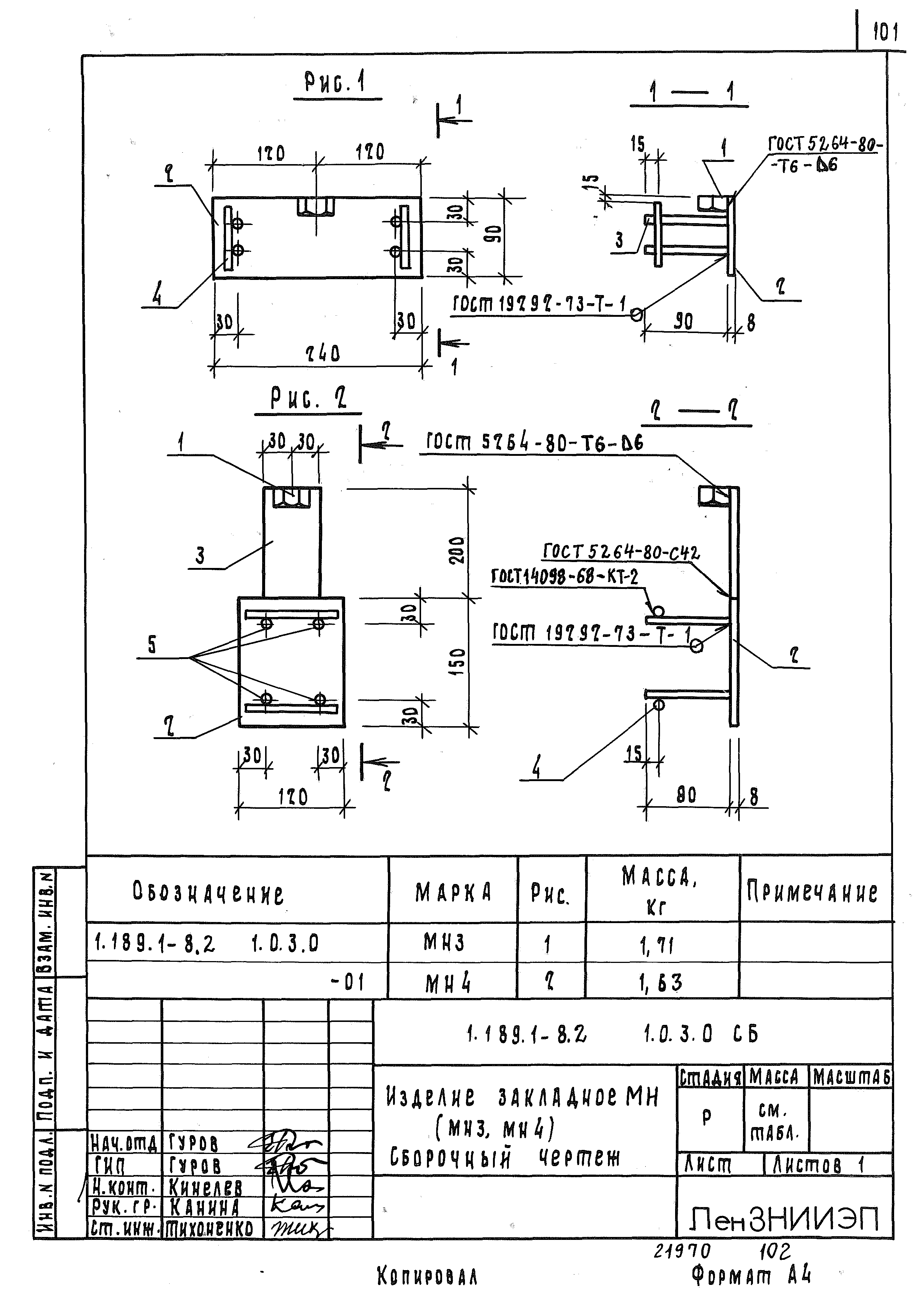
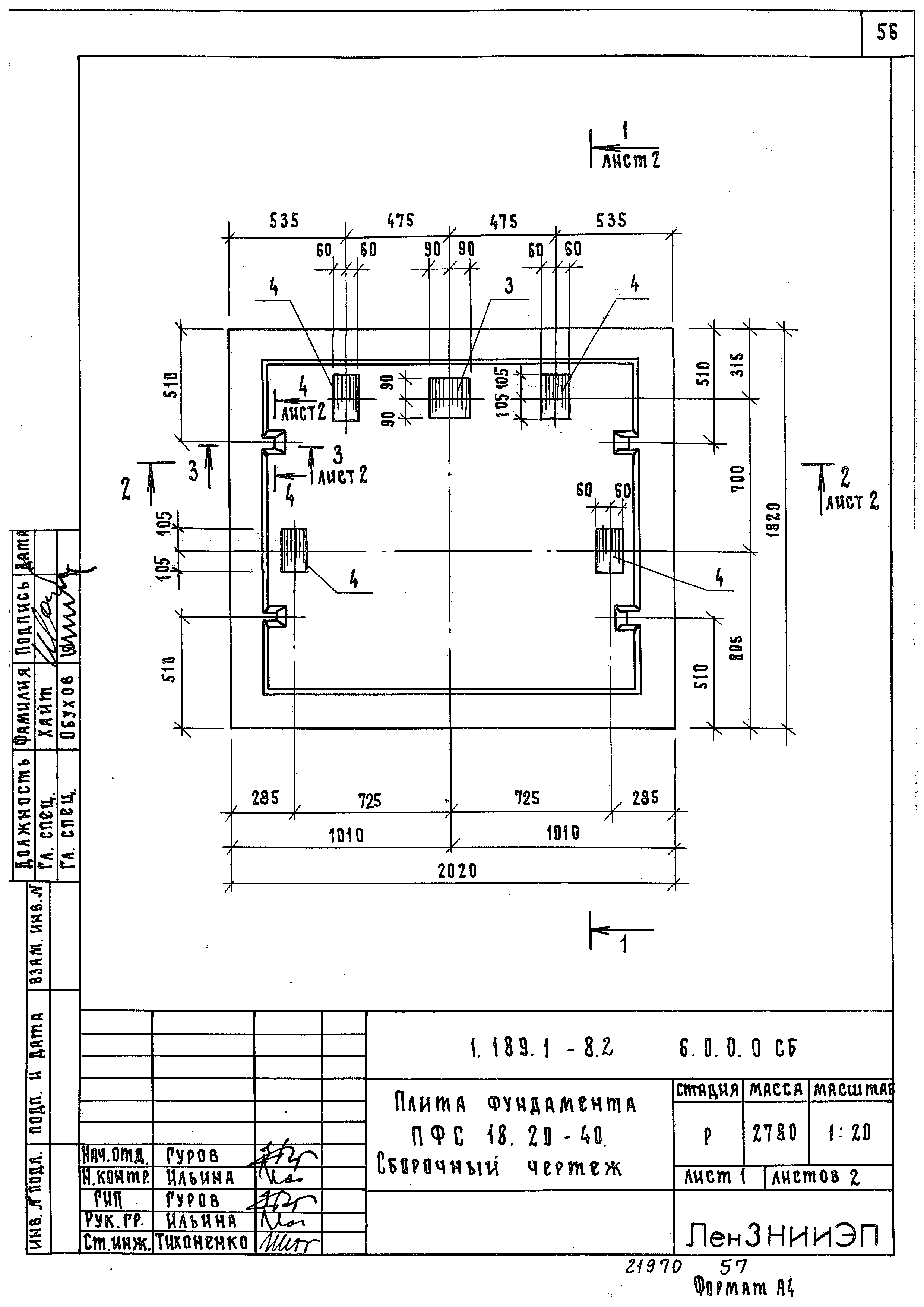
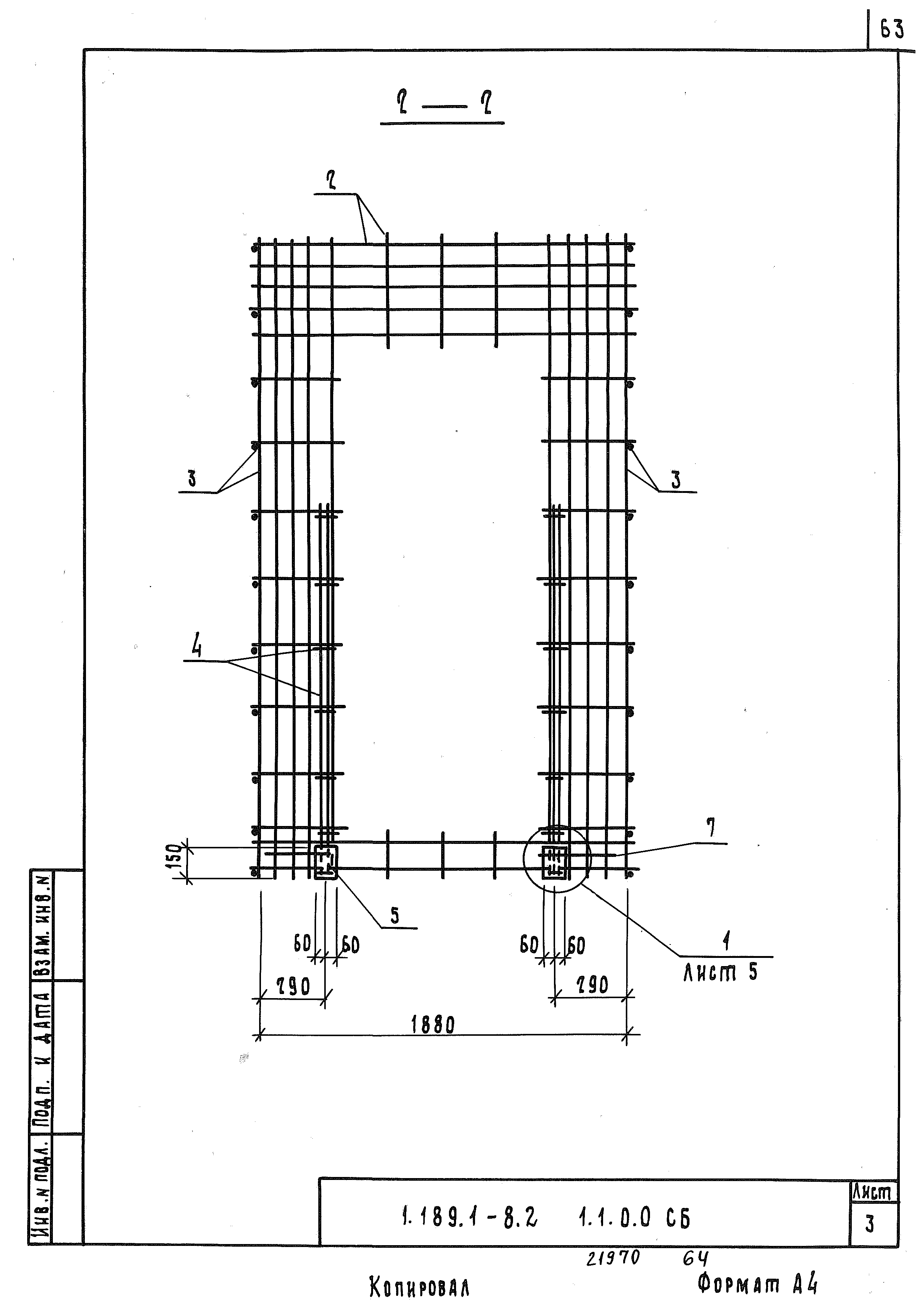
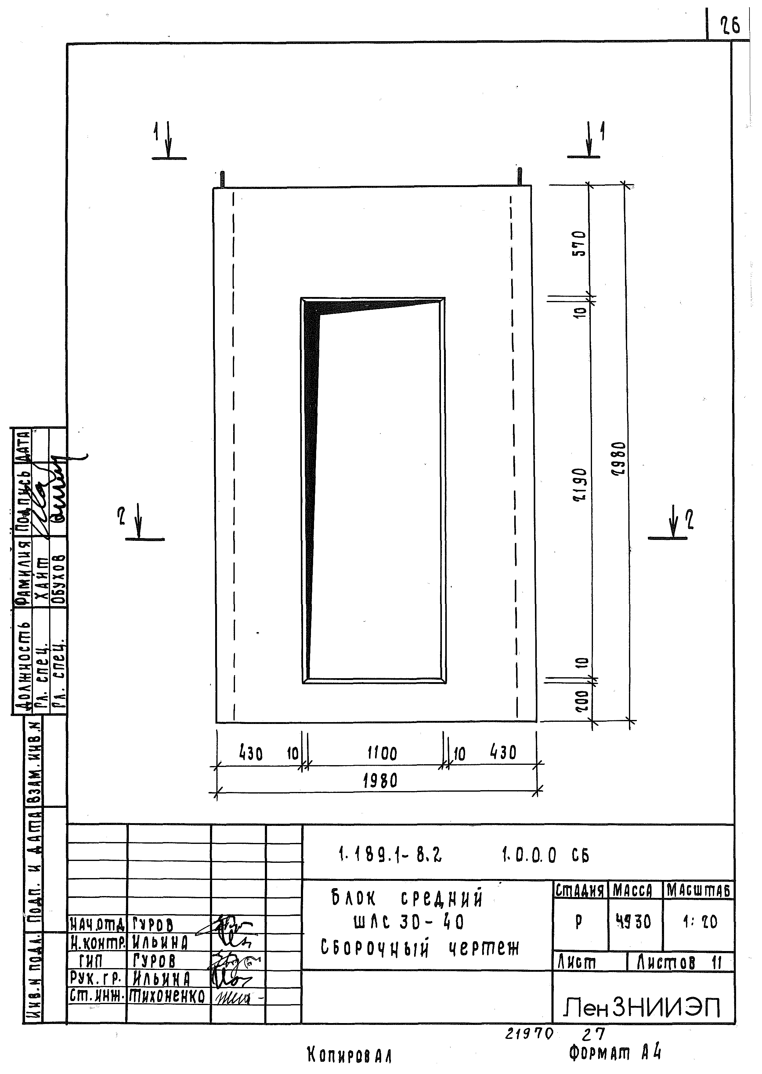
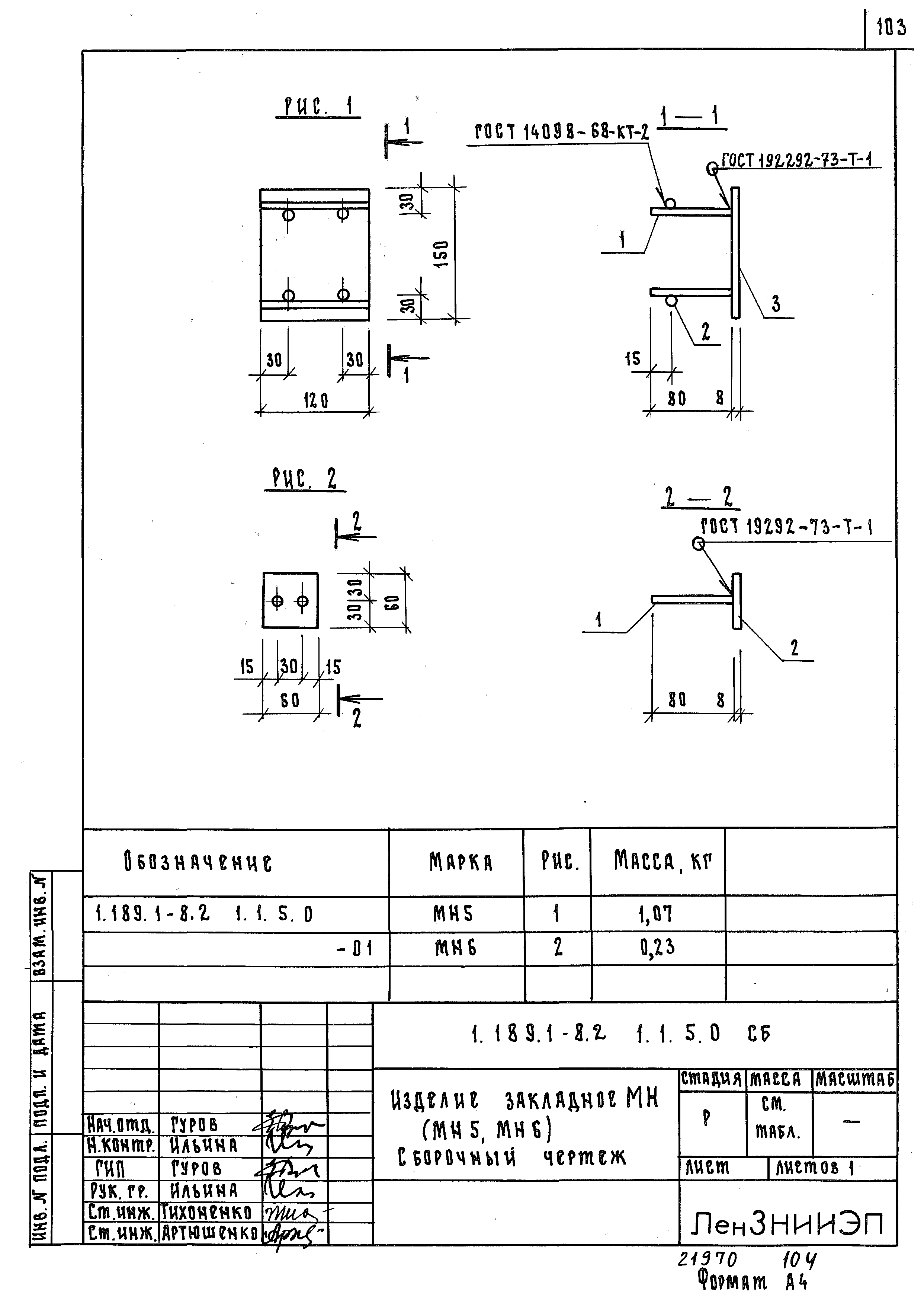
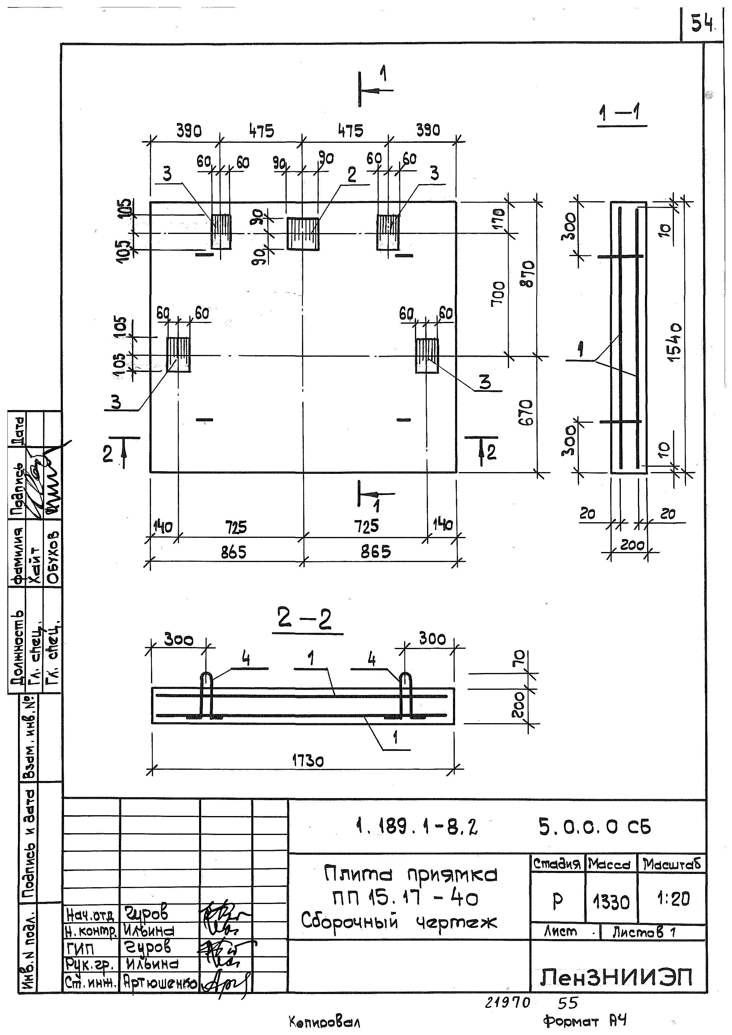
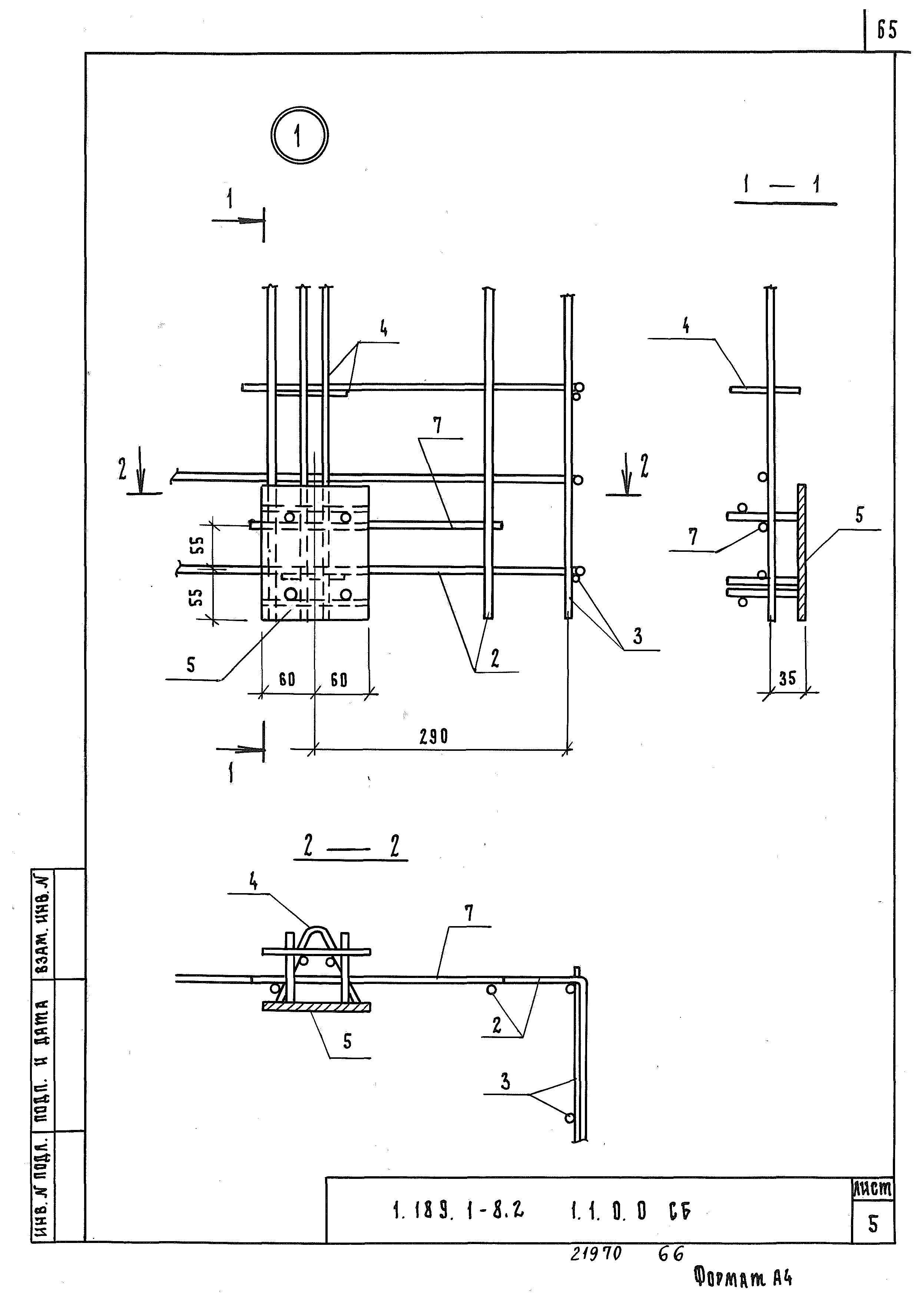
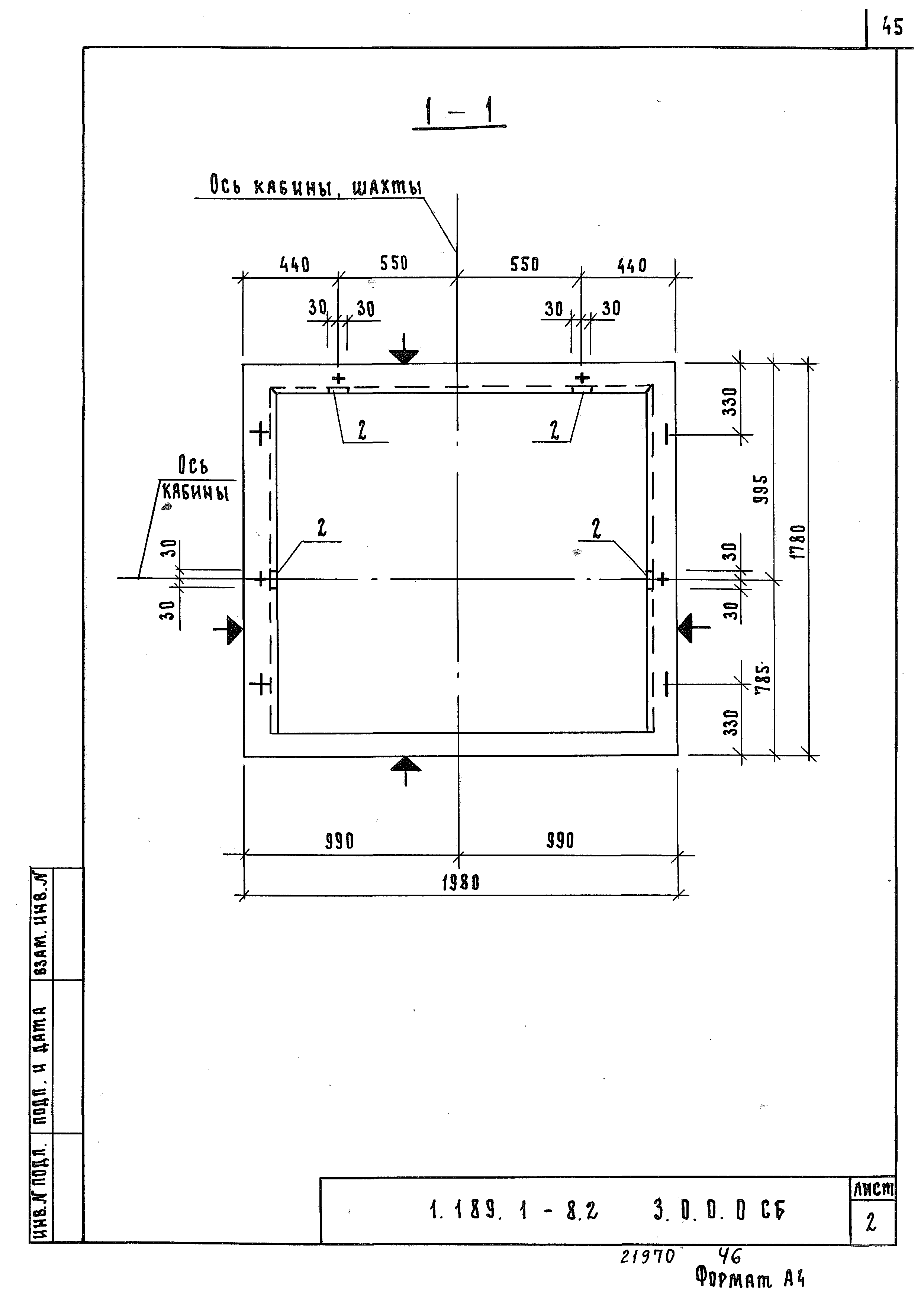
Область применения:Настоящие чертежи объемных элементов железобетонных шахт лифтов для жилых домов до 9 этажей с высотой этажа 3,0 м, строящихся в обычных условиях и на вечномерзлых грунтах используемых по принципу I и II
Разработан: ЛенЗНИИЭП Госгражданстроя
Утверждён:18.03.1986 Госгражданстрой (Gosgrazhdanstroy 94)
Принят: ЦПКБ Союзлифтмаш
Серия 1.189.1-8Серия 1.189.1-8Серия 1.189.1-8Серия 1.189.1-8Серия 1.189.1-8Серия 1.189.1-8Серия 1.189.1-8Серия 1.189.1-8Серия 1.189.1-8Серия 1.189.1-8Серия 1.189.1-8Серия 1.189.1-8Серия 1.189.1-8Серия 1.189.1-8Серия 1.189.1-8Серия 1.189.1-8Серия 1.189.1-8Серия 1.189.1-8Серия 1.189.1-8Серия 1.189.1-8Серия 1.189.1-8Серия 1.189.1-8Серия 1.189.1-8Серия 1.189.1-8Серия 1.189.1-8Серия 1.189.1-8Серия 1.189.1-8Серия 1.189.1-8Серия 1.189.1-8Серия 1.189.1-8Серия 1.189.1-8Серия 1.189.1-8Серия 1.189.1-8Серия 1.189.1-8Серия 1.189.1-8Серия 1.189.1-8Серия 1.189.1-8Серия 1.189.1-8Серия 1.189.1-8Серия 1.189.1-8Серия 1.189.1-8Серия 1.189.1-8Серия 1.189.1-8Серия 1.189.1-8Серия 1.189.1-8Серия 1.189.1-8Серия 1.189.1-8Серия 1.189.1-8Серия 1.189.1-8Серия 1.189.1-8Серия 1.189.1-8Серия 1.189.1-8Серия 1.189.1-8Серия 1.189.1-8Серия 1.189.1-8Серия 1.189.1-8Серия 1.189.1-8Серия 1.189.1-8Серия 1.189.1-8Серия 1.189.1-8Серия 1.189.1-8Серия 1.189.1-8Серия 1.189.1-8Серия 1.189.1-8Серия 1.189.1-8Серия 1.189.1-8Серия 1.189.1-8Серия 1.189.1-8Серия 1.189.1-8Серия 1.189.1-8Серия 1.189.1-8Серия 1.189.1-8Серия 1.189.1-8Серия 1.189.1-8Серия 1.189.1-8Серия 1.189.1-8Серия 1.189.1-8Серия 1.189.1-8Серия 1.189.1-8Серия 1.189.1-8Серия 1.189.1-8Серия 1.189.1-8Серия 1.189.1-8Серия 1.189.1-8Серия 1.189.1-8Серия 1.189.1-8Серия 1.189.1-8Серия 1.189.1-8Серия 1.189.1-8Серия 1.189.1-8Серия 1.189.1-8Серия 1.189.1-8Серия 1.189.1-8Серия 1.189.1-8Серия 1.189.1-8Серия 1.189.1-8Серия 1.189.1-8Серия 1.189.1-8Серия 1.189.1-8Серия 1.189.1-8Серия 1.189.1-8Серия 1.189.1-8Серия 1.189.1-8Серия 1.189.1-8Серия 1.189.1-8Серия 1.189.1-8Серия 1.189.1-8Серия 1.189.1-8Серия 1.189.1-8Серия 1.189.1-8Серия 1.189.1-8Серия 1.189.1-8Серия 1.189.1-8Серия 1.189.1-8Серия 1.189.1-8Серия 1.189.1-8