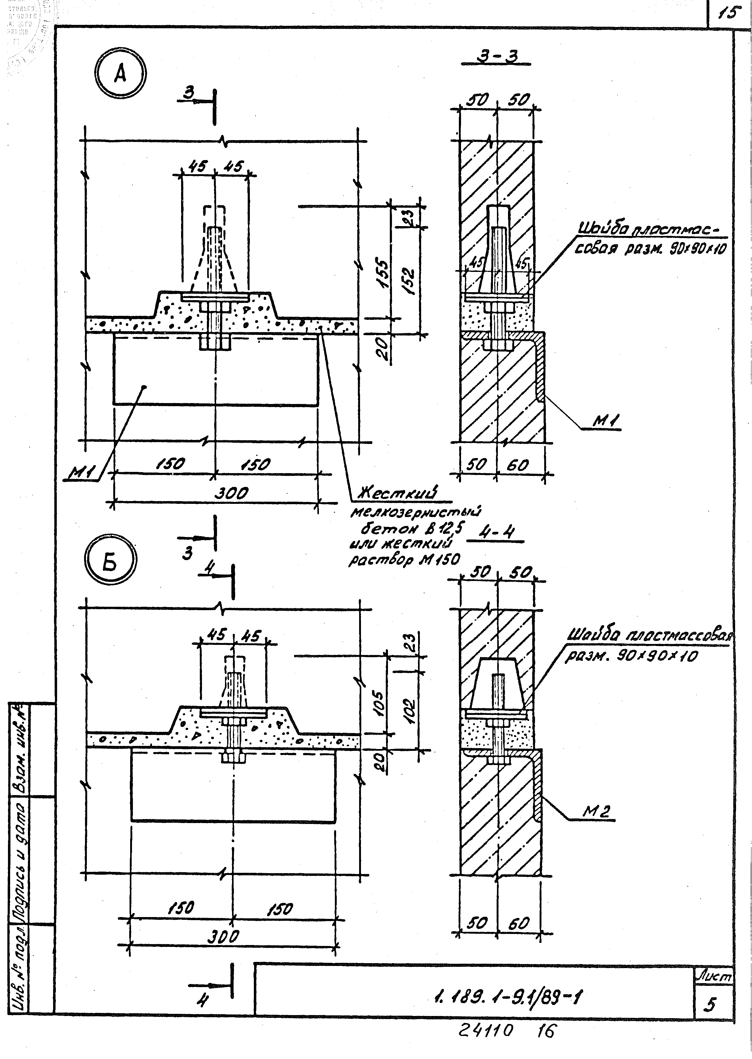
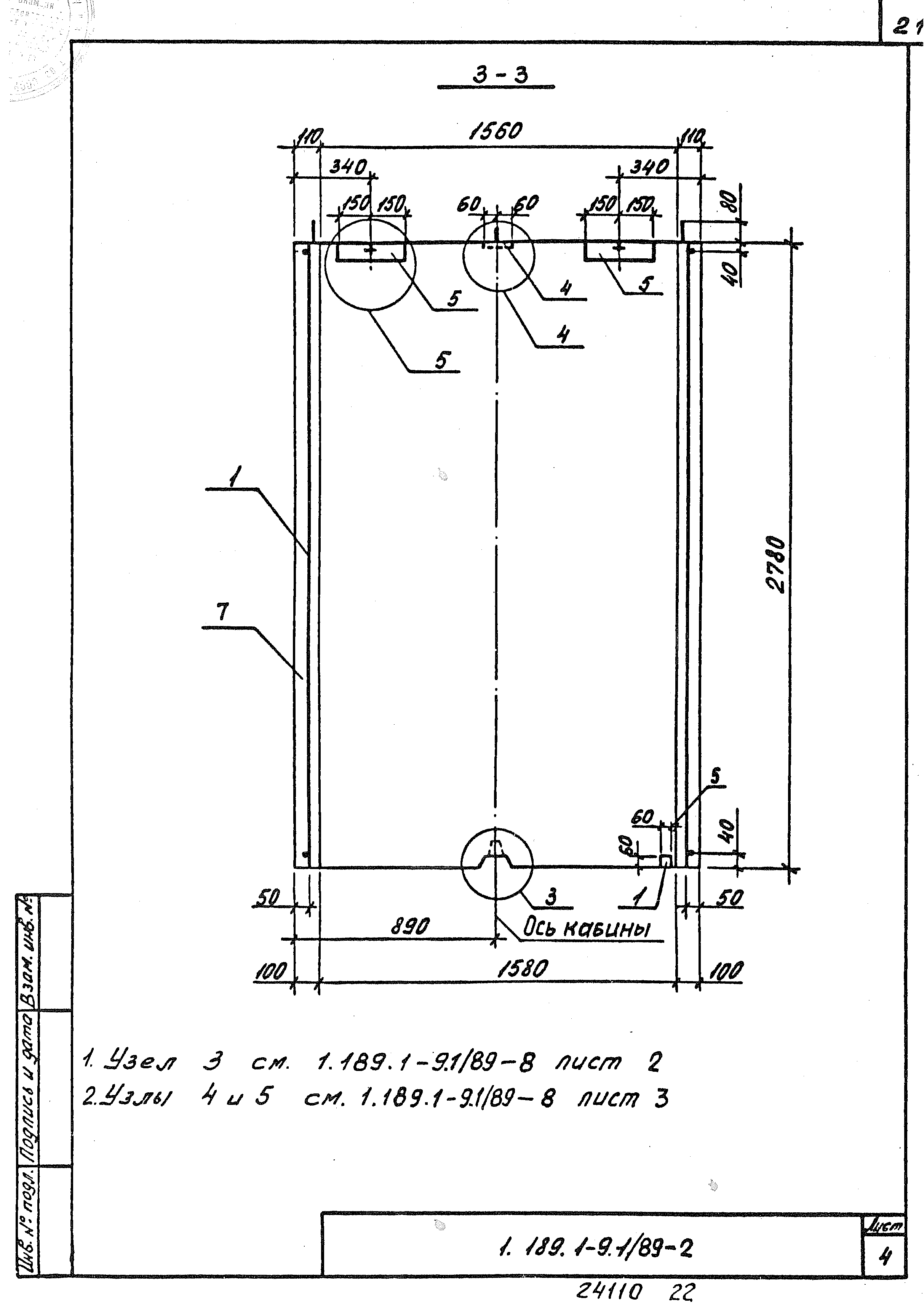
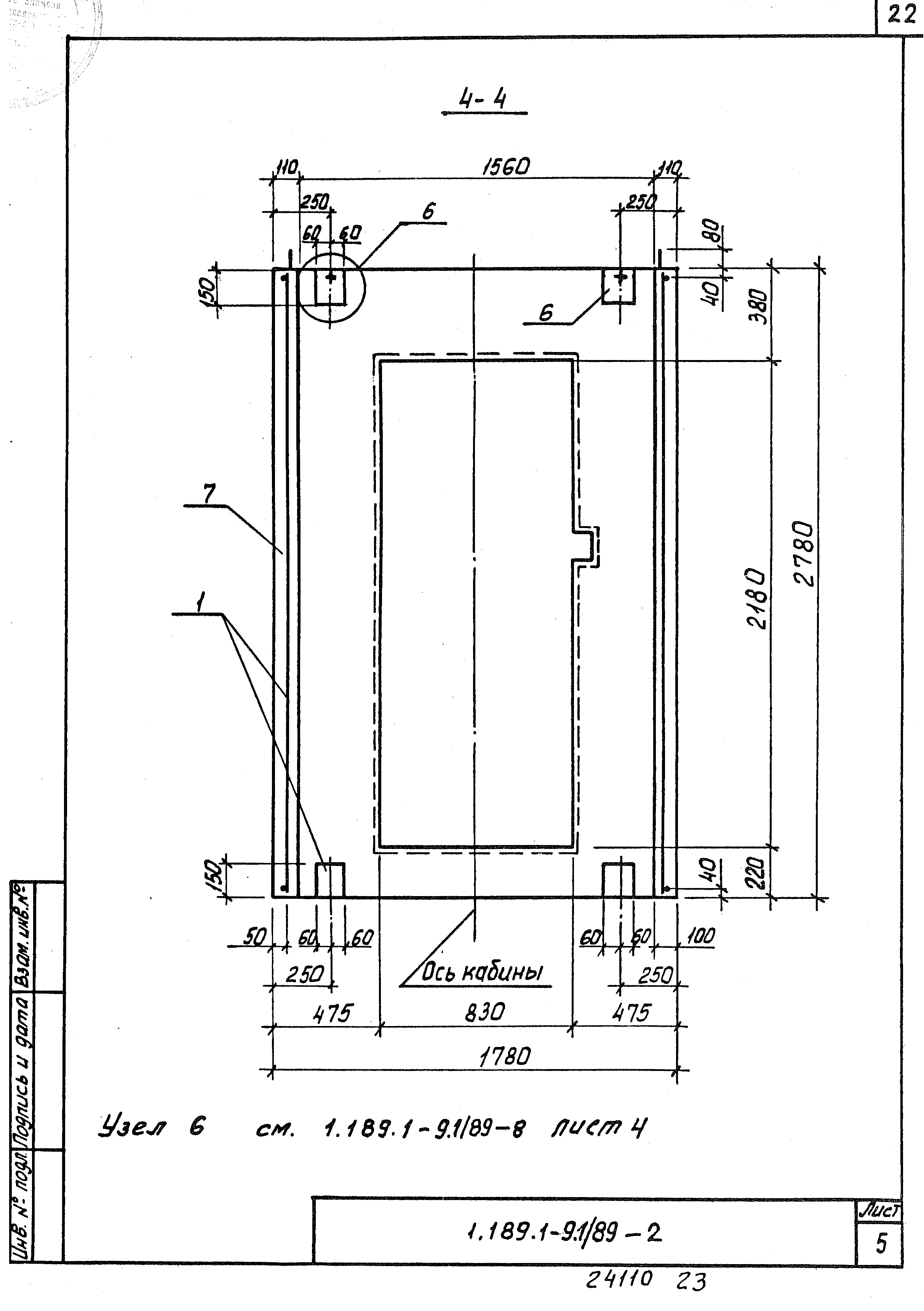
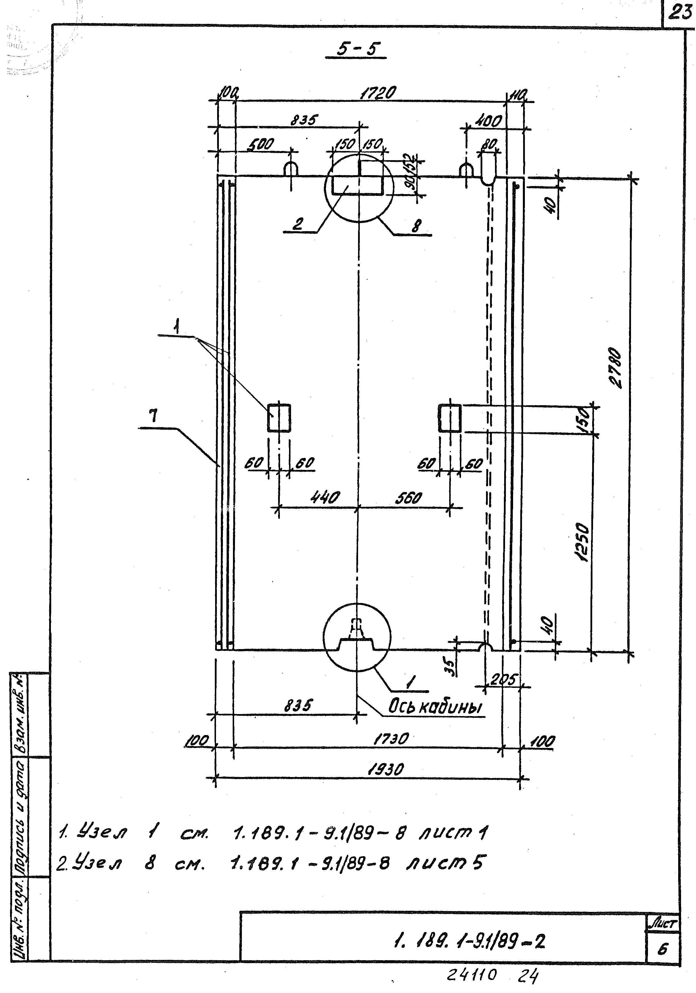
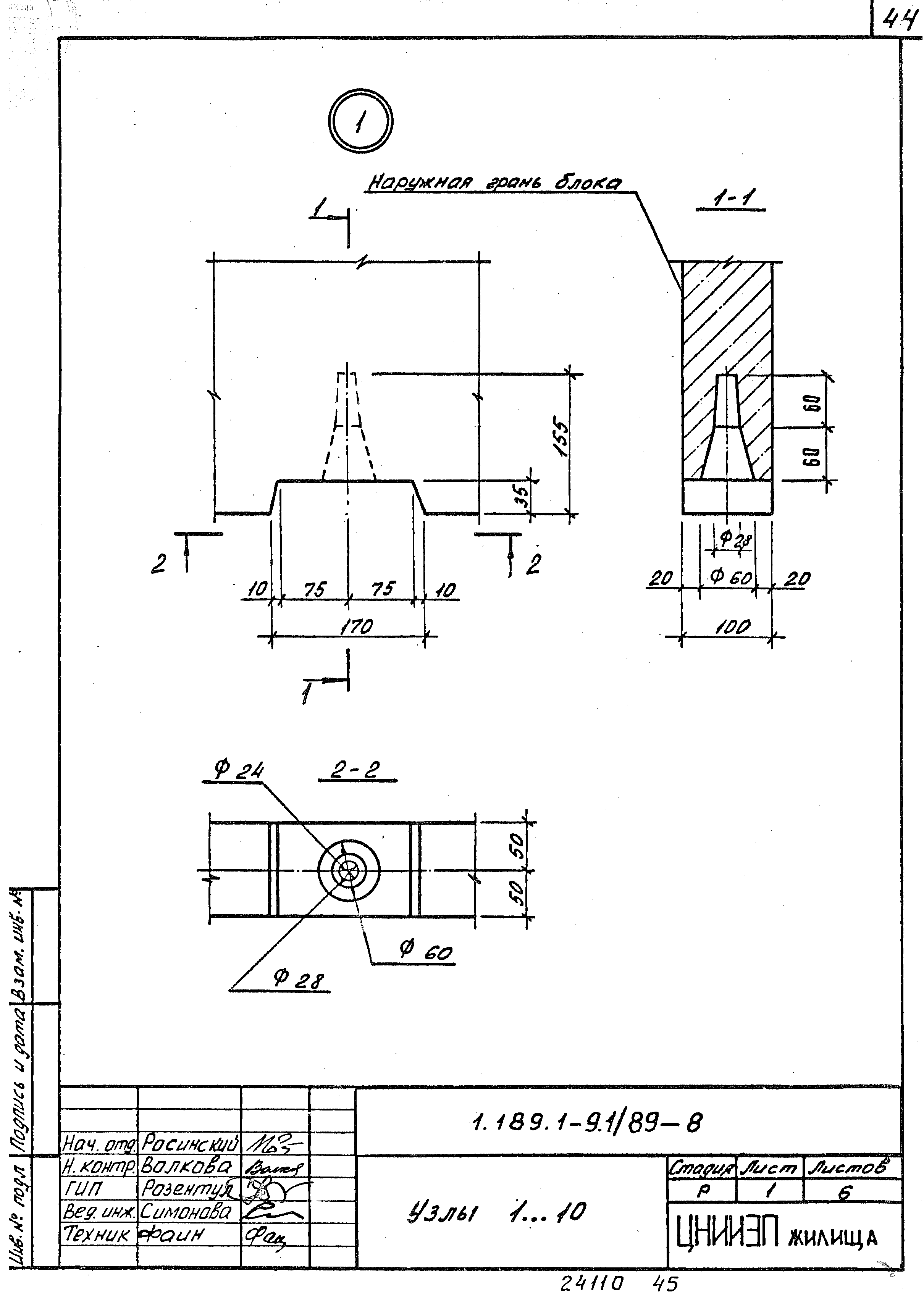
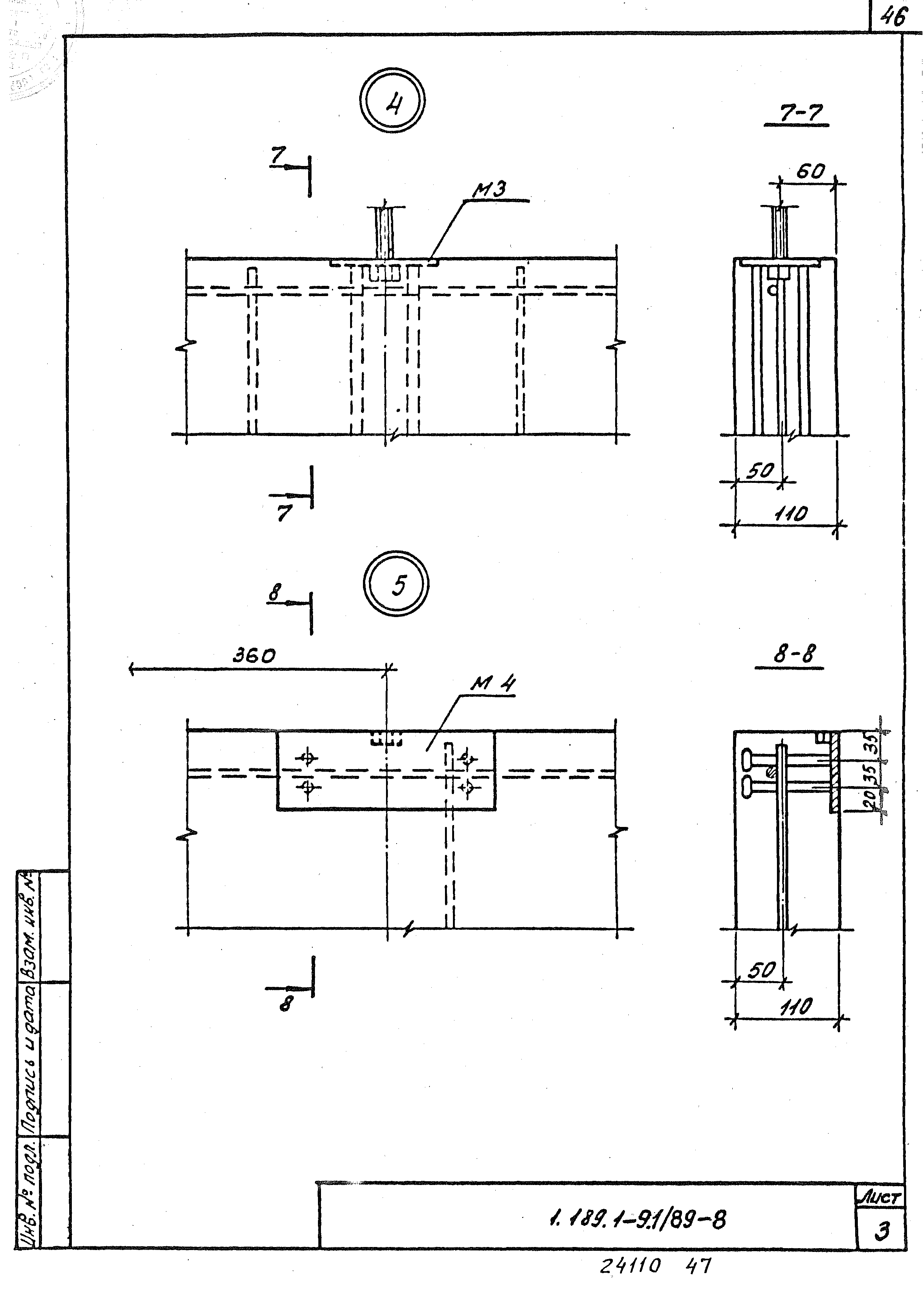
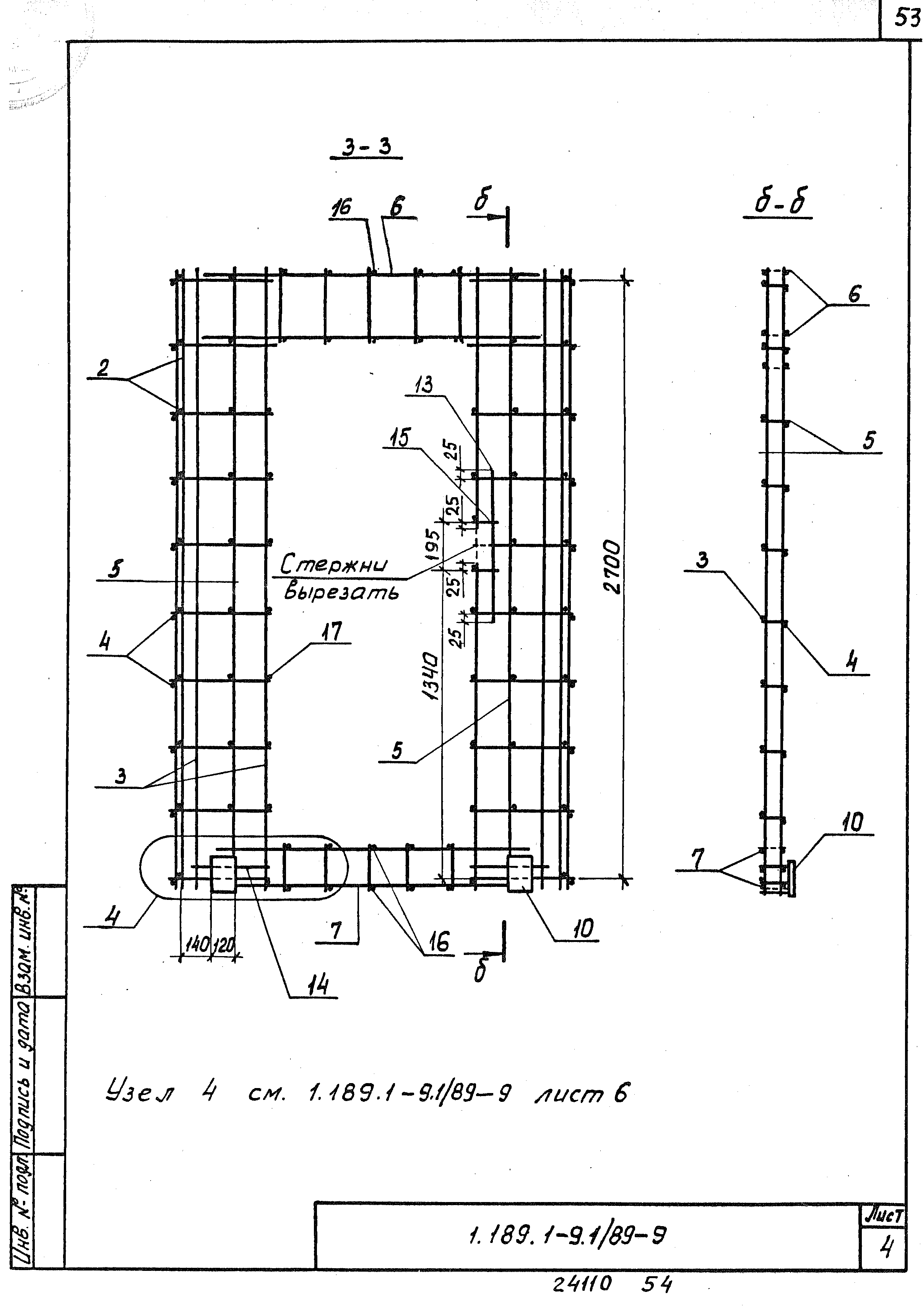
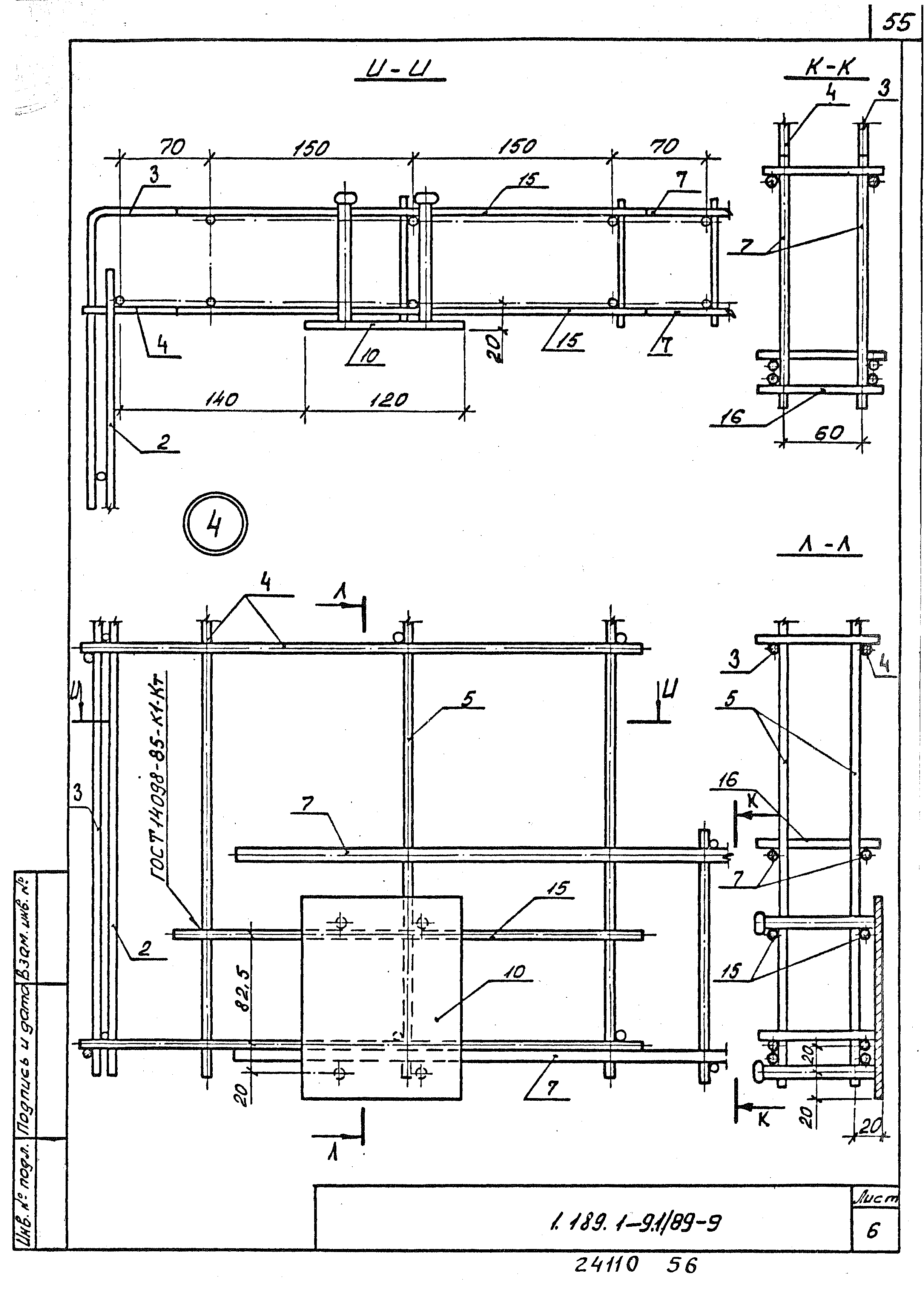
Скачать Серия 1.189.1-9 Выпуск 1/89. Конструкции унифицированных шахт лифтов грузоподъемностью 400 и 320 кг с противовесом сзади кабины для зданий высотой до 10 этажей. Рабочие чертежиДата актуализации: 01.01.2021
|
| Обозначение: | Серия 1.189.1-9 |
| Обозначение англ: | Series 1.189.1-9 |
| Статус: | не определен законодательством |
| Название рус.: | Выпуск 1/89. Конструкции унифицированных шахт лифтов грузоподъемностью 400 и 320 кг с противовесом сзади кабины для зданий высотой до 10 этажей. Рабочие чертежи |
| Дата добавления в базу: | 01.09.2013 |
| Дата актуализации: | 01.01.2021 |
| Дата введения: | 01.11.1989 |
| Дата окончания срока действия: | 30.06.2003 |
| Разработан: | ЦНИИЭП жилища |
| Утверждён: | 06.10.1989 Госкомархитектура (187) |
| Заменяет собой: |
























































































