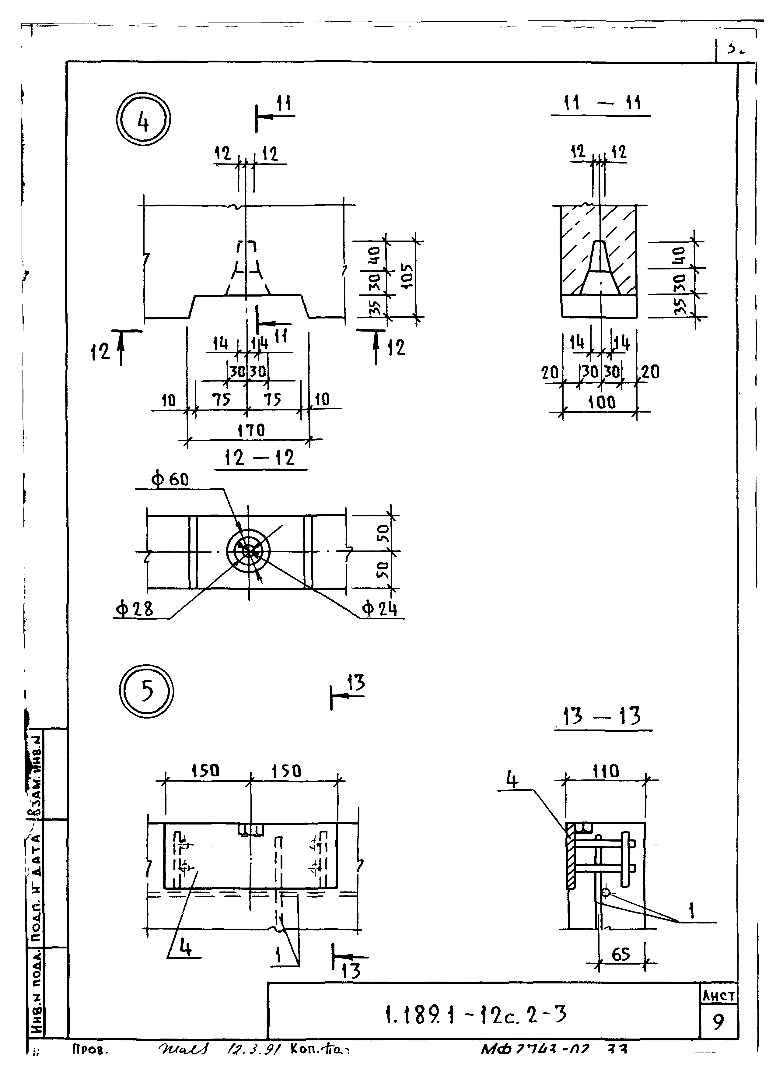
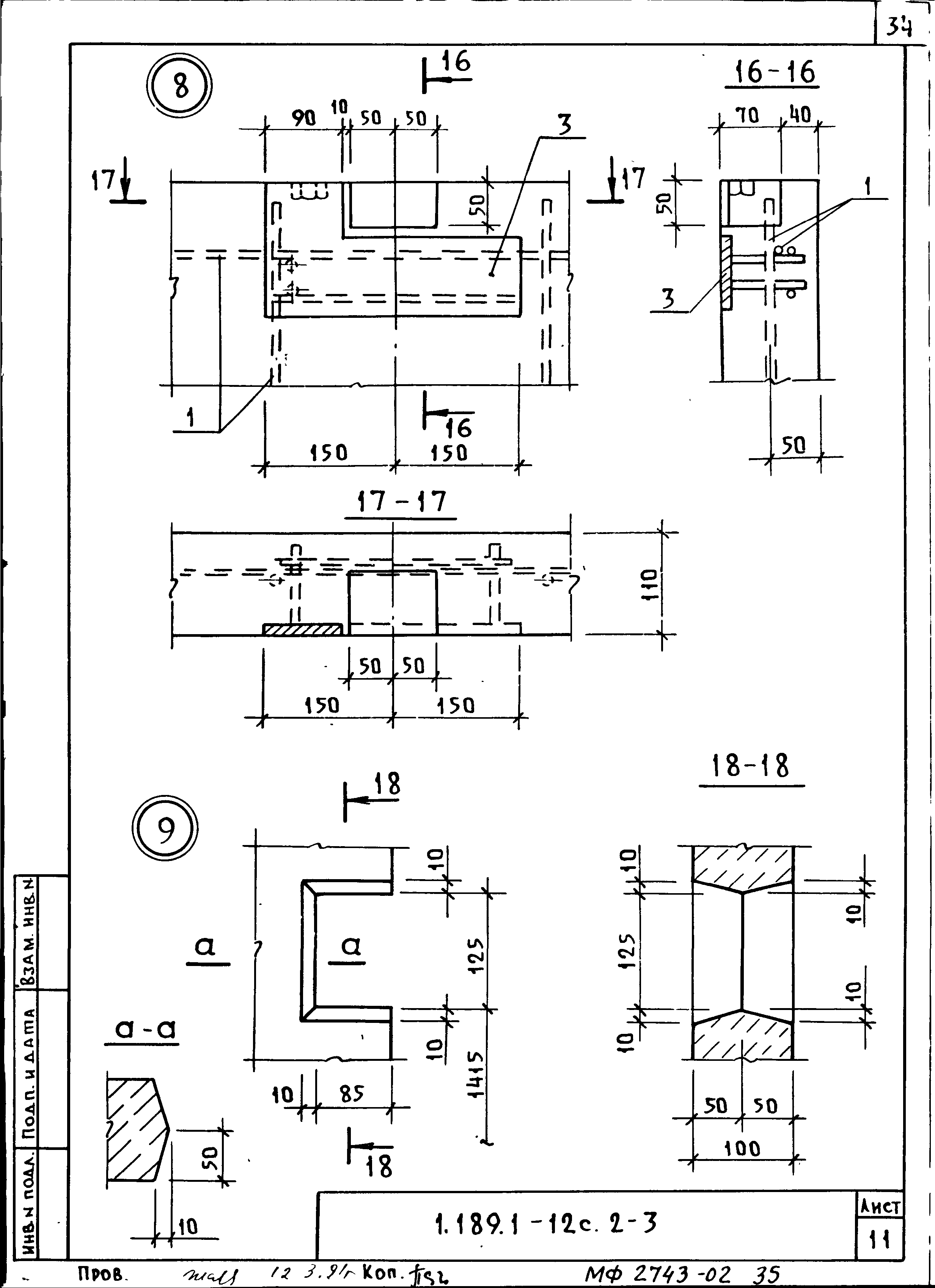
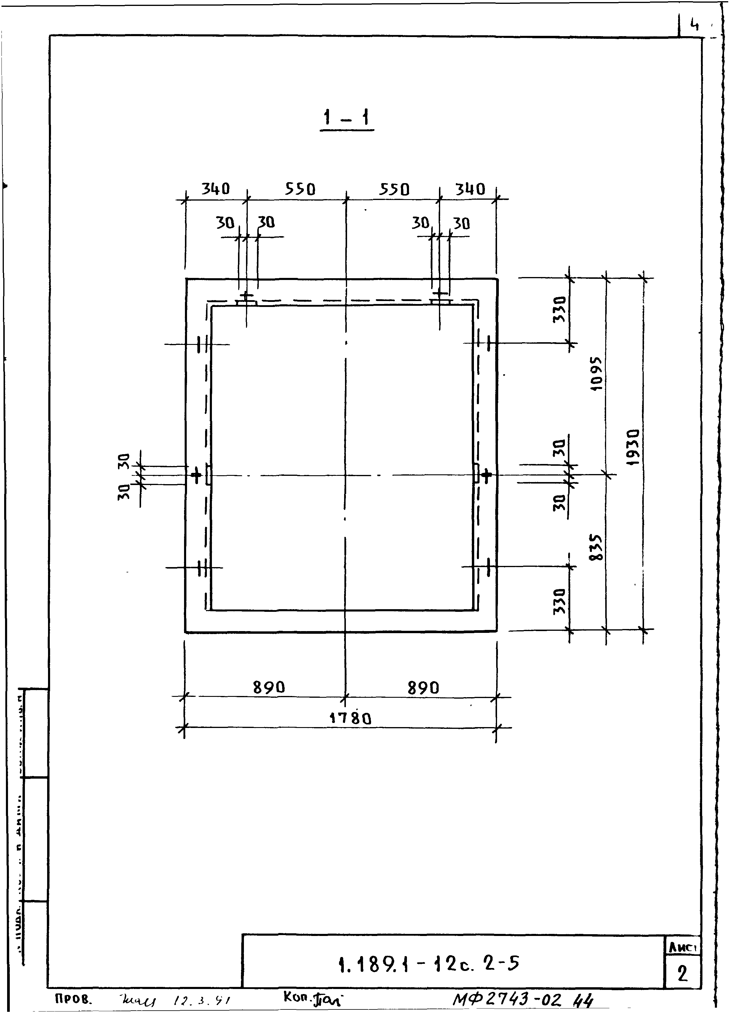
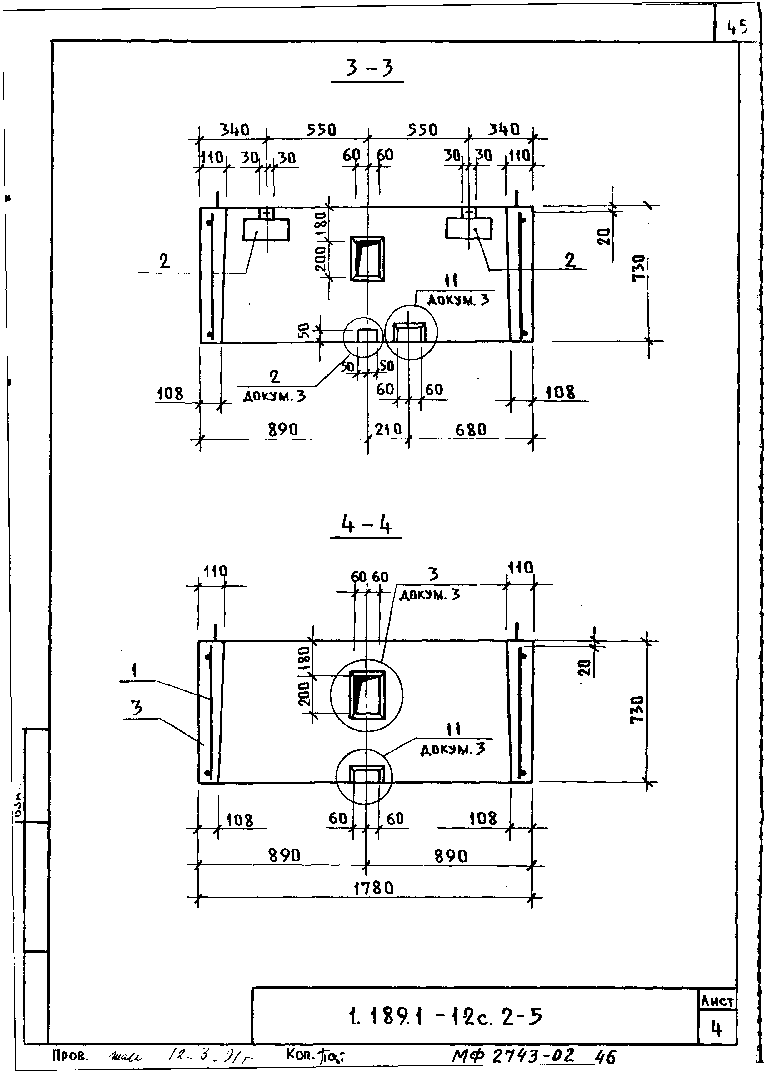
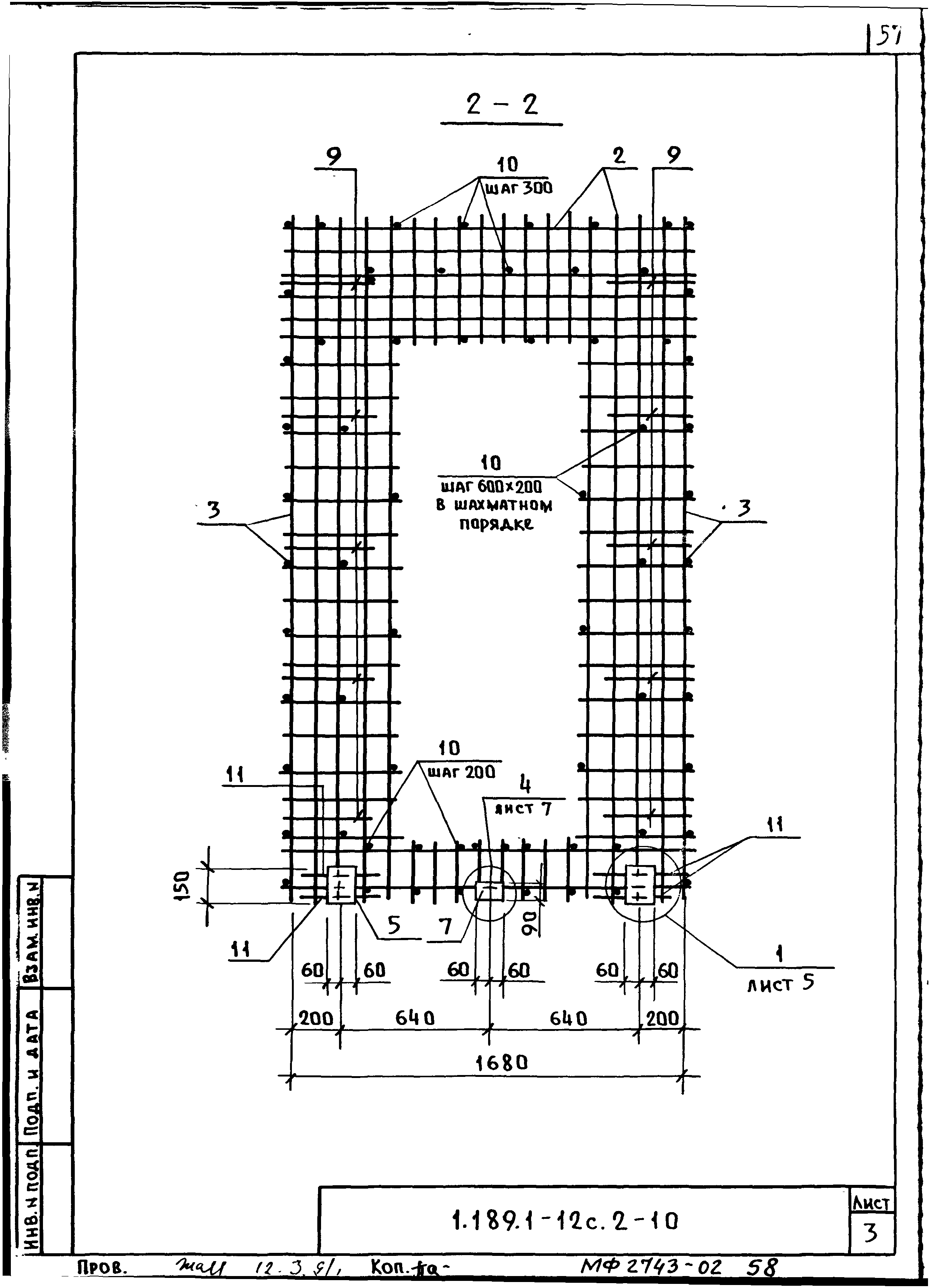
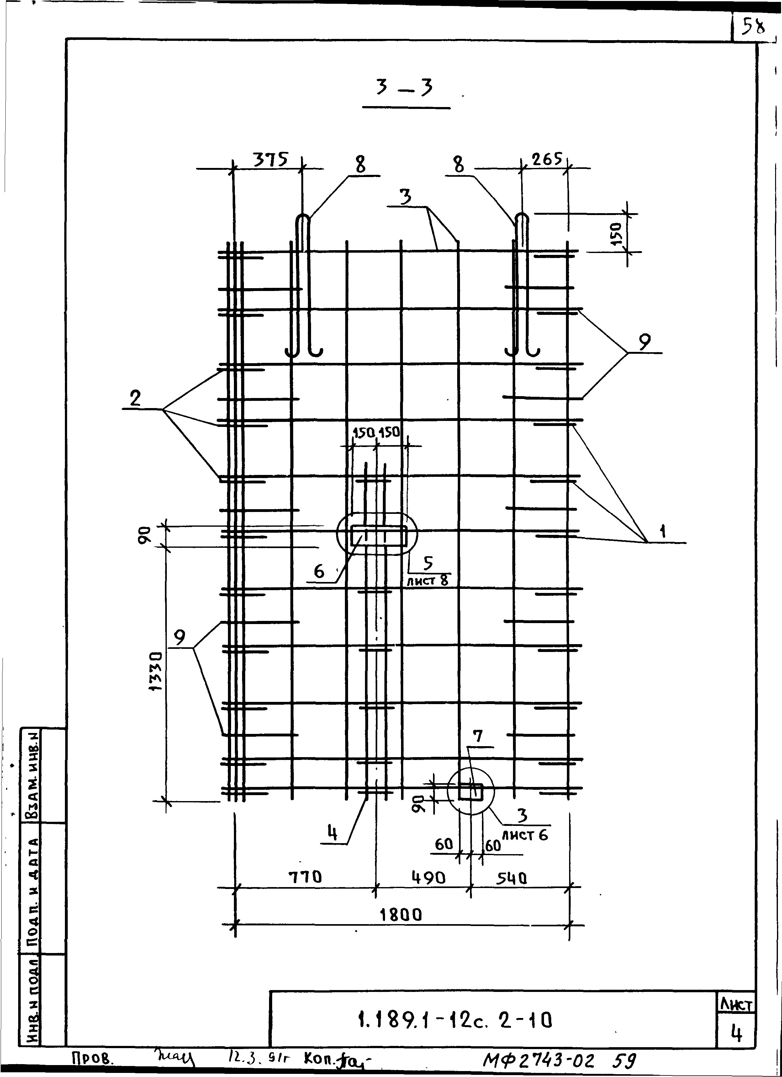
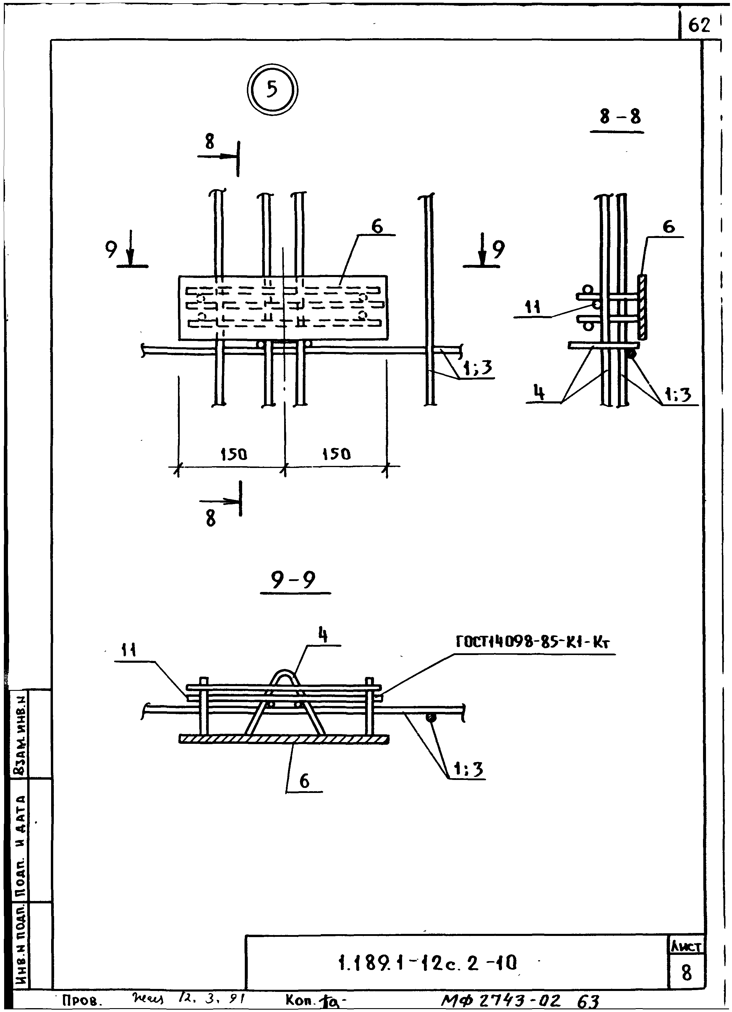
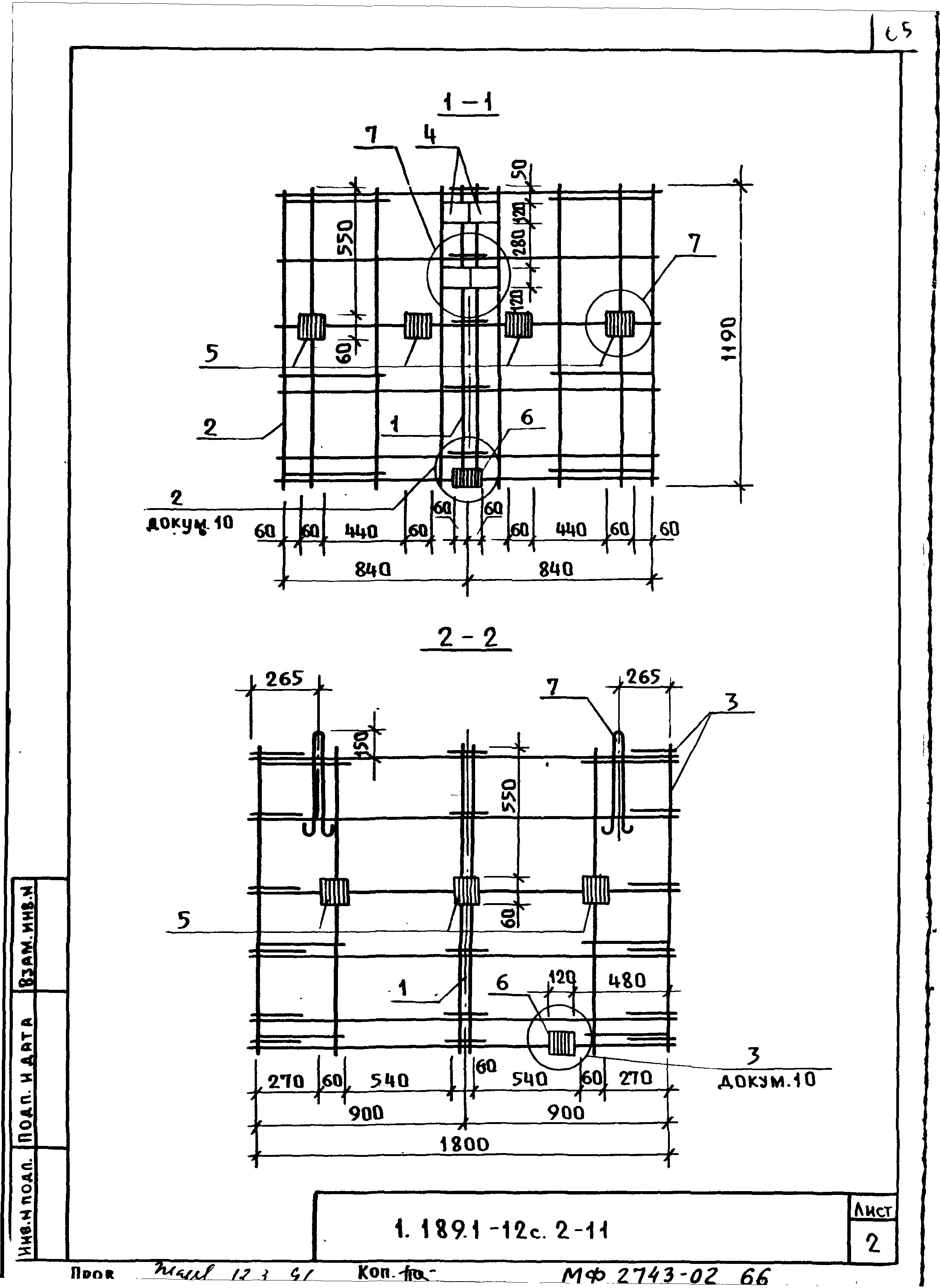
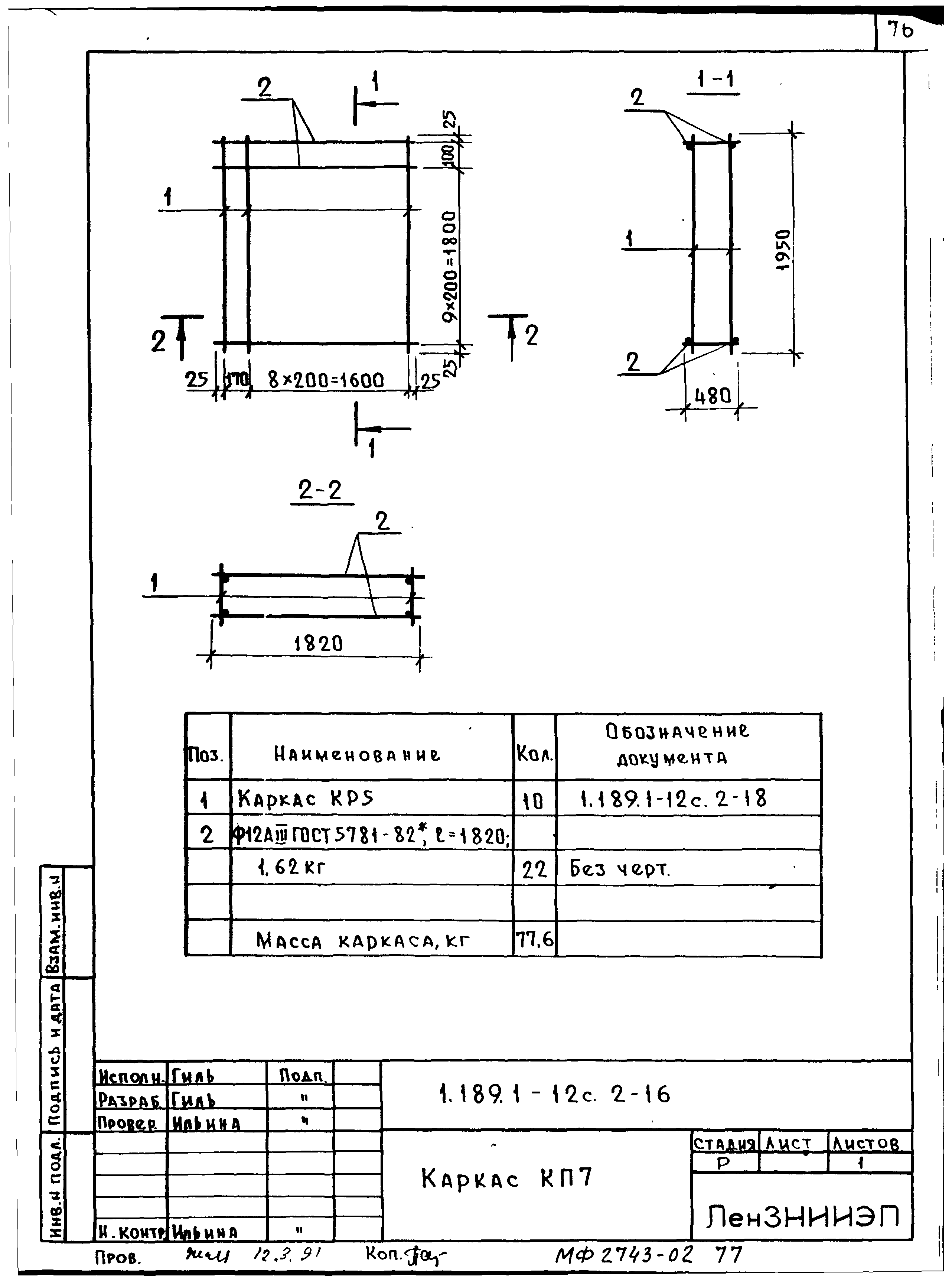
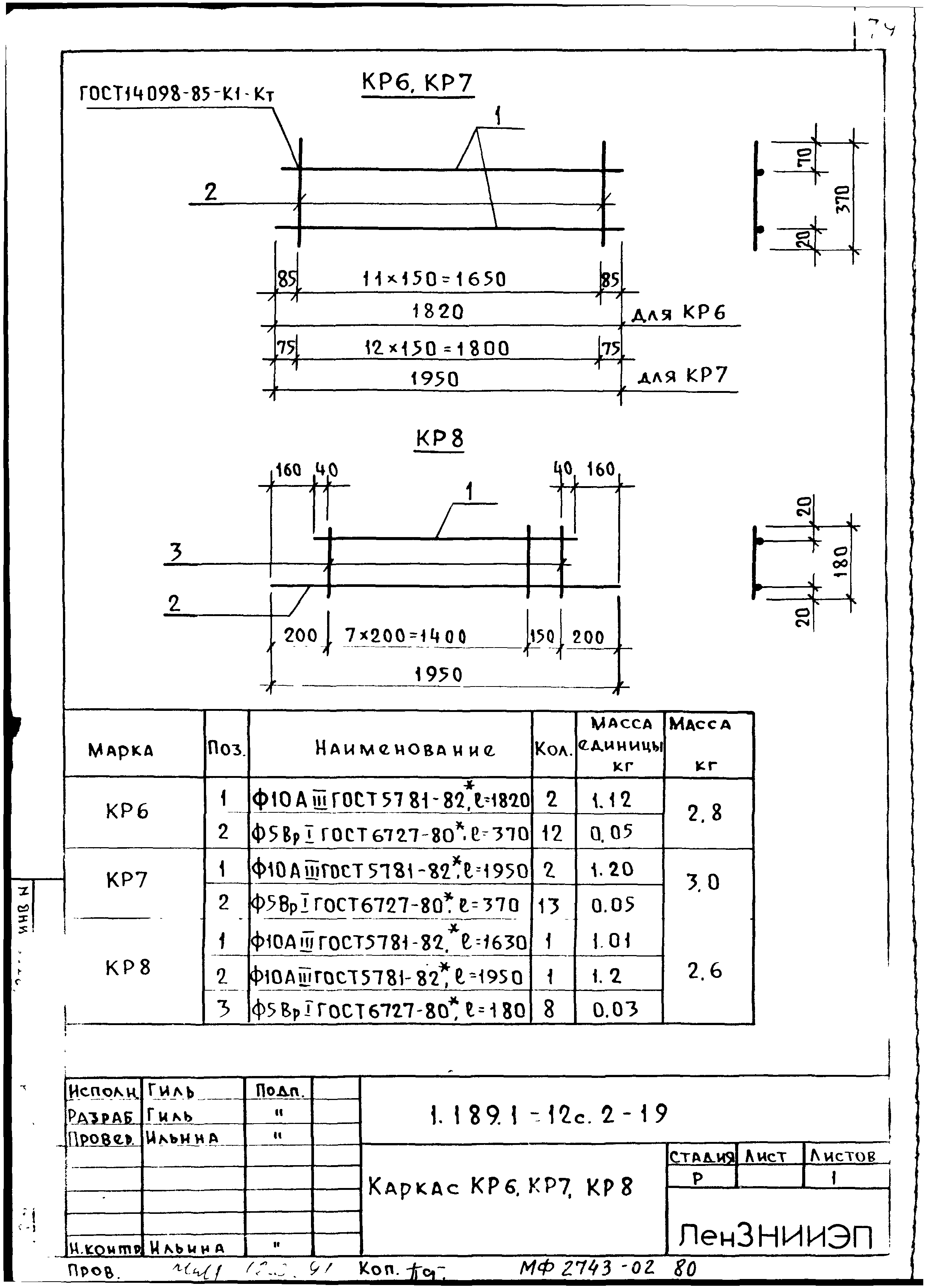
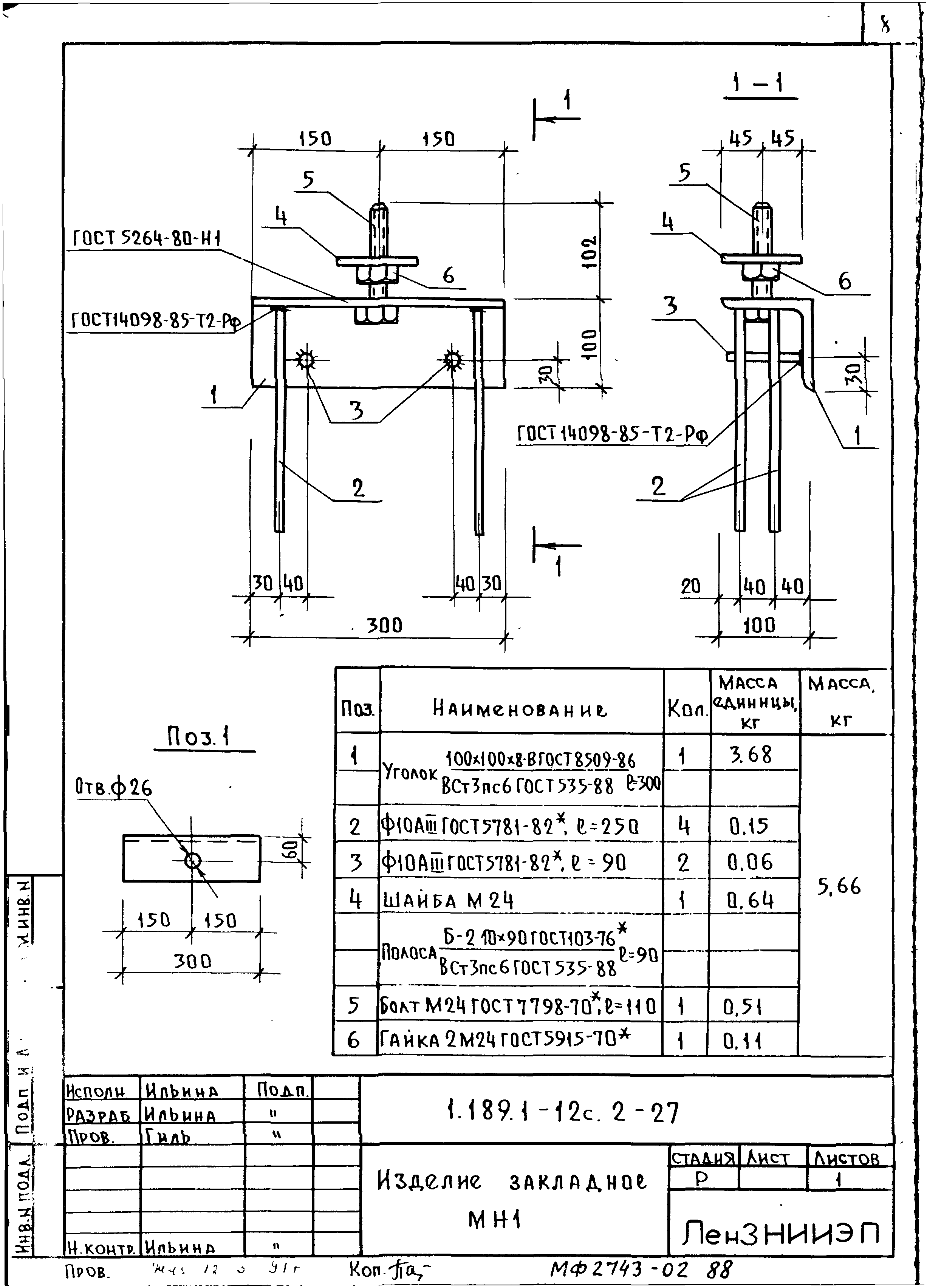
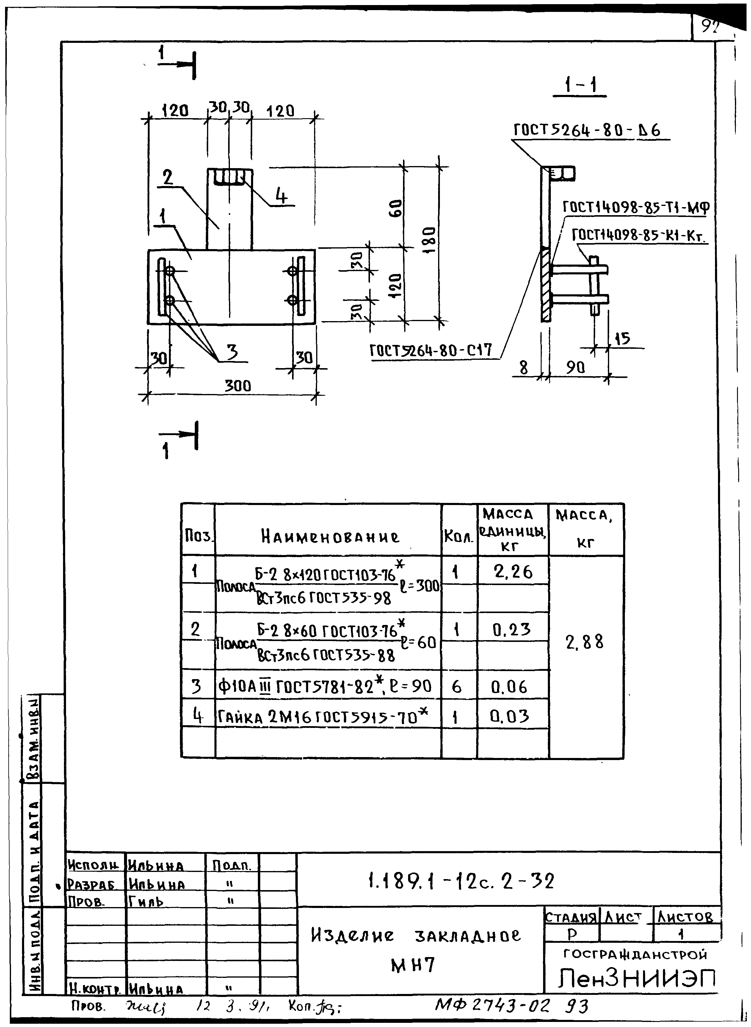
Скачать Серия 1.189.1-12с Выпуск 2. Конструкции шахт лифтов грузоподъемностью 400 кг с противовесом сзади кабины и скоростью движения 1,0 м/с зданий до 10 этажей. Рабочие чертежиДата актуализации: 01.01.2021 Серия 1.189.1-12с
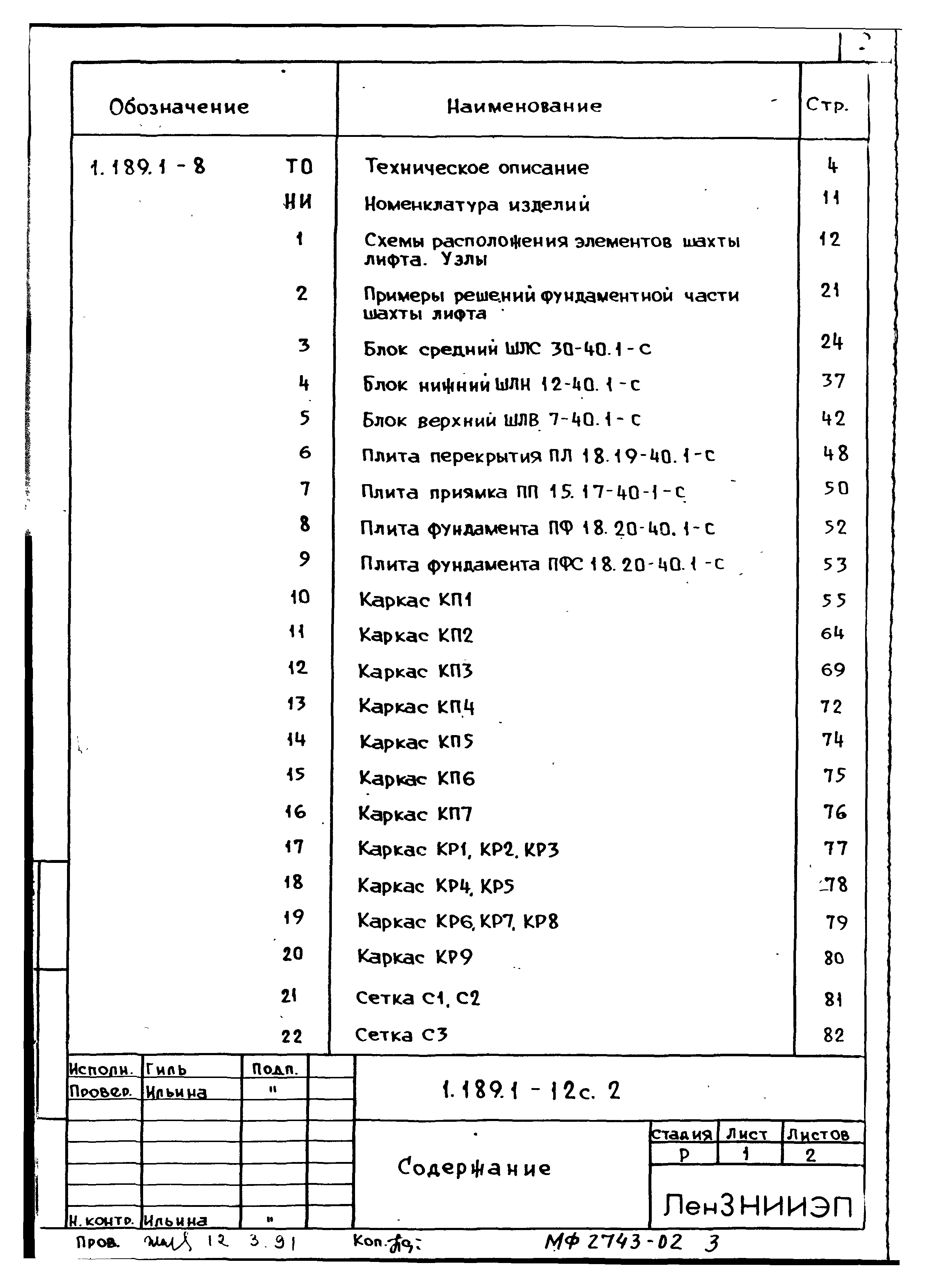
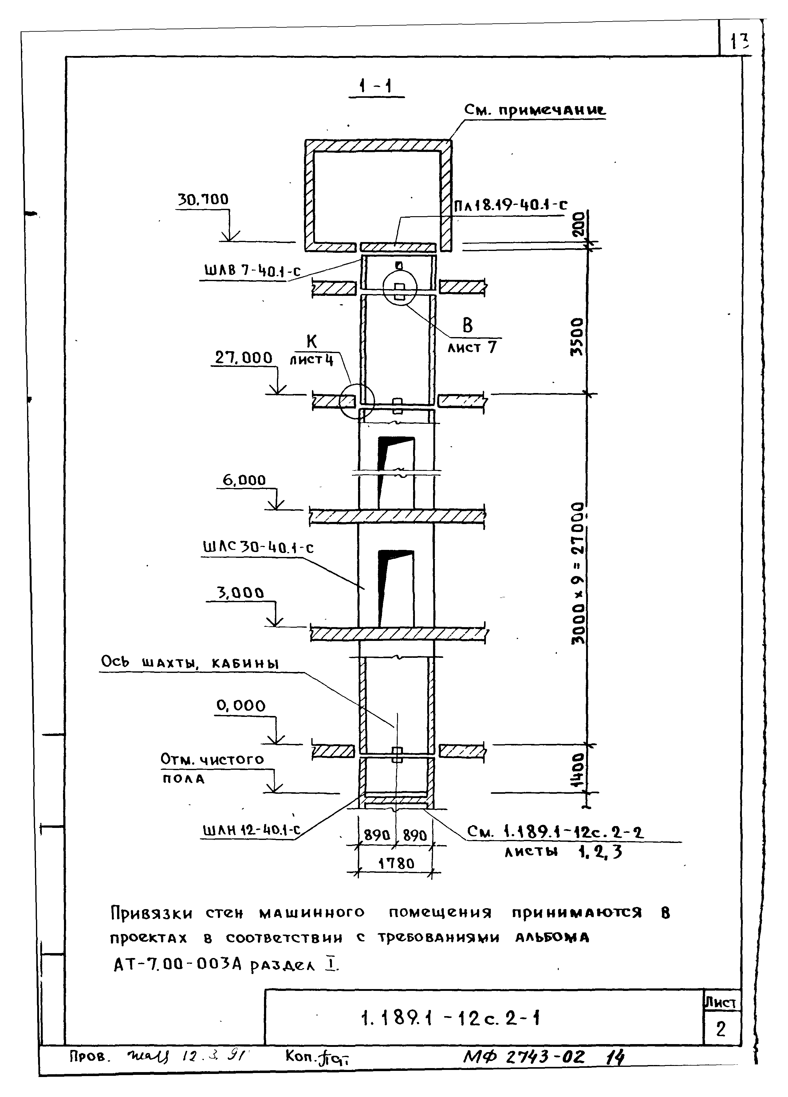
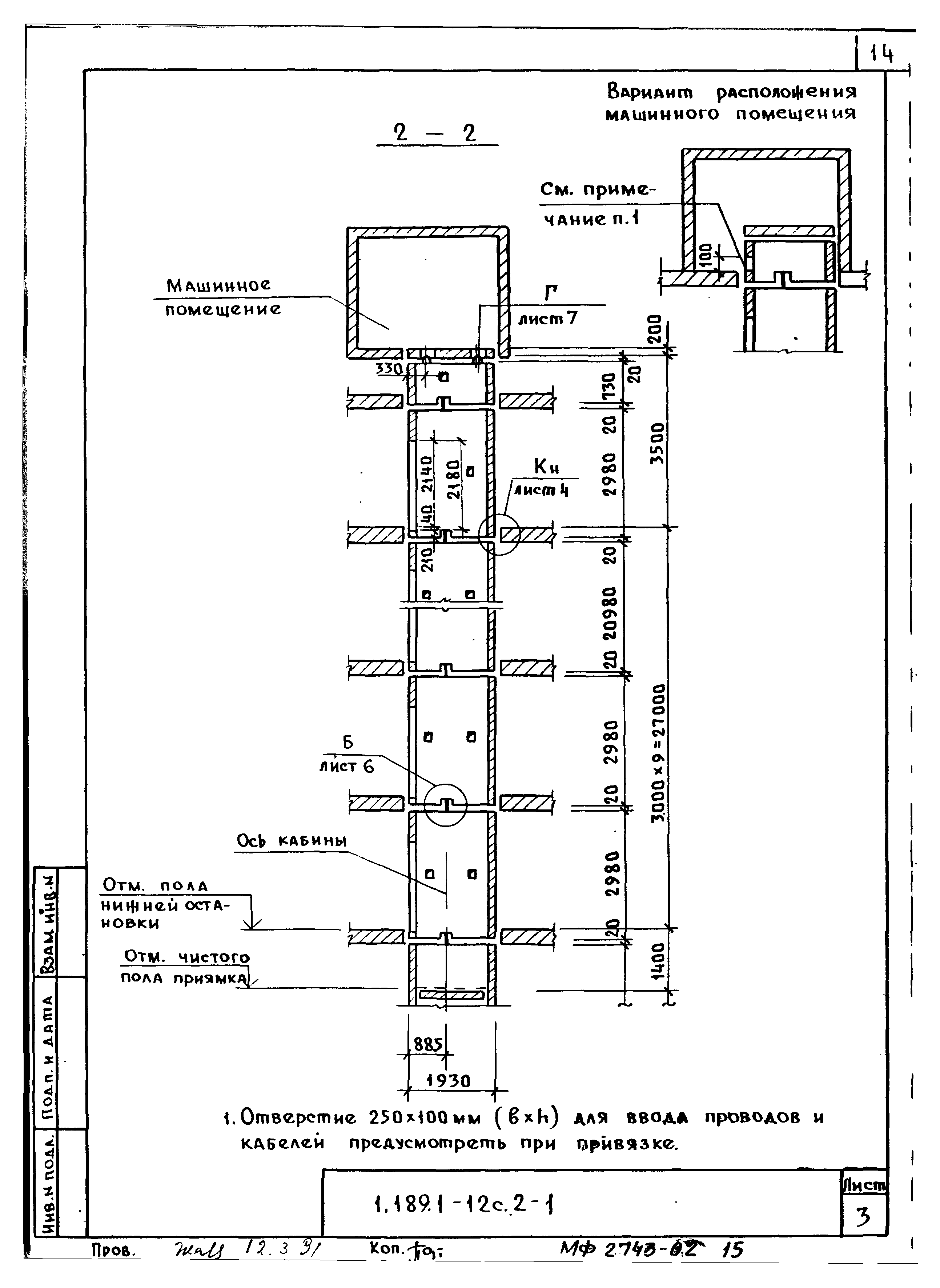
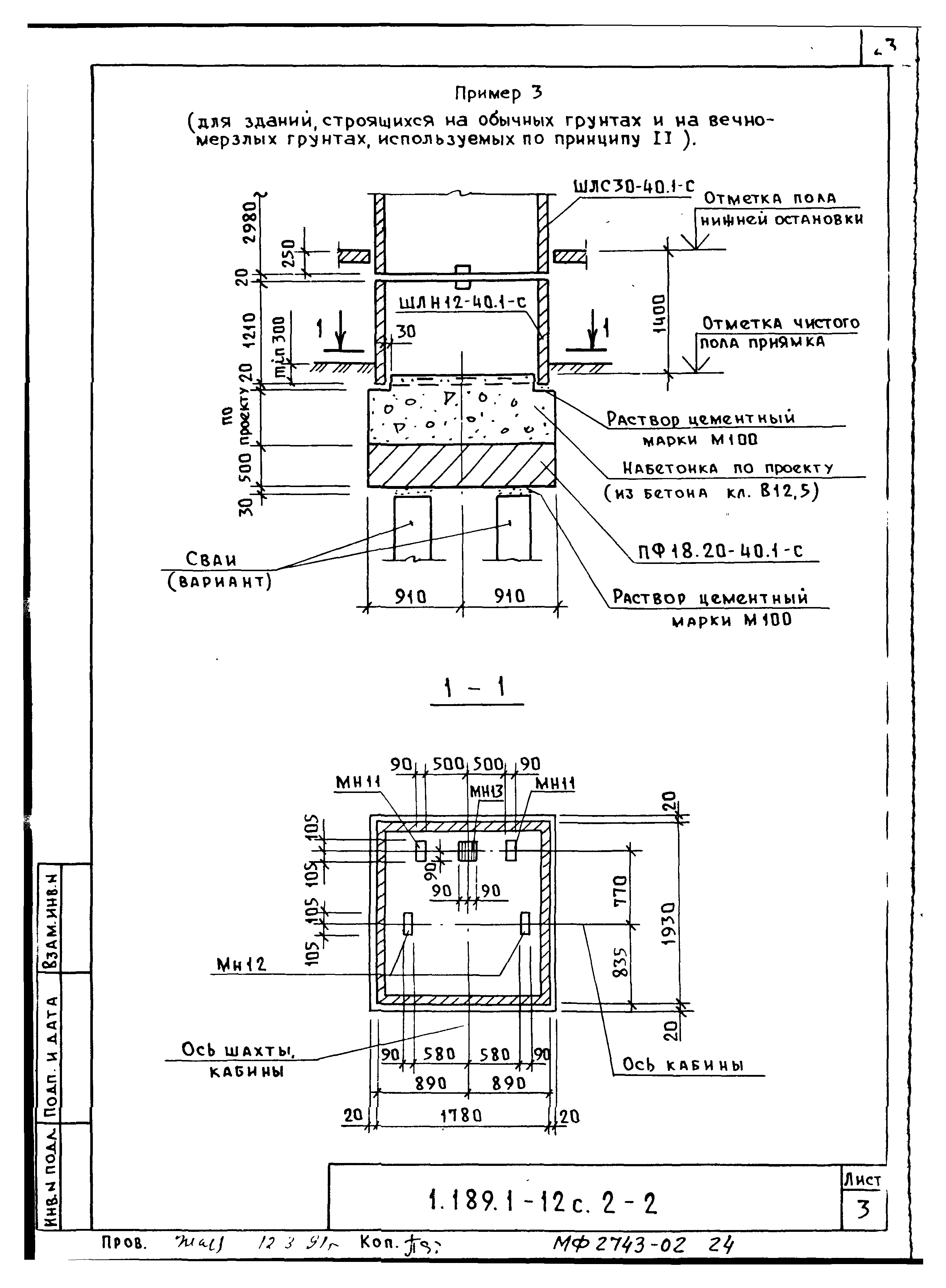
Выпуск 2. Конструкции шахт лифтов грузоподъемностью 400 кг с противовесом сзади кабины и скоростью движения 1,0 м/с зданий до 10 этажей. Рабочие чертежи| Обозначение: | Серия 1.189.1-12с | | Обозначение англ: | Series 1.189.1-12с | | Статус: | не определен законодательством | | Название рус.: | Выпуск 2. Конструкции шахт лифтов грузоподъемностью 400 кг с противовесом сзади кабины и скоростью движения 1,0 м/с зданий до 10 этажей. Рабочие чертежи | | Дата добавления в базу: | 01.09.2013 | | Дата актуализации: | 01.01.2021 | | Дата введения: | 01.11.1990 | | Дата окончания срока действия: | 30.06.2003 | | Разработан: | ЛенЗНИИЭП Госгражданстроя
| | Утверждён: | 13.09.1990 Госкомархитектура (147)
| | Издан: | АПП ЦИТП (1991 г. )
|
                                                                                                     
|