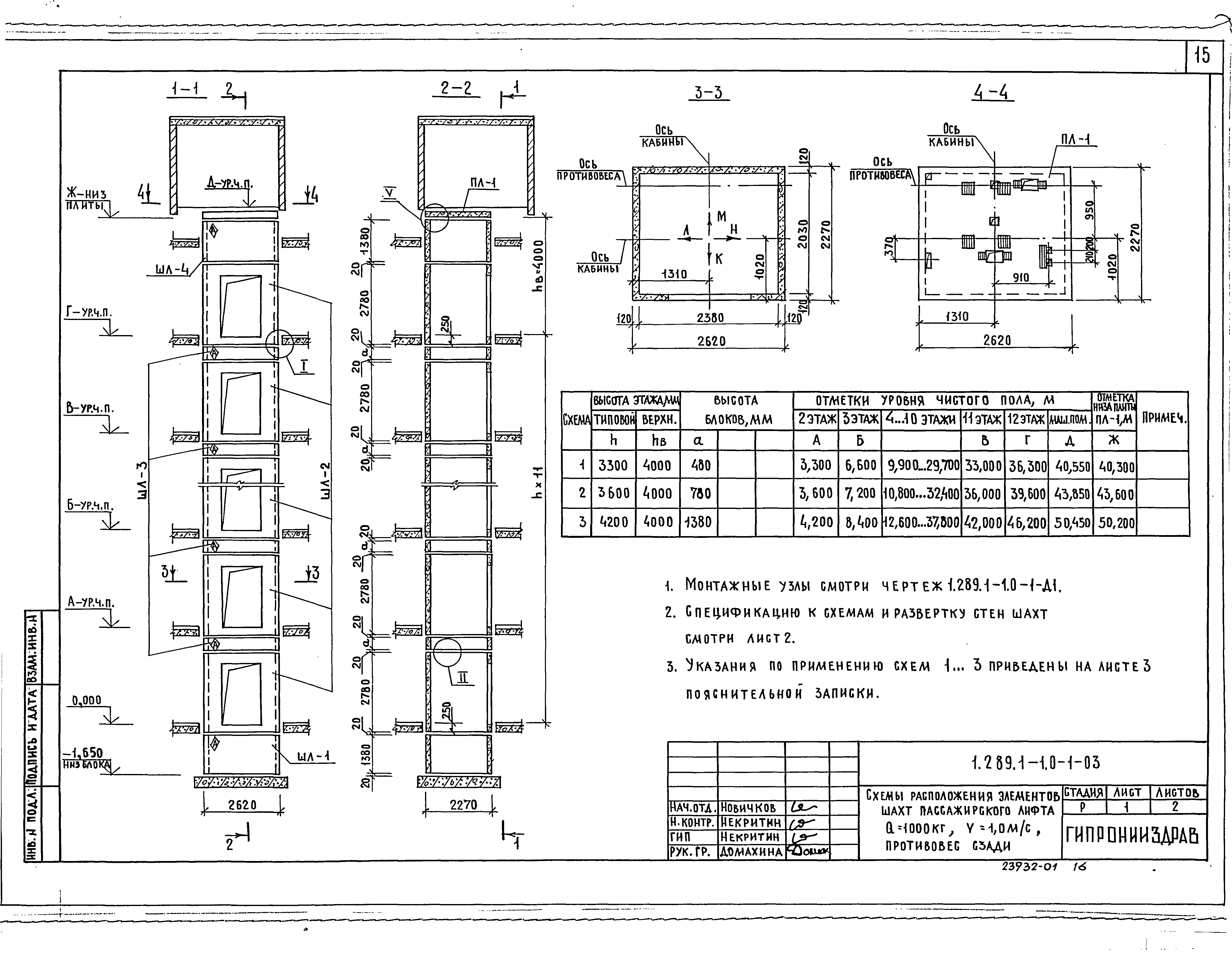
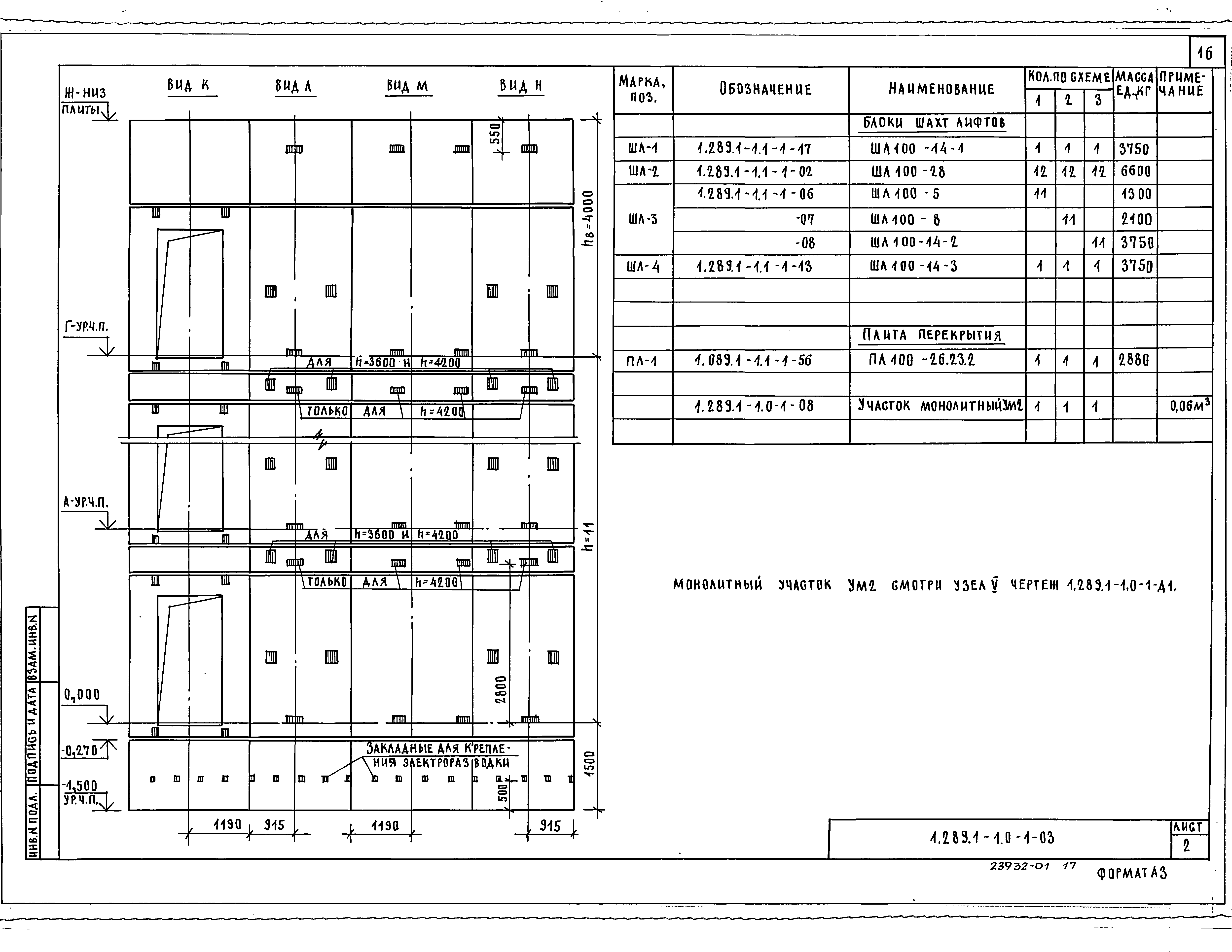
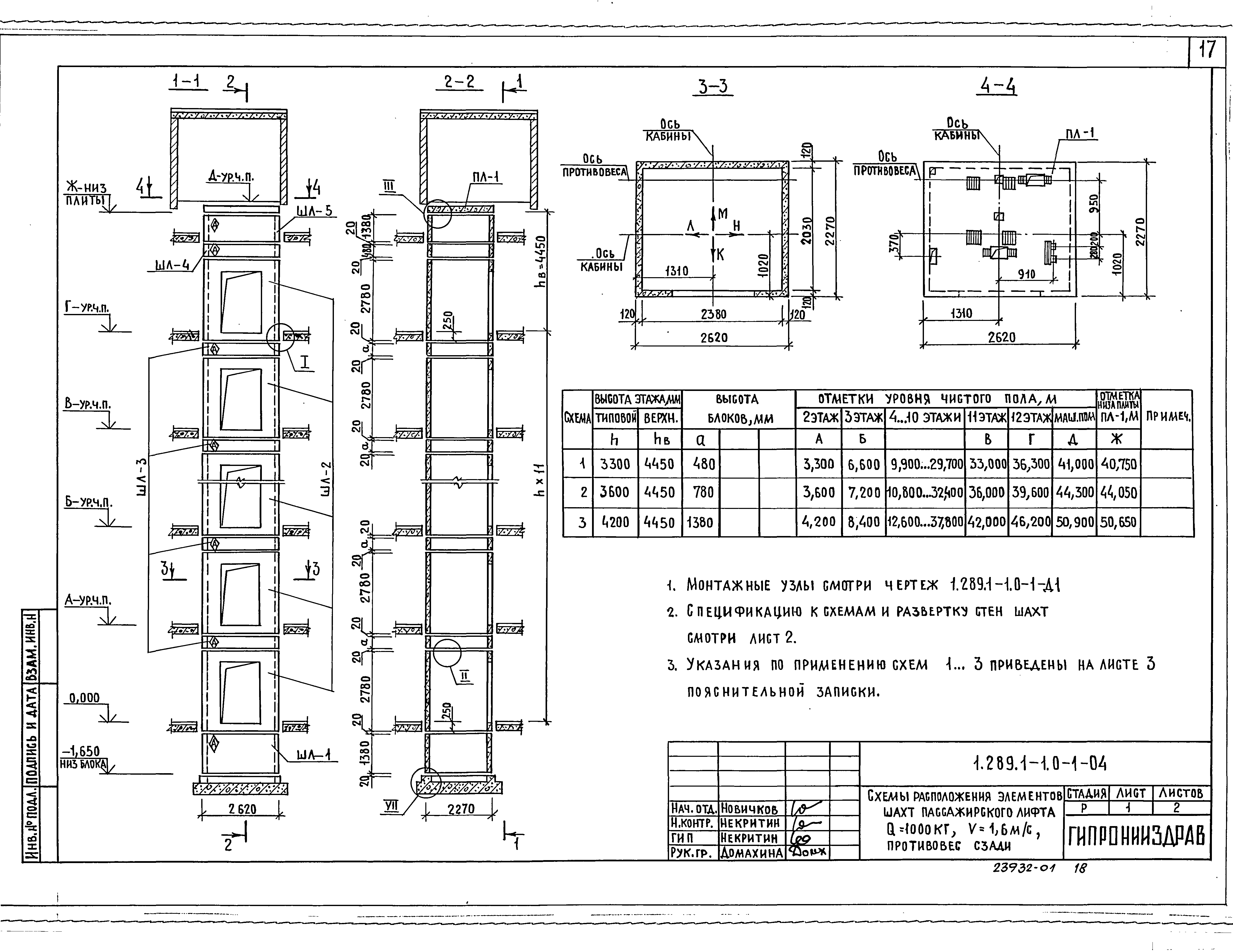
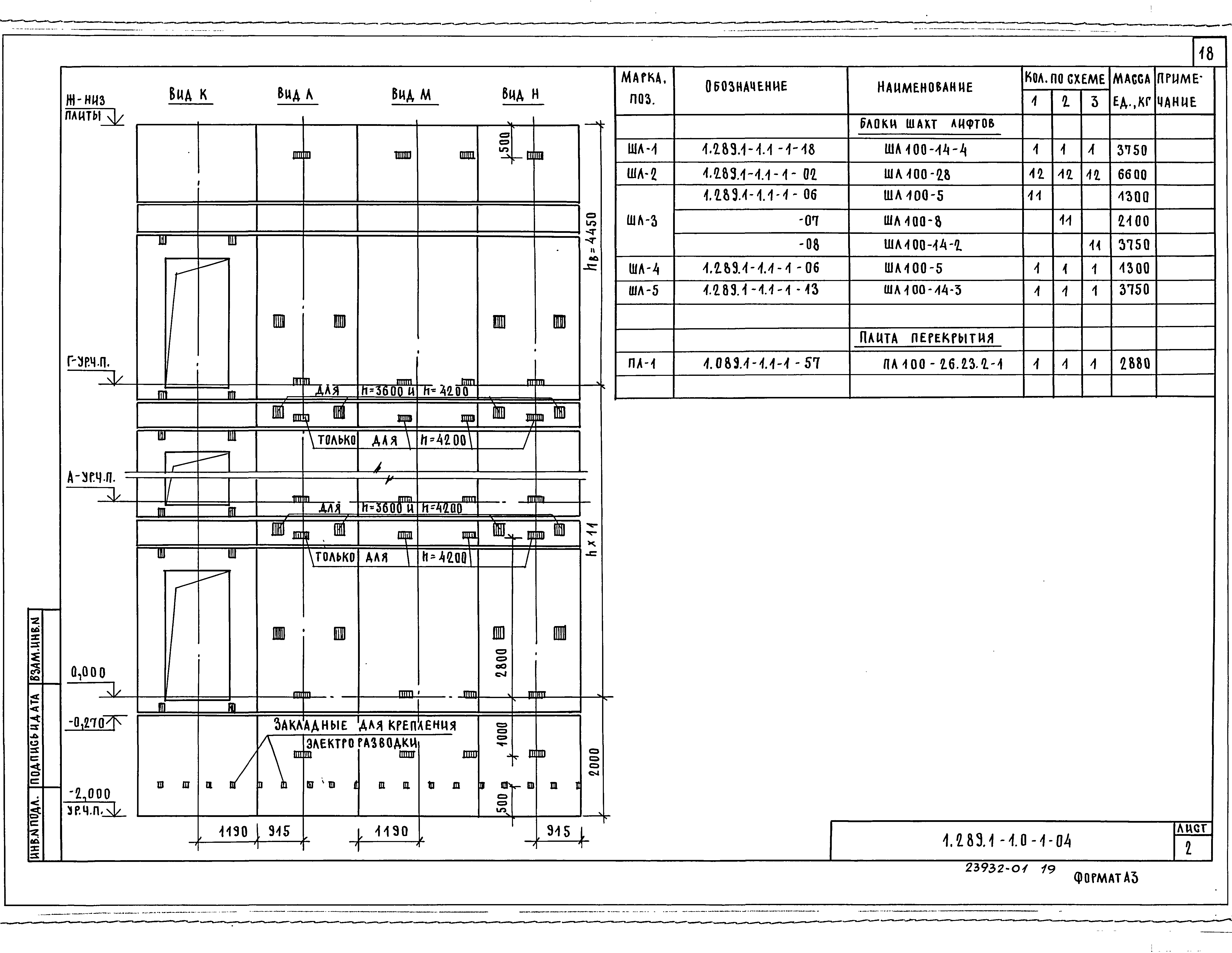
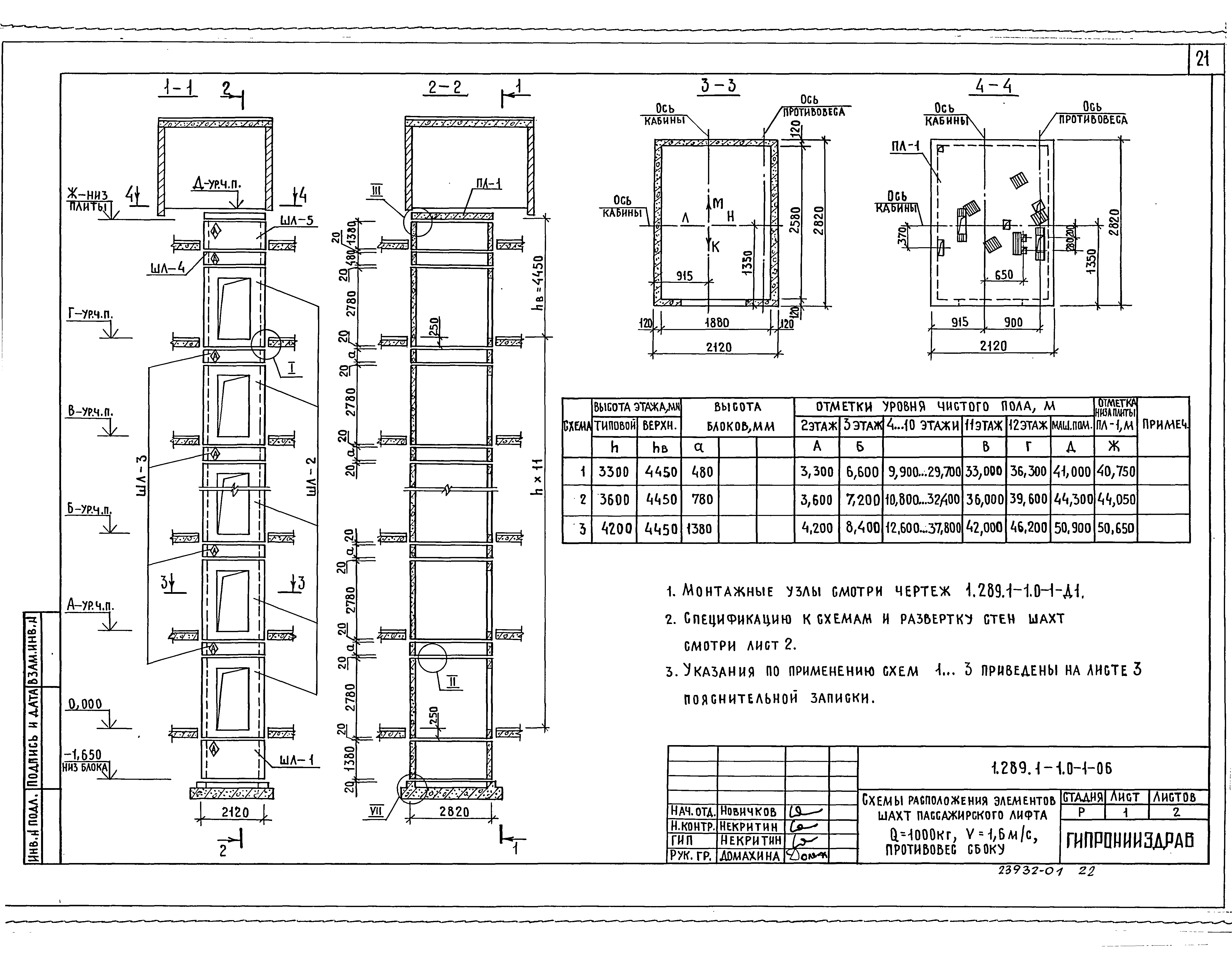
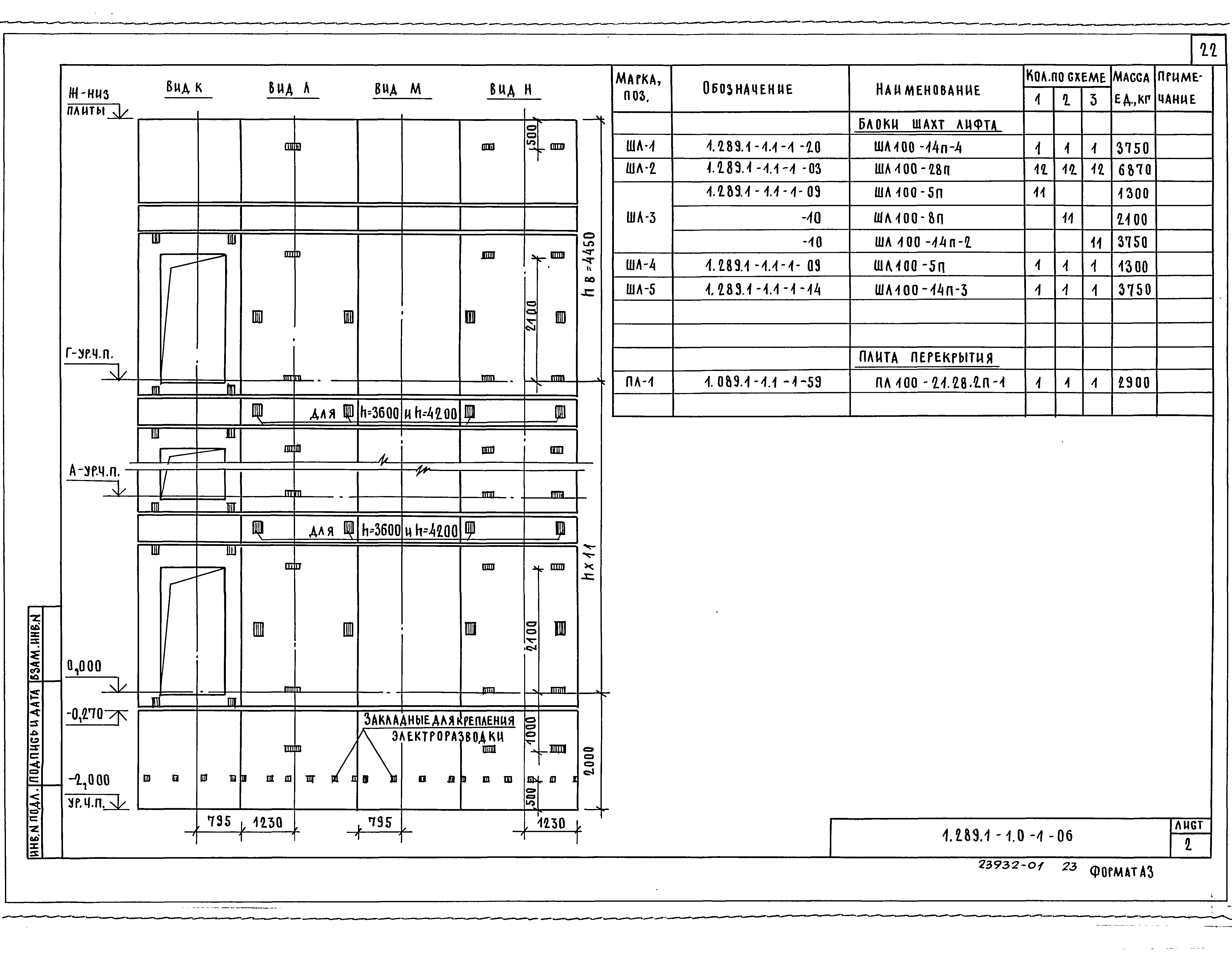
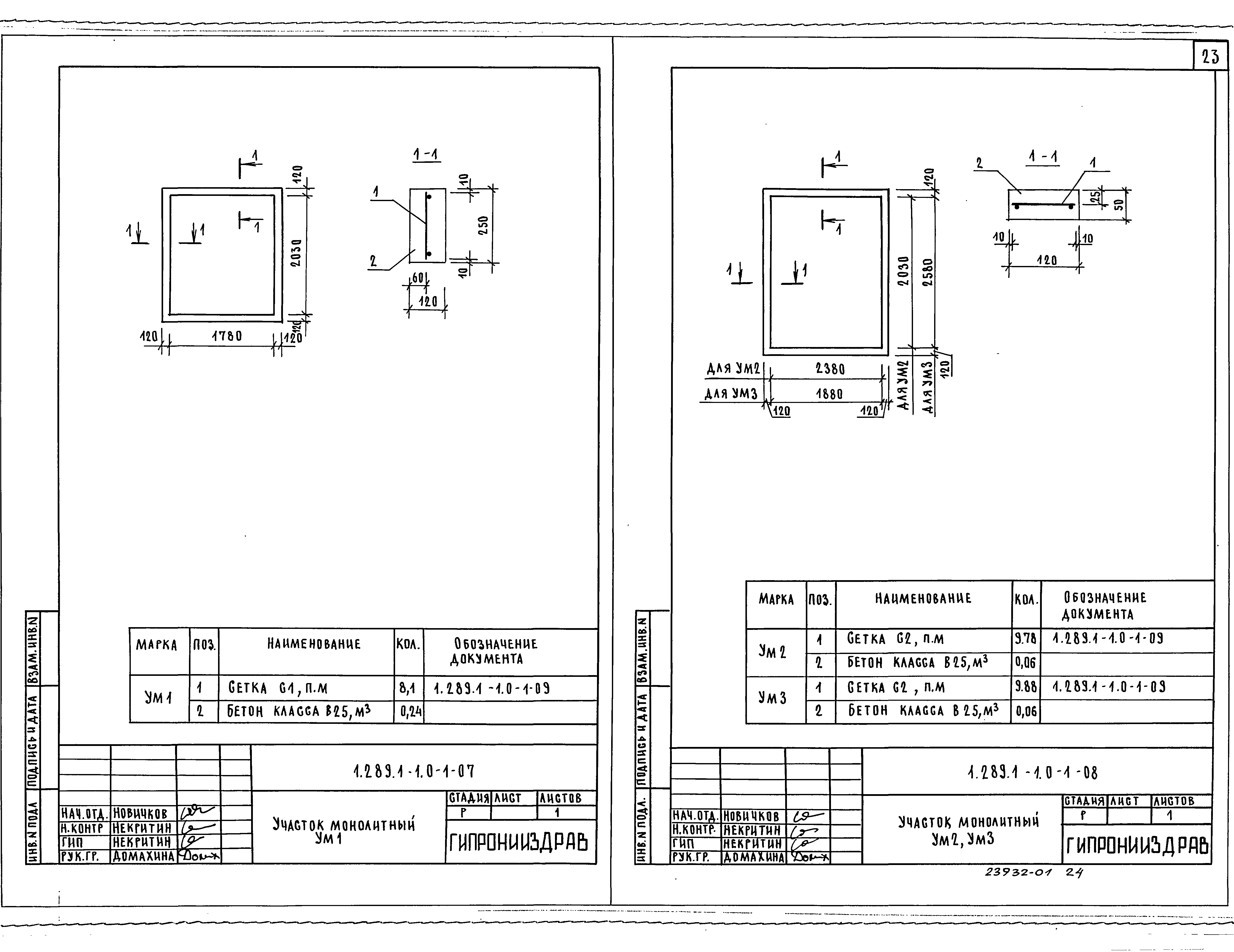
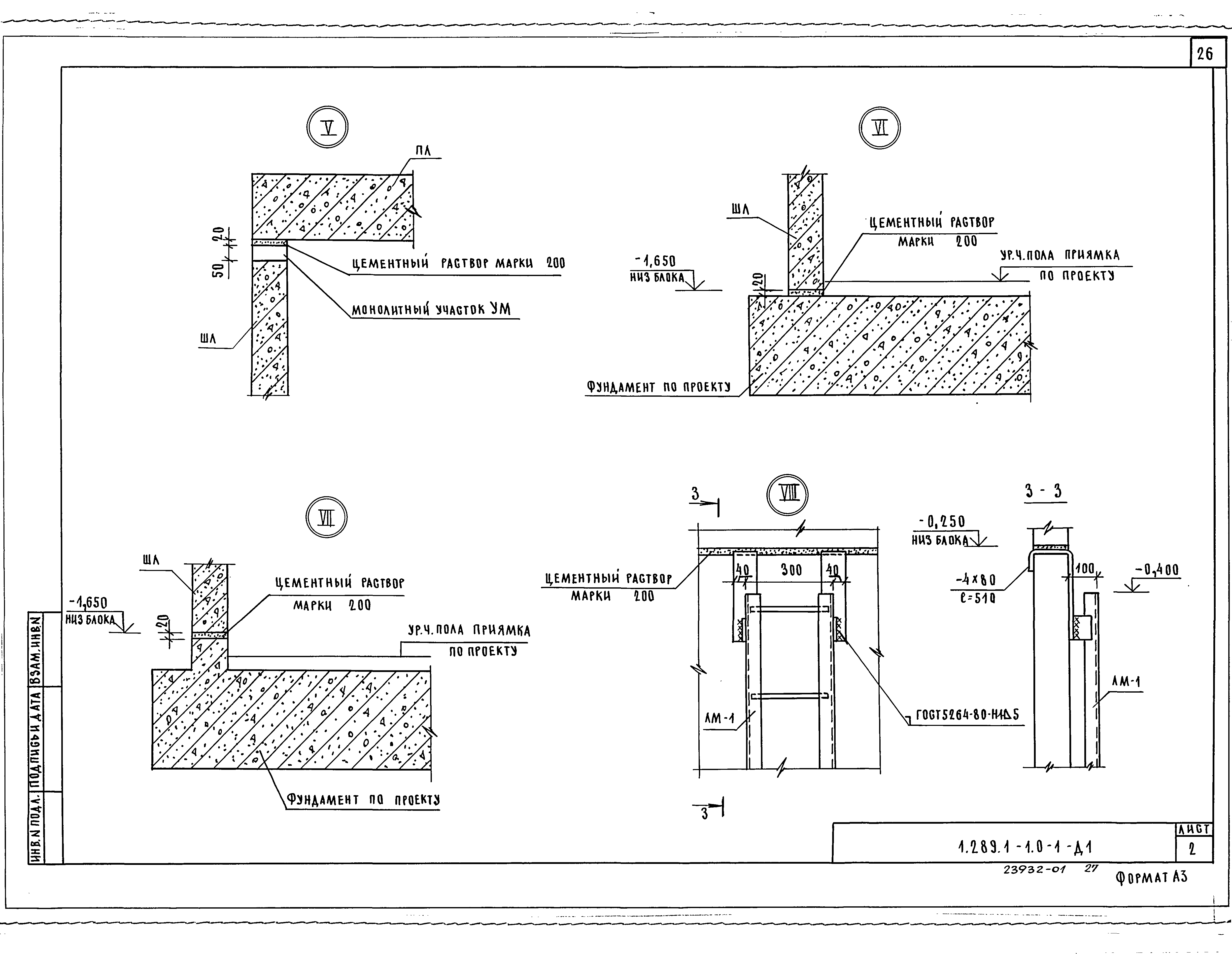
Скачать Серия 1.289.1-1 Выпуск 0-1. Шахты пассажирских лифтов по ГОСТ 5746-83. Материалы для проектирования. Указания по монтажуДата актуализации: 01.01.2021
|
| Обозначение: | Серия 1.289.1-1 |
| Обозначение англ: | Series 1.289.1-1 |
| Статус: | не определен законодательством |
| Название рус.: | Выпуск 0-1. Шахты пассажирских лифтов по ГОСТ 5746-83. Материалы для проектирования. Указания по монтажу |
| Дата добавления в базу: | 01.09.2013 |
| Дата актуализации: | 01.01.2021 |
| Дата введения: | 01.01.1990 |
| Дата окончания срока действия: | 30.06.2003 |
| Разработан: | ГипроНИИздрав Минздрава СССР |
| Утверждён: | 30.06.1989 Госкомархитектура (ЮШ-1081) |
| Заменяет собой: | |
| Нормативные ссылки: |



























