Скачать Серия 1.174.1-1 Унифицированные камеры мусороудаления. Рабочие чертежиДата актуализации: 01.01.2021
|
| Обозначение: | Серия 1.174.1-1 |
| Обозначение англ: | Series 1.174.1-1 |
| Статус: | не определен законодательством |
| Название рус.: | Унифицированные камеры мусороудаления. Рабочие чертежи |
| Дата добавления в базу: | 01.09.2013 |
| Дата актуализации: | 01.01.2021 |
| Дата введения: | 15.09.1987 |
| Дата окончания срока действия: | 30.06.2003 |
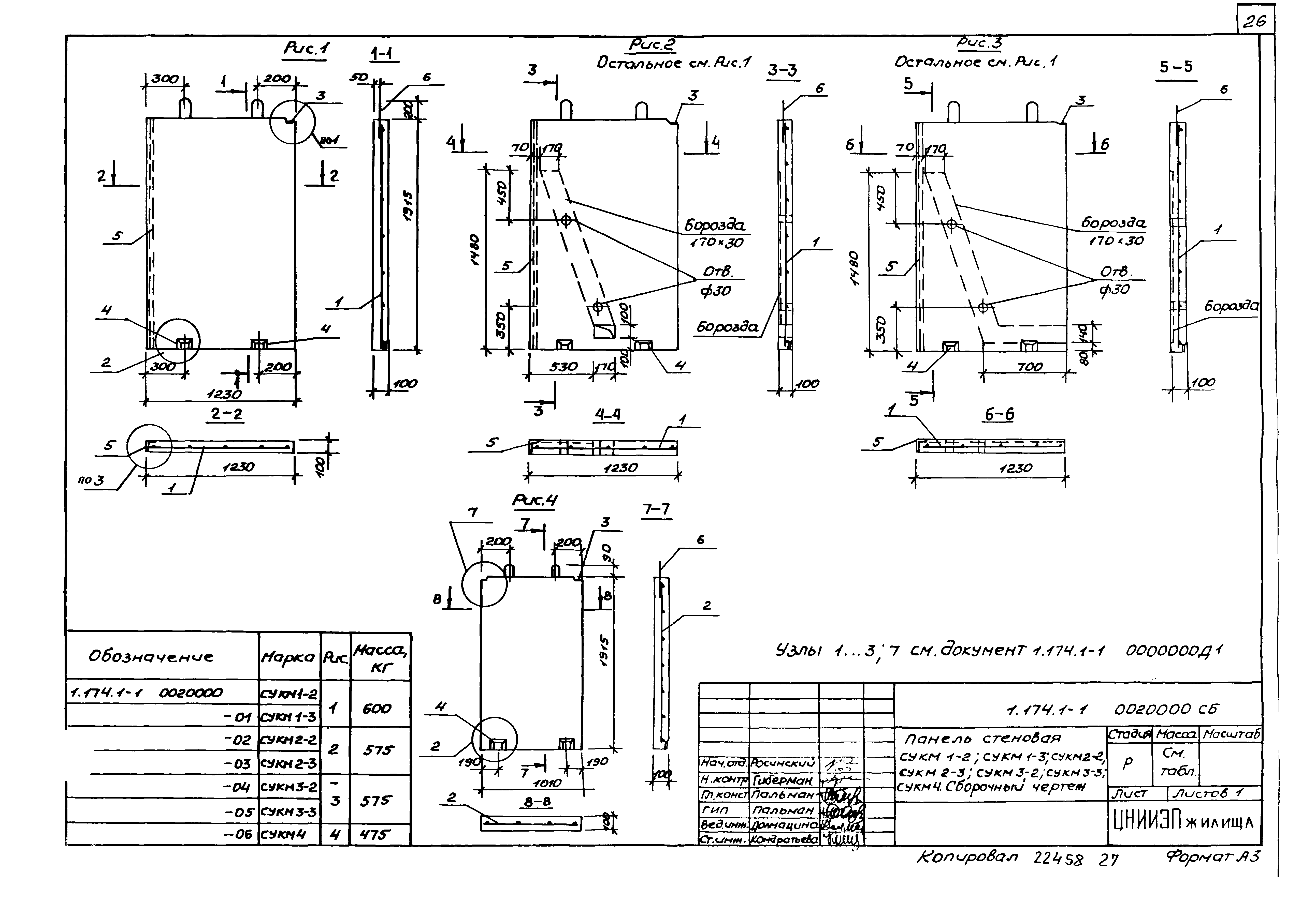
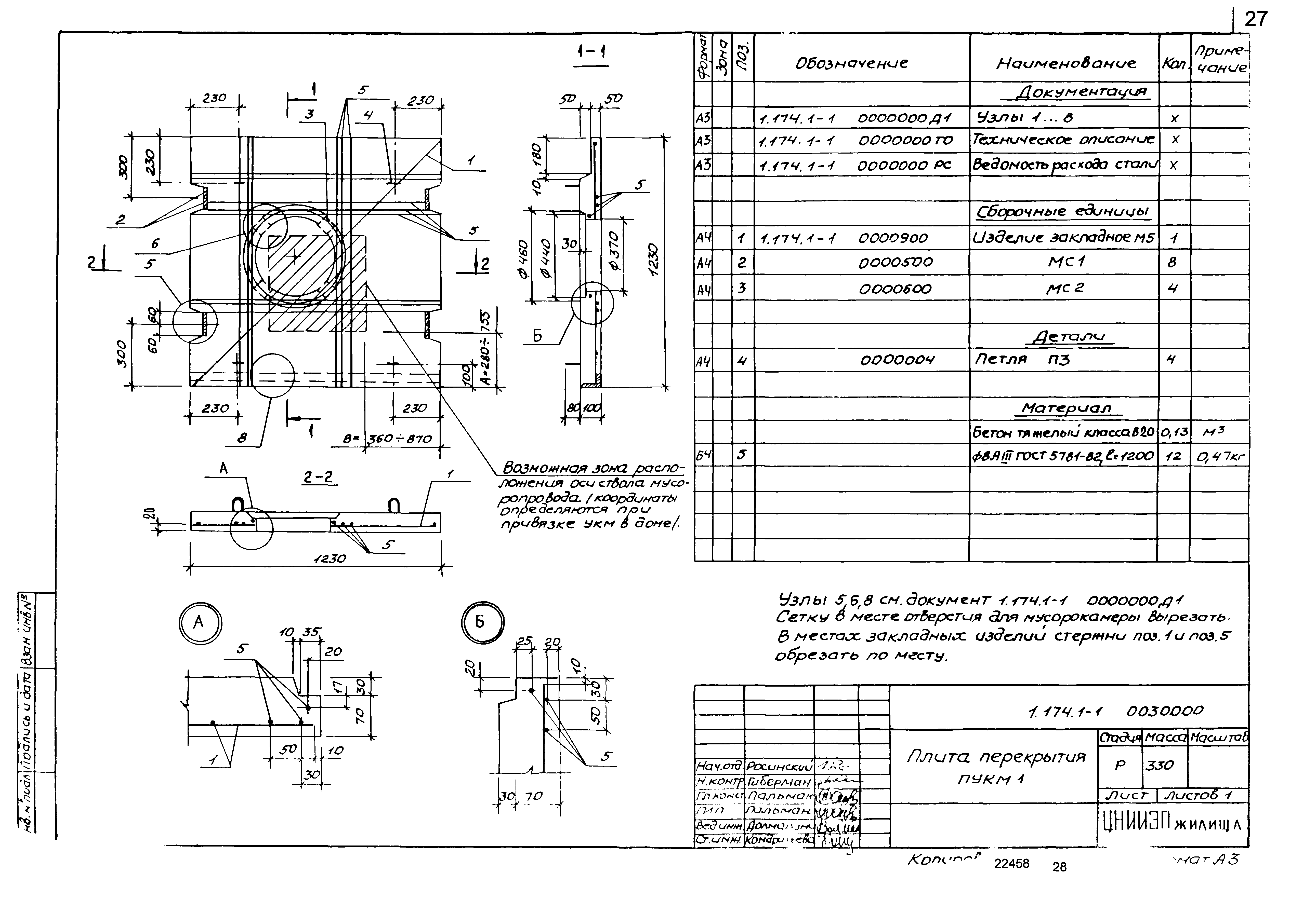
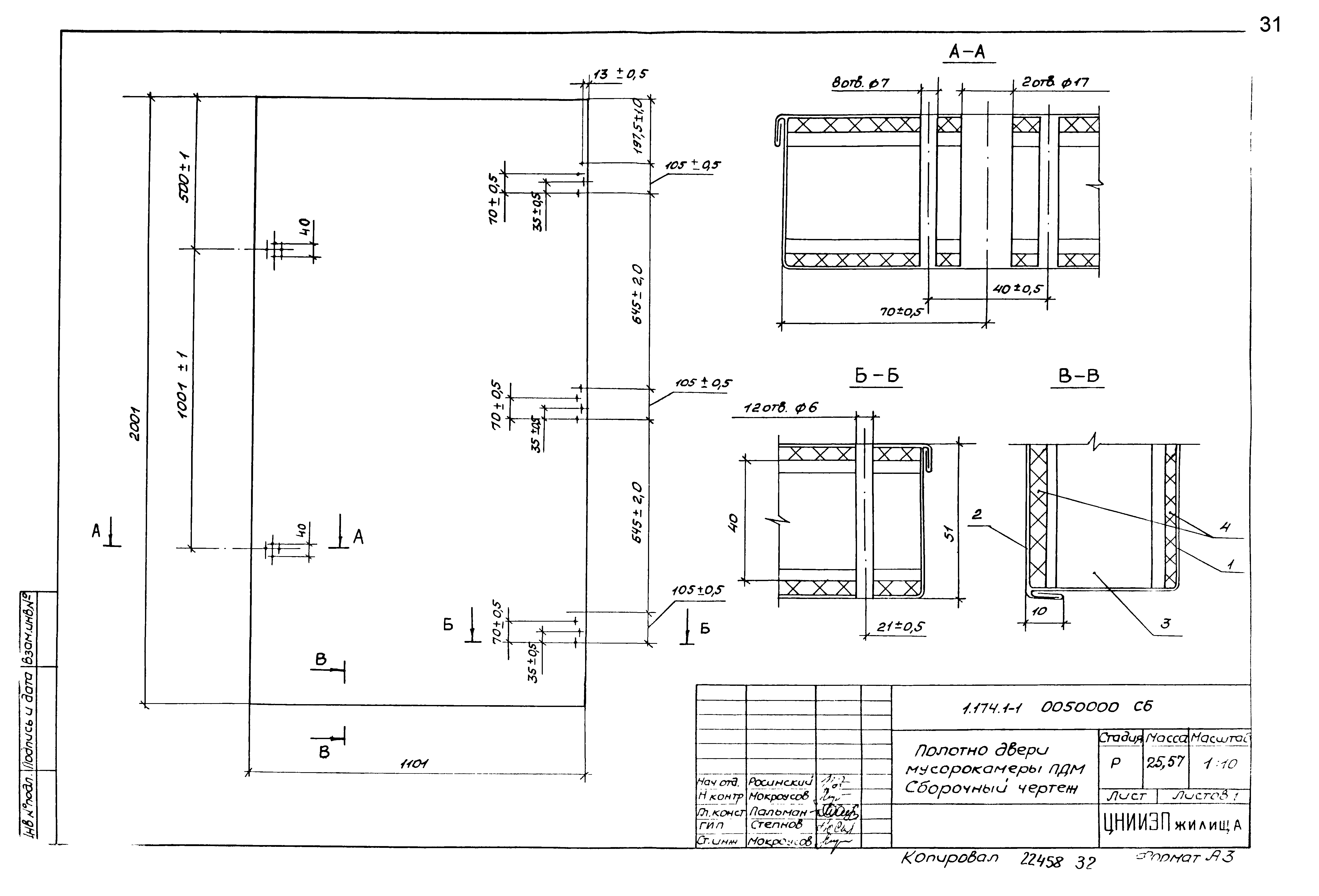
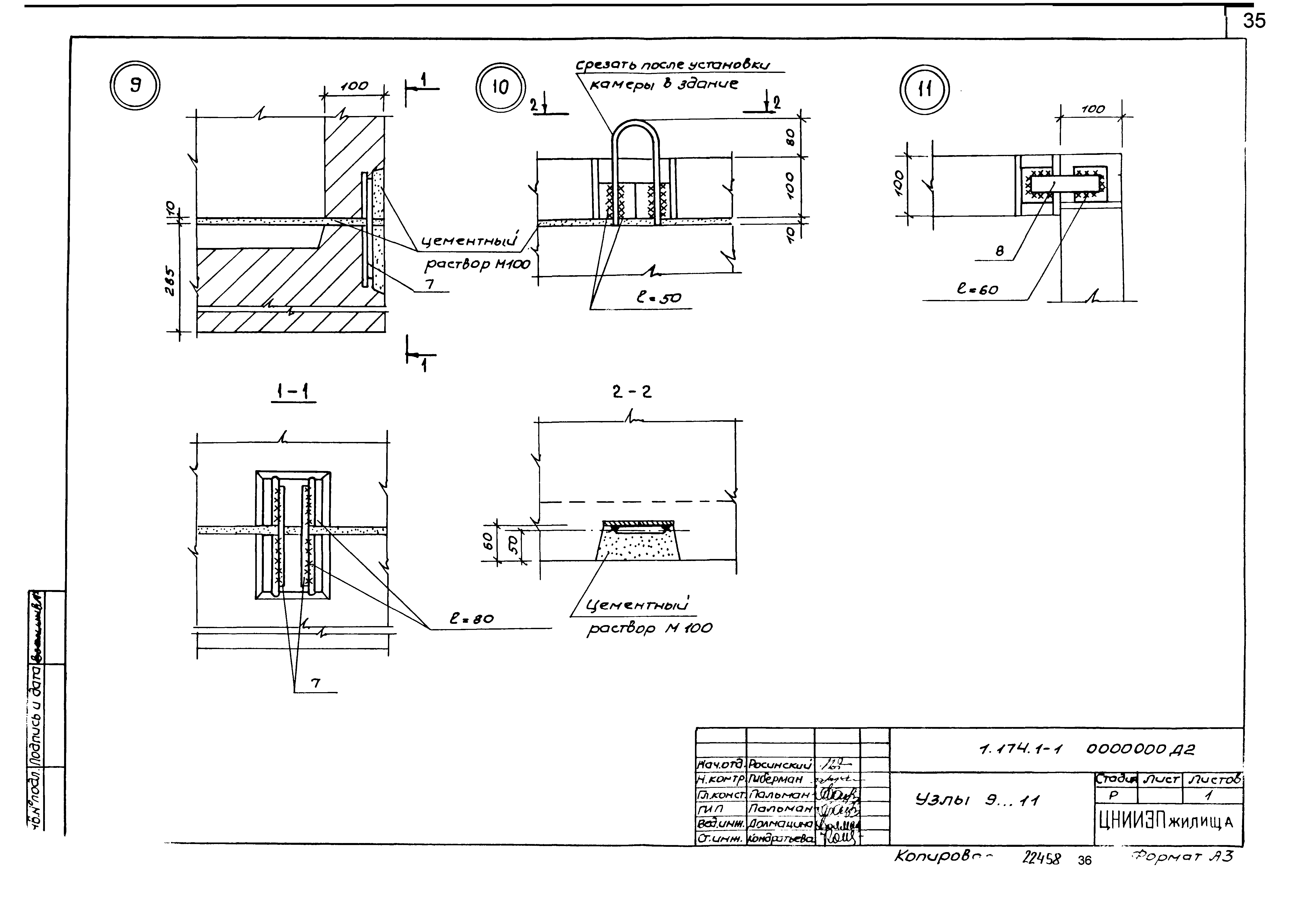
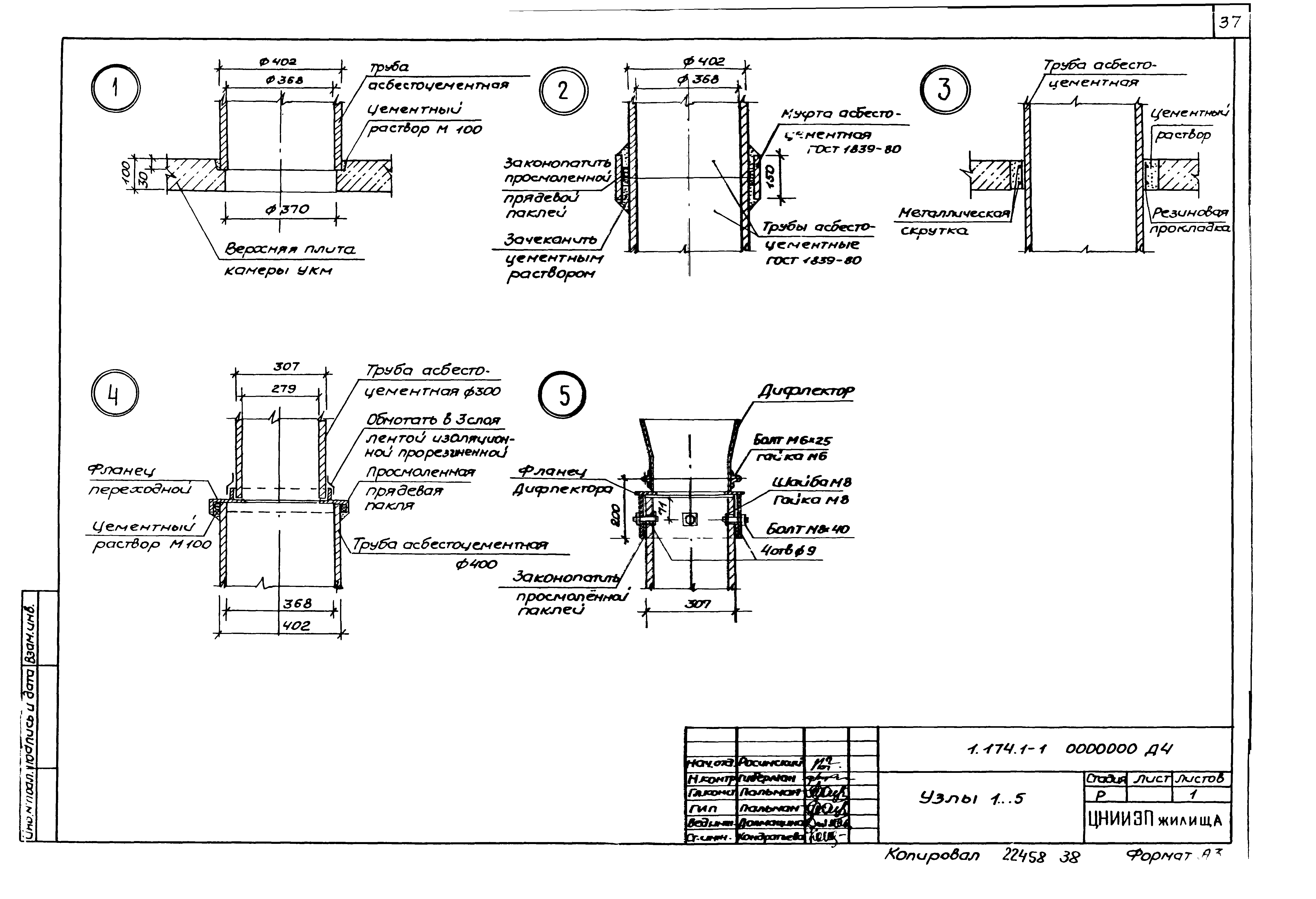
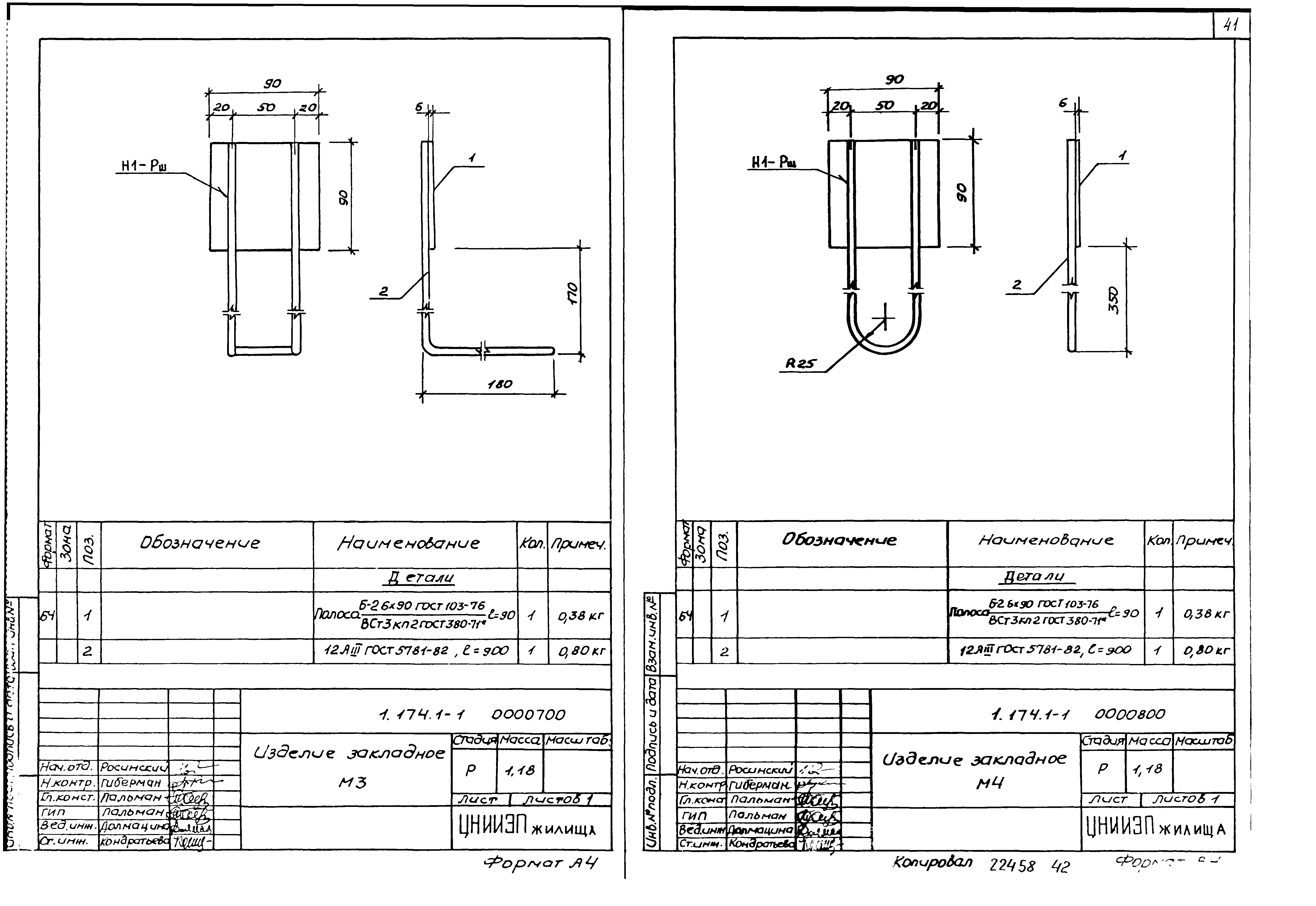
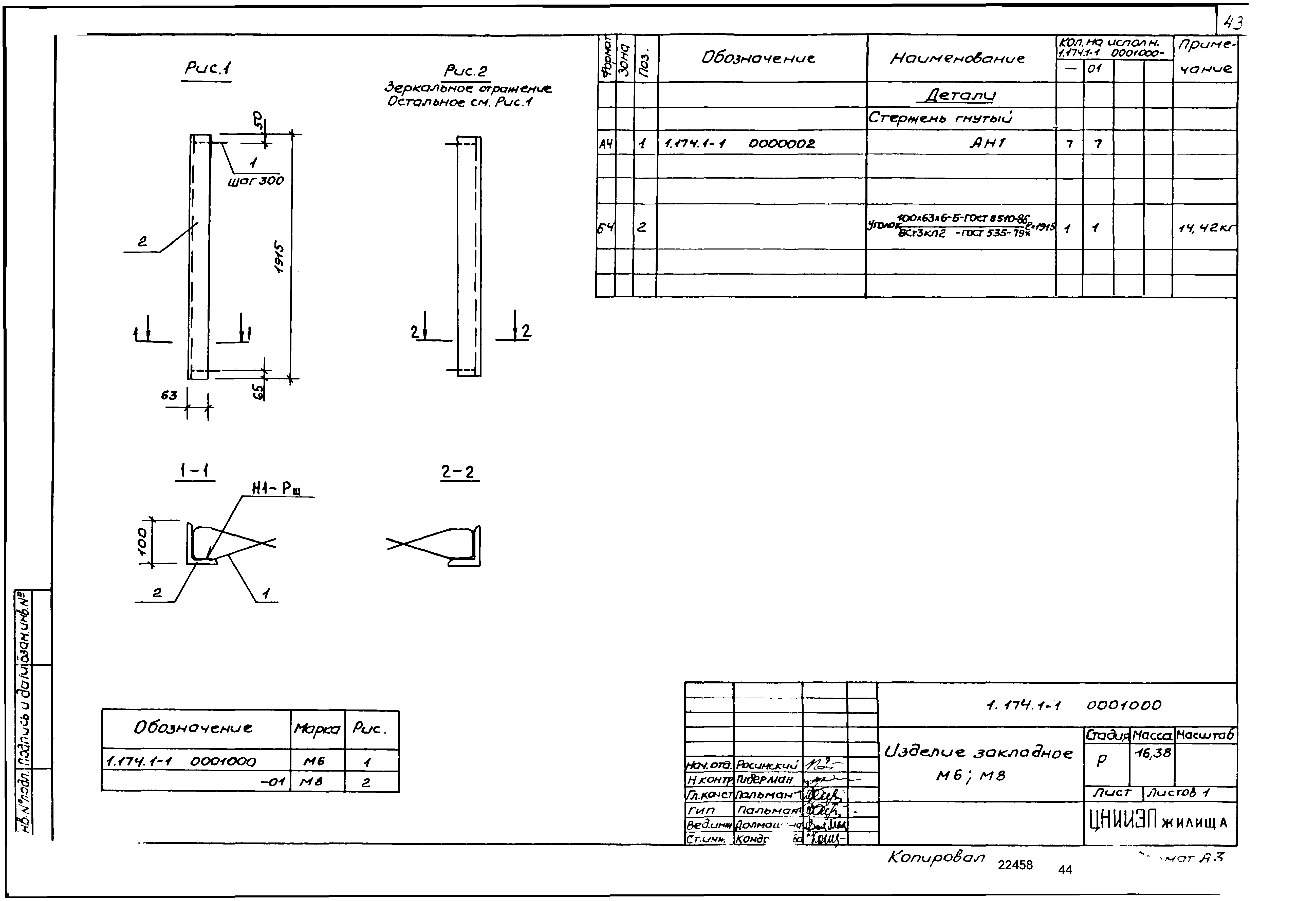
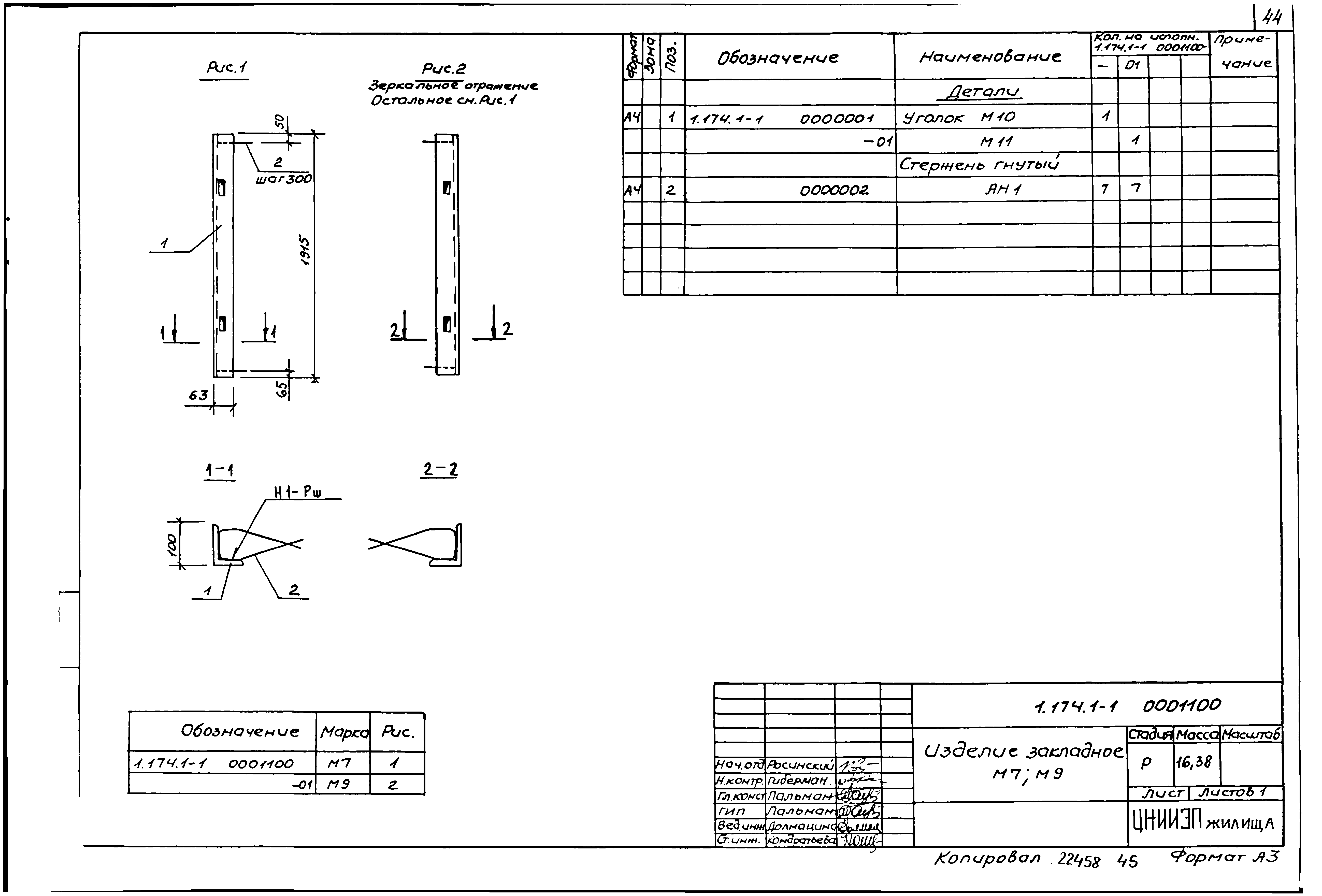
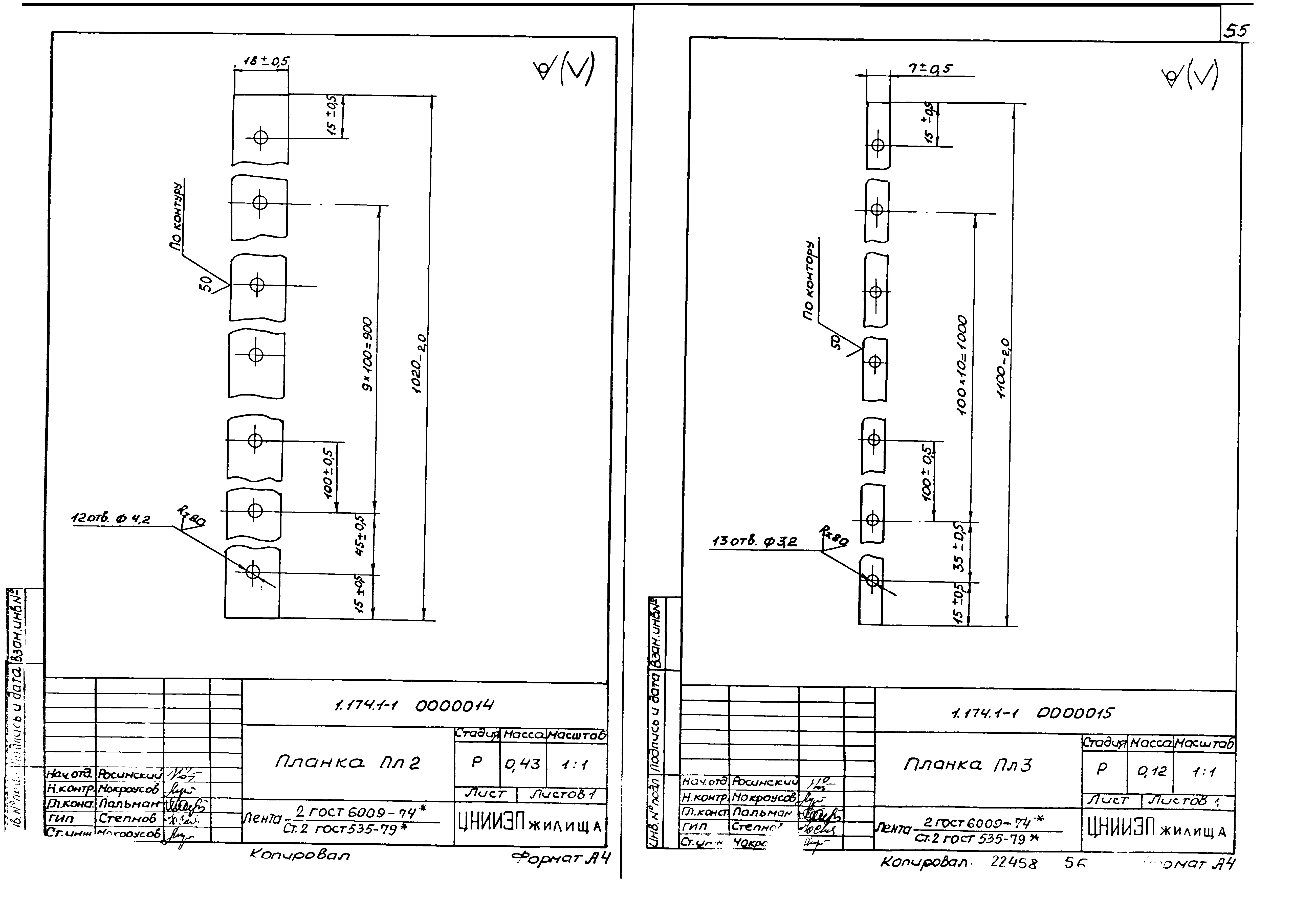
| Оглавление: | 1.174.1-1 0000000ТУ Технические условия 1.174.1-1 0000000ТО Техническое описание 1.174.1-1 1000000 Камера мусороудаления в сборе 5УКМ 1П;5УКМ1-2П;5УКМ1-3П;5УКМ1-4П;10УКМ1П;10УКМ1-2П;10УКМ1-3П;10УКМ1-4П 1.174.1-1 1000000СБ Камера мусороудаления в сборе 5УКМ 1П;5УКМ1-2П;5УКМ1-3П;5УКМ1-4П;10УКМ1П;10УКМ1-2П;10УКМ1-3П;10УКМ1-4П. Сборочный чертеж 1.174.1-1 2000000 Камера мусороудаления в сборе 5УКМ 1Л;5УКМ1-2Л;5УКМ1-3Л;5УКМ1-4Л;10УКМ1Л;10УКМ1-2Л;10УКМ1-3Л;10УКМ1-4Л 1.174.1-1 2000000СБ Камера мусороудаления в сборе 5УКМ 1Л;5УКМ1-2Л;5УКМ1-3Л;5УКМ1-4Л;10УКМ1Л;10УКМ1-2Л;10УКМ1-3Л;10УКМ1-4Л. Сборочный чертеж 1.174.1-1 0100000 Железобетонная камера мусороудаления УКМ1П;УКМ1-2П;УКМ1-3П;УКМ1-4П 1.174.1-1 0200000 Железобетонная камера мусороудаления УКМ1Л;УКМ1-2Л;УКМ1-3Л;УКМ1-4Л 1.174.1-1 0300000 Дверь мусорокамеры ДМп;ДМл 1.174.1-1 0300000СБ Дверь мусорокамеры ДМп;ДМл. Сборочный чертеж 1.174.1-1 0010000 Панель стеновая СУКМ1;СУКМ1-1;СУКМ2;СУКМ2-2;СУКМ3;СУКМ3-1 1.174.1-1 0010000СБ Панель стеновая СУКМ1;СУКМ1-1;СУКМ2;СУКМ2-2;СУКМ3;СУКМ3-1. Сборочный чертеж 1.174.1-1 0020000 Панель стеновая СУКМ1-2;СУКМ1-3;СУКМ2-2;СУКМ2-3;СУКМ3-2;СУКМ3-3;СУКМ4 1.174.1-1 0020000СБ Панель стеновая СУКМ1-2;СУКМ1-3;СУКМ2-2;СУКМ2-3;СУКМ3-2;СУКМ3-3;СУКМ4. Сборочный чертеж 1.174.1-1 0030000 Плита перекрытия ПУКМ1 1.174.1-1 0040000 Плита днища ПУКМ2;ПУКМ2-1;ПУКМ2-2 1.174.1-1 0040000СБ Плита днища ПУКМ2;ПУКМ2-1;ПУКМ2-2. Сборочный чертеж 1.174.1-1 0050000 Полотно двери мусорокамеры ПДМ 1.174.1-1 0050000СБ Полотно двери мусорокамеры ПДМ. Сборочный чертеж 1.174.1-1 0060000 Замок двери 3Д 1.174.1-1 0070000 Петля дверная ПДл;ПДл 1.174.1-1 0000000Д1 Узлы 1…8 1.174.1-1 0000000Д2 Узлы 9…11 1.174.1-1 0000000Д3 Сечения Б-Б;Г-Г 1.174.1-1 0000000Д4 Узлы 1…5 1.174.1-1 0000100 Сетка С1 1.174.1-1 0000200 Сетка С2 1.174.1-1 0000300 Сетка С3 1.174.1-1 0000400 Сетка С4 1.174.1-1 0000500 Изделие закладное МС1 1.174.1-1 0000600 Изделие закладное МС2-1 1.174.1-1 0000700 Изделие закладное МС3 1.174.1-1 0000800 Изделие закладное МС4 1.174.1-1 0000900 Изделие закладное МС5 1.174.1-1 0001000 Изделие закладное МС6;МС8 1.174.1-1 0001100 Изделие закладное МС7;МС9 1.174.1-1 0001200 Сантехнические детали СД1;СД2 1.174.1-1 0001300 Сантехнические детали СД3;СД4 1.174.1-1 0001400 Сантехническая деталь СД5 1.174.1-1 0001500 Сантехническая деталь СД6 1.174.1-1 0000001 Уголок М10;М11 1.174.1-1 0000002 Стержень гнутый АН1 1.174.1-1 0000003 Петля строповочная П1;П2 1.174.1-1 0000004 Петля строповочная П3 1.174.1-1 0000005 Обшивка О 1.174.1-1 0000006 Ручка Р1 1.174.1-1 0000007 Ось 01 1.174.1-1 0000008 Шайба Ш1 1.174.1-1 0000009 Шайба Ш2 1.174.1-1 0000010 Сектор Ск1 1.174.1-1 0000011 Втулка В1 1.174.1-1 0000012 Втулка В2 1.174.1-1 0000013 Планка Пл1 1.174.1-1 0000014 Планка Пл2 1.174.1-1 0000015 Планка Пл3 1.174.1-1 0000016 Змеевик З-1 1.174.1-1 0000017 Трубы А1;А2;А3;А4 1.174.1-1 0000000РС Ведомость расхода стали на УКМ 1.174.1-1 0000000РМ Ведомость расхода материалов на УКМ 1.174.1-1 0000000РМ Ведомость расхода материалов на двери ДМп;ДМл 1.174.1-1 0000000РМ Ведомость расхода материалов на сантехоборудование |
| Разработан: | ЦНИИЭП жилища |
| Утверждён: | 25.08.1987 Госгражданстрой (Gosgrazhdanstroy 265) |
| Издан: | ЦИТП Госстроя СССР (CITP, Gosstroy (USSR) 1988 г. ) |





























































