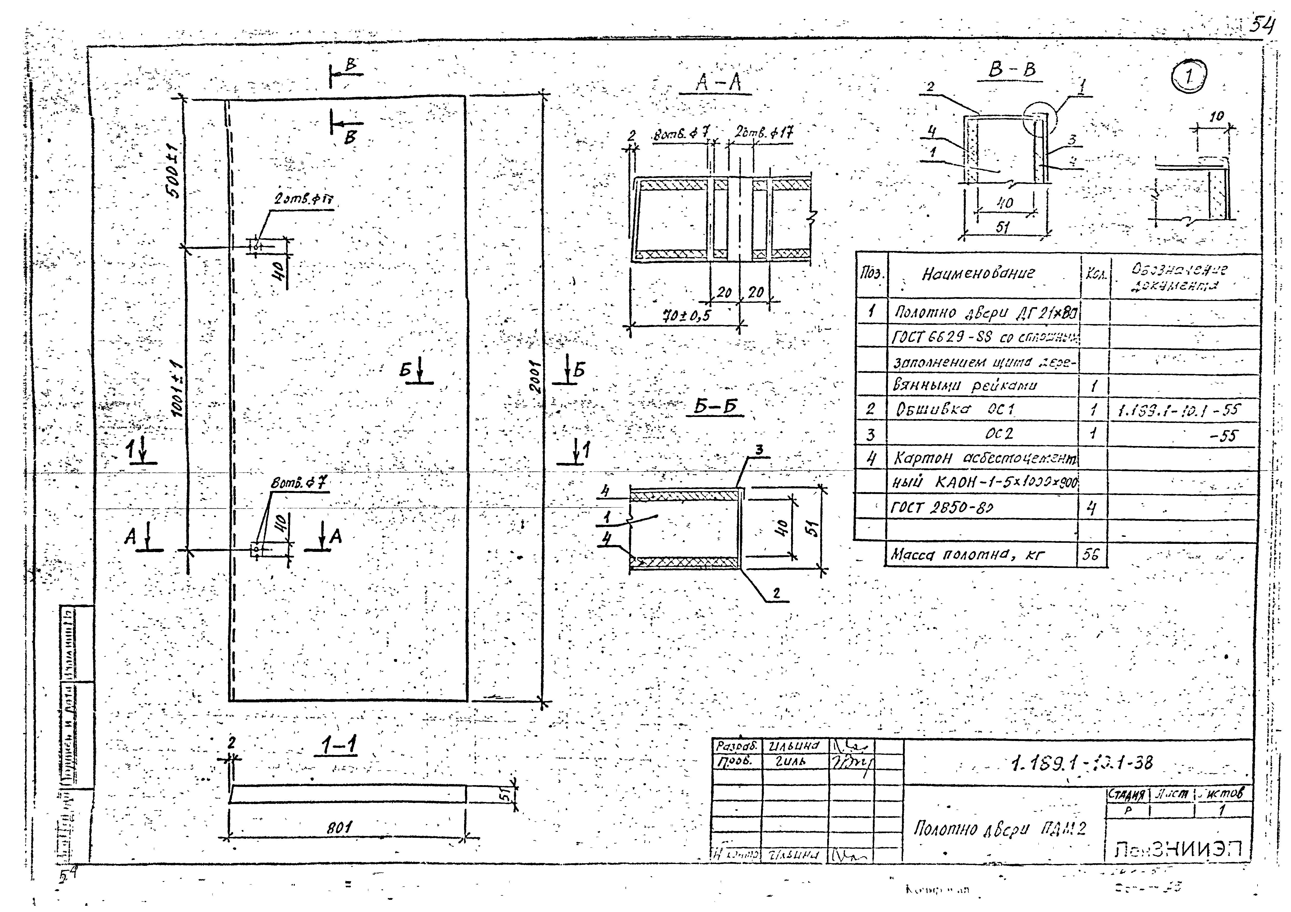
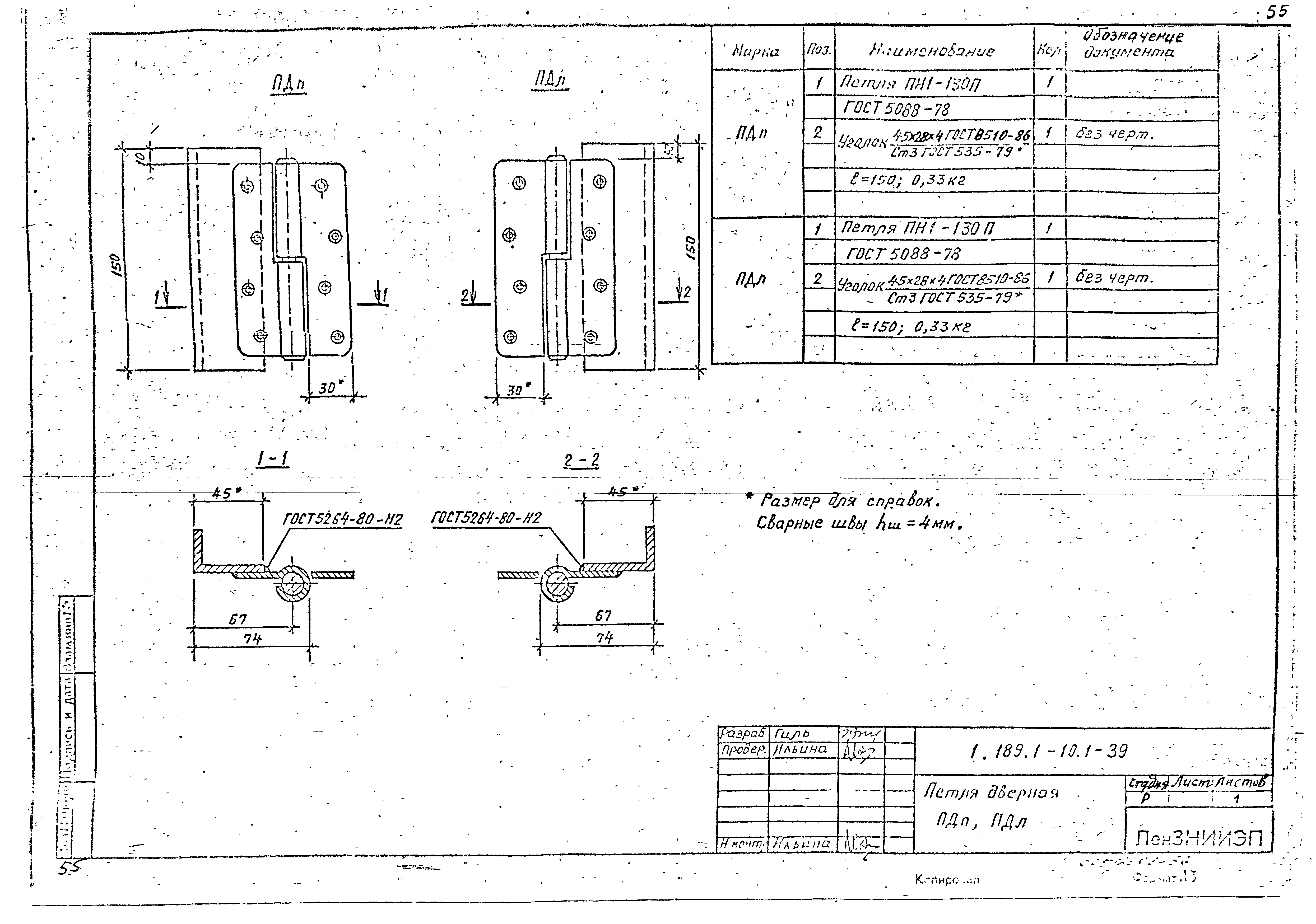
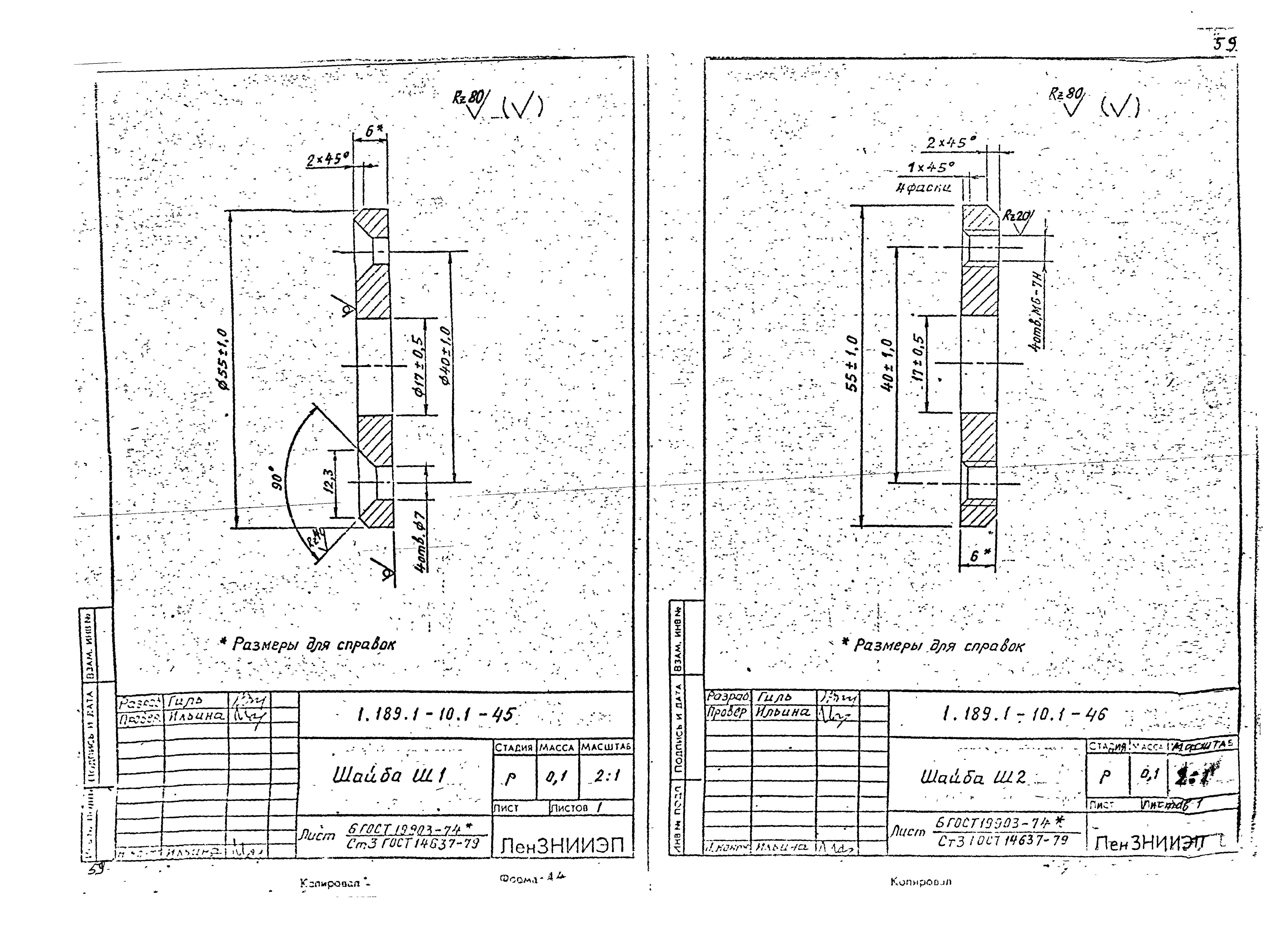
Скачать Серия 1.189.1-10 Выпуск 1. Материалы для проектирования и рабочие чертежи мусорокамерДата актуализации: 01.01.2021
|
| Обозначение: | Серия 1.189.1-10 |
| Обозначение англ: | Series 1.189.1-10 |
| Статус: | не определен законодательством |
| Название рус.: | Выпуск 1. Материалы для проектирования и рабочие чертежи мусорокамер |
| Дата добавления в базу: | 01.09.2013 |
| Дата актуализации: | 01.01.2021 |
| Дата введения: | 01.04.1989 |
| Дата окончания срока действия: | 30.06.2003 |
| Разработан: | ЛенЗНИИЭП Госгражданстроя ЦНИИЭП инженерного оборудования |
| Утверждён: | 17.03.1989 Госкомархитектура (36) |





































































