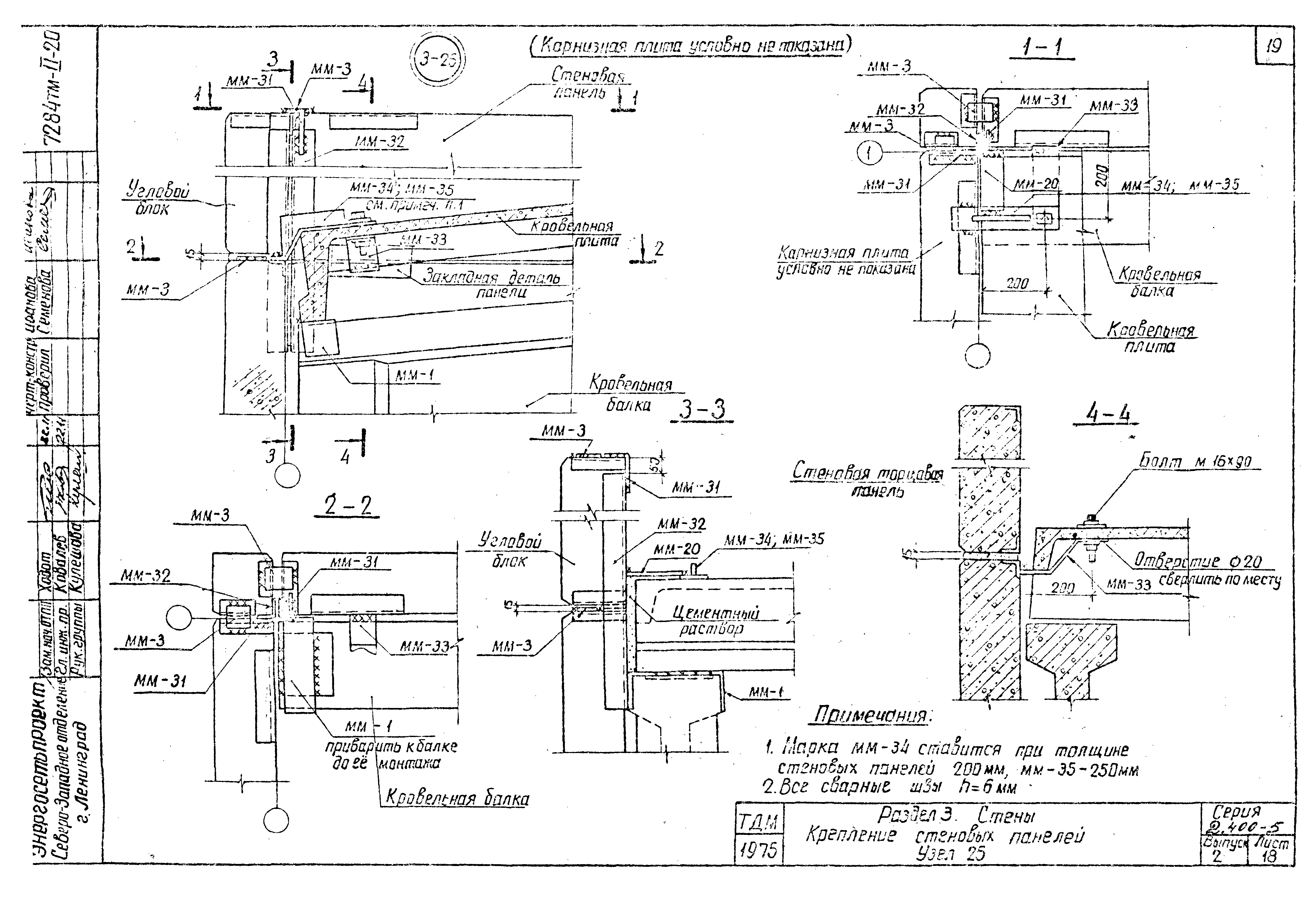
Скачать Серия 2.400-5 Выпуск 2. Монтажные узлы и детали одноэтажных зданий электросетевого строительстваДата актуализации: 01.01.2021 Серия 2.400-5
Выпуск 2. Монтажные узлы и детали одноэтажных зданий электросетевого строительства| Обозначение: | Серия 2.400-5 | | Обозначение англ: | Series 2.400-5 | | Статус: | действует | | Название рус.: | Выпуск 2. Монтажные узлы и детали одноэтажных зданий электросетевого строительства | | Дата добавления в базу: | 01.09.2013 | | Дата актуализации: | 01.01.2021 | | Дата введения: | 01.07.1976 | | Разработан: | Северо-западное отделение института Энергосетьпроект
| | Утверждён: | 08.01.1976 Минэнерго СССР (USSR Minenergo 3)
|
                                   
|