Скачать Серия 1.273.9-5 Выпуск 3. Облицовки из цементностружечных плит на деревянном каркасе. Рабочие чертежиДата актуализации: 01.01.2021
|
| Обозначение: | Серия 1.273.9-5 |
| Обозначение англ: | Series 1.273.9-5 |
| Статус: | не определен законодательством |
| Название рус.: | Выпуск 3. Облицовки из цементностружечных плит на деревянном каркасе. Рабочие чертежи |
| Дата добавления в базу: | 01.09.2013 |
| Дата актуализации: | 01.01.2021 |
| Дата введения: | 01.05.1986 |
| Дата окончания срока действия: | 30.06.2003 |
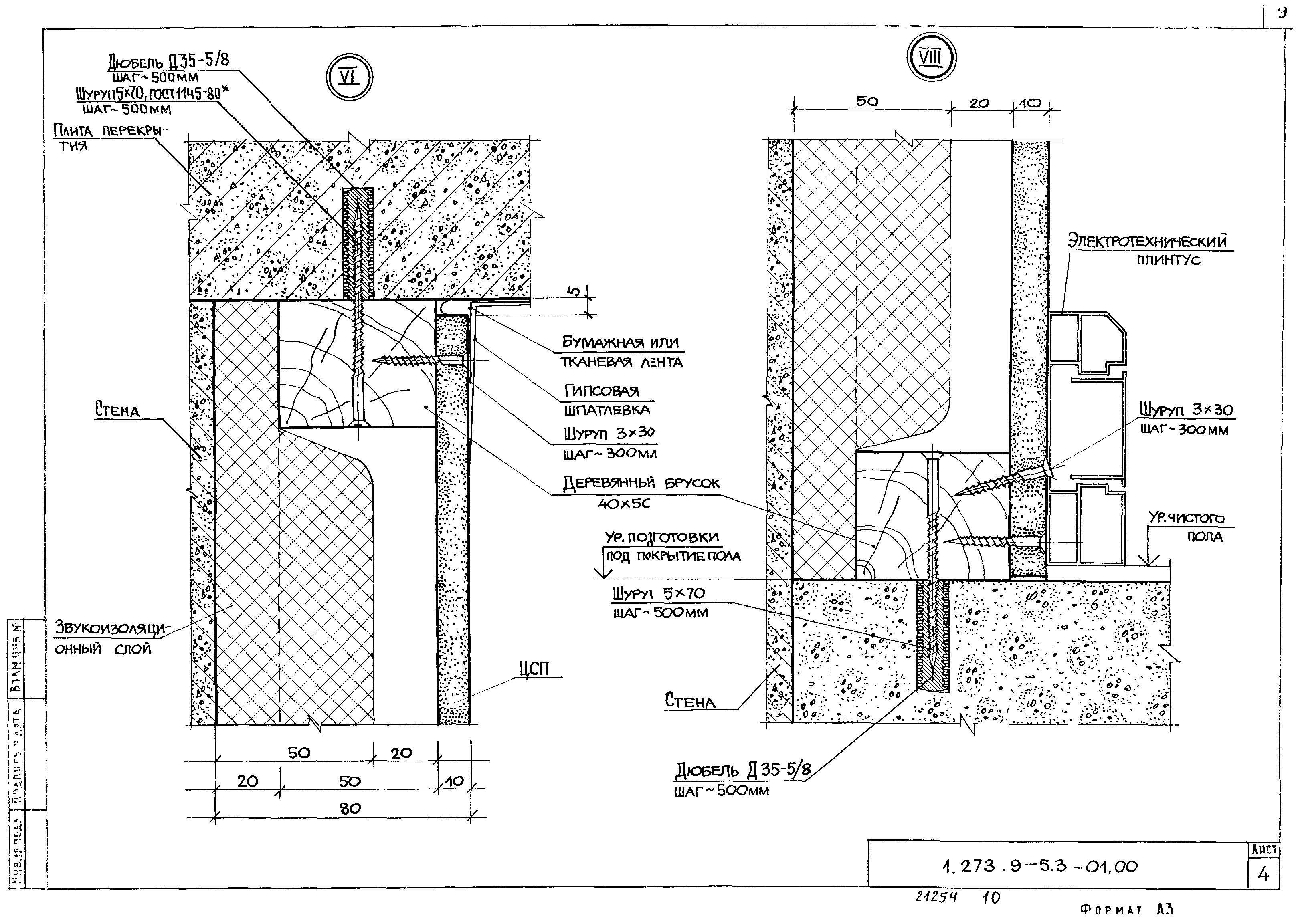
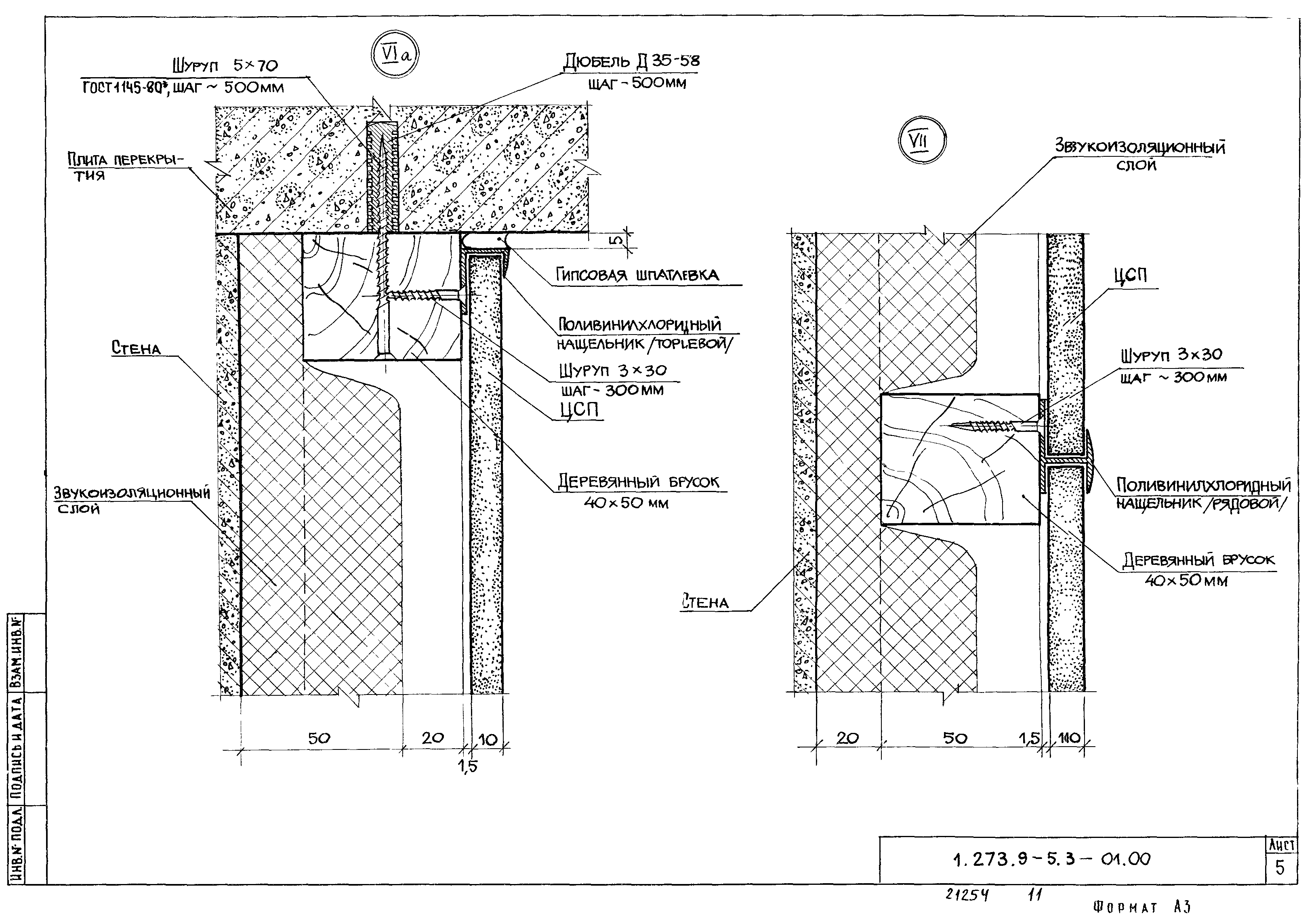
| Оглавление: | 1.273.9-5.3-00.00ПЗ Пояснительная записка 1.273.9-5.3-00.00ВД Ведомость ссылочных документов 1.273.9-5.3-01.00 Облицовка ОЦД-1м/ОЦД-1/(фрагмент). Узлы 1-8;1а-4а,6а Пример 1.273.9-5.3-02.00 Облицовка ОЦД-2(фрагмент). Узлы 1-7;1а-6а Пример 1.273.9-5.3-03.00 Примеры установки анкера падающего, крючка, анкера проходного и дюбеля разжимного 1.273.9-5.3-00.01 Крючок 1.273.9-5.3-00.02 Анкер проходной 1.273.9-5.3-00.03 Анкер падающий 1.273.9-5.3-00.04 Дюбель разжимной |
| Разработан: | ЦНИИЭП торгово-бытовых зданий и туристских комплексов |
| Утверждён: | 28.03.1986 Государственный комитет по гражданскому строительству и архитектуре при Госстрое СССР (114) |


















