Скачать Серия 1.273.9-5 Выпуск 4. Облицовки из цементностружечных плит на металлическом каркасе. Рабочие чертежи

Дата актуализации: 01.01.2021

Серия 1.273.9-5

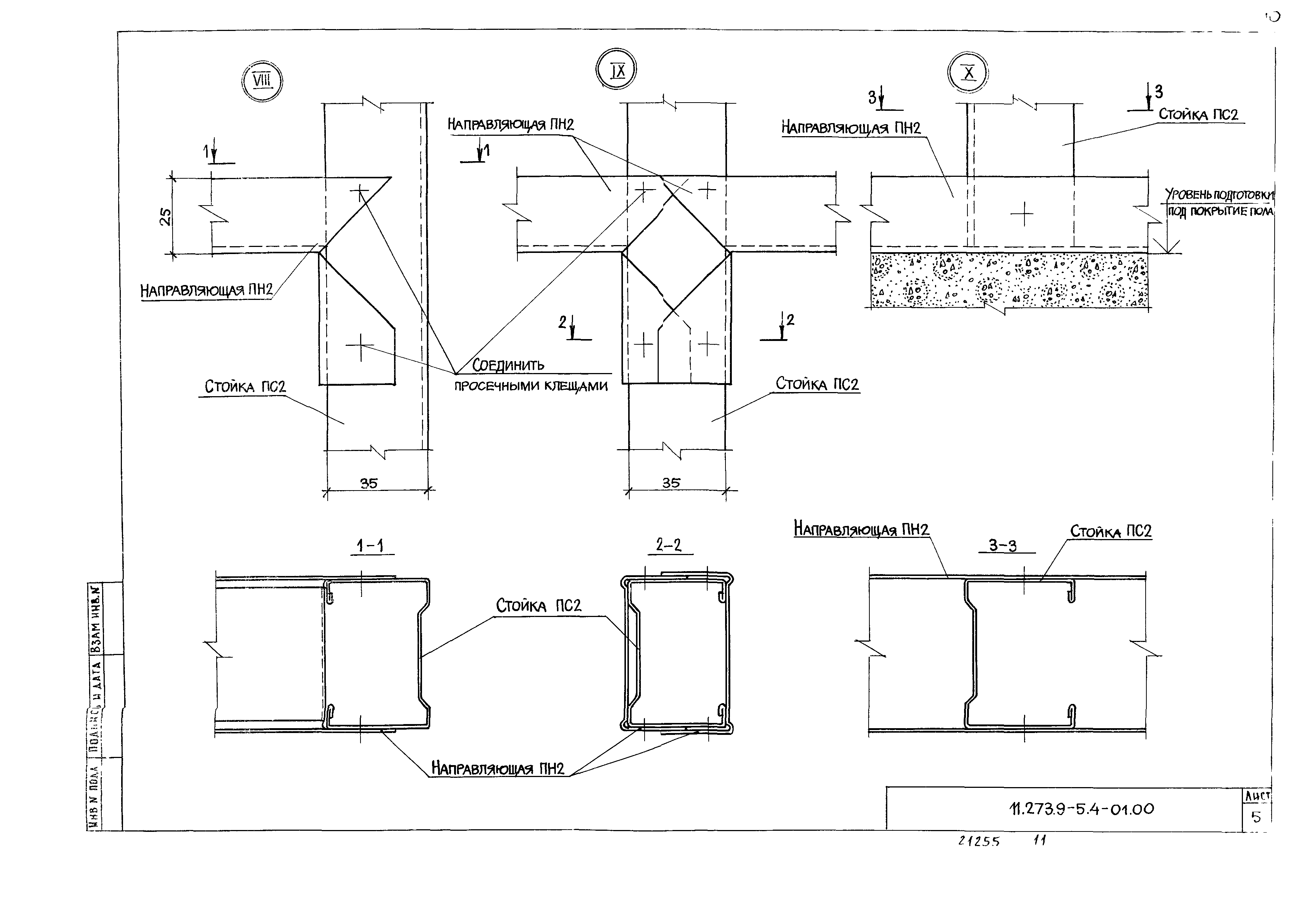
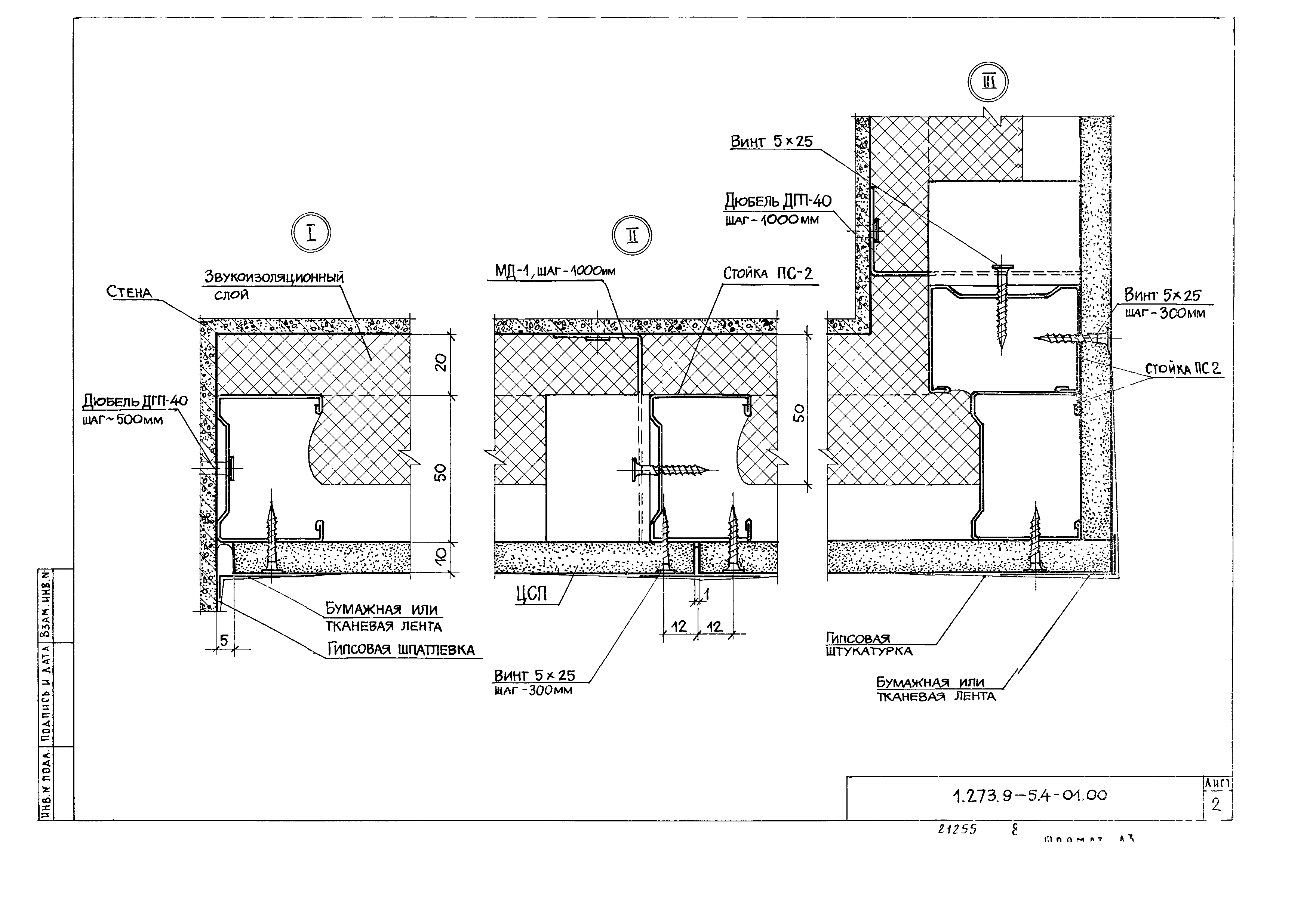
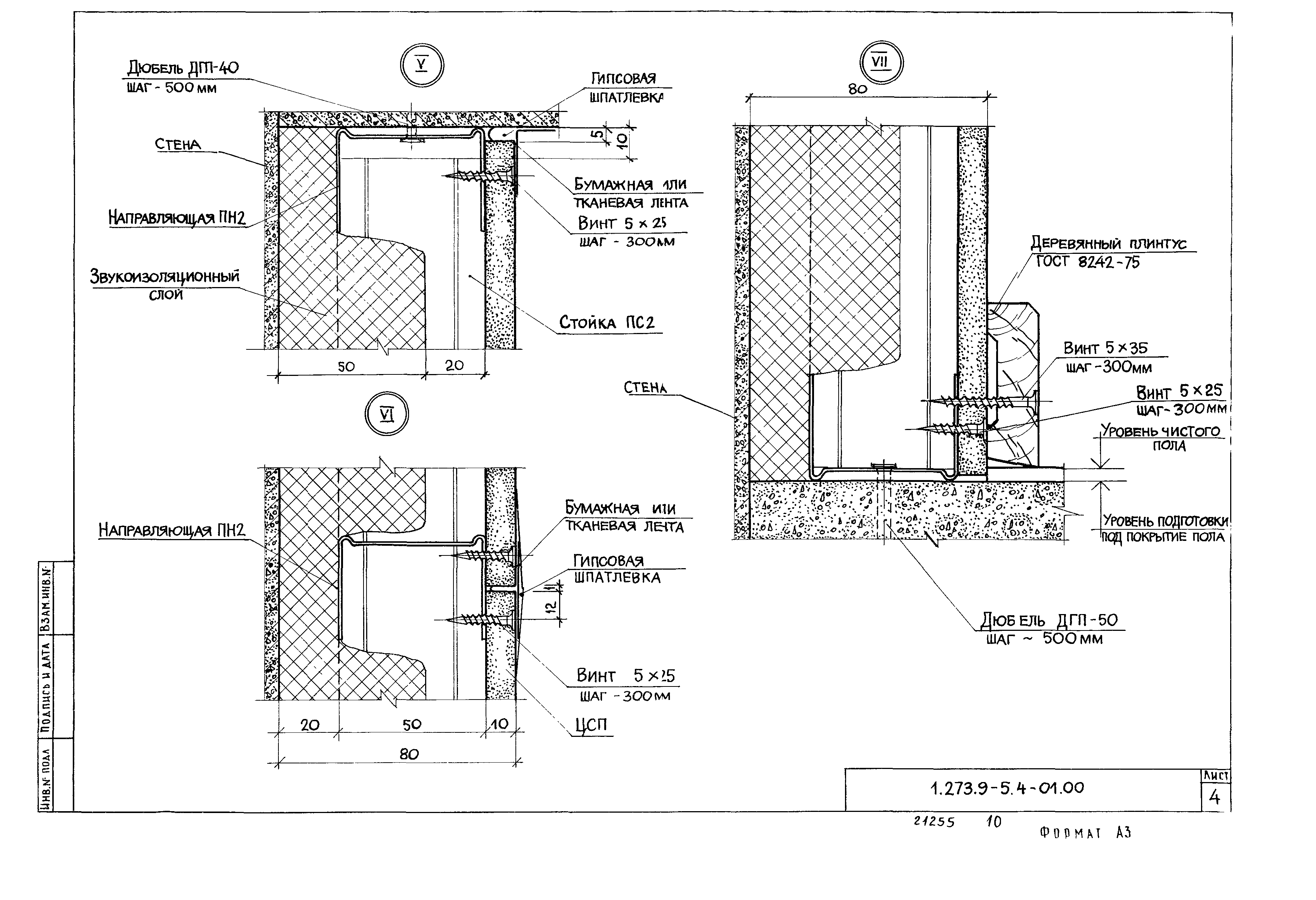
Выпуск 4. Облицовки из цементностружечных плит на металлическом каркасе. Рабочие чертежи

Обозначение: Серия 1.273.9-5
Обозначение англ: Series 1.273.9-5
Статус:не определен законодательством
Название рус.:Выпуск 4. Облицовки из цементностружечных плит на металлическом каркасе. Рабочие чертежи
Дата добавления в базу:01.09.2013
Дата актуализации:01.01.2021
Дата введения:01.05.1986
Дата окончания срока действия:30.06.2003
Разработан: ЦНИИЭП торгово-бытовых зданий и туристских комплексов
Утверждён:28.03.1986 Государственный комитет по гражданскому строительству и архитектуре при Госстрое СССР (114)
Серия 1.273.9-5Серия 1.273.9-5Серия 1.273.9-5Серия 1.273.9-5Серия 1.273.9-5Серия 1.273.9-5Серия 1.273.9-5Серия 1.273.9-5Серия 1.273.9-5Серия 1.273.9-5Серия 1.273.9-5Серия 1.273.9-5Серия 1.273.9-5Серия 1.273.9-5Серия 1.273.9-5Серия 1.273.9-5Серия 1.273.9-5Серия 1.273.9-5Серия 1.273.9-5Серия 1.273.9-5Серия 1.273.9-5Серия 1.273.9-5