Скачать Серия 1.273.9-5 Выпуск 5. Облицовки из гипсоволокнистых листов на деревянном каркасе. Рабочие чертежиДата актуализации: 01.01.2021
|
| Обозначение: | Серия 1.273.9-5 |
| Обозначение англ: | Series 1.273.9-5 |
| Статус: | не определен законодательством |
| Название рус.: | Выпуск 5. Облицовки из гипсоволокнистых листов на деревянном каркасе. Рабочие чертежи |
| Дата добавления в базу: | 01.09.2013 |
| Дата актуализации: | 01.01.2021 |
| Дата введения: | 01.07.1987 |
| Дата окончания срока действия: | 30.06.2003 |
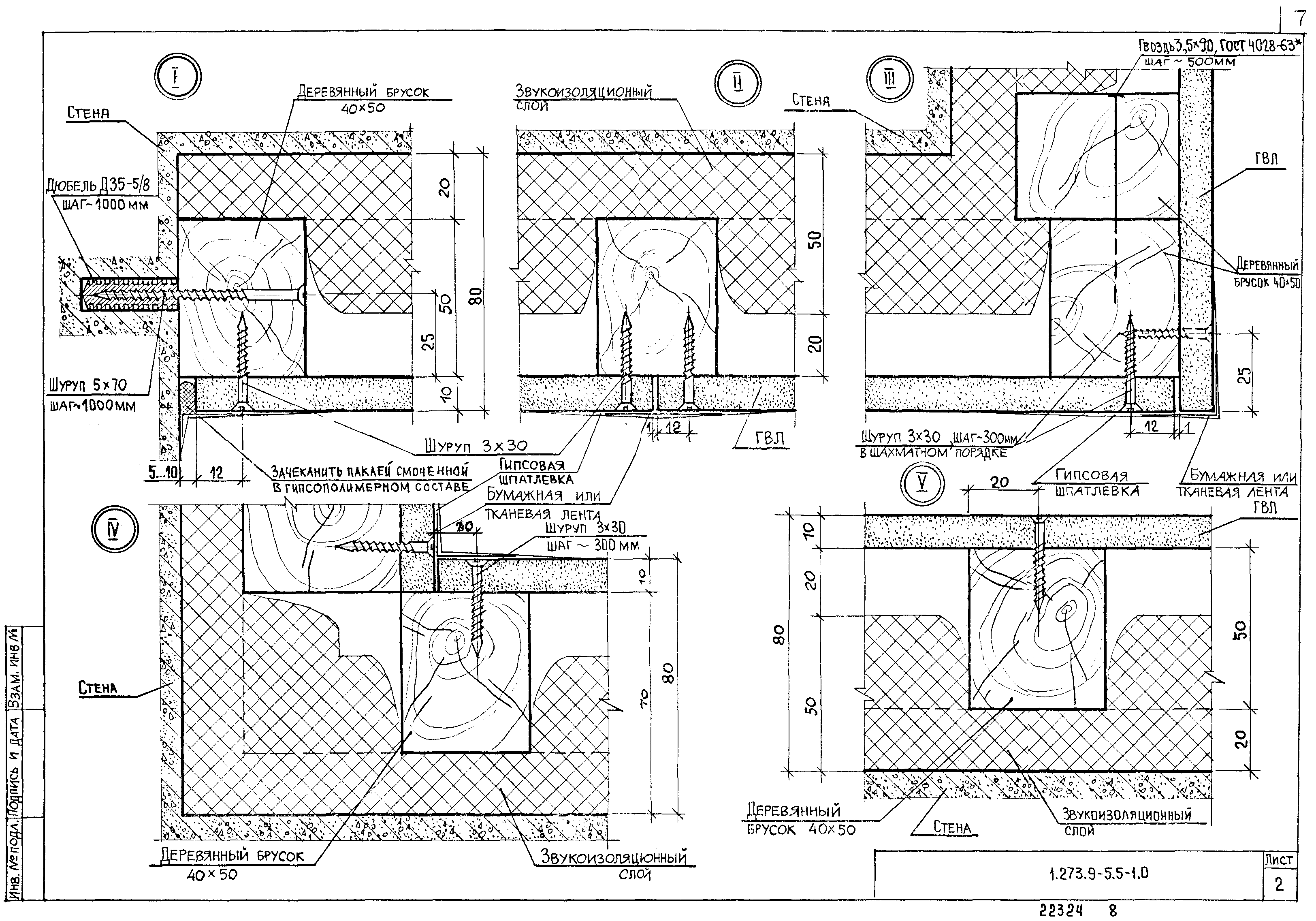
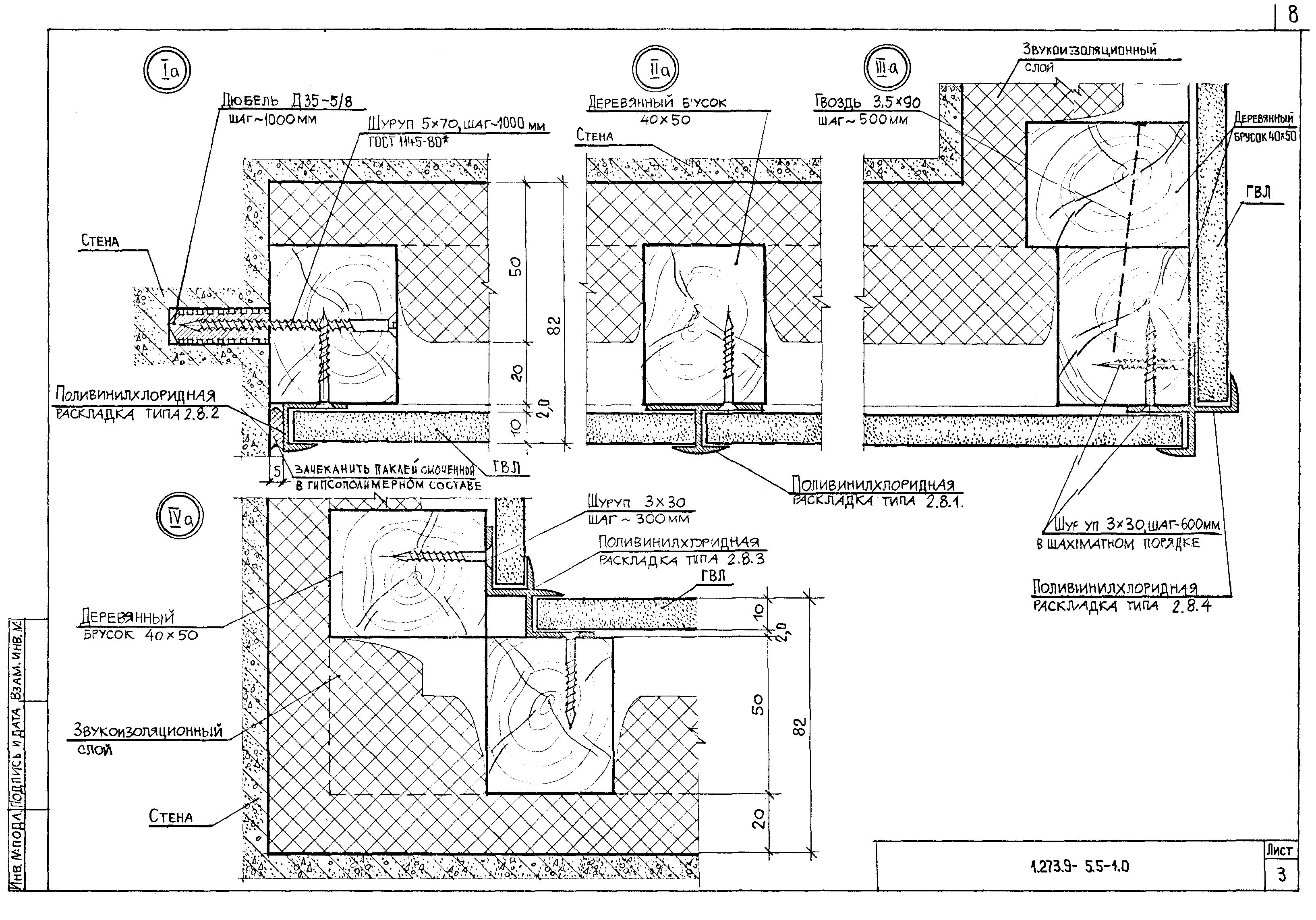
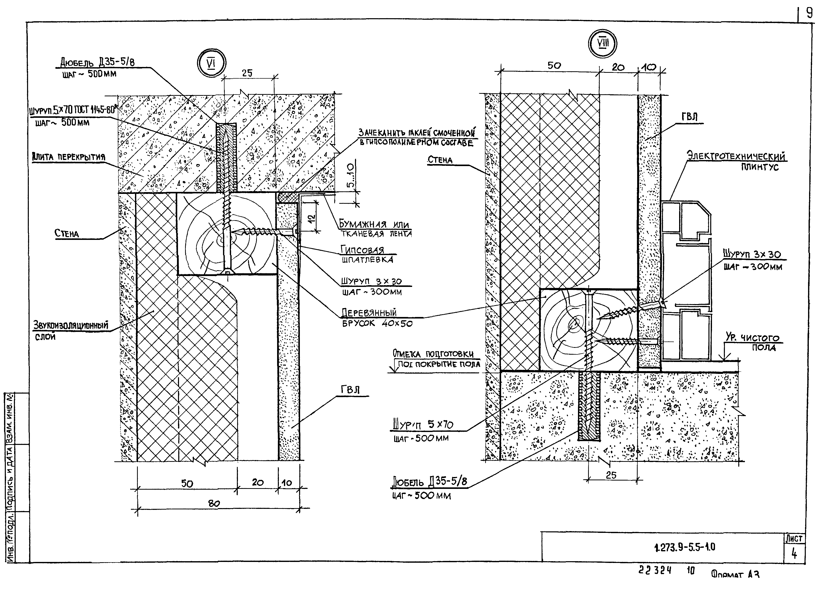
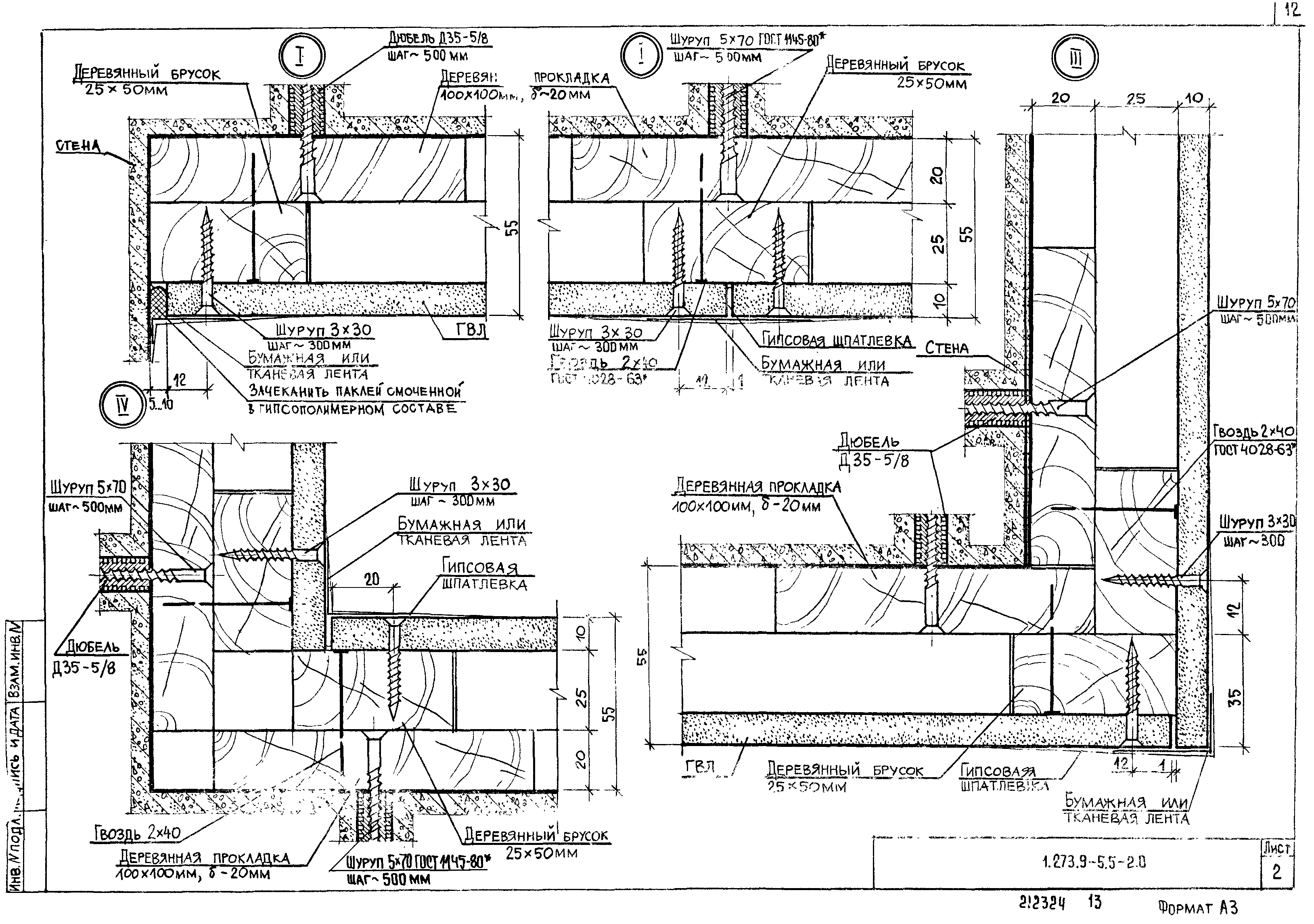
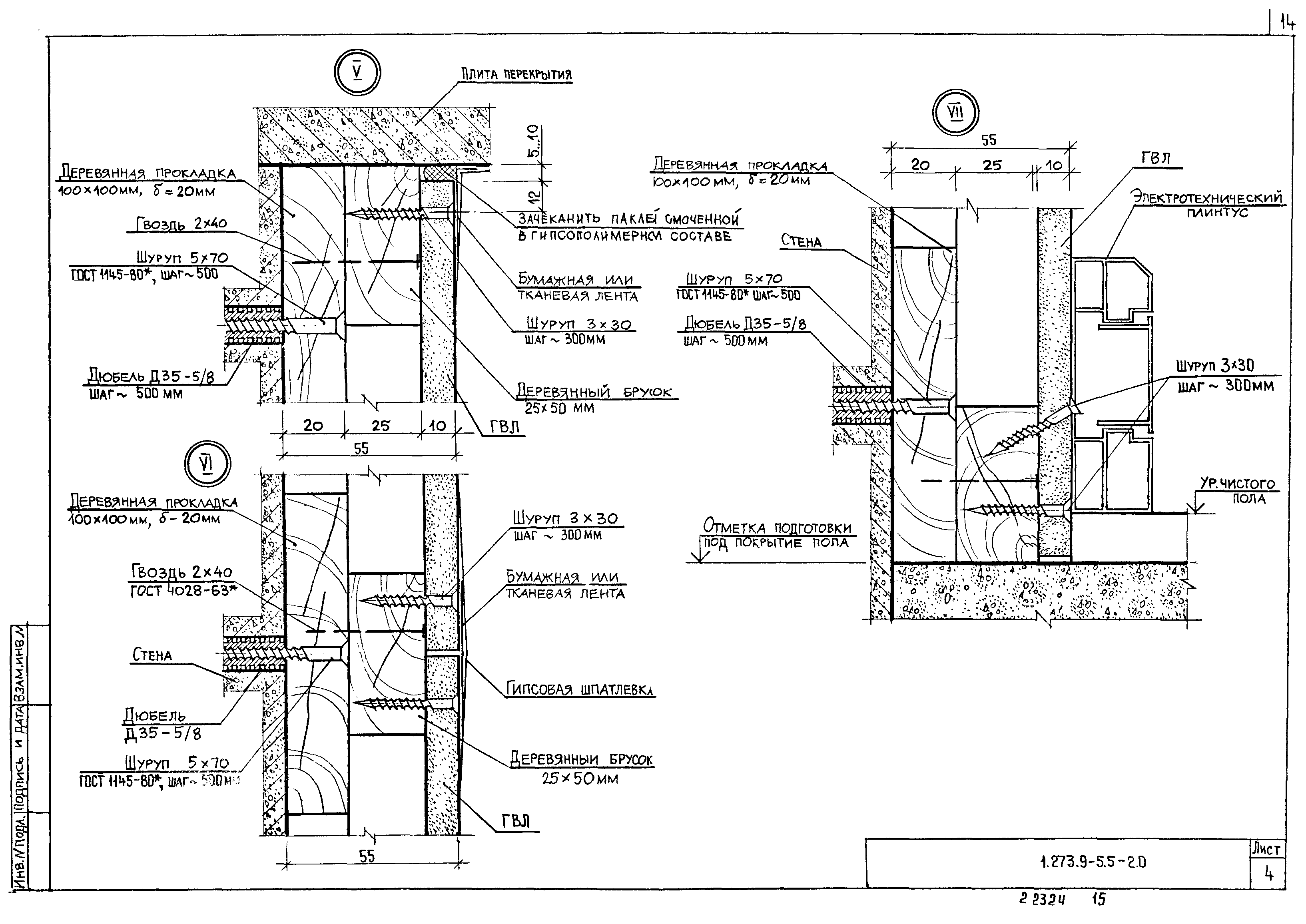
| Оглавление: | 1.273.9-5.5-0.0ПЗ Пояснительная записка 1.273.9-5.5-0.0ВД Ведомость ссылочных документов 1.273.9-5.5-1.0 Облицовка ОГВД-1м/ОГВД-1/(фрагмент). Узлы 1...8;1а...4а,6а Пример 1.273.9-5.5-2.0 Облицовка ОГВД-2(фрагмент). Узлы 1...7;1а...6а Пример 1.273.9-5.5-3.0 Примеры установки анкера падающего, крючка, анкера проходного и дюбеля разжимного 1.273.9-5.5-0.1 Крючок 1.273.9-5.5-0.2 Анкер проходной 1.273.9-5.5-0.3 Анкер падающий 1.273.9-5.5-0.4 Дюбель разжимной |
| Разработан: | ЦНИИЭП торгово-бытовых зданий и туристских комплексов |
| Утверждён: | 19.05.1987 Государственный комитет по гражданскому строительству и архитектуре при Госстрое СССР (161) |


















